Шрифт:
Т
Т
Т
Цвета:
Ч
Б
Изображения:
Ц
С
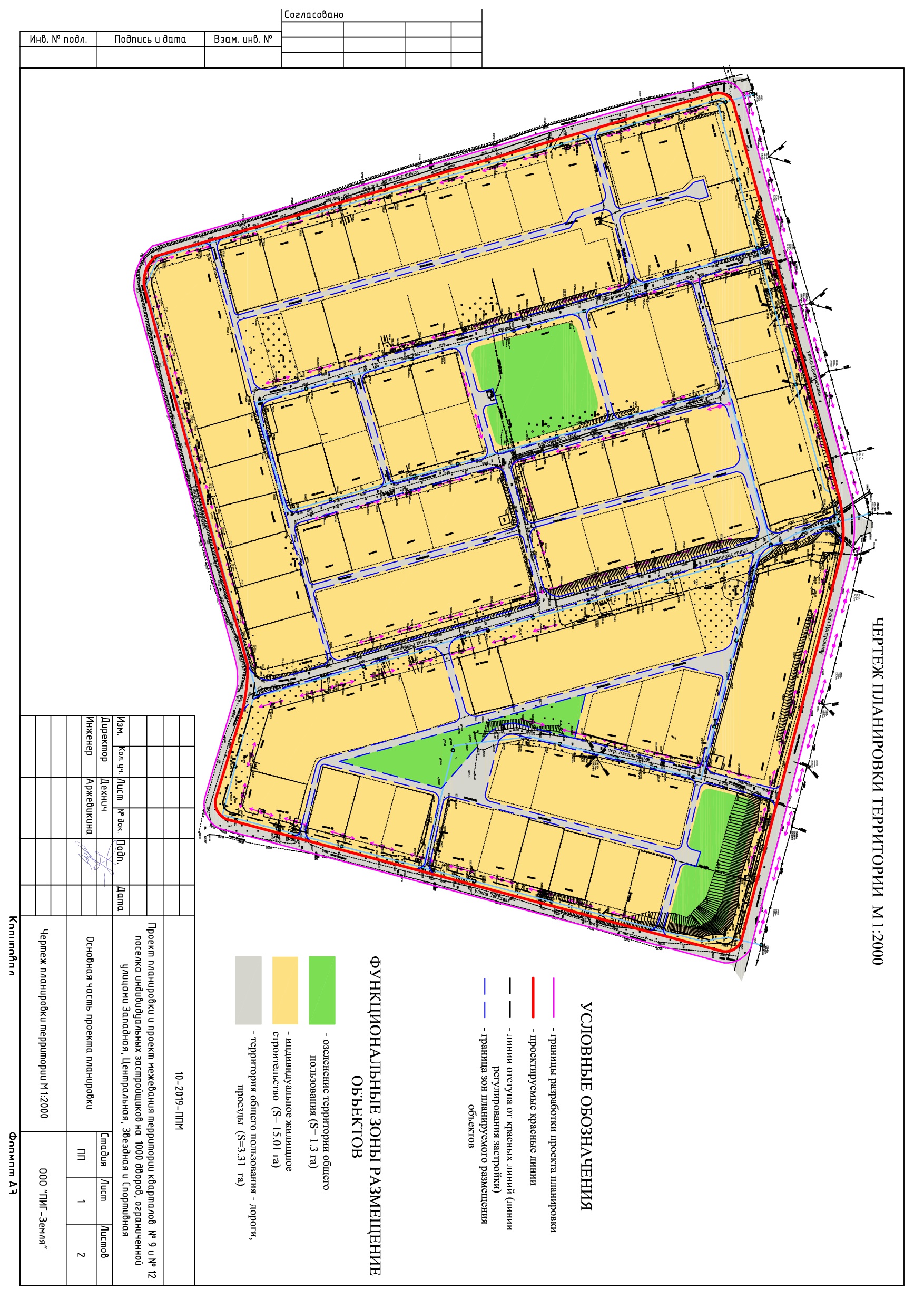
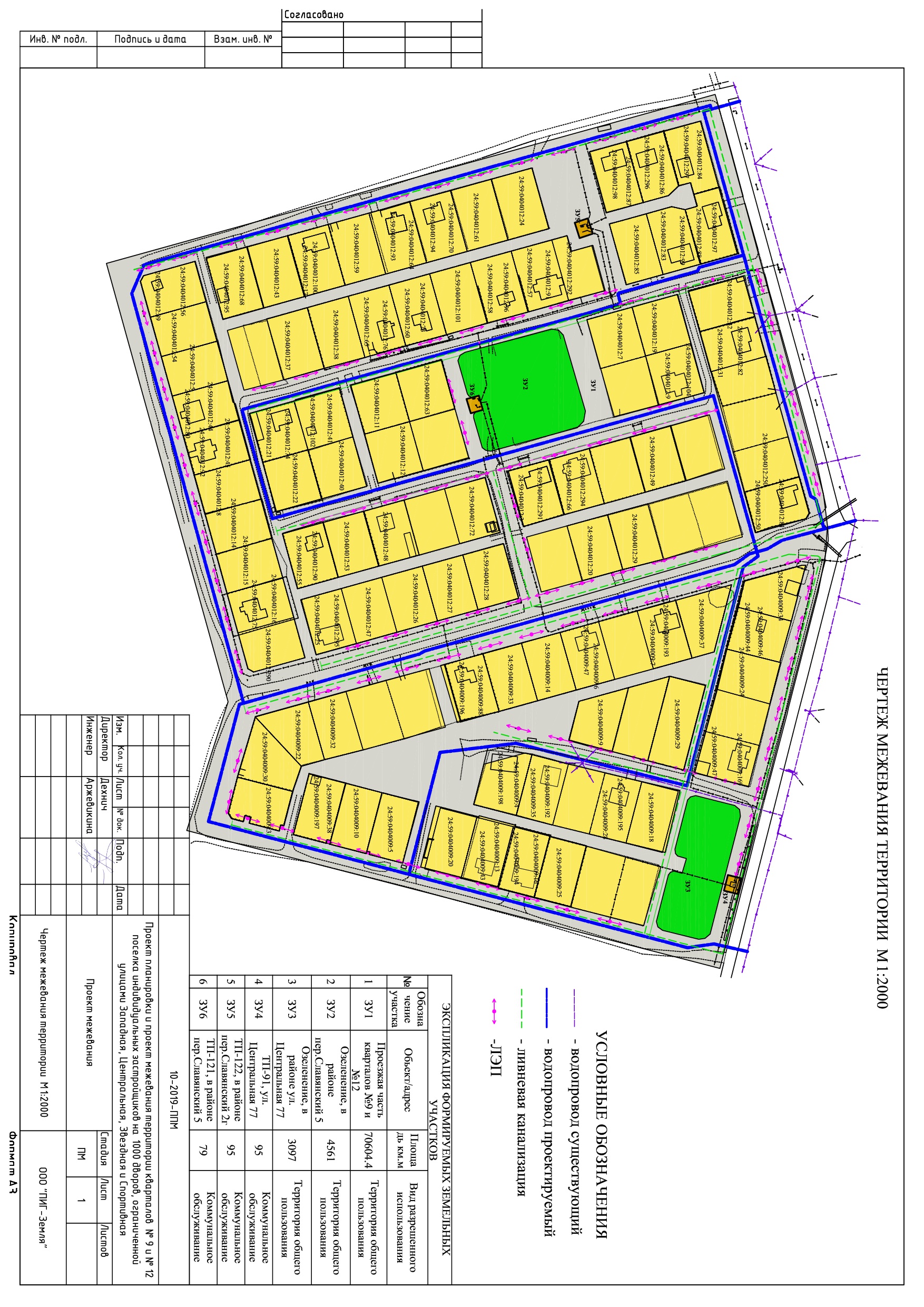
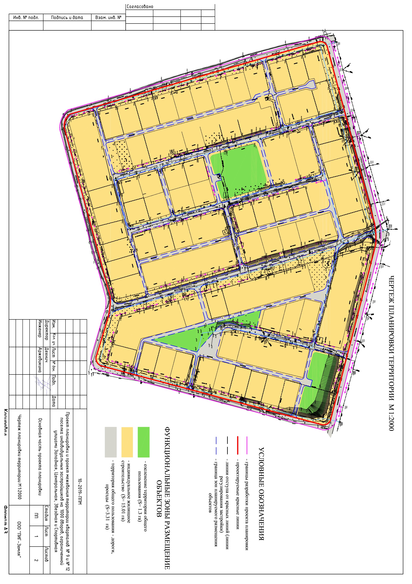
Постановление Администрации ЗАТО г. Зеленогорска от 12.12.2019 № 217-п Об утверждении проекта планировки территории и проекта межевания территории кварталов № 9 и № 12, ограниченных улицами Западная, Центральная, Звездная и Спортивная
Правовые акты № 4-п от 13.01.2017 О внесении изменений в постановление Администрации ЗАТО г. Зеленогорска от 30.06.2016 № 186-п «Об утверждении Административного регламента предоставления муниципальной услуги «Предоставление сведений из информационной системы обеспечения градостроительной деятельности (ИСОГД)» Постановление Администрации ЗАТО г. Зеленогорска от 06.04.2020 № 51-п О внесении изменений в постановление Администрации ЗАТО г. Зеленогорска от 06.11.2015 № 275-п «Об утверждении Порядка формирования и реализации муниципальных программ» Распоряжение Администрации ЗАТО г. Зеленогорска от 12.07.2021 № 1019-р О подготовке проекта планировки территории и проекта межевания территории в отношении территории, ограниченной улицами Первостроителей, Удачная, Монтажников Постановление Администрации ЗАТО г. Зеленогорск от 30.12.2022 № 217-п Об утверждении Административного регламента предоставления муниципальной услуги «Направление уведомления о соответствии указанных в уведомлении о планируемом строительстве параметров объекта индивидуального жилищного строительства или садового дома установленным параметрам и допустимости размещения объекта индивидуального жилищного строительства или садового дома на земельном участке» Распоряжение Администрации ЗАТО г. Зеленогорск от 27.02.2023 № 329-р Об утверждении Положения и состава межведомственной комиссии по охране труда Постановление Администрации ЗАТО г. Зеленогорск от 15.03.2023 № 49-п О внесении изменений в муниципальную программу «Развитие транспортной системы в городе Зеленогорске», утвержденную постановлением Администрации ЗАТО г. Зеленогорска от 20.12.2021 № 202-п Распоряжение Администрации ЗАТО г. Зеленогорск от 11.04.2023 № 533-р О внесении изменений в распоряжение Администрации ЗАТО г. Зеленогорска от 14.01.2019 № 72-р «Об утверждении состава и Порядка работы комиссии по определению внешнего вида зданий, строений, сооружений» Постановление Администрации ЗАТО г. Зеленогорск от 07.05.2026 № 96-п О признании утратившим силу постановления Администрации ЗАТО г. Зеленогорска от 29.06.2017 № 149-п «Об утверждении Порядка организации и осуществления муниципального контроля за обеспечением сохранности автомобильных дорог местного значения на территории города Зеленогорска» Постановление Администрации ЗАТО г. Зеленогорск от 06.05.2026 № 94-п О временном ограничении движения транспортных средств на участке автомобильной дороги общего пользования местного значения города Зеленогорска Постановление Администрации ЗАТО г. Зеленогорск от 05.05.2026 № 93-п О внесении изменений в муниципальную программу «Развитие малого и среднего предпринимательства в городе Зеленогорске», утвержденную постановлением Администрации ЗАТО г. Зеленогорска от 13.12.2021 № 194-п Постановление Администрации ЗАТО г. Зеленогорск от 05.05.2026 № 92-п О внесении изменений в постановление Администрации ЗАТО г. Зеленогорск от 20.12.2023 № 267-п «О создании и содержании в целях гражданской обороны запасов материально-технических, продовольственных, медицинских и иных средств на территории ЗАТО город Зеленогорск» Распоряжение Администрации ЗАТО г. Зеленогорск от 30.04.2026 № 627-р О создании согласительной комиссии по согласованию местоположения границ земельных участков при выполнении комплексных кадастровых работ регионального значения на территории муниципального образования город Зеленогорск Красноярского края Постановление Администрации ЗАТО г. Зеленогорск от 29.04.2026 № 89-п О внесении изменений в Проект организации дорожного движения на автомобильных дорогах общего пользования местного значения ЗАТО г. Зеленогорск, утвержденный постановлением Администрации ЗАТО г. Зеленогорск от 30.12.2025 № 290-п Постановление Администрации ЗАТО г. Зеленогорск от 30.04.2026 № 91-п Об условиях приватизации муниципального имущества Постановление Администрации ЗАТО г. Зеленогорск от 27.04.2026 № 87-п О внесении изменений в Порядок (план) действий по ликвидации последствий аварийных ситуаций в сфере теплоснабжения в муниципальном образовании город Зеленогорск Красноярского края (в том числе с применением электронного моделирования аварийных ситуаций), утвержденный постановлением Администрации ЗАТО г. Зеленогорск от 13.02.2026 № 20-п Распоряжение Администрации ЗАТО г. Зеленогорск от 28.04.2026 № 608-р Об утверждении лиц, уполномоченных на размещение на официальном сайте для размещения информации о государственных и муниципальных учреждениях в информационно-телекоммуникационной сети «Интернет» информации о результатах независимой оценки качества условий осуществления образовательной деятельности организациями, осуществляющими образовательную деятельность, оказания услуг муниципальными организациями культуры, расположенными на территории ЗАТО г. Зеленогорск Постановление Администрации ЗАТО г. Зеленогорск от 28.04.2026 № 88-п О внесении изменений в постановление Администрации ЗАТО г. Зеленогорск от 23.03.2026 № 51-п «О реорганизации МБДОУ д/с № 27 и МБДОУ д/с № 24» Постановление Администрации ЗАТО г. Зеленогорск от 27.04.2026 № 86-п О внесении изменений в постановление Администрации ЗАТО г. Зеленогорск от 07.04.2024 № 130-п «Об образовании избирательных участков на территории города Зеленогорска» Постановление Администрации ЗАТО г. Зеленогорск от 27.04.2026 № 85-п Об утверждении Положения о муниципальной системе оповещения населения города Зеленогорска Постановление Администрации ЗАТО г. Зеленогорск от 27.04.2026 № 84-п Об утверждении Положения и состава межведомственной комиссии по обследованию и категорированию мест массового пребывания людей на территории города Зеленогорска Красноярского края Постановление Администрации ЗАТО г. Зеленогорск от 27.04.2026 № 83-п О внесении изменений в Порядок формирования и ведения реестра муниципальных услуг, утвержденный постановлением Администрации ЗАТО г. Зеленогорск от 11.04.2025 № 90-п Постановление Администрации ЗАТО г. Зеленогорск от 24.04.2026 № 82-п О временном прекращении движения транспортных средств на участках автомобильных дорог общего пользования местного значения города Зеленогорска Постановление Администрации ЗАТО г. Зеленогорск от 24.04.2026 № 81-п Об утверждении отчета об исполнении бюджета городского округа ЗАТО город Зеленогорск за первый квартал 2026 года Постановление Администрации ЗАТО г. Зеленогорск от 24.04.2026 № 80-п О внесении изменений в муниципальную программу «Обеспечение жильем молодых семей в городе Зеленогорске», утвержденную постановлением Администрации ЗАТО г. Зеленогорск от 22.01.2024 № 13-п Постановление Администрации ЗАТО г. Зеленогорск от 22.04.2026 № 79-п О внесении изменений в Перечень муниципальных услуг, предоставляемых Администрацией ЗАТО г. Зеленогорск, и услуг, предоставляемых муниципальными учреждениями г. Зеленогорска, утвержденный постановлением Администрации ЗАТО г. Зеленогорск от 05.06.2023 № 107-п Распоряжение Администрации ЗАТО г. Зеленогорск от 21.04.2026 № 553-р О подготовке к весенне-летнему пожароопасному сезону на территории ЗАТО город Зеленогорск в 2026 году Постановление Администрации ЗАТО г. Зеленогорск от 21.04.2026 № 78-п О внесении изменений в Примерное положение об оплате труда работников муниципальных бюджетных и казенных учреждений города Зеленогорска, находящихся в ведении Управления образования Администрации ЗАТО г. Зеленогорск, утвержденное постановлением Администрации ЗАТО г. Зеленогорск от 30.06.2025 № 146-п Постановление Администрации ЗАТО г. Зеленогорск от 21.04.2026 № 77-п О внесении изменений в постановление Администрации ЗАТО г. Зеленогорск от 07.12.2023 № 237-п «Об утверждении реестра мест (площадок) накопления твердых коммунальных отходов, расположенных на территории города Зеленогорска» Постановление Администрации ЗАТО г. Зеленогорск от 21.04.2026 № 76-п О внесении изменений в муниципальную программу «Развитие физической культуры и спорта в городе Зеленогорске», утвержденную постановлением Администрации ЗАТО г. Зеленогорска от 09.12.2021 № 190-п Постановление Администрации ЗАТО г. Зеленогорск от 16.04.2026 № 75-п О внесении изменений в постановление Администрации ЗАТО г. Зеленогорска от 30.03.2022 № 59-п «Об утверждении краткосрочного плана реализации региональной программы капитального ремонта общего имущества в многоквартирных домах, расположенных на территории города Зеленогорска, на 2023 - 2025 годы» Постановление Администрации ЗАТО г. Зеленогорск от 16.04.2026 № 74-п О внесении изменений в постановление Администрации ЗАТО г. Зеленогорска от 28.12.2015 № 345-п «Об утверждении Перечня мест массового пребывания людей, расположенных на территории города Зеленогорска» Постановление Администрации ЗАТО г. Зеленогорск от 14.04.2026 № 73-п О проведении общегородского месячника по наведению санитарного порядка и благоустройству территории города Зеленогорска Постановление Администрации ЗАТО г. Зеленогорск от 14.04.2026 № 72-п Об определении средней рыночной стоимости одного квадратного метра общей площади жилого помещения на территории города Зеленогорска на II квартал 2026 года Распоряжение Администрации ЗАТО г. Зеленогорск от 09.04.2026 № 488-р О внесении изменений в распоряжение Администрации ЗАТО г. Зеленогорск от 06.10.2025 № 1410-р «Об осуществлении перевозки обучающихся на 2025 – 2026 учебный год в связи с проведением работ по капитальному ремонту МБОУ «СОШ № 163» Постановление Администрации ЗАТО г. Зеленогорск от 09.04.2026 № 71-п О временном прекращении движения транспортных средств на участке автомобильной дороги общего пользования местного значения города Зеленогорска Постановление Администрации ЗАТО г. Зеленогорск от 09.04.2026 № 70-п О внесении изменений в постановление Администрации ЗАТО г. Зеленогорск от 10.12.2024 № 265-п «Об утверждении Порядка предоставления субсидий социально ориентированным некоммерческим организациям на реализацию социальных проектов» Распоряжение Администрации ЗАТО г. Зеленогорск от 09.04.2026 № 486-р О внесении изменений в распоряжение Администрации ЗАТО г. Зеленогорск от 31.10.2024 № 1742-р «Об утверждении состава комиссии по соблюдению требований к служебному поведению муниципальных служащих и урегулированию конфликтов интересов муниципальных служащих, руководителей муниципальных учреждений и предприятий» Постановление Администрации ЗАТО г. Зеленогорск от 06.04.2026 № 69-п О внесении изменений в постановление Администрации ЗАТО г. Зеленогорск от 31.03.2025 № 83-п «Об утверждении Порядка предоставления субсидий в целях финансового обеспечения затрат, возникающих в связи с применением предельного индекса при оказании коммунальных услуг на реализацию отдельных мер по обеспечению ограничения платы граждан за коммунальные услуги» Постановление Администрации ЗАТО г. Зеленогорск от 03.04.2026 № 68-п Об утверждении Положения о предоставлении в аренду муниципального имущества субъектам малого и среднего предпринимательства, физическим лицам, не являющимся индивидуальными предпринимателями и применяющим специальный налоговый режим «Налог на профессиональный доход», и организациям, образующим инфраструктуру поддержки субъектов малого и среднего предпринимательства Постановление Администрации ЗАТО г. Зеленогорск от 03.04.2026 № 67-п О временном прекращении движения транспортных средств на участке автомобильной дороги общего пользования местного значения города Зеленогорска Распоряжение Администрации ЗАТО г. Зеленогорск от 02.04.2026 № 435-р О признании утратившими силу отдельных муниципальных правовых актов Распоряжение Администрации ЗАТО г. Зеленогорск от 31.03.2026 № 430-р О предоставлении разрешения на отклонение от предельных параметров разрешенного строительства объекта капитального строительства на земельном участке с кадастровым номером 24:59:0303038:1386 Постановление Администрации ЗАТО г. Зеленогорск от 02.04.2026 № 65-п О внесении изменений в постановление Администрации ЗАТО г. Зеленогорск от 30.03.2026 № 63-п «Об утверждении состава и Порядка работы комиссии по выявлению обстоятельств, свидетельствующих о необходимости оказания содействия в преодолении трудной жизненной ситуации детям-сиротам и детям, оставшимся без попечения родителей, лицам из числа детей-сирот и детей, оставшихся без попечения родителей, лицам, которые относились к категории детей-сирот и детей, оставшихся без попечения родителей, лиц из числа детей-сирот и детей, оставшихся без попечения родителей, и достигли возраста 23 лет, являющимся нанимателями жилого помещения по договору найма специализированного жилого помещения» Постановление Администрации ЗАТО г. Зеленогорск от 30.03.2026 № 63-п Об утверждении состава и Порядка работы комиссии по выявлению обстоятельств, свидетельствующих о необходимости оказания содействия в преодолении трудной жизненной ситуации детям-сиротам и детям, оставшимся без попечения родителей, лицам из числа детей-сирот и детей, оставшихся без попечения родителей, лицам, которые относились к категории детей-сирот и детей, оставшихся без попечения родителей, лиц из числа детей-сирот и детей, оставшихся без попечения родителей, и достигли возраста 23 лет, являющимся нанимателями жилого помещения по договору найма специализированного жилого помещения Постановление Администрации ЗАТО г. Зеленогорск от 31.03.2026 № 64-п О внесении изменений в постановление Администрации ЗАТО г. Зеленогорск от 30.12.2025 № 290-п «Об утверждении Проекта организации дорожного движения на автомобильных дорогах общего пользования местного значения ЗАТО г. Зеленогорск» Постановление Администрации ЗАТО г. Зеленогорск от 30.03.2026 № 62-п Об утверждении порядка обеспечения отдельных категорий граждан, проживающих на территории ЗАТО город Зеленогорск, автономными дымовыми пожарными извещателями, в целях оснащения ими жилых помещений Постановление Администрации ЗАТО г. Зеленогорск от 30.03.2026 № 61-п О внесении изменений в постановление Администрации ЗАТО г. Зеленогорска от 13.12.2021 № 195-п «Об утверждении муниципальной программы «Развитие образования в городе Зеленогорске» Постановление Администрации ЗАТО г. Зеленогорск от 30.03.2026 № 59-п О внесении изменений в Примерное положение об оплате труда работников муниципальных казенных учреждений по сопровождению деятельности органов местного самоуправления, находящихся в ведении Администрации ЗАТО г. Зеленогорск, утвержденное постановлением Администрации ЗАТО г. Зеленогорск от 12.01.2024 № 3-п Постановление Администрации ЗАТО г. Зеленогорск от 30.03.2026 № 60-п О внесении изменений в Примерное положение об оплате труда работников муниципальных казенных учреждений по сопровождению деятельности органов местного самоуправления, находящихся в ведении Отдела городского хозяйства Администрации ЗАТО г. Зеленогорск, утвержденное постановлением Администрации ЗАТО г. Зеленогорск от 12.01.2024 № 4-п Постановление Администрации ЗАТО г. Зеленогорск от 27.03.2026 № 58-п О внесении изменений в постановление Администрации ЗАТО г. Зеленогорск от 13.02.2026 № 20-п «Об утверждении Порядка (плана) действий по ликвидации последствий аварийных ситуаций в сфере теплоснабжения в муниципальном образовании город Зеленогорск Красноярского края (в том числе с применением электронного моделирования аварийных ситуаций)» Постановление Администрации ЗАТО г. Зеленогорск от 26.03.2026 № 57-п О временном прекращении движения транспортных средств на участке автомобильной дороги общего пользования местного значения города Зеленогорска Постановление Администрации ЗАТО г. Зеленогорск от 24.03.2026 № 53-п О внесении изменений в Примерное положение об оплате труда работников муниципальных бюджетных и казенных учреждений, находящихся в ведении МКУ «КФиС», утвержденное постановлением Администрации ЗАТО г. Зеленогорск от 13.06.2023 № 111-п Постановление Администрации ЗАТО г. Зеленогорск от 25.03.2026 № 55-п Об утверждении муниципальной программы «Укрепление общественного здоровья в городе Зеленогорске на 2026-2030 годы» Постановление Администрации ЗАТО г. Зеленогорск от 25.03.2026 № 54-п О внесении изменений в постановление Администрации ЗАТО г. Зеленогорск от 07.12.2023 № 237-п «Об утверждении реестра мест (площадок) накопления твердых коммунальных отходов, расположенных на территории города Зеленогорска» Постановление Администрации ЗАТО г. Зеленогорск от 20.03.2026 № 49-п О внесении изменений в постановление Администрации ЗАТО г. Зеленогорска от 27.12.2021 № 211-п «Об утверждении муниципальной программы «Развитие молодежной политики города Зеленогорска» Постановление Администрации ЗАТО г. Зеленогорск от 20.03.2026 № 50-п О внесении изменений в постановление Администрации ЗАТО г. Зеленогорска от 23.12.2021 № 208-п «Об утверждении Муниципальной программы «Защита населения и территории города Зеленогорска от чрезвычайных ситуаций природного и техногенного характера» Постановление Администрации ЗАТО г. Зеленогорск от 23.03.2026 № 52-п О внесении изменений в постановление Администрации ЗАТО г. Зеленогорска от 27.01.2017 № 13-п «Об утверждении Порядка размещения информации о рассчитываемой за календарный год среднемесячной заработной плате руководителей, их заместителей и главных бухгалтеров муниципальных учреждений и муниципальных унитарных предприятий города Зеленогорска и предоставления указанными лицами данной информации» Постановление Администрации ЗАТО г. Зеленогорск от 23.03.2026 № 51-п О реорганизации МБДОУ д/с № 27 и МБДОУ д/с № 24 Распоряжение Администрации ЗАТО г. Зеленогорск от 23.03.2026 № 360-р О внесении изменений в проект межевания территории микрорайона № 18 города Зеленогорска Постановление Администрации ЗАТО г. Зеленогорск от 20.03.2026 № 48-п О внесении изменений в Порядок и условия заключения соглашений о защите и поощрении капиталовложений со стороны муниципального образования город Зеленогорск, утвержденные постановлением Администрации ЗАТО г. Зеленогорск от 24.12.2024 № 285-п Постановление Администрации ЗАТО г. Зеленогорск от 20.03.2026 № 47-п О внесении изменений в постановление Администрации ЗАТО г. Зеленогорска от 13.04.2022 № 69-п «Об изменении существенных условий муниципальных контрактов, контрактов, заключенных до 1 января 2026 года для обеспечения муниципальных нужд» Распоряжение Администрации ЗАТО г. Зеленогорск от 20.03.2026 № 355-р О внесении изменений в распоряжение Администрации ЗАТО г. Зеленогорск от 25.08.2023 № 1382-р «О создании и утверждении состава Координационного совета по межведомственному взаимодействию для своевременного оказания мер социальной поддержки участникам СВО, членам их семей, членам семей погибших участников СВО из числа жителей города Зеленогорска» Постановление Администрации ЗАТО г. Зеленогорск от 20.03.2026 № 46-п О внесении изменений в постановление Администрации ЗАТО г. Зеленогорска от 09.12.2021 № 190-п «Об утверждении муниципальной программы «Развитие физической культуры и спорта в городе Зеленогорске» Постановление Администрации ЗАТО г. Зеленогорск от 19.03.2026 № 45-п О внесении изменений в постановление Администрации ЗАТО г. Зеленогорск от 10.11.2025 № 240-п «О реорганизации МКУ «КООС» и МКУ «Горлесхоз» Постановление Администрации ЗАТО г. Зеленогорск от 17.03.2026 № 44-п О внесении изменений в постановление Администрации ЗАТО г. Зеленогорска от 23.12.2021 № 209-п «Об утверждении муниципальной программы «Обеспечение безопасности населения города Зеленогорска» Постановление Администрации ЗАТО г. Зеленогорск от 17.03.2026 № 43-п Об условиях приватизации муниципального имущества Постановление Администрации ЗАТО г. Зеленогорск от 16.03.2026 № 42-п О внесении изменений в муниципальную программу «Капитальное строительство и капитальный ремонт в городе Зеленогорске», утвержденную постановлением Администрации ЗАТО г. Зеленогорска от 13.12.2021 № 197-п Постановление Администрации ЗАТО г. Зеленогорск от 13.03.2026 № 41-п О внесении изменений в муниципальную программу «Формирование современной городской среды в городе Зеленогорске», утвержденную постановлением Администрации ЗАТО г. Зеленогорска от 31.10.2017 № 257-п Постановление Администрации ЗАТО г. Зеленогорск от 13.03.2026 № 40-п О внесении изменений в муниципальную программу «Реформирование и модернизация жилищно-коммунального хозяйства и повышение энергетической эффективности в городе Зеленогорске», утвержденную постановлением Администрации ЗАТО г. Зеленогорска от 20.12.2021 № 205-п Постановление Администрации ЗАТО г. Зеленогорск от 13.03.2026 № 39-п О внесении изменений в муниципальную программу «Развитие транспортной системы в городе Зеленогорске», утвержденную постановлением Администрации ЗАТО г. Зеленогорска от 20.12.2021 № 202-п Постановление Администрации ЗАТО г. Зеленогорск от 13.03.2026 № 38-п О внесении изменений в муниципальную программу «Охрана окружающей среды и защита городских лесов на территории города Зеленогорска», утвержденную постановлением Администрации ЗАТО г. Зеленогорска от 13.12.2021 № 193-п Постановление Администрации ЗАТО г. Зеленогорск от 05.03.2026 № 36-п О внесении изменений в муниципальную программу «Управление муниципальными финансами города Зеленогорска», утвержденную постановлением Администрации ЗАТО г. Зеленогорска от 25.11.2021 № 171-п Постановление Администрации ЗАТО г. Зеленогорск от 05.02.2026 № 15-п Об утверждении Положения об отделе трудовых отношений Администрации ЗАТО г. Зеленогорск Распоряжение Администрации ЗАТО г. Зеленогорск от 12.03.2026 № 313-р Об организации работы телефона «Горячая линия» по вопросам охраны труда Распоряжение Администрации ЗАТО г. Зеленогорск от 12.03.2026 № 316-р О противопаводковых мероприятиях в 2026 году Постановление Администрации ЗАТО г. Зеленогорск от 10.03.2026 № 37-п О внесении изменений в постановление Администрации ЗАТО г. Зеленогорск от 25.02.2025 № 44-п «О силах и средствах постоянной готовности городского звена территориальной подсистемы единой государственной системы предупреждения и ликвидации чрезвычайных ситуаций ЗАТО город Зеленогорск» Постановление Администрации ЗАТО г. Зеленогорск от 02.03.2026 № 35-п Об утверждении Порядка организации и проведения аукционов на право заключения договоров на установку и эксплуатацию нестационарных торговых объектов, примерной формы договора на установку и эксплуатацию нестационарного торгового объекта Распоряжение Администрации ЗАТО г. Зеленогорск от 27.02.2026 № 268-р О начале приема от населения предложений и об обсуждении с населением предлагаемых мероприятий по реализации проекта и функций общественной территории «Участок Набережной р. Кан № 1» в районе от ул. Набережная, д. 1 до ул. Набережная, д. 8, определенной для участия во Всероссийском конкурсе лучших проектов создания комфортной городской среды Постановление Администрации ЗАТО г. Зеленогорск от 25.02.2026 № 34-п О внесении изменений в постановление Администрации ЗАТО г. Зеленогорск от 07.12.2023 № 237-п «Об утверждении реестра мест (площадок) накопления твердых коммунальных отходов, расположенных на территории города Зеленогорска» Постановление Администрации ЗАТО г. Зеленогорск от 24.02.2026 № 33-п О внесении изменений в постановление Администрации ЗАТО г. Зеленогорск от 15.11.2023 № 219-п «Об утверждении Порядка допуска в здание Администрации ЗАТО г. Зеленогорск» Постановление Администрации ЗАТО г. Зеленогорск от 20.02.2026 № 32-п О внесении изменений в Примерное положение об оплате труда работников муниципальных бюджетных и казенных учреждений города Зеленогорска, находящихся в ведении Управления образования Администрации ЗАТО г. Зеленогорск, утвержденное постановлением Администрации ЗАТО г. Зеленогорск от 30.06.2025 № 146-п Постановление Администрации ЗАТО г. Зеленогорск от 20.02.2026 № 31-п О средстве массовой информации, определенном в качестве официального сетевого издания, осуществляющего публикацию муниципальных правовых актов Постановление Администрации ЗАТО г. Зеленогорск от 18.02.2026 № 24-п Об утверждении Плана основных мероприятий ЗАТО город Зеленогорск в области гражданской обороны, предупреждения и ликвидации чрезвычайных ситуаций, обеспечения пожарной безопасности и безопасности людей на водных объектах на 2026 год Постановление Администрации ЗАТО г. Зеленогорск от 20.02.2026 № 30-п О внесении изменений в постановление Администрации ЗАТО г. Зеленогорск от 04.08.2025 № 167-п «Об утверждении Порядка предоставления субсидий субъектам малого и среднего предпринимательства в целях возмещения части затрат в связи с реализацией инвестиционных проектов в приоритетных отраслях» Постановление Администрации ЗАТО г. Зеленогорск от 20.02.2026 № 29-п О внесении изменений в постановление Администрации ЗАТО г. Зеленогорск от 22.07.2025 № 161-п «Об утверждении Порядка предоставления грантов в форме субсидий субъектам малого и среднего предпринимательства в целях финансового обеспечения части затрат на начало ведения предпринимательской деятельности» Постановление Администрации ЗАТО г. Зеленогорск от 20.02.2026 № 28-п О закреплении муниципальных бюджетных образовательных учреждений города Зеленогорска за конкретными территориями города Зеленогорска Постановление Администрации ЗАТО г. Зеленогорск от 16.02.2026 № 22-п О внесении изменений в постановление Администрации ЗАТО г. Зеленогорска от 15.09.2021 № 117-п «О Координационном совете в области развития малого и среднего предпринимательства» Постановление Администрации ЗАТО г. Зеленогорск от 16.02.2026 № 21-п О признании утратившим силу постановления Администрации ЗАТО г. Зеленогорск от 23.01.2026 № 5-п «О признании утратившими силу некоторых постановлений Администрации ЗАТО г. Зеленогорск» Постановление Администрации ЗАТО г. Зеленогорск от 16.02.2026 № 23-п Об утверждении схемы размещения нестационарных торговых объектов на территории города Зеленогорска Распоряжение Администрации ЗАТО г. Зеленогорск от 06.02.2026 № 165-р Об утверждении Положения о премировании по результатам работы директора Муниципального унитарного предприятия тепловых сетей г.Зеленогорска Постановление Администрации ЗАТО г. Зеленогорск от 13.02.2026 № 19-п О внесении изменений в муниципальную программу «Развитие культуры города Зеленогорска», утвержденную постановлением Администрации ЗАТО г. Зеленогорска от 21.12.2021 № 206-п Постановление Администрации ЗАТО г. Зеленогорск от 13.02.2026 № 18-п О внесении изменений в постановление Администрации ЗАТО г. Зеленогорска от 27.12.2021 № 211-п «Об утверждении муниципальной программы «Развитие молодежной политики города Зеленогорска» Распоряжение Администрации ЗАТО г. Зеленогорск от 11.02.2026 № 174-р О внесении изменений в распоряжение Администрации ЗАТО г. Зеленогорск от 27.12.2023 № 2215-р «О создании рабочей группы по организации голосования по отбору общественной территории г. Зеленогорска, подлежащей благоустройству, с использованием информационно-телекоммуникационной сети «Интернет» Постановление Администрации ЗАТО г. Зеленогорск от 05.02.2026 № 14-п О внесении изменений в муниципальную программу «Муниципальное имущество и земельные ресурсы города Зеленогорска», утвержденную постановлением Администрации ЗАТО г. Зеленогорска от 20.12.2021 № 201-п Распоряжение Администрации ЗАТО г. Зеленогорск от 06.02.2026 № 156-р Об участии во Всероссийском конкурсе лучших проектов создания комфортной городской среды Постановление Администрации ЗАТО г. Зеленогорск от 05.02.2026 № 13-п О видах обязательных работ и объектах, на которых они отбываются Постановление Администрации ЗАТО г. Зеленогорск от 06.02.2026 № 17-п О внесении изменений в постановление Администрации ЗАТО г. Зеленогорска от 19.05.2017 № 110-п «Об установлении размера платы за содержание жилого помещения в многоквартирных домах, собственники помещений в которых не приняли решение об установлении размера платы за содержание жилого помещения» Постановление Администрации ЗАТО г. Зеленогорск от 06.02.2026 № 16-п О признании утратившим силу постановления Администрации ЗАТО г. Зеленогорск от 19.07.2023 № 148-п Постановление Администрации ЗАТО г. Зеленогорск от 02.02.2026 № 12-п Об утверждении Положения об условиях оплаты труда директора, заместителей директора и главного бухгалтера Муниципального унитарного предприятия тепловых сетей г.Зеленогорска Распоряжение Администрации ЗАТО г. Зеленогорск от 02.02.2026 № 117-р О проведении конкурса на включение граждан в резерв управленческих кадров г. Зеленогорска на замещение целевой должности директора Муниципального казённого учреждения «Служба единого заказчика-застройщика» Постановление Администрации ЗАТО г. Зеленогорск от 30.01.2026 № 11-п О внесении изменений в муниципальную программу «Формирование современной городской среды в городе Зеленогорске», утвержденную постановлением Администрации ЗАТО г. Зеленогорска от 31.10.2017 № 257-п Распоряжение Администрации ЗАТО г. Зеленогорск от 29.01.2026 № 102-р О внесении изменений в распоряжение Администрации ЗАТО г. Зеленогорска от 30.12.2021 № 2139-р «Об утверждении состава и Порядка работы комиссии по обеспечению безопасности дорожного движения» Постановление Администрации ЗАТО г. Зеленогорск от 29.01.2026 № 10-п Об установлении срока освобождения от внесения платы за пользование (платы за наем) жилым помещением муниципального жилищного фонда Постановление Администрации ЗАТО г. Зеленогорск от 26.01.2026 № 8-п О внесении изменений в Примерное положение об оплате труда работников муниципальных казенных учреждений по сопровождению деятельности органов местного самоуправления, наделенных полномочиями главных распорядителей средств местного бюджета, утвержденное постановлением Администрации ЗАТО г. Зеленогорск от 12.01.2024 № 5-п Постановление Администрации ЗАТО г. Зеленогорск от 26.01.2026 № 7-п О внесении изменений в Примерное положение об оплате труда работников муниципальных казенных учреждений по сопровождению деятельности органов местного самоуправления, находящихся в ведении Администрации ЗАТО г. Зеленогорск, утвержденное постановлением Администрации ЗАТО г. Зеленогорск от 12.01.2024 № 3-п Постановление Администрации ЗАТО г. Зеленогорск от 23.01.2026 № 6-п О внесении изменений в постановление Администрации ЗАТО г. Зеленогорск от 18.12.2024 № 277-п «Об утверждении перечней главных администраторов доходов местного бюджета и главных администраторов источников финансирования дефицита местного бюджета города Зеленогорска» Постановление Администрации ЗАТО г. Зеленогорск от 23.01.2026 № 5-п О признании утратившими силу некоторых постановлений Администрации ЗАТО г. Зеленогорск Постановление Администрации ЗАТО г. Зеленогорск от 20.01.2026 № 4-п О внесении изменений в постановление Администрации ЗАТО г. Зеленогорск от 07.07.2023 № 138-п «О некоторых мерах правового регулирования вопросов, связанных с оказанием муниципальной услуги «Реализация дополнительных общеразвивающих программ» в соответствии с социальными сертификатами» Постановление Администрации ЗАТО г. Зеленогорск от 16.01.2026 № 3-п О внесении изменений в постановление Администрации ЗАТО г. Зеленогорск от 12.07.2023 № 142-п «Об утверждении Порядка предоставления субсидии юридическим лицам, индивидуальным предпринимателям, физическим лицам – производителям товаров, работ, услуг на оплату соглашения о финансовом обеспечении затрат, связанных с оказанием муниципальных услуг в социальной сфере в соответствии с социальным сертификатом на получение муниципальной услуги в социальной сфере» Постановление Администрации ЗАТО г. Зеленогорск от 16.01.2026 № 2-п О внесении изменений в постановление Администрации ЗАТО г. Зеленогорск от 12.07.2023 № 143-п «Об утверждении Порядка предоставления субсидии юридическим лицам, индивидуальным предпринимателям, физическим лицам – производителям товаров, работ, услуг на оплату соглашения о возмещении затрат, связанных с оказанием муниципальных услуг в социальной сфере в соответствии с социальным сертификатом на получение муниципальной услуги в социальной сфере» Распоряжение Администрации ЗАТО г. Зеленогорск от 15.01.2026 № 13-р О проведении капитального ремонта общего имущества в многоквартирных домах, расположенных на территории города Зеленогорска, в 2026 - 2028 годах Постановление Администрации ЗАТО г. Зеленогорск от 12.01.2026 № 1-п О внесении изменений в постановление Администрации ЗАТО г. Зеленогорск от 12.07.2023 № 144-п «Об утверждении Порядка формирования муниципальных социальных заказов на оказание муниципальных услуг в социальной сфере, отнесенных к полномочиям органов местного самоуправления города Зеленогорска, формы отчета об их исполнении» Распоряжение Администрации ЗАТО г. Зеленогорск от 12.01.2026 № 3-р Об организации работы по актуализации схемы теплоснабжения города Зеленогорска Распоряжение Администрации ЗАТО г. Зеленогорск от 30.12.2025 № 1870-р Об организации отдыха детей и их оздоровления в летний период 2026 года Распоряжение Администрации ЗАТО г. Зеленогорск от 30.12.2025 № 1869-р О внесении изменений в распоряжение Администрации ЗАТО г. Зеленогорск от 17.07.2023 № 1142-р «Об утверждении состава и Положения о порядке работы комиссии, осуществляющей проверку условий жизни детей-сирот и детей, оставшихся без попечения родителей, лиц из числа детей-сирот и детей, оставшихся без попечения родителей, лиц, которые относились к категории детей-сирот и детей, оставшихся без попечения родителей, лиц из числа детей-сирот и детей, оставшихся без попечения родителей, и достигли возраста 23 лет, являющихся нанимателями жилых помещений по договорам найма специализированных жилых помещений» Постановление Администрации ЗАТО г. Зеленогорск от 30.12.2025 № 300-п О внесении изменений в Примерное положение об оплате труда работников муниципальных бюджетных и казенных учреждений, находящихся в ведении МКУ «КФиС», утвержденное постановлением Администрации ЗАТО г. Зеленогорск от 13.06.2023 № 111-п Постановление Администрации ЗАТО г. Зеленогорск от 30.12.2025 № 291-п О внесении изменений в Примерное положение об оплате труда работников муниципальных казенных учреждений по сопровождению деятельности органов местного самоуправления, находящихся в ведении Администрации ЗАТО г. Зеленогорск, утвержденное постановлением Администрации ЗАТО г. Зеленогорск от 12.01.2024 № 3-п Постановление Администрации ЗАТО г. Зеленогорск от 30.12.2025 № 299-п О внесении изменений в постановление Администрации ЗАТО г. Зеленогорск от 18.12.2024 № 277-п «Об утверждении перечней главных администраторов доходов местного бюджета и главных администраторов источников финансирования дефицита местного бюджета города Зеленогорска» Постановление Администрации ЗАТО г. Зеленогорск от 30.12.2025 № 298-п О внесении изменений в постановление Администрации ЗАТО г. Зеленогорск от 23.06.2023 № 119-п «Об организации оказания муниципальных услуг в социальной сфере при формировании муниципального социального заказа на оказание муниципальных услуг в социальной сфере на территории города Зеленогорска» Постановление Администрации ЗАТО г. Зеленогорск от 30.12.2025 № 297-п О внесении изменений в Примерное положение об оплате труда работников муниципальных бюджетных учреждений города Зеленогорска, осуществляющих деятельность в сфере молодежной политики, находящихся в ведении Муниципального казенного учреждения «Комитет по делам культуры и молодежной политики города Зеленогорска», утвержденное постановлением Администрации ЗАТО г. Зеленогорска от 21.12.2016 № 358-п Постановление Администрации ЗАТО г. Зеленогорск от 30.12.2025 № 296-п О внесении изменений в Примерное положение об оплате труда работников муниципальных бюджетных учреждений дополнительного образования города Зеленогорска, находящихся в ведении Муниципального казенного учреждения «Комитет по делам культуры и молодежной политики города Зеленогорска», утвержденное постановлением Администрации ЗАТО г. Зеленогорска от 23.03.2018 № 44-п Постановление Администрации ЗАТО г. Зеленогорск от 30.12.2025 № 295-п О внесении изменений в Примерное положение об оплате труда работников муниципальных учреждений города Зеленогорска, находящихся в ведении Муниципального казенного учреждения «Комитет по делам культуры и молодежной политики города Зеленогорска», утвержденное постановлением Администрации ЗАТО г. Зеленогорск от 01.03.2023 № 40-п Постановление Администрации ЗАТО г. Зеленогорск от 30.12.2025 № 294-п О внесении изменений в Примерное положение об оплате труда работников муниципальных казенных учреждений по сопровождению деятельности органов местного самоуправления, находящихся в ведении Комитета по управлению имуществом Администрации ЗАТО г. Зеленогорск, утвержденное постановлением Администрации ЗАТО г. Зеленогорск от 12.01.2024 № 6-п Постановление Администрации ЗАТО г. Зеленогорск от 30.12.2025 № 293-п О внесении изменений в Примерное положение об оплате труда работников муниципальных казенных учреждений по сопровождению деятельности органов местного самоуправления, наделенных полномочиями главных распорядителей средств местного бюджета, утвержденное постановлением Администрации ЗАТО г. Зеленогорск от 12.01.2024 № 5-п Постановление Администрации ЗАТО г. Зеленогорск от 30.12.2025 № 292-п О внесении изменений в Примерное положение об оплате труда работников муниципальных казенных учреждений по сопровождению деятельности органов местного самоуправления, находящихся в ведении Отдела городского хозяйства Администрации ЗАТО г. Зеленогорск, утвержденное постановлением Администрации ЗАТО г. Зеленогорск от 12.01.2024 № 4-п Постановление Администрации ЗАТО г. Зеленогорск от 30.12.2025 № 290-п Об утверждении Проекта организации дорожного движения на автомобильных дорогах общего пользования местного значения ЗАТО г. Зеленогорск Постановление Администрации ЗАТО г. Зеленогорск от 25.12.2025 № 289-п О внесении изменений в Положение о системе оплаты труда работников муниципальных учреждений города Зеленогорска, утвержденное постановлением Администрации ЗАТО г. Зеленогорска от 12.04.2021 № 46-п Постановление Администрации ЗАТО г. Зеленогорск от 25.12.2025 № 288-п О внесении изменений в Примерное положение об оплате труда работников муниципальных бюджетных и казенных учреждений города Зеленогорска, находящихся в ведении Управления образования Администрации ЗАТО г. Зеленогорск, утвержденное постановлением Администрации ЗАТО г. Зеленогорск от 30.06.2025 № 146-п Постановление Администрации ЗАТО г. Зеленогорск от 22.12.2025 № 287-п О средстве массовой информации, определенном в качестве официального периодического издания, осуществляющего публикацию муниципальных правовых актов Постановление Администрации ЗАТО г. Зеленогорск от 22.12.2025 № 286-п Об утверждении Порядка постановки на учет детей, нуждающихся в предоставлении мест в муниципальных образовательных учреждениях города Зеленогорска, реализующих образовательную программу дошкольного образования Постановление Администрации ЗАТО г. Зеленогорск от 22.12.2025 № 285-п О внесении изменений в постановление Администрации ЗАТО г. Зеленогорск от 07.12.2023 № 237-п «Об утверждении реестра мест (площадок) накопления твердых коммунальных отходов, расположенных на территории города Зеленогорска» Постановление Администрации ЗАТО г. Зеленогорск от 22.12.2025 № 284-п О внесении изменений в постановление Администрации ЗАТО г. Зеленогорска от 14.10.2021 № 124-п «Об утверждении Порядка и Нормативов расходования средств местного бюджета города Зеленогорска на финансовое обеспечение официальных физкультурных и спортивных мероприятий, физкультурных и спортивных мероприятий по реализации комплекса ГТО» Постановление Администрации ЗАТО г. Зеленогорск от 22.12.2025 № 283-п О внесении изменений в муниципальную программу «Гражданское общество – закрытое административно-территориальное образование Зеленогорск», утвержденную постановлением Администрации ЗАТО г. Зеленогорска от 06.12.2021 № 186-п Постановление Администрации ЗАТО г. Зеленогорск от 19.12.2025 № 282-п Об утверждении перечней главных администраторов доходов местного бюджета и главных администраторов источников финансирования дефицита местного бюджета города Зеленогорска Распоряжение Администрации ЗАТО г. Зеленогорск от 17.12.2025 № 1736-р О признании утратившими силу распоряжений Администрации ЗАТО г. Зеленогорск от 19.02.2025 № 293-р, № 296-р, № 297-р Постановление Администрации ЗАТО г. Зеленогорск от 18.12.2025 № 281-п О внесении изменений в постановление Администрации ЗАТО г. Зеленогорска от 09.12.2021 № 190-п «Об утверждении муниципальной программы «Развитие физической культуры и спорта в городе Зеленогорске» Распоряжение Администрации ЗАТО г. Зеленогорск от 12.12.2025 № 1718-р О внесении изменений в распоряжение Администрации ЗАТО г. Зеленогорск от 19.09.2025 № 1338-р «Об утверждении примерной формы договора безвозмездного пользования муниципальным имуществом» Распоряжение Администрации ЗАТО г. Зеленогорск от 12.12.2025 № 1715-р Об утверждении состава и Порядка работы аукционной (конкурсной) комиссии по приватизации муниципального имущества Постановление Администрации ЗАТО г. Зеленогорск от 12.12.2025 № 280-п О внесении изменений в постановление Администрации ЗАТО г. Зеленогорска от 01.02.2011 № 37-п «Об утверждении Порядка разработки и утверждения административных регламентов предоставления муниципальных услуг» Постановление Администрации ЗАТО г. Зеленогорск от 12.12.2025 № 279-п О внесении изменений в постановление Администрации ЗАТО г. Зеленогорска от 30.03.2022 № 59-п «Об утверждении краткосрочного плана реализации региональной программы капитального ремонта общего имущества в многоквартирных домах, расположенных на территории города Зеленогорска, на 2023 - 2025 годы» Постановление Администрации ЗАТО г. Зеленогорск от 12.12.2025 № 278-п О внесении изменений в постановление Администрации ЗАТО г. Зеленогорска от 13.12.2021 № 195-п «Об утверждении муниципальной программы «Развитие образования в городе Зеленогорске» Постановление Администрации ЗАТО г. Зеленогорск от 12.12.2025 № 277-п О признании утратившим силу постановления администрации г. Зеленогорска от 05.06.2003 № 996-п Постановление Администрации ЗАТО г. Зеленогорск от 12.12.2025 № 276-п О внесении изменений в постановление Администрации ЗАТО г. Зеленогорск от 22.01.2024 № 13-п «Об утверждении муниципальной программы «Обеспечение жильем молодых семей в городе Зеленогорске» Постановление Администрации ЗАТО г. Зеленогорск от 12.12.2025 № 275-п О внесении изменений в постановление Администрации ЗАТО г. Зеленогорска от 13.12.2021 № 193-п «Об утверждении муниципальной программы «Охрана окружающей среды и защита городских лесов на территории города Зеленогорска» Постановление Администрации ЗАТО г. Зеленогорск от 10.12.2025 № 274-п О внесении изменений в постановление Администрации ЗАТО г. Зеленогорск от 21.07.2025 № 158-п «Об утверждении Порядка рассмотрения и направления ответов на обращения и сообщения граждан Российской Федерации, иностранных граждан, лиц без гражданства, объединений граждан, в том числе юридических лиц, поступающие в форме электронных документов с использованием федеральной государственной информационной системы «Единый портал государственных и муниципальных услуг (функций)» Постановление Администрации ЗАТО г. Зеленогорск от 09.12.2025 № 273-п О внесении изменений в постановление Администрации ЗАТО г. Зеленогорск от 12.01.2023 № 9-п «О видах обязательных работ, объектах, на которых они отбываются, и местах, в которых отбываются исправительные работы» Постановление Администрации ЗАТО г. Зеленогорск от 09.12.2025 № 272-п Об установлении тарифов на платные физкультурно-оздоровительные услуги, оказываемые МБУ «Спортивный комплекс» Постановление Администрации ЗАТО г. Зеленогорск от 09.12.2025 № 271-п О внесении изменений в постановление Администрации ЗАТО г. Зеленогорска от 23.12.2021 № 209-п «Об утверждении муниципальной программы «Обеспечение безопасности населения города Зеленогорска» Постановление Администрации ЗАТО г. Зеленогорск от 09.12.2025 № 270-п О внесении изменений в постановление Администрации ЗАТО г. Зеленогорска от 23.12.2021 № 208-п «Об утверждении муниципальной программы «Защита населения и территории города Зеленогорска от чрезвычайных ситуаций природного и техногенного характера» Постановление Администрации ЗАТО г. Зеленогорск от 09.12.2025 № 269-п О внесении изменений в постановление Администрации ЗАТО г. Зеленогорска от 06.12.2021 № 186-п «Об утверждении муниципальной программы «Гражданское общество – закрытое административно-территориальное образование Зеленогорск» Постановление Администрации ЗАТО г. Зеленогорск от 09.12.2025 № 268-п О внесении изменений в постановление Администрации ЗАТО г. Зеленогорска от 31.10.2017 № 257-п «Об утверждении муниципальной программы «Формирование современной городской среды в городе Зеленогорске» Постановление Администрации ЗАТО г. Зеленогорск от 09.12.2025 № 267-п О внесении изменений в муниципальную программу «Развитие малого и среднего предпринимательства в городе Зеленогорске», утвержденную постановлением Администрации ЗАТО г. Зеленогорска от 13.12.2021 № 194-п Постановление Администрации ЗАТО г. Зеленогорск от 08.12.2025 № 266-п О внесении изменений в постановление Администрации ЗАТО г. Зеленогорска от 20.12.2021 № 201-п «Об утверждении муниципальной программы «Муниципальное имущество и земельные ресурсы города Зеленогорска» Постановление Администрации ЗАТО г. Зеленогорск от 08.12.2025 № 265-п О внесении изменений в постановление Администрации ЗАТО г. Зеленогорск от 31.03.2025 № 83-п «Об утверждении Порядка предоставления субсидий в целях финансового обеспечения затрат, возникающих в связи с применением предельного индекса при оказании коммунальных услуг на реализацию отдельных мер по обеспечению ограничения платы граждан за коммунальные услуги» Постановление Администрации ЗАТО г. Зеленогорск от 08.12.2025 № 264-п О внесении изменений в постановление Администрации ЗАТО г. Зеленогорск от 07.12.2023 № 237-п «Об утверждении реестра мест (площадок) накопления твердых коммунальных отходов, расположенных на территории города Зеленогорска» Постановление Администрации ЗАТО г. Зеленогорск от 08.12.2025 № 263-п О внесении изменений в постановление Администрации ЗАТО г. Зеленогорска от 25.11.2021 № 171-п «Об утверждении муниципальной программы «Управление муниципальными финансами города Зеленогорска» Постановление Администрации ЗАТО г. Зеленогорск от 05.12.2025 № 261-п О внесении изменений в муниципальную программу «Развитие малого и среднего предпринимательства в городе Зеленогорске», утвержденную постановлением Администрации ЗАТО г. Зеленогорска от 13.12.2021 № 194-п Постановление Администрации ЗАТО г. Зеленогорск от 05.12.2025 № 262-п Об определении средней рыночной стоимости одного квадратного метра общей площади жилого помещения на территории города Зеленогорска на I квартал 2026 года Постановление Администрации ЗАТО г. Зеленогорск от 05.12.2025 № 260-п О внесении изменений в постановление Администрации ЗАТО г. Зеленогорска от 21.12.2021 № 206-п «Об утверждении муниципальной программы «Развитие культуры города Зеленогорска» Постановление Администрации ЗАТО г. Зеленогорск от 05.12.2025 № 256-п О внесении изменений в постановление Администрации ЗАТО г. Зеленогорска от 27.12.2021 № 211-п «Об утверждении муниципальной программы «Развитие молодежной политики города Зеленогорска» Постановление Администрации ЗАТО г. Зеленогорск от 05.12.2025 № 259-п О внесении изменений в постановление Администрации ЗАТО г. Зеленогорска от 20.12.2021 № 205-п «Об утверждении муниципальной программы «Реформирование и модернизация жилищно-коммунального хозяйства и повышение энергетической эффективности в городе Зеленогорске» Постановление Администрации ЗАТО г. Зеленогорск от 05.12.2025 № 258-п О внесении изменений в постановление Администрации ЗАТО г. Зеленогорска от 20.12.2021 № 202-п «Об утверждении муниципальной программы «Развитие транспортной системы в городе Зеленогорске» Постановление Администрации ЗАТО г. Зеленогорск от 05.12.2025 № 257-п О внесении изменений в постановление Администрации ЗАТО г. Зеленогорска от 13.12.2021 № 197-п «Об утверждении муниципальной программы «Капитальное строительство и капитальный ремонт в городе Зеленогорске» Постановление Администрации ЗАТО г. Зеленогорск от 03.12.2025 № 255-п О признании утратившим силу постановления Администрации ЗАТО г. Зеленогорск от 22.05.2023 № 92-п «Об утверждении Примерного положения об оплате труда работников муниципальных бюджетных учреждений города Зеленогорска, находящихся в ведении Отдела городского хозяйства Администрации ЗАТО г. Зеленогорск» Постановление Администрации ЗАТО г. Зеленогорск от 28.11.2025 № 254-п О внесении изменений в Порядок обеспечения горячим питанием отдельных категорий учащихся муниципальных общеобразовательных организаций города Зеленогорска, утвержденный постановлением Администрации ЗАТО г. Зеленогорск от 10.11.2025 № 241-п Постановление Администрации ЗАТО г. Зеленогорск от 28.11.2025 № 253-п О внесении изменений в Порядок организации работы, связанной с реализацией Указа Губернатора Красноярского края от 25.10.2022 № 317-уг «О социально-экономических мерах поддержки лиц, принимающих (принимавших) участие в специальной военной операции, и (или) лиц, выполняющих (выполнявших) задачи по отражению вооруженного вторжения на территорию Российской Федерации, и членов их семей» в части освобождения от платы, взимаемой за присмотр и уход за детьми, осваивающими образовательные программы дошкольного образования в муниципальных образовательных организациях г. Зеленогорска, утвержденный постановлением Администрации ЗАТО г. Зеленогорск от 07.12.2022 № 179-п Постановление Администрации ЗАТО г. Зеленогорск от 26.11.2025 № 252-п О внесении изменений в постановление Администрации ЗАТО г. Зеленогорск от 21.03.2023 № 54-п «Об утверждении Положения и персонального состава комиссии по делам несовершеннолетних и защите их прав города Зеленогорска» Постановление Администрации ЗАТО г. Зеленогорск от 26.11.2025 № 250-п Об установлении тарифа на услуги по вывозу жидких бытовых отходов, оказываемые Муниципальным унитарным предприятием тепловых сетей г. Зеленогорска Постановление Администрации ЗАТО г. Зеленогорск от 25.11.2025 № 249-п О внесении изменений в постановление Администрации ЗАТО г. Зеленогорск от 07.12.2023 № 237-п «Об утверждении реестра мест (площадок) накопления твердых коммунальных отходов, расположенных на территории города Зеленогорска» Распоряжение Администрации ЗАТО г. Зеленогорск от 25.11.2025 № 1630-р О внесении изменений в распоряжение Администрации ЗАТО г. Зеленогорск от 17.12.2024 № 2062-р «Об утверждении Перечня муниципального имущества, свободного от прав третьих лиц (за исключением имущественных прав субъектов малого и среднего предпринимательства) и предназначенного для предоставления субъектам малого и среднего предпринимательства» Распоряжение Администрации ЗАТО г. Зеленогорск от 21.11.2025 № 1612-р О внесении изменений в распоряжение Администрации ЗАТО г. Зеленогорска от 12.08.2019 № 1769-р «Об утверждении положения и состава комиссии по предупреждению и ликвидации чрезвычайных ситуаций и обеспечению пожарной безопасности города» Постановление Администрации ЗАТО г. Зеленогорск от 20.11.2025 № 248-п О внесении изменения в постановление Администрации ЗАТО г. Зеленогорска от 24.05.2022 № 99-п «Об авансовых платежах при заключении получателями средств местного бюджета, а также муниципальными автономными и бюджетными учреждениями договоров (муниципальных контрактов)» Постановление Администрации ЗАТО г. Зеленогорск от 19.11.2025 № 247-п О внесении изменений в Примерное положение об оплате труда работников муниципальных бюджетных и казенных учреждений, находящихся в ведении МКУ «КФиС», утвержденное постановлением Администрации ЗАТО г. Зеленогорск от 13.06.2023 № 111-п Постановление Администрации ЗАТО г. Зеленогорск от 18.11.2025 № 245-п О внесении изменений в Примерное положение об оплате труда работников муниципальных учреждений города Зеленогорска, находящихся в ведении Муниципального казенного учреждения «Комитет по делам культуры и молодежной политики города Зеленогорска», утвержденное постановлением Администрации ЗАТО г. Зеленогорск от 01.03.2023 № 40-п Постановление Администрации ЗАТО г. Зеленогорск от 18.11.2025 № 244-п О внесении изменений в Примерное положение об оплате труда работников муниципальных бюджетных учреждений дополнительного образования города Зеленогорска, находящихся в ведении Муниципального казенного учреждения «Комитет по делам культуры и молодежной политики города Зеленогорска», утвержденное постановлением Администрации ЗАТО г. Зеленогорска от 23.03.2018 № 44-п Постановление Администрации ЗАТО г. Зеленогорск от 18.11.2025 № 243-п О внесении изменений в Примерное положение об оплате труда работников муниципальных бюджетных учреждений города Зеленогорска, осуществляющих деятельность в сфере молодежной политики, находящихся в ведении Муниципального казенного учреждения «Комитет по делам культуры и молодежной политики города Зеленогорска», утвержденное постановлением Администрации ЗАТО г. Зеленогорска от 21.12.2016 № 358-п Постановление Администрации ЗАТО г. Зеленогорск от 19.11.2025 № 246-п Об установлении тарифов на платные физкультурно-оздоровительные услуги, оказываемые МБУ ДО СШ «Юность» Распоряжение Администрации ЗАТО г. Зеленогорск от 12.11.2025 № 1587-р Об отнесении деятельности муниципальных учреждений и унитарных предприятий города Зеленогорска, подведомственных Администрации ЗАТО г. Зеленогорск, к определенной категории риска Распоряжение Администрации ЗАТО г. Зеленогорск от 11.11.2025 № 1585-р Об утверждении состава и Порядка работы комиссии по приватизации муниципального имущества Постановление Администрации ЗАТО г. Зеленогорск от 11.11.2025 № 242-п О внесении изменений в Примерное положение об оплате труда работников муниципальных бюджетных и казенных учреждений города Зеленогорска, находящихся в ведении Управления образования Администрации ЗАТО г. Зеленогорск, утвержденное постановлением Администрации ЗАТО г. Зеленогорск от 30.06.2025 № 146-п Постановление Администрации ЗАТО г. Зеленогорск от 10.11.2025 № 241-п Об утверждении Порядка обеспечения горячим питанием отдельных категорий учащихся муниципальных общеобразовательных организаций города Зеленогорска Распоряжение Администрации ЗАТО г. Зеленогорск от 10.11.2025 № 1567-р О подготовке проекта о внесении изменений в Правила землепользования и застройки г. Зеленогорска Распоряжение Администрации ЗАТО г. Зеленогорск от 10.11.2025 № 1568-р О предоставлении Бессонову И.А. разрешения на условно разрешенный вид использования земельного участка с кадастровым номером: 24:59:0304001:31 Постановление Администрации ЗАТО г. Зеленогорск от 10.11.2025 № 240-п О реорганизации МКУ «КООС» и МКУ «Горлесхоз» Постановление Администрации ЗАТО г. Зеленогорск от 07.11.2025 № 239-п О создании комиссии по проведению инвентаризации улично-дорожной сети опорного населенного пункта и оценки ее технического состояния на территории города Зеленогорска Постановление Администрации ЗАТО г. Зеленогорск от 05.11.2025 № 238-п Об утверждении Сводного плана организации ярмарок на 2026 год Постановление Администрации ЗАТО г. Зеленогорск от 05.11.2025 № 237-п Об установлении размера платы за пользование жилым помещением (платы за наем) государственного или муниципального жилищного фонда Постановление Администрации ЗАТО г. Зеленогорск от 05.11.2025 № 236-п О внесении изменений в постановление Администрации ЗАТО г. Зеленогорска от 19.12.2018 № 237-п «Об утверждении Положения о расчете размера платы за пользование жилым помещением (платы за наем) для нанимателей жилых помещений по договорам социального найма и договорам найма жилых помещений государственного или муниципального жилищного фонда в городе Зеленогорске» Постановление Администрации ЗАТО г. Зеленогорск от 31.10.2025 № 235-п О внесении изменений в постановление Администрации ЗАТО г. Зеленогорск от 10.12.2024 № 265-п «Об утверждении Порядка предоставления субсидий социально ориентированным некоммерческим организациям на реализацию социальных проектов» Постановление Администрации ЗАТО г. Зеленогорск от 30.10.2025 № 234-п Об условиях приватизации муниципального имущества Постановление Администрации ЗАТО г. Зеленогорск от 22.10.2025 № 229-п О признании утратившим силу постановления Администрации ЗАТО г. Зеленогорск от 28.07.2025 № 164-п Постановление Администрации ЗАТО г. Зеленогорск от 27.10.2025 № 232-п О внесении изменений в постановление Администрации ЗАТО г. Зеленогорск от 12.01.2023 № 9-п «О видах обязательных работ, объектах, на которых они отбываются, и местах, в которых отбываются исправительные работы» Постановление Администрации ЗАТО г. Зеленогорск от 27.10.2025 № 231-п О внесении изменений в муниципальную программу «Капитальное строительство и капитальный ремонт в городе Зеленогорске», утвержденную постановлением Администрации ЗАТО г. Зеленогорска от 13.12.2021 № 197-п Постановление Администрации ЗАТО г. Зеленогорск от 27.10.2025 № 230-п Об утверждении отчета об исполнении местного бюджета города Зеленогорска за девять месяцев 2025 года Распоряжение Администрации ЗАТО г. Зеленогорск от 21.10.2025 № 1478-р О внесении изменений в распоряжение Администрации ЗАТО г. Зеленогорск от 07.08.2023 № 1271-р «Об утверждении Перечня муниципального имущества, свободного от прав третьих лиц (за исключением имущественных прав некоммерческих организаций) и предназначенного для предоставления социально ориентированным некоммерческим организациям» Распоряжение Администрации ЗАТО г. Зеленогорск от 21.10.2025 № 1477-р О внесении изменений в распоряжение Администрации ЗАТО г. Зеленогорска от 13.10.2020 № 1691-р «Об утверждении состава и Положения о городской жилищной комиссии» Постановление Администрации ЗАТО г. Зеленогорск от 21.10.2025 № 228-п О внесении изменений в постановление Администрации ЗАТО г. Зеленогорск от 28.05.2025 № 126-п «О создании комиссий по проведению оценки обеспечения готовности к отопительному периоду 2025-2026 годов и определении сроков составления актов оценки обеспечения готовности к отопительному периоду 2025 – 2026 годов Распоряжение Администрации ЗАТО г. Зеленогорск от 20.10.2025 № 1468-р О муниципальной сети образовательных учреждений города Зеленогорска на 2025-2026 учебный год Постановление Администрации ЗАТО г. Зеленогорск от 17.10.2025 № 226-п О внесении изменений в постановление Администрации ЗАТО г. Зеленогорск от 07.12.2023 № 237-п «Об утверждении реестра мест (площадок) накопления твердых коммунальных отходов, расположенных на территории города Зеленогорска» Постановление Администрации ЗАТО г. Зеленогорск от 13.10.2025 № 225-п Об утверждении состава и Порядка деятельности комиссии по подготовке проекта правил землепользования и застройки г. Зеленогорска Постановление Администрации ЗАТО г. Зеленогорск от 13.10.2025 № 224-п Об определении средней рыночной стоимости одного квадратного метра общей площади жилого помещения на территории города Зеленогорска на IV квартал 2025 года Распоряжение Администрации ЗАТО г. Зеленогорск от 06.10.2025 № 1408-р О подготовке граждан, подлежащих призыву на военную службу, по военно - учетным специальностям в 2024 - 2025 учебном году и задачах на 2025 – 2026 учебный год Распоряжение Администрации ЗАТО г. Зеленогорск от 06.10.2025 № 1406-р О внесении изменений в распоряжение Администрации ЗАТО г. Зеленогорск от 17.12.2024 № 2062-р «Об утверждении Перечня муниципального имущества, свободного от прав третьих лиц (за исключением имущественных прав субъектов малого и среднего предпринимательства) и предназначенного для предоставления субъектам малого и среднего предпринимательства» Распоряжение Администрации ЗАТО г. Зеленогорск от 06.10.2025 № 1403-р О признании утратившими силу распоряжений Администрации ЗАТО г. Зеленогорск Распоряжение Администрации ЗАТО г. Зеленогорск от 25.09.2025 № 1353-р О внесении изменений в распоряжение Администрации ЗАТО г. Зеленогорска от 30.12.2021 № 2139-р «Об утверждении состава и Порядка работы комиссии по обеспечению безопасности дорожного движения» Постановление Администрации ЗАТО г. Зеленогорск от 23.09.2025 № 220-п Об утверждении Порядка предоставления субсидии Товариществу собственников жилья «КРЕПОСТЬ» на финансовое обеспечение затрат по проведению неотложных аварийно-восстановительных работ по ремонту кровель и фасадов многоквартирных домов, поврежденных в результате опасных метеорологических явлений (очень сильный ветер) и неблагоприятных метеорологических явлений (сильный ветер), произошедших 5 апреля 2025 года на территории города Зеленогорска Красноярского края Постановление Администрации ЗАТО г. Зеленогорск от 23.09.2025 № 219-п Об утверждении Порядка предоставления субсидии управляющей компании ООО «ТРИО» на финансовое обеспечение затрат по проведению неотложных аварийно-восстановительных работ по ремонту кровель и фасадов многоквартирных домов, поврежденных в результате опасных метеорологических явлений (очень сильный ветер) и неблагоприятных метеорологических явлений (сильный ветер), произошедших 5 апреля 2025 года на территории города Зеленогорска Красноярского края Постановление Администрации ЗАТО г. Зеленогорск от 23.09.2025 № 218-п Об утверждении Порядка предоставления субсидии Товариществу собственников недвижимости «Молодежный» на финансовое обеспечение затрат по проведению неотложных аварийно-восстановительных работ по ремонту кровель и фасадов многоквартирных домов, поврежденных в результате опасных метеорологических явлений (очень сильный ветер) и неблагоприятных метеорологических явлений (сильный ветер), произошедших 5 апреля 2025 года на территории города Зеленогорска Красноярского края Постановление Администрации ЗАТО г. Зеленогорск от 23.09.2025 № 217-п Об утверждении Порядка предоставления субсидии Товариществу собственников недвижимости «Бастион» на финансовое обеспечение затрат по проведению неотложных аварийно-восстановительных работ по ремонту кровель и фасадов многоквартирных домов, поврежденных в результате опасных метеорологических явлений (очень сильный ветер) и неблагоприятных метеорологических явлений (сильный ветер), произошедших 5 апреля 2025 года на территории города Зеленогорска Красноярского края Постановление Администрации ЗАТО г. Зеленогорск от 23.09.2025 № 216-п Об утверждении Порядка предоставления субсидии управляющей компании ООО УК «ФЛАГМАН» на финансовое обеспечение затрат по проведению неотложных аварийно-восстановительных работ по ремонту кровель и фасадов многоквартирных домов, поврежденных в результате опасных метеорологических явлений (очень сильный ветер) и неблагоприятных метеорологических явлений (сильный ветер), произошедших 5 апреля 2025 года на территории города Зеленогорска Красноярского края Постановление Администрации ЗАТО г. Зеленогорск от 23.09.2025 № 215-п Об утверждении Порядка предоставления субсидии управляющей компании ООО УК «Сириус Зеленогорск» на финансовое обеспечение затрат по проведению неотложных аварийно-восстановительных работ по ремонту кровель и фасадов многоквартирных домов, поврежденных в результате опасных метеорологических явлений (очень сильный ветер) и неблагоприятных метеорологических явлений (сильный ветер), произошедших 5 апреля 2025 года на территории города Зеленогорска Красноярского края Постановление Администрации ЗАТО г. Зеленогорск от 23.09.2025 № 214-п Об утверждении Порядка предоставления субсидии управляющей компании ООО УК «Новый подход» на финансовое обеспечение затрат по проведению неотложных аварийно-восстановительных работ по ремонту кровель и фасадов многоквартирных домов, поврежденных в результате опасных метеорологических явлений (очень сильный ветер) и неблагоприятных метеорологических явлений (сильный ветер), произошедших 5 апреля 2025 года на территории города Зеленогорска Красноярского края Распоряжение Администрации ЗАТО г. Зеленогорск от 19.09.2025 № 1338-р Об утверждении примерной формы договора безвозмездного пользования муниципальным имуществом Постановление Администрации ЗАТО г. Зеленогорск от 18.09.2025 № 213-п О временном прекращении движения транспортных средств на участке автомобильной дороги общего пользования местного значения города Зеленогорска Постановление Администрации ЗАТО г. Зеленогорск от 17.09.2025 № 211-п О временном прекращении движения транспортных средств на участке автомобильной дороги общего пользования местного значения города Зеленогорска Постановление Администрации ЗАТО г. Зеленогорск от 12.09.2025 № 210-п О внесении изменений в постановление Администрации ЗАТО г. Зеленогорск от 23.06.2023 № 119-п «Об организации оказания муниципальных услуг в социальной сфере при формировании муниципального социального заказа на оказание муниципальных услуг в социальной сфере на территории города Зеленогорска» Постановление Администрации ЗАТО г. Зеленогорск от 12.09.2025 № 209-п О внесении изменений в Порядок (план) действий по ликвидации последствий аварийных ситуаций при теплоснабжении в муниципальном образовании город Зеленогорск Красноярского края (в том числе с применением электронного моделирования аварийных ситуаций), утвержденный постановлением Администрации ЗАТО г. Зеленогорск от 31.03.2025 № 84-п Постановление Администрации ЗАТО г. Зеленогорск от 11.09.2025 № 208-п Об утверждении Порядка разработки схемы размещения нестационарных торговых объектов на территории города Зеленогорска и внесения в нее изменений Постановление Администрации ЗАТО г. Зеленогорск от 11.09.2025 № 207-п О внесении изменений в постановление Администрации ЗАТО г. Зеленогорск от 18.11.2024 № 236-п «О резервах материальных ресурсов для ликвидации чрезвычайных ситуаций муниципального характера на территории ЗАТО город Зеленогорск» Постановление Администрации ЗАТО г. Зеленогорск от 10.09.2025 № 206-п О начале отопительного периода 2025-2026 годов Постановление Администрации ЗАТО г. Зеленогорск от 03.09.2025 № 202-п О внесении изменений в постановление Администрации ЗАТО г. Зеленогорск от 12.08.2025 № 187-п «Об определении части территории, на которой может реализовываться инициативный проект «Аллея ветеранам боевых действий» Постановление Администрации ЗАТО г. Зеленогорск от 04.09.2025 № 204-п Об утверждении Регламента сопровождения инвестиционных проектов на территории города Зеленогорска Красноярского края Постановление Администрации ЗАТО г. Зеленогорск от 03.09.2025 № 203-п О внесении изменений в постановление Администрации ЗАТО г. Зеленогорск от 12.01.2023 № 9-п «О видах обязательных работ, объектах, на которых они отбываются, и местах, в которых отбываются исправительные работы» Постановление Администрации ЗАТО г. Зеленогорск от 02.09.2025 № 201-п Об утверждении Порядка уведомления представителя нанимателя (работодателя) муниципальными служащими, руководителями муниципальных учреждений и предприятий о возникновении личной заинтересованности при исполнении должностных обязанностей, которая приводит или может привести к конфликту интересов Постановление Администрации ЗАТО г. Зеленогорск от 02.09.2025 № 200-п О внесении изменений в Положение о комиссии по соблюдению требований к служебному поведению муниципальных служащих и урегулированию конфликтов интересов муниципальных служащих, руководителей муниципальных учреждений и предприятий, утвержденное постановлением Администрации ЗАТО г. Зеленогорска от 15.05.2024 № 113-п Постановление Администрации ЗАТО г. Зеленогорск от 02.09.2025 № 199-п О внесении изменений в Примерное положение об оплате труда работников муниципальных бюджетных учреждений города Зеленогорска, осуществляющих деятельность в сфере молодежной политики, находящихся в ведении Муниципального казенного учреждения «Комитет по делам культуры и молодежной политики города Зеленогорска», утвержденное постановлением Администрации ЗАТО г. Зеленогорска от 21.12.2016 № 358-п Постановление Администрации ЗАТО г. Зеленогорск от 29.08.2025 № 198-п О внесении изменений в муниципальную программу «Развитие культуры города Зеленогорска», утвержденную постановлением Администрации ЗАТО г. Зеленогорска от 21.12.2021 № 206-п Постановление Администрации ЗАТО г. Зеленогорск от 29.08.2025 № 197-п О порядке исполнения на территории города Зеленогорска государственных полномочий по обеспечению бесплатным горячим питанием и бесплатным набором продуктов питания отдельных категорий обучающихся в муниципальных общеобразовательных организациях города Зеленогорска Постановление Администрации ЗАТО г. Зеленогорск от 26.08.2025 № 195-п О временном прекращении движения транспортных средств на участке автомобильной дороги общего пользования местного значения города Зеленогорска Постановление Администрации ЗАТО г. Зеленогорск от 25.08.2025 № 194-п О временном прекращении движения транспортных средств на участках автомобильных дорог общего пользования местного значения города Зеленогорска Постановление Администрации ЗАТО г. Зеленогорск от 21.08.2025 № 193-п Об установлении размера платы, взимаемой с родителей (законных представителей) за присмотр и уход за детьми, осваивающими образовательные программы дошкольного образования в муниципальных бюджетных образовательных учреждениях г. Зеленогорска, осуществляющих образовательную деятельность Постановление Администрации ЗАТО г. Зеленогорск от 18.08.2025 № 192-п О внесении изменений в постановление Администрации ЗАТО г. Зеленогорск от 07.12.2023 № 237-п «Об утверждении реестра мест (площадок) накопления твердых коммунальных отходов, расположенных на территории города Зеленогорска» Постановление Администрации ЗАТО г. Зеленогорск от 18.08.2025 № 191-п О внесении изменений в Примерное положение об оплате труда работников муниципальных бюджетных и казенных учреждений города Зеленогорска, находящихся в ведении Управления образования Администрации ЗАТО г. Зеленогорск, утвержденное постановлением Администрации ЗАТО г. Зеленогорск от 30.06.2025 № 146-п Постановление Администрации ЗАТО г. Зеленогорск от 15.08.2025 № 190-п О внесении изменений в Примерное положение об оплате труда работников муниципальных учреждений города Зеленогорска, находящихся в ведении Муниципального казенного учреждения «Комитет по делам культуры и молодежной политики города Зеленогорска», утвержденное постановлением Администрации ЗАТО г. Зеленогорск от 01.03.2023 № 40-п Постановление Администрации ЗАТО г. Зеленогорск от 12.08.2025 № 176-п О внесении изменений в Примерное положение об оплате труда работников муниципальных учреждений города Зеленогорска, находящихся в ведении Муниципального казенного учреждения «Комитет по делам культуры и молодежной политики города Зеленогорска», утвержденное постановлением Администрации ЗАТО г. Зеленогорск от 01.03.2023 № 40-п Постановление Администрации ЗАТО г. Зеленогорск от 12.08.2025 № 175-п О внесении изменений в Примерное положение об оплате труда работников муниципальных бюджетных учреждений дополнительного образования города Зеленогорска, находящихся в ведении Муниципального казенного учреждения «Комитет по делам культуры и молодежной политики города Зеленогорска», утвержденное постановлением Администрации ЗАТО г. Зеленогорска от 23.03.2018 № 44-п Постановление Администрации ЗАТО г. Зеленогорск от 12.08.2025 № 174-п О внесении изменений в Примерное положение об оплате труда работников муниципальных бюджетных учреждений города Зеленогорска, осуществляющих деятельность в сфере молодежной политики, находящихся в ведении Муниципального казенного учреждения «Комитет по делам культуры и молодежной политики города Зеленогорска», утвержденное постановлением Администрации ЗАТО г. Зеленогорска от 21.12.2016 № 358-п Распоряжение Администрации ЗАТО г. Зеленогорск от 13.08.2025 № 1173-р Об утверждении Перечня должностных лиц Администрации ЗАТО г. Зеленогорск, ответственных за качество оказания по переданным государственным полномочиям государственной услуги Распоряжение Администрации ЗАТО г. Зеленогорск от 12.08.2025 № 1169-р О внесении изменения в распоряжение Администрации ЗАТО г. Зеленогорск от 16.06.2022 № 1094-р «Об утверждении состава и Положения о работе комиссии по обследованию и осуществлению контроля за закрепленными жилыми помещениями» Постановление Администрации ЗАТО г. Зеленогорск от 13.08.2025 № 189-п Об условиях приватизации Муниципального унитарного предприятия электрических сетей г.Зеленогорска Постановление Администрации ЗАТО г. Зеленогорск от 13.08.2025 № 188-п О внесении изменений в постановление Администрации ЗАТО г. Зеленогорск от 25.02.2025 № 44-п «О силах и средствах постоянной готовности городского звена территориальной подсистемы единой государственной системы предупреждения и ликвидации чрезвычайных ситуаций ЗАТО город Зеленогорск» Постановление Администрации ЗАТО г. Зеленогорск от 12.08.2025 № 187-п Об определении части территории, на которой может реализовываться инициативный проект «Аллея ветеранам боевых действий» Постановление Администрации ЗАТО г. Зеленогорск от 12.08.2025 № 186-п Об определении части территории, на которой может реализовываться инициативный проект «Уютный двор» Постановление Администрации ЗАТО г. Зеленогорск от 12.08.2025 № 185-п Об определении части территории, на которой может реализовываться инициативный проект «Музыка без границ» Постановление Администрации ЗАТО г. Зеленогорск от 12.08.2025 № 184-п Об определении части территории, на которой может реализовываться инициативный проект «КомфортМасс» Постановление Администрации ЗАТО г. Зеленогорск от 12.08.2025 № 183-п Об определении части территории, на которой может реализовываться инициативный проект «Безопасный двор – 2 этап» Постановление Администрации ЗАТО г. Зеленогорск от 12.08.2025 № 182-п Об определении части территории, на которой может реализовываться инициативный проект «Центр притяжения» Постановление Администрации ЗАТО г. Зеленогорск от 12.08.2025 № 181-п Об определении части территории, на которой может реализовываться инициативный проект «Парковка с комфортом» Постановление Администрации ЗАТО г. Зеленогорск от 12.08.2025 № 180-п Об определении части территории, на которой может реализовываться инициативный проект «Островок детства» Постановление Администрации ЗАТО г. Зеленогорск от 12.08.2025 № 179-п Об определении части территории, на которой может реализовываться инициативный проект «Привет, Детство!» Постановление Администрации ЗАТО г. Зеленогорск от 12.08.2025 № 178-п Об определении части территории, на которой может реализовываться инициативный проект «Безопасный двор» Постановление Администрации ЗАТО г. Зеленогорск от 12.08.2025 № 177-п Об определении части территории, на которой может реализовываться инициативный проект «Добро пожаловать!» Постановление Администрации ЗАТО г. Зеленогорск от 11.08.2025 № 173-п О временном прекращении движения транспортных средств на участках автомобильных дорог общего пользования местного значения города Зеленогорска Постановление Администрации ЗАТО г. Зеленогорск от 08.08.2025 № 172-п Об установлении стоимости гарантированного перечня услуг по погребению, предоставляемых специализированной службой по вопросам похоронного дела Постановление Администрации ЗАТО г. Зеленогорск от 08.08.2025 № 171-п Об установлении стоимости услуг по погребению умерших граждан, не подлежавших обязательному социальному страхованию на случай временной нетрудоспособности и в связи с материнством на день смерти и не являвшихся пенсионерами, а также в случае рождения мертвого ребенка по истечении 154 дней беременности, предоставляемых согласно гарантированному перечню услуг по погребению специализированной службой по вопросам похоронного дела ЗАТО г. Зеленогорск Постановление Администрации ЗАТО г. Зеленогорск от 07.08.2025 № 170-п О внесении изменений в постановление Администрации ЗАТО г. Зеленогорск от 07.10.2024 № 208-п «Об утверждении краткосрочного плана реализации региональной программы капитального ремонта общего имущества в многоквартирных домах, расположенных на территории города Зеленогорска, на 2026 - 2028 годы» Постановление Администрации ЗАТО г. Зеленогорск от 07.08.2025 № 169-п О внесении изменений в постановление Администрации ЗАТО г. Зеленогорска от 30.03.2022 № 59-п «Об утверждении краткосрочного плана реализации региональной программы капитального ремонта общего имущества в многоквартирных домах, расположенных на территории города Зеленогорска, на 2023 - 2025 годы» Постановление Администрации ЗАТО г. Зеленогорск от 07.08.2025 № 168-п Об утверждении Административного регламента предоставления муниципальной услуги «Предварительное согласование предоставления земельных участков для индивидуального жилищного строительства, ведения личного подсобного хозяйства в границах населенного пункта, садоводства для собственных нужд» Постановление Администрации ЗАТО г. Зеленогорск от 04.08.2025 № 167-п Об утверждении Порядка предоставления субсидий субъектам малого и среднего предпринимательства в целях возмещения части затрат в связи с реализацией инвестиционных проектов в приоритетных отраслях Постановление Администрации ЗАТО г. Зеленогорск от 04.08.2025 № 166-п Об утверждении Положения о допуске граждан и юридических лиц к участию в совершении сделок с недвижимым имуществом, находящимся на территории ЗАТО Зеленогорск Постановление Администрации ЗАТО г. Зеленогорск от 28.07.2025 № 165-п О внесении изменений в постановление Администрации ЗАТО г. Зеленогорск от 07.12.2023 № 237-п «Об утверждении реестра мест (площадок) накопления твердых коммунальных отходов, расположенных на территории города Зеленогорска» Постановление Администрации ЗАТО г. Зеленогорск от 28.07.2025 № 164-п Об установлении режима работы муниципальных организаций, осуществляющих деятельность в сферах торгового, бытового и иных видов обслуживания потребителей города Зеленогорска Постановление Администрации ЗАТО г. Зеленогорск от 28.07.2025 № 163-п О внесении изменений в постановление Администрации ЗАТО г. Зеленогорска от 06.11.2015 № 275-п «Об утверждении Порядка формирования и реализации муниципальных программ» Постановление Администрации ЗАТО г. Зеленогорск от 25.07.2025 № 162-п Об утверждении отчета об исполнении местного бюджета города Зеленогорска за первое полугодие 2025 года Постановление Администрации ЗАТО г. Зеленогорск от 22.07.2025 № 161-п Об утверждении Порядка предоставления грантов в форме субсидий субъектам малого и среднего предпринимательства в целях финансового обеспечения части затрат на начало ведения предпринимательской деятельности Постановление Администрации ЗАТО г. Зеленогорск от 21.07.2025 № 160-п О разрешении использования в 2025 году в целях купания и отдыха людей озера «Ближнее» Постановление Администрации ЗАТО г. Зеленогорск от 21.07.2025 № 159-п Об утверждении Инструкции о пропускном режиме в контролируемой зоне категории «А» ЗАТО город Зеленогорск Постановление Администрации ЗАТО г. Зеленогорск от 21.07.2025 № 158-п Об утверждении Порядка рассмотрения и направления ответов на обращения и сообщения граждан Российской Федерации, иностранных граждан, лиц без гражданства, объединений граждан, в том числе юридических лиц, поступающие в форме электронных документов с использованием федеральной государственной информационной системы «Единый портал государственных и муниципальных услуг (функций)» Постановление Администрации ЗАТО г. Зеленогорск от 21.07.2025 № 157-п Об утверждении Положения о порядке составления проекта местного бюджета города Зеленогорска на очередной финансовый год и плановый период Постановление Администрации ЗАТО г. Зеленогорск от 21.07.2025 № 156-п О внесении изменений в муниципальную программу «Формирование современной городской среды в городе Зеленогорске», утвержденную постановлением Администрации ЗАТО г. Зеленогорска от 31.10.2017 № 257-п Постановление Администрации ЗАТО г. Зеленогорск от 17.07.2025 № 155-п О внесении изменений в постановление Администрации ЗАТО г. Зеленогорска от 22.11.2017 № 280-п «Об утверждении Положения о предоставлении во владение и (или) пользование муниципального имущества социально ориентированным некоммерческим организациям» Постановление Администрации ЗАТО г. Зеленогорск от 15.07.2025 № 154-п Об определении средней рыночной стоимости одного квадратного метра общей площади жилого помещения на территории города Зеленогорска на III квартал 2025 года Постановление Администрации ЗАТО г. Зеленогорск от 11.07.2025 № 153-п О внесении изменений в постановление Администрации ЗАТО г. Зеленогорск от 28.06.2024 № 141-п «Об утверждении перечня создаваемых Администрацией ЗАТО г. Зеленогорск нештатных формирований по обеспечению выполнения мероприятий по гражданской обороне на территории ЗАТО город Зеленогорск» Распоряжение Администрации ЗАТО г. Зеленогорск от 11.07.2025г. № 998-р О внесении изменений в распоряжение Администрации ЗАТО г. Зеленогорск от 07.08.2023 № 1271-р «Об утверждении Перечня муниципального имущества, свободного от прав третьих лиц (за исключением имущественных прав некоммерческих организаций) и предназначенного для предоставления социально ориентированным некоммерческим организациям» Постановление Администрации ЗАТО г. Зеленогорск от 11.07.2025 № 152-п О внесении изменений в постановление Администрации ЗАТО г. Зеленогорск от 07.12.2023 № 237-п «Об утверждении реестра мест (площадок) накопления твердых коммунальных отходов, расположенных на территории города Зеленогорска» Постановление Администрации ЗАТО г. Зеленогорск от 08.07.2025 № 151-п О внесении изменений в постановление Администрации ЗАТО г. Зеленогорска от 23.06.2021 № 81-п «Об утверждении Порядка постановки на учет детей, нуждающихся в предоставлении мест в муниципальных образовательных учреждениях г. Зеленогорска, реализующих образовательную программу дошкольного образования» Постановление Администрации ЗАТО г. Зеленогорск от 07.07.2025 № 150-п О временном прекращении движения транспортных средств на участках автомобильных дорог общего пользования местного значения города Зеленогорска Постановление Администрации ЗАТО г. Зеленогорск от 07.07.2025 № 149-п Об утверждении Порядка разработки прогноза социально-экономического развития города Зеленогорска на среднесрочный период Постановление Администрации ЗАТО г. Зеленогорск от 07.07.2025 № 148-п Об установлении мест реализации гражданами отдельных видов продукции и пищевых лесных ресурсов Постановление Администрации ЗАТО г. Зеленогорск от 30.06.2025 № 146-п Об утверждении Примерного положения об оплате труда работников муниципальных бюджетных и казенных учреждений города Зеленогорска, находящихся в ведении Управления образования Администрации ЗАТО г. Зеленогорск Постановление Администрации ЗАТО г. Зеленогорск от 27.06.2025 № 141-п О внесении изменений в Примерное положение об оплате труда работников муниципальных бюджетных учреждений города Зеленогорска, осуществляющих деятельность в сфере молодежной политики, находящихся в ведении Муниципального казенного учреждения «Комитет по делам культуры и молодежной политики города Зеленогорска», утвержденное постановлением Администрации ЗАТО г. Зеленогорска от 21.12.2016 № 358-п Постановление Администрации ЗАТО г. Зеленогорск от 27.06.2025 № 143-п О внесении изменений в Примерное положение об оплате труда работников муниципальных бюджетных учреждений дополнительного образования города Зеленогорска, находящихся в ведении Муниципального казенного учреждения «Комитет по делам культуры и молодежной политики города Зеленогорска», утвержденное постановлением Администрации ЗАТО г. Зеленогорска от 23.03.2018 № 44-п Постановление Администрации ЗАТО г. Зеленогорск от 27.06.2025 № 142-п О внесении изменений в Примерное положение об оплате труда работников муниципальных учреждений города Зеленогорска, находящихся в ведении Муниципального казенного учреждения «Комитет по делам культуры и молодежной политики города Зеленогорска», утвержденное постановлением Администрации ЗАТО г. Зеленогорск от 01.03.2023 № 40-п Постановление Администрации ЗАТО г. Зеленогорск от 27.06.2025 № 144-п О внесении изменений в Примерное положение об оплате труда работников муниципальных бюджетных и казенных учреждений, находящихся в ведении МКУ «КФиС», утвержденное постановлением Администрации ЗАТО г. Зеленогорск от 13.06.2023 № 111-п Постановление Администрации ЗАТО г. Зеленогорск от 27.06.2025 № 145-п О внесении изменений в постановление Администрации ЗАТО г. Зеленогорск от 12.01.2023 № 9-п «О видах обязательных работ, объектах, на которых они отбываются, и местах, в которых отбываются исправительные работы» Постановление Администрации ЗАТО г. Зеленогорск от 27.06.2025 № 140-п О возложении на Финансовое управление Администрации ЗАТО г. Зеленогорск полномочий по осуществлению внутреннего муниципального финансового контроля Распоряжение Администрации ЗАТО г. Зеленогорск от 26.06.2025 № 936-р О внесении изменений в распоряжение Администрации ЗАТО г. Зеленогорск от 29.11.2022 № 2258-р «Об утверждении состава и Положения о порядке работы комиссии по оказанию поддержки субъектам малого и среднего предпринимательства» Постановление Администрации ЗАТО г. Зеленогорск от 27.06.2025 № 139-п О внесении изменений в Примерное положение об оплате труда работников муниципальных казенных учреждений по сопровождению деятельности органов местного самоуправления, находящихся в ведении Комитета по управлению имуществом Администрации ЗАТО г. Зеленогорск, утвержденное постановлением Администрации ЗАТО г. Зеленогорск от 12.01.2024 № 6-п Постановление Администрации ЗАТО г. Зеленогорск от 27.06.2025 № 136-п О внесении изменений в Примерное положение об оплате труда работников муниципальных казенных учреждений по сопровождению деятельности органов местного самоуправления, находящихся в ведении Администрации ЗАТО г. Зеленогорск, утвержденное постановлением Администрации ЗАТО г. Зеленогорск от 12.01.2024 № 3-п Постановление Администрации ЗАТО г. Зеленогорск от 27.06.2025 № 138-п О внесении изменений в Примерное положение об оплате труда работников муниципальных казенных учреждений по сопровождению деятельности органов местного самоуправления, наделенных полномочиями главных распорядителей средств местного бюджета, утвержденное постановлением Администрации ЗАТО г. Зеленогорск от 12.01.2024 № 5-п Постановление Администрации ЗАТО г. Зеленогорск от 27.06.2025 № 137-п О внесении изменений в Примерное положение об оплате труда работников муниципальных казенных учреждений по сопровождению деятельности органов местного самоуправления, находящихся в ведении Отдела городского хозяйства Администрации ЗАТО г. Зеленогорск, утвержденное постановлением Администрации ЗАТО г. Зеленогорск от 12.01.2024 № 4-п Распоряжение Администрации ЗАТО г. Зеленогорск от 18.06.2025 № 894-р О внесении изменений в распоряжение Администрации ЗАТО г. Зеленогорска от 07.10.2019 № 2249-р «О принятии муниципальных правовых актов по вопросам осуществления государственных полномочий по организации и осуществлению деятельности по опеке и попечительству в отношении совершеннолетних граждан, а также в сфере патронажа» Распоряжение Администрации ЗАТО г. Зеленогорск от 16.06.2025 № 885-р Об организации мер по обеспечению безопасности на гидротехнических сооружениях Постановление Администрации ЗАТО г. Зеленогорск от 10.06.2025 № 135-п О внесении изменений в Положение о системе оплаты труда работников муниципальных учреждений города Зеленогорска, утвержденное постановлением Администрации ЗАТО г. Зеленогорска от 12.04.2021 № 46-п Постановление Администрации ЗАТО г. Зеленогорск от 09.06.2025 № 134-п О временном прекращении движения транспортных средств на участках автомобильных дорог общего пользования местного значения города Зеленогорска Постановление Администрации ЗАТО г. Зеленогорск от 05.06.2025 № 133-п Об утверждении Порядка предоставления детям из многодетных семей права на занятия физической культурой и спортом в муниципальных учреждениях, осуществляющих деятельность в области физической культуры и спорта, без взимания платы Распоряжение Администрации ЗАТО г. Зеленогорск от 04.06.2025 № 848-р О проведении капитального ремонта общего имущества в многоквартирных домах, расположенных на территории города Зеленогорска в 2026 - 2028 годах Постановление Администрации ЗАТО г. Зеленогорск от 04.06.2025 № 132-п О внесении изменений в муниципальную программу «Развитие малого и среднего предпринимательства в городе Зеленогорске», утвержденную постановлением Администрации ЗАТО г. Зеленогорска от 13.12.2021 № 194-п Постановление Администрации ЗАТО г. Зеленогорск от 03.06.2025 № 131-п О внесении изменений в муниципальную программу «Обеспечение жильем молодых семей в городе Зеленогорске», утвержденную постановлением Администрации ЗАТО г. Зеленогорск от 22.01.2024 № 13-п Постановление Администрации ЗАТО г. Зеленогорск от 03.06.2025 № 130-п О внесении изменений в постановление Администрации ЗАТО г. Зеленогорск от 07.12.2023 № 237-п «Об утверждении реестра мест (площадок) накопления твердых коммунальных отходов, расположенных на территории города Зеленогорска» Постановление Администрации ЗАТО г. Зеленогорск от 03.06.2025 № 129-п О внесении изменений в постановление Администрации ЗАТО г. Зеленогорска от 09.09.2020 № 115-п «О ритуальных услугах» Постановление Администрации ЗАТО г. Зеленогорск от 02.06.2025 № 128-п О внесении изменений в постановление Администрации ЗАТО г. Зеленогорск от 24.03.2025 № 72-п «О ликвидации Муниципального бюджетного учреждения «Комбинат благоустройства» Распоряжение Администрации ЗАТО г. Зеленогорск от 29.05.2025 № 827-р О внесении изменений в распоряжение Администрации ЗАТО г. Зеленогорск от 17.04.2025 № 616-р «О проведении конкурса на включение граждан в резерв управленческих кадров г. Зеленогорска на замещение целевой должности директора Муниципального унитарного предприятия тепловых сетей г.Зеленогорска» Постановление Администрации ЗАТО г. Зеленогорск от 27.05.2025 № 124-п О внесении изменений в постановление Администрации ЗАТО г. Зеленогорска от 14.10.2021 № 124-п «Об утверждении Порядка и Нормативов расходования средств местного бюджета города Зеленогорска на финансовое обеспечение официальных физкультурных и спортивных мероприятий, физкультурных и спортивных мероприятий по реализации комплекса ГТО» Распоряжение Администрации ЗАТО г. Зеленогорск от 28.05.2025 № 817-р О мероприятиях по организации обустройства мест массового отдыха людей на водных объектах для купания и отдыха в 2025 году Постановление Администрации ЗАТО г. Зеленогорск от 28.05.2025 № 127-п О внесении изменений в постановление Администрации ЗАТО г. Зеленогорск от 09.11.2023 № 214-п «Об утверждении Порядка осуществления бюджетных полномочий главных администраторов доходов местного бюджета города Зеленогорска» Постановление Администрации ЗАТО г. Зеленогорск от 28.05.2025 № 126-п О создании комиссий по проведению оценки обеспечения готовности к отопительному периоду 2025-2026 годов и определении сроков составления актов оценки обеспечения готовности к отопительному периоду 2025 – 2026 годов Постановление Администрации ЗАТО г. Зеленогорск от 27.05.2025 № 125-п О внесении изменений в постановление Администрации ЗАТО г. Зеленогорск от 04.07.2024 № 148-п «Об утверждении Порядка оплаты расходов по незаселенным жилым помещениям муниципального жилищного фонда города Зеленогорска» Постановление Администрации ЗАТО г. Зеленогорск от 26.05.2025 № 123-п О внесении изменений в постановление Администрации ЗАТО г. Зеленогорск от 06.09.2023 № 188-п «Об утверждении Порядка ведения реестра расходных обязательств города Зеленогорска» Постановление Администрации ЗАТО г. Зеленогорск от 22.05.2025 № 121-п О внесении изменений в постановление Администрации ЗАТО г. Зеленогорска от 13.12.2021 № 195-п «Об утверждении муниципальной программы «Развитие образования в городе Зеленогорске» Постановление Администрации ЗАТО г. Зеленогорск от 22.05.2025 № 120-п О внесении изменений в постановление Администрации ЗАТО г. Зеленогорск от 10.12.2024 № 265-п «Об утверждении Порядка предоставления субсидий социально ориентированным некоммерческим организациям на реализацию социальных проектов» Постановление Администрации ЗАТО г. Зеленогорск от 22.05.2025 № 119-п О признании утратившими силу некоторых постановлений Администрации ЗАТО г. Зеленогорска Постановление Администрации ЗАТО г. Зеленогорск от 22.05.2025 № 118-п О внесении изменений в состав Координационного совета в области развития малого и среднего предпринимательства, утвержденный постановлением Администрации ЗАТО г. Зеленогорска от 15.09.2021 № 117-п Постановление Администрации ЗАТО г. Зеленогорск от 21.05.2025 № 117-п Об утверждении Порядка предоставления субсидии на возмещение фактически понесенных затрат, связанных с выполнением работ, направленных на реализацию инициативного проекта в рамках мероприятий по поддержке местных инициатив Постановление Администрации ЗАТО г. Зеленогорск от 22.05.2025 № 122-п О внесении изменений в постановление Администрации ЗАТО г. Зеленогорск от 07.12.2023 № 237-п «Об утверждении реестра мест (площадок) накопления твердых коммунальных отходов, расположенных на территории города Зеленогорска» Постановление Администрации ЗАТО г. Зеленогорск от 19.05.2025 № 115-п О внесении изменений в муниципальную программу «Развитие транспортной системы в городе Зеленогорске», утвержденную постановлением Администрации ЗАТО г. Зеленогорска от 20.12.2021 № 202-п Постановление Администрации ЗАТО г. Зеленогорск от 20.05.2025 № 116-п О внесении изменений в Порядок предоставления дополнительных гарантий муниципальным служащим, утвержденный постановлением Администрации ЗАТО г. Зеленогорск от 05.04.2023 № 62-п Постановление Администрации ЗАТО г. Зеленогорск от 14.05.2025 № 114-п Об утверждении плана подготовки к отопительному периоду 2025-2026 годов муниципального образования город Зеленогорск Постановление Администрации ЗАТО г. Зеленогорск от 13.05.2025 № 113-п О внесении изменений в Проект организации дорожного движения на автомобильных дорогах общего пользования местного значения в г. Зеленогорске Красноярского края, утвержденный постановлением Администрации ЗАТО г. Зеленогорска от 21.08.2018 № 156-п Постановление Администрации ЗАТО г. Зеленогорск от 05.05.2025 № 110-п О внесении изменений в постановление Администрации ЗАТО г. Зеленогорск от 06.12.2024 № 254-п «Об установлении дополнительной меры социальной поддержки отдельным категориям граждан» Постановление Администрации ЗАТО г. Зеленогорск от 06.05.2025 № 112-п Об утверждении Административного регламента предоставления муниципальной услуги «Предоставление информации об организации общедоступного и бесплатного дошкольного, начального общего, основного общего, среднего общего образования в общеобразовательных учреждениях» Постановление Администрации ЗАТО г. Зеленогорск от 06.05.2025 № 111-п О внесении изменений в постановление Администрации ЗАТО г. Зеленогорск от 21.03.2023 № 54-п «Об утверждении Положения и персонального состава комиссии по делам несовершеннолетних и защите их прав города Зеленогорска» Постановление Администрации ЗАТО г. Зеленогорск от 30.04.2025 № 108-п О внесении изменений в постановление Администрации ЗАТО г. Зеленогорск от 12.12.2023 № 248-п «Об утверждении Административного регламента предоставления муниципальной услуги «Предоставление земельного участка, находящегося в муниципальной собственности, или государственная собственность на который не разграничена, на торгах» Постановление Администрации ЗАТО г. Зеленогорск от 29.04.2025 № 106-п О внесении изменений в муниципальную программу «Развитие малого и среднего предпринимательства в городе Зеленогорске», утвержденную постановлением Администрации ЗАТО г. Зеленогорска от 13.12.2021 № 194-п Постановление Администрации ЗАТО г. Зеленогорск от 25.04.2025 № 104-п О внесении изменений в постановление Администрации ЗАТО г. Зеленогорск от 19.07.2024 № 162-п «Об утверждении Административного регламента предоставления муниципальной услуги «Оформление свидетельств об осуществлении перевозок по маршруту регулярных перевозок и карт маршрута регулярных перевозок, переоформление свидетельств об осуществлении перевозок по маршруту регулярных перевозок и карт маршрута регулярных перевозок» Постановление Администрации ЗАТО г. Зеленогорск от 25.04.2025 № 103-п Об утверждении Административного регламента предоставления муниципальной услуги «Признание помещения жилым помещением, жилого помещения непригодным для проживания, многоквартирного дома аварийным и подлежащим сносу или реконструкции» Постановление Администрации ЗАТО г. Зеленогорск от 25.04.2025 № 102-п Об утверждении Административного регламента предоставления муниципальной услуги «Проведение муниципальной экспертизы проектов освоения лесов» Постановление Администрации ЗАТО г. Зеленогорск от 29.04.2025 № 107-п О внесении изменений в Порядок предоставления денежной компенсации взамен бесплатного двухразового питания обучающихся с ограниченными возможностями здоровья, обучение которых организованно муниципальными общеобразовательными организациями города Зеленогорска на дому, утвержденный постановлением Администрации ЗАТО г. Зеленогорск от 17.04.2025 № 95-п Постановление Администрации ЗАТО г. Зеленогорск от 25.04.2025 № 99-п О временном прекращении движения транспортных средств на участках автомобильных дорог общего пользования местного значения города Зеленогорска Распоряжение Администрации ЗАТО г. Зеленогорск от 22.04.2025 № 662-р О внесении изменений в распоряжение Администрации ЗАТО г. Зеленогорск от 24.06.2024 № 1017-р «Об утверждении состава и Порядка работы комиссии по проведению оценки готовности муниципальных бюджетных образовательных учреждений г. Зеленогорска к новому учебному году» Распоряжение Администрации ЗАТО г. Зеленогорск от 21.04.2025 № 660-р О внесении изменений в распоряжение Администрации ЗАТО г. Зеленогорск от 25.09.2023 № 1512-р «Об утверждении состава и Порядка работы муниципальной межведомственной комиссии по снижению задолженности по налогам и сборам» Распоряжение Администрации ЗАТО г. Зеленогорск от 29.04.2025 № 710-р Об окончании отопительного периода 2024-2025 годов Постановление Администрации ЗАТО г. Зеленогорск от 25.04.2025 № 101-п Об утверждении Административного регламента предоставления муниципальной услуги «Согласование создания места (площадки) накопления твердых коммунальных отходов» Постановление Администрации ЗАТО г. Зеленогорск от 25.04.2025 № 100-п Об утверждении Административного регламента предоставления муниципальной услуги «Включение в реестр мест (площадок) накопления твердых коммунальных отходов» Распоряжение Администрации ЗАТО г. Зеленогорск от 24.04.2025 № 689-р О внесении изменений в состав территориальной трехсторонней комиссии по регулированию социально-трудовых отношений, утвержденный распоряжением Администрации ЗАТО г. Зеленогорска от 16.05.2017 № 1063-р Постановление Администрации ЗАТО г. Зеленогорск от 18.04.2025 № 98-п О внесении изменений в постановление Администрации ЗАТО г. Зеленогорск от 24.11.2022 № 169-п «Об осуществлении на территории города Зеленогорска государственных полномочий по обеспечению жилыми помещениями детей сирот и детей, оставшихся без попечения родителей, лиц из числа детей-сирот и детей, оставшихся без попечения родителей, лиц, которые достигли возраста 23 лет» Постановление Администрации ЗАТО г. Зеленогорск от 18.04.2025 № 97-п О внесении изменений в муниципальную программу «Формирование современной городской среды в городе Зеленогорске», утвержденную постановлением Администрации ЗАТО г. Зеленогорска от 31.10.2017 № 257-п Постановление Администрации ЗАТО г. Зеленогорск от 17.04.2025 № 96-п Об утверждении отчета об исполнении местного бюджета города Зеленогорска за первый квартал 2025 года Постановление Администрации ЗАТО г. Зеленогорск от 17.04.2025 № 95-п Об утверждении Порядка предоставления денежной компенсации взамен бесплатного двухразового питания обучающихся с ограниченными возможностями здоровья, обучение которых организованно муниципальными общеобразовательными организациями города Зеленогорска на дому Постановление Администрации ЗАТО г. Зеленогорск от 17.04.2025 № 94-п Об утверждении Порядка обеспечения бесплатным двухразовым питанием обучающихся муниципальных общеобразовательных организаций города Зеленогорска с ограниченными возможностями здоровья по образовательным программам начального общего, основного общего, среднего общего образования, не проживающих в муниципальных образовательных организациях города Зеленогорска Распоряжение Администрации ЗАТО г. Зеленогорск от 17.04.2025 № 616-р О проведении конкурса на включение граждан в резерв управленческих кадров г. Зеленогорска на замещение целевой должности директора Муниципального унитарного предприятия тепловых сетей г.Зеленогорска Распоряжение Администрации ЗАТО г. Зеленогорск от 16.04.2025 № 613-р О проведении общегородского месячника по наведению санитарного порядка и благоустройству территории города Зеленогорска Распоряжение Администрации ЗАТО г. Зеленогорск от 15.04.2025 № 607-р О подготовке к весенне-летнему пожароопасному сезону на территории ЗАТО город Зеленогорск в 2025 году Распоряжение Администрации ЗАТО г. Зеленогорск от 15.04.2025 № 606-р О внесении изменений в распоряжение Администрации ЗАТО г. Зеленогорска от 25.05.2016 № 994-р «Об утверждении Положения и состава балансовой комиссии» Постановление Администрации ЗАТО г. Зеленогорск от 15.04.2025 № 93-п Об утверждении Порядка установления фактов проживания граждан в жилых помещениях, находящихся в зоне чрезвычайной ситуации, нарушения условий их жизнедеятельности и утраты ими имущества в результате чрезвычайной ситуации Постановление Администрации ЗАТО г. Зеленогорск от 15.04.2025 № 92-п О признании утратившим силу постановления Администрации ЗАТО г. Зеленогорска от 27.10.2021 № 161-п «Об определении муниципального бюджетного учреждения, выполняющего работы и оказывающего услуги по содержанию мест захоронения на территории г. Зеленогорска» Постановление Администрации ЗАТО г. Зеленогорск от 11.04.2025 № 91-п Об определении средней рыночной стоимости одного квадратного мет-ра общей площади жилого помеще-ния на территории города Зеленогорска на II квартал 2025 года Постановление Администрации ЗАТО г. Зеленогорск от 11.04.2025 № 90-п Об утверждении Порядка формирования и ведения реестра муниципальных услуг города Зеленогорска Постановление Администрации ЗАТО г. Зеленогорск от 04.04.2025 № 89-п О внесении изменений в постановление Администрации ЗАТО г. Зеленогорска от 23.12.2021 № 209-п «Об утверждении муниципальной программы «Обеспечение безопасности населения города Зеленогорска» Постановление Администрации ЗАТО г. Зеленогорск от 04.04.2025 № 88-п О внесении изменений в постановление Администрации ЗАТО г. Зеленогорск от 12.01.2023 № 9-п «О видах обязательных работ, объектах, на которых они отбываются, и местах, в которых отбываются исправительные работы» Постановление Администрации ЗАТО г. Зеленогорск от 03.04.2025 № 87-п О внесении изменений в постановление Администрации ЗАТО г. Зеленогорск от 06.12.2024 № 254-п «Об установлении дополнительной меры социальной поддержки отдельным категориям граждан» Постановление Администрации ЗАТО г. Зеленогорск от 02.04.2025 № 86-п О внесении изменений в постановление Администрации ЗАТО г. Зеленогорска от 03.03.2022 № 46-п «Об утверждении Порядка обеспечения горячим питанием отдельных категорий учащихся муниципальных общеобразовательных организаций г. Зеленогорска» Постановление Администрации ЗАТО г. Зеленогорск от 01.04.2025 № 85-п О внесении изменений в муниципальную программу «Развитие физической культуры и спорта в городе Зеленогорске», утвержденную постановлением Администрации ЗАТО г. Зеленогорска от 09.12.2021 № 190-п Распоряжение Администрации ЗАТО г. Зеленогорск от 31.03.2025 № 523-р О внесении изменений в распоряжение Администрации ЗАТО г. Зеленогорск от 30.03.2023 № 488-р «Об утверждении состава и Порядка работы межведомственной комиссии по вопросам реабилитации или абилитации детей-инвалидов, психолого-педагогического и медико-социального сопровождения детей с ограниченными возможностями здоровья» Постановление Администрации ЗАТО г. Зеленогорск от 31.03.2025 № 84-п Об утверждении Порядка (плана) действий по ликвидации последствий аварийных ситуаций при теплоснабжении в муниципальном образовании город Зеленогорск Красноярского края (в том числе с применением электронного моделирования аварийных ситуаций) Постановление Администрации ЗАТО г. Зеленогорск от 28.03.2025 № 81-п О внесении изменений в постановление Администрации ЗАТО г. Зеленогорска от 13.12.2021 № 195-п «Об утверждении муниципальной программы «Развитие образования в городе Зеленогорске» Постановление Администрации ЗАТО г. Зеленогорск от 28.03.2025 № 82-п О внесении изменений в приложение к постановлению Администрации ЗАТО г. Зеленогорск от 27.12.2022 № 203-п «Об утверждении Административного регламента предоставления муниципальной услуги «Утверждение схемы расположения земельного участка или земельных участков на кадастровом плане территории» Постановление Администрации ЗАТО г. Зеленогорск от 31.03.2025 № 83-п Об утверждении Порядка предоставления субсидий в целях финансового обеспечения затрат, возникающих в связи с применением предельного индекса при оказании коммунальных услуг на реализацию отдельных мер по обеспечению ограничения платы граждан за коммунальные услуги Постановление Администрации ЗАТО г. Зеленогорск от 25.03.2025 № 74-п О внесении изменений в Примерное положение об оплате труда работников муниципальных бюджетных и казенных учреждений, находящихся в ведении Муниципального казенного учреждения «Комитет по делам физической культуры и спорта г. Зеленогорска», утвержденное постановлением Администрации ЗАТО г. Зеленогорск от 13.06.2023 № 111-п Постановление Администрации ЗАТО г. Зеленогорск от 25.03.2025 № 75-п О внесении изменений в постановление Администрации ЗАТО г. Зеленогорска от 23.09.2019 № 165-п «Об утверждении показателей эффективности деятельности муниципальных бюджетных учреждений, находящихся в ведении МКУ «КФиС» Постановление Администрации ЗАТО г. Зеленогорск от 25.03.2025 № 76-п О внесении изменений в Примерное положение об оплате труда работников муниципальных бюджетных и казенных учреждений города Зеленогорска, находящихся в ведении Управления образования Администрации ЗАТО г. Зеленогорск, утвержденное постановлением Администрации ЗАТО г. Зеленогорск от 05.06.2023 № 106-п Постановление Администрации ЗАТО г. Зеленогорск от 27.03.2025 № 78-п Об утверждении Порядка предоставления субсидий в целях возмещения недополученных доходов, возникающих в связи с оказанием услуг по содержанию жилых помещений муниципального жилищного фонда Постановление Администрации ЗАТО г. Зеленогорск от 27.03.2025 № 80-п Об утверждении Административного регламента предоставления муниципальной услуги «Выдача разрешения на ввод объекта в эксплуатацию» Постановление Администрации ЗАТО г. Зеленогорск от 27.03.2025 № 79-п О внесении изменений в постановление Администрации ЗАТО г. Зеленогорск от 07.12.2023 № 237-п «Об утверждении реестра мест (площадок) накопления твердых коммунальных отходов, расположенных на территории города Зеленогорска» Постановление Администрации ЗАТО г. Зеленогорск от 25.03.2025 № 77-п О применении в 2025 – 2026 годах коэффициентов к ставкам платы за единицу объема лесных ресурсов и ставкам платы за единицу площади лесного участка, находящегося в муниципальной собственности г. Зеленогорска Постановление Администрации ЗАТО г. Зеленогорск от 24.03.2025 № 73-п О внесении изменений в постановление Администрации ЗАТО г. Зеленогорск от 23.06.2023 № 119-п «Об организации оказания муниципальных услуг в социальной сфере при формировании муниципального социального заказа на оказание муниципальных услуг в социальной сфере на территории города Зеленогорска» Постановление Администрации ЗАТО г. Зеленогорск от 24.03.2025 № 72-п О ликвидации Муниципального бюджетного учреждения «Комбинат благоустройства» Постановление Администрации ЗАТО г. Зеленогорск от 19.03.2025 № 64-п О внесении изменений в Порядок составления и утверждения планов финансово - хозяйственной деятельности муниципальных учреждений, утвержденный постановлением Администрации ЗАТО г. Зеленогорск от 21.03.2023 № 55-п Постановление Администрации ЗАТО г. Зеленогорск от 20.03.2025 № 68-п О переименовании объекта недвижимости Постановление Администрации ЗАТО г. Зеленогорск от 20.03.2025 № 71-п О внесении изменений в муниципальную программу «Муниципальное имущество и земельные ресурсы города Зеленогорска», утвержденную постановлением Администрации ЗАТО г. Зеленогорска от 20.12.2021 № 201-п Постановление Администрации ЗАТО г. Зеленогорск от 20.03.2025 № 70-п О внесении изменений в муниципальную программу «Обеспечение жильем молодых семей в городе Зеленогорске», утвержденную постановлением Администрации ЗАТО г. Зеленогорск от 22.01.2024 № 13-п Распоряжение Администрации ЗАТО г. Зеленогорск от 18.03.2025 № 446-р О внесении изменений в распоряжение Администрации ЗАТО г. Зеленогорск от 31.01.2024 № 175-р «Об утверждении состава и Порядка работы комиссии по определению внешнего вида зданий, строений, сооружений» Постановление Администрации ЗАТО г. Зеленогорск от 20.03.2025 № 69-п О внесении изменений в приложение к постановлению Администрации ЗАТО г. Зеленогорск от 27.12.2022 № 203-п «Об утверждении Административного регламента предоставления муниципальной услуги «Утверждение схемы расположения земельного участка или земельных участков на кадастровом плане территории» Постановление Администрации ЗАТО г. Зеленогорск от 19.03.2025 № 66-п О внесении изменений в муниципальную программу «Защита населения и территории города Зеленогорска от чрезвычайных ситуаций природного и техногенного характера», утвержденную постановлением Администрации ЗАТО г. Зеленогорска от 23.12.2021 № 208-п Постановление Администрации ЗАТО г. Зеленогорск от 19.03.2025 № 63-п О признании утратившими силу некоторых постановлений Администрации ЗАТО г. Зеленогорск Распоряжение Администрации ЗАТО г. Зеленогорск от 19.03.2025 № 452-р О противопаводковых мероприятиях в 2025 году Постановление Администрации ЗАТО г. Зеленогорск от 19.03.2025 № 67-п О внесении изменений в муниципальную программу «Развитие культуры города Зеленогорска», утвержденную постановлением Администрации ЗАТО г. Зеленогорска от 21.12.2021 № 206-п Постановление Администрации ЗАТО г. Зеленогорск от 19.03.2025 № 65-п О внесении изменений в постановление Администрации ЗАТО г. Зеленогорск от 21.02.2023 № 33-п «Об установлении в общежитиях стоимости услуг по содержанию жилых помещений, принадлежащих на праве собственности муниципальному образованию город Зеленогорск Красноярского края» Распоряжение Администрации ЗАТО г. Зеленогорск от 18.03.2025 № 445-р О внесении изменений в распоряжение Администрации ЗАТО г. Зеленогорска от 30.12.2021 № 2139-р «Об утверждении состава и Порядка работы комиссии по обеспечению безопасности дорожного движения» Постановление Администрации ЗАТО г. Зеленогорск от 18.03.2025 № 62-п О признании утратившим силу постановления Администрации ЗАТО г. Зеленогорск от 18.12.2024 № 276-п Распоряжение Администрации ЗАТО г. Зеленогорск от 11.03.2025 № 412-р О признании утратившими силу муниципальных правовых актов города Зеленогорска о составе и порядке работы территориальной психолого-медико-педагогической комиссии г. Зеленогорска Постановление Администрации ЗАТО г. Зеленогорск от 14.03.2025 № 59-п О внесении изменений в Примерное положение об оплате труда работников муниципальных учреждений города Зеленогорска, находящихся в ведении Муниципального казенного учреждения «Комитет по делам культуры и молодежной политики города Зеленогорска», утвержденное постановлением Администрации ЗАТО г. Зеленогорск от 01.03.2023 № 40-п Постановление Администрации ЗАТО г. Зеленогорск от 14.03.2025 № 58-п О внесении изменений в Примерное положение об оплате труда работников муниципальных бюджетных учреждений дополнительного образования города Зеленогорска, находящихся в ведении Муниципального казенного учреждения «Комитет по делам культуры и молодежной политики города Зеленогорска», утвержденное постановлением Администрации ЗАТО г. Зеленогорска от 23.03.2018 № 44-п Постановление Администрации ЗАТО г. Зеленогорск от 14.03.2025 № 57-п О внесении изменений в Примерное положение об оплате труда работников муниципальных бюджетных учреждений города Зеленогорска, осуществляющих деятельность в сфере молодежной политики, находящихся в ведении Муниципального казенного учреждения «Комитет по делам культуры и молодежной политики города Зеленогорска», утвержденное постановлением Администрации ЗАТО г. Зеленогорска от 21.12.2016 № 358-п Распоряжение Администрации ЗАТО г. Зеленогорск от 17.03.2025 № 444-р О внесении изменений в распоряжение Администрации ЗАТО г. Зеленогорск от 17.12.2024 № 2055-р «О проведении конкурса на включение граждан в резерв управленческих кадров города Зеленогорска на замещение должностей руководителей муниципальных бюджетных учреждений, осуществляющих деятельность в области физической культуры и спорта» Постановление Администрации ЗАТО г. Зеленогорск от 17.03.2025 № 61-п О внесении изменений в муниципальную программу «Управление муниципальными финансами города Зеленогорска», утвержденную постановлением Администрации ЗАТО г. Зеленогорска от 25.11.2021 № 171-п Постановление Администрации ЗАТО г. Зеленогорск от 14.03.2025 № 60-п О внесении изменений в муниципальную программу «Гражданское общество – закрытое административно-территориальное образование Зеленогорск», утвержденную постановлением Администрации ЗАТО г. Зеленогорска от 06.12.2021 № 186-п Распоряжение Администрации ЗАТО г. Зеленогорск от 14.03.2025 № 440-р О внесении изменений в распоряжение Администрации ЗАТО г. Зеленогорск от 25.12.2023 № 2176-р «О создании Координационного совета по взаимодействию с российским движением детей и молодежи на территории города Зеленогорска» Распоряжение Администрации ЗАТО г. Зеленогорск от 13.03.2025 № 417-р Об организации работы телефона «Горячая линия» по вопросам охраны труда Постановление Администрации ЗАТО г. Зеленогорск от 13.03.2025 № 56-п О внесении изменений в муниципальную программу «Капитальное строительство и капитальный ремонт в городе Зеленогорске», утвержденную постановлением Администрации ЗАТО г. Зеленогорска от 13.12.2021 № 197-п Распоряжение Администрации ЗАТО г. Зеленогорск от 11.03.2025 № 411-р Об определении должностных лиц, ответственных за размещение сведений о начисленных платежах в бюджетную систему Российской Федерации Постановление Администрации ЗАТО г. Зеленогорск от 10.03.2025 № 55-п Об утверждении Порядка предоставления дубликата свидетельства об осуществлении перевозок по маршруту регулярных перевозок и дубликата карты маршрута регулярных перевозок Распоряжение Администрации ЗАТО г. Зеленогорск от 07.03.2025 № 401-р О внесении изменений в состав комиссии по включению в стаж муниципальной службы для назначения пенсии за выслугу лет муниципальным служащим иных периодов трудовой деятельности, утвержденный распоряжением Администрации ЗАТО г. Зеленогорск от 22.10.2024 № 1671-р Распоряжение Администрации ЗАТО г. Зеленогорск от 06.03.2025 № 394-р О внесении изменений в распоряжение Администрации ЗАТО г. Зеленогорск от 20.09.2022 № 1728-р «Об утверждении состава муниципальной комиссии по обследованию жилых помещений инвалидов и общего имущества в многоквартирных домах, в которых проживают инвалиды, в целях их приспособления с учетом потребностей инвалидов и обеспечения условий их доступности для инвалидов» Постановление Администрации ЗАТО г. Зеленогорск от 05.03.2025 № 53-п О внесении изменений в муниципальную программу «Реформирование и модернизация жилищно-коммунального хозяйства и повышение энергетической эффективности в городе Зеленогорске», утвержденную постановлением Администрации ЗАТО г. Зеленогорска от 20.12.2021 № 205-п Постановление Администрации ЗАТО г. Зеленогорск от 05.03.2025 № 52-п О внесении изменений в муниципальную программу «Развитие транспортной системы в городе Зеленогорске», утвержденную постановлением Администрации ЗАТО г. Зеленогорска от 20.12.2021 № 202-п Постановление Администрации ЗАТО г. Зеленогорск от 04.03.2025 № 50-п О внесении изменений в муниципальную программу «Охрана окружающей среды и защита городских лесов на территории города Зеленогорска», утвержденную постановлением Администрации ЗАТО г. Зеленогорска от 13.12.2021 № 193-п Постановление Администрации ЗАТО г. Зеленогорск от 04.03.2025 № 51-п О внесении изменений в постановление Администрации ЗАТО г. Зеленогорск от 22.04.2024 № 98-п «Об утверждении Административного регламента предоставления муниципальной услуги «Согласование местоположения границ земельного участка при проведении кадастровых работ» Постановление Администрации ЗАТО г. Зеленогорск от 04.03.2025 № 49-п О внесении изменений в Проект организации дорожного движения на автомобильных дорогах общего пользования местного значения в г. Зеленогорске Красноярского края, утвержденный постановлением Администрации ЗАТО г. Зеленогорска от 21.08.2018 № 156-п Распоряжение Администрации ЗАТО г. Зеленогорск от 03.03.2025 № 373-р О начале приема от населения предложений и об обсуждении с населением предлагаемых мероприятий по реализации проекта и функций общественной территории «Смотровая площадка» в районе ул. Комсомольская, д. 1, определенной для участия во Всероссийском конкурсе лучших проектов создания комфортной городской среды Постановление Администрации ЗАТО г. Зеленогорск от 28.02.2025 № 48-п О внесении изменений в Примерное положение об оплате труда работников муниципальных казенных учреждений по сопровождению деятельности органов местного самоуправления, находящихся в ведении Комитета по управлению имуществом Администрации ЗАТО г. Зеленогорск, утвержденное постановлением Администрации ЗАТО г. Зеленогорск от 12.01.2024 № 6-п Постановление Администрации ЗАТО г. Зеленогорск от 28.02.2025 № 47-п О внесении изменений в Примерное положение об оплате труда работников муниципальных казенных учреждений по сопровождению деятельности органов местного самоуправления, наделенных полномочиями главных распорядителей средств местного бюджета, утвержденное постановлением Администрации ЗАТО г. Зеленогорск от 12.01.2024 № 5-п Постановление Администрации ЗАТО г. Зеленогорск от 28.02.2025 № 46-п О внесении изменений в Примерное положение об оплате труда работников муниципальных казенных учреждений по сопровождению деятельности органов местного самоуправления, находящихся в ведении Администрации ЗАТО г. Зеленогорск, утвержденное постановлением Администрации ЗАТО г. Зеленогорск от 12.01.2024 № 3-п Постановление Администрации ЗАТО г. Зеленогорск от 28.02.2025 № 45-п О внесении изменений в Примерное положение об оплате труда работников муниципальных казенных учреждений по сопровождению деятельности органов местного самоуправления, находящихся в ведении Отдела городского хозяйства Администрации ЗАТО г. Зеленогорск, утвержденное постановлением Администрации ЗАТО г. Зеленогорск от 12.01.2024 № 4-п Распоряжение Администрации ЗАТО г. Зеленогорск от 24.02.2025 № 339-р О внесении изменений в распоряжение Администрации ЗАТО г. Зеленогорск от 26.09.2024 № 1541-р «Об утверждении состава рабочей группы межведомственной комиссии Красноярского края по противодействию нелегальной занятости на территории города Зеленогорска» Постановление Администрации ЗАТО г. Зеленогорск от 25.02.2025 № 44-п О силах и средствах постоянной готовности городского звена территориальной подсистемы единой государственной системы предупреждения и ликвидации чрезвычайных ситуаций ЗАТО город Зеленогорск Постановление Администрации ЗАТО г. Зеленогорск от 24.02.2025 № 43-п Об утверждении Порядка извещения населения о проведении общественной экологической экспертизы на территории города Зеленогорска Распоряжение Администрации ЗАТО г. Зеленогорск от 24.02.2025 № 329-р О внесении изменений в распоряжение Администрации ЗАТО г. Зеленогорск от 27.12.2023 № 2215-р «О создании рабочей группы по организации голосования по отбору общественной территории г. Зеленогорска, подлежащей благоустройству, с использованием информационно-телекоммуникационной сети «Интернет» Постановление Администрации ЗАТО г. Зеленогорск от 21.02.2025 № 42-п О внесении изменений в постановление Администрации ЗАТО г. Зеленогорск от 06.12.2024 № 254-п «Об установлении дополнительной меры социальной поддержки отдельным категориям граждан» Распоряжение Администрации ЗАТО г. Зеленогорск от 19.02.2025 № 297-р О предоставлении разрешения на отклонение от предельных параметров разрешенного строительства объектов капитального строительства на земельном участке с кадастровым номером 24:59:0306001:1270 (Гонтаренко Л.Л.) Распоряжение Администрации ЗАТО г. Зеленогорск от 19.02.2025 № 296-р О предоставлении разрешения на отклонение от предельных параметров разрешенного строительства объектов капитального строительства на земельном участке с кадастровым номером 24:59:0306001:1251 (Дузенко А.В.) Распоряжение Администрации ЗАТО г. Зеленогорск от 19.02.2025 № 295-р О предоставлении разрешения на отклонение от предельных параметров разрешенного строительства объектов капитального строительства на земельном участке с кадастровым номером 24:59:0306001:1285 (Котиков П.В.) Распоряжение Администрации ЗАТО г. Зеленогорск от 19.02.2025 № 294-р О предоставлении разрешения на отклонение от предельных параметров разрешенного строительства объектов капитального строительства на земельном участке с кадастровым номером 24:59:0306001:1252 (Котиков П.В.) Распоряжение Администрации ЗАТО г. Зеленогорск от 19.02.2025 № 293-р О предоставлении разрешения на отклонение от предельных параметров разрешенного строительства объектов капитального строительства на земельном участке с кадастровым номером 24:59:0306001:1257 (Гонтаренко Л.Л.) Распоряжение Администрации ЗАТО г. Зеленогорск от 19.02.2025 № 292-р О предоставлении разрешения на отклонение от предельных параметров разрешенного строительства объектов капитального строительства на земельном участке с кадастровым номером 24:59:0306001:3615 Постановление Администрации ЗАТО г. Зеленогорск от 19.02.2025 № 41-п О внесении изменений в муниципальную программу «Развитие молодежной политики города Зеленогорска», утвержденную постановлением Администрации ЗАТО г. Зеленогорска от 27.12.2021 № 211-п Постановление Администрации ЗАТО г. Зеленогорск от 14.02.2025 № 39-п О внесении изменений в постановление Администрации ЗАТО г. Зеленогорск от 12.01.2023 № 9-п «О видах обязательных работ, объектах, на которых они отбываются, и местах, в которых отбываются исправительные работы» Постановление Администрации ЗАТО г. Зеленогорск от 14.02.2025 № 40-п О внесении изменений в постановление Администрации ЗАТО г. Зеленогорск от 25.12.2024 № 290-п «О внесении изменений в постановление Администрации ЗАТО г. Зеленогорск от 07.12.2023 № 237-п «Об утверждении реестра мест (площадок) накопления твердых коммунальных отходов, расположенных на территории города Зеленогорска» Постановление Администрации ЗАТО г. Зеленогорск от 14.02.2025 № 38-п О внесении изменений в постановление Администрации ЗАТО г. Зеленогорск от 30.12.2022 № 214-п «Об утверждении Административного регламента предоставления муниципальной услуги «Предоставление разрешения на отклонение от предельных параметров разрешенного строительства, реконструкции объектов капитального строительства» Постановление Администрации ЗАТО г. Зеленогорск от 14.02.2025 № 37-п О внесении изменений в постановление Администрации ЗАТО г. Зеленогорск от 30.12.2022 № 219-п «Об утверждении Административного регламента предоставления муниципальной услуги «Предоставление сведений, документов и материалов, содержащихся в государственной информационной системе обеспечения градостроительной деятельности» Распоряжение Администрации ЗАТО г. Зеленогорск от 13.02.2025 № 289-р Об участии во Всероссийском конкурсе лучших проектов создания комфортной городской среды Распоряжение Администрации ЗАТО г. Зеленогорск от 10.02.2025 № 257-р О внесении изменений в состав общественного совета по охране окружающей среды в г. Зеленогорске, утвержденный распоряжением Администрации ЗАТО г. Зеленогорска от 29.09.2014 № 2174-р Распоряжение Администрации ЗАТО г. Зеленогорск от 05.02.2025 № 242-р Об организации отдыха детей и их оздоровления в летний период 2025 года Постановление Администрации ЗАТО г. Зеленогорск от 05.02.2025 № 36-п О внесении изменений в муниципальную программу «Формирование современной городской среды в городе Зеленогорске», утвержденную постановлением Администрации ЗАТО г. Зеленогорска от 31.10.2017 № 257-п Постановление Администрации ЗАТО г. Зеленогорск от 05.02.2025 № 35-п О закреплении муниципальных бюджетных образовательных учреждений города Зеленогорска за конкретными территориями города Зеленогорска Постановление Администрации ЗАТО г. Зеленогорск от 05.02.2025 № 34-п О внесении изменений в постановление Администрации ЗАТО г. Зеленогорск от 07.12.2023 № 237-п «Об утверждении реестра мест (площадок) накопления твердых коммунальных отходов, расположенных на территории города Зеленогорска» Постановление Администрации ЗАТО г. Зеленогорск от 04.02.2025 № 33-п О внесении изменений в муниципальную программу «Защита населения и территории города Зеленогорска от чрезвычайных ситуаций природного и техногенного характера», утвержденную постановлением Администрации ЗАТО г. Зеленогорска от 23.12.2021 № 208-п Постановление Администрации ЗАТО г. Зеленогорск от 04.02.2025 № 32-п О внесении изменений в постановление Администрации ЗАТО г. Зеленогорск от 07.12.2022 № 179-п «Об утверждении Порядка организации работы, связанной с реализацией Указа Губернатора Красноярского края от 25.10.2022 № 317-уг «О социально-экономических мерах поддержки лиц, принимающих (принимавших) участие в специальной военной операции, и членов их семей» в части освобождения от платы, взимаемой за присмотр и уход за детьми, осваивающими образовательные программы дошкольного образования в муниципальных образовательных организациях г. Зеленогорска» Постановление Администрации ЗАТО г. Зеленогорск от 04.02.2025 № 31-п О внесении изменений в постановление Администрации ЗАТО г. Зеленогорска от 23.06.2021 № 81-п «Об утверждении Порядка постановки на учет детей, нуждающихся в предоставлении мест в муниципальных образовательных учреждениях г. Зеленогорска, реализующих образовательную программу дошкольного образования» Постановление Администрации ЗАТО г. Зеленогорск от 04.02.2025 № 30-п О внесении изменений в постановление Администрации ЗАТО г. Зеленогорска от 03.03.2022 № 46-п «Об утверждении Порядка обеспечения горячим питанием отдельных категорий учащихся муниципальных общеобразовательных организаций г. Зеленогорска» Распоряжение Администрации ЗАТО г. Зеленогорск от 30.01.2025 № 195-р О создании конкурсной комиссии по проведению открытых конкурсов по отбору управляющих организаций для управления многоквартирными домами Постановление Администрации ЗАТО г. Зеленогорск от 30.01.2025 № 28-п О внесении изменений в постановление Администрации ЗАТО г. Зеленогорск от 05.06.2023 № 107-п «Об утверждении Перечня муниципальных услуг, предоставляемых Администрацией ЗАТО г. Зеленогорск, и услуг, предоставляемых муниципальными учреждениями г. Зеленогорска» Постановление Администрации ЗАТО г. Зеленогорск от 30.01.2025 № 29-п О внесении изменений в постановление Администрации ЗАТО г. Зеленогорск от 20.12.2023 № 267-п «О создании и содержании в целях гражданской обороны запасов материально-технических, продовольственных, медицинских и иных средств на территории ЗАТО город Зеленогорск» Постановление Администрации ЗАТО г. Зеленогорск от 30.01.2025 № 27-п О внесении изменений в постановление Администрации ЗАТО г. Зеленогорск от 28.06.2024 № 141-п «Об утверждении перечня создаваемых Администрацией ЗАТО г. Зеленогорск нештатных формирований по обеспечению выполнения мероприятий по гражданской обороне на территории ЗАТО город Зеленогорск» Распоряжение Администрации ЗАТО г. Зеленогорск от 28.01.2025 № 186-р О внесении изменений в распоряжение Администрации ЗАТО г. Зеленогорск от 25.08.2023 № 1382-р «О создании и утверждении состава Координационного совета по межведомственному взаимодействию для своевременного оказания мер социальной поддержки участникам СВО, членам их семей, членам семей погибших участников СВО из числа жителей города Зеленогорска» Постановление Администрации ЗАТО г. Зеленогорск от 28.01.2025 № 26-п О признании утратившими силу некоторых постановлений Администрации ЗАТО г. Зеленогорск Распоряжение Администрации ЗАТО г. Зеленогорск от 27.01.2025 № 170-р О регистрации Устава Местной общественной организации «Территориальное общественное самоуправление «Простоквашино» ЗАТО г. Зеленогорск Постановление Администрации ЗАТО г. Зеленогорск от 27.01.2025 № 25-п О внесении изменений в Положение о порядке организации и проведения аукционов на право заключения договоров на установку и эксплуатацию рекламных конструкций, утвержденное постановлением Администрации ЗАТО г. Зеленогорск от 27.12.2024 № 292-п Постановление Администрации ЗАТО г. Зеленогорск от 21.01.2025 № 20-п О внесении изменений в постановление Администрации ЗАТО г. Зеленогорск от 07.12.2023 № 237-п «Об утверждении реестра мест (площадок) накопления твердых коммунальных отходов, расположенных на территории города Зеленогорска» Постановление Администрации ЗАТО г. Зеленогорск от 23.01.2025 № 24-п О внесении изменений в постановление Администрации ЗАТО г. Зеленогорска от 19.05.2017 № 110-п «Об установлении размера платы за содержание жилого помещения в многоквартирных домах, собственники помещений в которых не приняли решение об установлении размера платы за содержание жилого помещения» Постановление Администрации ЗАТО г. Зеленогорск от 22.01.2025 № 22-п Об определении мест, на которые запрещается возвращать животных без владельцев на территории города Зеленогорска Распоряжение Администрации ЗАТО г. Зеленогорск от 21.01.2025 № 144-р О внесении изменений в распоряжение Администрации ЗАТО г. Зеленогорск от 08.04.2024 № 572-р «Об утверждении перечня объектов недвижимости, требующих постановки на государственный кадастровый учет с одновременной регистрацией права муниципальной собственности, и назначении лиц, ответственных за реализацию мероприятий» Распоряжение Администрации ЗАТО г. Зеленогорск от 21.01.2025 № 107-р О внесении изменений в распоряжение Администрации ЗАТО г. Зеленогорск от 25.12.2023 № 2176-р «О создании Координационного совета по взаимодействию с российским движением детей и молодежи на территории города Зеленогорска» Постановление Администрации ЗАТО г. Зеленогорск от 23.01.2025 № 23-п Об установлении стоимости гарантированного перечня услуг по погребению, предоставляемых специализированной службой по вопросам похоронного дела Постановление Администрации ЗАТО г. Зеленогорск от 21.01.2025 № 19-п О внесении изменений в постановление Администрации ЗАТО г. Зеленогорска от 14.10.2021 № 124-п «Об утверждении Порядка и Нормативов расходования средств местного бюджета города Зеленогорска на финансовое обеспечение официальных физкультурных и спортивных мероприятий, физкультурных и спортивных мероприятий по реализации комплекса ГТО» Постановление Администрации ЗАТО г. Зеленогорск от 22.01.2025 № 21-п О внесении изменений в постановление Администрации ЗАТО г. Зеленогорска от 13.04.2022 № 69-п «Об изменении существенных условий муниципальных контрактов, контрактов, заключенных до 1 января 2025 года для обеспечения муниципальных нужд» Постановление Администрации ЗАТО г. Зеленогорск от 17.01.2025 № 18-п Об утверждении Административного регламента предоставления муниципальной услуги «Выдача согласия на обмен жилыми помещениями, предоставленными по договорам социального найма» Постановление Администрации ЗАТО г. Зеленогорск от 17.01.2025 № 17-п О внесении изменений в Примерное положение об оплате труда работников муниципальных бюджетных и казенных учреждений, находящихся в ведении МКУ «КФиС», утвержденное постановлением Администрации ЗАТО г. Зеленогорск от 13.06.2023 № 111-п Постановление Администрации ЗАТО г. Зеленогорск от 15.01.2025 № 16-п О внесении изменений в постановление Администрации ЗАТО г. Зеленогорска от 01.07.2016 № 196-п «Об утверждении Административного регламента предоставления муниципальной услуги «Предоставление земельных участков в аренду без проведения торгов для индивидуального жилищного строительства, ведения личного подсобного хозяйства, садоводства, для осуществления крестьянским (фермерским) хозяйством его деятельности» Постановление Администрации ЗАТО г. Зеленогорск от 15.01.2025 № 15-п О внесении изменений в постановление Администрации ЗАТО г. Зеленогорск от 07.12.2023 № 237-п «Об утверждении реестра мест (площадок) накопления твердых коммунальных отходов, расположенных на территории города Зеленогорска» Постановление Администрации ЗАТО г. Зеленогорск от 15.01.2025 № 14-п О внесении изменений в постановление Администрации ЗАТО г. Зеленогорск от 07.04.2023 № 64-п «Об утверждении Порядка присуждения премий Главы ЗАТО г. Зеленогорск одаренным обучающимся муниципальных бюджетных образовательных учреждений г. Зеленогорска» Постановление Администрации ЗАТО г. Зеленогорск от 14.01.2025 № 10-п Об утверждении видов оплачиваемых общественных работ, организуемых на территории города Зеленогорска в 2025 году Постановление Администрации ЗАТО г. Зеленогорск от 14.01.2025 № 12-п О внесении изменений в постановление Администрации ЗАТО г. Зеленогорск от 27.12.2022 № 204-п «Об утверждении Административного регламента предоставления муниципальной услуги «Предоставление в аренду, постоянное (бессрочное) пользование, безвозмездное пользование земельного участка без проведения торгов» Постановление Администрации ЗАТО г. Зеленогорск от 13.01.2025 № 9-п О признании утратившими силу некоторых постановлений Администрации ЗАТО г. Зеленогорск Постановление Администрации ЗАТО г. Зеленогорск от 14.01.2025 № 11-п Об утверждении Административного регламента предоставления муниципальной услуги «Передача в собственность граждан занимаемых ими жилых помещений жилищного фонда (приватизация жилищного фонда)» Распоряжение Администрации ЗАТО г. Зеленогорск от 10.01.2025 № 5-р О внесении изменений в распоряжение Администрации ЗАТО г. Зеленогорска от 12.08.2019 № 1769-р «Об утверждении положения и состава комиссии по предупреждению и ликвидации чрезвычайных ситуаций и обеспечению пожарной безопасности города» Распоряжение Администрации ЗАТО г. Зеленогорск от 28.12.2024 № 2227-р О регистрации Устава Местной общественной организации Территориального общественного самоуправления «Первый» Постановление Администрации ЗАТО г. Зеленогорск от 10.01.2025 № 8-п О внесении изменений в постановление Администрации ЗАТО г. Зеленогорска от 09.12.2021 № 190-п «Об утверждении муниципальной программы «Развитие физической культуры и спорта в городе Зеленогорске» Постановление Администрации ЗАТО г. Зеленогорск от 10.01.2025 № 7-п О внесении изменений в постановление Администрации ЗАТО г. Зеленогорск от 22.05.2023 № 92-п «Об утверждении Примерного положения об оплате труда работников муниципальных бюджетных учреждений города Зеленогорска, находящихся в ведении Отдела городского хозяйства Администрации ЗАТО г. Зеленогорск» Постановление Администрации ЗАТО г. Зеленогорск от 09.01.2025 № 6-п О внесении изменений в Примерное положение об оплате труда работников муниципальных учреждений города Зеленогорска, находящихся в ведении Муниципального казенного учреждения «Комитет по делам культуры и молодежной политики города Зеленогорска», утвержденное постановлением Администрации ЗАТО г. Зеленогорск от 01.03.2023 № 40-п Постановление Администрации ЗАТО г. Зеленогорск от 09.01.2025 № 4-п О внесении изменений в Примерное положение об оплате труда работников муниципальных бюджетных учреждений дополнительного образования города Зеленогорска, находящихся в ведении Муниципального казенного учреждения «Комитет по делам культуры и молодежной политики города Зеленогорска», утвержденное постановлением Администрации ЗАТО г. Зеленогорска от 23.03.2018 № 44-п Постановление Администрации ЗАТО г. Зеленогорск от 09.01.2025 № 2-п О внесении изменений в Примерное положение об оплате труда работников муниципальных казенных учреждений по сопровождению деятельности органов местного самоуправления, находящихся в ведении Отдела городского хозяйства Администрации ЗАТО г. Зеленогорск, утвержденное постановлением Администрации ЗАТО г. Зеленогорск от 12.01.2024 № 4-п Постановление Администрации ЗАТО г. Зеленогорск от 09.01.2021 № 1-п О внесении изменений в Примерное положение об оплате труда работников муниципальных казенных учреждений по сопровождению деятельности органов местного самоуправления, находящихся в ведении Администрации ЗАТО г. Зеленогорск, утвержденное постановлением Администрации ЗАТО г. Зеленогорск от 12.01.2024 № 3-п Постановление Администрации ЗАТО г. Зеленогорск от 09.01.2025 № 3-п О внесении изменений в Примерное положение об оплате труда работников муниципальных казенных учреждений по сопровождению деятельности органов местного самоуправления, наделенных полномочиями главных распорядителей средств местного бюджета, утвержденное постановлением Администрации ЗАТО г. Зеленогорск от 12.01.2024 № 5-п Постановление Администрации ЗАТО г. Зеленогорск от 09.01.2025 № 5-п О внесении изменений в Примерное положение об оплате труда работников муниципальных бюджетных учреждений города Зеленогорска, осуществляющих деятельность в сфере молодежной политики, находящихся в ведении Муниципального казенного учреждения «Комитет по делам культуры и молодежной политики города Зеленогорска», утвержденное постановлением Администрации ЗАТО г. Зеленогорска от 21.12.2016 № 358-п Постановление Администрации ЗАТО г. Зеленогорск от 28.12.2024 № 295-п О внесении изменений в Примерное положение об оплате труда работников муниципальных казенных учреждений по сопровождению деятельности органов местного самоуправления, находящихся в ведении Комитета по управлению имуществом Администрации ЗАТО г. Зеленогорск, утвержденное постановлением Администрации ЗАТО г. Зеленогорск от 12.01.2024 № 6-п Постановление Администрации ЗАТО г. Зеленогорск от 28.12.2024 № 296-п О внесении изменений в постановление Администрации ЗАТО г. Зеленогорск от 05.06.2023 № 106-п «Об утверждении Примерного положения об оплате труда работников муниципальных бюджетных и казенных учреждений города Зеленогорска, находящихся в ведении Управления образования Администрации ЗАТО г. Зеленогорск» Постановление Администрации ЗАТО г. Зеленогорск от 28.12.2024 № 294-п О внесении изменений в постановление Администрации ЗАТО г. Зеленогорск от 22.01.2024 № 13-п «Об утверждении муниципальной программы «Обеспечение жильем молодых семей в городе Зеленогорске» Распоряжение Администрации ЗАТО г. Зеленогорск от 28.12.2024 № 2203-р О внесении изменений в распоряжение Администрации ЗАТО г. Зеленогорск от 08.04.2024 № 572-р «Об утверждении перечня объектов недвижимости, требующих постановки на государственный кадастровый учет с одновременной регистрацией права муниципальной собственности, и назначении лиц, ответственных за реализацию мероприятий» Постановление Администрации ЗАТО г. Зеленогорск от 27.12.2024 № 293-п О внесении изменений в постановление Администрации ЗАТО г. Зеленогорск от 01.07.2016 № 197-п «Об утверждении Административного регламента предоставления муниципальной услуги «Предварительное согласование предоставления земельных участков для индивидуального жилищного строительства, ведения личного подсобного хозяйства, садоводства, для осуществления крестьянским (фермерским) хозяйством его деятельности» Постановление Администрации ЗАТО г. Зеленогорск от 27.12.2024 № 292-п Об утверждении Положений о порядке организации работы по выдаче разрешений на установку и эксплуатацию рекламных конструкций, порядке организации и проведения аукционов на право заключения договоров на установку и эксплуатацию рекламных конструкций Постановление Администрации ЗАТО г. Зеленогорск от 25.12.2024 № 290-п О внесении изменений в постановление Администрации ЗАТО г. Зеленогорск от 07.12.2023 № 237-п «Об утверждении реестра мест (площадок) накопления твердых коммунальных отходов, расположенных на территории города Зеленогорска» Постановление Администрации ЗАТО г. Зеленогорск от 25.12.2024 № 289-п О внесении изменений в Положение о системе оплаты труда работников муниципальных учреждений города Зеленогорска, утвержденное постановлением Администрации ЗАТО г. Зеленогорска от 12.04.2021 № 46-п Постановление Администрации ЗАТО г. Зеленогорск от 24.12.2024 № 286-п О внесении изменений в постановление Администрации ЗАТО г. Зеленогорска от 28.06.2021 № 85-п «О возложении на МКУ «Центр закупок, предпринимательства и обеспечения деятельности ОМС» полномочий отдельных заказчиков в сфере закупок товаров, работ, услуг для обеспечения муниципальных нужд» Распоряжение Администрации ЗАТО г. Зеленогорск от 25.12.2024 № 2156-р О признании утратившими силу некоторых распоряжений Администрации ЗАТО г. Зеленогорска Постановление Администрации ЗАТО г. Зеленогорск от 25.12.2024 № 288-п О признании утратившим силу постановления Администрации ЗАТО г. Зеленогорска от 13.12.2010 г. Постановление Администрации ЗАТО г. Зеленогорск от 24.12.2024 № 287-п О внесении изменений в постановление Администрации ЗАТО г. Зеленогорска от 30.11.2010 № 497-п «Об утверждении Порядка принятия решений о создании, реорганизации, ликвидации муниципальных учреждений, изменения их типа, проведения реорганизации и ликвидации муниципальных учреждений, а также утверждения уставов муниципальных учреждений и внесения в них изменений» Постановление Администрации ЗАТО г. Зеленогорск от 24.12.2024 № 284-п О внесении изменений в постановление Администрации ЗАТО г. Зеленогорска от 13.12.2021 № 195-п «Об утверждении муниципальной программы «Развитие образования в городе Зеленогорске» Постановление Администрации ЗАТО г. Зеленогорск от 24.12.2024 № 285-п Об утверждении Порядка и условий заключения соглашений о защите и поощрении капиталовложений со стороны муниципального образования город Зеленогорск Распоряжение Администрации ЗАТО г. Зеленогорск от 19.12.2024 № 2086-р О внесении изменений в распоряжение Администрации ЗАТО г. Зеленогорск от 07.08.2023 № 1274-р «О создании рабочей группы по формированию и реализации муниципальных программ города Зеленогорска» Постановление Администрации ЗАТО г. Зеленогорск от 20.12.2024 № 282-п О внесении изменений в Примерное положение об оплате труда работников муниципальных бюджетных учреждений дополнительного образования города Зеленогорска, находящихся в ведении Муниципального казенного учреждения «Комитет по делам культуры и молодежной политики города Зеленогорска», утвержденное постановлением Администрации ЗАТО г. Зеленогорска от 23.03.2018 № 44-п Постановление Администрации ЗАТО г. Зеленогорск от 20.12.2024 № 283-п О внесении изменений в постановление Администрации ЗАТО г. Зеленогорск от 23.03.2023 № 58-п «Об утверждении Порядков и сроков внесения изменений в перечни главных администраторов доходов местного бюджета и главных администраторов источников финансирования дефицита местного бюджета города Зеленогорска» Постановление Администрации ЗАТО г. Зеленогорск от 20.12.2024 № 280-п О внесении изменений в постановление Администрации ЗАТО г. Зеленогорск от 26.12.2023 № 277-п «Об утверждении перечней главных администраторов доходов местного бюджета и главных администраторов источников финансирования дефицита местного бюджета города Зеленогорска» Постановление Администрации ЗАТО г. Зеленогорск от 20.12.2024 № 281-п О внесении изменений в постановление Администрации ЗАТО г. Зеленогорск от 27.12.2023 № 282-п «О создании административной комиссии города Зеленогорска» Постановление Администрации ЗАТО г. Зеленогорск от 20.12.2024 № 279-п О внесении изменений в постановление Администрации ЗАТО г. Зеленогорска от 21.12.2021 № 206-п «Об утверждении муниципальной программы «Развитие культуры города Зеленогорска» Распоряжение Администрации ЗАТО г. Зеленогорск от 18.12.2024 № 2076-р О внесении изменений в распоряжение Администрации ЗАТО г. Зеленогорска от 09.10.2020 № 1674-р «Об утверждении состава и Положения о порядке работы межведомственной комиссии по оценке и обследованию помещения в целях признания его жилым помещением, жилого помещения пригодным (непригодным) для проживания граждан, а также многоквартирного дома в целях признания его аварийным и подлежащим сносу или реконструкции» Постановление Администрации ЗАТО г. Зеленогорск от 18.12.2024 № 276-п Об утверждении Порядка организации общественных обсуждений о намечаемой хозяйственной и иной деятельности, которая подлежит экологической экспертизе, на территории города Зеленогорска Постановление Администрации ЗАТО г. Зеленогорск от 19.12.2024 № 278-п О средстве массовой информации, определенном в качестве официального периодического издания, осуществляющего публикацию муниципальных правовых актов Распоряжение Администрации ЗАТО г. Зеленогорск от 18.12.2024 № 2075-р О внесении изменений в распоряжение Администрации ЗАТО г. Зеленогорск от 22.08.2024 № 1341-р «О создании комиссии по списанию затрат, понесенных на незавершенное строительство объектов капитального строительства муниципальной собственности, финансовое обеспечение которых осуществлялось за счет средств местного бюджета» Распоряжение Администрации ЗАТО г. Зеленогорск от 17.12.2024 № 2054-р О внесении изменений в распоряжение Администрации ЗАТО г. Зеленогорска от 24.03.2016 № 528-р «Об утверждении состава и Порядка работы комиссии по вопросам градостроительной деятельности и образованию земельных участков на территории г. Зеленогорска» Постановление Администрации ЗАТО г. Зеленогорск от 18.12.2024 № 277-п Об утверждении перечней главных администраторов доходов местного бюджета и главных администраторов источников финансирования дефицита местного бюджета города Зеленогорска Распоряжение Администрации ЗАТО г. Зеленогорск от 18.12.2024 № 2082-р О внесении изменений в распоряжение Администрации ЗАТО г. Зеленогорск от 11.08.2023 № 1300-р «Об утверждении Положения о порядке работы комиссии по оценке результативности деятельности руководителей муниципальных учреждений, состава комиссии по оценке результативности деятельности руководителей муниципальных учреждений и Порядка оформления учреждениями результатов выполнения критериев оценки результативности и качества деятельности и условий для установления руководителям учреждений размеров выплат стимулирующего характера» Распоряжение Администрации ЗАТО г. Зеленогорск от 17.12.2024 № 2062-р Об утверждении Перечня муниципального имущества, свободного от прав третьих лиц (за исключением имущественных прав субъектов малого и среднего предпринимательства) и предназначенного для предоставления субъектам малого и среднего предпринимательства Распоряжение Администрации ЗАТО г. Зеленогорск от 17.12.2024 № 2067-р Об утверждении Положения о премировании по результатам работы директоров муниципальных унитарных предприятий города Зеленогорска Распоряжение Администрации ЗАТО г. Зеленогорск от 17.12.2024 № 2055-р О проведении конкурса на включение граждан в резерв управленческих кадров города Зеленогорска на замещение должностей руководителей муниципальных бюджетных учреждений, осуществляющих деятельность в области физической культуры и спорта Постановление Администрации ЗАТО г. Зеленогорск от 17.12.2024 № 275-п О внесении изменений в муниципальную программу «Развитие малого и среднего предпринимательства в городе Зеленогорске», утвержденную постановлением Администрации ЗАТО г. Зеленогорска от 13.12.2021 № 194-п Постановление Администрации ЗАТО г. Зеленогорск от 16.12.2024 № 273-п Об определении средней рыночной стоимости одного квадратного метра общей площади жилого помещения на территории города Зеленогорска на I квартал 2025 года Постановление Администрации ЗАТО г. Зеленогорск от 16.12.2024 № 274-п О внесении изменений в муниципальную программу «Развитие малого и среднего предпринимательства в городе Зеленогорске», утвержденную постановлением Администрации ЗАТО г. Зеленогорска от 13.12.2021 № 194-п Постановление Администрации ЗАТО г. Зеленогорск от 13.12.2024 № 272-п О внесении изменений в постановление Администрации ЗАТО г. Зеленогорска от 20.12.2021 № 205-п «Об утверждении муниципальной программы «Реформирование и модернизация жилищно-коммунального хозяйства и повышение энергетической эффективности в городе Зеленогорске» Постановление Администрации ЗАТО г. Зеленогорск от 13.12.2024 № 270-п О внесении изменений в постановление Администрации ЗАТО г. Зеленогорска от 14.10.2021 № 123-п «Об утверждении Порядка формирования и финансового обеспечения выполнения муниципального задания на оказание муниципальных услуг (выполнение работ) муниципальными учреждениями города Зеленогорска» Постановление Администрации ЗАТО г. Зеленогорск от 13.12.2024 № 271-п О внесении изменений в постановление Администрации ЗАТО г. Зеленогорска от 23.12.2021 № 208-п «Об утверждении муниципальной программы «Защита населения и территории города Зеленогорска от чрезвычайных ситуаций природного и техногенного характера» Постановление Администрации ЗАТО г. Зеленогорск от 13.12.2024 № 269-п О внесении изменений в постановление Администрации ЗАТО г. Зеленогорска от 28.12.2018 № 250-п «Об утверждении Положения о порядке установления размера платы за содержание жилого помещения для собственников помещений в многоквартирном доме, которые не приняли на их общем собрании решение о выборе способа управления многоквартирным домом, решение об установлении размера платы за содержание жилого помещения» Постановление Администрации ЗАТО г. Зеленогорск от 10.12.2024 № 262-п О внесении изменений в постановление Администрации ЗАТО г. Зеленогорска от 13.12.2021 № 197-п «Об утверждении муниципальной программы «Капитальное строительство и капитальный ремонт в городе Зеленогорске» Постановление Администрации ЗАТО г. Зеленогорск от 12.12.2024 № 268-п Об утверждении Инструкции о пропускном режиме в контролируемой зоне категории «А» ЗАТО город Зеленогорск Постановление Администрации ЗАТО г. Зеленогорск от 12.12.2024 № 267-п О внесении изменений в постановление Администрации ЗАТО г. Зеленогорска от 20.12.2021 № 201-п «Об утверждении муниципальной программы «Муниципальное имущество и земельные ресурсы города Зеленогорска» Распоряжение Администрации ЗАТО г. Зеленогорск от 12.12.2024 № 2021-р О внесении изменений в распоряжение Администрации ЗАТО г. Зеленогорск от 20.09.2022 № 1728-р «Об утверждении состава муниципальной комиссии по обследованию жилых помещений инвалидов и общего имущества в многоквартирных домах, в которых проживают инвалиды, в целях их приспособления с учетом потребностей инвалидов и обеспечения условий их доступности для инвалидов» Постановление Администрации ЗАТО г. Зеленогорск от 11.12.2024 № 266-п О внесении изменений в постановление Администрации ЗАТО г. Зеленогорска от 13.12.2021 № 193-п «Об утверждении муниципальной программы «Охрана окружающей среды и защита городских лесов на территории города Зеленогорска» Постановление Администрации ЗАТО г. Зеленогорск от 09.12.2024 № 258-п О внесении изменений в постановление Администрации ЗАТО г. Зеленогорска от 27.12.2021 № 211-п «Об утверждении муниципальной программы «Развитие молодежной политики города Зеленогорска» Постановление Администрации ЗАТО г. Зеленогорск от 10.12.2024 № 261-п Об утверждении Административного регламента предоставления муниципальной услуги «Прекращение права постоянного (бессрочного) пользования и пожизненного наследуемого владения земельным участком при отказе землепользователя, землевладельца от принадлежащего им права на земельный участок» Постановление Администрации ЗАТО г. Зеленогорск от 09.12.2024 № 260-п О признании утратившими силу некоторых постановлений Администрации ЗАТО г. Зеленогорск Постановление Администрации ЗАТО г. Зеленогорск от 09.12.2024 № 257-п О внесении изменений в Порядок составления и утверждения планов финансово - хозяйственной деятельности муниципальных учреждений, утвержденный постановлением Администрации ЗАТО г. Зеленогорск от 21.03.2023 № 55-п Постановление Администрации ЗАТО г. Зеленогорск от 10.12.2024 № 263-п О внесении изменений в постановление Администрации ЗАТО г. Зеленогорска от 31.10.2017 № 257-п «Об утверждении муниципальной программы «Формирование современной городской среды в городе Зеленогорске» Постановление Администрации ЗАТО г. Зеленогорск от 06.12.2024 № 254-п Об установлении дополнительной меры социальной поддержки отдельным категориям граждан Постановление Администрации ЗАТО г. Зеленогорск от 10.12.2024 № 265-п Об утверждении Порядка предоставления субсидий социально ориентированным некоммерческим организациям на реализацию социальных проектов Постановление Администрации ЗАТО г. Зеленогорск от 10.12.2024 № 264-п О внесении изменений в постановление Администрации ЗАТО г. Зеленогорска от 23.12.2021 № 209-п «Об утверждении муниципальной программы «Обеспечение безопасности населения города Зеленогорска» Распоряжение Администрации ЗАТО г. Зеленогорск от 11.12.2024 № 2018-р Об установлении предельных уровней соотношения среднемесячной заработной платы директоров, их заместителей и главных бухгалтеров и среднемесячной заработной платы работников муниципальных унитарных предприятий города Зеленогорска Постановление Администрации ЗАТО г. Зеленогорск от 09.12.2024 № 258-п О внесении изменений в постановление Администрации ЗАТО г. Зеленогорска от 27.12.2021 № 211-п «Об утверждении муниципальной программы «Развитие молодежной политики города Зеленогорска» Постановление Администрации ЗАТО г. Зеленогорск от 10.12.2024 № 261-п Об утверждении Административного регламента предоставления муниципальной услуги «Прекращение права постоянного (бессрочного) пользования и пожизненного наследуемого владения земельным участком при отказе землепользователя, землевладельца от принадлежащего им права на земельный участок» Постановление Администрации ЗАТО г. Зеленогорск от 09.12.2024 № 260-п В целях совершенствования системы муниципальных правовых актов г. Зеленогорска, руководствуясь Уставом города Зеленогорска Красноярского края Постановление Администрации ЗАТО г. Зеленогорск от 9.12.2024 № 257-п О внесении изменений в Порядок составления и утверждения планов финансово - хозяйственной деятельности муниципальных учреждений, утвержденный постановлением Администрации ЗАТО г. Зеленогорск от 21.03.2023 № 55-п Постановление Администрации ЗАТО г. Зеленогорск от 10.12.2024 № 263-п О внесении изменений в постановление Администрации ЗАТО г. Зеленогорска от 31.10.2017 № 257-п «Об утверждении муниципальной программы «Формирование современной городской среды в городе Зеленогорске» Постановление Администрации ЗАТО г. Зеленогорск от 06.12.2024 № 254-п Об установлении дополнительной меры социальной поддержки отдельным категориям граждан Постановление Администрации ЗАТО г. Зеленогорск от 09.12.2024 № 259-п О внесении изменений в постановление Администрации ЗАТО г. Зеленогорска от 30.03.2022 № 59-п «Об утверждении краткосрочного плана реализации региональной программы капитального ремонта общего имущества в многоквартирных домах, расположенных на территории города Зеленогорска, на 2023 - 2025 годы» Постановление Администрации ЗАТО г. Зеленогорск от 09.12.2024 № 256-п О внесении изменений в постановление Администрации ЗАТО г. Зеленогорска от 22.12.2016 № 366-п «Об утверждении Порядка предоставления физиотерапевтических процедур в муниципальных дошкольных образовательных учреждениях г. Зеленогорска, в которых созданы условия для их проведения» Постановление Администрации ЗАТО г. Зеленогорск от 09.12.2024 № 255-п О внесении изменений в постановление Администрации ЗАТО г. Зеленогорск от 28.06.2022 № 120-п «Об утверждении Порядка составления и утверждения отчета о результатах деятельности муниципального учреждения и об использовании закрепленного за ним муниципального имущества» Постановление Администрации ЗАТО г. Зеленогорск от 06.12.2024 № 253-п О внесении изменений в постановление Администрации ЗАТО г. Зеленогорска от 06.12.2021 № 186-п «Об утверждении муниципальной программы «Гражданское общество – закрытое административно-территориальное образование Зеленогорск» Постановление Администрации ЗАТО г. Зеленогорск от 06.12.2024 № 252-п О внесении изменений в постановление от 23.03.2023 № 58-п «Об утверждении Порядков и сроков внесения изменений в перечни главных администраторов доходов местного бюджета и главных администраторов источников финансирования дефицита местного бюджета города Зеленогорска» Постановление Администрации ЗАТО г. Зеленогорск от 04.12.2024 № 248-п О внесении изменений в постановление Администрации ЗАТО г. Зеленогорска от 25.11.2021 № 171-п «Об утверждении муниципальной программы «Управление муниципальными финансами города Зеленогорска» Постановление Администрации ЗАТО г. Зеленогорск от 05.12.2024 № 251-п О внесении изменений в постановление Администрации ЗАТО г. Зеленогорска от 20.12.2021 № 202-п «Об утверждении муниципальной программы «Развитие транспортной системы в городе Зеленогорске» Постановление Администрации ЗАТО г. Зеленогорск от 05.12.2024 № 250-п О внесении изменений в постановление Администрации ЗАТО г. Зеленогорска от 07.10.2020 № 141-п «Об определении деятельности МКУ «Центр закупок, предпринимательства и обеспечения деятельности ОМС» Постановление Администрации ЗАТО г. Зеленогорск от 03.12.2024 № 243-п О внесении изменений в постановление Администрации ЗАТО г. Зеленогорска от 09.09.2020 № 115-п «О ритуальных услугах» Постановление Администрации ЗАТО г. Зеленогорск от 04.12.2024 № 247-п О внесении изменений в постановление Администрации ЗАТО г. Зеленогорска от 24.05.2022 № 99-п «Об авансовых платежах при заключении получателями средств местного бюджета, а также муниципальными автономными и бюджетными учреждениями договоров (муниципальных контрактов)» Постановление Администрации ЗАТО г. Зеленогорск от 04.12.2024 № 246-п Об утверждении Сводного плана организации ярмарок на 2025 год Постановление Администрации ЗАТО г. Зеленогорск от 03.12.2024 № 244-п О внесении изменений в постановление Администрации ЗАТО г. Зеленогорск от 07.09.2022 № 147-п Постановление Администрации ЗАТО г. Зеленогорск от 03.12.2024 № 245-п Об утверждении Положения об условиях оплаты труда директоров, их заместителей и главных бухгалтеров муниципальных унитарных предприятий города Зеленогорска Распоряжение Администрации ЗАТО г. Зеленогорск от 28.11.2024 № 1924-р О внесении изменений в распоряжение Администрации ЗАТО г. Зеленогорск от 05.09.2022 № 1600-р «Об утверждении персонального состава общественной комиссии по развитию городской среды» Постановление Администрации ЗАТО г. Зеленогорск от 29.11.2024 № 241-п О внесении изменений в Перечень главных распорядителей средств местного бюджета и подведомственных им получателей средств местного бюджета, утвержденный постановлением Администрации ЗАТО г. Зеленогорск от 10.01.2023 № 2-п Постановление Администрации ЗАТО г. Зеленогорск от 29.11.2024 № 242-п О внесении изменений в постановление Администрации ЗАТО г. Зеленогорска от 18.04.2014 № 96-п «Об утверждении схемы водоснабжения и водоотведения города Зеленогорска» Постановление Администрации ЗАТО г. Зеленогорск от 28.11.2024 № 239-п Об установлении тарифа на услуги по вывозу жидких бытовых отходов, оказываемые Муниципальным унитарным предприятием тепловых сетей г. Зеленогорска Постановление Администрации ЗАТО г. Зеленогорск от 28.11.2024 № 240-п О признании утратившим силу постановления Администрации ЗАТО г. Зеленогорск от 19.12.2023 № 258-п Распоряжение Администрации ЗАТО г. Зеленогорск от 26.11.2024 № 1915-р Об отнесении деятельности муниципальных учреждений и предприятий города Зеленогорска, подведомственных Администрации ЗАТО г. Зеленогорск, к определенной категории риска Распоряжение Администрации ЗАТО г. Зеленогорск от 22.11.2024 № 1876-р О внесении изменений в распоряжение Администрации ЗАТО г. Зеленогорск от 25.09.2023 № 1512-р «Об утверждении состава и Порядка работы муниципальной межведомственной комиссии по снижению задолженности по налогам и сборам» Распоряжение Администрации ЗАТО г. Зеленогорск от 20.11.2024 № 1855-р О внесении изменений в распоряжение Администрации ЗАТО г. Зеленогорска от 16.05.2017 № 1063-р «Об утверждении состава территориальной трехсторонней комиссии по регулированию социально-трудовых отношений» Постановление Администрации ЗАТО г. Зеленогорск от 18.11.2024 № 236-п О резервах материальных ресурсов для ликвидации чрезвычайных ситуаций муниципального характера на территории ЗАТО город Зеленогорск Распоряжение Администрации ЗАТО г. Зеленогорск от 18.11.2024 № 1847-р О внесении изменений в распоряжение Администрации ЗАТО г. Зеленогорск от 15.10.2024 № 1625-р «О муниципальной сети образовательных учреждений г. Зеленогорска на 2024 – 2025 учебный год» Постановление Администрации ЗАТО г. Зеленогорск от 18.11.2024 № 235-п Об установлении размера платы за пользование жилым помещением (платы за наем) государственного или муниципального жилищного фонда Постановление Администрации ЗАТО г. Зеленогорск от 18.11.2024 № 234-п О внесении изменений в постановление Администрации ЗАТО г. Зеленогорска от 19.12.2018 № 237-п «Об утверждении Положения о расчете размера платы за пользование жилым помещением (платы за наем) для нанимателей жилых помещений по договорам социального найма и договорам найма жилых помещений государственного или муниципального жилищного фонда в городе Зеленогорске» Постановление Администрации ЗАТО г. Зеленогорск от 15.11.2024 № 233-п О внесении изменений в постановление Администрации ЗАТО г. Зеленогорск от 26.12.2023 № 277-п «Об утверждении перечней главных администраторов доходов местного бюджета и главных администраторов источников финансирования дефицита местного бюджета города Зеленогорска» ПОВЕСТКА 19-й сессии Совета депутатов ЗАТО г. Зеленогорск 20-го созыва Постановление Администрации ЗАТО г. Зеленогорск от 12.11.2024 № 232-п О внесении изменений в постановление Администрации ЗАТО г. Зеленогорск от 07.12.2023 № 237-п «Об утверждении реестра мест (площадок) накопления твердых коммунальных отходов, расположенных на территории города Зеленогорска» Постановление Администрации ЗАТО г. Зеленогорск от 12.11.2024 № 230-п Об утверждении документа планирования регулярных перевозок пассажиров и багажа автомобильным транспортом по муниципальным маршрутам регулярных перевозок на территории города Зеленогорска на 2025 - 2029 годы Постановление Администрации ЗАТО г. Зеленогорск от 12.11.2024 № 231-п О внесении изменений в Проект организации дорожного движения на автомобильных дорогах общего пользования местного значения в г. Зеленогорске Красноярского края, утвержденный постановлением Администрации ЗАТО г. Зеленогорска от 21.08.2018 № 156-п Постановление Администрации ЗАТО г. Зеленогорск от 08.11.2024 № 229-п О внесении изменений в постановление Администрации ЗАТО г. Зеленогорска от 18.01.2017 № 7-п «Об утверждении требований к закупаемым Администрацией ЗАТО г. Зеленогорска и подведомственными ей муниципальными казенными учреждениями г. Зеленогорска отдельным видам товаров, работ, услуг (в том числе предельным ценам товаров, работ, услуг)» Постановление Администрации ЗАТО г. Зеленогорск от 08.11.2024 № 228-п Об утверждении Порядка ликвидации аварийных ситуаций в системах теплоснабжения с учетом взаимодействия тепло-, электро-, топливо- и водоснабжающих организаций, потребителей тепловой энергии, ремонтно-строительных и транспортных организаций, а также Администрации ЗАТО г. Зеленогорск Постановление Администрации ЗАТО г. Зеленогорск от 07.11.2024 № 227-п Об установлении норматива стоимости 1 кв. м общей площади жилого помещения по городу Зеленогорску на 2025 год Постановление Администрации ЗАТО г. Зеленогорск от 05.11.2024 № 226-п О внесении изменений в Программу проведения проверки готовности к отопительному периоду 2024 – 2025 годов, утвержденную постановлением Администрации ЗАТО г. Зеленогорск от 17.05.2024 № 114-п Постановление Администрации ЗАТО г. Зеленогорск от 05.11.2024 № 225-п О внесении изменений в постановление Администрации ЗАТО г. Зеленогорск от 12.01.2023 № 9-п «О видах обязательных работ, объектах, на которых они отбываются, и местах, в которых отбываются исправительные работы» Распоряжение Администрации ЗАТО г. Зеленогорск от 31.10.2024 № 1743-р О внесении изменений в распоряжение Администрации ЗАТО г. Зеленогорск от 23.03.2023 № 454-р «Об утверждении состава и Порядка работы комиссии по распределению путевок в загородные оздоровительные лагеря с частичной оплатой их стоимости» Постановление Администрации ЗАТО г. Зеленогорск от 31.10.2024 № 222-п Об утверждении Положения о порядке представления лицом, поступающим на должность руководителя муниципального учреждения города Зеленогорска, и руководителем муниципального учреждения города Зеленогорска сведений о своих доходах, об имуществе и обязательствах имущественного характера Постановление Администрации ЗАТО г. Зеленогорск от 01.11.2024 № 224-п Об утверждении Административного регламента предоставления муниципальной услуги «Выдача решения о согласовании архитектурно-градостроительного облика объекта капитального строительства» Распоряжение Администрации ЗАТО г. Зеленогорск от 31.10.2024 № 1742-р Об утверждении состава комиссии по соблюдению требований к служебному поведению муниципальных служащих и урегулированию конфликтов интересов муниципальных служащих, руководителей муниципальных учреждений и предприятий Постановление Администрации ЗАТО г. Зеленогорск от 24.10.2024 № 221-п Об утверждении Плана действий по ликвидации последствий аварийных ситуаций в системе центрального теплоснабжения с применением электронного моделирования аварийных ситуаций на территории города Зеленогорска и Порядка мониторинга системы теплоснабжения города Зеленогорска Распоряжение Администрации ЗАТО г. Зеленогорск от 22.10.2024 № 1671-р Об утверждении Положения о порядке работы комиссии по включению в стаж муниципальной службы для назначения пенсии за выслугу лет муниципальным служащим иных периодов трудовой деятельности и ее состава Постановление Администрации ЗАТО г. Зеленогорск от 22.10.2024 № 220-п О внесении изменений в Примерное положение об оплате труда работников муниципальных казенных учреждений по сопровождению деятельности органов местного самоуправления, находящихся в ведении Комитета по управлению имуществом Администрации ЗАТО г. Зеленогорск Постановление Администрации ЗАТО г. Зеленогорск от 25.03.2025 № 76-п О внесении изменений в Примерное положение об оплате труда работников муниципальных бюджетных и казенных учреждений города Зеленогорска, находящихся в ведении Управления образования Администрации ЗАТО г. Зеленогорск, утвержденное постановлением Администрации ЗАТО г. Зеленогорск от 05.06.2023 № 106-п Распоряжение Администрации ЗАТО г. Зеленогорск от 18.10.2024 № 1649-р О внесении изменений в распоряжение Администрации ЗАТО г. Зеленогорск от 08.04.2024 № 572-р «Об утверждении перечня объектов недвижимости, требующих постановки на государственный кадастровый учет с одновременной регистрацией права муниципальной собственности, и назначении лиц, ответственных за реализацию мероприятий» Распоряжение Администрации ЗАТО г. Зеленогорск от 16.10.2024 № 1640-р О внесении изменений в распоряжение Администрации ЗАТО г. Зеленогорска от 29.12.2018 № 2940-р «Об утверждении Положения и состава комиссии по оценке последствий принятия решений о реконструкции, модернизации, сдаче в аренду, передаче в безвозмездное пользование, об изменении назначения или о ликвидации объекта социальной инфраструктуры для детей, являющегося муниципальной собственностью г. Зеленогорска, а также о реорганизации или ликвидации муниципальных образовательных организаций, муниципальных организаций, образующих социальную инфраструктуру для детей г. Зеленогорска» Распоряжение Администрации ЗАТО г. Зеленогорск от 16.10.2024 № 1635-р О внесении изменений в распоряжение Администрации ЗАТО г. Зеленогорск от 21.11.2023 № 1869-р «Об утверждении Плана проведения плановых проверок при осуществлении ведомственного контроля за соблюдением трудового законодательства и иных нормативных правовых актов, содержащих нормы трудового права, на 2024 год» Постановление Администрации ЗАТО г. Зеленогорск от 16.10.2024 № 219-п О внесении изменений в Проект организации дорожного движения на автомобильных дорогах общего пользования местного значения в г. Зеленогорске Красноярского края, утвержденный постановлением Администрации ЗАТО г. Зеленогорска от 21.08.2018 № 156-п Постановление Администрации ЗАТО г. Зеленогорск от 16.10.2024 № 217-п Об утверждении отчета об исполнении местного бюджета города Зеленогорска за девять месяцев 2024 года Постановление Администрации ЗАТО г. Зеленогорск от 16.10.2024 № 216-п О внесении изменений в постановление Администрации ЗАТО г. Зеленогорск от 15.02.2024 № 37-п «Об утверждении Административного регламента предоставления муниципальной услуги «Предоставление движимого и недвижимого имущества, находящегося в муниципальной собственности, арендуемого субъектами малого и среднего предпринимательства при реализации ими преимущественного права на приобретение арендуемого имущества, в собственность» Постановление Администрации ЗАТО г. Зеленогорск от 15.10.2024 № 218-п О внесении изменений в постановление Администрации ЗАТО г. Зеленогорск от 05.06.2023 № 107-п «Об утверждении Перечня муниципальных услуг, предоставляемых Администрацией ЗАТО г. Зеленогорск, и услуг, предоставляемых муниципальными учреждениями г. Зеленогорска» Распоряжение Администрации ЗАТО г. Зеленогорск от 15.10.2024 № 1625-р О муниципальной сети образовательных учреждений г. Зеленогорска на 2024-2025 учебный год Постановление Администрации ЗАТО г. Зеленогорск от 15.10.2024 № 215-п Об определении средней рыночной стоимости одного квадратного метра общей площади жилого помещения на территории города Зеленогорска на IV квартал 2024 года Постановление Администрации ЗАТО г. Зеленогорск от 14.10.2024 № 214-п О внесении изменений в муниципальную программу «Развитие культуры города Зеленогорска», утвержденную постановлением Администрации ЗАТО г. Зеленогорска от 21.12.2021 № 206-п Распоряжение Администрации ЗАТО г. Зеленогорск от 11.10.2024 № 1601-р О создании инвентаризационной подкомиссии по проведению инвентаризации защитных сооружений гражданской обороны на территории ЗАТО город Зеленогорск Постановление Администрации ЗАТО г. Зеленогорск от 11.10.2024 № 213-п О внесении изменений в муниципальную программу «Реформирование и модернизация жилищно-коммунального хозяйства и повышение энергетической эффективности в городе Зеленогорске», утвержденную постановлением Администрации ЗАТО г. Зеленогорска от 20.12.2021 № 205-п Постановление Администрации ЗАТО г. Зеленогорск от 10.10.2024 № 211-п О внесении изменений в постановление Администрации ЗАТО г. Зеленогорск от 05.06.2023 № 106-п «Об утверждении Примерного положения об оплате труда работников муниципальных бюджетных и казенных учреждений города Зеленогорска, находящихся в ведении Управления образования Администрации ЗАТО г. Зеленогорск» Постановление Администрации ЗАТО г. Зеленогорск от 09.10.2024 № 210-п О признании утратившим силу постановления Администрации ЗАТО г. Зеленогорск от 12.12.2023 № 245-п Постановление Администрации ЗАТО г. Зеленогорск от 07.10.2024 № 209-п О внесении изменений в постановление Администрации ЗАТО г. Зеленогорск от 12.01.2023 № 9-п «О видах обязательных работ, объектах, на которых они отбываются, и местах, в которых отбываются исправительные работы» Постановление Администрации ЗАТО г. Зеленогорск от 07.10.2024 № 208-п Об утверждении краткосрочного плана реализации региональной программы капитального ремонта общего имущества в многоквартирных домах, расположенных на территории города Зеленогорска, на 2026 - 2028 годы Распоряжение Администрации ЗАТО г. Зеленогорск от 07.10.2024 № 1587-р О внесении изменений в распоряжение Администрации ЗАТО г. Зеленогорск от 10.02.2023 № 244-р «Об антинаркотической комиссии г. Зеленогорска» Распоряжение Администрации ЗАТО г. Зеленогорск от 07.10.2024 № 1686-р О внесении изменений в распоряжение Администрации ЗАТО г. Зеленогорск от 08.02.2023 № 226-р «Об утверждении Положения и состава межведомственной комиссии по профилактике правонарушений на территории города Зеленогорска» Постановление Администрации ЗАТО г. Зеленогорск от 03.10.2024 № 206-п О внесении изменений в постановление Администрации ЗАТО г. Зеленогорск от 07.09.2022 № 147-п Распоряжение Администрации ЗАТО г. Зеленогорск от 03.10.2024 № 1577-р О внесении изменений в распоряжение Администрации ЗАТО г. Зеленогорска от 14.04.2022 № 727-р «Об утверждении состава и Положения о межведомственной комиссии по организации питания учащихся в муниципальных бюджетных общеобразовательных организациях г. Зеленогорска» Постановление Администрации ЗАТО г. Зеленогорск от 30.09.2024 № 205-п Об определении части территории, на которой может реализовываться инициативный проект «Мечты о футболе» Распоряжение Администрации ЗАТО г. Зеленогорск от 26.09.2024 № 1541-р О утверждении состава рабочей группы межведомственной комиссии Красноярского края по противодействию нелегальной занятости на территории города Зеленогорска Постановление Администрации ЗАТО г. Зеленогорск от 30.09.2024 № 204-п Об определении части территории, на которой может реализовываться инициативный проект «Безопасный двор» Постановление Администрации ЗАТО г. Зеленогорск от 27.09.2024 № 197-п Об определении части территории, на которой может реализовываться инициативный проект «Территория спорта - 2 этап» Постановление Администрации ЗАТО г. Зеленогорск от 27.09.2024 № 202-п О внесении изменений в Примерное положение об оплате труда работников муниципальных учреждений города Зеленогорска, находящихся в ведении Муниципального казенного учреждения «Комитет по делам культуры и молодежной политики города Зеленогорска», утвержденное постановлением Администрации ЗАТО г. Зеленогорск от 01.03.2023 № 40-п Постановление Администрации ЗАТО г. Зеленогорск от 27.09.2024 № 201-п Об определении части территории, на которой может реализовываться инициативный проект «Комфортная поликлиника» Постановление Администрации ЗАТО г. Зеленогорск от 27.09.2024 № 200-п Об определении части территории, на которой может реализовываться инициативный проект «Лайк Парк» Постановление Администрации ЗАТО г. Зеленогорск от 27.09.2024 № 199-п Об определении части территории, на которой может реализовываться инициативный проект «Северный Олень - 2 этап» Постановление Администрации ЗАТО г. Зеленогорск от 27.09.2024 №198-п Об определении части территории, на которой может реализовываться инициативный проект «Центр притяжения» Постановление Администрации ЗАТО г. Зеленогорск от 24.09.2024 № 196-п О внесении изменений в постановление Администрации ЗАТО г. Зеленогорск от 12.01.2023 № 9-п «О видах обязательных работ, объектах, на которых они отбываются, и местах, в которых отбываются исправительные работы» Постановление Администрации ЗАТО г. Зеленогорск от 24.09.2024 № 195-п О внесении изменений в постановление Администрации ЗАТО г. Зеленогорск от 26.12.2023 № 277-п «Об утверждении перечней главных администраторов доходов местного бюджета и главных администраторов источников финансирования дефицита местного бюджета города Зеленогорска» Постановление Администрации ЗАТО г. Зеленогорск от 24.09.2024 №194-п Об утверждении Порядка использования (перераспределения) средств, зарезервированных в составе утвержденных ассигнований местного бюджета города Зеленогорска Постановление Администрации ЗАТО г. Зеленогорск от 23.09.2024 № 193-п Об установлении размера платы, взимаемой с родителей (законных представителей) за присмотр и уход за детьми, осваивающими образовательные программы дошкольного образования в муниципальных бюджетных образовательных учреждениях г. Зеленогорска, осуществляющих образовательную деятельность Постановление Администрации ЗАТО г. Зеленогорск от 18.09.2024 г. Зеленогорск №192-п О признании утратившим силу постановления Администрации ЗАТО г. Зеленогорск от 02.08.2023 № 160-п Постановление Администрации ЗАТО г. Зеленогорск от 18.09.2024 г. Зеленогорск №191-п О внесении изменений в постановление Администрации ЗАТО г. Зеленогорск от 29.12.2023 № 288-п «О средстве массовой информации, определенном в качестве официального периодического издания, осуществляющего публикацию муниципальных правовых актов» Постановление Администрации ЗАТО г. Зеленогорск от 16.09.2024 № 190-п О внесении изменений в постановление Администрации ЗАТО г. Зеленогорск от 13.12.2023 № 253-п «Об установлении режима работы муниципальных организаций, осуществляющих деятельность в сфере торговли, общественного питания и бытового обслуживания города Зеленогорска» Постановление Администрации ЗАТО г. Зеленогорск от 12.09.2024 № 189-п О признании утратившим силу постановления Администрации ЗАТО г. Зеленогорск от 10.11.2023 № 216-п Постановление Администрации ЗАТО г. Зеленогорск от 12.09.2024 № 188-п О внесении изменений в Сводный план организации ярмарок на 2024 год, утвержденный постановлением Администрации ЗАТО г. Зеленогорск от 22.11.2023 № 225-п Постановление Администрации ЗАТО г. Зеленогорск от 09.09.2024 № 185-п О признании утратившими силу некоторых муниципальных правовых актов в области территориального общественного самоуправления Постановление Администрации ЗАТО г. Зеленогорск от 10.09.2024 № 187-п О внесении изменений в постановление Администрации ЗАТО г. Зеленогорск от 21.03.2023 № 54-п «Об утверждении Положения и персонального состава комиссии по делам несовершеннолетних и защите их прав города Зеленогорска» Распоряжение Администрации ЗАТО г. Зеленогорск от 10.09.2024 № 1427-р О подготовке и проведении муниципального этапа смотра-конкурса «Молодость XXI – Победителям» Постановление Администрации ЗАТО г. Зеленогорск от 09.09.2024 № 186-п О начале отопительного периода 2024-2025 годов Распоряжение Администрации ЗАТО г. Зеленогорск от 04.09.2024 № 1397-р О внесении изменений в состав территориальной трехсторонней комиссии по регулированию социально-трудовых отношений, утвержденный распоряжением Администрации ЗАТО г. Зеленогорск от 16.05.2017 № 1063-р Постановление Администрации ЗАТО г. Зеленогорск от 02.09.2024 № 184-п О внесении изменений в постановление Администрации ЗАТО г. Зеленогорск от 05.07.2023 № 136-п «Об утверждении Правил заключения в электронной форме и подписания усиленной квалифицированной электронной подписью лица, имеющего право действовать от имени соответственно уполномоченного органа, исполнителя муниципальных услуг в социальной сфере, соглашений о финансовом обеспечении (возмещении) затрат, связанных с оказанием муниципальных услуг в социальной сфере в соответствии с социальным сертификатом на получение муниципальной услуги в социальной сфере» Постановление Администрации ЗАТО г. Зеленогорск от 02.09.2024 № 183-п О временном прекращении движения транспортных средств на участках автомобильных дорог общего пользования местного значения города Зеленогорска Распоряжение Администрации ЗАТО г. Зеленогорск от 30.08.2024 № 1376-р О внесении изменений в распоряжение Администрации ЗАТО г. Зеленогорск от 07.08.2023 № 1271-р «Об утверждении Перечня муниципального имущества, свободного от прав третьих лиц (за исключением имущественных прав некоммерческих организаций) и предназначенного для предоставления социально ориентированным некоммерческим организациям» Распоряжение Администрации ЗАТО г. Зеленогорск от 29.08.2024 № 1374-р О подготовке и проведении в 2024 году общегородского праздника, посвященного Дню знаний Постановление Администрации ЗАТО г. Зеленогорск от 28.08.2024 № 182-п О признании утратившим силу постановление Администрации ЗАТО г. Зеленогорска от 27.08.2012 № 325-п «Об утверждении показателей размера вреда, причиняемого транспортными средствами, осуществляющими перевозки тяжеловесных грузов по автомобильным дорогам общего пользования местного значения на территории города Зеленогорска» Постановление Администрации ЗАТО г. Зеленогорск от 26.08.2024 № 181-п О внесении изменений в Примерное положение об оплате труда работников муниципальных бюджетных учреждений дополнительного образования города Зеленогорска, находящихся в ведении Муниципального казенного учреждения «Комитет по делам культуры и молодежной политики города Зеленогорска», утвержденное постановлением Администрации ЗАТО г. Зеленогорска от 23.03.2018 № 44-п Постановление Администрации ЗАТО г. Зеленогорск от 26.08.2024 № 180-п О внесении изменений в Примерное положение об оплате труда работников муниципальных учреждений города Зеленогорска, находящихся в ведении Муниципального казенного учреждения «Комитет по делам культуры и молодежной политики города Зеленогорска», утвержденное постановлением Администрации ЗАТО г. Зеленогорск от 01.03.2023 № 40-п Распоряжение Администрации ЗАТО г. Зеленогорск от 20.08.2024 № 1333-р О внесении изменений в распоряжение Администрации ЗАТО г. Зеленогорск от 07.08.2023 № 1274-р «О создании рабочей группы по формированию и реализации муниципальных программ города Зеленогорска» Распоряжение Администрации ЗАТО г. Зеленогорск от 22.08.2024 № 1341-р О создании комиссии по списанию затрат, понесенных на незавершенное строительство объектов капитального строительства муниципальной собственности, финансовое обеспечение которых осуществлялось за счет средств местного бюджета Постановление Администрации ЗАТО г. Зеленогорск от 22.08.2024 № 179-п О внесении изменений в постановление Администрации ЗАТО г. Зеленогорск от 26.12.2023 № 277-п «Об утверждении перечней главных администраторов доходов местного бюджета и главных администраторов источников финансирования дефицита местного бюджета города Зеленогорска» Постановление Администрации ЗАТО г. Зеленогорск от 20.08.2024 № 178-п О внесении изменений в Примерное положение об оплате труда работников муниципальных бюджетных учреждений города Зеленогорска, осуществляющих деятельность в сфере молодежной политики, находящихся в ведении Муниципального казенного учреждения «Комитет по делам культуры и молодежной политики города Зеленогорска», утвержденное постановлением Администрации ЗАТО г. Зеленогорска от 21.12.2016 № 358-п Постановление Администрации ЗАТО г. Зеленогорск от 19.08.2024 № 177-п О внесении изменений в Порядок разработки, корректировки, осуществления мониторинга и контроля реализации документов стратегического планирования города Зеленогорска, утвержденный постановлением Администрации ЗАТО г. Зеленогорска от 09.10.2015 № 254-п Постановление Администрации ЗАТО г. Зеленогорск от 14.08.2024 № 176-п О создании межведомственной муниципальной комиссии по профилактике социального сиротства, сохранению кровной семьи, сокращению количества выявленных детей, оставшихся без попечения родителей и находящихся в государственных организациях Постановление Администрации ЗАТО г. Зеленогорск от 13.08.2024 № 175-п Об утверждении Порядка демонтажа рекламных конструкций, установленных и (или) эксплуатируемых без разрешений, срок действия которых не истек Постановление Администрации ЗАТО г. Зеленогорск от 12.08.2024 № 173-п О внесении изменений в постановление Администрации ЗАТО г. Зеленогорск от 29.12.2022 № 220-п «Об утверждении Перечня муниципальных услуг, предоставляемых Администрацией ЗАТО г. Зеленогорск в КГБУ «МФЦ» Постановление Администрации ЗАТО г. Зеленогорск от 12.08.2024 № 174-п О внесении изменений в постановление Администрации ЗАТО г. Зеленогорска от 14.10.2021 № 124-п «Об утверждении Порядка и Нормативов расходования средств местного бюджета города Зеленогорска на финансовое обеспечение официальных физкультурных и спортивных мероприятий, физкультурных и спортивных мероприятий по реализации комплекса ГТО» Постановление Администрации ЗАТО г. Зеленогорск от 09.08.2024 № 172-п Об условиях приватизации Муниципального унитарного предприятия «Городское жилищно-коммунальное управление» г. Зеленогорска Постановление Администрации ЗАТО г. Зеленогорск от 09.08.2024 № 171-п Об условиях приватизации Унитарного муниципального автотранспортного предприятия г. Зеленогорска Постановление Администрации ЗАТО г. Зеленогорск от 06.08.2024 № 169-п О внесении изменений в постановление Администрации ЗАТО г. Зеленогорска от 09.10.2015 № 254-п «Об утверждении порядка разработки, корректировки, осуществления мониторинга и контроля реализации документов стратегического планирования города Зеленогорска» Постановление Администрации ЗАТО г. Зеленогорск от 06.08.2024 № 170-п О выделении специальных мест для размещения печатных агитационных материалов на территории г. Зеленогорска в период подготовки и проведения выборов Постановление Администрации ЗАТО г. Зеленогорск от 02.08.2024 № 168-п О внесении изменений в постановление Администрации ЗАТО г. Зеленогорска от 13.04.2022 № 69-п «Об изменении существенных условий муниципальных контрактов, контрактов, заключенных до 1 января 2024 года для обеспечения муниципальных нужд» Постановление Администрации ЗАТО г. Зеленогорск от 02.08.2024 № 167-п О внесении изменений в Примерное положение об оплате труда работников муниципальных казенных учреждений по сопровождению деятельности органов местного самоуправления, находящихся в ведении Комитета по управлению имуществом Администрации ЗАТО г. Зеленогорск, утвержденное постановлением Администрации ЗАТО г. Зеленогорск от 12.01.2024 № 6-п Распоряжение Администрации ЗАТО г. Зеленогорск от 29.07.2024 № 1229-р О внесении изменений в распоряжение Администрации ЗАТО г. Зеленогорск от 03.10.2022 № 1815-р «Об утверждении состава и Положения о межведомственной комиссии по вопросам демографии, семьи и детства» Постановление Администрации ЗАТО г. Зеленогорск от 24.07.2024 № 166-п О внесении изменений в Проект организации дорожного движения на автомобильных дорогах общего пользования местного значения в г. Зеленогорске Красноярского края, утвержденный постановлением Администрации ЗАТО г. Зеленогорска от 21.08.2018 № 156-п Постановление Администрации ЗАТО г. Зеленогорск от 24.07.2024 № 165-п О внесении изменений в Порядок предоставления грантов в форме субсидий субъектам малого и среднего предпринимательства в целях финансового обеспечения части затрат на начало ведения предпринимательской деятельности, утвержденный постановлением Администрации ЗАТО г. Зеленогорск от 07.10.2022 № 154-п Постановление Администрации ЗАТО г. Зеленогорск от 24.07.2024 № 164-п О внесении изменений в Порядок предоставления субсидий субъектам малого и среднего предпринимательства в целях возмещения части затрат в связи с реализацией инвестиционных проектов в приоритетных отраслях, утвержденный постановлением Администрации ЗАТО г. Зеленогорск от 28.09.2023 № 194-п Постановление Администрации ЗАТО г. Зеленогорск от 22.07.2024 № 163-п Об утверждении Административного регламента предоставления муниципальной услуги «Предоставление разрешения на осуществление земляных работ» Постановление Администрации ЗАТО г. Зеленогорск от 19.07.2024 № 162-п Об утверждении Административного регламента предоставления муниципальной услуги «Оформление свидетельств об осуществлении перевозок по маршруту регулярных перевозок и карт маршрута регулярных перевозок, переоформление свидетельств об осуществлении перевозок по маршруту регулярных перевозок и карт маршрута регулярных перевозок» Постановление Администрации ЗАТО г. Зеленогорск от 19.07.2024 № 161-п О временном прекращении движения транспортных средств на участках автомобильных дорог общего пользования местного значения города Зеленогорска Распоряжение Администрации ЗАТО г. Зеленогорск от 18.07.2024 № 1180-р О предоставлении разрешения на отклонение от предельных параметров разрешенного строительства объекта капитального строительства (ООО «Сибиряк») Постановление Администрации ЗАТО г. Зеленогорск от 18.07.2024 № 160-п Об утверждении отчета об исполнении местного бюджета города Зеленогорска за первое полугодие 2024 года Постановление Администрации ЗАТО г. Зеленогорск от 12.07.2024 № 158-п О внесении изменений в постановление Администрации ЗАТО г. Зеленогорска от 14.10.2021 № 124-п «Об утверждении Порядка и Нормативов расходования средств местного бюджета города Зеленогорска на финансовое обеспечение официальных физкультурных и спортивных мероприятий, физкультурных и спортивных мероприятий по реализации комплекса ГТО» Постановление Администрации ЗАТО г. Зеленогорск от 11.07.2024 № 156-п О внесении изменений в состав Координационного совета в области развития малого и среднего предпринимательства, утвержденный постановлением Администрации ЗАТО г. Зеленогорска от 15.09.2021 № 117-п Распоряжение Администрации ЗАТО г. Зеленогорск от 10.07.2024 № 1134-р Об организации проведения проекта «Новые созидатели» на территории города Зеленогорска в 2024 году Постановление Администрации ЗАТО г. Зеленогорск от 10.07.2024 № 155-п Об условиях приватизации Муниципального унитарного предприятия «Дельфин» г. Зеленогорска Постановление Администрации ЗАТО г. Зеленогорск от 10.07.2024 № 153-п Об определении средней рыночной стоимости одного квадратного метра общей площади жилого помещения на территории города Зеленогорска на III квартал 2024 года Постановление Администрации ЗАТО г. Зеленогорск от 10.07.2024 № 154-п Об утверждении Административного регламента предоставления муниципальной услуги «Выдача архитектурно-планировочного задания» Постановление Администрации ЗАТО г. Зеленогорск от 09.07.2024 № 152-п О временном прекращении движения транспортных средств на участках автомобильных дорог общего пользования местного значения города Зеленогорска Постановление Администрации ЗАТО г. Зеленогорск от 05.07.2024 № 151-п О внесении изменений в постановление Администрации ЗАТО г. Зеленогорска от 13.12.2021 № 195-п «Об утверждении муниципальной программы «Развитие образования в городе Зеленогорске» Постановление Администрации ЗАТО г. Зеленогорск от 04.07.2024 № 147-п О внесении изменений в постановление Администрации ЗАТО г. Зеленогорск от 12.07.2023 № 144-п «Об утверждении Порядка формирования муниципальных социальных заказов на оказание муниципальных услуг в социальной сфере, отнесенных к полномочиям органов местного самоуправления города Зеленогорска, формы отчета об их исполнении» Постановление Администрации ЗАТО г. Зеленогорск от 04.07.2024 № 146-п О внесении изменений в постановление Администрации ЗАТО г. Зеленогорск от 07.07.2023 № 138-п «О некоторых мерах правового регулирования вопросов, связанных с оказанием муниципальной услуги «Реализация дополнительных общеразвивающих программ» в соответствии с социальными сертификатами» Постановление Администрации ЗАТО г. Зеленогорск от 03.07.2024 № 145-п Об утверждении Положения о порядке принятия и оформления выморочного имущества в виде жилых помещений, переходящего в порядке наследования по закону в собственность муниципального образования город Зеленогорск Красноярского края Постановление Администрации ЗАТО г. Зеленогорск от 04.07.2024 № 148-п Об утверждении Порядка оплаты расходов по незаселенным жилым помещениям муниципального жилищного фонда города Зеленогорска Постановление Администрации ЗАТО г. Зеленогорск от 04.07.2024 № 150-п О разрешении использования в 2024 году в целях купания и отдыха людей озера «Ближнее» Постановление Администрации ЗАТО г. Зеленогорск от 04.07.2024 № 149-п Об условиях приватизации Муниципального унитарного предприятия «Телерадиокомпания «Зеленогорск» города Зеленогорска Постановление Администрации ЗАТО г. Зеленогорск от 28.06.2024 № 144-п О внесении изменений в постановление Администрации ЗАТО г. Зеленогорск от 28.06.2022 № 120-п «Об утверждении Порядка составления и утверждения отчета о результатах деятельности муниципального учреждения и об использовании закрепленного за ним муниципального имущества» Постановление Администрации ЗАТО г. Зеленогорск от 28.06.2024 № 143-п О внесении изменений в Перечень главных распорядителей средств местного бюджета и подведомственных им получателей средств местного бюджета, утвержденный постановлением Администрации ЗАТО г. Зеленогорск от 10.01.2023 № 2-п Постановление Администрации ЗАТО г. Зеленогорск от 28.06.2024 № 142-п О внесении изменений в постановление Администрации ЗАТО г. Зеленогорск от 26.12.2023 № 277-п «Об утверждении перечней главных администраторов доходов местного бюджета и главных администраторов источников финансирования дефицита местного бюджета города Зеленогорска» Постановление Администрации ЗАТО г. Зеленогорск от 28.06.2024 № 141-п Об утверждении перечня создаваемых Администрацией ЗАТО г. Зеленогорск нештатных формирований по обеспечению выполнения мероприятий по гражданской обороне на территории ЗАТО город Зеленогорск Постановление Администрации ЗАТО г. Зеленогорск от 27.06.2024 № 140-п О внесении изменений в постановление Администрации ЗАТО г. Зеленогорска от 30.03.2022 № 59-п «Об утверждении краткосрочного плана реализации региональной программы капитального ремонта общего имущества в многоквартирных домах, расположенных на территории города Зеленогорска, на 2023 - 2025 годы» Постановление Администрации ЗАТО г. Зеленогорск от 27.06.2024 № 139-п О внесении изменений в Примерное положение об оплате труда работников муниципальных бюджетных и казенных учреждений, находящихся в ведении Муниципального казенного учреждения «Комитет по делам физической культуры и спорта г. Зеленогорска», утвержденное постановлением Администрации ЗАТО г. Зеленогорск от 13.06.2023 № 111-п Распоряжение Администрации ЗАТО г. Зеленогорск от 24.06.2024 № 1017-р Об утверждении состава и Порядка работы комиссии по проведению оценки готовности муниципальных бюджетных образовательных учреждений г. Зеленогорска к новому учебному году Постановление Администрации ЗАТО г. Зеленогорск от 25.06.2024 № 138-п О внесении изменений в постановление Администрации ЗАТО г. Зеленогорск от 07.12.2023 № 237-п «Об утверждении реестра мест (площадок) накопления твердых коммунальных отходов, расположенных на территории города Зеленогорска» Распоряжение Администрации ЗАТО г. Зеленогорск от 19.06.2024 № 994-р О внесении изменений в распоряжение Администрации ЗАТО г. Зеленогорск от 29.11.2022 № 2258-р «Об утверждении состава и Положения о порядке работы комиссии по оказанию поддержки субъектам малого и среднего предпринимательства» Распоряжение Администрации ЗАТО г. Зеленогорск от 19.06.2024 № 996-р О внесении изменений в распоряжение Администрации ЗАТО г. Зеленогорска от 30.01.2019 № 183-р «Об утверждении состава и Порядка работы комиссии по приватизации муниципального имущества» Постановление Администрации ЗАТО г. Зеленогорск от 17.06.2024 № 136-п О временном прекращении движения транспортных средств на участках автомобильных дорог общего пользования местного значения города Зеленогорска Постановление Администрации ЗАТО г. Зеленогорск от 17.06.2024 № 135-п О внесении изменений в постановление Администрации ЗАТО г. Зеленогорск от 26.12.2023 № 277-п «Об утверждении перечней главных администраторов доходов местного бюджета и главных администраторов источников финансирования дефицита местного бюджета города Зеленогорска» Постановление Администрации ЗАТО г. Зеленогорск от 14.06.2024 № 134-п О временном прекращении движения транспортных средств на участках автомобильных дорог общего пользования местного значения города Зеленогорска Распоряжение Администрации ЗАТО г. Зеленогорск от 11.06.2024 № 947-р О создании штаба по вопросам ведения на территории города Зеленогорска садоводства и огородничества Постановление Администрации ЗАТО г. Зеленогорск от 14.06.2024 № 133-п О внесении изменений в муниципальную программу «Формирование современной городской среды в городе Зеленогорске», утвержденную постановлением Администрации ЗАТО г. Зеленогорска от 31.10.2017 № 257-п Постановление Администрации ЗАТО г. Зеленогорск от 13.06.2024 № 132-п Об утверждении Порядка предоставления субсидии на возмещение фактически понесенных затрат, связанных с выполнением работ, направленных на реализацию инициативного проекта в рамках мероприятий по поддержке местных инициатив Распоряжение Администрации ЗАТО г. Зеленогорск от 11.06.2024 № 960-р О внесении изменений в распоряжение Администрации ЗАТО г. Зеленогорска от 30.08.2021 № 1318-р «О создании комиссии по противодействию коррупции и утверждении Положения о порядке работы комиссии по противодействию коррупции» Постановление Администрации ЗАТО г. Зеленогорск от 10.06.2024 № 131-п О внесении изменений в муниципальную программу «Развитие культуры города Зеленогорска», утвержденную постановлением Администрации ЗАТО г. Зеленогорска от 21.12.2021 № 206-п Постановление Администрации ЗАТО г. Зеленогорск от 07.06.2024 № 129-п О внесении изменений в муниципальную программу «Развитие малого и среднего предпринимательства в городе Зеленогорске», утвержденную постановлением Администрации ЗАТО г. Зеленогорска от 13.12.2021 № 194-п Постановление Администрации ЗАТО г. Зеленогорск от 07.06.2024 № 130-п Об образовании избирательных участков на территории города Зеленогорска Постановление Администрации ЗАТО г. Зеленогорск от 04.06.2024 № 128-п О внесении изменений в Примерное положение об оплате труда работников муниципальных казенных учреждений по сопровождению деятельности органов местного самоуправления, находящихся в ведении Отдела городского хозяйства Администрации ЗАТО г. Зеленогорск, утвержденное постановлением Администрации ЗАТО г. Зеленогорск от 12.01.2024 № 4-п Постановление Администрации ЗАТО г. Зеленогорск от 03.06.2024 № 127-п О внесении изменений в Примерное положение об оплате труда работников муниципальных бюджетных учреждений города Зеленогорска, осуществляющих деятельность в сфере молодежной политики, находящихся в ведении Муниципального казенного учреждения «Комитет по делам культуры и молодежной политики города Зеленогорска», утвержденное постановлением Администрации ЗАТО г. Зеленогорска от 21.12.2016 № 358-п Постановление Администрации ЗАТО г. Зеленогорск от 31.05.2024 № 124-п О внесении изменений в постановление Администрации ЗАТО г. Зеленогорск от 26.12.2023 № 277-п «Об утверждении перечней главных администраторов доходов местного бюджета и главных администраторов источников финансирования дефицита местного бюджета города Зеленогорска» Постановление Администрации ЗАТО г. Зеленогорск от 03.06.2024 № 126-п О внесении изменений в Проект организации дорожного движения на автомобильных дорогах общего пользования местного значения в г. Зеленогорске Красноярского края, утвержденный постановлением Администрации ЗАТО г. Зеленогорска от 21.08.2018 № 156-п Постановление Администрации ЗАТО г. Зеленогорск от 03.06.2024 № 125-п О внесении изменений в Примерное положение об оплате труда работников муниципальных казенных учреждений по сопровождению деятельности органов местного самоуправления, наделенных полномочиями главных распорядителей средств местного бюджета, утвержденное постановлением Администрации ЗАТО г. Зеленогорск от 12.01.2024 № 5-п Распоряжение Администрации ЗАТО г. Зеленогорск от 28.05.2024 № 886-р О мероприятиях по организации обустройства мест массового отдыха людей на водных объектах для купания и отдыха в 2024 году Постановление Администрации ЗАТО г. Зеленогорск от 28.05.2024 № 123-п Об утверждении Правил принятия решений о списании затрат, понесенных на незавершенное строительство объектов капитального строительства муниципальной собственности, финансовое обеспечение которых осуществлялось за счет средств местного бюджета Постановление Администрации ЗАТО г. Зеленогорск от 28.05.2024 № 122-п О внесении изменений в постановление Администрации ЗАТО г. Зеленогорск от 26.12.2023 № 277-п «Об утверждении перечней главных администраторов доходов местного бюджета и главных администраторов источников финансирования дефицита местного бюджета города Зеленогорска» Постановление Администрации ЗАТО г. Зеленогорск от 24.05.2024 № 121-п О внесении изменений в постановление Администрации ЗАТО г. Зеленогорск от 05.06.2023 № 106-п «Об утверждении Примерного положения об оплате труда работников муниципальных бюджетных и казенных учреждений города Зеленогорска, находящихся в ведении Управления образования Администрации ЗАТО г. Зеленогорск» Постановление Администрации ЗАТО г. Зеленогорск от 23.05.2024 № 120-п О внесении изменений в муниципальную программу «Защита населения и территории города Зеленогорска от чрезвычайных ситуаций природного и техногенного характера», утвержденную постановлением Администрации ЗАТО г. Зеленогорска от 23.12.2021 № 208-п Постановление Администрации ЗАТО г. Зеленогорск от 17.05.2024 № 118-п О внесении изменений в постановление Администрации ЗАТО г. Зеленогорска от 30.03.2022 № 59-п «Об утверждении краткосрочного плана реализации региональной программы капитального ремонта общего имущества в многоквартирных домах, расположенных на территории города Зеленогорска, на 2023 - 2025 годы» Постановление Администрации ЗАТО г. Зеленогорск от 17.05.2024 № 116-п О внесении изменений в постановление Администрации ЗАТО г. Зеленогорск от 05.03.2024 № 52-п «Об утверждении Порядка использования бюджетных ассигнований резервного фонда Администрации ЗАТО г. Зеленогорск» Постановление Администрации ЗАТО г. Зеленогорск от 17.05.2024 № 115-п О внесении изменений в постановление Администрации ЗАТО г. Зеленогорска от 28.06.2021 № 85-п «О возложении на МКУ «Центр закупок, предпринимательства и обеспечения деятельности ОМС» полномочий отдельных заказчиков в сфере закупок товаров, работ, услуг для обеспечения муниципальных нужд» Постановление Администрации ЗАТО г. Зеленогорск от 17.05.2024 № 117-п О внесении изменений в Примерное положение об оплате труда работников муниципальных бюджетных учреждений города Зеленогорска, осуществляющих деятельность в сфере молодежной политики, находящихся в ведении Муниципального казенного учреждения «Комитет по делам культуры и молодежной политики города Зеленогорска», утвержденное постановлением Администрации ЗАТО г. Зеленогорска от 21.12.2016 № 358-п Постановление Администрации ЗАТО г. Зеленогорск от 17.05.2024 № 114-п О подготовке к отопительному периоду 2024 - 2025 годов Распоряжение Администрации ЗАТО г. Зеленогорск от 15.05.2024 № 815-р О проведении капитального ремонта общего имущества в многоквартирных домах, расположенных на территории города Зеленогорск, собственники помещений в которых не приняли решение о проведении такого ремонта, в 2024 – 2025 годах Постановление Администрации ЗАТО г. Зеленогорск от 15.05.2024 № 113-п Об утверждении Положения о комиссии по соблюдению требований к служебному поведению муниципальных служащих и урегулированию конфликтов интересов муниципальных служащих, руководителей муниципальных учреждений и предприятий Постановление Администрации ЗАТО г. Зеленогорск от 15.05.2024 № 112-п О внесении изменений в постановление Администрации ЗАТО г. Зеленогорска от 20.12.2021 № 205-п «Об утверждении муниципальной программы «Реформирование и модернизация жилищно-коммунального хозяйства и повышение энергетической эффективности в городе Зеленогорске» Распоряжение Администрации ЗАТО г. Зеленогорск от 15.05.2024 № 810-р О внесении изменений в распоряжение Администрации ЗАТО г. Зеленогорск от 12.05.2023 № 760-р «Об утверждении Перечня муниципального имущества, свободного от прав третьих лиц (за исключением имущественных прав субъектов малого и среднего предпринимательства) и предназначенного для предоставления субъектам малого и среднего предпринимательства» Распоряжение Администрации ЗАТО г. Зеленогорск от 13.05.2024 № 795-р Об окончании отопительного периода 2023-2024 годов Постановление Администрации ЗАТО г. Зеленогорск от 08.05.2024 № 110-п О внесении изменений в постановление Администрации ЗАТО г. Зеленогорска от 14.10.2021 № 124-п «Об утверждении Порядка и Нормативов расходования средств местного бюджета города Зеленогорска на финансовое обеспечение официальных физкультурных и спортивных мероприятий» Постановление Администрации ЗАТО г. Зеленогорск от 07.05.2024 № 109-п О переименовании Муниципального бюджетного общеобразовательного учреждения «Средняя общеобразовательная школа № 163» Постановление Администрации ЗАТО г. Зеленогорск от 06.05.2024 № 108-п Об утверждении проекта межевания территории применительно к территории, расположенной в границах функциональной зоны «Больничный городок» Распоряжение Администрации ЗАТО г. Зеленогорск от 06.05.2024 № 765-р О подготовке проекта решения Совета депутатов ЗАТО г. Зеленогорск «О внесении изменений в местные нормативы градостроительного проектирования г. Зеленогорска, утвержденные решением Совета депутатов ЗАТО г. Зеленогорска от 20.02.2020 № 18-77р» Постановление Администрации ЗАТО г. Зеленогорск от 03.05.2024 № 107-п О внесении изменений в постановление Администрации ЗАТО г. Зеленогорск от 26.12.2023 № 277-п «Об утверждении перечней главных администраторов доходов местного бюджета и главных администраторов источников финансирования дефицита местного бюджета города Зеленогорска» Постановление Администрации ЗАТО г. Зеленогорск от 03.05.2024 № 106-п О внесении изменений в постановление Администрации ЗАТО г. Зеленогорск от 12.01.2023 № 9-п «О видах обязательных работ, объектах, на которых они отбываются, и местах, в которых отбываются исправительные работы» Постановление Администрации ЗАТО г. Зеленогорск от 23.04.2024 № 102-п О внесении изменений в постановление Администрации ЗАТО г. Зеленогорска от 30.03.2022 № 59-п «Об утверждении краткосрочного плана реализации региональной программы капитального ремонта общего имущества в многоквартирных домах, расположенных на территории города Зеленогорска, на 2023 - 2025 годы» Постановление Администрации ЗАТО г. Зеленогорск от 26.04.2024 № 105-п О внесении изменений в Примерное положение об оплате труда работников муниципальных бюджетных и казенных учреждений, находящихся в ведении Муниципального казенного учреждения «Комитет по делам физической культуры и спорта г. Зеленогорска», утвержденное постановлением Администрации ЗАТО г. Зеленогорск от 13.06.2023 № 111-п Постановление Администрации ЗАТО г. Зеленогорск от 25.04.2024 № 104-п О внесении изменений в постановление Администрации ЗАТО г. Зеленогорска от 23.09.2019 № 165-п «Об утверждении показателей эффективности деятельности муниципальных бюджетных учреждений, находящихся в ведении МКУ «КФиС» Постановление Администрации ЗАТО г. Зеленогорск от 25.04.2024 № 103-п О реализации пункта 4 статьи 78.5 Бюджетного кодекса Российской Федерации Постановление Администрации ЗАТО г. Зеленогорск от 22.04.2024 № 98-п Об утверждении Административного регламента предоставления муниципальной услуги «Согласование местоположения границ земельного участка при проведении кадастровых работ» Постановление Администрации ЗАТО г. Зеленогорск от 23.04.2024 № 101-п О внесении изменений в постановление Администрации ЗАТО г. Зеленогорск от 12.01.2023 № 9-п «О видах обязательных работ, объектах, на которых они отбываются, и местах, в которых отбываются исправительные работы» Постановление Администрации ЗАТО г. Зеленогорск от 23.04.2024 № 99-п О внесении изменений в постановление Администрации ЗАТО г. Зеленогорск от 15.02.2024 № 35-п «О внесении изменений в постановление Администрации ЗАТО г. Зеленогорск от 12.01.2023 № 9-п «О видах обязательных работ, объектах, на которых они отбываются, и местах, в которых отбываются исправительные работы» Постановление Администрации ЗАТО г. Зеленогорск от 23.04.2024 № 100-п О внесении изменений в постановление Администрации ЗАТО г. Зеленогорска от 20.12.2021 № 205-п «Об утверждении муниципальной программы «Реформирование и модернизация жилищно-коммунального хозяйства и повышение энергетической эффективности в городе Зеленогорске» Постановление Администрации ЗАТО г. Зеленогорск от 19.04.2024 № 97-п О временном прекращении движения транспортных средств на участках автомобильных дорог общего пользования местного значения города Зеленогорска Постановление Администрации ЗАТО г. Зеленогорск от 19.04.2024 № 96-п О временном прекращении движения транспортных средств на участках автомобильных дорог общего пользования местного значения города Зеленогорска Постановление Администрации ЗАТО г. Зеленогорск от 19.04.2024 № 95-п О внесении изменений в постановление Администрации ЗАТО г. Зеленогорск от 23.06.2023 № 119-п «Об организации оказания муниципальных услуг в социальной сфере при формировании муниципального социального заказа на оказание муниципальных услуг в социальной сфере на территории города Зеленогорска» Распоряжение Администрации ЗАТО г. Зеленогорск от 17.04.2024 № 637-р О подготовке к весенне-летнему пожароопасному сезону на территории г. Зеленогорска в 2024 году Постановление Администрации ЗАТО г. Зеленогорск от 17.04.2024 № 94-п О внесении изменений в постановление Администрации ЗАТО г. Зеленогорска от 13.12.2021 № 195-п «Об утверждении муниципальной программы «Развитие образования в городе Зеленогорске» Распоряжение Администрации ЗАТО г. Зеленогорск от 15.04.2024 № 619-р О проведении общегородского месячника по наведению санитарного порядка и благоустройству территории города Зеленогорска Постановление Администрации ЗАТО г. Зеленогорск от 15.04.2024 № 93-п Об утверждении отчета об исполнении местного бюджета города Зеленогорска за первый квартал 2024 года Постановление Администрации ЗАТО г. Зеленогорск от 15.04.2024 № 92-п О внесении изменений в постановление Администрации ЗАТО г. Зеленогорск от 05.06.2023 № 106-п «Об утверждении Примерного положения об оплате труда работников муниципальных бюджетных и казенных учреждений города Зеленогорска, находящихся в ведении Управления образования Администрации ЗАТО г. Зеленогорск» Постановление Администрации ЗАТО г. Зеленогорск от 15.04.2024 № 91-п О внесении изменений в муниципальную программу «Обеспечение жильем молодых семей в городе Зеленогорске», утвержденную постановлением Администрации ЗАТО г. Зеленогорск от 22.01.2024 № 13-п Постановление Администрации ЗАТО г. Зеленогорск от 15.04.2024 № 90-п Об утверждении Порядка демонтажа нестационарных торговых объектов, размещенных на территории города Зеленогорска Постановление Администрации ЗАТО г. Зеленогорск от 12.04.2024 № 89-п Об утверждении Административного регламента предоставления муниципальной услуги «Отнесение земель или земельных участков в составе таких земель к определенной категории земель или перевод земель или земельных участков в составе таких земель из одной категории в другую категорию» Постановление Администрации ЗАТО г. Зеленогорск от 12.04.2024 № 88-п О подготовке населения города Зеленогорска в области гражданской обороны и защиты от чрезвычайных ситуаций природного и техногенного характера Распоряжение Администрации ЗАТО г. Зеленогорск от 11.04.2024 № 599-р О внесении изменений в распоряжение Администрации ЗАТО г. Зеленогорск от 30.03.2023 № 488-р «Об утверждении состава и Порядка работы межведомственной комиссии по вопросам реабилитации или абилитации детей-инвалидов, психолого-педагогического и медико-социального сопровождения детей с ограниченными возможностями здоровья» Постановление Администрации ЗАТО г. Зеленогорск от 11.04.2024 № 87-п О внесении изменений в Примерное положение об оплате труда работников муниципальных бюджетных учреждений города Зеленогорска, находящихся в ведении Отдела городского хозяйства Администрации ЗАТО г. Зеленогорск, утвержденное постановлением Администрации ЗАТО г. Зеленогорск от 22.05.2023 № 92-п Постановление Администрации ЗАТО г. Зеленогорск от 10.04.2024 № 86-п Об организации мероприятий, направленных на поддержку участников специальной военной операции и членов их семей Постановление Администрации ЗАТО г. Зеленогорск от 10.04.2024 № 85-п Об определении средней рыночной стоимости одного квадратного метра общей площади жилого помещения на территории города Зеленогорска на II квартал 2024 года Распоряжение Администрации ЗАТО г. Зеленогорск от 10.04.2024 № 590-р Об утверждении плана-графика мероприятий по осуществлению государственной регистрации права собственности муниципального образования на объекты недвижимого имущества, поставленные на государственный кадастровый учет и назначении лиц, ответственных за реализацию плана-графика Распоряжение Администрации ЗАТО г. Зеленогорск от 09.04.2024 № 575-р О внесении изменений в распоряжение Администрации ЗАТО г. Зеленогорск от 10.02.2023 № 244-р «Об антинаркотической комиссии г. Зеленогорска» Распоряжение Администрации ЗАТО г. Зеленогорск от 09.04.2024 № 574-р О внесении изменений в распоряжение Администрации ЗАТО г. Зеленогорск от 08.02.2023 № 226-р «Об утверждении Положения и состава межведомственной комиссии по профилактике правонарушений на территории города Зеленогорска» Постановление Администрации ЗАТО г. Зеленогорск от 09.04.2024 № 84-п О внесении изменений в постановление Администрации ЗАТО г. Зеленогорска от 13.12.2021 № 193-п «Об утверждении муниципальной программы «Охрана окружающей среды и защита городских лесов на территории города Зеленогорска» Постановление Администрации ЗАТО г. Зеленогорск от 09.04.2024 № 83-п О внесении изменений в муниципальную программу «Формирование современной городской среды в городе Зеленогорске», утвержденную постановлением Администрации ЗАТО г. Зеленогорска от 31.10.2017 № 257-п Постановление Администрации ЗАТО г. Зеленогорск от 08.04.2024 № 81-п О внесении изменений в Примерное положение об оплате труда работников муниципальных казенных учреждений по сопровождению деятельности органов местного самоуправления, находящихся в ведении Комитета по управлению имуществом Администрации ЗАТО г. Зеленогорск, утвержденное постановлением Администрации ЗАТО г. Зеленогорск от 12.01.2024 № 6-п Постановление Администрации ЗАТО г. Зеленогорск от 08.04.2024 № 80-п О внесении изменений в Примерное положение об оплате труда работников муниципальных казенных учреждений по сопровождению деятельности органов местного самоуправления, наделенных полномочиями главных распорядителей средств местного бюджета, утвержденное постановлением Администрации ЗАТО г. Зеленогорск от 12.01.2024 № 5-п Постановление Администрации ЗАТО г. Зеленогорск от 08.04.2024 № 79-п О внесении изменений в Примерное положение об оплате труда работников муниципальных казенных учреждений по сопровождению деятельности органов местного самоуправления, находящихся в ведении Администрации ЗАТО г. Зеленогорск, утвержденное постановлением Администрации ЗАТО г. Зеленогорск от 12.01.2024 № 3-п Постановление Администрации ЗАТО г. Зеленогорск от 08.04.2024 № 78-п О внесении изменений в Примерное положение об оплате труда работников муниципальных казенных учреждений по сопровождению деятельности органов местного самоуправления, находящихся в ведении Отдела городского хозяйства Администрации ЗАТО г. Зеленогорск, утвержденное постановлением Администрации ЗАТО г. Зеленогорск от 12.01.2024 № 4-п Постановление Администрации ЗАТО г. Зеленогорск от 08.04.2024 № 82-п О внесении изменений в Примерное положение об оплате труда работников муниципальных бюджетных и казенных учреждений, находящихся в ведении Муниципального казенного учреждения «Комитет по делам физической культуры и спорта г. Зеленогорска», утвержденное постановлением Администрации ЗАТО г. Зеленогорск от 13.06.2023 № 111-п Распоряжение Администрации ЗАТО г. Зеленогорск от 08.04.2024 № 572-р Об утверждении перечня объектов недвижимости, требующих постановки на государственный кадастровый учет с одновременной регистрацией права муниципальной собственности, и назначении лиц, ответственных за реализацию мероприятий Распоряжение Администрации ЗАТО г. Зеленогорск от 05.04.2024 № 550-р О внесении изменений в распоряжение Администрации ЗАТО г. Зеленогорск от 21.11.2023 № 1869-р «Об утверждении Плана проведения плановых проверок при осуществлении ведомственного контроля за соблюдением трудового законодательства и иных нормативных правовых актов, содержащих нормы трудового права, на 2024 год» Постановление Администрации ЗАТО г. Зеленогорск от 05.04.2024 № 77-п Об утверждении Порядка предоставления субсидий субъектам малого и среднего предпринимательства, а также физическим лицам, применяющим специальный налоговый режим «Налог на профессиональный доход», в целях возмещения части затрат при осуществлении предпринимательской деятельности Постановление Администрации ЗАТО г. Зеленогорск от 01.04.2024 № 76-п О внесении изменений в постановление Администрации ЗАТО г. Зеленогорск от 26.12.2023 № 277-п «Об утверждении перечней главных администраторов доходов местного бюджета и главных администраторов источников финансирования дефицита местного бюджета города Зеленогорска» Постановление Администрации ЗАТО г. Зеленогорск от 29.03.2024 № 75-п О внесении изменений в Примерное положение об оплате труда работников муниципальных учреждений города Зеленогорска, находящихся в ведении Муниципального казенного учреждения «Комитет по делам культуры и молодежной политики города Зеленогорска», утвержденное постановлением Администрации ЗАТО г. Зеленогорск от 01.03.2023 № 40-п Постановление Администрации ЗАТО г. Зеленогорск от 29.03.2024 № 73-п О внесении изменений в Примерное положение об оплате труда работников муниципальных бюджетных учреждений города Зеленогорска, осуществляющих деятельность в сфере молодежной политики, находящихся в ведении Муниципального казенного учреждения «Комитет по делам культуры и молодежной политики города Зеленогорска», утвержденное постановлением Администрации ЗАТО г. Зеленогорска от 21.12.2016 № 358-п Постановление Администрации ЗАТО г. Зеленогорск от 29.03.2024 № 74-п О внесении изменений в Примерное положение об оплате труда работников муниципальных учреждений города Зеленогорска, находящихся в ведении Муниципального казенного учреждения «Комитет по делам культуры и молодежной политики города Зеленогорска», утвержденное постановлением Администрации ЗАТО г. Зеленогорск от 01.03.2023 № 40-п Распоряжение Администрации ЗАТО г. Зеленогорск от 25.03.2024 № 483-р О внесении изменений в распоряжение Администрации ЗАТО г. Зеленогорск от 29.09.2023 № 1566-р «О муниципальной сети образовательных учреждений г. Зеленогорска на 2023 – 2024 учебный год» Постановление Администрации ЗАТО г. Зеленогорск от 26.03.2024 № 71-п О внесении изменений в муниципальную программу «Развитие физической культуры и спорта в городе Зеленогорске», утвержденную постановлением Администрации ЗАТО г. Зеленогорска от 09.12.2021 № 190-п Постановление Администрации ЗАТО г. Зеленогорск от 27.03.2024 № 72-п О внесении изменений в Положение о системе оплаты труда работников муниципальных учреждений города Зеленогорска, утвержденное постановлением Администрации ЗАТО г. Зеленогорска от 12.04.2021 № 46-п Постановление Администрации ЗАТО г. Зеленогорск от 25.03.2024 № 70-п О признании утратившим силу постановления Администрации ЗАТО г. Зеленогорска от 20.10.2021 № 152-п «Об утверждении проекта планировки территории и проекта межевания территории в отношении территории квартала № 8 города Зеленогорска» Постановление Администрации ЗАТО г. Зеленогорск от 22.03.2024 № 69-п О признании утратившим силу постановления Администрации ЗАТО г. Зеленогорска от 20.10.2021 № 151-п «Об утверждении проекта планировки территории и проекта межевания территории в отношении территории квартала № 4 города Зеленогорска» Постановление Администрации ЗАТО г. Зеленогорск от 22.03.2024 № 68-п Об установлении тарифов на платные физкультурно-оздоровительные услуги, оказываемые МБУ «Спортивный комплекс» Распоряжение Администрации ЗАТО г. Зеленогорск от 20.03.2024 № 466-р О противопаводковых мероприятиях в 2024 году Постановление Администрации ЗАТО г. Зеленогорск от 20.03.2024 № 67-п Об утверждении Правил выдачи единого социального сертификата на получение двух и более муниципальных услуг в социальной сфере, отнесенных к полномочиям органов местного самоуправления города Зеленогорска Распоряжение Администрации ЗАТО г. Зеленогорск от 18.03.2024 № 440-р Об организации отдыха детей и их оздоровления в летний период 2024 года Постановление Администрации ЗАТО г. Зеленогорск от 18.03.2024 № 66-п О внесении изменений в муниципальную программу «Развитие транспортной системы в городе Зеленогорске», утвержденную постановлением Администрации ЗАТО г. Зеленогорска от 20.12.2021 № 202-п Распоряжение Администрации ЗАТО г. Зеленогорск от 18.03.2024 № 441-р Об организации работы телефона «Горячая линия» по вопросам охраны труда Постановление Администрации ЗАТО г. Зеленогорск от 18.03.2024 № 65-п О внесении изменений в муниципальную программу «Муниципальное имущество и земельные ресурсы города Зеленогорска», утвержденную постановлением Администрации ЗАТО г. Зеленогорска от 20.12.2021 № 201-п Постановление Администрации ЗАТО г. Зеленогорск от 18.03.2024 № 64-п О внесении изменений в муниципальную программу «Гражданское общество – закрытое административно-территориальное образование Зеленогорск», утвержденную постановлением Администрации ЗАТО г. Зеленогорска от 06.12.2021 № 186-п Постановление Администрации ЗАТО г. Зеленогорск от 15.03.2024 № 63-п О внесении изменений в Примерное положение об оплате труда работников муниципальных бюджетных учреждений города Зеленогорска, находящихся в ведении Отдела городского хозяйства Администрации ЗАТО г. Зеленогорск, утвержденное постановлением Администрации ЗАТО г. Зеленогорск от 22.05.2023 № 92-п Постановление Администрации ЗАТО г. Зеленогорск от 12.03.2024 № 60-п Об утверждении Порядка формирования и ведения реестра источников доходов местного бюджета города Зеленогорска Постановление Администрации ЗАТО г. Зеленогорск от 12.03.2024 № 61-п О признании утратившим силу постановления Администрации ЗАТО г. Зеленогорска Постановление Администрации ЗАТО г. Зеленогорск от 12.03.2024 № 62-п О внесении изменений в муниципальную программу «Управление муниципальными финансами города Зеленогорска», утвержденную постановлением Администрации ЗАТО г. Зеленогорска от 25.11.2021 № 171-п Постановление Администрации ЗАТО г. Зеленогорск от 12.03.2024 № 58-п О внесении изменений в постановление Администрации ЗАТО г. Зеленогорск от 12.07.2023 № 143-п «Об утверждении Порядка предоставления субсидии юридическим лицам, индивидуальным предпринимателям, физическим лицам – производителям товаров, работ, услуг на оплату соглашения о возмещении затрат, связанных с оказанием муниципальных услуг в социальной сфере в соответствии с социальным сертификатом на получение муниципальной услуги в социальной сфере» Постановление Администрации ЗАТО г. Зеленогорск от 11.03.2024 № 57-п О внесении изменений в постановление Администрации ЗАТО г. Зеленогорск от 12.07.2023 № 142-п «Об утверждении Порядка предоставления субсидии юридическим лицам, индивидуальным предпринимателям, физическим лицам – производителям товаров, работ, услуг на оплату соглашения о финансовом обеспечении затрат, связанных с оказанием муниципальных услуг в социальной сфере в соответствии с социальным сертификатом на получение муниципальной услуги в социальной сфере» Постановление Администрации ЗАТО г. Зеленогорск от 12.03.2024 № 59-п О присвоении категорий автомобильным дорогам общего пользования местного значения города Зеленогорска Распоряжение Администрации ЗАТО г. Зеленогорск от 12.03.2024 № 421-р Об утверждении перечня объектов недвижимости, требующих осуществления государственной регистрации права муниципальной собственности и сводного плана-графика по государственной регистрации права муниципальной собственности Постановление Администрации ЗАТО г. Зеленогорск от 11.03.2024 № 56-п О переименовании объекта спорта «Дворец спорта «Олимпиец» Распоряжение Администрации ЗАТО г. Зеленогорск от 06.03.2024 № 390-р О начале приема от населения предложений и об обсуждении с населением предлагаемых мероприятий по реализации проекта и функций общественной территории «Городской сквер» в районе ул. Парковая, д. 14А, определенной для участия во Всероссийском конкурсе лучших проектов создания комфортной городской среды Постановление Администрации ЗАТО г. Зеленогорск от 05.03.2024 № 55-п О внесении изменений в постановление Администрации ЗАТО г. Зеленогорск от 12.07.2023 № 144-п «Об утверждении Порядка формирования муниципальных социальных заказов на оказание муниципальных услуг в социальной сфере, отнесенных к полномочиям органов местного самоуправления города Зеленогорска, формы отчета об их исполнении» Постановление Администрации ЗАТО г. Зеленогорск от 05.03.2024 № 54-п О внесении изменений в постановление Администрации ЗАТО г. Зеленогорск от 07.07.2023 № 138-п «О некоторых мерах правового регулирования вопросов, связанных с оказанием муниципальной услуги «Реализация дополнительных общеразвивающих программ» в соответствии с социальными сертификатами» Постановление Администрации ЗАТО г. Зеленогорск от 05.03.2024 № 53-п О внесении изменений в постановление Администрации ЗАТО г. Зеленогорск от 05.07.2023 № 136-п «Об утверждении Правил заключения в электронной форме и подписания усиленной квалифицированной электронной подписью лица, имеющего право действовать от имени соответственно уполномоченного органа, исполнителя муниципальных услуг в социальной сфере, соглашений о финансовом обеспечении (возмещении) затрат, связанных с оказанием муниципальных услуг в социальной сфере в соответствии с социальным сертификатом на получение муниципальной услуги в социальной сфере» Постановление Администрации ЗАТО г. Зеленогорск от 05.03.2024 № 52-п Об утверждении Порядка использования бюджетных ассигнований резервного фонда Администрации ЗАТО г. Зеленогорск Постановление Администрации ЗАТО г. Зеленогорск от 05.03.2024 № 51-п О внесении изменений в Примерное положение об оплате труда работников муниципальных казенных учреждений по сопровождению деятельности органов местного самоуправления, находящихся в ведении Администрации ЗАТО г. Зеленогорск, утвержденное постановлением Администрации ЗАТО г. Зеленогорск от 12.01.2024 № 3-п Постановление Администрации ЗАТО г. Зеленогорск от 01.03.2024 № 50-п Об установлении размеров восстановительной стоимости за вырубку или уничтожение зеленых насаждений на территории г. Зеленогорска Постановление Администрации ЗАТО г. Зеленогорск от 28.02.2024 № 48-п О внесении изменений в муниципальную программу «Развитие культуры города Зеленогорска», утвержденную постановлением Администрации ЗАТО г. Зеленогорска от 21.12.2021 № 206-п Распоряжение Администрации ЗАТО г. Зеленогорск от 01.03.2024 № 362-р О внесении изменений в распоряжение Администрации ЗАТО г. Зеленогорска от 13.10.2020 № 1691-р «Об утверждении состава и Положения о городской жилищной комиссии» Постановление Администрации ЗАТО г. Зеленогорск от 01.03.2024 № 49-п О внесении изменений в постановление Администрации ЗАТО г. Зеленогорск от 26.12.2023 № 277-п «Об утверждении перечней главных администраторов доходов местного бюджета и главных администраторов источников финансирования дефицита местного бюджета города Зеленогорска» Распоряжение Администрации ЗАТО г. Зеленогорск от 01.03.2024 № 369-р О внесении изменений в распоряжение Администрации ЗАТО г. Зеленогорск от 03.11.2023 № 1779-р «Об утверждении состава рабочей группы по вопросам регистрации (учета) избирателей, участников референдума» Постановление Администрации ЗАТО г. Зеленогорск от 27.02.2024 № 47-п Об утверждении Административного регламента предоставления муниципальной услуги «Выдача разрешений на право вырубки зеленых насаждений» Постановление Администрации ЗАТО г. Зеленогорск от 27.02.2024 № 46-п О закреплении муниципальных бюджетных образовательных учреждений г. Зеленогорска за конкретными территориями г. Зеленогорска Постановление Администрации ЗАТО г. Зеленогорск от 27.02.2024 № 45-п О внесении изменений в муниципальную программу «Развитие молодежной политики города Зеленогорска», утвержденную постановлением Администрации ЗАТО г. Зеленогорска от 27.12.2021 № 211-п Постановление Администрации ЗАТО г. Зеленогорск от 22.02.2024 № 44-п О внесении изменений в муниципальную программу «Капитальное строительство и капитальный ремонт в городе Зеленогорске», утвержденную постановлением Администрации ЗАТО г. Зеленогорска от 13.12.2021 № 197-п Постановление Администрации ЗАТО г. Зеленогорск от 15.02.2024 № 34-п О внесении изменений в постановление Администрации ЗАТО г. Зеленогорск от 15.11.2023 № 218-п «Об установлении норматива стоимости 1 кв. м общей площади жилья по г. Зеленогорску на 2024 год» Постановление Администрации ЗАТО г. Зеленогорск от 20.02.2024 № 43-п О признании утратившими силу отдельных муниципальных правовых актов г. Зеленогорска Распоряжение Администрации ЗАТО г. Зеленогорск от 20.02.2024 № 336-р О проведении голосования по отбору общественной территории г. Зеленогорска, подлежащей благоустройству в 2025 году Постановление Администрации ЗАТО г. Зеленогорск от 20.02.2024 № 41-п О внесении изменений в постановление Администрации ЗАТО г. Зеленогорска от 15.07.2011 № 258-п «О создании муниципального казенного учреждения путем изменения типа Муниципального учреждения «Комитета по охране окружающей среды» Постановление Администрации ЗАТО г. Зеленогорск от 20.02.2024 № 42-п О признании утратившими силу некоторых муниципальных правовых актов Постановление Администрации ЗАТО г. Зеленогорск от 19.02.2024 № 39-п Об определении порядка расчета нормативных затрат на оказание муниципальной услуги «Реализация дополнительных общеразвивающих программ» в соответствии с социальным сертификатом Постановление Администрации ЗАТО г. Зеленогорск от 19.02.2024 № 40-п О внесении изменений в постановление Администрации ЗАТО г. Зеленогорска от 23.12.2021 № 209-п «Об утверждении муниципальной программы «Обеспечение безопасности населения города Зеленогорска» Постановление Администрации ЗАТО г. Зеленогорск от 15.02.2024 № 33-п Об утверждении Перечня должностей муниципальной службы в Администрации ЗАТО г. Зеленогорск Постановление Администрации ЗАТО г. Зеленогорск от 16.02.2024 № 38-п О внесении изменений в Примерное положение об оплате труда работников муниципальных бюджетных и казенных учреждений, находящихся в ведении Муниципального казенного учреждения «Комитет по делам физической культуры и спорта», утвержденное постановлением Администрации ЗАТО г. Зеленогорск от 13.06.2023 № 111-п Постановление Администрации ЗАТО г. Зеленогорск от 14.02.2024 № 32-п О внесении изменений в постановление Администрации ЗАТО г. Зеленогорска от 21.02.2017 № 41-п «Об установлении квалификационных требований для замещения должностей муниципальной службы в Администрации ЗАТО г. Зеленогорска» Постановление Администрации ЗАТО г. Зеленогорск от 15.02.2024 № 35-п О внесении изменений в постановление Администрации ЗАТО г. Зеленогорск от 12.01.2023 № 9-п «О видах обязательных работ, объектах, на которых они отбываются, и местах, в которых отбываются исправительные работы» Постановление Администрации ЗАТО г. Зеленогорск от 15.02.2024 № 37-п Об утверждении Административного регламента предоставления муниципальной услуги «Предоставление движимого и недвижимого имущества, находящегося в муниципальной собственности, арендуемого субъектами малого и среднего предпринимательства при реализации ими преимущественного права на приобретение арендуемого имущества, в собственность» Постановление Администрации ЗАТО г. Зеленогорск от 15.02.2024 № 36-п О внесении изменений в муниципальную программу «Защита населения и территории города Зеленогорска от чрезвычайных ситуаций природного и техногенного характера», утвержденную постановлением Администрации ЗАТО г. Зеленогорска от 23.12.2021 № 208-п Постановление Администрации ЗАТО г. Зеленогорск от 07.02.2024 № 31-п Об утверждении Административного регламента предоставления муниципальной услуги «Предоставление нанимателю жилого помещения по договору социального найма жилого помещения меньшего размера взамен занимаемого жилого помещения» Постановление Администрации ЗАТО г. Зеленогорск от 07.02.2024 № 30-п О внесении изменений в Примерное положение об оплате труда работников муниципальных казенных учреждений по сопровождению деятельности органов местного самоуправления, находящихся в ведении Администрации ЗАТО г. Зеленогорск, утвержденное постановлением Администрации ЗАТО г. Зеленогорск от 12.01.2024 № 3-п Постановление Администрации ЗАТО г. Зеленогорск от 06.02.2024 № 28-п О внесении изменений в Административный регламент предоставления муниципальной услуги «Предоставление информации об объектах движимого и недвижимого имущества, находящихся в муниципальной собственности и предназначенных для сдачи в аренду», утвержденный постановлением Администрации ЗАТО г. Зеленогорск от 26.05.2023 № 96-п Постановление Администрации ЗАТО г. Зеленогорск от 06.02.2024 № 29-п О внесении изменений в постановление Администрации ЗАТО г. Зеленогорска от 21.05.2014 № 145-п «Об утверждении Порядка осуществления присмотра и ухода за детьми-инвалидами, детьми-сиротами и детьми, оставшимися без попечения родителей, а также за детьми с туберкулезной интоксикацией, обучающимися в муниципальных образовательных организациях г. Зеленогорска, реализующих образовательную программу дошкольного образования, без взимания родительской платы» Распоряжение Администрации ЗАТО г. Зеленогорск от 06.02.2024 № 233-р Об утверждении состава и Положения о координационном комитете содействия занятости населения города Зеленогорск Постановление Администрации ЗАТО г. Зеленогорск от 05.02.2024 № 25-п О внесении изменений в постановление Администрации ЗАТО г. Зеленогорска от 12.07.2011 № 248-п «Об утверждении Положения о проведении аттестации руководителей муниципальных образовательных учреждений» Распоряжение Администрации ЗАТО г. Зеленогорск от 06.02.2024 № 223-р О внесении изменений в распоряжение Администрации ЗАТО г. Зеленогорск от 11.08.2023 № 1300-р «Об утверждении Положения о порядке работы комиссии по оценке результативности деятельности руководителей муниципальных учреждений, состава комиссии по оценке результативности деятельности руководителей муниципальных учреждений и Порядка оформления учреждениями результатов выполнения критериев оценки результативности и качества деятельности и условий для установления руководителям учреждений размеров выплат стимулирующего характера» Постановление Администрации ЗАТО г. Зеленогорск от 05.02.2024 № 24-п О внесении изменений в постановление Администрации ЗАТО г. Зеленогорск от 07.04.2023 № 64-п «Об утверждении Порядка присуждения премий Главы ЗАТО г. Зеленогорск одаренным обучающимся муниципальных бюджетных образовательных учреждений г. Зеленогорска» Постановление Администрации ЗАТО г. Зеленогорск от 06.02.2024 № 26-п О внесении изменений в постановление Администрации ЗАТО г. Зеленогорск от 26.12.2023 № 277-п «Об утверждении перечней главных администраторов доходов местного бюджета и главных администраторов источников финансирования дефицита местного бюджета города Зеленогорска» Постановление Администрации ЗАТО г. Зеленогорск от 05.02.2024 № 21-п О признании утратившими силу некоторых постановлений Администрации ЗАТО г. Зеленогорска Постановление Администрации ЗАТО г. Зеленогорск от 05.02.2024 № 22-п О порядке исполнения на территории г. Зеленогорска государственных полномочий по предоставлению компенсации родителям (законным представителям) детей, посещающих образовательные организации, реализующие образовательную программу дошкольного образования Постановление Администрации ЗАТО г. Зеленогорск от 06.02.2024 № 27-п О порядке исполнения на территории г. Зеленогорска государственных полномочий по обеспечению бесплатным горячим питанием и бесплатным набором продуктов питания отдельных категорий обучающихся в муниципальных общеобразовательных организациях г. Зеленогорска Постановление Администрации ЗАТО г. Зеленогорск от 05.02.2024 № 23-п Об утверждении Перечня должностей муниципальной службы в Администрации ЗАТО г. Зеленогорск Постановление Администрации ЗАТО г. Зеленогорск от 05.02.2024 № 20-п "О внесении изменений в Проект организации дорожного движения на автомобильных дорогах общего пользования местного значения в г. Зеленогорске Красноярского края, утвержденный постановлением Администрации ЗАТО г. Зеленогорска от 21.08.2018 № 156-п" Распоряжение Администрации ЗАТО г. Зеленогорск от 01.02.2024 № 190-р О внесении изменений в распоряжение Администрации ЗАТО г. Зеленогорск от 23.03.2023 № 454-р «Об утверждении состава и Порядка работы комиссии по распределению путевок в загородные оздоровительные лагеря с частичной оплатой их стоимости» Распоряжение Администрации ЗАТО г. Зеленогорск от 01.02.2024 № 189-р О внесении изменений в распоряжение Администрации ЗАТО г. Зеленогорска от 25.02.2019 № 410-р «Об утверждении состава и Положения о порядке работы комиссии по снижению неформальной занятости, легализации «серой» заработной платы, повышению собираемости страховых взносов во внебюджетные фонды на территории города Зеленогорска» Постановление Администрации ЗАТО г. Зеленогорск от 01.02.2024 № 18-п О внесении изменений в постановление Администрации ЗАТО г. Зеленогорска от 21.02.2017 № 41-п «Об установлении квалификационных требований для замещения должностей муниципальной службы в Администрации ЗАТО г. Зеленогорска» Постановление Администрации ЗАТО г. Зеленогорск от 02.02.2024 № 19-п О выделении специальных мест для размещения печатных агитационных материалов на территории г. Зеленогорска в период подготовки и проведения выборов Президента Российской Федерации Распоряжение Администрации ЗАТО г. Зеленогорск от 31.01.2024 № 175-р Об утверждении состава и Порядка работы комиссии по определению внешнего вида зданий, строений, сооружений Распоряжение Администрации ЗАТО г. Зеленогорск от 31.01.2024 № 176-р О внесении изменений в распоряжение Администрации ЗАТО г. Зеленогорск от 16.11.2023 № 1857-р «Об утверждении состава и Порядка работы комиссии по размещению нестационарных торговых объектов» Распоряжение Администрации ЗАТО г. Зеленогорск от 31.01.2024 № 177-р О внесении изменений в распоряжение Администрации ЗАТО г. Зеленогорск от 05.07.2023 № 1077-р «Об утверждении состава и Порядка работы комиссии по разработке схем размещения рекламных конструкций» Распоряжение Администрации ЗАТО г. Зеленогорск от 29.01.2024 № 153-р Об участии во Всероссийском конкурсе лучших проектов создания комфортной городской среды Распоряжение Администрации ЗАТО г. Зеленогорск от 22.01.2024 № 75-р Об утверждении Положения и состава комиссии по вопросам формирования реестра муниципальных услуг Постановление Администрации ЗАТО г. Зеленогорск от 25.01.2024 № 16-п Об утверждении Порядка определения объема и условий предоставления муниципальным бюджетным и автономным учреждениям субсидий на иные цели Постановление Администрации ЗАТО г. Зеленогорск от 25.01.2024 № 17-п О внесении изменений в постановление Администрации ЗАТО г. Зеленогорск от 26.12.2023 № 277-п «Об утверждении перечней главных администраторов доходов местного бюджета и главных администраторов источников финансирования дефицита местного бюджета города Зеленогорска» Распоряжение Администрации ЗАТО г. Зеленогорск от 25.01.2024 № 139-р О внесении изменений в распоряжение Администрации ЗАТО г. Зеленогорск от 12.05.2023 № 760-р «Об утверждении Перечня муниципального имущества, свободного от прав третьих лиц (за исключением имущественных прав субъектов малого и среднего предпринимательства) и предназначенного для предоставления субъектам малого и среднего предпринимательства» Постановление Администрации ЗАТО г. Зеленогорск от 17.01.2024 № 8-п О временном прекращении движения транспортных средств на участке автомобильной дороги общего пользования местного значения города Зеленогорска Постановление Администрации ЗАТО г. Зеленогорск от 22.01.2024 № 13-п Об утверждении муниципальной программы «Обеспечение жильем молодых семей в городе Зеленогорске» Постановление Администрации ЗАТО г. Зеленогорск от 22.01.2024 № 12-п О внесении изменений в Проект организации дорожного движения на автомобильных дорогах общего пользования местного значения в г. Зеленогорске Красноярского края, утвержденный постановлением Администрации ЗАТО г. Зеленогорска от 21.08.2018 № 156-п Постановление Администрации ЗАТО г. Зеленогорск от 23.01.2024 № 14-п Об определении средней рыночной стоимости одного квадратного метра общей площади жилого помещения на территории города Зеленогорска на I квартал 2024 года Постановление Администрации ЗАТО г. Зеленогорск от 22.01.2024 № 9-п Об утверждении Положения о городском звене территориальной подсистемы единой государственной системы предупреждения и ликвидации чрезвычайных ситуаций ЗАТО город Зеленогорск Постановление Администрации ЗАТО г. Зеленогорск от 22.01.2024 № 10-п Об обеспечении первичных мер пожарной безопасности на территории ЗАТО город Зеленогорск Постановление Администрации ЗАТО г. Зеленогорск от 22.01.2024 № 11-п О внесении изменений в постановление Администрации ЗАТО г. Зеленогорск от 21.02.2023 № 33-п «Об установлении в общежитиях стоимости услуг по содержанию жилых помещений, принадлежащих на праве собственности муниципальному образованию город Зеленогорск Красноярского края» Распоряжение Администрации ЗАТО г. Зеленогорск от 18.01.2024 № 74-р О внесении изменений в распоряжение Администрации ЗАТО г. Зеленогорск от 21.11.2023 № 1869-р «Об утверждении Плана проведения плановых проверок при осуществлении ведомственного контроля за соблюдением трудового законодательства и иных нормативных правовых актов, содержащих нормы трудового права, на 2024 год» Постановление Администрации ЗАТО г. Зеленогорск от 12.01.2024 № 2-п О внесении изменений в постановление Администрации ЗАТО г. Зеленогорска от 06.12.2021 № 186-п «Об утверждении муниципальной программы «Гражданское общество – закрытое административно-территориальное образование Зеленогорск» Постановление Администрации ЗАТО г. Зеленогорск от 12.01.2024 № 6-п Об утверждении Примерного положения об оплате труда работников муниципальных казенных учреждений по сопровождению деятельности органов местного самоуправления, находящихся в ведении Комитета по управлению имуществом Администрации ЗАТО г. Зеленогорск Постановление Администрации ЗАТО г. Зеленогорск от 12.01.2024 № 5-п Об утверждении Примерного положения об оплате труда работников муниципальных казенных учреждений по сопровождению деятельности органов местного самоуправления, наделенных полномочиями главных распорядителей средств местного бюджета Постановление Администрации ЗАТО г. Зеленогорск от 12.01.2024 № 4-п Об утверждении Примерного положения об оплате труда работников муниципальных казенных учреждений по сопровождению деятельности органов местного самоуправления, находящихся в ведении Отдела городского хозяйства Администрации ЗАТО г. Зеленогорск Постановление Администрации ЗАТО г. Зеленогорск от 12.01.2024 № 3-п Об утверждении Примерного положения об оплате труда работников муниципальных казенных учреждений по сопровождению деятельности органов местного самоуправления, находящихся в ведении Администрации ЗАТО г. Зеленогорск Распоряжение Администрации ЗАТО г. Зеленогорск от 12.01.2024 № 24-р О внесении изменений в распоряжение Администрации ЗАТО г. Зеленогорска от 12.08.2019 № 1769-р «Об утверждении положения и состава комиссии по предупреждению и ликвидации чрезвычайных ситуаций и обеспечению пожарной безопасности города» Постановление Администрации ЗАТО г. Зеленогорск от 15.01.2024 № 7-п Об установлении стоимости гарантированного перечня услуг по погребению, предоставляемых МБУ КБУ Распоряжение Администрации ЗАТО г. Зеленогорск от 12.01.2024 № 9-р О внесении изменений в распоряжение Администрации ЗАТО г. Зеленогорска от 30.12.2021 № 2139-р «Об утверждении состава и Порядка работы комиссии по обеспечению безопасности дорожного движения» Постановление Администрации ЗАТО г. Зеленогорск от 12.01.2024 № 1-п О признании утратившими силу некоторых постановлений Администрации ЗАТО г. Зеленогорска Распоряжение Администрации ЗАТО г. Зеленогорск от 12.01.2024 № 8-р О внесении изменений в распоряжение Администрации ЗАТО г. Зеленогорска от 25.05.2016 № 994-р «Об утверждении Положения и состава балансовой комиссии» Распоряжение Администрации ЗАТО г. Зеленогорск от 11.01.2024 № 2-р О внесении изменений в распоряжение Администрации ЗАТО г. Зеленогорска от 24.03.2016 № 528-р «Об утверждении состава и Порядка работы комиссии по вопросам градостроительной деятельности и образованию земельных участков на территории г. Зеленогорска» Постановление Администрации ЗАТО г. Зеленогорск от 29.12.2023 № 292-п О внесении изменений в постановление Администрации ЗАТО г. Зеленогорск от 05.06.2023 № 106-п «Об утверждении Примерного положения об оплате труда работников муниципальных бюджетных и казенных учреждений города Зеленогорска, находящихся в ведении Управления образования Администрации ЗАТО г. Зеленогорск» Постановление Администрации ЗАТО г. Зеленогорск от 29.12.2023 № 293-п О внесении изменений в постановление Администрации ЗАТО г. Зеленогорска от 09.12.2021 № 190-п «Об утверждении муниципальной программы «Развитие физической культуры и спорта в городе Зеленогорске» Постановление Администрации ЗАТО г. Зеленогорск от 29.12.2023 № 291-п О внесении изменений в Примерное положение об оплате труда работников муниципальных бюджетных и казенных учреждений, находящихся в ведении МКУ «КФиС», утвержденное постановлением Администрации ЗАТО г. Зеленогорск от 13.06.2023 № 111-п Постановление Администрации ЗАТО г. Зеленогорск от 29.12.2023 № 290-п О внесении изменений в постановление Администрации ЗАТО г. Зеленогорска от 31.10.2017 № 257-п «Об утверждении муниципальной программы «Формирование современной городской среды в городе Зеленогорске» Постановление Администрации ЗАТО г. Зеленогорск от 28.12.2023 № 284-п О реорганизации МБДОУ д/с № 29 и МБДОУ д/с № 28 Постановление Администрации ЗАТО г. Зеленогорск от 28.12.2023 № 283-п О реорганизации МБДОУ д/с № 13 и МБДОУ д/с № 10 Постановление Администрации ЗАТО г. Зеленогорск от 29.12.2023 № 289-п О внесении изменений в постановление Администрации ЗАТО г. Зеленогорска от 20.12.2021 № 205-п «Об утверждении муниципальной программы «Реформирование и модернизация жилищно-коммунального хозяйства и повышение энергетической эффективности в городе Зеленогорске» Постановление Администрации ЗАТО г. Зеленогорск от 28.12.2023 № 286-п О внесении изменений в Примерное положение об оплате труда работников муниципальных бюджетных учреждений дополнительного образования города Зеленогорска, находящихся в ведении Муниципального казенного учреждения «Комитет по делам культуры и молодежной политики города Зеленогорска», утвержденное постановлением Администрации ЗАТО г. Зеленогорска от 23.03.2018 № 44-п Постановление Администрации ЗАТО г. Зеленогорск от 28.12.2023 № 285-п О внесении изменений в Примерное положение об оплате труда работников муниципальных бюджетных учреждений города Зеленогорска, осуществляющих деятельность в сфере молодежной политики, находящихся в ведении Муниципального казенного учреждения «Комитет по делам культуры и молодежной политики города Зеленогорска», утвержденное постановлением Администрации ЗАТО г. Зеленогорска от 21.12.2016 № 358-п Постановление Администрации ЗАТО г. Зеленогорск от 28.12.2023 № 287-п О внесении изменений в Примерное положение об оплате труда работников муниципальных учреждений города Зеленогорска, находящихся в ведении Муниципального казенного учреждения «Комитет по делам культуры и молодежной политики города Зеленогорска», утвержденное постановлением Администрации ЗАТО г. Зеленогорск от 01.03.2023 № 40-п Постановление Администрации ЗАТО г. Зеленогорск от 29.12.2023 № 288-п О средстве массовой информации, определенном в качестве официального периодического издания, осуществляющего публикацию муниципальных правовых актов Постановление Администрации ЗАТО г. Зеленогорск от 27.12.2023 № 280-п Об утверждении Программы «Профилактика безнадзорности и правонарушений несовершеннолетних на территории города Зеленогорска на 2024 – 2027 годы» Постановление Администрации ЗАТО г. Зеленогорск от 27.12.2023 № 281-п «О внесении изменений в постановление Администрации ЗАТО г. Зеленогорска от 23.12.2021 № 209-п «Об утверждении муниципальной программ «Обеспечение безопасности населения города Зеленогорска» Постановление Администрации ЗАТО г. Зеленогорск от 27.12.2023 № 278-п «О внесении изменений в постановление Администрации ЗАТО г. Зеленогорска от 13.12.2021 № 193-п «Об утверждении муниципальной программы «Охрана окружающей среды и защита городских лесов на территории города Зеленогорска» Постановление Администрации ЗАТО г. Зеленогорск от 27.12.2023 № 279-п «О внесении изменений в Примерное положение об оплате труда работников муниципальных бюджетных учреждений города Зеленогорска, находящихся в ведении Отдела городского хозяйства Администрации ЗАТО г. Зеленогорск, утвержденное постановлением Администрации ЗАТО г. Зеленогорск от 22.05.2023 № 92-п» Распоряжение Администрации ЗАТО г. Зеленогорск от 27.12.2023 № 2214-р О проведении конкурса на включение граждан в резерв управленческих кадров г. Зеленогорска на замещение должностей руководителей муниципальных бюджетных и казенных учреждений г. Зеленогорска, находящихся в ведении Муниципального казенного учреждения «Комитет по делам культуры и молодежной политики города Зеленогорска» Распоряжение Администрации ЗАТО г. Зеленогорск от 27.12.2023 № 2218-р О признании утратившими силу отдельных распоряжений Администрации ЗАТО г. Зеленогорска Распоряжение Администрации ЗАТО г. Зеленогорск от 27.12.2023 № 2215-р О создании рабочей группы по организации голосования по отбору общественной территории г. Зеленогорска, подлежащей благоустройству, с использованием информационно-телекоммуникационной сети «Интернет» Постановление Администрации ЗАТО г. Зеленогорск от 27.12.2023 № 282-п О создании административной комиссии города Зеленогорска Постановление Администрации ЗАТО г. Зеленогорск от 25.12.2023 № 276-п О внесении изменений в постановление Администрации ЗАТО г. Зеленогорска от 23.12.2021 № 208-п «Об утверждении муниципальной программы «Защита населения и территории города Зеленогорска от чрезвычайных ситуаций природного и техногенного характера» Постановление Администрации ЗАТО г. Зеленогорск от 26.12.2023 № 277-п Об утверждении перечней главных администраторов доходов местного бюджета и главных администраторов источников финансирования дефицита местного бюджета города Зеленогорска Распоряжение Администрации ЗАТО г. Зеленогорск от 25.12.2023 № 2176-р О создании Координационного совета по взаимодействию с российским движением детей и молодежи на территории города Зеленогорска Постановление Администрации ЗАТО г. Зеленогорск от 20.12.2023 № 266-п О внесении изменений в Примерное положение об оплате труда работников муниципальных бюджетных учреждений города Зеленогорска, находящихся в ведении Отдела городского хозяйства Администрации ЗАТО г. Зеленогорск, утвержденное постановлением Администрации ЗАТО г. Зеленогорск от 22.05.2023 № 92-п Постановление Администрации ЗАТО г. Зеленогорск от 25.12.2023 № 275-п О внесении изменений в постановление Администрации ЗАТО г. Зеленогорск от 08.12.2022 № 181-п «Об утверждении перечней главных администраторов доходов местного бюджета и главных администраторов источников финансирования дефицита местного бюджета города Зеленогорска» Постановление Администрации ЗАТО г. Зеленогорск от 21.12.2023 № 269-п О внесении изменений в постановление Администрации ЗАТО г. Зеленогорска от 14.10.2021 № 124-п «Об утверждении Порядка и Нормативов расходования средств местного бюджета города Зеленогорска на финансовое обеспечение официальных физкультурных и спортивных мероприятий» Постановление Администрации ЗАТО г. Зеленогорск от 21.12.2023 № 272-п Об утверждении видов оплачиваемых общественных работ, организуемых на территории города Зеленогорска в 2024 году Постановление Администрации ЗАТО г. Зеленогорск от 21.12.2023 № 273-п О внесении изменений в муниципальную программу «Развитие малого и среднего предпринимательства в городе Зеленогорске», утвержденную постановлением Администрации ЗАТО г. Зеленогорска от 13.12.2021 № 194-п Постановление Администрации ЗАТО г. Зеленогорск от 21.12.2023 № 271-п «О внесении изменений в постановление Администрации ЗАТО г. Зеленогорска от 27.12.2021 № 211-п «Об утверждении муниципальной программы «Развитие молодежной политики города Зеленогорска» Постановление Администрации ЗАТО г. Зеленогорск от 21.12.2023 № 274-п «О внесении изменений в постановление Администрации ЗАТО г. Зеленогорск от 08.12.2022 № 181-п «Об утверждении перечней главных администраторов доходов местного бюджета и главных администраторов источников финансирования дефицита местного бюджета города Зеленогорска» Постановление Администрации ЗАТО г. Зеленогорск от 21.12.2023 № 270-п «О внесении изменений в постановление Администрации ЗАТО г. Зеленогорска от 20.12.2021 № 202-п «Об утверждении муниципальной программы «Развитие транспортной системы в городе Зеленогорске» Постановление Администрации ЗАТО г. Зеленогорск от 20.12.2023 № 267-п «О создании и содержании в целях гражданской обороны запасов материально-технических, продовольственных, медицинских и иных средств на территории ЗАТО город Зеленогорск» Постановление Администрации ЗАТО г. Зеленогорск от 19.12.2023 № 260-п «О внесении изменений в постановление Администрации ЗАТО г. Зеленогорска от 01.02.2011 № 37-п «Об утверждении Порядка разработки и утверждения административных регламентов предоставления муниципальных услуг» Постановление Администрации ЗАТО г. Зеленогорск от 20.12.2023 № 268-п «О внесении изменений в Положение о системе оплаты труда работников муниципальных учреждений города Зеленогорска, утвержденное постановлением Администрации ЗАТО г. Зеленогорска от 12.04.2021 № 46-п» Постановление Администрации ЗАТО г. Зеленогорск от 19.12.2023 № 259-п «О внесении изменения в постановление Администрации ЗАТО г. Зеленогорск от 07.12.2023 № 237-п «Об утверждении реестра мест (площадок) накопления твердых коммунальных отходов, расположенных на территории города Зеленогорска» Постановление Администрации ЗАТО г. Зеленогорск от 19.12.2023 № 261-п «О внесении изменений в постановление Администрации ЗАТО г. Зеленогорска от 13.12.2021 № 197-п «Об утверждении муниципальной программы «Капитальное строительство и капитальный ремонт в городе Зеленогорске» Постановление Администрации ЗАТО г. Зеленогорск от 19.12.2023 № 262-п «О внесении изменений в постановление Администрации ЗАТО г. Зеленогорска от 21.12.2021 № 206-п «Об утверждении муниципальной программы «Развитие культуры города Зеленогорска» Постановление Администрации ЗАТО г. Зеленогорск от 19.12.2023 № 258-п «Об установлении тарифов на услуги автомобильного транспорта, оказываемые УМ АТП» Постановление Администрации ЗАТО г. Зеленогорск от 19.12.2023 № 265-п «Об определении территории, на которой планируется реализовать инициативный проект «Северный Олень» Постановление Администрации ЗАТО г. Зеленогорск от 19.12.2023 № 263-п «Об определении территории, на которой планируется реализовать инициативный проект по благоустройству спортивной площадки (корта) на дворовой территории многоквартирных домов по ул. Набережная, д. 50 и ул. Набережная, д. 52» Постановление Администрации ЗАТО г. Зеленогорск от 19.12.2023 № 264-п «Об определении территории, на которой планируется реализовать инициативный проект по устройству пешеходной дорожки в районе ул. Набережная, д. 46 и ул. Парковая, д. 16» Постановление Администрации ЗАТО г. Зеленогорск от 12.12.2023 № 250-п «Об утверждении Административного регламента предоставления муниципальной услуги «Предоставление жилого помещения по договору социального найма» Постановление Администрации ЗАТО г. Зеленогорск от 13.12.2023 № 257-п О внесении изменений в постановление Администрации ЗАТО г. Зеленогорска от 13.12.2021 № 195-п «Об утверждении муниципальной программы «Развитие образования в городе Зеленогорске» Постановление Администрации ЗАТО г. Зеленогорск от 13.12.2023 № 255-п О внесении изменений в постановление Администрации ЗАТО г. Зеленогорска от 06.04.2022 № 61-п «Об утверждении Порядка предоставления субсидий в целях возмещения недополученных доходов, возникающих в связи с оказанием услуг по содержанию жилых помещений муниципального жилищного фонда» Постановление Администрации ЗАТО г. Зеленогорск от 13.12.2023 № 254-п О внесении изменений в постановление Администрации ЗАТО г. Зеленогорска от 14.01.2022 № 6-п «Об утверждении Порядка предоставления субсидий в целях возмещения затрат в связи с оказанием услуг по содержанию жилых помещений и (или) предоставлением коммунальных услуг до заселения жилых помещений муниципального жилищного фонда» Постановление Администрации ЗАТО г. Зеленогорск от 11.12.2023 № 244-п О внесении изменений в постановление Администрации ЗАТО г. Зеленогорска от 16.05.2017 № 105-п «Об утверждении краткосрочного плана реализации региональной программы капитального ремонта общего имущества в многоквартирных домах, расположенных на территории города Зеленогорска, на 2017-2019 годы» Постановление Администрации ЗАТО г. Зеленогорск от 11.12.2023 № 243-п О внесении изменений в постановление Администрации ЗАТО г. Зеленогорска от 30.03.2022 № 59-п «Об утверждении краткосрочного плана реализации региональной программы капитального ремонта общего имущества в многоквартирных домах, расположенных на территории города Зеленогорска, на 2023 - 2025 годы» Распоряжение Администрации ЗАТО г. Зеленогорск от 14.12.2023 № 2071-р Об утверждении муниципальной рабочей группы Постановление Администрации ЗАТО г. Зеленогорск от 13.12.2023 № 253-п Об установлении режима работы муниципальных организаций, осуществляющих деятельность в сфере торговли, общественного питания и бытового обслуживания города Зеленогорска Постановление Администрации ЗАТО г. Зеленогорск от 13.12.2023 № 256-п Об утверждении Административного регламента предоставления муниципальной услуги «Передача гражданами приватизированного жилого помещения в муниципальную собственность» Распоряжение Администрации ЗАТО г. Зеленогорск от 11.12.2023 № 2054-р О внесении изменений в распоряжение Администрации ЗАТО г. Зеленогорска от 16.03.2017 № 536-р «Об утверждении состава комиссии по соблюдению требований к служебному поведению муниципальных служащих и урегулированию конфликтов интересов» Постановление Администрации ЗАТО г. Зеленогорск от 12.12.2023 № 252-п Об утверждении Административного регламента предоставления муниципальной услуги «Признание граждан малоимущими» Постановление Администрации ЗАТО г. Зеленогорск от 12.12.2023 № 248-п Об утверждении Административного регламента предоставления муниципальной услуги «Предоставление земельного участка, находящегося в муниципальной собственности, или государственная собственность на который не разграничена, на торгах» Постановление Администрации ЗАТО г. Зеленогорск от 12.12.2023 № 247-п Об утверждении Административного регламента предоставления муниципальной услуги «Выдача разрешения на использование земель или земельного участка, которые находятся в муниципальной собственности или государственная собственность на которые не разграничена, без предоставления земельных участков и установления сервитута, публичного сервитута» Постановление Администрации ЗАТО г. Зеленогорск от 12.12.2023 № 246-п Об утверждении Административного регламента предоставления муниципальной услуги «Установление публичного сервитута» Постановление Администрации ЗАТО г. Зеленогорск от 12.12.2023 № 249-п Об утверждении Административного регламента предоставления муниципальной услуги «Выплата компенсации части родительской платы за присмотр и уход за детьми в муниципальных образовательных организациях» Постановление Администрации ЗАТО г. Зеленогорск от 12.12.2023 № 251-п О внесении изменений в постановление Администрации ЗАТО г. Зеленогорска от 25.11.2021 № 171-п «Об утверждении муниципальной программы «Управление муниципальными финансами города Зеленогорска» Постановление Администрации ЗАТО г. Зеленогорск от 12.12.2023 № 245-п Об установлении тарифов на платные услуги и работы населению по обслуживанию жилищного фонда, оказываемые МУП ГЖКУ Распоряжение Администрации ЗАТО г. Зеленогорск от 12.12.2023 № 2060-р О введение режима функционирования "ПОВЫШЕННАЯ ГОТОВНОСТЬ" для органов управления и сил городского звена территориальной подсистемы РСЧС Постановление Администрации ЗАТО г. Зеленогорск от 08.12.2023 № 240-п Об утверждении Порядка привлечения остатков средств с казначейского счета муниципальных бюджетных и автономных учреждений на единый счет бюджета города Зеленогорска и возврата привлеченных средств Постановление Администрации ЗАТО г. Зеленогорск от 08.12.2023 № 241-п Об утверждении Административного регламента предоставления муниципальной услуги «Установление сервитута в отношении земельного участка, находящегося в муниципальной собственности или государственная собственность на который не разграничена» Постановление Администрации ЗАТО г. Зеленогорск от 08.12.2023 № 242-п О внесении изменений в постановление Администрации ЗАТО г. Зеленогорск от 08.12.2022 № 181-п «Об утверждении перечней главных администраторов доходов местного бюджета и главных администраторов источников финансирования дефицита местного бюджета города Зеленогорска» Постановление Администрации ЗАТО г. Зеленогорск от 08.12.2023 № 238-п О внесении изменений в постановление Администрации ЗАТО г. Зеленогорск от 30.11.2023 № 229-п «О внесении изменений в Примерное положение об оплате труда работников муниципальных бюджетных и казенных учреждений, находящихся в ведении МКУ «КФиС», утвержденное постановлением Администрации ЗАТО г. Зеленогорск от 13.06.2023 № 111-п» Постановление Администрации ЗАТО г. Зеленогорск от 08.12.2023 № 239-п О внесении изменений в постановление Администрации ЗАТО г. Зеленогорска от 20.12.2021 № 201-п «Об утверждении муниципальной программы «Муниципальное имущество и земельные ресурсы города Зеленогорска» Постановление Администрации ЗАТО г. Зеленогорск от 07.12.2023 № 237-п Об утверждении реестра мест (площадок) накопления твердых коммунальных отходов, расположенных на территории города Зеленогорска Постановление Администрации ЗАТО г. Зеленогорск от 06.12.2023 № 236-п Об установлении тарифа на услуги по вывозу жидких бытовых отходов, оказываемые Муниципальным унитарным предприятием тепловых сетей г.Зеленогорска Постановление Администрации ЗАТО г. Зеленогорск от 30.11.2023 № 235-п О внесении изменений в постановление Администрации ЗАТО г. Зеленогорска от 06.12.2021 № 186-п «Об утверждении муниципальной программы «Гражданское общество – закрытое административно-территориальное образование Зеленогорск» Постановление Администрации ЗАТО г. Зеленогорск от 30.11.2023 № 234-п О внесении изменений в постановление Администрации ЗАТО г. Зеленогорск от 08.12.2022 № 181-п «Об утверждении перечней главных администраторов доходов местного бюджета и главных администраторов источников финансирования дефицита местного бюджета города Зеленогорска» Постановление Администрации ЗАТО г. Зеленогорск от 30.11.2023 № 233-п Об утверждении Порядка привлечения остатков средств с казначейского счета муниципальных бюджетных и автономных учреждений на единый счет бюджета города Зеленогорска и возврата привлеченных средств Постановление Администрации ЗАТО г. Зеленогорск от 30.11.2023 № 232-п О признании утратившими силу некоторых постановлений Администрации ЗАТО г. Зеленогорска Распоряжение Администрации ЗАТО г. Зеленогорск от 06.12.2023 № 1983-р О внесении изменений в распоряжение Администрации ЗАТО г. Зеленогорск от 20.09.2022 № 1728-р «Об утверждении состава муниципальной комиссии по обследованию жилых помещений инвалидов и общего имущества в многоквартирных домах, в которых проживают инвалиды, в целях их приспособления с учетом потребностей инвалидов и обеспечения условий их доступности для инвалидов» Постановление Администрации ЗАТО г. Зеленогорск от 30.11.2023 № 229-п О внесении изменений в Примерное Положение об оплате труда работников муниципальных бюджетных и казенных учреждений, находящихся в ведении МКУ «КФиС», утвержденное постановлением Администрации ЗАТО г. Зеленогорск от 13.06.2023 № 111-п Постановление Администрации ЗАТО г. Зеленогорск от 30.11.2023 № 231-п Об установлении тарифов на платные услуги и работы населению по обслуживанию жилищного фонда, оказываемые МУП ГЖКУ Постановление Администрации ЗАТО г. Зеленогорск от 30.11.2023 № 230-п Об установлении режима работы муниципальных организаций, осуществляющих деятельность в сфере торговли, общественного питания и бытового обслуживания города Зеленогорска Постановление Администрации ЗАТО г. Зеленогорск от 30.11.2023 № 228-п О внесении изменений в постановление Администрации ЗАТО г. Зеленогорска от 21.12.2021 № 206-п «Об утверждении муниципальной программы «Развитие культуры города Зеленогорска» Постановление Администрации ЗАТО г. Зеленогорск от 24.11.2023 № 227-п О внесении изменений в постановление Администрации ЗАТО г. Зеленогорск от 30.06.2023 № 128-п «Об утверждении Административного регламента предоставления муниципальной услуги «Предоставление информации об объектах учета, содержащейся в реестре муниципального имущества» Постановление Администрации ЗАТО г. Зеленогорск от 23.11.2023 № 226-п О внесении изменений в постановление Администрации ЗАТО г. Зеленогорска от 11.01.2013 № 6-п «Об образовании избирательных участков на территории г. Зеленогорска и утверждении их границ для проведения голосования и подсчета голосов избирателей, участников референдума» Распоряжение Администрации ЗАТО г. Зеленогорск от 22.11.2023 № 1876-р О внесении изменений в распоряжение Администрации ЗАТО г. Зеленогорска от 11.02.2011 № 226-р «О создании комиссии по вопросам формирования реестра муниципальных услуг» Постановление Администрации ЗАТО г. Зеленогорск от 22.11.2023 № 225-п Об утверждении Сводного плана организации ярмарок на 2024 год Распоряжение Администрации ЗАТО г. Зеленогорск от 21.11.2023 № 1869-р Об утверждении Плана проведения плановых проверок при осуществлении ведомственного контроля за соблюдением трудового законодательства и иных нормативных правовых актов, содержащих нормы трудового права, на 2024 год Постановление Администрации ЗАТО г. Зеленогорск от 21.11.2023 № 224-п О внесении изменений в Порядок предоставления грантов в форме субсидий субъектам малого и среднего предпринимательства в целях финансового обеспечения части затрат на начало ведения предпринимательской деятельности, утвержденный постановлением Администрации ЗАТО г. Зеленогорск от 07.10.2022 № 154-п Постановление Администрации ЗАТО г. Зеленогорск от 20.11.2023 № 223-п О создании пунктов временного размещения пострадавшего населения, эвакуируемого (отселяемого) при угрозе и возникновении чрезвычайных ситуациях природного и техногенного характера, на территории ЗАТО город Зеленогорск Постановление Администрации ЗАТО г. Зеленогорск от 16.11.2023 № 222-п Об утверждении Административного регламента предоставления муниципальной услуги «Выдача разрешения (дубликата или копии разрешения) на право организации розничного рынка» Распоряжение Администрации ЗАТО г. Зеленогорск от 16.11.2023 № 1857-р Об утверждении состава и Порядка работы комиссии по размещению нестационарных торговых объектов Постановление Администрации ЗАТО г. Зеленогорск от 16.11.2023 № 221-п О внесении изменений в постановление Администрации ЗАТО г. Зеленогорск от 12.01.2023 № 9-п «О видах обязательных работ, объектах, на которых они отбываются, и местах, в которых отбываются исправительные работы» Постановление Администрации ЗАТО г. Зеленогорск от 15.11.2023 № 219-п Об утверждении Порядка допуска в здание Администрации ЗАТО г. Зеленогорск Постановление Администрации ЗАТО г. Зеленогорск от 15.11.2023 № 218-п Об установлении норматива стоимости 1 кв. м общей площади жилья по г. Зеленогорску на 2024 год Постановление Администрации ЗАТО г. Зеленогорск от 13.11.2023 № 217-п О внесении изменений в постановление Администрации ЗАТО г. Зеленогорска от 14.10.2021 № 124-п «Об утверждении Порядка и Нормативов расходования средств местного бюджета города Зеленогорска на финансовое обеспечение официальных физкультурных и спортивных мероприятий» Постановление Администрации ЗАТО г. Зеленогорск от 09.11.2023 № 213-п О создании административной комиссии города Зеленогорска Постановление Администрации ЗАТО г. Зеленогорск от 10.11.2023 № 216-п Об установлении тарифов на услуги помыва в общих отделениях бань МУП «Дельфин» Постановление Администрации ЗАТО г. Зеленогорск от 09.11.2023 № 214-п Об утверждении Порядка осуществления бюджетных полномочий главных администраторов доходов местного бюджета города Зеленогорска Распоряжение Администрации ЗАТО г. Зеленогорск от 08.11.2023 № 1797-р О внесении изменений в распоряжение Администрации ЗАТО г. Зеленогорска от 29.12.2018 № 2940-р «Об утверждении Положения и состава комиссии по оценке последствий принятия решений о реконструкции, модернизации, сдаче в аренду, передаче в безвозмездное пользование, об изменении назначения или о ликвидации объекта социальной инфраструктуры для детей, являющегося муниципальной собственностью г. Зеленогорска, а также о реорганизации или ликвидации муниципальных образовательных организаций, муниципальных организаций, образующих социальную инфраструктуру для детей г. Зеленогорска» Постановление Администрации ЗАТО г. Зеленогорск от 08.11.2023 № 212-п О внесении изменений в муниципальную программу «Развитие малого и среднего предпринимательства в городе Зеленогорске», утвержденную постановлением Администрации ЗАТО г. Зеленогорска от 13.12.2021 № 194-п Постановление Администрации ЗАТО г. Зеленогорск от 08.11.2023 № 211-п Об установлении размера платы за пользование жилым помещением (платы за наем) государственного или муниципального жилищного фонда Распоряжение Администрации ЗАТО г. Зеленогорск от 03.11.2023 № 1779-р Об утверждении состава рабочей группы по вопросам регистрации (учета) избирателей, участников референдума Распоряжение Администрации ЗАТО г. Зеленогорск от 03.11.2023 № 1780-р О внесении изменений в распоряжение Администрации ЗАТО г. Зеленогорска от 30.08.2021 № 1318-р «О создании комиссии по противодействию коррупции и утверждении Положения о порядке работы комиссии по противодействию коррупции» Постановление Администрации ЗАТО г. Зеленогорск от 02.11.2023 № 209-п О внесении изменений в постановление Администрации ЗАТО г. Зеленогорска от 15.09.2021 № 117-п «О Координационном совете в области развития малого и среднего предпринимательства» Постановление Администрации ЗАТО г. Зеленогорск от 31.10.2023 № 207-п О внесении изменений в постановление Администрации ЗАТО г. Зеленогорска от 21.03.2023 № 54-п «Об утверждении Положения и персонального состава комиссии по делам несовершеннолетних и защите их прав города Зеленогорска» Постановление Администрации ЗАТО г. Зеленогорск от 02.11.2023 № 210-п Об утверждении Положения о транспортном обеспечении эвакуационных мероприятий на территории ЗАТО город Зеленогорск Постановление Администрации ЗАТО г. Зеленогорск от 01.11.2023 № 208-п Об утверждении Положения о Единой дежурно-диспетчерской службе города Зеленогорска Постановление Администрации ЗАТО г. Зеленогорск от 23.10.2023 № 206-п Об утверждении Административного регламента предоставления муниципальной услуги «Выдача разрешения на ввод объекта в эксплуатацию» Постановление Администрации ЗАТО г. Зеленогорск от 23.10.2023 № 205-п Об утверждении Административного регламента предоставления муниципальной услуги «Выдача разрешения на строительство объекта капитального строительства (в том числе внесение изменений в разрешение на строительство объекта капитального строительства и внесение изменений в разрешение на строительство объекта капитального строительства в связи с продлением срока действия такого разрешения)» Постановление Администрации ЗАТО г. Зеленогорск от 23.10.2023 № 204-п Об утверждении Административного регламента предоставления муниципальной услуги «Выдача разрешения на размещение объектов, виды которых утверждены постановлением Правительства Российской Федерации, размещение которых может осуществляться на землях или земельных участках, находящихся в муниципальной собственности и государственная собственность которых не разграничена, за исключением размещения автомобильных дорог регионального или межмуниципального значения, без предоставления земельных участков и установления сервитутов» Распоряжение Администрации ЗАТО г. Зеленогорск от 20.10.2023 № 1692-р О внесении изменений в распоряжение Администрации ЗАТО г. Зеленогорск от 05.09.2022 № 1600-р «Об утверждении персонального состава общественной комиссии по развитию городской среды» Постановление Администрации ЗАТО г. Зеленогорск от 19.10.2023 № 203-п Об утверждении формы акта выявления бесхозяйного объекта теплоснабжения на территории города Зеленогорска Постановление Администрации ЗАТО г. Зеленогорск от 19.10.2023 № 202-п Об утверждении отчета об исполнении местного бюджета города Зеленогорска за девять месяцев 2023 года Постановление Администрации ЗАТО г. Зеленогорск от 17.10.2023 № 201-п О внесении изменений в постановление Администрации ЗАТО г. Зеленогорск от 07.12.2022 № 179-п «Об утверждении Порядка организации работы, связанной с реализацией Указа Губернатора Красноярского края от 25.10.2022 № 317-уг «О социально-экономических мерах поддержки лиц, принимающих (принимавших) участие в специальной военной операции, и членов их семей» в части освобождения от платы, взимаемой за присмотр и уход за детьми, осваивающими образовательные программы дошкольного образования в муниципальных образовательных организациях г. Зеленогорска» Постановление Администрации ЗАТО г. Зеленогорск от 17.10.2023 № 200-п О внесении изменений в постановление Администрации ЗАТО г. Зеленогорск от 26.05.2023 № 96-п «Об утверждении Административного регламента предоставления муниципальной услуги «Предоставление информации об объектах недвижимого имущества, находящихся в муниципальной собственности и предназначенных для сдачи в аренду, безвозмездное пользование, доверительное управление» Распоряжение Администрации ЗАТО г. Зеленогорск от 17.10.2023 № 1632-р О внесении изменений в распоряжение Администрации ЗАТО г. Зеленогорск от 29.09.2023 № 1566-р «О муниципальной сети образовательных учреждений г. Зеленогорска на 2023 – 2024 учебный год» Постановление Администрации ЗАТО г. Зеленогорск от 17.10.2023 № 199-п О внесении изменений в постановление Администрации ЗАТО г. Зеленогорск от 12.01.2023 № 9-п «О видах обязательных работ, объектах, на которых они отбываются, и местах, в которых отбываются исправительные работы» Распоряжение Администрации ЗАТО г. Зеленогорск от 17.10.2023 № 1629-р О внесении изменений в распоряжение Администрации ЗАТО г. Зеленогорск от 29.11.2022 № 2258-р «Об утверждении состава и Положения о порядке работы комиссии по оказанию поддержки субъектам малого и среднего предпринимательства» Распоряжение Администрации ЗАТО г. Зеленогорск от 16.10.2023 № 1621-р Об утверждении состава комиссии по обследованию жилых помещений, закрепленных за детьми-сиротами и детьми, оставшимися без попечения родителей, с целью их отнесения к жилым помещениям, нуждающимся в текущем ремонте Распоряжение Администрации ЗАТО г. Зеленогорск от 11.10.2023 № 1604-р О внесении изменений в распоряжение Администрации ЗАТО г. Зеленогорска от 14.04.2014 № 728-р «Об утверждении состава и Порядка работы территориальной психолого-медико-педагогической комиссии г. Зеленогорска» Постановление Администрации ЗАТО г. Зеленогорск от 12.10.2023 № 198-п Об установлении размера платы за содержание жилого помещения в многоквартирных домах для нанимателей жилых помещений государственного жилищного фонда, принадлежащего на праве собственности Российской Федерации Постановление Администрации ЗАТО г. Зеленогорск от 10.10.2023 № 197-п Об определении средней рыночной стоимости одного квадратного метра общей площади жилого помещения на территории города Зеленогорска на IV квартал 2023 года Распоряжение Администрации ЗАТО г. Зеленогорск от 29.09.2023 № 1566-р О муниципальной сети образовательных учреждений г. Зеленогорска на 2023 – 2024 учебный год Постановление Администрации ЗАТО г. Зеленогорск от 02.10.2023 № 196-п О внесении изменений в постановление Администрации ЗАТО г. Зеленогорск от 08.12.2022 № 181-п «Об утверждении перечней главных администраторов доходов местного бюджета и главных администраторов источников финансирования дефицита местного бюджета города Зеленогорска» Постановление Администрации ЗАТО г. Зеленогорск от 28.09.2023 № 194-п Об утверждении Порядка предоставления субсидий субъектам малого и среднего предпринимательства в целях возмещения части затрат в связи с реализацией инвестиционных проектов в приоритетных отраслях Распоряжение Администрации ЗАТО г. Зеленогорск от 26.09.2023 № 1531-р О подготовке граждан, подлежащих призыву на военную службу, по военно - учетным специальностям в 2022 - 2023 учебном году и задачах на 2023 - 2024 учебный год Распоряжение Администрации ЗАТО г. Зеленогорск от 25.09.2023 № 1512-р Об утверждении состава и Порядка работы муниципальной межведомственной комиссии по снижению задолженности по налогам и сборам Постановление Администрации ЗАТО г. Зеленогорск от 22.09.2023 № 193-п О начале отопительного периода 2023-2024 годов Постановление Администрации ЗАТО г. Зеленогорск от 22.09.2023 № 192-п Об утверждении Порядка использования населением объектов спорта, находящихся в муниципальной собственности г. Зеленогорска, в том числе спортивной инфраструктуры муниципальных образовательных организаций во внеучебное время Постановление Администрации ЗАТО г. Зеленогорск от 12.09.2023 № 190-п О внесении изменений в постановление Администрации ЗАТО г. Зеленогорск от 12.01.2023 № 9-п «О видах обязательных работ, объектах, на которых они отбываются, и местах, в которых отбываются исправительные работы» Распоряжение Администрации ЗАТО г. Зеленогорск от 08.09.2023 № 1444-р О внесении изменения в распоряжение Администрации ЗАТО г. Зеленогорск от 16.06.2022 № 1094-р «Об утверждении состава и Положения о работе комиссии по обследованию и осуществлению контроля за закрепленными жилыми помещениями» Распоряжение Администрации ЗАТО г. Зеленогорск от 05.09.2023 № 1419-р «О внесении изменений в распоряжение Администрации ЗАТО г. Зеленогорска от 14.04.2014 № 728-р «Об утверждении состава и Порядка работы территориальной психолого-медико-педагогической комиссии г. Зеленогорска» Постановление Администрации ЗАТО г. Зеленогорск от 06.09.2023 № 188-п «Об утверждении Порядка ведения реестра расходных обязательств города Зеленогорска» Распоряжение Администрации ЗАТО г. Зеленогорск от 18.08.2023 № 1332-р О внесении изменений в распоряжение Администрации ЗАТО г. Зеленогорск от 10.02.2023 № 244-р «Об антинаркотической комиссии г. Зеленогорска» Постановление Администрации ЗАТО г. Зеленогорск от 31.08.2023 № 187-п О внесении изменений в постановление Администрации ЗАТО г. Зеленогорск от 08.12.2022 № 181-п «Об утверждении перечней главных администраторов доходов местного бюджета и главных администраторов источников финансирования дефицита местного бюджета города Зеленогорска» Постановление Администрации ЗАТО г. Зеленогорск от 28.08.2023 № 182-п О внесении изменений в Примерное Положение об оплате труда работников муниципальных бюджетных и казенных учреждений, находящихся в ведении МКУ «КФиС», утвержденное постановлением Администрации ЗАТО г. Зеленогорск от 13.06.2023 № 111-п Распоряжение Администрации ЗАТО г. Зеленогорск от 25.08.2023 № 1400-р О внесении изменений в распоряжение Администрации ЗАТО г. Зеленогорск от 04.05.2023 № 703-р «О подготовке муниципальных бюджетных образовательных учреждений г. Зеленогорска к новому 2023 - 2024 учебному году» Постановление Администрации ЗАТО г. Зеленогорск от 28.08.2023 № 185-п О внесении изменений в Порядок постановки на учет детей, нуждающихся в предоставлении мест в муниципальных образовательных учреждениях г. Зеленогорска, реализующих образовательную программу дошкольного образования, утвержденный постановлением Администрации ЗАТО г. Зеленогорска от 23.06.2021 № 81-п Постановление Администрации ЗАТО г. Зеленогорск от 28.08.2023 № 184-п О внесении изменений в Порядок обеспечения горячим питанием отдельных категорий учащихся муниципальных общеобразовательных организаций г. Зеленогорска, утвержденный постановлением Администрации ЗАТО г. Зеленогорска от 03.03.2022 № 46-п Постановление Администрации ЗАТО г. Зеленогорск от 28.08.2023 № 183-п О внесении изменений в постановление Администрации ЗАТО г. Зеленогорск от 07.12.2022 № 179-п «Об утверждении Порядка организации работы, связанной с реализацией Указа Губернатора Красноярского края от 25.10.2022 № 317-уг «О социально-экономических мерах поддержки лиц, принимающих участие в специальной военной операции, и членов их семей» в части освобождения от платы, взимаемой за присмотр и уход за детьми, осваивающими образовательные программы дошкольного образования в муниципальных образовательных организациях г. Зеленогорска» Распоряжение Администрации ЗАТО г. Зеленогорск от 25.08.2023 № 1382-р О создании и утверждении состава Координационного совета по межведомственному взаимодействию для своевременного оказания мер социальной поддержки участникам СВО, членам их семей, членам семей погибших участников СВО из числа жителей города Зеленогорска Постановление Администрации ЗАТО г. Зеленогорск от 28.08.2023 № 186-п О внесении изменений в постановление Администрации ЗАТО г. Зеленогорск от 05.06.2023 № 107-п «Об утверждении Перечня муниципальных услуг, предоставляемых Администрацией ЗАТО г. Зеленогорск, и услуг, предоставляемых муниципальными учреждениями г. Зеленогорска» Постановление Администрации ЗАТО г. Зеленогорск от 25.08.2023 № 181-п О внесении изменений в постановление Администрации ЗАТО г. Зеленогорска от 31.10.2017 № 257-п «Об утверждении муниципальной программы «Формирование современной городской среды в городе Зеленогорске» Постановление Администрации ЗАТО г. Зеленогорск от 24.08.2023 № 180-п О внесении изменений в постановление Администрации ЗАТО г. Зеленогорска от 13.12.2021 № 195-п «Об утверждении муниципальной программы «Развитие образования в городе Зеленогорске» Распоряжение Администрации ЗАТО г. Зеленогорск от 23.08.2023 № 1371-р О проведении муниципального этапа Всероссийского творческого конкурса «Слава Созидателям!» в 2023 году Распоряжение Администрации ЗАТО г. Зеленогорск от 21.08.2023 № 1352-р О внесении изменений в распоряжение Администрации ЗАТО г. Зеленогорск от 17.07.2023 № 1157-р «О проведении конкурса на включение граждан в резерв управленческих кадров г. Зеленогорска на замещение должности руководителя Муниципального казенного учреждения «Комитет по делам физической культуры и спорта г. Зеленогорска» Постановление Администрации ЗАТО г. Зеленогорск от 21.08.2023 № 176-п Об утверждении Порядка исполнения поручений Губернатора Красноярского края в Администрации ЗАТО г. Зеленогорск Распоряжение Администрации ЗАТО г. Зеленогорск от 18.08.2023 № 1331-р О внесении изменений в распоряжение Администрации ЗАТО г. Зеленогорск от 08.02.2023 № 226-р «Об утверждении Положения и состава межведомственной комиссии по профилактике правонарушений на территории города Зеленогорска» Постановление Администрации ЗАТО г. Зеленогорск от 18.08.2023 № 174-п Об условиях приватизации муниципального имущества – нежилого помещения, расположенного по адресу: Россия, Красноярский край, г. Зеленогорск, ул. Ленина, д. 20, помещ. 102 Постановление Администрации ЗАТО г. Зеленогорск от 24.08.2023 № 179-п О внесении изменений в Постановление Администрации ЗАТО г. Зеленогорск от 18.08.2023 № 174-п «Об условиях приватизации муниципального имущества – нежилого помещения, расположенного по адресу: Россия, Красноярский край, г. Зеленогорск, ул. Ленина, д. 20, помещ. 102» Постановление Администрации ЗАТО г. Зеленогорск от 21.08.2023 № 177-п О внесении изменений в постановление Администрации ЗАТО г. Зеленогорск от 13.09.2016 № 257-п «Об утверждении Порядка определения видов и перечней особо ценного движимого имущества муниципальных автономных или бюджетных учреждений г. Зеленогорска» Постановление Администрации ЗАТО г. Зеленогорск от 21.08.2023 № 178-п О внесении изменений в постановление Администрации ЗАТО г. Зеленогорск от 05.06.2023 № 107-п «Об утверждении Перечня муниципальных услуг, предоставляемых Администрацией ЗАТО г. Зеленогорск, и услуг, предоставляемых муниципальными учреждениями г. Зеленогорска» Постановление Администрации ЗАТО г. Зеленогорск от 21.08.2023 № 175-п Об утверждении Порядка исполнения поручений и указаний Президента Российской Федерации в Администрации ЗАТО г. Зеленогорск Постановление Администрации ЗАТО г. Зеленогорск от 18.08.2023 № 173-п О внесении изменений в постановление Администрации ЗАТО г. Зеленогорска от 23.09.2019 № 165-п «Об утверждении показателей эффективности деятельности муниципальных бюджетных учреждений, находящихся в ведении МКУ «КФиС» Постановление Администрации ЗАТО г. Зеленогорск от 18.08.2023 № 172-п Об утверждении Перечня муниципальных программ города Зеленогорска Постановление Администрации ЗАТО г. Зеленогорск от 18.08.2023 № 171-п О внесении изменений в постановление Администрации ЗАТО г. Зеленогорск от 07.10.2022 № 154-п «Об утверждении Порядка предоставления грантов в форме субсидий субъектам малого и среднего предпринимательства в целях финансового обеспечения части затрат на начало ведения предпринимательской деятельности» Распоряжение Администрации ЗАТО г. Зеленогорск от 18.08.2023 № 1329-р Об участии в конкурсе лучших проектов создания комфортной городской среды Постановление Администрации ЗАТО г. Зеленогорск от 14.08.2023 № 168-п «О внесении изменений в Примерное положение об оплате труда работников муниципальных учреждений города Зеленогорска, находящихся в ведении Муниципального казенного учреждения «Комитет по делам культуры и молодежной политики города Зеленогорска», утвержденное постановлением Администрации ЗАТО г. Зеленогорск от 01.03.2023 № 40-п» Распоряжение Администрации ЗАТО г. Зеленогорск от 16.08.2023 № 1319-р О внесении изменений в распоряжение Администрации ЗАТО г. Зеленогорск от 05.09.2022 № 1600-р «Об утверждении персонального состава общественной комиссии по развитию городской среды» Постановление Администрации ЗАТО г. Зеленогорск от 14.08.2023 № 169-п О внесении изменений в постановление Администрации ЗАТО г. Зеленогорска от 04.03.2021 № 35-п «Об утверждении Порядка привлечения остатков средств с казначейского счета муниципальных бюджетных и автономных учреждений на единый счет бюджета города Зеленогорска и возврата привлеченных средств» Постановление Администрации ЗАТО г. Зеленогорск от 14.08.2023 № 170-п О внесении изменений в постановление Администрации ЗАТО г. Зеленогорск от 22.05.2023 № 89-п «О подготовке к отопительному периоду 2023 - 2024 годов» Постановление Администрации ЗАТО г. Зеленогорск от 08.08.2023 № 165-п Об условиях приватизации муниципального имущества – нежилого помещения, расположенного по адресу: Россия, Красноярский край, г. Зеленогорск, ул. Мира, д. 36, помещ. 118 Распоряжение Администрации ЗАТО г. Зеленогорск от 11.08.2023 № 1300-р Об утверждении Положения о порядке работы комиссии по оценке результативности деятельности руководителей муниципальных учреждений, состава комиссии по оценке результативности деятельности руководителей муниципальных учреждений и Порядка оформления учреждениями результатов выполнения критериев оценки результативности и качества деятельности и условий для установления руководителям учреждений размеров выплат стимулирующего характера Постановление Администрации ЗАТО г. Зеленогорск от 10.08.2023 № 167-п О внесении изменений в постановление Администрации ЗАТО г. Зеленогорск от 07.12.2022 № 178-п «Об установлении тарифов на платные физкультурно-оздоровительные услуги, оказываемые МБУ СШ «Юность» Постановление Администрации ЗАТО г. Зеленогорск от 10.08.2023 № 166-п Об установлении размера платы за содержание жилого помещения в общежитиях государственного жилищного фонда, переданных ООО «Квадра Пи-Эль» по договору доверительного управления Распоряжение Администрации ЗАТО г. Зеленогорск от 10.08.2023 № 1286-р «О внесении изменений в распоряжение Администрации ЗАТО г. Зеленогорск от 29.11.2022 № 2258-р «Об утверждении состава и Положения о порядке работы комиссии по оказанию поддержки субъектам малого и среднего предпринимательства» Распоряжение Администрации ЗАТО г. Зеленогорск от 07.08.2023 № 1271-р Об утверждении Перечня муниципального имущества, свободного от прав третьих лиц (за исключением имущественных прав некоммерческих организаций) и предназначенного для предоставления социально ориентированным некоммерческим организациям Распоряжение Администрации ЗАТО г. Зеленогорск от 08.08.2023 № 1276-р Об организации и проведении отборочного (муниципального) этапа отраслевого Фестиваля творческих традиций «Семья семей» на территории города Зеленогорска в 2023 году Распоряжение Администрации ЗАТО г. Зеленогорск от 07.08.2023 № 1274-р «О создании рабочей группы по формированию и реализации муниципальных программ города Зеленогорска» Постановление Администрации ЗАТО г. Зеленогорск от 07.08.2023 № 163-п О внесении изменений в постановление Администрации ЗАТО г. Зеленогорск от 23.03.2017 № 67-п «О выполнении полномочий наймодателя, собственника жилых помещений муниципального жилищного фонда» Распоряжение Администрации ЗАТО г. Зеленогорск от 07.08.2023 № 1275-р О создании комиссии по вопросам изменения существенных условий контрактов и осуществления закупок товаров, работ, услуг у единственного поставщика (подрядчика, исполнителя) Постановление Администрации ЗАТО г. Зеленогорск от 07.08.2023 № 164-п О внесении изменений в постановление Администрации ЗАТО г. Зеленогорска от 13.04.2022 № 69-п «Об изменении существенных условий муниципальных контрактов, контрактов, заключенных до 1 января 2024 года для обеспечения муниципальных нужд» Постановление Администрации ЗАТО г. Зеленогорск от 07.08.2023 № 162-п О временном прекращении движения транспортных средств на участках автомобильных дорог общего пользования местного значения города Зеленогорска Постановление Администрации ЗАТО г. Зеленогорск от 03.08.2023 № 161-п «Об установлении размера платы за содержание жилого помещения в многоквартирном доме по адресу: г. Зеленогорск, ул. Мира, д. 43б» Постановление Администрации ЗАТО г. Зеленогорск от 02.08.2023 № 160-п «Об установлении тарифов на издание и распространение газеты «Панорама» Постановление Администрации ЗАТО г. Зеленогорск от 01.08.2023 № 159-п «О внесении изменений в Положение о системе оплаты труда работников муниципальных учреждений города Зеленогорска, утвержденное постановлением Администрации ЗАТО г. Зеленогорска от 12.04.2021 № 46-п» Постановление Администрации ЗАТО г. Зеленогорск от 31.07.2023 № 158-п «О внесении изменений в постановление Администрации ЗАТО г. Зеленогорск от 08.12.2022 № 181-п «Об утверждении перечней главных администраторов доходов местного бюджета и главных администраторов источников финансирования дефицита местного бюджета города Зеленогорска» Постановление Администрации ЗАТО г. Зеленогорск от 31.07.2023 № 157-п Об утверждении Административного регламента предоставления муниципальной услуги «Установление соответствия разрешенного использования земельного участка классификатору видов разрешенного использования» Постановление Администрации ЗАТО г. Зеленогорск от 31.07.2023 № 155-п О внесении изменений в Порядок предоставления дополнительных гарантий муниципальным служащим, утвержденный постановлением Администрации ЗАТО г. Зеленогорск от 05.04.2023 № 62-п Постановление Администрации ЗАТО г. Зеленогорск от 31.07.2023 № 156-п «О внесении изменений в Проект организации дорожного движения на автомобильных дорогах общего пользования местного значения в г. Зеленогорске Красноярского края, утвержденный постановлением Администрации ЗАТО г. Зеленогорска от 21.08.2018 № 156-п» Постановление Администрации ЗАТО г. Зеленогорск от 28.07.2023 № 154-п О временном прекращении движения транспортных средств на участке автомобильной дороги общего пользования местного значения города Зеленогорска Постановление Администрации ЗАТО г. Зеленогорск от 26.07.2023 № 153-п «Об утверждении Порядка формирования, ведения и обязательного опубликования перечня муниципального имущества, свободного от прав третьих лиц (за исключением имущественных прав субъектов малого и среднего предпринимательства) и предназначенного для предоставления субъектам малого и среднего предпринимательства» Постановление Администрации ЗАТО г. Зеленогорск от 26.07.2023 № 152-п «О выделении специальных мест для размещения печатных агитационных материалов на территории г. Зеленогорска в период подготовки и проведения выборов Губернатора Красноярского края и депутатов Совета депутатов ЗАТО г. Зеленогорск» Распоряжение Администрации ЗАТО г. Зеленогорск от 21.07.2023 № 1175-р Об организации проведения муниципального этапа конкурса «Новые созидатели» на территории города Зеленогорска в 2023 году Постановление Администрации ЗАТО г. Зеленогорск от 21.07.2023 № 150-п О внесении изменений в постановление Администрации ЗАТО г. Зеленогорск от 09.08.2022 № 140-п «Об установлении размера платы за содержание жилого помещения в многоквартирных домах» Постановление Администрации ЗАТО г. Зеленогорск от 20.07.2023 № 149-п О внесении изменений в постановление Администрации ЗАТО г. Зеленогорск от 22.05.2023 № 89-п «О подготовке к отопительному периоду 2023 - 2024 годов» Распоряжение Администрации ЗАТО г. Зеленогорск от 17.07.2023 № 1156-р «О внесении изменений в распоряжение Администрации ЗАТО г. Зеленогорска от 14.06.2018 № 1082-р «Об утверждении Перечня муниципального имущества, свободного от прав третьих лиц (за исключением имущественных прав некоммерческих организаций) и предназначенного для предоставления социально ориентированным некоммерческим организациям» Постановление Администрации ЗАТО г. Зеленогорск от 19.07.2023 № 148-п Об установлении размера платы за содержание жилого помещения в многоквартирном доме по адресу: г. Зеленогорск, ул. Парковая, д. 16 Распоряжение Администрации ЗАТО г. Зеленогорск от 17.07.2023 № 1157-р «О проведении конкурса на включение граждан в резерв управленческих кадров г. Зеленогорска на замещение должности руководителя Муниципального казенного учреждения «Комитет по делам физической культуры и спорта г. Зеленогорска» Постановление Администрации ЗАТО г. Зеленогорск от 17.07.2023 № 147-п О внесении изменений в Проект организации дорожного движения на автомобильных дорогах общего пользования местного значения в г. Зеленогорске Красноярского края, утвержденный постановлением Администрации ЗАТО г. Зеленогорска от 21.08.2018 № 156-п Распоряжение Администрации ЗАТО г. Зеленогорск от 17.07.2023 № 1142-р Об утверждении состава и Положения о порядке работы комиссии, осуществляющей проверку условий жизни детей-сирот и детей, оставшихся без попечения родителей, лиц из числа детей-сирот и детей, оставшихся без попечения родителей, лиц, которые относились к категории детей-сирот и детей, оставшихся без попечения родителей, лиц из числа детей-сирот и детей, оставшихся без попечения родителей, и достигли возраста 23 лет, являющихся нанимателями жилых помещений по договорам найма специализированных жилых помещений Постановление Администрации ЗАТО г. Зеленогорск от 17.07.2023 № 146-п «Об утверждении отчета об исполнении местного бюджета города Зеленогорска за первое полугодие 2023 года» Постановление Администрации ЗАТО г. Зеленогорск от 14.07.2023 № 145-п Об определении средней рыночной стоимости одного квадратного метра общей площади жилого помещения на территории города Зеленогорска на III квартал 2023 года Постановление Администрации ЗАТО г. Зеленогорск от 12.07.2023 № 144-п «Об утверждении Порядка формирования муниципальных социальных заказов на оказание муниципальных услуг в социальной сфере, отнесенных к полномочиям органов местного самоуправления города Зеленогорска, формы отчета об их исполнении» Постановление Администрации ЗАТО г. Зеленогорск от 12.07.2023 № 143-п «Об утверждении Порядка предоставления субсидии юридическим лицам, индивидуальным предпринимателям, физическим лицам – производителям товаров, работ, услуг на оплату соглашения о возмещении затрат, связанных с оказанием муниципальных услуг в социальной сфере в соответствии с социальным сертификатом на получение муниципальной услуги в социальной сфере» Постановление Администрации ЗАТО г. Зеленогорск от 12.07.2023 № 142-п «Об утверждении Порядка предоставления субсидии юридическим лицам, индивидуальным предпринимателям, физическим лицам – производителям товаров, работ, услуг на оплату соглашения о финансовом обеспечении затрат, связанных с оказанием муниципальных услуг в социальной сфере в соответствии с социальным сертификатом на получение муниципальной услуги в социальной сфере» Постановление Администрации ЗАТО г. Зеленогорск от 12.07.2023 № 141-п О внесении изменений в постановление Администрации ЗАТО г. Зеленогорск от 13.10.2022 № 157-п «Об утверждении Порядка предоставления субсидий в целях финансового обеспечения затрат, возникающих в связи с применением предельного индекса при оказании коммунальных услуг на реализацию отдельных мер по обеспечению ограничения платы граждан за коммунальные услуги» Постановление Администрации ЗАТО г. Зеленогорск от 12.07.2023 № 140-п О внесении изменений в постановление Администрации ЗАТО г. Зеленогорска от 06.04.2022 № 61-п «Об утверждении Порядка предоставления субсидий в целях возмещения недополученных доходов, возникающих в связи с оказанием услуг по содержанию жилых помещений муниципального жилищного фонда» Постановление Администрации ЗАТО г. Зеленогорск от 12.07.2023 № 139-п О внесении изменений в постановление Администрации ЗАТО г. Зеленогорска от 14.01.2022 № 6-п «Об утверждении Порядка предоставления субсидий в целях возмещения затрат в связи с оказанием услуг по содержанию жилых помещений и (или) предоставлением коммунальных услуг до заселения жилых помещений муниципального жилищного фонда» Постановление Администрации ЗАТО г. Зеленогорск от 07.07.2023 № 138-п О некоторых мерах правового регулирования вопросов, связанных с оказанием муниципальной услуги «Реализация дополнительных общеразвивающих программ» в соответствии с социальными сертификатами Постановление Администрации ЗАТО г. Зеленогорск от 06.07.2023 № 137-п Об утверждении Положения о печатях в Администрации ЗАТО г. Зеленогорск Постановление Администрации ЗАТО г. Зеленогорск от 30.06.2023 № 132-п О внесении изменений в постановление Администрации ЗАТО г. Зеленогорска от 11.01.2013 № 6-п «Об образовании избирательных участков на территории г. Зеленогорска и утверждения их границ для проведения голосования и подсчета голосов избирателей, участников референдума» Распоряжение Администрации ЗАТО г. Зеленогорск от 05.07.2023 № 1077-р «Об утверждении состава и Порядка работы комиссии по разработке схем размещения рекламных конструкций» Постановление Администрации ЗАТО г. Зеленогорск от 05.07.2023 № 136-п Об утверждении Правил заключения в электронной форме и подписания усиленной квалифицированной электронной подписью лица, имеющего право действовать от имени соответственно уполномоченного органа, исполнителя муниципальных услуг в социальной сфере, соглашений о финансовом обеспечении (возмещении) затрат, связанных с оказанием муниципальных услуг в социальной сфере в соответствии с социальным сертификатом на получение муниципальной услуги в социальной сфере Постановление Администрации ЗАТО г. Зеленогорск от 04.07.2023 № 135-п О внесении изменений в Примерное положение об оплате труда работников муниципальных бюджетных и казенных учреждений по сопровождению деятельности органов местного самоуправления, утвержденное постановлением Администрации ЗАТО г. Зеленогорска от 09.12.2016 № 345-п Постановление Администрации ЗАТО г. Зеленогорск от 04.07.2023 № 134-п О внесении изменений в постановление Администрации ЗАТО г. Зеленогорск от 08.12.2022 № 181-п «Об утверждении перечней главных администраторов доходов местного бюджета и главных администраторов источников финансирования дефицита местного бюджета города Зеленогорска» Постановление Администрации ЗАТО г. Зеленогорск от 03.07.2023 № 133-п О временном прекращении движения транспортных средств на участках автомобильных дорог общего пользования местного значения города Зеленогорска Распоряжение Администрации ЗАТО г. Зеленогорск от 30.06.2023 № 1064-р О внесении изменений в распоряжение Администрации ЗАТО г. Зеленогорска от 16.03.2017 № 536-р «Об утверждении состава комиссии по соблюдению требований к служебному поведению муниципальных служащих и урегулированию конфликтов интересов» Постановление Администрации ЗАТО г. Зеленогорск от 30.06.2023 № 129-п О внесении изменений в Административный регламент предоставления муниципальной услуги «Постановка на учет и направление детей в образовательные учреждения, реализующие образовательные программы дошкольного образования», утвержденный постановлением Администрации ЗАТО г. Зеленогорск от 29.12.2022 № 222-п Постановление Администрации ЗАТО г. Зеленогорск от 30.06.2023 № 131-п О внесении изменений в постановление Администрации ЗАТО г. Зеленогорск от 27.12.2022 № 203-п «Об утверждении Административного регламента предоставления муниципальной услуги «Утверждение схемы расположения земельных участков или земельных участков на кадастровом плане территории» Постановление Администрации ЗАТО г. Зеленогорск от 30.06.2023 № 130-п О внесении изменений в постановление Администрации ЗАТО г. Зеленогорск от 27.12.2022 № 204-п «Об утверждении Административного регламента предоставления муниципальной услуги «Предоставление земельных участков в аренду без проведения торгов, в постоянное (бессрочное) пользование, в безвозмездное пользование» Постановление Администрации ЗАТО г. Зеленогорск от 30.06.2023 № 128-п Об утверждении Административного регламента предоставления муниципальной услуги «Предоставление информации об объектах учета, содержащейся в реестре муниципального имущества» Распоряжение Администрации ЗАТО г. Зеленогорск от 28.06.2023 № 1054-р О внесении изменений в распоряжение Администрации ЗАТО г. Зеленогорска от 30.08.2021 № 1318-р «О создании комиссии по противодействию коррупции и утверждении Положения о порядке работы комиссии по противодействию коррупции» Постановление Администрации ЗАТО г. Зеленогорск от 27.06.2023 № 126-п О внесении изменений в постановление Администрации ЗАТО г. Зеленогорска от 15.09.2021 № 117-п «О Координационном совете в области развития малого и среднего предпринимательства» Постановление Администрации ЗАТО г. Зеленогорск от 27.06.2023 № 125-п О внесении изменений в постановление Администрации ЗАТО г. Зеленогорска от 15.03.2022 № 52-п «Об утверждении Порядка предоставления субсидий субъектам малого и среднего предпринимательства, а также физическим лицам, применяющим специальный налоговый режим «Налог на профессиональный доход», в целях возмещения части затрат при осуществлении предпринимательской деятельности» Постановление Администрации ЗАТО г. Зеленогорск от 27.06.2023 № 127-п «О внесении изменений в постановление Администрации ЗАТО г. Зеленогорска от 05.04.2022 № 60-п «Об утверждении Порядка предоставления субсидий в целях возмещения затрат на содержание, ремонт объектов внешнего благоустройства, находящихся в собственности муниципального образования город Зеленогорск» Постановление Администрации ЗАТО г. Зеленогорск от 23.06.2023 № 123-п «О внесении изменений в Примерное положение об оплате труда работников муниципальных учреждений города Зеленогорска, находящихся в ведении Муниципального казенного учреждения «Комитет по делам культуры и молодежной политики города Зеленогорска», утвержденное постановлением Администрации ЗАТО г. Зеленогорск от 01.03.2023 № 40-п» Постановление Администрации ЗАТО г. Зеленогорск от 23.06.2023 № 122-п «О внесении изменений в Примерное положение об оплате труда работников муниципальных бюджетных учреждений дополнительного образования города Зеленогорска, находящихся в ведении Муниципального казенного учреждения «Комитет по делам культуры и молодежной политики города Зеленогорска», утвержденное постановлением Администрации ЗАТО г. Зеленогорска от 23.03.2018 № 44-п» Постановление Администрации ЗАТО г. Зеленогорск от 23.06.2023 № 121-п «О внесении изменений в Примерное положение об оплате труда работников муниципальных бюджетных учреждений города Зеленогорска, осуществляющих деятельность в сфере молодежной политики, находящихся в ведении Муниципального казенного учреждения «Комитет по делам культуры и молодежной политики города Зеленогорска», утвержденное постановлением Администрации ЗАТО г. Зеленогорска от 21.12.2016 № 358-п» Постановление Администрации ЗАТО г. Зеленогорск от 23.06.2023 № 124-п «Об утверждении Порядка создания и использования, в том числе на платной основе, парковок (парковочных мест), расположенных на автомобильных дорогах общего пользования местного значения на территории г. Зеленогорска» Постановление Администрации ЗАТО г. Зеленогорск от 23.06.2023 № 119-п Об организации оказания муниципальных услуг в социальной сфере при формировании муниципального социального заказа на оказание муниципальных услуг в социальной сфере на территории города Зеленогорска Постановление Администрации ЗАТО г. Зеленогорск от 23.06.2023 № 120-п О внесении изменений в постановление Администрации ЗАТО г. Зеленогорска от 28.08.2019 № 149-п «Об утверждении Положения о порядке проведения конкурса педагогов, осуществляющих работу с одаренными детьми» Постановление Администрации ЗАТО г. Зеленогорск от 19.06.2023 № 118-п Об утверждении Административного регламента предоставления муниципальной услуги «Направление уведомления о планируемом сносе объекта капитального строительства и уведомления о завершении сноса объекта капитального строительства» Постановление Администрации ЗАТО г. Зеленогорск от 19.06.2023 № 117-п Об утверждении Административного регламента предоставления муниципальной услуги «Присвоение адреса объекту адресации, изменение и аннулирование такого адреса» Постановление Администрации ЗАТО г. Зеленогорск от 19.06.2023 № 116-п Об утверждении Административного регламента предоставления муниципальной услуги «Признание садового дома жилым домом и жилого дома садовым домом» Постановление Администрации ЗАТО г. Зеленогорск от 19.06.2023 № 115-п Об утверждении Административного регламента предоставления муниципальной услуги «Выдача акта освидетельствования проведения основных работ по строительству (реконструкции) объекта индивидуального жилищного строительства с привлечением средств материнского (семейного) капитала» Постановление Администрации ЗАТО г. Зеленогорск от 14.06.2023 № 114-п О внесении изменений в постановление Администрации ЗАТО г. Зеленогорска от 11.08.2021 № 98-п «Об утверждении Порядка предоставления субсидий социально ориентированным некоммерческим организациям на реализацию социальных проектов» Постановление Администрации ЗАТО г. Зеленогорск от 14.06.2023 № 112-п О внесении изменений в муниципальную программу «Гражданское общество – закрытое административно-территориальное образование Зеленогорск», утвержденную постановлением Администрации ЗАТО г. Зеленогорска от 06.12.2021 № 186-п Постановление Администрации ЗАТО г. Зеленогорск от 14.06.2023 № 113-п О внесении изменений в муниципальную программу «Развитие малого и среднего предпринимательства в городе Зеленогорске», утвержденную постановлением Администрации ЗАТО г. Зеленогорска от 13.12.2021 № 194-п» Постановление Администрации ЗАТО г. Зеленогорск от 13.06.2023 № 111-п Об утверждении Примерного положения об оплате труда работников муниципальных бюджетных и казенных учреждений, находящихся в ведении МКУ «КФиС» Постановление Администрации ЗАТО г. Зеленогорск от 13.06.2023 № 110-п Об утверждении Порядка предоставления социально-трудовых гарантий работникам муниципальных учреждений г. Зеленогорска Постановление Администрации ЗАТО г. Зеленогорск от 09.06.2023 № 109-п О временном прекращении движения транспортных средств на участках автомобильных дорог общего пользования местного значения города Зеленогорска Распоряжение Администрации ЗАТО г. Зеленогорск от 07.06.2023 № 937-ра О внесении изменений в распоряжение Администрации ЗАТО г. Зеленогорск от 12.04.2023 № 547-р «О создании конкурсной комиссии по проведению открытых конкурсов по отбору управляющих организаций для управления многоквартирными домами» Постановление Администрации ЗАТО г. Зеленогорск от 08.06.2023 № 108-п О разрешении использования в 2023 году в целях купания и отдыха людей озера «Лебединое» Постановление Администрации ЗАТО г. Зеленогорск от 05.06.2023 № 106-п «Об утверждении Примерного положения об оплате труда работников муниципальных бюджетных и казенных учреждений города Зеленогорска, находящихся в ведении Управления образования Администрации ЗАТО г. Зеленогорск» Постановление Администрации ЗАТО г. Зеленогорск от 05.06.2023 № 107-п «Об утверждении Перечня муниципальных услуг, предоставляемых Администрацией ЗАТО г. Зеленогорск, и услуг, предоставляемых муниципальными учреждениями г. Зеленогорска» Постановление Администрации ЗАТО г. Зеленогорск от 02.06.2023 № 105-п О признании утратившими силу некоторых постановлений Администрации ЗАТО г. Зеленогорска Распоряжение Администрации ЗАТО г. Зеленогорск от 02.06.2023 № 911-р «О внесении изменений в распоряжение Администрации ЗАТО г. Зеленогорск от 20.03.2020 № 547-р «Об утверждении состава комиссии по решению спорных вопросов по предоставлению субсидий на оплату жилого помещения и коммунальных услуг» Постановление Администрации ЗАТО г. Зеленогорск от 31.05.2023 № 104-п О внесении изменений в Примерное положение об оплате труда работников муниципальных бюджетных учреждений города Зеленогорска, находящихся в ведении Отдела городского хозяйства Администрации ЗАТО г. Зеленогорск, утвержденное постановлением Администрации ЗАТО г. Зеленогорск от 22.05.2023 № 92-п Постановление Администрации ЗАТО г. Зеленогорск от 31.05.2023 № 103-п «О внесении изменений в постановление Администрации ЗАТО г. Зеленогорск от 08.12.2022 № 181-п «Об утверждении перечней главных администраторов доходов местного бюджета и главных администраторов источников финансирования дефицита местного бюджета города Зеленогорска» Постановление Администрации ЗАТО г. Зеленогорск от 30.05.2023 № 102-п "Об определении случаев осуществления банковского сопровождения контрактов, предметом которых являются поставки товаров, выполнение работ, оказание услуг для обеспечения муниципальных нужд" Постановление Администрации ЗАТО г. Зеленогорск от 30.05.2023 № 101-п О временном прекращении движения транспортных средств на участках автомобильных дорог общего пользования местного значения города Зеленогорска Постановление Администрации ЗАТО г. Зеленогорск от 29.05.2023 № 100-п «О признании утратившими силу некоторых постановлений Администрации ЗАТО г. Зеленогорска» Постановление Администрации ЗАТО г. Зеленогорск от 26.05.2023 № 99-п Об установлении размера платы за содержание жилого помещения в многоквартирном доме по адресу: г. Зеленогорск, ул. Бортникова, д. 36 Постановление Администрации ЗАТО г. Зеленогорск от 26.05.2023 № 97-п О внесении изменений в Порядок постановки на учет детей, нуждающихся в предоставлении мест в муниципальных образовательных учреждениях г. Зеленогорска, реализующих образовательную программу дошкольного образования, утвержденный постановлением Администрации ЗАТО г. Зеленогорска от 23.06.2021 № 81-п Постановление Администрации ЗАТО г. Зеленогорск от 26.05.2023 № 96-п Об утверждении Административного регламента предоставления муниципальной услуги «Предоставление информации об объектах недвижимого имущества, находящихся в муниципальной собственности и предназначенных для сдачи в аренду безвозмездное пользование, доверительное управление» Постановление Администрации ЗАТО г. Зеленогорск от 23.05.2023 № 95-п О внесении изменений в постановление Администрации ЗАТО г. Зеленогорск от 08.12.2022 № 181-п «Об утверждении перечней главных администраторов доходов местного бюджета и главных администраторов источников финансирования дефицита местного бюджета города Зеленогорска» Постановление Администрации ЗАТО г. Зеленогорск от 22.05.2023 № 94-п О внесении изменений в Примерное положение об оплате труда работников муниципальных бюджетных и казенных учреждений, находящихся в ведении МКУ «КФиС», утвержденное постановлением Администрации ЗАТО г. Зеленогорска от 31.08.2018 № 165-п Постановление Администрации ЗАТО г. Зеленогорск от 22.05.2023 № 91-п О внесении изменений в Примерное положение об оплате труда работников муниципальных бюджетных и казенных учреждений по сопровождению деятельности органов местного самоуправления, утвержденное постановлением Администрации ЗАТО г. Зеленогорска от 09.12.2016 № 345-п Постановление Администрации ЗАТО г. Зеленогорск от 22.05.2023 № 92-п Об утверждении Примерного положения об оплате труда работников муниципальных бюджетных учреждений города Зеленогорска, находящихся в ведении Отдела городского хозяйства Администрации ЗАТО г. Зеленогорск Постановление Администрации ЗАТО г. Зеленогорск от 22.05.2023 № 90-п О внесении изменений в Положение о системе оплаты труда работников муниципальных учреждений города Зеленогорска, утвержденное постановлением Администрации ЗАТО г. Зеленогорска от 12.04.2021 № 46-п Постановление Администрации ЗАТО г. Зеленогорск от 22.05.2023 № 89-п О подготовке к отопительному периоду 2023 - 2024 годов Распоряжение Администрации ЗАТО г. Зеленогорск от 19.05.2023 № 809-р Об окончании отопительного периода 2022-2023 годов Постановление Администрации ЗАТО г. Зеленогорск от 12.05.2023 № 88-п О внесении изменений в постановление Администрации ЗАТО г. Зеленогорск от 07.02.2023 № 24-п «Об установлении тарифов на платные физкультурно-оздоровительные услуги, оказываемые МБУ СШОР «Старт» Постановление Администрации ЗАТО г. Зеленогорск от 12.05.2023 № 87-п О внесении изменений в постановление Администрации ЗАТО г. Зеленогорск от 31.03.2023 № 60-п «Об установлении тарифов на платные физкультурно- оздоровительные услуги, оказываемые МБУ СШОР «Олимп» Распоряжение Администрации ЗАТО г. Зеленогорск от 12.05.2023 № 760-р Об утверждении Перечня муниципального имущества, свободного от прав третьих лиц (за исключением имущественных прав субъектов малого и среднего предпринимательства) и предназначенного для предоставления субъектам малого и среднего предпринимательства Постановление Администрации ЗАТО г. Зеленогорск от 12.05.2023 № 86-п О внесении изменений в постановление Администрации ЗАТО г. Зеленогорск от 07.12.2022 № 178-п «Об установлении тарифов на платные физкультурно-оздоровительные услуги, оказываемые МБУ СШ «Юность» Постановление Администрации ЗАТО г. Зеленогорск от 11.05.2023 № 84-п О внесении изменений в Примерное положение об оплате труда работников муниципальных учреждений города Зеленогорска, находящихся в ведении Муниципального казенного учреждения «Комитет по делам культуры и молодежной политики города Зеленогорска», утвержденное постановлением Администрации ЗАТО г. Зеленогорск от 01.03.2023 № 40-п Постановление Администрации ЗАТО г. Зеленогорск от 11.05.2023 № 83-п О внесении изменений в Примерное положение об оплате труда работников муниципальных бюджетных учреждений города Зеленогорска, осуществляющих деятельность в сфере молодежной политики, находящихся в ведении Муниципального казенного учреждения «Комитет по делам культуры и молодежной политики города Зеленогорска», утвержденное постановлением Администрации ЗАТО г. Зеленогорска от 21.12.2016 № 358-п Постановление Администрации ЗАТО г. Зеленогорск от 11.05.2023 № 85-п О внесении изменений в Примерное положение об оплате труда работников муниципальных бюджетных учреждений дополнительного образования города Зеленогорска, находящихся в ведении Муниципального казенного учреждения «Комитет по делам культуры и молодежной политики города Зеленогорска», утвержденное постановлением Администрации ЗАТО г. Зеленогорска от 23.03.2018 № 44-п Постановление Администрации ЗАТО г. Зеленогорск от 10.05.2023 № 81-п О внесении изменений в Примерное положение об оплате труда работников муниципальных учреждений города Зеленогорска, находящихся в ведении Муниципального казенного учреждения «Комитет по делам культуры и молодежной политики города Зеленогорска», утвержденное постановлением Администрации ЗАТО г. Зеленогорск от 01.03.2023 № 40-п Распоряжение Администрации ЗАТО г. Зеленогорск от 04.05.2023 № 704-р О внесении изменений в распоряжение Администрации ЗАТО г. Зеленогорск от 16.06.2022 № 1094-р «Об утверждении состава и Положения о работе комиссии по обследованию и осуществлению контроля за закрепленными жилыми помещениями» Распоряжение Администрации ЗАТО г. Зеленогорск от 04.05.2023 № 703-р О подготовке муниципальных бюджетных образовательных учреждений г. Зеленогорска к новому 2023 - 2024 учебному году Распоряжение Администрации ЗАТО г. Зеленогорск от 05.05.2023 № 712-р О мероприятиях по организации обустройства места массового отдыха людей на водных объектах для купания и отдыха в 2023 году Постановление Администрации ЗАТО г. Зеленогорск от 05.05.2023 № 80-п О внесении изменений в Примерное положение об оплате труда работников муниципальных бюджетных и казенных учреждений по сопровождению деятельности органов местного самоуправления, утвержденное постановлением Администрации ЗАТО г. Зеленогорска от 09.12.2016 № 345-п Постановление Администрации ЗАТО г. Зеленогорск от 04.05.2023 № 79-п О внесении изменений в постановление Администрации ЗАТО г. Зеленогорска от 20.02.2016 № 38-п «Об утверждении Порядка организации и проведения аукционов на право заключения договоров на установку и эксплуатацию нестационарных торговых объектов, примерной формы договора на установку и эксплуатацию нестационарного торгового объекта» Постановление Администрации ЗАТО г. Зеленогорск от 02.05.2023 № 78-п О внесении изменений в постановление Администрации ЗАТО г. Зеленогорск от 08.12.2022 № 181-п «Об утверждении перечней главных администраторов доходов местного бюджета и главных администраторов источников финансирования дефицита местного бюджета города Зеленогорска» Постановление Администрации ЗАТО г. Зеленогорск от 02.05.2023 № 76-п «О внесении изменений в постановление Администрации ЗАТО г. Зеленогорска от 30.03.2022 № 59-п «Об утверждении краткосрочного плана реализации региональной программы капитального ремонта общего имущества в многоквартирных домах, расположенных на территории города Зеленогорска, на 2023 - 2025 годы» Постановление Администрации ЗАТО г. Зеленогорск от 02.05.2023 № 77-п «О внесении изменений в постановление Администрации ЗАТО г. Зеленогорска от 05.04.2019 № 62-п «Об утверждении краткосрочного плана реализации региональной программы капитального ремонта общего имущества в многоквартирных домах, расположенных на территории города Зеленогорска, на 2020 - 2022 годы» Распоряжение Администрации ЗАТО г. Зеленогорск от 27.04.2023 № 683-р О внесении изменений в распоряжение Администрации ЗАТО г. Зеленогорск от 11.11.2022 № 2144-р «Об утверждении Плана проведения плановых проверок при осуществлении ведомственного контроля за соблюдением трудового законодательства и иных нормативных правовых актов, содержащих нормы трудового права, на 2023 год» Распоряжение Администрации ЗАТО г. Зеленогорск от 25.04.2023 № 651-р О внесении изменений в распоряжение Администрации ЗАТО г. Зеленогорска от 12.08.2019 № 1769-р «Об утверждении положения и состава комиссии по предупреждению и ликвидации чрезвычайных ситуаций и обеспечению пожарной безопасности города» Постановление Администрации ЗАТО г. Зеленогорск от 24.04.2023 № 74-п «О временном прекращении движения транспортных средств на участках автомобильных дорог общего пользования местного значения города Зеленогорска» Постановление Администрации ЗАТО г. Зеленогорск от 17.04.2023 № 73-п О внесении изменений в постановление Администрации ЗАТО г. Зеленогорска от 26.05.2014 № 156-п «Об утверждении Лесохозяйственного регламента городского лесничества г. Зеленогорска» Распоряжение Администрации ЗАТО г. Зеленогорск от 12.04.2023 № 547-р О создании конкурсной комиссии по проведению открытых конкурсов по отбору управляющих организаций для управления многоквартирными домами Распоряжение Администрации ЗАТО г. Зеленогорск от 17.04.2023 № 577-р О проведении общегородского месячника по наведению санитарного порядка и благоустройству территории города Зеленогорска Постановление Администрации ЗАТО г. Зеленогорск от 17.04.2023 № 72-п «О реорганизации МБДОУ д/с № 32 и МБДОУ д/с № 17» Постановление Администрации ЗАТО г. Зеленогорск от 17.04.2023 № 71-п «О реорганизации МБДОУ д/с № 18 и МБДОУ д/с № 16» Постановление Администрации ЗАТО г. Зеленогорск от 17.04.2023 № 69-п «Об утверждении отчета об исполнении местного бюджета города Зеленогорска за первый квартал 2023 года» Постановление Администрации ЗАТО г. Зеленогорск от 17.04.2023 № 68-п О временном прекращении движения транспортных средств на участках автомобильных дорог общего пользования местного значения города Зеленогорска Распоряжение Администрации ЗАТО г. Зеленогорск от 14.04.2023 № 558-р О подготовке к весенне-летнему пожароопасному сезону на территории г. Зеленогорска в 2023 году Постановление Администрации ЗАТО г. Зеленогорск от 13.04.2023 № 65-п «О внесении изменений в постановление Администрации ЗАТО г. Зеленогорска от 04.03.2021 № 35-п «Об утверждении Порядка привлечения остатков средств с казначейского счета муниципальных бюджетных и автономных учреждений на единый счет бюджета города Зеленогорска и возврата привлеченных средств» Постановление Администрации ЗАТО г. Зеленогорск от 13.04.2023 № 66-п «Об определении средней рыночной стоимости одного квадратного метра общей площади жилого помещения на территории города Зеленогорска на II квартал 2023 года» Постановление Администрации ЗАТО г. Зеленогорск от 13.04.2023 № 67-п О внесении изменений в Проект организации дорожного движения на автомобильных дорогах общего пользования местного значения в г. Зеленогорске Красноярского края, утвержденный постановлением Администрации ЗАТО г. Зеленогорска от 21.08.2018 № 156-п Распоряжение Администрации ЗАТО г. Зеленогорск от 11.04.2023 № 532-р «О внесении изменений в распоряжение Администрации ЗАТО г. Зеленогорска от 04.02.2019 № 201-р «Об утверждении состава и Порядка работы комиссии по размещению нестационарных торговых объектов» Постановление Администрации ЗАТО г. Зеленогорск от 07.04.2023 № 64-п Об утверждении Порядка присуждения премий Главы ЗАТО г. Зеленогорск одаренным обучающимся муниципальных бюджетных образовательных учреждений г. Зеленогорска Постановление Администрации ЗАТО г. Зеленогорск от 05.04.2023 № 62-п Об утверждении Порядка предоставления дополнительных гарантий муниципальным служащим Постановление Администрации ЗАТО г. Зеленогорск от 05.04.2023 № 63-п О внесении изменений в постановление Администрации ЗАТО г. Зеленогорск от 12.01.2023 № 9-п «О видах обязательных работ, объектах, на которых они отбываются, и местах, в которых отбываются исправительные работы» Постановление Администрации ЗАТО г. Зеленогорск от 03.04.2023 № 61-п «О внесении изменений в постановление Администрации ЗАТО г. Зеленогорск от 08.12.2022 № 181-п «Об утверждении перечней главных администраторов доходов местного бюджета и главных администраторов источников финансирования дефицита местного бюджета города Зеленогорска» Распоряжение Администрации ЗАТО г. Зеленогорск от 03.04.2023 № 499-р О внесении изменений в распоряжение Администрации ЗАТО г. Зеленогорск от 21.02.2023 № 304-р «Об организации отдыха детей и их оздоровления в летний период 2023 года» Распоряжение Администрации ЗАТО г. Зеленогорск от 03.04.2023 № 498-р «О внесении изменений в распоряжение Администрации ЗАТО г. Зеленогорска от 25.05.2016 № 994-р «Об утверждении Положения и состава балансовой комиссии» Постановление Администрации ЗАТО г. Зеленогорск от 31.03.2023 № 60-п «Об установлении тарифов на платные физкультурно-оздоровительные услуги, оказываемые МБУ СШОР «Олимп» Распоряжение Администрации ЗАТО г. Зеленогорск от 30.03.2023 № 491-р О создании конкурсной комиссии по проведению открытого конкурса по отбору управляющей организации для управления многоквартирным домом, расположенным по адресу: Россия, Красноярский край, г. Зеленогорск, ул. Юбилейная, д. 1Д Распоряжение Администрации ЗАТО г. Зеленогорск от 30.03.2023 № 488-р Об утверждении состава и Порядка работы межведомственной комиссии по вопросам реабилитации или абилитации детей-инвалидов, психолого-педагогического и медико-социального сопровождения детей с ограниченными возможностями здоровья Распоряжение Администрации ЗАТО г. Зеленогорск от 29.03.2023 № 484-р О внесении изменений в распоряжение Администрации ЗАТО г. Зеленогорска от 21.05.2014 № 1013-р «Об организации и деятельности комиссии по восстановлению прав реабилитированных жертв политических репрессий» Постановление Администрации ЗАТО г. Зеленогорск от 29.03.2023 № 59-п О переименовании муниципальных бюджетных учреждений, находящихся в ведении МКУ «КФиС» Распоряжение Администрации ЗАТО г. Зеленогорск от 24.03.2023 № 480-р О создании рабочей группы по организации онлайн-голосования на официальном сайте единой федеральной платформы «za.gorodsreda.ru» в информационно-телекоммуникационной сети «Интернет» по отбору общественной территории г. Зеленогорска, подлежащей благоустройству в 2024 году Распоряжение Администрации ЗАТО г. Зеленогорск от 23.03.2023 № 454-р Об утверждении состава и Порядка работы комиссии по распределению путевок в загородные оздоровительные лагеря с частичной оплатой их стоимости Постановление Администрации ЗАТО г. Зеленогорск от 23.03.2023 № 58-п Об утверждении Порядков и сроков внесения изменений в перечни главных администраторов доходов местного бюджета и главных администраторов источников финансирования дефицита местного бюджета города Зеленогорска Постановление Администрации ЗАТО г. Зеленогорск от 21.03.2023 № 55-п Об утверждении Порядка составления и утверждения планов финансово-хозяйственной деятельности муниципальных учреждений Постановление Администрации ЗАТО г. Зеленогорск от 23.03.2023 № 56-п Об установлении тарифов на платные физкультурно-оздоровительные услуги, оказываемые МБУ «Спортивный комплекс» Постановление Администрации ЗАТО г. Зеленогорск от 21.03.2023 № 54-п Об утверждении Положения и персонального состава комиссии по делам несовершеннолетних и защите их прав города Зеленогорска Распоряжение Администрации ЗАТО г. Зеленогорск от 20.03.2023 № 437-р «О проведении голосования по отбору общественной территории г. Зеленогорска, подлежащей благоустройству в 2024 году» Постановление Администрации ЗАТО г. Зеленогорск от 17.03.2023 № 53-п О внесении изменений в Примерное положение об оплате труда работников муниципальных бюджетных и казенных учреждений по сопровождению деятельности органов местного самоуправления, утвержденное постановлением Администрации ЗАТО г. Зеленогорска от 09.12.2016 № 345-п Постановление Администрации ЗАТО г. Зеленогорск от 16.03.2023 № 52-п О внесении изменений в муниципальную программу «Развитие образования в городе Зеленогорске», утвержденную постановлением Администрации ЗАТО г. Зеленогорска от 13.12.2021 № 195-п Распоряжение Администрации ЗАТО г. Зеленогорск от 15.03.2023 № 416-р «Об организации работы телефона «горячая линия» по вопросам охраны труда» Постановление Администрации ЗАТО г. Зеленогорск от 15.03.2023 № 51-п О внесении изменений в муниципальную программу «Формирование современной городской среды в городе Зеленогорске», утвержденную постановлением Администрации ЗАТО г. Зеленогорска от 31.10.2017 № 257-п Постановление Администрации ЗАТО г. Зеленогорск от 15.03.2023 № 50-п «О внесении изменений в муниципальную программу «Охрана окружающей среды и защита городских лесов на территории города Зеленогорска», утвержденную постановлением Администрации ЗАТО г. Зеленогорска от 13.12.2021 № 193-п» Постановление Администрации ЗАТО г. Зеленогорск от 15.03.2023 № 48-п «О внесении изменений в муниципальную программу «Реформирование и модернизация жилищно-коммунального хозяйства и повышение энергетической эффективности в городе Зеленогорске», утвержденную постановлением Администрации ЗАТО г. Зеленогорска от 20.12.2021 № 205-п» Распоряжение Администрации ЗАТО г. Зеленогорск от 15.03.2023 № 415-р «О противопаводковых мероприятиях в 2023 году» Распоряжение Администрации ЗАТО г. Зеленогорск от 10.03.2023 № 396-р О внесении изменений в распоряжение Администрации ЗАТО г. Зеленогорска от 16.05.2017 № 1063-р «Об утверждении состава территориальной трехсторонней комиссии по регулированию социально-трудовых отношений» Распоряжение Администрации ЗАТО г. Зеленогорск от 10.03.2023 № 395-р О внесении изменений в распоряжение Администрации ЗАТО г. Зеленогорска от 25.02.2019 № 410-р «Об утверждении состава и Положения о порядке работы комиссии по снижению неформальной занятости, легализации «серой» заработной платы, повышению собираемости страховых взносов во внебюджетные фонды на территории города Зеленогорска» Постановление Администрации ЗАТО г. Зеленогорск от 09.03.2023 № 47-п «О внесении изменений в муниципальную программу «Муниципальное имущество и земельные ресурсы города Зеленогорска», утвержденную постановлением Администрации ЗАТО г. Зеленогорска от 20.12.2021 № 201-п» Постановление Администрации ЗАТО г. Зеленогорск от 06.03.2023 № 45-п «О внесении изменений в постановление Администрации ЗАТО г. Зеленогорск от 07.12.2022 № 178-п «Об установлении тарифов на платные физкультурно-оздоровительные услуги, оказываемые МБУ СШ «Юность» Постановление Администрации ЗАТО г. Зеленогорск от 02.03.2023 № 44-п «О внесении изменений в постановление Администрации ЗАТО г. Зеленогорск от 08.12.2022 № 181-п «Об утверждении перечней главных администраторов доходов местного бюджета и главных администраторов источников финансирования дефицита местного бюджета города Зеленогорска» Постановление Администрации ЗАТО г. Зеленогорск от 02.03.2023 № 43-п «О внесении изменений в постановление Администрации ЗАТО г. Зеленогорска от 19.05.2017 № 110-п «Об установлении размера платы за содержание жилого помещения в многоквартирных домах, собственники помещений в которых не приняли решение об установлении размера платы за содержание жилого помещения» Постановление Администрации ЗАТО г. Зеленогорск от 02.03.2023 № 42-п «О формировании фонда капитального ремонта общего имущества в отношении многоквартирного дома, расположенного по адресу: Россия, Красноярский край, г. Зеленогорск, ул. 8 Марта, д. 2, на счете регионального оператора» Распоряжение Администрации ЗАТО г. Зеленогорск от 02.03.2023 № 370-р «О внесении изменений в распоряжение Администрации ЗАТО г. Зеленогорска от 09.10.2020 № 1674-р «Об утверждении состава и Положения о порядке работы межведомственной комиссии по оценке и обследованию помещения в целях признания его жилым помещением, жилого помещения пригодным (непригодным) для проживания граждан, а также многоквартирного дома в целях признания его аварийным и подлежащим сносу или реконструкции» Постановление Администрации ЗАТО г. Зеленогорск от 01.03.2023 № 39-п «О внесении изменений в муниципальную программу «Капитальное строительство и капитальный ремонт в городе Зеленогорске», утвержденную постановлением Администрации ЗАТО г. Зеленогорска от 13.12.2021 № 197-п» Постановление Администрации ЗАТО г. Зеленогорск от 01.03.2023 № 38-п «О наделении МУП ТС, осуществляющего холодное водоснабжение и водоотведение и эксплуатирующего водопроводные и канализационные сети, статусом гарантирующей организации на территории ЗАТО город Зеленогорск Красноярского края» Постановление Администрации ЗАТО г. Зеленогорск от 28.02.2023 № 37-п «О внесении изменений в постановление Администрации ЗАТО г. Зеленогорска от 18.04.2014 № 96-п «Об утверждении схемы водоснабжения и водоотведения города Зеленогорска» Постановление Администрации ЗАТО г. Зеленогорск от 01.03.2023 № 40-п «Об утверждении Примерного положения об оплате труда работников муниципальных учреждений города Зеленогорска, находящихся в ведении Муниципального казенного учреждения «Комитет по делам культуры и молодежной политики города Зеленогорска» Постановление Администрации ЗАТО г. Зеленогорск от 01.03.2023 № 41-п «Об утверждении муниципальной программы «Укрепление общественного здоровья в Зеленогорске на 2023-2025 годы» Постановление Администрации ЗАТО г. Зеленогорск от 27.02.2023 № 36-п «О внесении изменений в муниципальную программу «Защита населения и территории города Зеленогорска от чрезвычайных ситуаций природного и техногенного характера», утвержденную постановлением Администрации ЗАТО г. Зеленогорска от 23.12.2021 № 208-п» Постановление Администрации ЗАТО г. Зеленогорск от 27.02.2023 № 35-п «О закреплении муниципальных бюджетных образовательных учреждений г. Зеленогорска за конкретными территориями г. Зеленогорска» Постановление Администрации ЗАТО г. Зеленогорск от 22.02.2023 № 34-п О внесении изменений в постановление Администрации ЗАТО г. Зеленогорска от 28.06.2021 № 85-п «О возложении на МКУ «Центр закупок, предпринимательства и обеспечения деятельности ОМС» полномочий отдельных заказчиков в сфере закупок товаров, работ, услуг для обеспечения муниципальных нужд» Распоряжение Администрации ЗАТО г. Зеленогорск от 21.02.2023 № 304-р Об организации отдыха детей и их оздоровления в летний период 2023 года Постановление Администрации ЗАТО г. Зеленогорск от 21.02.2023 № 33-п «Об установлении в общежитиях стоимости услуг по содержанию жилых помещений, принадлежащих на праве собственности муниципальному образованию город Зеленогорск Красноярского края» Распоряжение Администрации ЗАТО г. Зеленогорск от 17.02.2023 № 299-р «Об утверждении состава и Порядка работы комиссии по контролю за поступлением платежей за использование имущества, находящегося в муниципальной собственности города Зеленогорска» Постановление Администрации ЗАТО г. Зеленогорск от 17.02.2023 № 32-п «О внесении изменений в постановление Администрации ЗАТО г. Зеленогорск от 29.12.2022 № 207-п «Об установлении тарифов на услуги автомобильного транспорта, оказываемые УМ АТП» Постановление Администрации ЗАТО г. Зеленогорск от 14.02.2023 № 31-п О внесении изменений в постановление Администрации ЗАТО г. Зеленогорска от 09.12.2016 № 345-п «Об утверждении Примерного положения об оплате труда работников муниципальных бюджетных и казенных учреждений по сопровождению деятельности органов местного самоуправления» Постановление Администрации ЗАТО г. Зеленогорск от 14.02.2023 № 30-п О внесении изменений в муниципальную программу «Развитие физической культуры и спорта в городе Зеленогорске», утвержденную постановлением Администрации ЗАТО г. Зеленогорска от 09.12.2021 № 190-п Постановление Администрации ЗАТО г. Зеленогорск от 13.02.2023 № 29-п «Об установлении тарифов на платные услуги и работы населению по обслуживанию жилищного фонда, оказываемые МУП ГЖКУ» Постановление Администрации ЗАТО г. Зеленогорск от 13.02.2023 № 28-п «О внесении изменений в муниципальную программу «Обеспечение безопасности населения города Зеленогорска», утвержденную постановлением Администрации ЗАТО г. Зеленогорска от 23.12.2021 № 209-п» Постановление Администрации ЗАТО г. Зеленогорск от 10.02.2023 № 27-п «О временном прекращении движения транспортных средств на участке автомобильной дороги общего пользования местного значения города Зеленогорска» Распоряжение Администрации ЗАТО г. Зеленогорск от 10.02.2023 № 244-р «Об антинаркотической комиссии г. Зеленогорска» Распоряжение Администрации ЗАТО г. Зеленогорск от 10.02.2023 № 241-р «О внесении изменений в распоряжение Администрации ЗАТО г. Зеленогорска от 30.12.2021 № 2139-р «Об утверждении состава и Порядка работы комиссии по обеспечению безопасности дорожного движения» Постановление Администрации ЗАТО г. Зеленогорск от 07.02.2023 № 25-п «О внесении изменений в постановление Администрации ЗАТО г. Зеленогорска от 09.12.2021 № 190-п «Об утверждении муниципальной программы «Развитие физической культуры и спорта в городе Зеленогорске» Постановление Администрации ЗАТО г. Зеленогорск от 09.02.2023 № 26-п «Об установлении стоимости гарантированного перечня услуг по погребению, предоставляемых МБУ КБУ» Распоряжение Администрации ЗАТО г. Зеленогорск от 08.02.2023 № 226-р «Об утверждении Положения и состава межведомственной комиссии по профилактике правонарушений на территории города Зеленогорска» Постановление Администрации ЗАТО г. Зеленогорск от 07.02.2023 № 24-п «Об установлении тарифов на платные физкультурно-оздоровительные услуги, оказываемые МБУ СШОР «Старт» Постановление Администрации ЗАТО г. Зеленогорск от 03.02.2023 № 23-п «О внесении изменений в постановление Администрации ЗАТО г. Зеленогорск от 08.12.2022 № 181-п «Об утверждении перечней главных администраторов доходов местного бюджета и главных администраторов источников финансирования дефицита местного бюджета города Зеленогорска» Постановление Администрации ЗАТО г. Зеленогорск от 01.02.2023 № 22-п «О внесении изменений в постановление Администрации ЗАТО г. Зеленогорск от 12.01.2023 № 9-п «О видах обязательных работ, объектах, на которых они отбываются, и местах, в которых отбываются исправительные работы» Распоряжение Администрации ЗАТО г. Зеленогорск от 31.01.2023 № 166-р «О проведении конкурса на включение граждан в резерв управленческих кадров г. Зеленогорска на замещение целевой должности директора Муниципального унитарного предприятия тепловых сетей г. Зеленогорска» Постановление Администрации ЗАТО г. Зеленогорск от 27.01.2023 № 21-п «О внесении изменений в муниципальную программу «Развитие культуры города Зеленогорска», утвержденную постановлением Администрации ЗАТО г. Зеленогорска от 21.12.2021 № 206-п» Постановление Администрации ЗАТО г. Зеленогорск от 27.01.2023 № 20-п «О внесении изменений в муниципальную программу «Развитие молодежной политики города Зеленогорска», утвержденную постановлением Администрации ЗАТО г. Зеленогорска от 27.12.2021 № 211-п» Постановление Администрации ЗАТО г. Зеленогорск от 25.01.2023 № 19-п О внесении изменений в постановление Администрации ЗАТО г. Зеленогорска от 22.09.2020 № 128-п «Об утверждении Примерного положения об оплате труда работников муниципальных бюджетных и казенных учреждений города Зеленогорска, находящихся в ведении Управления образования Администрации ЗАТО г. Зеленогорска» Распоряжение Администрации ЗАТО г. Зеленогорск от 19.01.2023 № 62-р «О внесении изменений в распоряжение Администрации ЗАТО г. Зеленогорска от 26.04.2022 № 815-р «Об утверждении состава муниципальной рабочей группы по осуществлению контроля за реализацией мероприятий по капитальному ремонту здания и созданию детского технопарка «Кванториум» в МБОУ «СОШ № 176» Распоряжение Администрации ЗАТО г. Зеленогорск от 20.01.2023 № 84-р «О внесении изменений в распоряжение Администрации ЗАТО г. Зеленогорск от 05.12.2022 № 2291-р «О муниципальной сети бюджетных учреждений, находящихся в ведении МКУ «КФиС», на 2022 – 2023 учебный год/спортивный сезон» Постановление Администрации ЗАТО г. Зеленогорск от 18.01.2023 № 13-п О признании утратившими силу некоторых постановлений Администрации ЗАТО г. Зеленогорска Постановление Администрации ЗАТО г. Зеленогорск от 19.01.2023 № 16-п О внесении изменений в постановление Администрации ЗАТО г. Зеленогорск от 08.12.2022 № 181-п «Об утверждении перечней главных администраторов доходов местного бюджета и главных администраторов источников финансирования дефицита местного бюджета города Зеленогорска» Постановление Администрации ЗАТО г. Зеленогорск от 20.01.2023 № 17-п Об установлении тарифов на услуги помыва в общих отделениях бань МУП «Дельфин» Постановление Администрации ЗАТО г. Зеленогорск от 19.01.2023 № 15-п О внесении изменений в муниципальную программу «Управление муниципальными финансами города Зеленогорска», утвержденную постановлением Администрации ЗАТО г. Зеленогорска от 25.11.2021 № 171-п Постановление Администрации ЗАТО г. Зеленогорск от 18.01.2023 № 14-п Об определении средней рыночной стоимости одного квадратного метра общей площади жилого помещения на территории города Зеленогорска на I квартал 2023 года Постановление Администрации ЗАТО г. Зеленогорск от 17.01.2023 № 12-п О временном прекращении движения транспортных средств на участке автомобильной дороги общего пользования местного значения города Зеленогорска Постановление Администрации ЗАТО г. Зеленогорск от 16.01.2023 № 10-п «Об утверждении Положения об организации системы внутреннего обеспечения соответствия деятельности Администрации ЗАТО г. Зеленогорск, муниципальных учреждений города требованиям антимонопольного законодательства (антимонопольный комплаенс)» Распоряжение Администрации ЗАТО г. Зеленогорск от 13.01.2023 № 30-р «О внесении изменений в распоряжение Администрации ЗАТО г. Зеленогорска от 12.08.2019 № 1769-р «Об утверждении положения и состава комиссии по предупреждению и ликвидации чрезвычайных ситуаций и обеспечению пожарной безопасности города» Постановление Администрации ЗАТО г. Зеленогорск от 12.01.2023 № 8-п О внесении изменений в постановление Администрации ЗАТО г. Зеленогорска от 23.12.2021 № 208-п «Об утверждении муниципальной программы «Защита населения и территории города Зеленогорска от чрезвычайных ситуаций природного и техногенного характера» Постановление Администрации ЗАТО г. Зеленогорск от 12.01.2023 № 9-п «О видах обязательных работ, объектах, на которых они отбываются, и местах, в которых отбываются исправительные работы» Постановление Администрации ЗАТО г. Зеленогорск от 12.01.2023 № 7-п «О внесении изменений в постановление Администрации ЗАТО г. Зеленогорска от 20.12.2021 № 205-п «Об утверждении муниципальной программы «Реформирование и модернизация жилищно-коммунального хозяйства и повышение энергетической эффективности в городе Зеленогорске» Постановление Администрации ЗАТО г. Зеленогорск от 12.01.2023 № 6-п «Об установлении размера платы за содержание жилого помещения в многоквартирном доме по адресу: г. Зеленогорск, ул. Юбилейная, д. 1д» Постановление Администрации ЗАТО г. Зеленогорск от 10.01.2023 № 2-п «Об утверждении Перечня главных распорядителей средств местного бюджета и подведомственных им получателей средств местного бюджета» Постановление Администрации ЗАТО г. Зеленогорск от 10.01.2023 № 3-п Об установлении размера платы за содержание жилого помещения в многоквартирных домах для нанимателей жилых помещений государственного жилищного фонда, принадлежащего на праве собственности Российской Федерации Постановление Администрации ЗАТО г. Зеленогорск от 29.12.2022 № 206-п О внесении изменений в постановление Администрации ЗАТО г. Зеленогорска от 12.04.2021 № 46-п «Об утверждении Положения о системе оплаты труда работников муниципальных учреждений города Зеленогорска» Постановление Администрации ЗАТО г. Зеленогорск от 10.01.2023 № 5-п «О внесении изменений в постановление Администрации ЗАТО г. Зеленогорска от 31.10.2017 № 257-п «Об утверждении муниципальной программы «Формирование современной городской среды в городе Зеленогорске» Постановление Администрации ЗАТО г. Зеленогорск от 10.01.2023 № 4-п «О внесении изменений в постановление Администрации ЗАТО г. Зеленогорска от 13.12.2021 № 193-п «Об утверждении муниципальной программы «Охрана окружающей среды и защита городских лесов на территории города Зеленогорска» Постановление Администрации ЗАТО г. Зеленогорск от 10.01.2023 № 1-п «О внесении изменений в постановление Администрации ЗАТО г. Зеленогорска от 20.12.2021 № 202-п «Об утверждении муниципальной программы «Развитие транспортной системы в городе Зеленогорске» Постановление Администрации ЗАТО г. Зеленогорск от 29.12.2022 № 221-п О внесении изменений в постановление Администрации ЗАТО г. Зеленогорска от 27.12.2021 № 211-п «Об утверждении муниципальной программы «Развитие молодежной политики города Зеленогорска» Постановление Администрации ЗАТО г. Зеленогорск от 29.12.2022 № 222-п Об утверждении Административного регламента предоставления муниципальной услуги «Постановка на учет и направление детей в образовательные учреждения, реализующие образовательные программы дошкольного образования» Постановление Администрации ЗАТО г. Зеленогорск от 30.12.2022 № 218-п Об утверждении Административного регламента предоставления муниципальной услуги «Подготовка и утверждение документации по планировке территории» Постановление Администрации ЗАТО г. Зеленогорск от 30.12.2022 № 216-п Об утверждении Административного регламента предоставления муниципальной услуги «Направление уведомления о соответствии построенных или реконструированных объектов индивидуального жилищного строительства или садового дома требованиям законодательства Российской Федерации о градостроительной деятельности» Постановление Администрации ЗАТО г. Зеленогорск от 30.12.2022 № 219-п Об утверждении Административного регламента предоставления муниципальной услуги «Предоставление сведений, документов и материалов, содержащихся в государственной информационной системе обеспечения градостроительной деятельности» Постановление Администрации ЗАТО г. Зеленогорск от 29.12.2022 № 220-п Об утверждении Перечня муниципальных услуг, предоставляемых Администрацией ЗАТО г. Зеленогорск в КГБУ «МФЦ» Постановление Администрации ЗАТО г. Зеленогорск от 30.12.2022 № 215-п Об утверждении Административного регламента предоставления муниципальной услуги «Предоставление разрешения на условно разрешенный вид использования земельного участка или объекта капитального строительства» Постановление Администрации ЗАТО г. Зеленогорск от 30.12.2022 № 214-п Об утверждении Административного регламента предоставления муниципальной услуги «Предоставление разрешения на отклонение от предельных параметров разрешенного строительства, реконструкции объектов капитального строительства» Постановление Администрации ЗАТО г. Зеленогорск от 30.12.2022 № 213-п Об утверждении Административного регламента предоставления муниципальной услуги «Выдача разрешения на ввод объекта в эксплуатацию» Постановление Администрации ЗАТО г. Зеленогорск от 30.12.2022 № 212-п Об утверждении Административного регламента предоставления муниципальной услуги «Выдача градостроительного плана земельного участка» Постановление Администрации ЗАТО г. Зеленогорск от 30.12.2022 № 211-п Об утверждении Административного регламента предоставления муниципальной услуги «Выдача разрешения на установку и эксплуатацию рекламных конструкций на соответствующей территории, аннулирование такого разрешения» на территории города Зеленогорска Постановление Администрации ЗАТО г. Зеленогорск от 30.12.2022 № 210-п Об утверждении Административного регламента предоставления муниципальной услуги «Выдача разрешения на строительство объекта капитального строительства (в том числе внесение изменений в разрешение на строительство объекта капитального строительства и внесение изменений в разрешение на строительство объекта капитального строительства в связи с продлением срока действия такого разрешения)» Постановление Администрации ЗАТО г. Зеленогорск от 30.12.2022 № 209-п Об утверждении Административного регламента предоставления муниципальной услуги «Перевод жилого помещения в нежилое помещение и нежилого помещения в жилое помещение» Постановление Администрации ЗАТО г. Зеленогорск от 30.12.2022 № 208-п Об утверждении Административного регламента предоставления муниципальной услуги «Согласование проведения переустройства и (или) перепланировки помещения в многоквартирном доме» Постановление Администрации ЗАТО г. Зеленогорск от 29.12.2022 № 207-п Об установлении тарифов на услуги автомобильного транспорта, оказываемые УМ АТП Постановление Администрации ЗАТО г. Зеленогорск от 27.12.2022 № 202-п Об утверждении Административного регламента предоставления муниципальной услуги «Принятие на учет граждан в качестве нуждающихся в жилых помещениях» Постановление Администрации ЗАТО г. Зеленогорск от 27.12.2022 № 205-п Об утверждении Административного регламента предоставления муниципальной услуги «Предварительное согласование предоставления земельного участка» Постановление Администрации ЗАТО г. Зеленогорск от 27.12.2022 № 204-п Об утверждении Административного регламента предоставления муниципальной услуги «Предоставление земельных участков в аренду без проведения торгов, в постоянное (бессрочное) пользование, в безвозмездное пользование» Постановление Администрации ЗАТО г. Зеленогорск от 27.12.2022 № 203-п Об утверждении Административного регламента предоставления муниципальной услуги «Утверждение схемы расположения земельных участков или земельных участков на кадастровом плане территории» Постановление Администрации ЗАТО г. Зеленогорск от 26.12.2022 № 200-п О внесении изменений в постановление Администрации ЗАТО г. Зеленогорска от 13.12.2021 № 197-п «Об утверждении муниципальной программы «Капитальное строительство и капитальный ремонт в городе Зеленогорске» Распоряжение Администрации ЗАТО г. Зеленогорск от 23.12.2022 № 2489-р О внесении изменений в распоряжение Администрации ЗАТО г. Зеленогорска от 30.08.2021 № 1318-р «О создании комиссии по противодействию коррупции и утверждении Положения о порядке работы комиссии по противодействию коррупции» Постановление Администрации ЗАТО г. Зеленогорск от 23.12.2022 № 199-п О внесении изменений в постановление Администрации ЗАТО г. Зеленогорска от 20.12.2021 № 201-п «Об утверждении муниципальной программы «Муниципальное имущество и земельные ресурсы города Зеленогорска» Постановление Администрации ЗАТО г. Зеленогорск от 23.12.2022 № 198-п О внесении изменений в постановление Администрации ЗАТО г. Зеленогорска от 21.12.2021 № 206-п «Об утверждении муниципальной программы «Развитие культуры города Зеленогорска» Постановление Администрации ЗАТО г. Зеленогорск от 19.12.2022 № 190-п О внесении изменений в постановление Администрации ЗАТО г. Зеленогорска от 13.12.2021 № 195-п «Об утверждении муниципальной программы «Развитие образования в городе Зеленогорске» Распоряжение Администрации ЗАТО г. Зеленогорск от 20.12.2022 № 2476-р О внесении изменений в распоряжение Администрации ЗАТО г. Зеленогорска от 05.02.2014 № 219-р «Об утверждении состава и Положения о координационном комитете содействия занятости населения города Зеленогорска» Постановление Администрации ЗАТО г. Зеленогорск от 21.12.2022 № 196-п О внесении изменений в муниципальную программу «Гражданское общество – закрытое административно-территориальное образование Зеленогорск», утвержденную постановлением Администрации ЗАТО г. Зеленогорска от 06.12.2021 № 186-п Постановление Администрации ЗАТО г. Зеленогорск от 21.12.2022 № 195-п О внесении изменений в постановление Администрации ЗАТО г. Зеленогорска от 12.11.2021 № 165-п «Об утверждении перечней главных администраторов доходов местного бюджета и главных администраторов источников финансирования дефицита местного бюджета города Зеленогорска» Постановление Администрации ЗАТО г. Зеленогорск от 21.12.2022 № 194-п О средстве массовой информации, определенном в качестве официального периодического издания, осуществляющего публикацию муниципальных правовых актов Постановление Администрации ЗАТО г. Зеленогорск от 22.12.2022 № 197-п О внесении изменений в постановление Администрации ЗАТО г. Зеленогорска от 23.12.2021 № 209-п «Об утверждении муниципальной программ «Обеспечение безопасности населения города Зеленогорска» Постановление Администрации ЗАТО г. Зеленогорск от 19.12.2022 № 191-п Об установлении размера платы, взимаемой с родителей (законных представителей) за присмотр и уход за детьми, осваивающими образовательные программы дошкольного образования в муниципальных бюджетных образовательных учреждениях г. Зеленогорска, осуществляющих образовательную деятельность Постановление Администрации ЗАТО г. Зеленогорск от 21.12.2022 № 193-п О внесении изменений в постановление Администрации ЗАТО г. Зеленогорска от 02.03.2015 № 31-п «Об утверждении Положения о порядке и размерах возмещения расходов, связанных со служебными командировками, работникам муниципальных учреждений города Зеленогорска» Постановление Администрации ЗАТО г. Зеленогорск от 19.12.2022 № 189-п О внесении изменений в муниципальную программу «Развитие малого и среднего предпринимательства в городе Зеленогорске», утвержденную постановлением Администрации ЗАТО г. Зеленогорска от 13.12.2021 № 194-п Постановление Администрации ЗАТО г. Зеленогорск от 19.12.2022 № 188-п О внесении изменений в постановление Администрации ЗАТО г. Зеленогорска от 13.12.2021 № 194-п «Об утверждении муниципальной программы «Развитие малого и среднего предпринимательства в городе Зеленогорске» Постановление Администрации ЗАТО г. Зеленогорск от 19.12.2022 № 187-п Об определении органа повседневного управления муниципального звена территориальной подсистемы единой государственной системы предупреждения и ликвидации чрезвычайных ситуаций, уполномоченного на направление операторам связи, редакциям средств массовой информации обращений на передачу сигнала оповещения и (или) экстренной информации, выпуск в эфир (публикацию) сигналов оповещения и (или) экстренной информации Постановление Администрации ЗАТО г. Зеленогорск от 13.12.2022 № 185-п О внесении изменений в постановление Администрации ЗАТО г. Зеленогорска от 13.04.2022 № 69-п «Об изменении существенных условий муниципальных контрактов, контрактов, заключенных до 1 января 2023 года для обеспечения муниципальных нужд» Постановление Администрации ЗАТО г. Зеленогорск от 15.12.2022 № 186-п Об установлении размера платы за содержание жилого помещения в многоквартирном доме по адресу: г. Зеленогорск, ул. Шолохова, д. 11 Постановление Администрации ЗАТО г. Зеленогорск от 12.12.2022 № 184-п О внесении изменений в постановление Администрации ЗАТО г. Зеленогорска от 30.03.2022 № 59-п «Об утверждении краткосрочного плана реализации региональной программы капитального ремонта общего имущества в многоквартирных домах, расположенных на территории города Зеленогорска, на 2023 - 2025 годы» Постановление Администрации ЗАТО г. Зеленогорск от 12.12.2022 № 183-п О внесении изменений в постановление Администрации ЗАТО г. Зеленогорска от 05.04.2019 № 62-п «Об утверждении краткосрочного плана реализации региональной программы капитального ремонта общего имущества в многоквартирных домах, расположенных на территории города Зеленогорска, на 2020 - 2022 годы» Распоряжение Администрации ЗАТО г. Зеленогорск от 13.12.2022 № 2400-р О подготовке проекта межевания территории применительно к территории, расположенной в границах функциональной зоны «Больничный городок» Распоряжение Администрации ЗАТО г. Зеленогорск от 14.12.2022 № 2401-р Об аккредитации журналистов редакций средств массовой информации при Администрации ЗАТО г. Зеленогорск Постановление Администрации ЗАТО г. Зеленогорск от 08.12.2022 № 180-п О внесении изменений в постановление Администрации ЗАТО г. Зеленогорска от 06.12.2021 № 186-п «Об утверждении муниципальной программы «Гражданское общество – закрытое административно-территориальное образование Зеленогорск» Постановление Администрации ЗАТО г. Зеленогорск от 09.12.2022 № 182-п Об установлении режима работы муниципальных организаций, осуществляющих деятельность в сфере торговли, общественного питания и бытового обслуживания города Зеленогорска Постановление Администрации ЗАТО г. Зеленогорск от 08.12.2022 № 181-п "Об утверждении перечней главных администраторов доходов местного бюджета и главных администраторов источников финансирования дефицита местного бюджета города Зеленогорска" Распоряжение Администрации ЗАТО г. Зеленогорск от 06.12.2022 № 2301-р О внесении изменений в распоряжение Администрации ЗАТО г. Зеленогорска от 13.10.2020 № 1691-р «Об утверждении состава и Положения о городской жилищной комиссии» Постановление Администрации ЗАТО г. Зеленогорск от 07.12.2022 № 179-п Об утверждении Порядка организации работы, связанной с реализацией Указа Губернатора Красноярского края от 25.10.2022 № 317-уг «О социально-экономических мерах поддержки лиц, принимающих участие в специальной военной операции, и членов их семей» в части освобождения от платы, взимаемой за присмотр и уход за детьми, осваивающими образовательные программы дошкольного образования в муниципальных образовательных организациях г. Зеленогорска Постановление Администрации ЗАТО г. Зеленогорск от 07.12.2022 № 176-п Об установлении норматива стоимости 1 кв. м общей площади жилья по г. Зеленогорску на 2023 год Постановление Администрации ЗАТО г. Зеленогорск от 06.12.2022 № 175-п О внесении изменений в постановление Администрации ЗАТО г. Зеленогорска от 25.11.2021 № 171-п «Об утверждении муниципальной программы «Управление муниципальными финансами города Зеленогорска» Постановление Администрации ЗАТО г. Зеленогорск от 07.12.2022 № 177-п О внесении изменений в постановление Администрации ЗАТО г. Зеленогорск от 08.11.2022 № 164-п «О присвоении и изменении наименований элементов планировочной структуры и улично-дорожной сети» Распоряжение Администрации ЗАТО г. Зеленогорск от 05.12.2022 № 2291-р О муниципальной сети бюджетных учреждений, находящихся в ведении МКУ «КФиС», на 2022 – 2023 учебный год/спортивный сезон Постановление Администрации ЗАТО г. Зеленогорск от 06.12.2022 № 174-п Об утверждении Сводного плана организации ярмарок на 2023 год Постановление Администрации ЗАТО г. Зеленогорск от 07.12.2022 № 178-п Об установлении тарифов на платные физкультурно-оздоровительные услуги, оказываемые МБУ СШ «Юность» Постановление Администрации ЗАТО г. Зеленогорск от 05.12.2022 № 173-п Об установлении размера платы за пользование жилым помещением (платы за наем) государственного или муниципального жилищного фонда Распоряжение Администрации ЗАТО г. Зеленогорск от 29.11.2022 № 2266-р "Об утверждении состава приемочной комиссии по вопросам перевода, переустройства и (или) перепланировки помещений" Распоряжение Администрации ЗАТО г. Зеленогорск от 30.11.2022 № 2271-р "О создании комиссии по визуальному осмотру технического состояния муниципального имущества, составляющего муниципальную казну города Зеленогорска, предоставленного в аренду" Постановление Администрации ЗАТО г. Зеленогорск от 29.11.2022 № 171-п «Об утверждении Административного регламента предоставления муниципальной услуги «Дача письменных разъяснений налогоплательщикам по вопросам применения муниципальных нормативных правовых актов города Зеленогорска о местных налогах и сборах» Распоряжение Администрации ЗАТО г. Зеленогорск от 29.11.2022 № 2267-р «О внесении изменений в распоряжение Администрации ЗАТО г. Зеленогорска от 11.02.2011 № 226-р «О создании комиссии по вопросам формирования реестра муниципальных услуг» Распоряжение Администрации ЗАТО г. Зеленогорск от 29.11.2022 № 2258-р "Об утверждении состава и Положения о порядке работы комиссии по оказанию поддержки субъектам малого и среднего предпринимательства" Постановление Администрации ЗАТО г. Зеленогорск от 24.11.2022 № 169-п Об осуществлении на территории города Зеленогорска государственных полномочий по обеспечению жилыми помещениями детей-сирот и детей, оставшихся без попечения родителей, лиц из числа детей-сирот и детей, оставшихся без попечения родителей, лиц, которые достигли возраста 23 лет Постановление Администрации ЗАТО г. Зеленогорск от 25.11.2022 № 170-п «Об утверждении видов оплачиваемых общественных работ, организуемых на территории города Зеленогорска в 2023 году» Постановление Администрации ЗАТО г. Зеленогорск от 21.11.2022 № 168-п «О внесении изменений в постановление Администрации ЗАТО г. Зеленогорска от 23.06.2021 № 81-п «Об утверждении Порядка постановки на учет детей, нуждающихся в предоставлении мест в муниципальных образовательных учреждениях г. Зеленогорска, реализующих образовательную программу дошкольного образования» Постановление Администрации ЗАТО г. Зеленогорск от 21.11.2022 № 167-п «О внесении изменений в постановление Администрации ЗАТО г. Зеленогорска от 03.03.2022 № 46-п «Об утверждении Порядка обеспечения горячим питанием отдельных категорий учащихся муниципальных общеобразовательных организаций г. Зеленогорска» Постановление Администрации ЗАТО г. Зеленогорск от 16.11.2022 № 166-п "Об условиях приватизации муниципального имущества" Распоряжение Администрации ЗАТО г. Зеленогорск от 11.11.2022 № 2144-р Об утверждении Плана проведения плановых проверок при осуществлении ведомственного контроля за соблюдением трудового законодательства и иных нормативных правовых актов, содержащих нормы, трудового права, на 2023 год Распоряжение Администрации ЗАТО г. Зеленогорск от 08.11.2022 № 2123-р О внесении изменений в распоряжение Администрации ЗАТО г. Зеленогорска от 16.05.2017 № 1063-р «Об утверждении состава территориальной трехсторонней комиссии по регулированию социально-трудовых отношений» Постановление Администрации ЗАТО г. Зеленогорск от 08.11.2022 № 164-п О присвоении и изменении наименований элементов планировочной структуры и улично-дорожной сети Постановление Администрации ЗАТО г. Зеленогорск от 07.11.2022 № 163-п О внесении изменений в постановление Администрации ЗАТО г. Зеленогорска от 31.10.2017 № 257-п «Об утверждении муниципальной программы «Формирование современной городской среды в городе Зеленогорске» Постановление Администрации ЗАТО г. Зеленогорск от 31.10.2022 № 162-п «О внесении изменений в Примерное положение об оплате труда работников муниципальных бюджетных учреждений города Зеленогорска, осуществляющих деятельность в сфере молодежной политики, находящихся в ведении Муниципального казенного учреждения «Комитет по делам культуры и молодежной политики города Зеленогорска», утвержденное постановлением Администрации ЗАТО г. Зеленогорска от 21.12.2016 № 358-п» Постановление Администрации ЗАТО г. Зеленогорск от 31.10.2022 № 161-п «О внесении изменений в постановление Администрации ЗАТО г. Зеленогорска от 19.10.2017 № 235-п «Об утверждении «Плана действий по ликвидации последствий аварийных ситуаций в системе центрального теплоснабжения» и «Порядка мониторинга системы теплоснабжения» города Зеленогорска» Постановление Администрации ЗАТО г. Зеленогорск от 27.10.2022 № 160-п О внесении изменений в постановление Администрации ЗАТО г. Зеленогорска от 12.11.2021 № 165-п «Об утверждении перечней главных администраторов доходов местного бюджета и главных администраторов источников финансирования дефицита местного бюджета города Зеленогорска» Распоряжение Администрации ЗАТО г. Зеленогорск от 27.10.2022 № 2051-р "Об утверждении Перечня муниципального имущества, свободного от прав третьих лиц (за исключением имущественных прав субъектов малого и среднего предпринимательства) и предназначенного для предоставления субъектам малого и среднего предпринимательства" Распоряжение Администрации ЗАТО г. Зеленогорск от 18.10.2022 № 1980-р "О муниципальной сети образовательных учреждений г. Зеленогорска на 2022 – 2023 учебный год" Постановление Администрации ЗАТО г. Зеленогорск от 18.10.2022 № 159-п "Об утверждении отчета об исполнении местного бюджета города Зеленогорска за девять месяцев 2022 года" Постановление Администрации ЗАТО г. Зеленогорск от 17.10.2022 № 158-п «О внесении изменений в постановление Администрации ЗАТО г. Зеленогорск от 19.09.2022 № 152-п «Об утверждении Перечня муниципальных услуг, предоставляемых Администрацией ЗАТО г. Зеленогорск, и услуг, предоставляемых муниципальными учреждениями г. Зеленогорска» Постановление Администрации ЗАТО г. Зеленогорск от 13.10.2022 № 157-п "Об утверждении Порядка предоставления субсидий в целях финансового обеспечения затрат, возникающих в связи с применением предельного индекса при оказании коммунальных услуг на реализацию отдельных мер по обеспечению ограничения платы граждан за коммунальные услуги" Постановление Администрации ЗАТО г. Зеленогорск от 11.10.2022 № 156-п «О внесении изменений в постановление Администрации ЗАТО г. Зеленогорска от 22.09.2020 № 127-п «О видах обязательных работ, объектах, на которых они отбываются, и местах, в которых отбываются исправительные работы» Распоряжение Администрации ЗАТО г. Зеленогорск от 11.10.2022 № 1881-р "О проведении капитального ремонта общего имущества в многоквартирных домах, расположенных на территории города Зеленогорска в 2023 - 2025 годах" Постановление Администрации ЗАТО г. Зеленогорск от 10.10.2022 № 155-п "Об определении средней рыночной стоимости одного квадратного метра общей площади жилого помещения на территории города Зеленогорска на IV квартал 2022 года" Постановление Администрации ЗАТО г. Зеленогорск от 07.10.2022 № 154-п Об утверждении Порядка предоставления грантов в форме субсидий субъектам малого и среднего предпринимательства в целях финансового обеспечения части затрат на начало ведения предпринимательской деятельности Распоряжение Администрации ЗАТО г. Зеленогорск от 03.10.2022 № 1814-р О проведении капитального ремонта общего имущества в многоквартирных домах, расположенных на территории города Зеленогорска в 2023 - 2025 годах Распоряжение Администрации ЗАТО г. Зеленогорск от 03.10.2022 № 1815-р "Об утверждении состава и Положения о межведомственной комиссии по вопросам демографии, семьи и детства" Распоряжение Администрации ЗАТО г. Зеленогорск от 27.09.2022 № 1782-р "О внесении изменений в распоряжение Администрации ЗАТО г. Зеленогорска от 16.03.2017 № 536-р «Об утверждении состава комиссии по соблюдению требований к служебному поведению муниципальных служащих и урегулированию конфликтов интересов» Распоряжение Администрации ЗАТО г. Зеленогорск от 23.09.2022 № 1754-р О внесении изменений в распоряжение Администрации ЗАТО г. Зеленогорска от 29.09.2014 № 2174-р «Об утверждении состава общественного совета по охране окружающей среды в г. Зеленогорске» Распоряжение Администрации ЗАТО г. Зеленогорск от 20.09.2022 № 1735-р О внесении изменений в распоряжение Администрации ЗАТО г. Зеленогорск от 05.07.2022 № 1199-р «О проведении конкурса на включение граждан в резерв управленческих кадров г. Зеленогорска на замещение должностей руководителей муниципальных бюджетных и казенных учреждений г. Зеленогорска, находящихся в ведении Управления образования Администрации ЗАТО г. Зеленогорска» Постановление Администрации ЗАТО г. Зеленогорск от 19.09.2022 № 151-п О внесении изменений в муниципальную программу «Обеспечение безопасности населения города Зеленогорска», утвержденную постановлением Администрации ЗАТО г. Зеленогорска от 23.12.2021 № 209-п Распоряжение Администрации ЗАТО г. Зеленогорск от 20.09.2022 № 1728-р "Об утверждении состава муниципальной комиссии по обследованию жилых помещений инвалидов и общего имущества в многоквартирных домах, в которых проживают инвалиды, в целях их приспособления с учетом потребностей инвалидов и обеспечения условий их доступности для инвалидов" Постановление Администрации ЗАТО г. Зеленогорск от 19.09.2022 № 152-п Об утверждении Перечня муниципальных услуг, предоставляемых Администрацией ЗАТО г. Зеленогорск, и услуг, предоставляемых муниципальными учреждениями г. Зеленогорска Постановление Администрации ЗАТО г. Зеленогорск от 09.09.2022 № 149-п О начале отопительного периода 2022-2023 годов Постановление Администрации ЗАТО г. Зеленогорск от 07.09.2022 № 148-п О внесении изменений в постановление Администрации ЗАТО г. Зеленогорска от 22.09.2020 № 127-п «О видах обязательных работ, объектах, на которых они отбываются, и местах, в которых отбываются исправительные работы» Постановление Администрации ЗАТО г. Зеленогорск от 07.09.2022 № 147-п "О регулировании тарифов на услуги и работы муниципальных предприятий и учреждений г. Зеленогорска" Распоряжение Администрации ЗАТО г. Зеленогорск от 05.09.2022 № 1600-р "Об утверждении персонального состава общественной комиссии по развитию городской среды" Постановление Администрации ЗАТО г. Зеленогорск от 29.08.2022 № 146-п "Об утверждении Порядка подписания соглашения о предоставлении субсидии собственникам жилых помещений в многоквартирных домах, признанных в установленном порядке аварийными и подлежащими сносу или реконструкции, на приобретение (строительство) другого жилого помещения" Постановление Администрации ЗАТО г. Зеленогорск от 23.08.2022 № 145-п "О внесении изменений в муниципальную программу «Формирование современной городской среды в городе Зеленогорске», утвержденную постановлением Администрации ЗАТО г. Зеленогорска от 31.10.2017 № 257-п" Постановление Администрации ЗАТО г. Зеленогорск от 22.08.2022 № 144-п "О временном прекращении движения транспортных средств на участках автомобильных дорог общего пользования местного значения города Зеленогорска" Распоряжение Администрации ЗАТО г. Зеленогорск от 19.08.2022 № 1502-р «О внесении изменений в распоряжение Администрации ЗАТО г. Зеленогорска от 11.02.2011 № 226-р «О создании комиссии по вопросам формирования реестра муниципальных услуг» Постановление Администрации ЗАТО г. Зеленогорск от 15.08.2022 № 143-п О внесении изменений в Примерное положение об оплате труда работников муниципальных бюджетных и казенных учреждений по сопровождению деятельности органов местного самоуправления, утвержденное постановлением Администрации ЗАТО г. Зеленогорска от 09.12.2016 № 345-п Постановление Администрации ЗАТО г. Зеленогорск от 11.08.2022 № 141-п «Об установлении цен на издание и распространение газеты «Панорама» Постановление Администрации ЗАТО г. Зеленогорск от 11.08.2022 № 142-п О внесении изменений в муниципальную программу «Развитие малого и среднего предпринимательства в городе Зеленогорске», утвержденную постановлением Администрации ЗАТО г. Зеленогорска от 13.12.2021 № 194-п Постановление Администрации ЗАТО г. Зеленогорск от 09.08.2022 № 140-п "Об установлении размера платы за содержание жилого помещения в многоквартирных домах" Постановление Администрации ЗАТО г. Зеленогорск от 29.07.2022 № 139-п О внесении изменений в муниципальную программу «Развитие молодежной политики города Зеленогорска», утвержденную постановлением Администрации ЗАТО г. Зеленогорска от 27.12.2021 № 211-п Постановление Администрации ЗАТО г. Зеленогорск от 28.07.2022 № 135-п О внесении изменений в Примерное положение об оплате труда работников муниципальных бюджетных учреждений города Зеленогорска, осуществляющих деятельность в сфере молодежной политики, находящихся в ведении Муниципального казенного учреждения «Комитет по делам культуры и молодежной политики города Зеленогорска», утвержденное постановлением Администрации ЗАТО г. Зеленогорска от 21.12.2016 № 358-п Распоряжение Администрации ЗАТО г. Зеленогорск от 29.07.2022 № 1372-р О внесении изменений в распоряжение Администрации ЗАТО г. Зеленогорска от 09.10.2020 № 1674-р «Об утверждении состава и Положения о порядке работы межведомственной комиссии по оценке и обследованию помещения в целях признания его жилым помещением, жилого помещения пригодным (непригодным) для проживания граждан, а также многоквартирного дома в целях признания его аварийным и подлежащим сносу или реконструкции» Постановление Администрации ЗАТО г. Зеленогорск от 29.07.2022 № 138-п О внесении изменений в постановление Администрации ЗАТО г. Зеленогорска от 07.10.2020 № 141-п «Об определении деятельности МКУ «Центр закупок, предпринимательства и обеспечения деятельности ОМС» Постановление Администрации ЗАТО г. Зеленогорск от 29.07.2022 № 137-п «Об утверждении Порядка размещения на сайте Администрации ЗАТО г. Зеленогорск и предоставления для опубликования сведений, представляемых муниципальными служащими Администрации ЗАТО г. Зеленогорск» Постановление Администрации ЗАТО г. Зеленогорск от 28.07.2022 № 136-п «О внесении изменений в постановление Администрации ЗАТО г. Зеленогорска от 17.05.2022 № 95-п «О подготовке к отопительному периоду 2022 – 2023 годов» Постановление Администрации ЗАТО г. Зеленогорск от 26.07.2022 № 133-п «О признании утратившими силу некоторых постановлений Администрации ЗАТО г. Зеленогорска» Постановление Администрации ЗАТО г. Зеленогорск от 26.07.2022 № 134-п «О внесении изменений в Административный регламент предоставления муниципальной услуги «Постановка на учет детей в образовательные учреждения, реализующие основную образовательную программу дошкольного образования (детские сады)», утвержденный постановлением Администрации ЗАТО г. Зеленогорска от 30.12.2021 № 212-п» Постановление Администрации ЗАТО г. Зеленогорск от 26.07.2022 № 132-п «О внесении изменений в Перечень главных распорядителей средств местного бюджета и подведомственных им получателей средств местного бюджета, утвержденный постановлением Администрации ЗАТО г. Зеленогорска от 18.05.2020 № 77-п» Постановление Администрации ЗАТО г. Зеленогорск от 21.07.2022 № 131-п О внесении изменений в Примерное положение об оплате труда работников муниципальных бюджетных и казенных учреждений по сопровождению деятельности органов местного самоуправления, утвержденное постановлением Администрации ЗАТО г. Зеленогорска от 09.12.2016 № 345-п Постановление Администрации ЗАТО г. Зеленогорск от 20.07.2022 № 129-п Об утверждении отчета об исполнении местного бюджета города Зеленогорска за 1 полугодие 2022 года Постановление Администрации ЗАТО г. Зеленогорск от 21.07.2022 № 130-п О внесении изменений в Положение о системе оплаты труда работников муниципальных учреждений города Зеленогорска, утвержденное постановлением Администрации ЗАТО г. Зеленогорска от 12.04.2021 № 46-п Постановление Администрации ЗАТО г. Зеленогорск от 14.07.2022 № 128-п О внесении изменений в муниципальную программу «Реформирование и модернизация жилищно-коммунального хозяйства и повышение энергетической эффективности в городе Зеленогорске», утвержденную постановлением Администрации ЗАТО г. Зеленогорска от 20.12.2021 № 205-п Постановление Администрации ЗАТО г. Зеленогорск от 14.07.2022 № 127-п О внесении изменений в Положение о системе оплаты труда работников муниципальных учреждений города Зеленогорска, утвержденное постановлением Администрации ЗАТО г. Зеленогорска от 12.04.2021 № 46-п Постановление Администрации ЗАТО г. Зеленогорск от 08.07.2022 № 124-п О внесении изменений в Примерное положение об оплате труда работников муниципальных бюджетных и казенных учреждений по сопровождению деятельности органов местного самоуправления, утвержденное постановлением Администрации ЗАТО г. Зеленогорска от 09.12.2016 № 345-п Постановление Администрации ЗАТО г. Зеленогорск от 07.07.2022 № 123-п О внесении изменений в муниципальную программу «Развитие физической культуры и спорта в городе Зеленогорске», утвержденную постановлением Администрации ЗАТО г. Зеленогорска от 09.12.2021 № 190-п Распоряжение Администрации ЗАТО г. Зеленогорск от 07.07.2022 № 1221-р О внесении изменений в распоряжение Администрации ЗАТО г. Зеленогорска от 25.11.2021 № 1861-р «Об утверждении Плана проведения плановых проверок при осуществлении ведомственного контроля за соблюдением трудового законодательства и иных нормативных правовых актов, содержащих нормы трудового права, на 2022 год» Распоряжение Администрации ЗАТО г. Зеленогорск от 07.07.2022 № 1214-р О признании утратившими силу отдельных муниципальных правовых актов по вопросам подготовки и проведения Всероссийской переписи населения 2020 года в городе Зеленогорске Постановление Администрации ЗАТО г. Зеленогорск от 08.07.2022 № 126-п Об определении средней рыночной стоимости одного квадратного метра общей площади жилого помещения на территории города Зеленогорска на III квартал 2022 года Распоряжение Администрации ЗАТО г. Зеленогорск от 05.07.2022 № 1199-р О проведении конкурса на включение граждан в резерв управленческих кадров г. Зеленогорска на замещение должностей руководителей муниципальных бюджетных и казенных учреждений г. Зеленогорска, находящихся в ведении Управления образования Администрации ЗАТО г. Зеленогорска Постановление Администрации ЗАТО г. Зеленогорск от 08.07.2022 № 125-п "О внесении изменений в муниципальную программу «Развитие культуры города Зеленогорска», утвержденную постановлением Администрации ЗАТО г. Зеленогорска от 21.12.2021 № 206-п " Постановление Администрации ЗАТО г. Зеленогорск от 01.07.2022 № 122-п О временном прекращении движения транспортных средств на участках автомобильных дорог общего пользования местного значения города Зеленогорска Постановление Администрации ЗАТО г. Зеленогорск от 30.06.2022 № 121-п «Об отмене постановления Администрации ЗАТО г. Зеленогорска от 17.01.2022 № 7-п «О признании утратившими силу некоторых постановлений Администрации ЗАТО г. Зеленогорска» Постановление Администрации ЗАТО г. Зеленогорск от 28.06.2022 № 120-п Об утверждении Порядка составления и утверждения отчета о результатах деятельности муниципального учреждения и об использовании закрепленного за ним муниципального имущества Постановление Администрации ЗАТО г. Зеленогорск от 24.06.2022 № 119-п О реорганизации муниципальных унитарных предприятий МУП «Дельфин» и МУП «Глобус» Распоряжение Администрации ЗАТО г. Зеленогорск от 21.06.2022 № 1126-р Об изъятии земельного участка, на котором расположен многоквартирный дом по адресу: Красноярский край, г. Зеленогорск, ул. Мира, д. 53, признанный аварийным и подлежащим сносу, для муниципальных нужд Постановление Администрации ЗАТО г. Зеленогорска от 23.06.2022 № 118-п О внесении изменений в Проект организации дорожного движения на автомобильных дорогах общего пользования местного значения в г. Зеленогорске Красноярского края, утвержденный постановлением Администрации ЗАТО г. Зеленогорска от 21.08.2018 № 156-п Распоряжение Администрации ЗАТО г. Зеленогорска от 23.06.2022 № 1135-р "О предоставлении отсрочки по уплате арендной платы за пользование имуществом, находящимся в муниципальной собственности города Зеленогорска" Постановление Администрации ЗАТО г. Зеленогорска от 21.06.2022 № 117-п "О внесении изменений в Порядок предоставления субсидий субъектам малого и среднего предпринимательства, а также физическим лицам, применяющим специальный налоговый режим «Налог на профессиональный доход», в целях возмещения части затрат при осуществлении предпринимательской деятельности, утвержденный постановлением Администрации ЗАТО г. Зеленогорска от 15.03.2022 № 52-п" Распоряжение Администрации ЗАТО г. Зеленогорска от 16.06.2022 № 1094-р Об утверждении состава и Положения о работе комиссии по обследованию и осуществлению контроля за закрепленными жилыми помещениями Распоряжение Администрации ЗАТО г. Зеленогорска от 15.06.2022 № 1085-р О предоставлении Шутикову И.С., Демещику А.Н. разрешения на условно разрешенный вид использования земельного участка № 112 по улице Орловская «Амбулаторное ветеринарное обслуживание» Распоряжение Администрации ЗАТО г. Зеленогорска от 15.06.2022 № 1081-р О внесении изменений в распоряжение Администрации ЗАТО г. Зеленогорска от 03.11.2021 № 1766-р «Об утверждении Плана мероприятий по приспособлению жилых помещений, занимаемых инвалидами и семьями, имеющими детей-инвалидов, и используемых для их постоянного проживания, и общего имущества в многоквартирных домах, в которых проживают инвалиды, входящих в состав муниципального жилищного фонда, а также частного жилищного фонда, с учетом потребностей инвалидов и обеспечения условий их доступности для инвалидов» Постановление Администрации ЗАТО г. Зеленогорска от 15.06.2022 № 115-п О внесении изменений в постановление Администрации ЗАТО г. Зеленогорска от 22.09.2020 № 127-п «О видах обязательных работ, объектах, на которых они отбываются, и местах, в которых отбываются исправительные работы» Постановление Администрации ЗАТО г. Зеленогорска от 14.06.2022 № 113-п О разрешении использования в 2022 году в целях купания и отдыха людей озера «Ближнее» и озера «Лебединое» Постановление Администрации ЗАТО г. Зеленогорска от 14.06.2022 № 112-п О временном прекращении движения транспортных средств на участках автомобильных дорог общего пользования местного значения города Зеленогорска Постановление Администрации ЗАТО г. Зеленогорска от 14.06.2022 № 111-п О временном прекращении движения транспортных средств на участках автомобильных дорог общего пользования местного значения города Зеленогорска Постановление Администрации ЗАТО г. Зеленогорска от 07.06.2022 № 108-п О внесении изменений в муниципальную программу «Муниципальное имущество и земельные ресурсы города Зеленогорска», утвержденную постановлением Администрации ЗАТО г. Зеленогорска от 20.12.2021 № 201-п Постановление Администрации ЗАТО г. Зеленогорска от 08.06.2022 № 109-п О внесении изменений в Порядок постановки на учет детей, нуждающихся в предоставлении мест в муниципальных образовательных учреждениях г. Зеленогорска, реализующих образовательную программу дошкольного образования, утвержденный постановлением Администрации ЗАТО г. Зеленогорска от 23.06.2021 № 81-п Постановление Администрации ЗАТО г. Зеленогорска от 08.06.2022 № 110-п О внесении изменений в Положение о системе оплаты труда работников муниципальных учреждений города Зеленогорска, утвержденное постановлением Администрации ЗАТО г. Зеленогорска от 12.04.2021 № 46-п Постановление Администрации ЗАТО г. Зеленогорска от 07.06.2022 № 107-п О внесении изменений в муниципальную программу «Развитие образования в городе Зеленогорске», утвержденную постановлением Администрации ЗАТО г. Зеленогорска от 13.12.2021 № 195-п Распоряжение Администрации ЗАТО г. Зеленогорска от 31.05.2022 № 996-р О подготовке муниципальных бюджетных образовательных учреждений г. Зеленогорска к новому 2022 - 2023 учебному году Распоряжение Администрации ЗАТО г. Зеленогорска от 01.06.2022 № 1010-р О внесении изменений в распоряжение Администрации ЗАТО г. Зеленогорска от 29.09.2014 № 2174-р «Об утверждении состава общественного совета по охране окружающей среды в г. Зеленогорске» Постановление Администрации ЗАТО г. Зеленогорска от 01.06.2022 № 106-п О внесении изменений в муниципальную программу «Гражданское общество – закрытое административно-территориальное образование Зеленогорск», утвержденную постановлением Администрации ЗАТО г. Зеленогорска от 06.12.2021 № 186-п Постановление Администрации ЗАТО г. Зеленогорска от 01.06.2022 № 105-п О внесении изменений в муниципальную программу «Капитальное строительство и капитальный ремонт в городе Зеленогорске», утвержденную постановлением Администрации ЗАТО г. Зеленогорска от 13.12.2021 № 197-п Постановление Администрации ЗАТО г. Зеленогорска от 01.06.2022 № 104-п О внесении изменений в муниципальную программу «Формирование современной городской среды в городе Зеленогорске», утвержденную постановлением Администрации ЗАТО г. Зеленогорска от 31.10.2017 № 257-п Постановление Администрации ЗАТО г. Зеленогорска от 01.06.2022 № 103-п О внесении изменений в муниципальную программу «Развитие транспортной системы в городе Зеленогорске», утвержденную постановлением Администрации ЗАТО г. Зеленогорска от 20.12.2021 № 202-п Постановление Администрации ЗАТО г. Зеленогорска от 30.05.2022 № 102-п О временном прекращении движения транспортных средств на участках автомобильных дорог общего пользования местного значения города Зеленогорска Распоряжение Администрации ЗАТО г. Зеленогорска от 27.05.2022 № 978-р О мероприятиях по организации обустройства мест массового отдыха людей на водных объектах для купания и отдыха в 2022 году Распоряжение Администрации ЗАТО г. Зеленогорска от 27.05.2022 № 982-р Об утверждении описания границ прилегающей территории многоквартирного дома № 6 по ул. Набережная Распоряжение Администрации ЗАТО г. Зеленогорска от 27.05.2022 № 981-р Об утверждении описания границ прилегающей территории многоквартирного дома № 2 по ул. Набережная Распоряжение Администрации ЗАТО г. Зеленогорска от 27.05.2022 № 980-р Об утверждении описания границ прилегающей территории многоквартирного дома № 4 по ул. Комсомольская Распоряжение Администрации ЗАТО г. Зеленогорска от 27.05.2022 № 979-р Об утверждении описания границ прилегающей территории многоквартирного дома № 1 по ул. Набережная Распоряжение Администрации ЗАТО г. Зеленогорска от 26.05.2022 № 977-р Об утверждении описания границ прилегающей территории многоквартирного дома № 8 по ул. Набережная Постановление Администрации ЗАТО г. Зеленогорска от 27.05.2022 № 101-п О внесении изменений в Положение об организации и ведении гражданской обороны в городе Зеленогорске, утвержденное постановлением Администрации ЗАТО г. Зеленогорска от 16.12.2021 № 200-п Постановление Администрации ЗАТО г. Зеленогорска от 25.05.2022 № 100-п О внесении изменений в муниципальную программу «Охрана окружающей среды и защита городских лесов на территории города Зеленогорска», утвержденную постановлением Администрации ЗАТО г. Зеленогорска от 13.12.2021 № 193-п Постановление Администрации ЗАТО г. Зеленогорска от 24.05.2022 № 99-п Об авансовых платежах при заключении получателями средств местного бюджета, а также муниципальными автономными и бюджетными учреждениями договоров (муниципальных контрактов) Постановление Администрации ЗАТО г. Зеленогорска от 19.05.2022 № 97-п "О внесении изменений в Порядок составления и утверждения планов финансово-хозяйственной деятельности муниципальных учреждений, утвержденный постановлением Администрации ЗАТО г. Зеленогорска от 20.01.2020 № 13-п" Постановление Администрации ЗАТО г. Зеленогорска от 19.05.2022 № 96-п Об установлении размера платы за содержание жилого помещения в многоквартирных домах, собственники помещений в которых не приняли решение об установлении размера платы за содержание жилого помещения Постановление Администрации ЗАТО г. Зеленогорска от 16.05.2022 № 92-п О внесении изменений в Проект организации дорожного движения на автомобильных дорогах общего пользования местного значения в г. Зеленогорске Красноярского края, утвержденный постановлением Администрации ЗАТО г. Зеленогорска от 21.08.2018 № 156-п Постановление Администрации ЗАТО г. Зеленогорска от 16.05.2022 № 90-п "О внесении изменений в Примерное положение об оплате труда работников муниципальных бюджетных учреждений города Зеленогорска, осуществляющих деятельность в сфере городского хозяйства, утвержденное постановлением Администрации ЗАТО г. Зеленогорска от 27.01.2020 № 18-п " Постановление Администрации ЗАТО г. Зеленогорска от 16.05.2022 № 89-п "О внесении изменений в Примерное положение об оплате труда работников муниципальных бюджетных и казенных учреждений города Зеленогорска, находящихся в ведении Управления образования Администрации ЗАТО г. Зеленогорска, утвержденное постановлением Администрации ЗАТО г. Зеленогорска от 22.09.2020 № 128-п" Постановление Администрации ЗАТО г. Зеленогорска от 16.05.2022 № 91-п "О внесении изменений в Примерное положение об оплате труда работников муниципальных бюджетных и казенных учреждений, находящихся в ведении МКУ «КФиС», утвержденное постановлением Администрации ЗАТО г. Зеленогорска от 31.08.2018 № 165-п" Постановление Администрации ЗАТО г. Зеленогорска от 16.05.2022 № 88-п "О внесении изменений в Примерное положение об оплате труда работников муниципальных учреждений города Зеленогорска, находящихся в ведении Муниципального казенного учреждения «Комитет по делам культуры и молодежной политики города Зеленогорска», утвержденное постановлением Администрации ЗАТО г. Зеленогорска от 29.08.2017 № 194-п" Постановление Администрации ЗАТО г. Зеленогорска от 16.05.2022 № 87-п "О внесении изменений в Примерное положение об оплате труда работников муниципальных бюджетных учреждений города Зеленогорска, осуществляющих деятельность в сфере молодежной политики, находящихся в ведении Муниципального казенного учреждения «Комитет по делам культуры и молодежной политики города Зеленогорска», утвержденное постановлением Администрации ЗАТО г. Зеленогорска от 21.12.2016 № 358-п" Постановление Администрации ЗАТО г. Зеленогорска от 16.05.2022 № 86-п "О внесении изменений в Примерное положение об оплате труда работников муниципальных бюджетных учреждений дополнительного образования города Зеленогорска, находящихся в ведении Муниципального казенного учреждения «Комитет по делам культуры и молодежной политики города Зеленогорска», утвержденное постановлением Администрации ЗАТО г. Зеленогорска от 23.03.2018 № 44-п " Постановление Администрации ЗАТО г. Зеленогорска от 17.05.2022 № 94-п "Об утверждении шкалы для оценки критериев заявок на участие в открытом конкурсе на право осуществления регулярных перевозок пассажиров и багажа автомобильным транспортом по нерегулируемым тарифам по муниципальным маршрутам регулярных перевозок" Постановление Администрации ЗАТО г. Зеленогорска от 17.05.2022 № 95-п "О подготовке к отопительному периоду 2022 – 2023 годов" Постановление Администрации ЗАТО г. Зеленогорска от 17.05.2022 № 93-п Об определении средней рыночной стоимости одного квадратного метра общей площади жилого помещения на территории г. Зеленогорска на II квартал 2022 года Распоряжение Администрации ЗАТО г. Зеленогорска от 06.05.2022 № 881-р Об утверждении состава конкурсной комиссии муниципального этапа Всероссийского творческого конкурса «Слава Созидателям!», проводимого в 2022 году Постановление Администрации ЗАТО г. Зеленогорска от 13.05.2022 № 85-п О внесении изменений в Порядок изменения по соглашению сторон существенных условий муниципальных контрактов, контрактов, заключенных до 1 января 2023 года для обеспечения муниципальных нужд, если при исполнении таких контрактов возникли не зависящие от сторон контракта обстоятельства, влекущие невозможность их исполнения, утвержденный постановлением Администрации ЗАТО г. Зеленогорска от 13.04.2022 № 69-п Постановление Администрации ЗАТО г. Зеленогорска от 12.05.2022 № 84-п О внесении изменений в постановление Администрации ЗАТО г. Зеленогорска от 05.04.2019 № 62-п «Об утверждении краткосрочного плана реализации региональной программы капитального ремонта общего имущества в многоквартирных домах, расположенных на территории города Зеленогорска, на 2020 - 2022 годы» Постановление Администрации ЗАТО г. Зеленогорска от 12.05.2022 № 83-п О внесении изменений в постановление Администрации ЗАТО г. Зеленогорска от 16.05.2017 № 105-п «Об утверждении краткосрочного плана реализации региональной программы капитального ремонта общего имущества в многоквартирных домах, расположенных на территории города Зеленогорска, на 2017-2019 годы» Распоряжение Администрации ЗАТО г. Зеленогорска от 06.05.2022 № 877-р Об окончании отопительного периода 2021 – 2022 годов Постановление Администрации ЗАТО г. Зеленогорска от 27.04.2022 № 81-п "О внесении изменений в Примерное положение об оплате труда работников муниципальных бюджетных и казенных учреждений по сопровождению деятельности органов местного самоуправления, утвержденное постановлением Администрации ЗАТО г. Зеленогорска от 09.12.2016 № 345-п" Распоряжение Администрации ЗАТО г. Зеленогорска от 26.04.2022 № 815-р «Об утверждении состава муниципальной рабочей группы по осуществлению контроля за реализацией мероприятий по капитальному ремонту здания и созданию детского технопарка «Кванториум» в МБОУ «СОШ № 176» Постановление Администрации ЗАТО г. Зеленогорска от 25.04.2022 № 78-п "Об установлении стоимости гарантированного перечня услуг по погребению, предоставляемых МБУ КБУ" Постановление Администрации ЗАТО г. Зеленогорска от 22.04.2022 № 77-п "О временном прекращении движения транспортных средств на участках автомобильных дорог общего пользования местного значения города Зеленогорска " Распоряжение Администрации ЗАТО г. Зеленогорска от 20.04.2022 № 779-р «О внесении изменений в распоряжение Администрации ЗАТО г. Зеленогорска от 21.06.2021 № 917-р «Об утверждении состава рабочей группы по решению вопросов предоставления государственной социальной помощи на основании социального контракта отдельным категориям граждан» Постановление Администрации ЗАТО г. Зеленогорска от 15.04.2022 № 74-п «О внесении изменений в постановление Администрации ЗАТО г. Зеленогорска от 12.11.2021 № 165-п «Об утверждении перечней главных администраторов доходов местного бюджета и главных администраторов источников финансирования дефицита местного бюджета города Зеленогорска» Постановление Администрации ЗАТО г. Зеленогорска от 20.04.2022 № 76-п "О временном прекращении движения транспортных средств на участках автомобильных дорог общего пользования местного значения города Зеленогорска" Постановление Администрации ЗАТО г. Зеленогорска от 15.04.2022 № 75-п "Об утверждении отчета об исполнении местного бюджета города Зеленогорска за 1 квартал 2022 года" Распоряжение Администрации ЗАТО г. Зеленогорска от 15.04.2022 № 766-р "О подготовке к весенне-летнему пожароопасному сезону на территории г. Зеленогорска в 2022 году" Распоряжение Администрации ЗАТО г. Зеленогорска от 15.04.2022 № 764-р «О внесении изменений в распоряжение Администрации ЗАТО г. Зеленогорска от 15.02.2022 № 293-р «О проведении рейтингового голосования по выбору общественной территории г. Зеленогорска, подлежащей благоустройству в первоочередном порядке в 2023 году» Распоряжение Администрации ЗАТО г. Зеленогорска от 15.04.2022 № 765-р "О создании рабочей группы по организации онлайн-голосования на официальном сайте единой федеральной платформы za.gorodsreda.ru в информационно-телекоммуникационной сети «Интернет» по выбору общественных территорий г. Зеленогорска, подлежащих благоустройству в рамках муниципальной программы «Формирование современной городской среды в городе Зеленогорске» в 2023 году" Распоряжение Администрации ЗАТО г. Зеленогорска от 14.04.2022 № 728-р "Об организации отдыха детей и их оздоровления в летний период 2022 года" Распоряжение Администрации ЗАТО г. Зеленогорска от 14.04.2022 № 727-р "Об утверждении состава и Положения о межведомственной комиссии по организации питания учащихся в муниципальных бюджетных общеобразовательных организациях г. Зеленогорска" Постановление Администрации ЗАТО г. Зеленогорска от 14.04.2022 № 73-п «О внесении изменений в постановление Администрации ЗАТО г. Зеленогорска от 09.08.2021 № 97-п «Об утверждении Правил персонифицированного финансирования дополнительного образования детей в городе Зеленогорске» Распоряжение Администрации ЗАТО г. Зеленогорска от 14.04.2022 № 729-р «О внесении изменений в распоряжение Администрации ЗАТО г. Зеленогорска от 20.03.2020 № 547-р «Об утверждении состава комиссии по решению спорных вопросов по предоставлению субсидий на оплату жилого помещения и коммунальных услуг» Распоряжение Администрации ЗАТО г. Зеленогорска от 15.04.2022 № 741-р "О проведении общегородского месячника по наведению санитарного порядка и благоустройству территории города Зеленогорска" Распоряжение Администрации ЗАТО г. Зеленогорска от 11.04.2022 № 693-р «О внесении изменений в распоряжение Администрации ЗАТО г. Зеленогорска от 30.12.2021 № 2139-р «Об утверждении состава и Порядка работы комиссии по обеспечению безопасности дорожного движения» Постановление Администрации ЗАТО г. Зеленогорска от 14.04.2022 № 72-п "О внесении изменений в Административный регламент, утвержденный постановлением Администрации ЗАТО г. Зеленогорска от 01.09.2021 № 113-п " Постановление Администрации ЗАТО г. Зеленогорска от 14.04.2022 № 70-п "О внесении изменений в состав Координационного совета в области развития малого и среднего предпринимательства, утвержденный постановлением Администрации ЗАТО г. Зеленогорска от 15.09.2021 № 117-п" Постановление Администрации ЗАТО г. Зеленогорска от 14.04.2022 № 71-п "О внесении изменений в Порядок демонтажа нестационарных торговых объектов, размещенных на территории города Зеленогорска, утвержденный постановлением Администрации ЗАТО г. Зеленогорска от 16.10.2017 № 231-п" Постановление Администрации ЗАТО г. Зеленогорска от 13.04.2022 № 69-п "Об изменении существенных условий муниципальных контрактов, контрактов, заключенных до 1 января 2023 года для обеспечения муниципальных нужд " Постановление Администрации ЗАТО г. Зеленогорска от 11.04.2022 № 65-п "О внесении изменений в Примерное положение об оплате труда работников муниципальных бюджетных учреждений города Зеленогорска, осуществляющих деятельность в сфере молодежной политики, находящихся в ведении Муниципального казенного учреждения «Комитет по делам культуры и молодежной политики города Зеленогорска», утвержденное постановлением Администрации ЗАТО г. Зеленогорска от 21.12.2016 № 358-п" Постановление Администрации ЗАТО г. Зеленогорска от 11.04.2022 № 66-п "О внесении изменений в Примерное положение об оплате труда работников муниципальных бюджетных учреждений дополнительного образования города Зеленогорска, находящихся в ведении Муниципального казенного учреждения «Комитет по делам культуры и молодежной политики города Зеленогорска», утвержденное постановлением Администрации ЗАТО г. Зеленогорска от 23.03.2018 № 44-п" Постановление Администрации ЗАТО г. Зеленогорска от 11.04.2022 № 64-п «О внесении изменений в Примерное положение об оплате труда работников муниципальных учреждений города Зеленогорска, находящихся в ведении Муниципального казенного учреждения «Комитет по делам культуры и молодежной политики города Зеленогорска», утвержденное постановлением Администрации ЗАТО г. Зеленогорска от 29.08.2017 № 194-п» Постановление Администрации ЗАТО г. Зеленогорска от 12.04.2022 № 67-п "Об установлении размера платы за содержание жилого помещения в многоквартирных домах, собственники помещений в которых не приняли решение об установлении размера платы за содержание жилого помещения" Распоряжение Администрации ЗАТО г. Зеленогорска от 11.04.2022 № 692-р «О внесении изменений в распоряжение Администрации ЗАТО г. Зеленогорска от 07.12.2017 № 2772-р «Об утверждении состава и Положения о порядке работы комиссии по оказанию поддержки субъектам малого и среднего предпринимательства» Распоряжение Администрации ЗАТО г. Зеленогорска от 08.04.2022 № 686-р "О предоставлении отсрочки по уплате арендной платы за пользование имуществом, находящимся в муниципальной собственности города Зеленогорска" Постановление Администрации ЗАТО г. Зеленогорска от 06.04.2022 № 61-п Об утверждении Порядка предоставления субсидий в целях возмещения недополученных доходов, возникающих в связи с оказанием услуг по содержанию жилых помещений муниципального жилищного фонда Постановление Администрации ЗАТО г. Зеленогорска от 06.04.2022 № 62-п О признании утратившими силу некоторых постановлений Администрации ЗАТО г. Зеленогорска Постановление Администрации ЗАТО г. Зеленогорска от 05.04.2022 № 60-п Об утверждении Порядка предоставления субсидий в целях возмещения затрат на содержание, ремонт объектов внешнего благоустройства, находящихся в собственности муниципального образования город Зеленогорск Постановление Администрации ЗАТО г. Зеленогорска от 30.03.2022 № 59-п Об утверждении краткосрочного плана реализации региональной программы капитального ремонта общего имущества в многоквартирных домах, расположенных на территории города Зеленогорска, на 2023 - 2025 годы Распоряжение Администрации ЗАТО г. Зеленогорска от 30.03.2022 № 624-р О противопаводковых мероприятиях в 2022 году Распоряжение Администрации ЗАТО г. Зеленогорска от 30.03.2022 № 631-р "О внесении изменений в состав территориальной трехсторонней комиссии по регулированию социально-трудовых отношений, утвержденный распоряжением Администрации ЗАТО г. Зеленогорска от 16.05.2017 № 1063-р" Распоряжение Администрации ЗАТО г. Зеленогорска от 21.03.2022 № 536-р О проведении муниципального этапа Всероссийского творческого конкурса «Слава Созидателям!» в 2022 году Постановление Администрации ЗАТО г. Зеленогорска от 23.03.2022 № 56-п «О внесении изменений в Примерное положение об оплате труда работников муниципальных бюджетных и казенных учреждений по сопровождению деятельности органов местного самоуправления, утвержденное постановлением Администрации ЗАТО г. Зеленогорска от 09.12.2016 № 345-п» Распоряжение Администрации ЗАТО г. Зеленогорска от 23.03.2022 № 568-р «Об организации работы телефона «горячая линия» по вопросам охраны труда» Постановление Администрации ЗАТО г. Зеленогорска от 23.03.2022 № 58-п О признании утратившими силу некоторых постановлений Администрации ЗАТО г. Зеленогорска Распоряжение Администрации ЗАТО г. Зеленогорска от 24.03.2022 № 596-р Об участии в конкурсе лучших проектов создания комфортной городской среды Постановление Администрации ЗАТО г. Зеленогорска от 23.03.2022 № 57-п О признании утратившими силу некоторых постановлений Администрации ЗАТО г. Зеленогорска Постановление Администрации ЗАТО г. Зеленогорска от 21.03.2022 № 54-п О признании утратившими силу некоторых постановлений Администрации ЗАТО г. Зеленогорска Постановление Администрации ЗАТО г. Зеленогорска от 21.03.2022 № 55-п О внесении изменений в Примерное положение об оплате труда работников муниципальных бюджетных и казенных учреждений города Зеленогорска, находящихся в ведении Управления образования Администрации ЗАТО г. Зеленогорска, утвержденное постановлением Администрации ЗАТО г. Зеленогорска от 22.09.2020 № 128-п Распоряжение Администрации ЗАТО г. Зеленогорска от 21.03.2022 № 549-р О начале приема предложений от населения о предлагаемых мероприятиях и функциях на общественной территории, отобранной для участия во Всероссийском конкурсе лучших проектов создания комфортной городской среды Постановление Администрации ЗАТО г. Зеленогорска от 16.03.2022 № 53-п О внесении изменений в постановление Администрации ЗАТО г. Зеленогорска от 25.02.2019 № 37-п «Об утверждении Порядка присуждения премий Главы ЗАТО г. Зеленогорска одаренным обучающимся муниципальных бюджетных образовательных учреждений г. Зеленогорска» Постановление Администрации ЗАТО г. Зеленогорска от 15.03.2022 № 52-п Об утверждении Порядка предоставления субсидий субъектам малого и среднего предпринимательства, а также физическим лицам, применяющим специальный налоговый режим «Налог на профессиональный доход», в целях возмещения части затрат при осуществлении предпринимательской деятельности Постановление Администрации ЗАТО г. Зеленогорска от 15.03.2022 № 50-п О внесении изменений в постановление Администрации ЗАТО г. Зеленогорска от 01.12.2017 № 296-п «Об определении специально отведенного места для проведения встреч депутатов с избирателями и утверждении Порядка предоставления органами местного самоуправления г. Зеленогорска помещения для проведения встреч депутатов с избирателями» Постановление Администрации ЗАТО г. Зеленогорска от 10.03.2022 № 49-п "О внесении изменений в перечень главных администраторов доходов местного бюджета города Зеленогорска, утвержденный постановлением Администрации ЗАТО г. Зеленогорска от 12.11.2021 № 165-п " Постановление Администрации ЗАТО г. Зеленогорска от 05.03.2022 № 48-п "О внесении изменений в состав Координационного совета в области развития малого и среднего предпринимательства, утвержденный постановлением Администрации ЗАТО г. Зеленогорска от 15.09.2021 № 117-п" Постановление Администрации ЗАТО г. Зеленогорска от 04.03.2022 № 47-п "О признании утратившими силу некоторых постановлений Администрации ЗАТО г. Зеленогорска" Постановление Администрации ЗАТО г. Зеленогорска от 03.03.2022 № 46-п "Об утверждении Порядка обеспечения горячим питанием отдельных категорий учащихся муниципальных общеобразовательных организаций г. Зеленогорска" Постановление Администрации ЗАТО г. Зеленогорска от 02.03.2022 № 43-п "О признании утратившим силу некоторых постановлений Администрации ЗАТО г. Зеленогорска" Постановление Администрации ЗАТО г. Зеленогорска от 02.03.2022 № 42-п "О внесении изменений в муниципальную программу «Развитие малого и среднего предпринимательства в городе Зеленогорске», утвержденную постановлением Администрации ЗАТО г. Зеленогорска от 13.12.2021 № 194-п" Распоряжение Администрации ЗАТО г. Зеленогорска от 02.03.2022 № 390-р «О внесении изменений в распоряжение Администрации ЗАТО г. Зеленогорска от 03.11.2021 № 1766-р «Об утверждении Плана мероприятий по приспособлению жилых помещений, занимаемых инвалидами и семьями, имеющими детей-инвалидов, и используемых для их постоянного проживания, и общего имущества в многоквартирных домах, в которых проживают инвалиды, входящих в состав муниципального жилищного фонда, а также частного жилищного фонда, с учетом потребностей инвалидов и обеспечения условий их доступности для инвалидов» Постановление Администрации ЗАТО г. Зеленогорска от 02.03.2022 № 45-п "О признании утратившими силу некоторых постановлений Администрации ЗАТО г. Зеленогорска" Постановление Администрации ЗАТО г. Зеленогорска от 02.03.2022 № 44-п "Об установлении размера платы за содержание жилого помещения в общежитиях государственного жилищного фонда, переданных ООО «Квадра Пи-Эль» по договору доверительного управления" Распоряжение Администрации ЗАТО г. Зеленогорска от 02.03.2022 № 353-р «О внесении изменений в распоряжение Администрации ЗАТО г. Зеленогорска от 18.04.2019 № 898-р «Об утверждении состава и Порядка работы комиссии по распределению путевок с частичной оплатой их стоимости в загородные лагеря» Постановление Администрации ЗАТО г. Зеленогорска от 01.03.2022 № 41-п "О внесении изменений в муниципальную программу «Развитие культуры города Зеленогорска», утвержденную постановлением Администрации ЗАТО г. Зеленогорска от 21.12.2021 № 206-п " Постановление Администрации ЗАТО г. Зеленогорска от 25.02.2022 № 40-п "О внесении изменений в муниципальную программу «Развитие физической культуры и спорта в городе Зеленогорске», утвержденную постановлением Администрации ЗАТО г. Зеленогорска от 12.11.2015 № 284-п" Распоряжение Администрации ЗАТО г. Зеленогорска от 28.02.2022 № 364-р "Об участии во Всероссийском конкурсе лучших проектов создания комфортной городской среды" Постановление Администрации ЗАТО г. Зеленогорска от 24.02.2022 № 38-п О внесении изменений в Примерное положение об оплате труда работников муниципальных бюджетных и казенных учреждений, находящихся в ведении МКУ «КФиС», утвержденное постановлением Администрации ЗАТО г. Зеленогорска от 31.08.2018 № 165-п Постановление Администрации ЗАТО г. Зеленогорска от 24.02.2022 № 37-п О внесении изменений в постановление Администрации ЗАТО г. Зеленогорска от 18.01.2021 № 13-п «О внедрении системы персонифицированного финансирования дополнительного образования детей в городе Зеленогорске Постановление Администрации ЗАТО г. Зеленогорска от 24.02.2022 № 39-п "О внесении изменений в муниципальную программу «Обеспечение безопасности населения города Зеленогорска», утвержденную постановлением Администрации ЗАТО г. Зеленогорска от 25.01.2019 № 6-п" Постановление Администрации ЗАТО г. Зеленогорска от 16.02.2022 № 34-п О внесении изменений в постановление Администрации ЗАТО г. Зеленогорска от 14.02.2018 № 27-п «Об утверждении Положения о порядке подготовки, согласования, подписания, регистрации и хранения муниципальных контрактов, договоров и соглашений, заключаемых от имени муниципального образования город Зеленогорск Красноярского края или Администрации ЗАТО г. Зеленогорска» Постановление Администрации ЗАТО г. Зеленогорска от 14.02.2022 № 30-п О создании и об утверждении Положения о муниципальной автоматизированной системе централизованного оповещения населения города Зеленогорска Постановление Администрации ЗАТО г. Зеленогорска от 16.02.2022 № 36-п Об определении средней рыночной стоимости одного квадратного метра общей площади жилого помещения на территории г. Зеленогорска на I квартал 2022 года Постановление Администрации ЗАТО г. Зеленогорска от 16.02.2022 № 35-п О внесении изменений в постановление Администрации ЗАТО г. Зеленогорска от 12.11.2015 № 286-п «Об утверждении муниципальной программы «Защита населения и территории города Зеленогорска от чрезвычайных ситуаций природного и техногенного характера» Постановление Администрации ЗАТО г. Зеленогорска от 14.02.2022 № 32-п О признании утратившими силу некоторых постановлений Администрации ЗАТО г. Зеленогорска Постановление Администрации ЗАТО г. Зеленогорска от 14.02.2022 № 31-п О закреплении муниципальных бюджетных образовательных учреждений г. Зеленогорска за конкретными территориями г. Зеленогорска Распоряжение Администрации ЗАТО г. Зеленогорска от 15.02.2022 № 293-р О проведении рейтингового голосования по выбору общественной территории г. Зеленогорска, подлежащей благоустройству в первоочередном порядке в 2023 году Постановление Администрации ЗАТО г. Зеленогорска от 15.02.2022 № 33-п "Об установлении расчетной стоимости 1 кв. м общей площади жилых помещений в целях признания граждан малоимущими на I квартал 2022 года" Распоряжение Администрации ЗАТО г. Зеленогорска от 31.01.2022 № 194-р Об утверждении списка граждан, претендующих на получение социальной выплаты для приобретения жилого помещения за границами закрытого административно-территориального образования Зеленогорск, по состоянию на 01.01.2022 Постановление Администрации ЗАТО г. Зеленогорска от 07.02.2022 № 25-п О внесении изменений в Примерное положение об оплате труда работников муниципальных бюджетных и казенных учреждений по сопровождению деятельности органов местного самоуправления, утвержденное постановлением Администрации ЗАТО г. Зеленогорска от 09.12.2016 № 345-п Распоряжение Администрации ЗАТО г. Зеленогорска от 07.02.2022 № 208-р О внесении изменений в распоряжение Администрации ЗАТО г. Зеленогорска от 14.04.2014 № 728-р «Об утверждении состава и Порядка работы территориальной психолого-медико-педагогической комиссии г. Зеленогорска» Постановление Администрации ЗАТО г. Зеленогорска от 07.02.2022 № 26-п О внесении изменений в постановление Администрации ЗАТО г. Зеленогорска от 12.11.2015 № 288-п «Об утверждении муниципальной программы «Развитие культуры города Зеленогорска» Постановление Администрации ЗАТО г. Зеленогорска от 07.02.2022 № 28-п О внесении изменений в постановление Администрации ЗАТО г. Зеленогорска от 22.09.2020 № 127-п «О видах обязательных работ, объектах, на которых они отбываются, и местах, в которых отбываются исправительные работы» Постановление Администрации ЗАТО г. Зеленогорска от 07.02.2022 № 27-п О признании утратившими силу некоторых постановлений Администрации ЗАТО г. Зеленогорска Постановление Администрации ЗАТО г. Зеленогорска от 07.02.2022 № 24-п О признании утратившими силу некоторых постановлений Администрации ЗАТО г. Зеленогорска Распоряжение Администрации ЗАТО г. Зеленогорска от 31.01.2022 № 190-р О внесении изменений в распоряжение Администрации ЗАТО г. Зеленогорска от 10.03.2020 № 497-р «Об утверждении состава и Положения о работе комиссии, осуществляющей плановую (внеплановую) проверку использования, сохранности и распоряжения жилыми помещениями, нанимателями или членами семей нанимателей по договорам социального найма либо собственниками которых являются дети-сироты и дети, оставшиеся без попечения родителей, обеспечения надлежащего санитарного и технического состояния этих жилых помещений» Постановление Администрации ЗАТО г. Зеленогорска от 02.02.2022 № 23-п О внесении изменений в муниципальную программу «Развитие образования в городе Зеленогорске», утвержденную постановлением Администрации ЗАТО г. Зеленогорска от 12.11.2015 № 295-п Постановление Администрации ЗАТО г. Зеленогорска от 01.02.2022 № 20-п «О внесении изменений в Административный регламент предоставления муниципальной услуги «Утверждение схем расположения земельных участков на кадастровом плане территории», утвержденный постановлением Администрации ЗАТО г. Зеленогорска от 01.07.2016 № 199-п» Постановление Администрации ЗАТО г. Зеленогорска от 01.02.2022 № 22-п «О внесении изменений в постановление Администрации ЗАТО г. Зеленогорска от 12.11.2015 № 296-п «Об утверждении муниципальной программы «Развитие молодежной политики города Зеленогорска» Постановление Администрации ЗАТО г. Зеленогорска от 01.02.2022 № 21-п О внесении изменений в муниципальную программу «Капитальное строительство и капитальный ремонт в городе Зеленогорске», утвержденную постановлением Администрации ЗАТО г. Зеленогорска от 12.11.2015 № 292-п Распоряжение Администрации ЗАТО г. Зеленогорска от 21.01.2022 № 88-р О внесении изменений в распоряжение Администрации ЗАТО г. Зеленогорска от 08.07.2021 № 1010-р «Об утверждении Перечня муниципального имущества, свободного от прав третьих лиц (за исключением имущественных прав субъектов малого и среднего предпринимательства) и предназначенного для предоставления субъектам малого и среднего предпринимательства» Постановление Администрации ЗАТО г. Зеленогорска от 28.01.2022 № 19-п О признании утратившими силу некоторых постановлений Администрации ЗАТО г. Зеленогорска Постановление Администрации ЗАТО г. Зеленогорска от 25.01.2022 № 17-п О признании утратившими силу некоторых постановлений Администрации ЗАТО г. Зеленогорска Постановление Администрации ЗАТО г. Зеленогорска от 26.01.2022 № 18-п О внесении изменений в муниципальную программу «Реформирование и модернизация жилищно-коммунального хозяйства и повышение энергетической эффективности в городе Зеленогорске», утвержденную постановлением Администрации ЗАТО г. Зеленогорска от 12.11.2015 № 293-п Постановление Администрации ЗАТО г. Зеленогорска от 24.01.2022 № 16-п О признании утратившими силу некоторых постановлений Администрации ЗАТО г. Зеленогорска Постановление Администрации ЗАТО г. Зеленогорска от 24.01.2022 № 15-п О признании утратившими силу некоторых постановлений Администрации ЗАТО г. Зеленогорска Постановление Администрации ЗАТО г. Зеленогорска от 21.01.2022 № 14-п Об установлении норматива стоимости 1 кв. м общей площади жилья по г. Зеленогорску на 2022 год Постановление Администрации ЗАТО г. Зеленогорска от 18.01.2022 № 11-п О внесении изменений в муниципальную программу «Муниципальное имущество и земельные ресурсы города Зеленогорска», утвержденную постановлением Администрации ЗАТО г. Зеленогорска от 19.12.2017 № 323-п Постановление Администрации ЗАТО г. Зеленогорска от 20.01.2022 № 13-п О внесении изменений в постановление Администрации ЗАТО г. Зеленогорска от 18.12.2017 № 322-п «Об установлении размера платы за содержание жилого помещения в многоквартирных домах» Постановление Администрации ЗАТО г. Зеленогорска от 20.01.2022 № 12-п О временном прекращении движения транспортных средств на участке автомобильной дороги общего пользования местного значения города Зеленогорска Постановление Администрации ЗАТО г. Зеленогорска от 17.01.2022 № 7-п О признании утратившими силу некоторых постановлений Администрации ЗАТО г. Зеленогорска Постановление Администрации ЗАТО г. Зеленогорска от 17.01.2022 № 10-п О внесении изменений в муниципальную программу «Формирование современной городской среды в городе Зеленогорске», утвержденную постановлением Администрации ЗАТО г. Зеленогорска от 31.10.2017 № 257-п Постановление Администрации ЗАТО г. Зеленогорска от 17.01.2022 № 9-п О внесении изменений в муниципальную программу «Развитие транспортной системы в городе Зеленогорске», утвержденную постановлением Администрации ЗАТО г. Зеленогорска от 12.11.2015 № 291-п Постановление Администрации ЗАТО г. Зеленогорска от 17.01.2022 № 8-п Об утверждении видов оплачиваемых общественных работ, организуемых на территории города Зеленогорска в 2022 году Постановление Администрации ЗАТО г. Зеленогорска от 12.01.2022 № 3-п О признании утратившими силу некоторых постановлений Администрации ЗАТО г. Зеленогорска Постановление Администрации ЗАТО г. Зеленогорска от 12.01.2022 № 5-п О внесении изменений в муниципальную программу «Управление муниципальными финансами города Зеленогорска», утвержденную постановлением Администрации ЗАТО г. Зеленогорска от 12.11.2015 № 287-п Постановление Администрации ЗАТО г. Зеленогорска от 10.01.2022 № 2-п Об установлении размера платы, взимаемой с родителей (законных представителей) за присмотр и уход за детьми в муниципальных бюджетных образовательных учреждениях г. Зеленогорска Постановление Администрации ЗАТО г. Зеленогорска от 14.01.2022 № 6-п Об утверждении Порядка предоставления субсидий в целях возмещения затрат в связи с оказанием услуг по содержанию жилых помещений и (или) предоставлением коммунальных услуг до заселения жилых помещений муниципального жилищного фонда Постановление Администрации ЗАТО г. Зеленогорска от 12.01.2022 № 4-п О внесении изменений в муниципальную программу «Охрана окружающей среды и защита городских лесов на территории города Зеленогорска», утвержденную постановлением Администрации ЗАТО г. Зеленогорска от 12.11.2015 № 289-п Постановление Администрации ЗАТО г. Зеленогорска от 30.12.2021 № 214-п Об утверждении Административного регламента предоставления муниципальной услуги «Предоставление информации о порядке предоставления жилищно-коммунальных услуг» Распоряжение Администрации ЗАТО г. Зеленогорска от 10.01.2022 № 1-р О проведении конкурса на включение граждан в резерв управленческих кадров г. Зеленогорска на замещение целевой должности директора Унитарного муниципального автотранспортного предприятия г.Зеленогорска Распоряжение Администрации ЗАТО г. Зеленогорска от 30.12.2021 № 2139-р Об утверждении состава и Порядка работы комиссии по обеспечению безопасности дорожного движения Постановление Администрации ЗАТО г. Зеленогорска от 30.12.2021 № 213-п Об утверждении Административного регламента предоставления муниципальной услуги «Предоставление информации об организации общедоступного и бесплатного дошкольного, начального общего, основного общего, среднего общего образования в общеобразовательных учреждениях» Постановление Администрации ЗАТО г. Зеленогорска от 30.12.2021 № 212-п Об утверждении Административного регламента предоставления муниципальной услуги «Постановка на учет детей в образовательные учреждения, реализующие основную образовательную программу дошкольного образования (детские сады)» Постановление Администрации ЗАТО г. Зеленогорска от 27.12.2021 № 211-п Об утверждении муниципальной программы «Развитие молодежной политики города Зеленогорска» Постановление Администрации ЗАТО г. Зеленогорска от 20.12.2021 № 201-п Об утверждении муниципальной программы «Муниципальное имущество и земельные ресурсы города Зеленогорска» Распоряжение Администрации ЗАТО г. Зеленогорска от 16.12.2021 № 2012-р О признании утратившими силу отдельных распоряжений Администрации ЗАТО г. Зеленогорска Постановление Администрации ЗАТО г. Зеленогорска от 20.12.2021 № 202-п Об утверждении муниципальной программы «Развитие транспортной системы в городе Зеленогорске» Постановление Администрации ЗАТО г. Зеленогорска от 23.12.2021 № 209-п Об утверждении муниципальной программы «Обеспечение безопасности населения города Зеленогорска» Постановление Администрации ЗАТО г. Зеленогорска от 23.12.2021 № 210-п О признании утратившими силу некоторых постановлений Администрации ЗАТО г. Зеленогорска Постановление Администрации ЗАТО г. Зеленогорска от 21.12.2021 № 206-п Об утверждении муниципальной программы «Развитие культуры города Зеленогорска» Распоряжение Администрации ЗАТО г. Зеленогорска от 20.12.2021 № 2057-р О внесении изменений в распоряжение Администрации ЗАТО г. Зеленогорска от 25.02.2019 № 410-р «Об утверждении состава и Положения о порядке работы комиссии по снижению неформальной занятости, легализации «серой» заработной платы, повышению собираемости страховых взносов во внебюджетные фонды на территории города Зеленогорска» Распоряжение Администрации ЗАТО г. Зеленогорска от 22.12.2021 № 2078-р О внесении изменений в распоряжение Администрации ЗАТО г. Зеленогорска от 04.02.2019 № 201-р «Об утверждении состава и Порядка работы комиссии по размещению нестационарных торговых объектов» Постановление Администрации ЗАТО г. Зеленогорска от 23.12.2021 № 207-п О внесении изменений в постановление Администрации ЗАТО г. Зеленогорска от 14.10.2021 № 124-п «Об утверждении Порядка и Нормативов расходования средств местного бюджета города Зеленогорска на финансовое обеспечение официальных физкультурных и спортивных мероприятий» Постановление Администрации ЗАТО г. Зеленогорска от 23.12.2021 № 208-п «Об утверждении муниципальной программы «Защита населения и территории города Зеленогорска от чрезвычайных ситуаций природного и техногенного характера» Постановление Администрации ЗАТО г. Зеленогорска от 20.12.2021 № 203-п О средстве массовой информации, определенном в качестве официального периодического издания, осуществляющего публикацию муниципальных правовых актов г. Зеленогорска Постановление Администрации ЗАТО г. Зеленогорска от 20.12.2021 № 204-п "О внесении изменений в Примерное положение об оплате труда работников муниципальных бюджетных учреждений города Зеленогорска, осуществляющих деятельность в сфере городского хозяйства, утвержденное постановлением Администрации ЗАТО г. Зеленогорска от 27.01.2020 № 18-п" Постановление Администрации ЗАТО г. Зеленогорска от 20.12.2021 № 205-п «Об утверждении муниципальной программы «Реформирование и модернизация жилищно-коммунального хозяйства и повышение энергетической эффективности в городе Зеленогорске» Распоряжение Администрации ЗАТО г. Зеленогорска от 14.12.2021 № 1988-р О признании утратившим силу распоряжения Администрации ЗАТО г. Зеленогорска от 08.04.2015 № 709-р «Об утверждении образцов урн для сбора мусора, устанавливаемых на территории г. Зеленогорска» Постановление Администрации ЗАТО г. Зеленогорска от 16.12.2021 № 200-п Об утверждении Положения об организации и ведении гражданской обороны в городе Зеленогорске Постановление Администрации ЗАТО г. Зеленогорска от 14.12.2021 № 199-п О внесении изменений в муниципальную программу «Развитие малого и среднего предпринимательства в городе Зеленогорске», утвержденную постановлением Администрации ЗАТО г. Зеленогорска от 29.09.2017 № 222-п Постановление Администрации ЗАТО г. Зеленогорска от 13.12.2021 № 192-п О внесении изменений в постановление Администрации ЗАТО г. Зеленогорска от 12.11.2015 № 285-п «Об утверждении муниципальной программы «Гражданское общество – закрытое административно-территориальное образование Зеленогорск» Постановление Администрации ЗАТО г. Зеленогорска от 13.12.2021 № 195-п Об утверждении муниципальной программы «Развитие образования в городе Зеленогорске» Постановление Администрации ЗАТО г. Зеленогорска от 13.12.2021 № 194-п Об утверждении муниципальной программы «Развитие малого и среднего предпринимательства в городе Зеленогорске» Постановление Администрации ЗАТО г. Зеленогорска от 13.12.2021 № 198-п Об утверждении Сводного плана организации ярмарок на 2022 год Постановление Администрации ЗАТО г. Зеленогорска от 13.12.2021 № 196-п О внесении изменений в постановление Администрации ЗАТО г. Зеленогорска от 31.10.2017 № 257-п «Об утверждении муниципальной программы «Формирование современной городской среды в городе Зеленогорске» Постановление Администрации ЗАТО г. Зеленогорска от 13.12.2021 № 197-п Об утверждении муниципальной программы «Капитальное строительство и капитальный ремонт в городе Зеленогорске» Постановление Администрации ЗАТО г. Зеленогорска от 13.12.2021 № 193-п Об утверждении муниципальной программы «Охрана окружающей среды и защита городских лесов на территории города Зеленогорска» Постановление Администрации ЗАТО г. Зеленогорска от 09.12.2021 № 190-п Об утверждении муниципальной программы «Развитие физической культуры и спорта в городе Зеленогорске» Постановление Администрации ЗАТО г. Зеленогорска от 09.12.2021 № 191-п Об утверждении Административного регламента предоставления муниципальной услуги «Выдача выписок из Реестра муниципального имущества города Зеленогорска» Постановление Администрации ЗАТО г. Зеленогорска от 06.12.2021 № 188-п О внесении изменений в постановление Администрации ЗАТО г. Зеленогорска от 30.06.2016 № 181-п «Об утверждении Административного регламента предоставления муниципальной услуги «Предоставление информации об объектах недвижимого имущества, находящегося в муниципальной собственности и предназначенного для сдачи в аренду, безвозмездное пользование, доверительное управление» Распоряжение Администрации ЗАТО г. Зеленогорска от 09.12.2021 № 1945-р О внесении изменений в распоряжение Администрации ЗАТО г. Зеленогорска от 03.11.2021 № 1766-р «Об утверждении Плана мероприятий по приспособлению жилых помещений, занимаемых инвалидами и семьями, имеющими детей-инвалидов, и используемых для их постоянного проживания, и общего имущества в многоквартирных домах, в которых проживают инвалиды, входящих в состав муниципального жилищного фонда, а также частного жилищного фонда, с учетом потребностей инвалидов и обеспечения условий их доступности для инвалидов» Распоряжение Администрации ЗАТО г. Зеленогорска от 03.12.2021 № 1904-р Об аккредитации журналистов редакций средств массовой информации при Администрации ЗАТО г. Зеленогорска Постановление Администрации ЗАТО г. Зеленогорска от 06.12.2021 № 187-п Об установлении размера платы за содержание жилого помещения в многоквартирных домах, собственники помещений в которых не приняли решение об установлении размера платы за содержание жилого помещения Постановление Администрации ЗАТО г. Зеленогорска от 06.12.2021 № 186-п Об утверждении муниципальной программы «Гражданское общество – закрытое административно-территориальное образование Зеленогорск» Распоряжение Администрации ЗАТО г. Зеленогорска от 06.12.2021 № 1916-р О признании утратившим силу распоряжения Администрации ЗАТО г. Зеленогорска от 30.09.2020 № 1592-р «Об утверждении Положения и состава комиссии по оказанию содействия в подготовке и проведении сельскохозяйственной микропереписи 2021 года в городе Зеленогорске» Постановление Администрации ЗАТО г. Зеленогорска от 07.12.2021 № 189-п О внесении изменений в Положение о системе оплаты труда работников муниципальных учреждений города Зеленогорска, утвержденное постановлением Администрации ЗАТО г. Зеленогорска от 12.04.2021 № 46-п Постановление Администрации ЗАТО г. Зеленогорска от 01.12.2021 № 184-п "Об установлении размера платы за содержание жилого помещения в многоквартирных домах для нанимателей жилых помещений государственного жилищного фонда, принадлежащего на праве собственности Российской Федерации" Постановление Администрации ЗАТО г. Зеленогорска от 01.12.2021 № 183-п "Об установлении размера платы за пользование жилым помещением (платы за наем) государственного или муниципального жилищного фонда" Постановление Администрации ЗАТО г. Зеленогорска от 01.12.2021 № 173-п "О внесении изменений в Порядок размещения на сайте Администрации ЗАТО г. Зеленогорска и предоставления для опубликования сведений, представляемых муниципальными служащими Администрации ЗАТО г. Зеленогорска, утвержденный постановлением Администрации ЗАТО г. Зеленогорска от 31.08.2017 № 198-п" Постановление Администрации ЗАТО г. Зеленогорска от 01.12.2021 № 172-п "О внесении изменений в Примерное положение об оплате труда работников муниципальных бюджетных и казенных учреждений по сопровождению деятельности органов местного самоуправления, утвержденное постановлением Администрации ЗАТО г. Зеленогорска от 09.12.2016 № 345-п" Постановление Администрации ЗАТО г. Зеленогорска от 02.12.2021 № 185-п «О внесении изменений в постановление Администрации ЗАТО г. Зеленогорска от 18.05.2020 № 78-п «Об утверждении Положения и персонального состава комиссии по делам несовершеннолетних и защите их прав города Зеленогорска» Постановление Администрации ЗАТО г. Зеленогорска от 01.12.2021 № 182-п "О внесении изменений в Административный регламент предоставления муниципальной услуги ««Предоставление земельных участков в безвозмездное пользование», утвержденный постановлением Администрации ЗАТО г. Зеленогорска от 01.07.2016 № 200-п" Постановление Администрации ЗАТО г. Зеленогорска от 01.12.2021 № 181-п "О внесении изменений в Административный регламент предоставления муниципальной услуги «Утверждение схем расположения земельных участков на кадастровом плане территории», утвержденный постановлением Администрации ЗАТО г. Зеленогорска от 01.07.2016 № 199-п" Постановление Администрации ЗАТО г. Зеленогорска от 01.12.2021 № 180-п "О внесении изменений в Административный регламент предоставления муниципальной услуги «Предоставление земельных участков в аренду без проведения торгов, за исключением предоставления земельных участков, на которых расположены здания, сооружения, а также земельных участков для индивидуального жилищного строительства, ведения личного подсобного хозяйства, садоводства, для осуществления крестьянским (фермерским) хозяйством его деятельности», утвержденный постановлением Администрации ЗАТО г. Зеленогорска от 01.07.2016 № 198-п" Постановление Администрации ЗАТО г. Зеленогорска от 01.12.2021 № 179-п "О внесении изменений в Административный регламент предоставления муниципальной услуги «Предварительное согласование предоставления земельных участков для индивидуального жилищного строительства, ведения личного подсобного хозяйства, садоводства, для осуществления крестьянским (фермерским) хозяйством его деятельности», утвержденный постановлением Администрации ЗАТО г. Зеленогорска от 01.07.2016 № 197-п" Постановление Администрации ЗАТО г. Зеленогорска от 01.12.2021 № 178-п "О внесении изменений в Административный регламент предоставления муниципальной услуги «Предоставление земельных участков в аренду без проведения торгов для индивидуального жилищного строительства, ведения личного подсобного хозяйства, садоводства, для осуществления крестьянским (фермерским) хозяйством его деятельности», утвержденный постановлением Администрации ЗАТО г. Зеленогорска от 01.07.2016 № 196-п" Постановление Администрации ЗАТО г. Зеленогорска от 01.12.2021 № 177-п "О внесении изменений в Административный регламент предоставления муниципальной услуги «Предварительное согласование предоставления земельных участков, за исключением предварительного согласования предоставления земельных участков для индивидуального жилищного строительства, ведения личного подсобного хозяйства, садоводства, для осуществления крестьянским (фермерским) хозяйством его деятельности», утвержденный постановлением Администрации ЗАТО г. Зеленогорска от 01.07.2016 № 195-п" Постановление Администрации ЗАТО г. Зеленогорска от 01.12.2021 № 176-п "О внесении изменений в Административный регламент предоставления муниципальной услуги «Предоставление земельных участков в постоянное (бессрочное) пользование», утвержденный постановлением Администрации ЗАТО г. Зеленогорска от 01.07.2016 № 194-п" Постановление Администрации ЗАТО г. Зеленогорска от 01.12.2021 № 175-п "О внесении изменений в Административный регламент предоставления муниципальной услуги «Прекращение прав на земельные участки (пожизненное наследуемое владение, постоянное (бессрочное) пользование)», утвержденный постановлением Администрации ЗАТО г. Зеленогорска от 01.07.2016 № 193-п " Постановление Администрации ЗАТО г. Зеленогорска от 01.12.2021 № 174-п "О внесении изменений в Административный регламент предоставления муниципальной услуги «Предоставление в аренду без проведения торгов земельных участков, на которых расположены здания, сооружения», утвержденный постановлением Администрации ЗАТО г. Зеленогорска от 01.07.2016 № 192-п " Распоряжение Администрации ЗАТО г. Зеленогорска от 25.11.2021 № 1861-р "Об утверждении Плана проведения плановых проверок при осуществлении ведомственного контроля за соблюдением трудового законодательства и иных нормативных правовых актов, содержащих нормы трудового права, на 2022 год" Постановление Администрации ЗАТО г. Зеленогорска от 25.11.2021 № 171-п «Об утверждении муниципальной программы «Управление муниципальными финансами города Зеленогорска» Постановление Администрации ЗАТО г. Зеленогорска от 19.11.2021 № 169-п О внесении изменений в постановление Администрации ЗАТО г. Зеленогорска от 05.04.2019 № 62-п «Об утверждении краткосрочного плана реализации региональной программы капитального ремонта общего имущества в многоквартирных домах, расположенных на территории города Зеленогорска, на 2020 - 2022 годы» Постановление Администрации ЗАТО г. Зеленогорска от 18.11.2021 № 168-п Об утверждении Положения о комиссии по соблюдению требований к служебному поведению муниципальных служащих и урегулированию конфликтов интересов Постановление Администрации ЗАТО г. Зеленогорска от 15.11.2021 № 165-пб О внесении изменений в муниципальную программу «Реформирование и модернизация жилищно-коммунального хозяйства и повышение энергетической эффективности в городе Зеленогорске», утвержденную постановлением Администрации ЗАТО г. Зеленогорска от 12.11.2015 № 293-п Постановление Администрации ЗАТО г. Зеленогорска от 16.11.2021 № 167-п Об утверждении Административного регламента предоставления муниципальной услуги «Предоставление информации об очередности предоставления жилых помещений на условиях социального найма» Постановление Администрации ЗАТО г. Зеленогорска от 16.11.2021 № 166-п Об утверждении Административного регламента предоставления муниципальной услуги «Постановка граждан на учет в качестве нуждающихся в жилых помещениях» Постановление Администрации ЗАТО г. Зеленогорска от 12.11.2021 № 165-п "Об утверждении перечней главных администраторов доходов местного бюджета и главных администраторов источников финансирования дефицита местного бюджета города Зеленогорска" Распоряжение Администрации ЗАТО г. Зеленогорска от 03.11.2021 № 1766-р Об утверждении Плана мероприятий по приспособлению жилых помещений, занимаемых инвалидами и семьями, имеющими детей-инвалидов, и используемых для их постоянного проживания, и общего имущества в многоквартирных домах, в которых проживают инвалиды, входящих в состав муниципального жилищного фонда, а также частного жилищного фонда, с учетом потребностей инвалидов и обеспечения условий их доступности для инвалидов Распоряжение Администрации ЗАТО г. Зеленогорска от 12.11.2021 № 1798-р О назначении общественных обсуждений по проектной документации «Строительство III очереди полигона твердых бытовых отходов в г. Зеленогорске», включая предварительные материалы оценки воздействия на окружающую среду Распоряжение Администрации ЗАТО г. Зеленогорска от 10.11.2021 № 1784-р "О внесении изменений в распоряжение Администрации ЗАТО г. Зеленогорска от 12.08.2019 № 1769-р "Об утверждении положения и состава комиссии по предупреждению и ликвидации чрезвычайных ситуаций и обеспечению пожарной безопасности города" Постановление Администрации ЗАТО г. Зеленогорска от 11.11.2021 № 164-п "Об установлении расчетной стоимости 1 кв. м общей площади жилых помещений в целях признания граждан малоимущими на IV квартал 2021 года" Постановление Администрации ЗАТО г. Зеленогорска от 11.11.2021 № 163-п "Об определении средней рыночной стоимости одного квадратного метра общей площади жилого помещения на территории г. Зеленогорска на IV квартал 2021 года" Распоряжение Администрации ЗАТО г. Зеленогорска от 01.11.2021 № 1754-р О внесении изменений в распоряжение Администрации ЗАТО г. Зеленогорска от 12.08.2019 № 1769-р «Об утверждении положения и состава комиссии по предупреждению и ликвидации чрезвычайных ситуаций и обеспечению пожарной безопасности города» Постановление Администрации ЗАТО г. Зеленогорска от 27.10.2021 № 161-п "Об определении муниципального бюджетного учреждения, выполняющего работы и оказывающего услуги по содержанию мест захоронения на территории г. Зеленогорска" Постановление Администрации ЗАТО г. Зеленогорска от 26.10.2021 № 160-п ''Об установлении стоимости гарантированного перечня услуг по погребению, предоставляемых МБУ КБУ'' Распоряжение Администрации ЗАТО г. Зеленогорска от 25.10.2021 № 1677-р ''Об утверждении Плана-графика разработки схемы теплоснабжения города Зеленогорска на 2022 - 2031 годы'' Постановление Администрации ЗАТО г. Зеленогорска от 20.10.2021 № 159-п ''Об утверждении проекта планировки территории и проекта межевания территории в отношении территории микрорайона № 27 (1 и 2 очереди) города Зеленогорска'' Постановление Администрации ЗАТО г. Зеленогорска от 20.10.2021 № 158-п ''Об утверждении проекта планировки территории и проекта межевания территории в отношении территории микрорайона № 23 города Зеленогорска'' Постановление Администрации ЗАТО г. Зеленогорска от 20.10.2021 № 157-п ''Об утверждении проекта планировки территории и проекта межевания территории в отношении территории части квартала № 13 города Зеленогорска'' Постановление Администрации ЗАТО г. Зеленогорска от 20.10.2021 № 156-п ''Об утверждении проекта планировки территории и проекта межевания территории в отношении территории части квартала № 33 города Зеленогорска'' Постановление Администрации ЗАТО г. Зеленогорска от 20.10.2021 № 155-п ''Об утверждении проекта планировки территории и проекта межевания территории в отношении территории микрорайона № 20 города Зеленогорска'' Постановление Администрации ЗАТО г. Зеленогорска от 20.10.2021 № 154-п ''Об утверждении проекта планировки территории и проекта межевания территории в отношении территории части квартала № 12 города Зеленогорска'' Постановление Администрации ЗАТО г. Зеленогорска от 20.10.2021 № 153-п ''Об утверждении проекта планировки территории и проекта межевания территории в отношении территории квартала № 14-15 города Зеленогорска'' Постановление Администрации ЗАТО г. Зеленогорска от 20.10.2021 № 152-п ''Об утверждении проекта планировки территории и проекта межевания территории в отношении территории квартала № 8 города Зеленогорска'' Постановление Администрации ЗАТО г. Зеленогорска от 20.10.2021 № 151-п ''Об утверждении проекта планировки территории и проекта межевания территории в отношении территории квартала № 4 города Зеленогорска'' Постановление Администрации ЗАТО г. Зеленогорска от 20.10.2021 № 150-п ''Об утверждении проекта планировки территории и проекта межевания территории в отношении территории, ограниченной улицами Диктатуры Пролетариата, Советской Армии, Л.Толстого, Гоголя'' Постановление Администрации ЗАТО г. Зеленогорска от 20.10.2021 № 149-п ''Об утверждении проекта планировки территории и проекта межевания территории в отношении территории квартала № 3 города Зеленогорска'' Постановление Администрации ЗАТО г. Зеленогорска от 20.10.2021 № 148-п ''Об утверждении проекта планировки территории и проекта межевания территории в отношении территории, ограниченной улицами Диктатуры Пролетариата, Советской Армии, 8 Марта, Гоголя'' Постановление Администрации ЗАТО г. Зеленогорска от 20.10.2021 № 147-п ''Об утверждении проекта планировки территории и проекта межевания территории в отношении территории, ограниченной улицами Звездная, Центральная, Солнечная и Спортивная'' Постановление Администрации ЗАТО г. Зеленогорска от 20.10.2021 № 146-п ''Об утверждении проекта планировки территории и проекта межевания территории в отношении территории, ограниченной улицами Шолохова, Чапаева, Панфилова и земельным участком, имеющим кадастровый номер 24:59:0406003:1'' Постановление Администрации ЗАТО г. Зеленогорска от 20.10.2021 № 145-п ''Об утверждении проекта планировки территории и проекта межевания территории в отношении территории, ограниченной улицами Шолохова, Чапаева, Панфилова, включая территорию многоквартирных домов по ул. Чапаева, д. 13 и ул. Шолохова, д. 4, д. 6, д. 16'' Постановление Администрации ЗАТО г. Зеленогорска от 20.10.2021 № 144-п ''Об утверждении проекта планировки территории и проекта межевания территории в отношении территории, ограниченной улицами Диктатуры Пролетариата, Полевая, Юбилейная и переулком Малый'' Постановление Администрации ЗАТО г. Зеленогорска от 20.10.2021 № 143-п ''Об утверждении проекта планировки территории и проекта межевания территории в отношении территории, ограниченной улицами Удачная, Монтажников'' Постановление Администрации ЗАТО г. Зеленогорска от 20.10.2021 № 142-п ''Об утверждении проекта планировки территории и проекта межевания территории в отношении территории, ограниченной улицами Первостроителей, Удачная, Монтажников'' Постановление Администрации ЗАТО г. Зеленогорска от 20.10.2021 № 141-п ''Об утверждении проекта планировки территории и проекта межевания территории в отношении территории, ограниченной улицами Диктатуры Пролетариата, Советской Армии, Юбилейная, Полевая'' Постановление Администрации ЗАТО г. Зеленогорска от 20.10.2021 № 140-п ''Об утверждении проекта планировки территории и проекта межевания территории в отношении территории, ограниченной улицами Диктатуры Пролетариата, Советской Армии, Юбилейная, 8 Марта'' Постановление Администрации ЗАТО г. Зеленогорска от 20.10.2021 № 139-п ''Об утверждении проекта планировки территории и проекта межевания территории в отношении территории, ограниченной улицами Диктатуры Пролетариата, Л.Толстого, Гоголя, Полевая'' Постановление Администрации ЗАТО г. Зеленогорска от 19.10.2021 № 138-п ''Об утверждении отчета об исполнении местного бюджета города Зеленогорска за 9 месяцев 2021 года'' Постановление Администрации ЗАТО г. Зеленогорска от 18.10.2021 № 137-п ''О внесении изменений в муниципальную программу «Формирование современной городской среды в городе Зеленогорске», утвержденную постановлением Администрации ЗАТО г. Зеленогорска от 31.10.2017 № 257-п'' Распоряжение Администрации ЗАТО г. Зеленогорска от 14.10.2021 № 1595-р "О подготовке граждан, подлежащих призыву на военную службу, по военно - учётным специальностям в 2020 - 2021 учебном году и задачах на 2021 - 2022 учебный год" Постановление Администрации ЗАТО г. Зеленогорска от 15.10.2021 № 136-п ''Об утверждении Административного регламента предоставления муниципальной услуги «Направление уведомлений о соответствии построенных или реконструированных объекта индивидуального жилищного строительства или садового дома требованиям законодательства о градостроительной деятельности»'' Постановление Администрации ЗАТО г. Зеленогорска от 15.10.2021 № 135-п ''Об утверждении Административного регламента предоставления муниципальной услуги «Направление уведомлений о соответствии указанных в уведомлении о планируемых строительстве или реконструкции объекта индивидуального жилищного строительства или садового дома параметров объекта индивидуального жилищного строительства или садового дома установленным параметрам и допустимости размещения объекта индивидуального жилищного строительства или садового дома на земельном участке»'' Постановление Администрации ЗАТО г. Зеленогорска от 15.10.2021 № 134-п ''Об утверждении Административного регламента предоставления муниципальной услуги «Выдача разрешений на установку и эксплуатацию рекламных конструкций»'' Постановление Администрации ЗАТО г. Зеленогорска от 15.10.2021 № 133-п ''Об утверждении Административного регламента предоставления муниципальной услуги «Выдача решений о переводе или об отказе в переводе жилого помещения в нежилое помещение или нежилого помещения в жилое помещение»'' Постановление Администрации ЗАТО г. Зеленогорска от 15.10.2021 № 132-п ''Об утверждении Административного регламента предоставления муниципальной услуги «Согласование переустройства и (или) перепланировки помещения в многоквартирном доме»'' Постановление Администрации ЗАТО г. Зеленогорска от 15.10.2021 № 131-п ''Об утверждении Административного регламента предоставления муниципальной услуги «Выдача градостроительных планов земельных участков»'' Постановление Администрации ЗАТО г. Зеленогорска от 15.10.2021 № 130-п ''Об утверждении Административного регламента предоставления муниципальной услуги «Предоставление сведений из информационной системы обеспечения градостроительной деятельности (ИСОГД)» '' Постановление Администрации ЗАТО г. Зеленогорска от 15.10.2021 № 129-п ''Об утверждении Административного регламента предоставления муниципальной услуги «Предоставление разрешения на условно разрешенный вид использования земельного участка или объекта капитального строительства»'' Постановление Администрации ЗАТО г. Зеленогорска от 15.10.2021 № 128-п ''Об утверждении Административного регламента предоставления муниципальной услуги «Предоставление разрешения на отклонение от предельных параметров разрешенного строительства, реконструкции объектов капитального строительства»'' Постановление Администрации ЗАТО г. Зеленогорска от 15.10.2021 № 127-п ''Об утверждении Административного регламента предоставления муниципальной услуги «Внесение изменений в разрешение на строительство»'' Постановление Администрации ЗАТО г. Зеленогорска от 15.10.2021 № 126-п ''Об утверждении Административного регламента предоставления муниципальной услуги «Выдача разрешений на строительство, реконструкцию объектов капитального строительства»'' Постановление Администрации ЗАТО г. Зеленогорска от 15.10.2021 № 125-п ''Об утверждении Административного регламента предоставления муниципальной услуги «Выдача разрешений на ввод в эксплуатацию объектов капитального строительства»'' Распоряжение Администрации ЗАТО г. Зеленогорска от 07.10.2021 № 1583-р ''О внесении изменений в распоряжение Администрации ЗАТО г. Зеленогорска от 20.03.2020 № 547-р «Об утверждении состава комиссии по решению спорных вопросов по предоставлению субсидий на оплату жилого помещения и коммунальных услуг»'' Постановление Администрации ЗАТО г. Зеленогорска от 14.10.2021 № 124-п ''Об утверждении Порядка и Нормативов расходования средств местного бюджета города Зеленогорска на финансовое обеспечение официальных физкультурных и спортивных мероприятий'' Постановление Администрации ЗАТО г. Зеленогорска от 11.10.2021 № 122-п ''О внесении изменений в постановление Администрации ЗАТО г. Зеленогорска от 19.06.2013 № 247-п «Об утверждении Порядка осуществления проверки достоверности и полноты сведений о доходах, об имуществе и обязательствах имущественного характера, представляемых лицами, поступающими на должности руководителей муниципальных учреждений г. Зеленогорска, и руководителями муниципальных учреждений г. Зеленогорска»'' Постановление Администрации ЗАТО г. Зеленогорска от 14.10.2021 № 123-п ''Об утверждении Порядка формирования и финансового обеспечения выполнения муниципального задания на оказание муниципальных услуг (выполнение работ) муниципальными учреждениями города Зеленогорска'' Распоряжение Администрации ЗАТО г. Зеленогорска от 07.10.2021 № 1583-р ''О муниципальной сети образовательных учреждений г. Зеленогорска на 2021 – 2022 учебный год'' Постановление Администрации ЗАТО г. Зеленогорска от 07.10.2021 № 121-п ''О внесении изменений в постановление Администрации ЗАТО г. Зеленогорска от 05.04.2019 № 62-п ''Об утверждении краткосрочного плана реализации региональной программы капитального ремонта общего имущества в многоквартирных домах, расположенных на территории города Зеленогорска, на 2020 - 2022 годы'' Постановление Администрации ЗАТО г. Зеленогорска от 06.10.2021 № 120-п ''Об отмене постановления Администрации ЗАТО г. Зеленогорска от 23.06.2021 № 80-п ''Об установлении стоимости гарантированного перечня услуг по погребению, предоставляемых МБУ КБ'''' Распоряжение Администрации ЗАТО г. Зеленогорска от 29.09.2021 № 1477-р Об определении границ прилегающей территории многоквартирного дома № 1 по ул. Ленина Распоряжение Администрации ЗАТО г. Зеленогорска от 29.09.2021 № 1476-р Об определении границ прилегающей территории к многоквартирному дому № 1 по ул. Энергетиков Постановление Администрации ЗАТО г. Зеленогорска от 23.09.2021 № 118-п О внесении изменений в Примерное положение об оплате труда работников муниципальных бюджетных учреждений города Зеленогорска, осуществляющих деятельность в сфере городского хозяйства, утвержденное постановлением Администрации ЗАТО г. Зеленогорска от 27.01.2020 № 18-п Постановление Администрации ЗАТО г. Зеленогорска от 15.09.2021 № 117-п ''О Координационном совете в области развития малого и среднего предпринимательства'' Распоряжение Администрации ЗАТО г. Зеленогорска от 10.09.2021 № 1365-р О внесении изменений в распоряжение Администрации ЗАТО г. Зеленогорска от 25.11.2020 № 1941-р «Об утверждении Плана проведения плановых проверок при осуществлении ведомственного контроля за соблюдением трудового законодательства и иных нормативных правовых актов, содержащих нормы трудового права, на 2021 год» Распоряжение Администрации ЗАТО г. Зеленогорска от 10.09.2021 № 1363-р О внесении изменений в распоряжение Администрации ЗАТО г. Зеленогорска от 07.12.2017 № 2772-р «Об утверждении состава и Положения о порядке работы комиссии по оказанию поддержки субъектам малого и среднего предпринимательства» Распоряжение Администрации ЗАТО г. Зеленогорска от 09.09.2021 № 1361-р О внесении изменений в распоряжение Администрации ЗАТО г. Зеленогорска от 24.08.2015 № 1623-р «О создании рабочей группы по формированию и реализации муниципальных программ города Зеленогорска» Распоряжение Администрации ЗАТО г. Зеленогорска от 09.09.2021 № 1358-р О начале отопительного периода 2021 - 2022 годов Постановление Администрации ЗАТО г. Зеленогорска от 06.09.2021 № 115-п О внесении изменений в постановление Администрации ЗАТО г. Зеленогорска от 22.03.2016 № 68-п «Об утверждении Порядка обеспечения горячим питанием отдельных категорий учащихся муниципальных общеобразовательных организаций г. Зеленогорска» Постановление Администрации ЗАТО г. Зеленогорска от 06.09.2021 № 116-п О внесении изменений в постановление Администрации ЗАТО г. Зеленогорска от 22.11.2017 № 280-п «Об утверждении Положения о предоставлении во владение и (или) пользование муниципального имущества социально ориентированным некоммерческим организациям» Постановление Администрации ЗАТО г. Зеленогорска от 06.09.2021 № 114-п О внесении изменений в постановление Администрации ЗАТО г. Зеленогорска от 11.01.2013 № 6-п «Об образовании избирательных участков на территории г. Зеленогорска и утверждения их границ для проведения голосования и подсчета голосов избирателей, участников референдума» Постановление Администрации ЗАТО г. Зеленогорска от 31.08.2021 № 112-п ''О временном прекращении движения транспортных средств на участках автомобильных дорог общего пользования местного значения города Зеленогорска'' Распоряжение Администрации ЗАТО г. Зеленогорска от 01.09.2021 № 1329-р О внесении изменений в распоряжение Администрации ЗАТО г. Зеленогорска от 14.06.2018 № 1082-р «Об утверждении Перечня муниципального имущества, свободного от прав третьих лиц (за исключением имущественных прав некоммерческих организаций) и предназначенного для предоставления социально ориентированным некоммерческим организациям» Постановление Администрации ЗАТО г. Зеленогорска от 01.09.2021 № 113-п "Об утверждении Административного регламента предоставления муниципальной услуги «Выдача разрешений на право организации розничных рынков»" Постановление Администрации ЗАТО г. Зеленогорска от 30.08.2021 № 109-п "О внесении изменений в постановление Администрации ЗАТО г. Зеленогорска от 18.12.2015 № 326-п «Об утверждении Перечня муниципальных услуг, предоставляемых Администрацией ЗАТО г. Зеленогорска, и услуг, предоставляемых муниципальными учреждениями г. Зеленогорска»" Постановление Администрации ЗАТО г. Зеленогорска от 30.08.2021 № 110-п ''О внесении изменений в постановление Администрации ЗАТО г. Зеленогорска от 22.09.2020 № 127-п «О видах обязательных работ, объектах, на которых они отбываются, и местах, в которых отбываются исправительные работы»'' Постановление Администрации ЗАТО г. Зеленогорска от 30.08.2021 № 111-п О признании утратившим силу постановления Администрации ЗАТО г. Зеленогорска от 22.03.2016 № 70-п «О создании комиссии по противодействию коррупции и утверждении Положения о порядке работы комиссии по противодействию коррупции» Распоряжение Администрации ЗАТО г. Зеленогорска от 30.08.2021 № 1318-р О создании комиссии по противодействию коррупции и утверждении Положения о порядке работы комиссии по противодействию коррупции Постановление Администрации ЗАТО г. Зеленогорска от 27.08.2021 № 108-п О признании утратившими силу отдельных постановлений Администрации ЗАТО г. Зеленогорска в сфере оплаты труда Постановление Администрации ЗАТО г. Зеленогорска от 23.08.2021 № 106-п О внесении изменений в постановление Администрации ЗАТО г. Зеленогорска от 07.10.2020 № 141-п «Об определении деятельности МКУ «Центр закупок, предпринимательства и обеспечения деятельности ОМС» Постановление Администрации ЗАТО г. Зеленогорска от 23.08.2021 № 107-п О внесении изменений в форму заявки о согласовании создания места (площадки) накопления твердых коммунальных отходов, утвержденную постановлением Администрации ЗАТО г. Зеленогорска от 26.08.2019 № 148-п Постановление Администрации ЗАТО г. Зеленогорска от 18.08.2021 № 105-п О внесении изменений в постановление Администрации ЗАТО г. Зеленогорска от 31.10.2017 № 257-п «Формирование современной городской среды в городе Зеленогорске» Постановление Администрации ЗАТО г. Зеленогорска от 18.08.2021 № 104-п Об осуществлении на территории г. Зеленогорска государственных полномочий по обеспечению предоставления меры социальной поддержки в виде социальной выплаты, удостоверенной сертификатом, на однократное приобретение в собственность благоустроенного жилого помещения гражданам, достигшим возраста 23 лет и старше, имевшим в соответствии с федеральным законодательством статус детей-сирот, детей, оставшихся без попечения родителей, лиц из числа детей-сирот и детей, оставшихся без попечения родителей, нуждающимся в обеспечении жилым помещением Постановление Администрации ЗАТО г. Зеленогорска от 18.08.2021 № 103-п Об установлении цен на издание и распространение газеты «Панорама» Постановление Администрации ЗАТО г. Зеленогорска от 18.08.2021 № 102-п Об определении средней рыночной стоимости одного квадратного метра общей площади жилого помещения на территории г. Зеленогорска на III квартал 2021 года Постановление Администрации ЗАТО г. Зеленогорска от 18.08.2021 № 101-п Об установлении расчетной стоимости 1 кв. м общей площади жилых помещений в целях признания граждан малоимущими на III квартал 2021 года Распоряжение Администрации ЗАТО г. Зеленогорска от 18.08.2021 № 1237-р О проведении капитального ремонта общего имущества в многоквартирных домах, расположенных на территории города Зеленогорска, собственники помещений в которых формируют фонд капитального ремонта на счете регионального оператора и не приняли решение о проведении капитального ремонта общего имущества в этих многоквартирных домах, в 2021 - 2022 годах Постановление Администрации ЗАТО г. Зеленогорска от 11.08.2021 № 98-п Об утверждении Порядка предоставления субсидий социально ориентированным некоммерческим организациям на реализацию социальных проектов Постановление Администрации ЗАТО г. Зеленогорска от 09.08.2021 № 97-п Об утверждении Правил персонифицированного финансирования дополнительного образования детей в городе Зеленогорске Постановление Администрации ЗАТО г. Зеленогорска от 11.08.2021 № 100-п Об утверждении комплексной схемы организации дорожного движения города Зеленогорска Постановление Администрации ЗАТО г. Зеленогорска от 05.08.2021 № 96-п О внесении изменений в Порядок составления и утверждения планов финансово-хозяйственной деятельности муниципальных учреждений, утвержденный постановлением Администрации ЗАТО г. Зеленогорска от 20.01.2020 № 13-п Постановление Администрации ЗАТО г. Зеленогорска от 05.08.2021 № 95-п ''О выделении и оборудовании специальных мест для размещения печатных предвыборных агитационных материалов на территории г. Зеленогорска в период подготовки и проведения выборов депутатов Государственной Думы Федерального Собрания Российской Федерации и депутатов Законодательного Собрания Красноярского края'' Распоряжение Администрации ЗАТО г. Зеленогорска от 28.07.2021 № 1169-р О внесении изменений в распоряжение Администрации ЗАТО г. Зеленогорска от 01.06.2021 № 817-р «О подготовке муниципальных бюджетных образовательных учреждений г. Зеленогорска к новому 2021 - 2022 учебному году» Постановление Администрации ЗАТО г. Зеленогорска от 26.07.2021 № 94-п О внесении изменений в постановление Администрации ЗАТО г. Зеленогорска от 28.12.2018 № 252-п «Об утверждении перечня муниципальных услуг, предоставляемых Администрацией ЗАТО г. Зеленогорска, предоставление которых посредством комплексного запроса не осуществляется» Постановление Администрации ЗАТО г. Зеленогорска от 16.07.2021 № 1066-р ''О внесении изменений в распоряжение Администрации ЗАТО г. Зеленогорска от 14.01.2019 № 72-р ''Об утверждении состава и Порядка работы комиссии по определению внешнего вида зданий, строений, сооружений''" Постановление Администрации ЗАТО г. Зеленогорска от 21.07.2021 № 93-п "О признании утратившим силу постановления Администрации ЗАТО г. Зеленогорска от 14.12.2020 № 170-п "Об утверждении Порядка предоставления субсидий в целях возмещения затрат на оказание бытовых услуг общих отделений бань в период введения ограничительных мер, связанных с распространением коронавирусной инфекции"" Постановление Администрации ЗАТО г. Зеленогорска от 16.07.2021 № 92-п "Об утверждении отчета об исполнении местного бюджета города Зеленогорска за 1 полугодие 2021 года" Постановление Администрации ЗАТО г. Зеленогорска от 16.07.2021 № 91-п ''О внесении изменений в Примерное положение об оплате труда работников муниципальных учреждений города Зеленогорска, находящихся в ведении Муниципального казенного учреждения «Комитет по делам культуры и молодежной политики города Зеленогорска», утвержденное постановлением Администрации ЗАТО г. Зеленогорска от 29.08.2017 № 194-п'' Постановление Администрации ЗАТО г. Зеленогорска от 16.07.2021 № 90-п ''О внесении изменений в Примерное положение об оплате труда работников муниципальных бюджетных учреждений города Зеленогорска, осуществляющих деятельность в сфере молодежной политики, находящихся в ведении Муниципального казенного учреждения «Комитет по делам культуры и молодежной политики города Зеленогорска», утвержденное постановлением Администрации ЗАТО г. Зеленогорска от 21.12.2016 № 358-п'' Распоряжение Администрации ЗАТО г. Зеленогорска от 14.07.2021 № 1064-р "Об участии в конкурсе лучших проектов создания комфортной городской среды" Распоряжение Администрации ЗАТО г. Зеленогорска от 12.07.2021 № 1025-р О подготовке проекта планировки территории и проекта межевания территории в отношении территории, ограниченной улицами Диктатуры Пролетариата, Советской Армии, 8 Марта, Гоголя Распоряжение Администрации ЗАТО г. Зеленогорска от 12.07.2021 № 1023-р О подготовке проекта планировки территории и проекта межевания территории в отношении территории, ограниченной улицами Шолохова, Чапаева, Панфилова и земельным участком, имеющим кадастровый номер 24:59:0406003:1 Распоряжение Администрации ЗАТО г. Зеленогорска от 12.07.2021 № 1022-р О подготовке проекта планировки территории и проекта межевания территории в отношении территории, ограниченной улицами Шолохова, Чапаева, Панфилова, включая территорию многоквартирных домов по ул. Чапаева, д. 13 и ул. Шолохова, д. 4, д. 6, д. 16 Распоряжение Администрации ЗАТО г. Зеленогорска от 12.07.2021 № 1021-р О подготовке проекта планировки территории и проекта межевания территории в отношении территории, ограниченной улицами Диктатуры Пролетариата, Полевая, Юбилейная и переулком Малый Распоряжение Администрации ЗАТО г. Зеленогорска от 12.07.2021 № 1020-р О подготовке проекта планировки территории и проекта межевания территории в отношении территории, ограниченной улицами Удачная, Монтажников Распоряжение Администрации ЗАТО г. Зеленогорска от 12.07.2021 № 1024-р О подготовке проекта планировки территории и проекта межевания территории в отношении территории, ограниченной улицами Звездная, Центральная, Солнечная и Спортивная Распоряжение Администрации ЗАТО г. Зеленогорска от 12.07.2021 № 1018-р О подготовке проекта планировки территории и проекта межевания территории в отношении территории, ограниченной улицами Диктатуры Пролетариата, Советской Армии, Юбилейная, Полевая Распоряжение Администрации ЗАТО г. Зеленогорска от 12.07.2021 № 1017-р О подготовке проекта планировки территории и проекта межевания территории в отношении территории, ограниченной улицами Диктатуры Пролетариата, Советской Армии, Юбилейная, 8 Марта Распоряжение Администрации ЗАТО г. Зеленогорска от 12.07.2021 № 1016-р О подготовке проекта планировки территории и проекта межевания территории в отношении территории, ограниченной улицами Диктатуры Пролетариата, Л.Толстого, Гоголя, Полевая Распоряжение Администрации ЗАТО г. Зеленогорска от 12.07.2021 № 1010-р Об утверждении Перечня муниципального имущества, свободного от прав третьих лиц (за исключением имущественных прав субъектов малого и среднего предпринимательства) и предназначенного для предоставления субъектам малого и среднего предпринимательства Распоряжение Администрации ЗАТО г. Зеленогорска от 12.07.2021 № 1012-р О проведении конкурса на включение граждан в резерв управленческих кадров г. Зеленогорска на замещение целевой должности директора Муниципального бюджетного учреждения «Молодёжный центр» Распоряжение Администрации ЗАТО г. Зеленогорска от 12.07.2021 № 1031-р О подготовке проекта планировки территории и проекта межевания территории в отношении территории части квартала № 12 города Зеленогорска Распоряжение Администрации ЗАТО г. Зеленогорска от 12.07.2021 № 1030-р О подготовке проекта планировки территории и проекта межевания территории в отношении территории квартала № 14-15 города Зеленогорска Распоряжение Администрации ЗАТО г. Зеленогорска от 12.07.2021 № 1029-р О подготовке проекта планировки территории и проекта межевания территории в отношении территории квартала № 8 города Зеленогорска Распоряжение Администрации ЗАТО г. Зеленогорска от 12.07.2021 № 1028-р О подготовке проекта планировки территории и проекта межевания территории в отношении территории квартала № 4 города Зеленогорска Распоряжение Администрации ЗАТО г. Зеленогорска от 12.07.2021 № 1027-р О подготовке проекта планировки территории и проекта межевания территории в отношении территории, ограниченной улицами Диктатуры Пролетариата, Советской Армии, Л.Толстого, Гоголя Распоряжение Администрации ЗАТО г. Зеленогорска от 12.07.2021 № 1026-р О подготовке проекта планировки территории и проекта межевания территории в отношении территории квартала № 3 города Зеленогорска Распоряжение Администрации ЗАТО г. Зеленогорска от 12.07.2021 № 1036-р О подготовке проекта планировки территории и проекта межевания территории в отношении территории микрорайона № 27 (1 и 2 очереди) города Зеленогорска Распоряжение Администрации ЗАТО г. Зеленогорска от 12.07.2021 № 1035-р О подготовке проекта планировки территории и проекта межевания территории в отношении территории микрорайона № 23 города Зеленогорска Распоряжение Администрации ЗАТО г. Зеленогорска от 12.07.2021 № 1034-р О подготовке проекта планировки территории и проекта межевания территории в отношении территории части квартала № 13 города Зеленогорска Распоряжение Администрации ЗАТО г. Зеленогорска от 12.07.2021 № 1033-р О подготовке проекта планировки территории и проекта межевания территории в отношении территории части квартала № 33 города Зеленогорска Распоряжение Администрации ЗАТО г. Зеленогорска от 12.07.2021 г. Зеленогорск № 1032-р О подготовке проекта планировки территории и проекта межевания территории в отношении территории микрорайона № 20 города Зеленогорска Распоряжение Администрации ЗАТО г. Зеленогорска от 05.07.2021 № 989-р Об образовании земельных участков, на которых расположены многоквартирные дома Постановление Администрации ЗАТО г. Зеленогорска от 02.07.2021 № 89-п О внесении изменений в Примерное положение об оплате труда работников муниципальных бюджетных и казенных учреждений, находящихся в ведении МКУ «КФиС», утвержденное постановлением Администрации ЗАТО г. Зеленогорска от 31.08.2018 № 165-п Постановление Администрации ЗАТО г. Зеленогорска от 30.06.2021 № 86-п О внесении изменений в Положение о порядке формирования резерва управленческих кадров города Зеленогорска, утвержденное постановлением Администрации ЗАТО г. Зеленогорска от 11.12.2015 № 324-п Постановление Администрации ЗАТО г. Зеленогорска от 25.06.2021 № 83-п О внесении изменений в постановление Администрации ЗАТО г. Зеленогорска от 11.01.2013 № 6-п «Об образовании избирательных участков на территории г. Зеленогорска и утверждения их границ для проведения голосования и подсчета голосов избирателей, участников референдума» Постановление Администрации ЗАТО г. Зеленогорска от 30.06.2021 № 88-п О внесении изменений в постановление Администрации ЗАТО г. Зеленогорска от 22.09.2020 № 127-п «О видах обязательных работ, объектах, на которых они отбываются, и местах, в которых отбываются исправительные работы» Постановление Администрации ЗАТО г. Зеленогорска от 30.06.2021 № 87-п О внесении изменений в постановление Администрации ЗАТО г. Зеленогорска от 09.12.2016 № 345-п «Об утверждении Примерного положения об оплате труда работников муниципальных бюджетных и казенных учреждений по сопровождению деятельности органов местного самоуправления» Постановление Администрации ЗАТО г. Зеленогорска от 28.06.2021 № 84-п О внесении изменений в Примерное положение об оплате труда работников муниципальных бюджетных учреждений города Зеленогорска, осуществляющих деятельность в сфере городского хозяйства, утвержденное постановлением Администрации ЗАТО г. Зеленогорска от 27.01.2020 № 18-п Постановление Администрации ЗАТО г. Зеленогорска от 28.06.2021 № 85-п О возложении на МКУ «Центр закупок, предпринимательства и обеспечения деятельности ОМС» полномочий отдельных заказчиков в сфере закупок товаров, работ, услуг для обеспечения муниципальных нужд Постановление Администрации ЗАТО г. Зеленогорска от 25.06.2021 № 82-п О внесении изменений в постановление Администрации ЗАТО г. Зеленогорска от 29.08.2017 № 194-п «Об утверждении Примерного положения об оплате труда работников муниципальных учреждений города Зеленогорска, находящихся в ведении Муниципального казенного учреждения «Комитет по делам культуры и молодежной политики города Зеленогорска» Постановление Администрации ЗАТО г. Зеленогорска от 21.06.2021 № 79-п О внесении изменений в постановление Администрации ЗАТО г. Зеленогорска от 22.09.2020 № 127-п «О видах обязательных работ, объектах, на которых они отбываются, и местах, в которых отбываются исправительные работы» Постановление Администрации ЗАТО г. Зеленогорска от 23.06.2021 № 81-п Об утверждении Порядка постановки на учет детей, нуждающихся в предоставлении мест в муниципальных образовательных учреждениях г. Зеленогорска, реализующих образовательную программу дошкольного образования Распоряжение Администрации ЗАТО г. Зеленогорска от 21.06.2021 № 917-р Об утверждении состава рабочей группы по решению вопросов предоставления государственной социальной помощи на основании социального контракта отдельным категориям граждан Постановление Администрации ЗАТО г. Зеленогорска от 23.06.2021 № 80-п Об установлении стоимости гарантированного перечня услуг по погребению, предоставляемых МБУ КБУ Постановление Администрации ЗАТО г. Зеленогорска от 16.06.2021 № 77-п О разрешении использования в 2021 году в целях купания и отдыха людей озера «Ближнее» и озера «Лебединое» Постановление Администрации ЗАТО г. Зеленогорска от 11.06.2021 № 76-п О внесении изменений в постановление Администрации ЗАТО г. Зеленогорска от 12.11.2015 № 295-п «Об утверждении муниципальной программы «Развитие образования в городе Зеленогорске» Постановление Администрации ЗАТО г. Зеленогорска от 11.06.2021 № 75-п О внесении изменений в постановление Администрации ЗАТО г. Зеленогорска от 23.03.2018 № 44-п «Об утверждении Примерного положения об оплате труда работников муниципальных бюджетных учреждений дополнительного образования города Зеленогорска, находящихся в ведении Муниципального казенного учреждения «Комитет по делам культуры и молодежной политики города Зеленогорска» Постановление Администрации ЗАТО г. Зеленогорска от 08.06.2021 № 74-п О внесении изменений в постановление Администрации ЗАТО г. Зеленогорска от 21.12.2016 № 358-п «Об утверждении Примерного положения об оплате труда работников муниципальных бюджетных учреждений города Зеленогорска, осуществляющих деятельность в сфере молодежной политики, находящихся в ведении Муниципального казенного учреждения «Комитет по делам культуры и молодежной политики города Зеленогорска» Распоряжение Администрации ЗАТО г. Зеленогорска от 31.05.2021 № 810-р О внесении изменений в распоряжение Администрации ЗАТО г. Зеленогорска от 05.02.2016 № 188-р «Об утверждении состава и Порядка работы комиссии по контролю за поступлением платежей за использование имущества, находящегося в муниципальной собственности города Зеленогорска» Распоряжение Администрации ЗАТО г. Зеленогорска от 01.06.2021 № 817-р О подготовке муниципальных бюджетных образовательных учреждений г. Зеленогорска к новому 2021 - 2022 учебному году Постановление Администрации ЗАТО г. Зеленогорска от 01.06.2021 № 72-п О подготовке к отопительному периоду 2021 – 2022 годов Постановление Администрации ЗАТО г. Зеленогорска от 31.05.2021 № 70-п О внесении изменений в постановление Администрации ЗАТО г. Зеленогорска от 23.10.2019 № 190-п «Об утверждении документа планирования регулярных перевозок пассажиров и багажа автомобильным транспортом по муниципальным маршрутам регулярных перевозок на территории города Зеленогорска на 2019 - 2023 годы» Распоряжение Администрации ЗАТО г. Зеленогорска от 24.05.2021 № 780-рп Об утверждении Плана мероприятий перехода Администрации ЗАТО г. Зеленогорска на использование отечественного офисного программного обеспечения на период до 2023 года Постановление Администрации ЗАТО г. Зеленогорска от 25.05.2021 № 65-п О внесении изменений в постановление Администрации ЗАТО г. Зеленогорска от 12.11.2015 № 286-п «Об утверждении муниципальной программы «Защита населения и территории города Зеленогорска от чрезвычайных ситуаций природного и техногенного характера» Постановление Администрации ЗАТО г. Зеленогорска от 26.05.2021 № 68-п О внесении изменений в муниципальную программу «Муниципальное имущество и земельные ресурсы города Зеленогорска», утвержденную постановлением Администрации ЗАТО г. Зеленогорска от 19.12.2017 № 323-п Постановление Администрации ЗАТО г. Зеленогорска от 26.05.2021 № 67-п О внесении изменений в постановление Администрации ЗАТО г. Зеленогорска от 31.08.2018 № 165-п «Об утверждении Примерного положения об оплате труда работников муниципальных бюджетных и казенных учреждений, находящихся в ведении МКУ «КФиС» Постановление Администрации ЗАТО г. Зеленогорска от 26.05.2021 № 69-п О внесении изменений в постановление Администрации ЗАТО г. Зеленогорска от 12.11.2015 № 293-п «Об утверждении муниципальной программы «Реформирование и модернизация жилищно-коммунального хозяйства и повышение энергетической эффективности в городе Зеленогорске» Постановление Администрации ЗАТО г. Зеленогорска от 25.05.2021 № 66-п О внесении изменений в муниципальную программу «Обеспечение безопасности населения города Зеленогорска», утвержденную постановлением Администрации ЗАТО г. Зеленогорска от 25.01.2019 № 6-п «Об утверждении муниципальной программы «Обеспечение безопасности населения города Зеленогорска» Распоряжение Администрации ЗАТО г. Зеленогорска от 25.05.2021 № 781-р О мероприятиях по организации обустройства мест массового отдыха людей на водных объектах для купания и отдыха в 2021 году Распоряжение Администрации ЗАТО г. Зеленогорска от 20.05.2021 № 774-р О внесении изменений в распоряжение Администрации ЗАТО г. Зеленогорска от 16.03.2017 № 536-р «Об утверждении состава комиссии по соблюдению требований к служебному поведению муниципальных служащих и урегулированию конфликтов интересов» Постановление Администрации ЗАТО г. Зеленогорска от 21.05.2021 № 64-п О внесении изменений в постановление Администрации ЗАТО г. Зеленогорска от 21.06.2018 № 120-п «Об осуществлении государственных полномочий по организации и обеспечению отдыха и оздоровления детей» Постановление Администрации ЗАТО г. Зеленогорска от 18.05.2021 № 63-п Об утверждении Порядка определения объема и условий предоставления муниципальным бюджетным и автономным учреждениям субсидий на иные цели Постановление Администрации ЗАТО г. Зеленогорска от 13.05.2021 № 59-п О внесении изменений в постановление Администрации ЗАТО г. Зеленогорска от 12.11.2015 № 284-п «Об утверждении муниципальной программы «Развитие физической культуры и спорта в городе Зеленогорске» Постановление Администрации ЗАТО г. Зеленогорска от 13.05.2021 № 60-п Об установлении расчетной стоимости 1 кв. м общей площади жилых помещений в целях признания граждан малоимущими на II квартал 2021 года Постановление Администрации ЗАТО г. Зеленогорска от 13.05.2021 № 61-п О внесении изменений в постановление Администрации ЗАТО г. Зеленогорска от 12.11.2015 № 289-п «Об утверждении муниципальной программы «Охрана окружающей среды и защита городских лесов на территории города Зеленогорска» Постановление Администрации ЗАТО г. Зеленогорска от 13.05.2021 № 62-п О внесении изменений в постановление Администрации ЗАТО г. Зеленогорска от 12.11.2015 № 292-п «Об утверждении муниципальной программы «Капитальное строительство и капитальный ремонт в городе Зеленогорске» Распоряжение Администрации ЗАТО г. Зеленогорска от 13.05.2021 № 735-р Об окончании отопительного периода 2020 – 2021 годов Распоряжение Администрации ЗАТО г. Зеленогорска от 05.05.2021 № 717-р О внесении изменений в распоряжение Администрации ЗАТО г. Зеленогорска от 18.04.2019 № 898-р «Об утверждении состава и Порядка работы комиссии по распределению путевок с частичной оплатой их стоимости в загородные лагеря» Распоряжение Администрации ЗАТО г. Зеленогорска от 04.05.2021 № 713-р Об утверждении состава конкурсной комиссии муниципального этапа Всероссийского творческого конкурса «Слава Созидателям!», проводимого в 2021 году Постановление Администрации ЗАТО г. Зеленогорска от 05.05.2021 № 58-п Об определении средней рыночной стоимости одного квадратного метра общей площади жилого помещения на территории г. Зеленогорска на II квартал 2021 года Постановление Администрации ЗАТО г. Зеленогорска от 30.04.2021 № 57-п О внесении изменений в постановление Администрации ЗАТО г. Зеленогорска от 12.11.2015 № 285-п «Об утверждении муниципальной программы «Гражданское общество – закрытое административно-территориальное образование Зеленогорск» Постановление Администрации ЗАТО г. Зеленогорска от 30.04.2021 № 56-п О внесении изменений в постановление Администрации ЗАТО г. Зеленогорска от 22.09.2020 № 128-п «Об утверждении Примерного положения об оплате труда работников муниципальных бюджетных и казенных учреждений города Зеленогорска, находящихся в ведении Управления образования Администрации ЗАТО г. Зеленогорска» Постановление Администрации ЗАТО г. Зеленогорска от 26.04.2021 № 55-п Об установлении стоимости услуг по содержанию жилых помещений в общежитиях государственного жилищного фонда, переданных ООО «Квадра Пи-Эль» по договору доверительного управления Постановление Администрации ЗАТО г. Зеленогорска от 26.04.2021 № 54-п Об установлении в общежитиях стоимости услуг по содержанию жилых помещений, принадлежащих на праве собственности муниципальному образованию город Зеленогорск Красноярского края Постановление Администрации ЗАТО г. Зеленогорска от 19.04.2021 № 50-п О внесении изменений в постановление Администрации ЗАТО г. Зеленогорска от 27.01.2020 № 18-п «Об утверждении Примерного положения об оплате труда работников муниципальных бюджетных учреждений города Зеленогорска, осуществляющих деятельность в сфере городского хозяйства» Постановление Администрации ЗАТО г. Зеленогорска от 21.04.2021 № 52-п О внесении изменений в постановление Администрации ЗАТО г. Зеленогорска от 12.11.2015 № 296-п «Об утверждении муниципальной программы «Развитие молодежной политики города Зеленогорска» Постановление Администрации ЗАТО г. Зеленогорска от 23.04.2021 № 53-п О внесении изменений в постановление Администрации ЗАТО г. Зеленогорска от 12.11.2015 № 288-п «Об утверждении муниципальной программы «Развитие культуры города Зеленогорска» Распоряжение Администрации ЗАТО г. Зеленогорска от 19.04.2021 № 618-р О проведении I этапа XIV Спартакиады Совета муниципальных образований Красноярского края в 2021 году Постановление Администрации ЗАТО г. Зеленогорска от 19.04.2021 № 51-п Об утверждении видов оплачиваемых общественных работ, организуемых на территории города Зеленогорска в 2021 году Распоряжение Администрации ЗАТО г. Зеленогорска от 16.04.2021 № 611-р О проведении общегородского месячника по наведению санитарного порядка и благоустройству территории города Зеленогорска Постановление Администрации ЗАТО г. Зеленогорска от 13.04.2021 № 48-п Об утверждении отчета об исполнении местного бюджета города Зеленогорска за 1 квартал 2021 года Распоряжение Администрации ЗАТО г. Зеленогорска от 15.04.2021 № 576-р Об организации отдыха детей и их оздоровления в летний период 2021 года Постановление Администрации ЗАТО г. Зеленогорска от 14.04.2021 № 49-п О внесении изменений в муниципальную программу «Развитие транспортной системы в городе Зеленогорске», утвержденную постановлением Администрации ЗАТО г. Зеленогорска от 12.11.2015 № 291-п Распоряжение Администрации ЗАТО г. Зеленогорска от 15.04.2021 № 577-р О внесении изменений в распоряжение Администрации ЗАТО г. Зеленогорска от 24.03.2016 № 528-р «Об утверждении состава и Порядка работы комиссии по вопросам градостроительной деятельности и образованию земельных участков на территории г. Зеленогорска» Постановление Администрации ЗАТО г. Зеленогорска от 12.04.2021 № 46-п Об утверждении Положения о системе оплаты труда работников муниципальных учреждений города Зеленогорска Постановление Администрации ЗАТО г. Зеленогорска от 09.04.2021 № 45-п О проведении специализированной ярмарки цветов к родительскому дню «Радоница» Распоряжение Администрации ЗАТО г. Зеленогорска от 09.04.2021 № 544-р О внесении изменений в распоряжение Администрации ЗАТО г. Зеленогорска от 25.10.2016 № 2246-р «Об утверждении Положения о премировании по результатам работы директоров муниципальных унитарных предприятий г. Зеленогорска» Распоряжение Администрации ЗАТО г. Зеленогорска от 07.04.2021 № 540-р О подготовке к весенне-летнему пожароопасному сезону на территории г. Зеленогорска в 2021 году Распоряжение Администрации ЗАТО г. Зеленогорска от 25.03.2021 № 451-р О внесении изменений в распоряжение Администрации ЗАТО г. Зеленогорска от 19.02.2019 № 363-р «Об утверждении Положения и состава межведомственной комиссии по профилактике правонарушений на территории города Зеленогорска» Распоряжение Администрации ЗАТО г. Зеленогорска от 25.03.2021 № 449-р Об организации работы телефона «горячая линия» по вопросам охраны труда Постановление Администрации ЗАТО г. Зеленогорска от 22.03.2021 № 40-п Об утверждении Подпрограммы профилактики нарушений обязательных требований, требований, установленных муниципальными правовыми актами г. Зеленогорска, при осуществлении муниципального контроля за обеспечением сохранности автомобильных дорог местного значения на территории города Зеленогорска на 2021 год и плановый период 2022 и 2023 годов Постановление Администрации ЗАТО г. Зеленогорска от 23.03.2021 № 42-п Об утверждении Порядка формирования, ведения и обязательного опубликования перечня муниципального имущества, свободного от прав третьих лиц (за исключением имущественных прав субъектов малого и среднего предпринимательства) и предназначенного для предоставления субъектам малого и среднего предпринимательства Постановление Администрации ЗАТО г. Зеленогорска от 23.03.2021 № 41-п О внесении изменений в постановление Администрации ЗАТО г. Зеленогорска от 05.10.2017 № 226-п «Об утверждении Положения о предоставлении в аренду муниципального имущества субъектам малого и среднего предпринимательства, а также организациям, образующим инфраструктуру поддержки субъектов малого и среднего предпринимательства» Распоряжение от 15.03.2021 №400-р О начале приема предложений от населения о предлагаемых мероприятиях и функциях на общественной территории, отобранной для участия во Всероссийском конкурсе лучших проектов создания комфортной городской среды Постановление Администрации ЗАТО г. Зеленогорска от 10.03.2021 №37-п О ликвидации МУП ''Центр досуга и кино'' г. Зеленогорска Распоряжение от 12.03.2021 №383-р О противопаводковых мероприятиях в 2021 году Постановление Администрации ЗАТО г. Зеленогорска от 11.03.2021 № 38-п О внесении изменений в муниципальную программу «Формирование современной городской среды в городе Зеленогорске», утвержденную постановлением Администрации ЗАТО г. Зеленогорска от 31.10.2017 № 257-п Распоряжение Администрации ЗАТО г. Зеленогорска от 09.03.2021 Об утверждении состава организационного комитета муниципального этапа Всероссийского творческого конкурса «Слава Созидателям!», проводимого в 2021 году Распоряжение Администрации ЗАТО г. Зеленогорска от 05.03.2021 № 360-р О проведении рейтингового голосования по выбору общественной территории г. Зеленогорска, подлежащей благоустройству в первоочередном порядке в 2022 году Постановление Администрации ЗАТО г. Зеленогорска от 09.03.2021 № 36-п Об утверждении Административного регламента осуществления муниципального жилищного контроля на территории г. Зеленогорска Постановление Администрации ЗАТО г. Зеленогорска от 04.03.2021 № 35-п Об утверждении Порядка привлечения остатков средств с казначейского счета муниципальных бюджетных и автономных учреждений на единый счет бюджета города Зеленогорска и возврата привлеченных средств Постановление Администрации ЗАТО г. Зеленогорска от 02.03.2021 № 34-п Об утверждении Порядка предоставления субсидии в целях финансового обеспечения затрат Муниципального унитарного предприятия «Центр досуга и кино» г.Зеленогорска, осуществляющего деятельность в области демонстрации кинофильмов в период введения ограничительных мер, связанных с распространением коронавирусной инфекции Распоряжение Администрации ЗАТО г. Зеленогорска от 02.03.2021 № 332-р О внесении изменений в распоряжение Администрации ЗАТО г. Зеленогорска от 14.03.2018 № 415-р «Об утверждении состава и Положения о порядке работы комиссии по урегулированию разногласий, возникших при проведении оценки регулирующего воздействия проектов муниципальных актов» Распоряжение Администрации ЗАТО г. Зеленогорска от 26.02.2021 № 320-р О внесении изменений в распоряжение Администрации ЗАТО г. Зеленогорска от 14.06.2018 № 1082-р «Об утверждении Перечня муниципального имущества, свободного от прав третьих лиц (за исключением имущественных прав некоммерческих организаций) и предназначенного для предоставления социально ориентированным некоммерческим организациям» Распоряжение Администрации ЗАТО г. Зеленогорска от 26.02.2021 № 324-р О проведении капитального ремонта общего имущества в многоквартирных домах, расположенных на территории города Зеленогорска в 2021-2022 годах Постановление Администрации ЗАТО г. Зеленогорска от 26.02.2021 № 33-п О внесении изменений в постановление Администрации ЗАТО г. Зеленогорска от 25.02.2019 № 37-п «Об утверждении Порядка присуждения премий Главы ЗАТО г. Зеленогорска одаренным обучающимся муниципальных бюджетных образовательных учреждений г. Зеленогорска» Постановление Администрации ЗАТО г. Зеленогорска от 19.02.2021 № 32-п О закреплении муниципальных бюджетных образовательных учреждений г. Зеленогорска за конкретными территориями г. Зеленогорска Постановление Администрации ЗАТО г. Зеленогорска от 19.02.2021 № 31-п О проведении специализированной ярмарки «Весенняя ярмарка цветов, посвященная Международному женскому дню» Постановление Администрации ЗАТО г. Зеленогорска от 19.02.2021 № 30-п О внесении изменений в постановление Администрации ЗАТО г. Зеленогорска от 18.12.2017 № 322-п «Об установлении размера платы за содержание жилого помещения в многоквартирных домах» Постановление Администрации ЗАТО г. Зеленогорска от 19.02.2021 № 29-п О внесении изменений в постановление Администрации ЗАТО г. Зеленогорска от 22.09.2020 № 127-п «О видах обязательных работ, объектах, на которых они отбываются, и местах, в которых отбываются исправительные работы» Постановление Администрации ЗАТО г. Зеленогорска от 15.02.2021 № 27-п О внесении изменений в Примерное положение об оплате труда работников муниципальных учреждений города Зеленогорска, находящихся в ведении Муниципального казенного учреждения «Комитет по делам культуры и молодежной политики города Зеленогорска», утвержденное постановлением Администрации ЗАТО г. Зеленогорска от 29.08.2017 № 194-п Распоряжение Администрации ЗАТО г. Зеленогорска от 16.02.2021 № 228-р Об участии во Всероссийском конкурсе лучших проектов создания комфортной городской среды Распоряжение Администрации ЗАТО г. Зеленогорска от 15.02.2021 № 221-р Об утверждении состава комиссии по обследованию жилых помещений, закрепленных за детьми-сиротами и детьми, оставшимися без попечения родителей, с целью их отнесения к жилым помещениям, нуждающимся в текущем ремонте Постановление Администрации ЗАТО г. Зеленогорска от 15.02.2021 № 28-п Об определении средней рыночной стоимости одного квадратного метра общей площади жилого помещения на территории г. Зеленогорска на I квартал 2021 года Постановление Администрации ЗАТО г. Зеленогорска от 15.02.2021 № 26-п О временном прекращении движения транспортных средств на участке автомобильной дороги общего пользования местного значения города Зеленогорска Постановление Администрации ЗАТО г. Зеленогорска от 12.02.2021 № 25-п Об установлении расчетной стоимости 1 кв. м общей площади жилых помещений в целях признания граждан малоимущими на I квартал 2021 года Распоряжение Администрации ЗАТО г. Зеленогорска от 12.02.2021 № 201-р О внесении изменений в распоряжение Администрации ЗАТО г. Зеленогорска от 18.12.2014 № 2900-р «Об утверждении Положения и состава межведомственной комиссии по охране труда» Постановление Администрации ЗАТО г. Зеленогорска от 05.02.2021 № 23-п О внесении изменений в постановление Администрации ЗАТО г. Зеленогорска от 05.04.2019 № 62-п «Об утверждении краткосрочного плана реализации региональной программы капитального ремонта общего имущества в многоквартирных домах, расположенных на территории города Зеленогорска, на 2020 - 2022 годы» Постановление Администрации ЗАТО г. Зеленогорска от 05.02.2021 № 22-п О внесении изменений в постановление Администрации ЗАТО г. Зеленогорска от 16.05.2017 № 105-п «Об утверждении краткосрочного плана реализации региональной программы капитального ремонта общего имущества в многоквартирных домах, расположенных на территории города Зеленогорска, на 2017-2019 годы» Постановление Администрации ЗАТО г. Зеленогорска от 05.02.2021 № 21-п О внесении изменений в постановление Администрации ЗАТО г. Зеленогорска от 12.11.2015 № 296-п «Об утверждении муниципальной программы «Развитие молодежной политики города Зеленогорска» Распоряжение Администрации ЗАТО г. Зеленогорска от 01.02.2021 № 162-р Об утверждении списка граждан, претендующих на получение социальной выплаты для приобретения жилого помещения за границами закрытого административно-территориального образования Зеленогорск, по состоянию на 01.01.2021 Постановление Администрации ЗАТО г. Зеленогорска от 04.02.2021 № 20-п Об утверждении Подпрограммы профилактики нарушений обязательных требований, требований, установленных муниципальными правовыми актами г. Зеленогорска, при осуществлении муниципального жилищного контроля на 2021 год и плановый период 2022 и 2023 годов Распоряжение Администрации ЗАТО г. Зеленогорска от 04.02.2021 № 169-р Об определении должностного лица муниципального жилищного контроля, уполномоченного на внесение сведений в единый реестр проверок Постановление Администрации ЗАТО г. Зеленогорска от 01.02.2021 № 19-п О признании утратившими силу некоторых муниципальных правовых актов в области защиты населения и территорий от чрезвычайных ситуаций Постановление Администрации ЗАТО г. Зеленогорска от 25.01.2021 № 17-п О внесении изменений в Положение о системе оплаты труда работников муниципальных учреждений города Зеленогорска, утвержденное постановлением Администрации ЗАТО г. Зеленогорска от 14.03.2019 № 47-п Постановление Администрации ЗАТО г. Зеленогорска от 26.01.2021 № 18-п О временном прекращении движения транспортных средств на участке автомобильной дороги общего пользования местного значения города Зеленогорска Постановление Администрации ЗАТО г. Зеленогорска от 21.01.2021 № 16-п О внесении изменений в муниципальную программу «Развитие образования в городе Зеленогорске», утвержденную постановлением Администрации ЗАТО г. Зеленогорска от 12.11.2015 № 295-п Распоряжение Администрации ЗАТО г. Зеленогорска от 22.01.2021 № 52-р Об организации профилактической работы при осуществлении муниципального контроля Постановление Администрации ЗАТО г. Зеленогорска от 19.01.2021 № 15-п О внесении изменений в постановление Администрации ЗАТО г. Зеленогорска от 15.12.2015 № 325-п «Об утверждении Порядка формирования и финансового обеспечения муниципального задания на оказание муниципальных услуг (выполнение работ) в отношении муниципальных учреждений» Постановление Администрации ЗАТО г. Зеленогорска от 18.01.2021 № 10-п О внесении изменений в постановление Администрации ЗАТО г. Зеленогорска от 25.01.2019 № 6-п «Об утверждении муниципальной программы «Обеспечение безопасности населения города Зеленогорска» Постановление Администрации ЗАТО г. Зеленогорска от 18.01.2021 № 9-п О внесении изменений в постановление Администрации ЗАТО г. Зеленогорска от 12.11.2015 № 286-п «Об утверждении муниципальной программы «Защита населения и территории города Зеленогорска от чрезвычайных ситуаций природного и техногенного характера» Распоряжение Администрации ЗАТО г. Зеленогорска от 18.01.2021 № 23-р О внесении изменений в состав комиссии по снижению неформальной занятости, легализации «серой» заработной платы, повышению собираемости страховых взносов во внебюджетные фонды на территории города Зеленогорска, утвержденной распоряжением Администрации ЗАТО г. Зеленогорска от 25.02.2019 № 410-р Постановление Администрации ЗАТО г. Зеленогорска от 19.01.2021 № 14-п О внесении изменений в постановление Администрации ЗАТО г. Зеленогорска от 18.12.2017 № 322-п «Об установлении размера платы за содержание жилого помещения в многоквартирных домах» Постановление Администрации ЗАТО г. Зеленогорска от 18.01.2021 № 12-п О внесении изменений в муниципальную программу «Развитие культуры города Зеленогорска», утвержденную постановлением Администрации ЗАТО г. Зеленогорска от 12.11.2015 № 288-п Постановление Администрации ЗАТО г. Зеленогорска от 18.01.2021 № 11-п О внесении изменений в муниципальную программу «Развитие малого и среднего предпринимательства в городе Зеленогорске», утвержденную постановлением Администрации ЗАТО г. Зеленогорска от 29.09.2017 № 222-п Постановление Администрации ЗАТО г. Зеленогорска от 18.01.2021 № 13-п О внедрении системы персонифицированного финансирования дополнительного образования детей в городе Зеленогорске Постановление Администрации ЗАТО г. Зеленогорска от 13.01.2021 № 6-п О внесении изменений в постановление Администрации ЗАТО г. Зеленогорска от 12.11.2015 № 284-п «Об утверждении муниципальной программы «Развитие физической культуры и спорта в городе Зеленогорске» Постановление Администрации ЗАТО г. Зеленогорска от 12.01.2021 № 2-п О внесении изменений в постановление Администрации ЗАТО г. Зеленогорска от 12.11.2015 № 287-п «Об утверждении муниципальной программы «Управление муниципальными финансами города Зеленогорска» Постановление Администрации ЗАТО г. Зеленогорска от 13.01.2021 № 8-п О внесении изменений в муниципальную программу «Реформирование и модернизация жилищно-коммунального хозяйства и повышение энергетической эффективности в городе Зеленогорске», утвержденную постановлением Администрации ЗАТО г. Зеленогорска от 12.11.2015 № 293-п Постановление Администрации ЗАТО г. Зеленогорска от 13.01.2021 № 7-п О внесении изменений в муниципальную программу «Развитие транспортной системы в городе Зеленогорске», утвержденную постановлением Администрации ЗАТО г. Зеленогорска от 12.11.2015 № 291-п Постановление Администрации ЗАТО г. Зеленогорска от 12.01.2021 № 3-п О внесении изменений в муниципальную программу «Охрана окружающей среды и защита городских лесов на территории города Зеленогорска», утвержденную постановлением Администрации ЗАТО г. Зеленогорска от 12.11.2015 № 289-п Постановление Администрации ЗАТО г. Зеленогорска от 13.01.2021 № 5-п О внесении изменений в постановление Администрации ЗАТО г. Зеленогорска от 13.01.2020 № 3-п «Об установлении размера платы за содержание жилого помещения в многоквартирных домах для нанимателей жилых помещений государственного жилищного фонда, принадлежащего на праве собственности Российской Федерации» Постановление Администрации ЗАТО г. Зеленогорска от 12.01.2021 № 4-п О внесении изменений в муниципальную программу «Капитальное строительство и капитальный ремонт в городе Зеленогорске», утвержденную постановлением Администрации ЗАТО г. Зеленогорска от 12.11.2015 № 292-п Постановление Администрации ЗАТО г. Зеленогорска от 30.12.2020 № 196-п О внесении изменений в муниципальную программу «Развитие молодежной политики города Зеленогорска», утвержденную постановлением Администрации ЗАТО г. Зеленогорска от 12.11.2015 № 296-п Постановление Администрации ЗАТО г. Зеленогорска от 30.12.2020 № 195-п О внесении изменений в постановление Администрации ЗАТО г. Зеленогорска от 25.01.2019 № 6-п «Об утверждении муниципальной программы «Обеспечение безопасности населения города Зеленогорска» Распоряжение Администрации ЗАТО г. Зеленогорска от 29.12.2020 № 2486-р О внесении изменений в распоряжение Администрации ЗАТО г. Зеленогорска от 29.12.2018 № 2940-р «Об утверждении Положения и состава комиссии по оценке последствий принятия решений о реконструкции, модернизации, сдаче в аренду, передаче в безвозмездное пользование, об изменении назначения или о ликвидации объекта социальной инфраструктуры для детей, являющегося муниципальной собственностью г. Зеленогорска, а также о реорганизации или ликвидации муниципальных образовательных организаций, муниципальных организаций, образующих социальную инфраструктуру для детей г. Зеленогорска» Постановление Администрации ЗАТО г. Зеленогорска от 29.12.2020 № 193-п О внесении изменений в Примерное положение об оплате труда работников муниципальных учреждений города Зеленогорска, находящихся в ведении Муниципального казенного учреждения «Комитет по делам культуры и молодежной политики города Зеленогорска», утвержденное постановлением Администрации ЗАТО г. Зеленогорска от 29.08.2017 № 194-п Постановление Администрации ЗАТО г. Зеленогорска от 29.12.2020 № 191-п О внесении изменений в Примерное положение об оплате труда работников муниципальных бюджетных учреждений дополнительного образования города Зеленогорска, находящихся в ведении Муниципального казенного учреждения «Комитет по делам культуры и молодежной политики города Зеленогорска», утвержденное постановлением Администрации ЗАТО г. Зеленогорска от 23.03.2018 № 44-п Постановление Администрации ЗАТО г. Зеленогорска от 29.12.2020 № 190-п О внесении изменений в Примерное Положение об оплате труда работников муниципальных бюджетных учреждений города Зеленогорска, осуществляющих деятельность в сфере молодежной политики, находящихся в ведении Муниципального казенного учреждения «Комитет по делам культуры и молодежной политики города Зеленогорска», утвержденное постановлением Администрации ЗАТО г. Зеленогорска от 21.12.2016 № 358-п Постановление Администрации ЗАТО г. Зеленогорска от 29.12.2020 № 194-п О внесении изменений в постановление Администрации ЗАТО г. Зеленогорска от 12.11.2015 № 288-п «Об утверждении муниципальной программы «Развитие культуры города Зеленогорска» Постановление Администрации ЗАТО г. Зеленогорска от 29.12.2020 № 185-п О внесении изменений в муниципальную программу «Развитие физической культуры и спорта в городе Зеленогорске», утвержденную постановлением Администрации ЗАТО г. Зеленогорска от 12.11.2015 № 284-п Постановление Администрации ЗАТО г. Зеленогорска от 29.12.2020 № 188-п О внесении изменений в муниципальную программу «Муниципальное имущество и земельные ресурсы города Зеленогорска», утвержденную постановлением Администрации ЗАТО г. Зеленогорска от 19.12.2017 № 323-п Постановление Администрации ЗАТО г. Зеленогорска от 29.12.2020 № 187-п О внесении изменений в муниципальную программу «Формирование современной городской среды в городе Зеленогорске», утвержденную постановлением Администрации ЗАТО г. Зеленогорска от 31.10.2017 № 257-п Постановление Администрации ЗАТО г. Зеленогорска от 29.12.2020 № 186-п О внесении изменений в Перечень муниципальных услуг, предоставляемых Администрацией ЗАТО г. Зеленогорска в КГБУ «МФЦ» в городе Зеленогорске, утвержденный постановлением Администрации ЗАТО г. Зеленогорска от 29.12.2017 № 353-п Постановление Администрации ЗАТО г. Зеленогорска от 29.12.2020 № 192-п О внесении изменений в постановление Администрации ЗАТО г. Зеленогорска от 12.11.2015 № 295-п «Об утверждении муниципальной программы «Развитие образования в городе Зеленогорске» Постановление Администрации ЗАТО г. Зеленогорска от 29.12.2020 № 189-п О внесении изменений в постановление Администрации ЗАТО г. Зеленогорска от 25.12.2018 № 247-п «О подготовке ежегодного отчёта Главы ЗАТО г. Зеленогорска о результатах своей деятельности и деятельности Администрации ЗАТО г. Зеленогорска, в том числе о решении вопросов, поставленных Советом депутатов ЗАТО г. Зеленогорска» Постановление Администрации ЗАТО г. Зеленогорска от 28.12.2020 № 184-п О внесении изменений в постановление Администрации ЗАТО г. Зеленогорска от 12.11.2015 № 286-п «Об утверждении муниципальной программы «Защита населения и территории города Зеленогорска от чрезвычайных ситуаций природного и техногенного характера» Постановление Администрации ЗАТО г. Зеленогорска от 23.12.2020 № 182-п О внесении изменений в постановление Администрации ЗАТО г. Зеленогорска от 19.12.2017 № 323-п «Об утверждении муниципальной программы «Муниципальное имущество и земельные ресурсы города Зеленогорска» Постановление Администрации ЗАТО г. Зеленогорска от 21.12.2020 № 176-п О внесении изменений в Примерное положение об оплате труда работников муниципальных учреждений города Зеленогорска, находящихся в ведении Муниципального казенного учреждения «Комитет по делам культуры и молодежной политики города Зеленогорска», утвержденное постановлением Администрации ЗАТО г. Зеленогорска от 29.08.2017 № 194-п Постановление Администрации ЗАТО г. Зеленогорска от 22.12.2020 № 180-п Об утверждении Порядка предоставления субсидий на возмещение юридическим лицам (за исключением государственных и муниципальных учреждений), индивидуальным предпринимателям, участникам договора простого товарищества, осуществляющим регулярные перевозки пассажиров автомобильным транспортом по муниципальным маршрутам, части фактически понесенных затрат на топливо, проведение профилактических мероприятий и дезинфекции подвижного состава общественного транспорта в целях недопущения распространения новой коронавирусной инфекции Распоряжение Администрации ЗАТО г. Зеленогорска от 18.12.2020 № 2325-р Об особенностях исполнения муниципальных контрактов в связи с введением временных мер по предотвращению распространения новой коронавирусной инфекции Постановление Администрации ЗАТО г. Зеленогорска от 11.12.2020 № 178-п О внесении изменений в Примерное положение об оплате труда работников муниципальных бюджетных и казенных учреждений по сопровождению деятельности органов местного самоуправления, утвержденное постановлением Администрации ЗАТО г. Зеленогорска от 09.12.2016 № 345-п Постановление Администрации ЗАТО г. Зеленогорска от 21.12.2020 № 175-п О внесении изменений в муниципальную программу «Управление муниципальными финансами города Зеленогорска», утвержденную постановлением Администрации ЗАТО г. Зеленогорска от 12.11.2015 № 287-п Постановление Администрации ЗАТО г. Зеленогорска от 22.12.2020 № 179-п Об утверждении Порядка предоставления субсидий в целях возмещения затрат на оказание услуг в области демонстрации кинофильмов в период введения ограничительных мер, связанных с распространением коронавирусной инфекции Постановление Администрации ЗАТО г. Зеленогорска от 22.12.2020 № 177-п О внесении изменений в муниципальную программу «Гражданское общество – закрытое административно-территориальное образование Зеленогорск», утвержденную постановлением Администрации ЗАТО г. Зеленогорска от 12.11.2015 № 285-п Постановление Администрации ЗАТО г. Зеленогорска от 21.12.2020 № 174-п О внесении изменений в постановление Администрации ЗАТО г. Зеленогорска от 12.11.2015 № 289-п «Об утверждении муниципальной программы «Охрана окружающей среды и защита городских лесов на территории города Зеленогорска» Постановление Администрации ЗАТО г. Зеленогорска от 21.12.2020 № 173-п О внесении изменений в постановление Администрации ЗАТО г. Зеленогорска от 12.11.2015 № 293-п «Об утверждении муниципальной программы «Реформирование и модернизация жилищно-коммунального хозяйства и повышение энергетической эффективности в городе Зеленогорске» Постановление Администрации ЗАТО г. Зеленогорска от 15.12.2020 № 172-п Об утверждении Сводного плана организации ярмарок на 2021 год Постановление Администрации ЗАТО г. Зеленогорска от 14.12.2020 № 171-п О внесении изменений в постановление Администрации ЗАТО г. Зеленогорска от 12.11.2015 № 292-п «Об утверждении муниципальной программы «Капитальное строительство и капитальный ремонт в городе Зеленогорске» Постановление Администрации ЗАТО г. Зеленогорска от 14.12.2020 № 170-п Об утверждении Порядка предоставления субсидий в целях возмещения затрат на оказание бытовых услуг общих отделений бань в период введения ограничительных мер, связанных с распространением коронавирусной инфекции Постановление Администрации ЗАТО г. Зеленогорска от 14.12.2020 № 46-пг О назначении публичных слушаний по проекту планировки территории и проекту межевания территории в отношении территории, ограниченной улицами Диктатуры Пролетариата, Полевая, Юбилейная и переулком Малый Постановление Администрации ЗАТО г. Зеленогорска от 14.12.2020 № 45-пг О назначении публичных слушаний по проекту планировки территории и проекту межевания территории в отношении территории, ограниченной улицами Диктатуры Пролетариата, Л.Толстого, Гоголя, Полевая Постановление Администрации ЗАТО г. Зеленогорска от 14.12.2020 № 44-пг О назначении публичных слушаний по проекту планировки территории и проекту межевания территории в отношении территории, ограниченной улицами Звездная, Центральная, Солнечная и Спортивная Постановление Администрации ЗАТО г. Зеленогорска от 14.12.2020 № 43-пг О назначении публичных слушаний по проекту планировки территории и проекту межевания территории в отношении территории, ограниченной улицами Шолохова, Чапаева, Панфилова и земельным участком, имеющим кадастровый номер 24:59:0406003:1 Постановление Администрации ЗАТО г. Зеленогорска от 14.12.2020 № 42-пг О назначении публичных слушаний по проекту планировки территории и проекту межевания территории в отношении территории, ограниченной улицами Шолохова, Чапаева, Панфилова, включая территорию многоквартирных домов по ул. Чапаева, д. 13 и ул. Шолохова, д. 4, д. 6, д. 16 Постановление Администрации ЗАТО г. Зеленогорска от 14.12.2020 № 41-пг О назначении публичных слушаний по проекту планировки территории и проекту межевания территории в отношении территории, ограниченной улицами Удачная, Монтажников Постановление Администрации ЗАТО г. Зеленогорска от 14.12.2020 № 40-пг О назначении публичных слушаний по проекту планировки территории и проекту межевания территории в отношении территории, ограниченной улицами Первостроителей, Удачная, Монтажников Постановление Администрации ЗАТО г. Зеленогорска от 14.12.2020 № 39-пг О назначении публичных слушаний по проекту планировки территории и проекту межевания территории в отношении территории, ограниченной улицами Диктатуры Пролетариата, Советской Армии, Юбилейная, 8 Марта Постановление Администрации ЗАТО г. Зеленогорска от 14.12.2020 № 38-пг О назначении публичных слушаний по проекту планировки территории и проекту межевания территории в отношении территории, ограниченной улицами Диктатуры Пролетариата, Советской Армии, Юбилейная, Полевая Постановление Администрации ЗАТО г. Зеленогорска от 11.12.2020 № 169-п О внесении изменений в постановление Администрации ЗАТО г. Зеленогорска от 31.10.2017 № 257-п «Об утверждении муниципальной программы «Формирование современной городской среды в городе Зеленогорске» Распоряжение Администрации ЗАТО г. Зеленогорска от 10.12.2020 № 2039-р О внесении изменений в распоряжение Администрации ЗАТО г. Зеленогорска от 24.03.2016 № 528-р «Об утверждении состава и Порядка работы комиссии по вопросам градостроительной деятельности и образованию земельных участков на территории г. Зеленогорска» Постановление Администрации ЗАТО г. Зеленогорска от 08.12.2020 № 166-п О внесении изменений в постановление Администрации ЗАТО г. Зеленогорска от 12.11.2015 № 285-п «Об утверждении муниципальной программы «Гражданское общество - закрытое административно-территориальное образование Зеленогорск» Распоряжение Администрации ЗАТО г. Зеленогорска от 09.12.2020 № 2033-р Об утверждении Перечня налоговых расходов города Зеленогорска Постановление Администрации ЗАТО г. Зеленогорска от 09.12.2020 № 167-п О внесении изменений в постановление Администрации ЗАТО г. Зеленогорска от 12.11.2015 № 291-п «Об утверждении муниципальной программы «Развитие транспортной системы в городе Зеленогорске» Распоряжение Администрации ЗАТО г. Зеленогорска от 04.12.2020 № 2016-р О проведении рейтингового голосования по выбору общественной территории г. Зеленогорска, подлежащей в рамках реализации муниципальной программы «Формирование современной городской среды в городе Зеленогорске» благоустройству в 2022 году Постановление Администрации ЗАТО г. Зеленогорска от 01.12.2020 № 163-п О внесении изменений в постановление Администрации ЗАТО г. Зеленогорска от 24.03.2020 № 43-п «О создании рабочей группы» Распоряжение Администрации ЗАТО г. Зеленогорска от 30.11.2020 № 1996-р Об аккредитации журналистов редакций средств массовой информации при Администрации ЗАТО г. Зеленогорска Распоряжение Администрации ЗАТО г. Зеленогорска от 02.12.2020 № 1999-р Об установлении норматива стоимости одного квадратного метра общей площади жилья по г. Зеленогорску на 2021 год Постановление Администрации ЗАТО г. Зеленогорска от 02.12.2020 № 165-п О внесении изменений в муниципальную программу «Развитие малого и среднего предпринимательства в городе Зеленогорске», утвержденную постановлением Администрации ЗАТО г. Зеленогорска от 29.09.2017 № 222-п Постановление Администрации ЗАТО г. Зеленогорска от 02.12.2020 № 164-п О внесении изменений в муниципальную программу «Развитие малого и среднего предпринимательства в городе Зеленогорске», утвержденную постановлением Администрации ЗАТО г. Зеленогорска от 29.09.2017 № 222-п Постановление Администрации ЗАТО г. Зеленогорска от 30.11.2020 № 161-п Об утверждении Административного регламента предоставления муниципальной услуги «Направление уведомлений о соответствии построенных или реконструированных объекта индивидуального жилищного строительства или садового дома требованиям законодательства о градостроительной деятельности» Постановление Администрации ЗАТО г. Зеленогорска от 30.11.2020 № 160-п Об утверждении Административного регламента предоставления муниципальной услуги «Направление уведомлений о соответствии указанных в уведомлении о планируемых строительстве или реконструкции объекта индивидуального жилищного строительства или садового дома параметров объекта индивидуального жилищного строительства или садового дома установленным параметрам и допустимости размещения объекта индивидуального жилищного строительства или садового дома на земельном участке» Постановление Администрации ЗАТО г. Зеленогорска от 30.11.2020 № 159-п Об утверждении Административного регламента предоставления муниципальной услуги «Согласование переустройства и (или) перепланировки помещения в многоквартирном доме» Постановление Администрации ЗАТО г. Зеленогорска от 30.11.2020 № 158-п Об утверждении Административного регламента предоставления муниципальной услуги «Предоставление сведений из информационной системы обеспечения градостроительной деятельности (ИСОГД)» Постановление Администрации ЗАТО г. Зеленогорска от 30.11.2020 № 157-п Об утверждении Административного регламента предоставления муниципальной услуги «Предоставление разрешения на условно разрешенный вид использования земельного участка или объекта капитального строительства» Постановление Администрации ЗАТО г. Зеленогорска от 30.11.2020 № 156-п Об утверждении Административного регламента предоставления муниципальной услуги «Предоставление разрешения на отклонение от предельных параметров разрешенного строительства, реконструкции объектов капитального строительства» Постановление Администрации ЗАТО г. Зеленогорска от 01.12.2020 № 162-п О внесении изменений в постановление Администрации ЗАТО г. Зеленогорска от 05.07.2016 № 203-п «Об утверждении состава и содержания задания, состава и содержания исходных материалов в целях подготовки проекта изменений в Генеральный план ЗАТО г. Зеленогорска» Постановление Администрации ЗАТО г. Зеленогорска от 27.11.2020 № 155-п Об установлении тарифа на услуги по вывозу жидких бытовых отходов, оказываемые Муниципальным унитарным предприятием тепловых сетей г.Зеленогорска Распоряжение Администрации ЗАТО г. Зеленогорска от 25.11.2020 № 1941-р Об утверждении Плана проведения плановых проверок при осуществлении ведомственного контроля за соблюдением трудового законодательства и иных нормативных правовых актов, содержащих нормы трудового права, на 2021 год Распоряжение Администрации ЗАТО г. Зеленогорска от 20.11.2020 № 1925-р О внесении изменений в распоряжение Администрации ЗАТО г. Зеленогорска от 06.11.2015 № 2298-р «Об утверждении состава и Порядка деятельности комиссии по подготовке проекта правил землепользования и застройки г. Зеленогорска» Постановление Администрации ЗАТО г. Зеленогорска от 25.11.2020 № 154-п О средстве массовой информации, определенном в качестве официального периодического издания, осуществляющего публикацию муниципальных правовых актов г. Зеленогорска Распоряжение Администрации ЗАТО г. Зеленогорска от 18.11.2020 № 1916-р О внесении изменений в распоряжение Администрации ЗАТО г. Зеленогорска от 07.12.2017 № 2772-р «Об утверждении состава и Положения о порядке работы комиссии по оказанию поддержки субъектам малого и среднего предпринимательства» Распоряжение Администрации ЗАТО г. Зеленогорска от 11.11.2020 № 1888-р О внесении изменений в состав комиссии по снижению неформальной занятости, легализации «серой» заработной платы, повышению собираемости страховых взносов во внебюджетные фонды на территории города Зеленогорска, утвержденной распоряжением Администрации ЗАТО г. Зеленогорска от 25.02.2019 № 410-р Постановление Администрации ЗАТО г. Зеленогорска от 06.11.2020 № 153-п О признании утратившими силу некоторых постановлений Администрации ЗАТО г. Зеленогорска Постановление Администрации ЗАТО г. Зеленогорска от 06.11.2020 № 152-п Об установлении режима работы муниципальных организаций, осуществляющих деятельность в сфере торговли, общественного питания и бытового обслуживания города Зеленогорска Постановление Администрации ЗАТО г. Зеленогорска от 29.10.2020 № 149-п Об установлении расчетной стоимости 1 кв. м общей площади жилых помещений в целях признания граждан малоимущими на IV квартал 2020 года Постановление Администрации ЗАТО г. Зеленогорска от 30.10.2020 № 150-п О внесении изменений в постановление Администрации ЗАТО г. Зеленогорска от 18.12.2015 № 326-п «Об утверждении Перечня муниципальных услуг, предоставляемых Администрацией ЗАТО г. Зеленогорска, и услуг, предоставляемых муниципальными учреждениями г. Зеленогорска» Распоряжение Администрации ЗАТО г. Зеленогорска от 13.10.2020 № 1805-р О внесении изменений в распоряжение Администрации ЗАТО г. Зеленогорска от 04.02.2019 № 201-р «Об утверждении состава и Порядка работы комиссии по размещению нестационарных торговых объектов» Постановление Администрации ЗАТО г. Зеленогорска от 27.10.2020 № 148-п Об условиях приватизации муниципального имущества Постановление Администрации ЗАТО г. Зеленогорска от 27.10.2020 № 147-п О признании утратившими силу некоторых постановлений Администрации ЗАТО г. Зеленогорска по вопросам уведомления представителя нанимателя (работодателя) муниципальными служащими Администрации ЗАТО г. Зеленогорска Постановление Администрации ЗАТО г. Зеленогорска от 27.10.2020 № 145-п О внесении изменений в постановление главы Администрации ЗАТО г. Зеленогорска от 23.06.2008 № 275-п «О создании Координационного совета в области развития малого и среднего предпринимательства» Постановление Администрации ЗАТО г. Зеленогорска от 27.10.2020 № 146-п Об установлении размера платы за пользование жилым помещением (платы за наем) государственного или муниципального жилищного фонда Постановление Администрации ЗАТО г. Зеленогорска от 16.10.2020 № 142-п Об утверждении отчета об исполнении местного бюджета города Зеленогорска за 9 месяцев 2020 года Постановление Администрации ЗАТО г. Зеленогорска от 20.10.2020 № 143-п О внесении изменений в постановление Администрации ЗАТО г. Зеленогорска от 22.09.2020 № 127-п «О видах обязательных работ, объектах, на которых они отбываются, и местах, в которых отбываются исправительные работы» Распоряжение Администрации ЗАТО г. Зеленогорска от 13.10.2020 № 1691-р Об утверждении состава и Положения о городской жилищной комиссии Распоряжение Администрации ЗАТО г. Зеленогорска от 15.10.2020 № 1707-р О внесении изменений в распоряжение Администрации ЗАТО г. Зеленогорска от 21.06.2019 № 1374-р «Об утверждении Положения и состава комиссии по оказанию содействия в подготовке и проведении Всероссийской переписи населения 2020 года в городе Зеленогорске» Распоряжение Администрации ЗАТО г. Зеленогорска от 09.10.2020 № 1675-р О внесении изменений в распоряжение Администрации ЗАТО г. Зеленогорска от 11.02.2011 № 226-р «О создании комиссии по вопросам формирования реестра муниципальных услуг» Распоряжение Администрации ЗАТО г. Зеленогорска от 09.10.2020 № 1674-р Об утверждении состава и Положения о порядке работы межведомственной комиссии по оценке и обследованию помещения в целях признания его жилым помещением, жилого помещения пригодным (непригодным) для проживания граждан, а также многоквартирного дома в целях признания его аварийным и подлежащим сносу или реконструкции Распоряжение Администрации ЗАТО г. Зеленогорска от 05.10.2020 № 1612-р О внесении изменений в распоряжение Администрации ЗАТО г. Зеленогорска от 25.05.2016 № 994-р «Об утверждении Положения и состава балансовой комиссии» Распоряжение Администрации ЗАТО г. Зеленогорска от 30.09.2020 № 1592-р Об утверждении Положения и состава комиссии по оказанию содействия в подготовке и проведении сельскохозяйственной микропереписи 2021 года в городе Зеленогорске Постановление Администрации ЗАТО г. Зеленогорска от 07.10.2020 № 141-п Об определении деятельности МКУ «Центр закупок, предпринимательства и обеспечения деятельности ОМС» Постановление Администрации ЗАТО г. Зеленогорска от 01.10.2020 № 140-п Об утверждении Административного регламента предоставления муниципальной услуги «Внесение изменений в разрешение на строительство» Постановление Администрации ЗАТО г. Зеленогорска от 01.10.2020 № 139-п Об утверждении Административного регламента предоставления муниципальной услуги «Выдача разрешений на ввод в эксплуатацию объектов капитального строительства» Постановление Администрации ЗАТО г. Зеленогорска от 01.10.2020 № 138-п Об утверждении Административного регламента предоставления муниципальной услуги «Предоставление разрешения на условно разрешенный вид использования земельного участка или объекта капитального строительства» Постановление Администрации ЗАТО г. Зеленогорска от 01.10.2020 № 137-п Об утверждении Административного регламента предоставления муниципальной услуги «Предоставление разрешения на отклонение от предельных параметров разрешенного строительства, реконструкции объектов капитального строительства» Постановление Администрации ЗАТО г. Зеленогорска от 01.10.2020 № 136-п Об утверждении Административного регламента предоставления муниципальной услуги «Выдача разрешений на строительство, реконструкцию объектов капитального строительства» Постановление Администрации ЗАТО г. Зеленогорска от 01.10.2020 № 135-п Об утверждении Административного регламента предоставления муниципальной услуги «Выдача градостроительных планов земельных участков» Постановление Администрации ЗАТО г. Зеленогорска от 01.10.2020 № 134-п Об утверждении Положения о порядке подготовки документации по планировке территории, разрабатываемой на основании решений органов местного самоуправления, порядке утверждения документации по планировке территории, порядке внесения изменений в такую документацию, порядке отмены такой документации или ее отдельных частей, порядке признания отдельных частей такой документации не подлежащими применению Постановление Администрации ЗАТО г. Зеленогорска от 01.10.2020 № 133-п Об утверждении Положения о составе, порядке подготовки генерального плана города Зеленогорска, порядке подготовки изменений и внесения их в генеральный план, а также составе, порядке подготовки плана реализации генерального плана Постановление Администрации ЗАТО г. Зеленогорска от 29.09.2020 № 131-п О внесении изменений в Примерное положение об оплате труда работников муниципальных бюджетных и казенных учреждений города Зеленогорска, находящихся в ведении Управления образования Администрации ЗАТО г. Зеленогорска, утвержденное постановлением Администрации ЗАТО г. Зеленогорска от 22.09.2020 № 128-п Постановление Администрации ЗАТО г. Зеленогорска от 30.09.2020 № 132-п О внесении изменений в постановление Администрации ЗАТО г. Зеленогорска от 18.05.2020 № 78-п «Об утверждении Положения и персонального состава комиссии по делам несовершеннолетних и защите их прав города Зеленогорска» Постановление Администрации ЗАТО г. Зеленогорска от 22.09.2020 № 129-п О внесении изменений в Примерное положение об оплате труда работников муниципальных бюджетных учреждений города Зеленогорска, осуществляющих деятельность в сфере городского хозяйства, утвержденное постановлением Администрации ЗАТО г. Зеленогорска от 27.01.2020 № 18-п Постановление Администрации ЗАТО г. Зеленогорска от 22.09.2020 № 128-п Об утверждении Примерного положения об оплате труда работников муниципальных бюджетных и казенных учреждений города Зеленогорска, находящихся в ведении Управления образования Администрации ЗАТО г. Зеленогорска Постановление Администрации ЗАТО г. Зеленогорска от 22.09.2020 № 127-п О видах обязательных работ, объектах, на которых они отбываются, и местах, в которых отбываются исправительные работы Распоряжение Администрации ЗАТО г. Зеленогорска от 17.09.2020 № 1507-р О начале отопительного периода 2020-2021 годов Постановление Администрации ЗАТО г. Зеленогорска от 17.09.2020 № 126-п О внесении изменений в муниципальную программу «Обеспечение безопасности населения города Зеленогорска», утвержденную постановлением Администрации ЗАТО г. Зеленогорска от 25.01.2019 № 6-п Распоряжение Администрации ЗАТО г. Зеленогорска от 16.09.2020 № 1494-р О внесении изменений в распоряжение Администрации ЗАТО г. Зеленогорска от 07.12.2017 № 2772-р Об утверждении состава и Положения о порядке работы комиссии по оказанию поддержки субъектам малого и среднего предпринимательства Постановление Администрации ЗАТО г. Зеленогорска от 16.09.2020 № 123-п О внесении изменений в Примерное положение об оплате труда работников муниципальных бюджетных и казенных учреждений по сопровождению деятельности органов местного самоуправления, утвержденное постановлением Администрации ЗАТО г. Зеленогорска от 09.12.2016 № 345-п Постановление Администрации ЗАТО г. Зеленогорска от 16.09.2020 № 124-п О внесении изменений в Примерное положение об оплате труда работников муниципальных бюджетных учреждений дополнительного образования города Зеленогорска, находящихся в ведении Муниципального казенного учреждения «Комитет по делам культуры и молодежной политики города Зеленогорска», утвержденное постановлением Администрации ЗАТО г. Зеленогорска от 23.03.2018 № 44-п Постановление Администрации ЗАТО г. Зеленогорска от 14.09.2020 № 122-п О внесении изменений в Примерное положение об оплате труда работников муниципальных бюджетных учреждений города Зеленогорска, осуществляющих деятельность в сфере молодежной политики, находящихся в ведении Муниципального казенного учреждения «Комитет по делам культуры и молодежной политики города Зеленогорска», утвержденное постановлением Администрации ЗАТО г. Зеленогорска от 21.12.2016 № 358-п Постановление Администрации ЗАТО г. Зеленогорска от 14.09.2020 № 121-п О внесении изменений в Примерное положение об оплате труда работников муниципальных учреждений города Зеленогорска, находящихся в ведении Муниципального казенного учреждения «Комитет по делам культуры и молодежной политики города Зеленогорска», утвержденное постановлением Администрации ЗАТО г. Зеленогорска от 29.08.2017 № 194-п Постановление Администрации ЗАТО г. Зеленогорска от 14.09.2020 № 120-п О внесении изменений в Примерное положение об оплате труда работников муниципальных бюджетных и казенных учреждений, находящихся в ведении МКУ «КФиС», утвержденное постановлением Администрации ЗАТО г. Зеленогорска от 31.08.2018 № 165-п Постановление Администрации ЗАТО г. Зеленогорска от 11.09.2020 № 118-п О внесении изменений в муниципальную программу «Формирование современной городской среды в городе Зеленогорске», утвержденную постановлением Администрации ЗАТО г. Зеленогорска от 31.10.2017 № 257-п Распоряжение Администрации ЗАТО г. Зеленогорска от 09.09.2020 № 1437-р О внесении изменений в распоряжение Администрации ЗАТО г. Зеленогорска от 25.10.2016 № 2246-р «Об утверждении Положения о премировании по результатам работы директоров муниципальных унитарных предприятий г. Зеленогорска» Постановление Администрации ЗАТО г. Зеленогорска от 09.09.2020 № 115-п О ритуальных услугах Постановление Администрации ЗАТО г. Зеленогорска от 09.09.2020 № 116-п О внесении изменений в Примерное положение об оплате труда работников муниципальных бюджетных и казенных учреждений, находящихся в ведении МКУ «КФиС», утвержденное постановлением Администрации ЗАТО г. Зеленогорска от 31.08.2018 № 165-п Распоряжение Администрации ЗАТО г. Зеленогорска от 03.09.2020 № 1414-р О внесении изменений в распоряжение Администрации ЗАТО г. Зеленогорска от 16.05.2017 № 1063-р «Об утверждении состава территориальной трехсторонней комиссии по регулированию социально-трудовых отношений» Распоряжение Администрации ЗАТО г. Зеленогорска от 03.09.2020 № 1413-р О внесении изменений в распоряжение Администрации ЗАТО г. Зеленогорска от 14.02.2020 № 290-р Распоряжение Администрации ЗАТО г. Зеленогорска от 31.08.2020 № 1376-р О подготовке проекта планировки территории и проекта межевания территории в отношении территории, ограниченной улицами Звездная, Центральная, Солнечная и Спортивная Постановление Администрации ЗАТО г. Зеленогорска от 28.08.2020 № 112-п О внесении изменений в муниципальную программу «Реформирование и модернизация жилищно-коммунального хозяйства и повышение энергетической эффективности в городе Зеленогорске», утвержденную постановлением Администрации ЗАТО г. Зеленогорска от 12.11.2015 № 293-п Постановление Администрации ЗАТО г. Зеленогорска от 28.08.2020 № 110-п О внесении изменений в муниципальную программу «Охрана окружающей среды и защита городских лесов на территории города Зеленогорска», утвержденную постановлением Администрации ЗАТО г. Зеленогорска от 12.11.2015 № 289-п Постановление Администрации ЗАТО г. Зеленогорска от 28.08.2020 № 111-п О внесении изменений в муниципальную программу «Развитие образования в городе Зеленогорске», утвержденную постановлением Администрации ЗАТО г. Зеленогорска от 12.11.2015 № 295-п Постановление Администрации ЗАТО г. Зеленогорска от 31.08.2020 № 113-п Об утверждении Порядка формирования перечня налоговых расходов города Зеленогорска и Порядка оценки налоговых расходов города Зеленогорска Распоряжение Администрации ЗАТО г. Зеленогорска от 31.08.2020 № 1375-р О внесении изменений в распоряжение Администрации ЗАТО г. Зеленогорска от 05.07.2019 № 1481-р «Об утверждении состава и Порядка работы аукционной (конкурсной) комиссии по приватизации муниципального имущества» Распоряжение Администрации ЗАТО г. Зеленогорска от 31.08.2020 № 1374-р О внесении изменений в распоряжение Администрации ЗАТО г. Зеленогорска от 30.01.2019 № 183-р «Об утверждении состава и Порядка работы комиссии по приватизации муниципального имущества» Постановление Администрации ЗАТО г. Зеленогорска от 28.08.2020 № 109-п О внесении изменений в муниципальную программу «Развитие культуры города Зеленогорска», утвержденную постановлением Администрации ЗАТО г. Зеленогорска от 12.11.2015 № 288-п Постановление Администрации ЗАТО г. Зеленогорска от 28.08.2020 № 108-п О внесении изменений в муниципальную программу «Развитие транспортной системы в городе Зеленогорске», утвержденную постановлением Администрации ЗАТО г. Зеленогорска от 12.11.2015 № 291-п Постановление Администрации ЗАТО г. Зеленогорска от 28.08.2020 № 107-п О внесении изменений в муниципальную программу «Капитальное строительство и капитальный ремонт в городе Зеленогорске», утвержденную постановлением Администрации ЗАТО г. Зеленогорска от 12.11.2015 № 292-п Постановление Администрации ЗАТО г. Зеленогорска от 28.08.2020 № 106-п О внесении изменений в постановление Администрации ЗАТО г. Зеленогорска от 05.04.2019 № 62-п «Об утверждении краткосрочного плана реализации региональной программы капитального ремонта общего имущества в многоквартирных домах, расположенных на территории города Зеленогорска, на 2020 - 2022 годы» Распоряжение Администрации ЗАТО г. Зеленогорска от 20.08.2020 № 1340-р О внесении изменений в распоряжение Администрации ЗАТО г. Зеленогорска от 16.03.2017 № 536-р «Об утверждении состава комиссии по соблюдению требований к служебному поведению муниципальных служащих и урегулированию конфликтов интересов» Постановление Администрации ЗАТО г. Зеленогорска от 20.08.2020 № 105-п О внесении изменений в муниципальную программу «Формирование современной городской среды в городе Зеленогорске», утвержденную постановлением Администрации ЗАТО г. Зеленогорска от 31.10.2017 № 257-п Постановление Администрации ЗАТО г. Зеленогорска от 18.08.2020 № 104-п Об установлении цен на издание и распространение газеты «Панорама» Постановление Администрации ЗАТО г. Зеленогорска от 17.08.2020 № 103-п О внесении изменений в муниципальную программу «Управление муниципальными финансами города Зеленогорска», утвержденную постановлением Администрации ЗАТО г. Зеленогорска от 12.11.2015 № 287-п Постановление Администрации ЗАТО г. Зеленогорска от 13.08.2020 № 102-п Об установлении размера платы за содержание жилого помещения в многоквартирном доме по адресу: г. Зеленогорск, ул. Набережная, д. 26 Постановление Администрации ЗАТО г. Зеленогорска от 13.08.2020 № 101-п О внесении изменений в муниципальную программу «Защита населения и территории города Зеленогорска от чрезвычайных ситуаций природного и техногенного характера», утвержденную постановлением Администрации ЗАТО г. Зеленогорска от 12.11.2015 № 286-п Распоряжение Администрации ЗАТО г. Зеленогорска от 10.08.2020 № 1293-р О внесении изменений в распоряжение Администрации ЗАТО г. Зеленогорска от 27.04.2020 № 786-р «Об организации отдыха детей и их оздоровления в летний период 2020 года» Постановление Администрации ЗАТО г. Зеленогорска от 10.08.2020 № 100-п О внесении изменений в Примерное положение об оплате труда работников муниципальных бюджетных учреждений города Зеленогорска, осуществляющих деятельность в сфере городского хозяйства, утвержденное постановлением Администрации ЗАТО г. Зеленогорска от 27.01.2020 № 18-п Постановление Администрации ЗАТО г. Зеленогорска от 10.08.2020 № 99-п О внесении изменений в муниципальную программу «Гражданское общество – закрытое административно-территориальное образование Зеленогорск», утвержденную постановлением Администрации ЗАТО г. Зеленогорска от 12.11.2015 № 285-п Распоряжение Администрации ЗАТО г. Зеленогорска от 05.08.2020 № 1271-р О внесении изменений в распоряжение Администрации ЗАТО г. Зеленогорска от 07.10.2019 № 2249-р «О принятии муниципальных правовых актов по вопросам осуществления государственных полномочий по организации и осуществлению деятельности по опеке и попечительству в отношении совершеннолетних граждан, а также в сфере патронажа» Распоряжение Администрации ЗАТО г. Зеленогорска от 28.07.2020 № 1209-р Об утверждении состава организационного комитета Всероссийского творческого конкурса «Слава Созидателям!», проводимого в 2020 году Постановление Администрации ЗАТО г. Зеленогорска от 28.07.2020 № 97-п О внесении изменений в муниципальную программу «Защита населения и территории города Зеленогорска от чрезвычайных ситуаций природного и техногенного характера», утвержденную постановлением Администрации ЗАТО г. Зеленогорска от 12.11.2015 № 286-п Распоряжение Администрации ЗАТО г. Зеленогорска от 28.07.2020 № 1213-р О внесении изменений в распоряжение Администрации ЗАТО г. Зеленогорска от 14.06.2018 № 1082-р «Об утверждении Перечня муниципального имущества, свободного от прав третьих лиц (за исключением имущественных прав некоммерческих организаций) и предназначенного для предоставления социально ориентированным некоммерческим организациям» Постановление Администрации ЗАТО г. Зеленогорска от 30.07.2020 № 98-п Об установлении расчетной стоимости 1 кв. м общей площади жилых помещений в целях признания граждан малоимущими на III квартал 2020 года Постановление Администрации ЗАТО г. Зеленогорска от 28.07.2020 № 96-п О внесении изменений в постановление Администрации ЗАТО г. Зеленогорска от 12.11.2015 № 284-п «Об утверждении муниципальной программы «Развитие физической культуры и спорта в городе Зеленогорске» Постановление Администрации ЗАТО г. Зеленогорска от 23.07.2020 № 95-п Об утверждении Порядка разработки прогноза социально-экономического развития города Зеленогорска на среднесрочный период Постановление Администрации ЗАТО г. Зеленогорска от 20.07.2020 № 94-п Об утверждении отчета об исполнении местного бюджета города Зеленогорска за 1 полугодие 2020 года Постановление Администрации ЗАТО г. Зеленогорска от 17.07.2020 № 91-п О внесении изменений в муниципальную программу «Развитие молодежной политики города Зеленогорска», утвержденную постановлением Администрации ЗАТО г. Зеленогорска от 12.11.2015 № 296-п Постановление Администрации ЗАТО г. Зеленогорска от 16.07.2020 № 90-п Об утверждении Порядка предоставления субсидии Муниципальному унитарному предприятию «Глобус» г. Зеленогорска в целях финансового обеспечения затрат на проведение мероприятий по предупреждению банкротства и восстановлению платежеспособности в 2020 году Постановление Администрации ЗАТО г. Зеленогорска от 17.07.2020 № 92-п Об установлении нормативов состава сточных вод для объектов абонентов Муниципального унитарного предприятия тепловых сетей г. Зеленогорска, осуществляющих сброс сточных вод в централизованную систему водоотведения Распоряжение Администрации ЗАТО г. Зеленогорска от 03.07.2020 № 1075-р О подготовке проекта планировки территории и проекта межевания территории в отношении территории, ограниченной улицами Шолохова, Чапаева, Панфилова и земельным участком, имеющим кадастровый номер 24:59:0406003:1 Распоряжение Администрации ЗАТО г. Зеленогорска от 03.07.2020 № 1074-р О подготовке проекта планировки территории и проекта межевания территории в отношении территории, ограниченной улицами Шолохова, Чапаева, Панфилова, включая территорию многоквартирных домов по ул. Чапаева, д. 13 и ул. Шолохова, д. 4, д. 6, д. 16 Распоряжение Администрации ЗАТО г. Зеленогорска от 03.07.2020 № 1073-р О подготовке проекта планировки территории и проекта межевания территории в отношении территории, ограниченной улицами Удачная, Монтажников Распоряжение Администрации ЗАТО г. Зеленогорска от 03.07.2020 № 1072-р О подготовке проекта планировки территории и проекта межевания территории в отношении территории, ограниченной улицами Первостроителей, Удачная, Монтажников Распоряжение Администрации ЗАТО г. Зеленогорска от 03.07.2020 № 1071-р О подготовке проекта планировки территории и проекта межевания территории в отношении территории, ограниченной улицами Диктатуры Пролетариата, Полевая, Юбилейная и переулком Малый Распоряжение Администрации ЗАТО г. Зеленогорска от 03.07.2020 № 1070-р О подготовке проекта планировки территории и проекта межевания территории в отношении территории, ограниченной улицами Диктатуры Пролетариата, Советской Армии, Юбилейная, Полевая Распоряжение Администрации ЗАТО г. Зеленогорска от 03.07.2020 № 1069-р О подготовке проекта планировки территории и проекта межевания территории в отношении территории, ограниченной улицами Диктатуры Пролетариата, Советской Армии, Юбилейная, 8 Марта Распоряжение Администрации ЗАТО г. Зеленогорска от 03.07.2020 № 1068-р О подготовке проекта планировки территории и проекта межевания территории в отношении территории, ограниченной улицами Диктатуры Пролетариата, Л.Толстого, Гоголя, Полевая Постановление Администрации ЗАТО г. Зеленогорска от 30.06.2020 № 89-п О внесении изменений в постановление Администрации ЗАТО г. Зеленогорска от 30.03.2018 № 49-п «Об утверждении Положения об отделе имущественных отношений и Положения о земельном отделе Комитета по управлению имуществом Администрации ЗАТО г. Зеленогорска» Распоряжение Администрации ЗАТО г. Зеленогорска от 30.06.2020 № 1052-р О внесении изменений в распоряжение Администрации ЗАТО г. Зеленогорска от 25.02.2019 № 410-р «Об утверждении состава и Положения о порядке работы комиссии по снижению неформальной занятости, легализации «серой» заработной платы, повышению собираемости страховых взносов во внебюджетные фонды на территории города Зеленогорска» Распоряжение Администрации ЗАТО г. Зеленогорска от 18.06.2020 № 1021-р О внесении изменений в План проведения плановых проверок юридических лиц и индивидуальных предпринимателей при осуществлении муниципального земельного контроля на 2020 год Распоряжение Администрации ЗАТО г. Зеленогорска от 15.06.2020 № 996-р О внесении изменений в распоряжение Администрации ЗАТО г. Зеленогорска от12.08.2019 № 1769-р «Об утверждении положения и состава комиссии по предупреждению и ликвидации чрезвычайных ситуаций и обеспечению пожарной безопасности города» Постановление Администрации ЗАТО г. Зеленогорска от 17.06.2020 № 85-п О разрешении использования в 2020 году в целях купания и отдыха людей озера «Ближнее» и озера «Лебединое» Постановление Администрации ЗАТО г. Зеленогорска от 15.06.2020 № 83-п О внесении изменений в постановление Администрации ЗАТО г. Зеленогорска от 14.01.2020 № 8-п «Об установлении мест реализации гражданами отдельных видов продукции и пищевых лесных ресурсов» Постановление Администрации ЗАТО г. Зеленогорска от 18.06.2020 № 86-п О внесении изменений в муниципальную программу «Формирование современной городской среды в городе Зеленогорске», утвержденную постановлением Администрации ЗАТО г. Зеленогорска от 31.10.2017 № 257-п Распоряжение Администрации ЗАТО г. Зеленогорска от 05.06.2020 № 968-р О внесении изменений в распоряжение Администрации ЗАТО г. Зеленогорска от 05.02.2014 № 219-р «Об утверждении состава и Положения о координационном комитете содействия занятости населения города Зеленогорска» Распоряжение Администрации ЗАТО г. Зеленогорска от 29.05.2020 № 938-р О внесении изменений в распоряжение Администрации ЗАТО г. Зеленогорска от 24.05.2019 № 1164-р «Об утверждении Плана мероприятий по приспособлению жилых помещений, занимаемых инвалидами и семьями, имеющими детей-инвалидов, и используемых для их постоянного проживания, и общего имущества в многоквартирных домах, в которых проживают инвалиды, входящих в состав муниципального жилищного фонда, а также частного жилищного фонда, с учетом потребностей инвалидов и обеспечения условий их доступности для инвалидов» Распоряжение Администрации ЗАТО г. Зеленогорска от 01.06.2020 № 942-р О подготовке муниципальных бюджетных образовательных учреждений г. Зеленогорска к новому 2020 - 2021 учебному году Постановление Администрации ЗАТО г. Зеленогорска от 02.06.2020 № 81-п Об утверждении структуры Управления образования Администрации ЗАТО г. Зеленогорска и Положений об отделах Распоряжение Администрации ЗАТО г. Зеленогорска от 03.06.2020 № 956-р О мероприятиях по организации обустройства мест массового отдыха людей на водных объектах для купания и отдыха в 2020 году Распоряжение Администрации ЗАТО г. Зеленогорска от 29.05.2020 № 935-р О назначении голосования по выбору общественной территории г. Зеленогорска, подлежащей благоустройству в рамках конкурса лучших проектов создания комфортной городской среды Распоряжение Администрации ЗАТО г. Зеленогорска от 25.05.2020 № 914-р Об участии в конкурсе лучших проектов создания комфортной городской среды Постановление Администрации ЗАТО г. Зеленогорска от 18.05.2020 № 79-п О внесении изменений в постановление Администрации ЗАТО г. Зеленогорска от 21.08.2018 № 156-п «Об утверждении Проекта организации дорожного движения на автомобильных дорогах общего пользования местного значения в г. Зеленогорске Красноярского края» Постановление Администрации ЗАТО г. Зеленогорска от 20.05.2020 № 80-п О признании утратившим силу постановления Администрации ЗАТО г. Зеленогорска от 18.02.2019 № 34-п «Об установлении стоимости гарантированного перечня услуг по погребению, предоставляемых МУП КБУ» Распоряжение Администрации ЗАТО г. Зеленогорска от 20.05.2020 № 899-р О признании утратившими силу некоторых распоряжений Администрации ЗАТО г. Зеленогорска, касающихся уставов муниципальных учреждений Распоряжение Администрации ЗАТО г. Зеленогорска от 20.05.2020 № 903-р О внесении изменений в распоряжение Администрации ЗАТО г. Зеленогорска от 25.11.2019 № 2583-р «Об утверждении Плана проведения плановых проверок при осуществлении ведомственного контроля за соблюдением трудового законодательства и иных нормативных правовых актов, содержащих нормы трудового права, на 2020 год» Распоряжение Администрации ЗАТО г. Зеленогорска от 20.05.2020 № 898-р О подготовке проекта планировки территории и проекта межевания территории в отношении территории, ограниченной улицами Диктатуры Пролетариата, Советской Армии, Л.Толстого, Гоголя Распоряжение Администрации ЗАТО г. Зеленогорска от 20.05.2020 № 897-р О подготовке проекта планировки территории и проекта межевания территории в отношении территории, ограниченной улицами Диктатуры Пролетариата, Советской Армии, 8 Марта, Гоголя Распоряжение Администрации ЗАТО г. Зеленогорска от 20.05.2020 № 896-р О подготовке проекта планировки территории и проекта межевания территории в отношении территории микрорайона № 23 города Зеленогорска Распоряжение Администрации ЗАТО г. Зеленогорска от 20.05.2020 № 895-р О подготовке проекта планировки территории и проекта межевания территории в отношении территории микрорайона № 27 (1 и 2 очереди) города Зеленогорска Распоряжение Администрации ЗАТО г. Зеленогорска от 20.05.2020 № 894-р О подготовке проекта планировки территории и проекта межевания территории в отношении территории микрорайона № 20 города Зеленогорска Распоряжение Администрации ЗАТО г. Зеленогорска от 20.05.2020 № 893-р О подготовке проекта планировки территории и проекта межевания территории в отношении территории части квартала № 33 города Зеленогорска Распоряжение Администрации ЗАТО г. Зеленогорска от 20.05.2020 № 892-р О подготовке проекта планировки территории и проекта межевания территории в отношении территории квартала № 14-15 города Зеленогорска Распоряжение Администрации ЗАТО г. Зеленогорска от 20.05.2020 № 891-р О подготовке проекта планировки территории и проекта межевания территории в отношении территории части квартала № 13 города Зеленогорска Распоряжение Администрации ЗАТО г. Зеленогорска от 20.05.2020 № 890-р О подготовке проекта планировки территории и проекта межевания территории в отношении территории части квартала № 12 города Зеленогорска Распоряжение Администрации ЗАТО г. Зеленогорска от 20.05.2020 № 889-р О подготовке проекта планировки территории и проекта межевания территории в отношении территории квартала № 8 города Зеленогорска Распоряжение Администрации ЗАТО г. Зеленогорска от 20.05.2020 № 888-р О подготовке проекта планировки территории и проекта межевания территории в отношении территории квартала № 4 города Зеленогорска Распоряжение Администрации ЗАТО г. Зеленогорска от 20.05.2020 № 887-р О подготовке проекта планировки территории и проекта межевания территории в отношении территории квартала № 3 города Зеленогорска Постановление Администрации ЗАТО г. Зеленогорска от 18.05.2020 № 78-п Об утверждении Положения и персонального состава комиссии по делам несовершеннолетних и защите их прав города Зеленогорска Постановление Администрации ЗАТО г. Зеленогорска от 18.05.2020 № 77-п Об утверждении Перечня главных распорядителей средств местного бюджета и подведомственных им получателей средств местного бюджета Постановление Администрации ЗАТО г. Зеленогорска от 15.05.2020 № 76-п О подготовке к отопительному периоду 2020 – 2021 годов Постановление Администрации ЗАТО г. Зеленогорска от 14.05.2020 № 75-п О внесении изменений в Примерное положение об оплате труда работников муниципальных бюджетных учреждений города Зеленогорска, осуществляющих деятельность в сфере городского хозяйства, утвержденное постановлением Администрации ЗАТО г. Зеленогорска от 27.01.2020 № 18-п Постановление Администрации ЗАТО г. Зеленогорска от 12.05.2020 № 71-п О внесении изменений в Примерное положение об оплате труда работников муниципальных бюджетных и казенных учреждений по сопровождению деятельности органов местного самоуправления, утвержденное постановлением Администрации ЗАТО г. Зеленогорска от 09.12.2016 № 345-п Распоряжение Администрации ЗАТО г. Зеленогорска от 13.05.2020 № 864-р О внесении изменений в распоряжение Администрации ЗАТО г. Зеленогорска от 13.01.2020 № 29-р «Об утверждении персонального состава общественной комиссии по развитию городской среды» Постановление Администрации ЗАТО г. Зеленогорска от 12.05.2020 № 74-п О внесении изменений в постановление Администрации ЗАТО г. Зеленогорска от 15.02.2016 № 33-п «О наделении МБУ «Спортивный комплекс» полномочиями Центра тестирования по выполнению нормативов испытаний (тестов) Всероссийского физкультурно-спортивного комплекса «Готов к труду и обороне» (ГТО) на территории г. Зеленогорска» Постановление Администрации ЗАТО г. Зеленогорска от 12.05.2020 № 72-п Об определении средней рыночной стоимости одного квадратного метра общей площади жилого помещения на территории г. Зеленогорска на II квартал 2020 года Распоряжение Администрации ЗАТО г. Зеленогорска от 08.05.2020 № 855-р О проведении конкурса на включение граждан в резерв управленческих кадров г. Зеленогорска на замещение целевой должности директора Муниципального унитарного предприятия «Городское жилищно-коммунальное управление» г.Зеленогорска Постановление Администрации ЗАТО г. Зеленогорска от 07.05.2020 № 70-п Об установлении расчетной стоимости 1 кв. м общей площади жилых помещений в целях признания граждан малоимущими на II квартал 2020 года Постановление Администрации ЗАТО г. Зеленогорска от 30.04.2020 № 69-п О продлении действия ограничительных мероприятий в целях обеспечения санитарно- эпидемиологического благополучия населения на территории города Зеленогорска Распоряжение Администрации ЗАТО г. Зеленогорска от 30.04.2020 № 826-р О проведении конкурса на включение граждан в резерв управленческих кадров г. Зеленогорска на замещение целевой должности директора Муниципального унитарного предприятия «Глобус» г.Зеленогорска Постановление Администрации ЗАТО г. Зеленогорска от 27.04.2020 № 68-п О внесении изменений в Примерное положение об оплате труда работников муниципальных бюджетных и казенных учреждений города Зеленогорска, находящихся в ведении Управления образования Администрации ЗАТО г. Зеленогорска, утвержденное постановлением Администрации ЗАТО г. Зеленогорска от 05.12.2016 № 333-п Постановление Администрации ЗАТО г. Зеленогорска от 27.04.2020 № 67-п О внесении изменений в Примерное положение об оплате труда работников муниципальных бюджетных и казенных учреждений, находящихся в ведении МКУ «КФиС», утвержденное постановлением Администрации ЗАТО г. Зеленогорска от 31.08.2018 № 165-п Распоряжение Администрации ЗАТО г. Зеленогорска от 27.04.2020 № 786-р Об организации отдыха детей и их оздоровления в летний период 2020 года Постановление Администрации ЗАТО г. Зеленогорска от 27.04.2020 № 66-п О внесении изменений в Примерное положение об оплате труда работников муниципальных учреждений города Зеленогорска, находящихся в ведении Муниципального казенного учреждения «Комитет по делам культуры и молодежной политики города Зеленогорска», утвержденное постановлением Администрации ЗАТО г. Зеленогорска от 29.08.2017 № 194-п Постановление Администрации ЗАТО г. Зеленогорска от 27.04.2020 № 65-п О внесении изменений в Примерное положение об оплате труда работников муниципальных бюджетных учреждений дополнительного образования города Зеленогорска, находящихся в ведении Муниципального казенного учреждения «Комитет по делам культуры и молодежной политики города Зеленогорска», утвержденное постановлением Администрации ЗАТО г. Зеленогорска от 23.03.2018 № 44-п Постановление Администрации ЗАТО г. Зеленогорска от 27.04.2020 № 64-п О внесении изменений в Примерное положение об оплате труда работников муниципальных бюджетных учреждений города Зеленогорска, осуществляющих деятельность в сфере молодежной политики, находящихся в ведении Муниципального казенного учреждения «Комитет по делам культуры и молодежной политики города Зеленогорска», утвержденное постановлением Администрации ЗАТО г. Зеленогорска от 21.12.2016 № 358-п Распоряжение Администрации ЗАТО г. Зеленогорска от 27.04.2020 № 776-р Об окончании отопительного периода 2019 – 2020 годов Постановление Администрации ЗАТО г. Зеленогорска от 17.04.2020 № 59-п О внесении изменений в постановление Администрации ЗАТО г. Зеленогорска от 24.03.2020 № 43-п «О создании рабочей группы» Постановление Администрации ЗАТО г. Зеленогорска от 15.04.2020 № 55-п О внесении изменений в Сводный план организации ярмарок на 2020 год, утвержденный постановлением Администрации ЗАТО г. Зеленогорска от 09.12.2019 № 208-п Постановление Администрации ЗАТО г. Зеленогорска от 15.04.2020 № 56-п О внесении изменений в постановление Администрации ЗАТО г. Зеленогорска от 05.10.2017 № 226-п «Об утверждении Положения о предоставлении в аренду муниципального имущества субъектам малого и среднего предпринимательства, а также организациям, образующим инфраструктуру поддержки субъектов малого и среднего предпринимательства» Постановление Администрации ЗАТО г. Зеленогорска от 16.04.2020 № 57-п Об утверждении отчета об исполнении местного бюджета города Зеленогорска за 1 квартал 2020 года Постановление Администрации ЗАТО г. Зеленогорска от 16.04.2020 № 58-п Об ограничительных мероприятиях в целях обеспечения санитарно- эпидемиологического благополучия населения на территории города Зеленогорска Постановление Администрации ЗАТО г. Зеленогорска от 08.04.2020 № 53-п О внесении изменений в муниципальную программу «Развитие молодежной политики города Зеленогорска», утвержденную постановлением Администрации ЗАТО г. Зеленогорска от 12.11.2015 № 296-п Распоряжение Администрации ЗАТО г. Зеленогорска от 09.04.2020 № 679-р О подготовке к весенне-летнему пожароопасному сезону на территории г. Зеленогорска в 2020 году Распоряжение Администрации ЗАТО г. Зеленогорска от 09.04.2020 № 681-р О внесении изменений в распоряжение Администрации ЗАТО г. Зеленогорска от 14.12.2018 № 2730-р «О создании комиссии по визуальному осмотру технического состояния муниципального имущества, составляющего муниципальную казну города Зеленогорска, предоставленного в аренду Распоряжение Администрации ЗАТО г. Зеленогорска от 06.04.2020 № 639-р О признании утратившими силу некоторых распоряжений Администрации ЗАТО г. Зеленогорска в части определения мест (площадок) временного складирования отходов на территории г. Зеленогорска Постановление Администрации ЗАТО г. Зеленогорска от 02.04.2020 № 49-п Об утверждении Положения о порядке предоставления субсидий социально ориентированным некоммерческим организациям на реализацию социальных проектов Постановление Администрации ЗАТО г. Зеленогорска от 31.03.2020 № 47-п О внесении изменений в постановление главы Администрации ЗАТО г. Зеленогорска от 23.06.2008 № 275-п «О создании Координационного совета в области развития малого и среднего предпринимательства» Постановление Администрации ЗАТО г. Зеленогорска от 01.04.2020 № 48-п О внесении изменений в постановление Администрации ЗАТО г. Зеленогорска от 13.01.2020 № 4-п «О реорганизации Муниципального унитарного предприятия «Комбинат благоустройства» г.Зеленогорска» Постановление Администрации ЗАТО г. Зеленогорска от 27.03.2020 № 46-п О внесении изменений в постановление Администрации ЗАТО г. Зеленогорска от 24.03.2020 № 43-п «О создании рабочей группы» Распоряжение Администрации ЗАТО г. Зеленогорска от 20.03.2020 № 575-р О противопаводковых мероприятиях в 2020 году Постановление Администрации ЗАТО г. Зеленогорска от 20.03.2020 № 43-п О создании рабочей группы Постановление Администрации ЗАТО г. Зеленогорска от 20.03.2020 № 41-п О внесении изменений в Порядок демонтажа нестационарных торговых объектов, размещенных на территории города Зеленогорска, утвержденный постановлением Администрации ЗАТО г. Зеленогорска от 16.10.2017 № 231-п Постановление Администрации ЗАТО г. Зеленогорска от 20.03.2020 № 40-п О признании утратившими силу некоторых постановлений Администрации ЗАТО г. Зеленогорска Постановление Администрации ЗАТО г. Зеленогорска от 20.03.2020 № 39-п О признании утратившим силу постановления Администрации ЗАТО г. Зеленогорска от 23.07.2014 № 218-п «Об утверждении Положения о порядке осуществления внутреннего финансового контроля и внутреннего финансового аудита» Постановление Администрации ЗАТО г. Зеленогорска от 20.03.2020 № 38-п О внесении изменений в постановление Администрации ЗАТО г. Зеленогорска от 19.07.2017 № 167-п «Об утверждении Положения о порядке осуществления Финансовым управлением Администрации ЗАТО г.Зеленогорска полномочий по внутреннему муниципальному финансовому контролю» Постановление Администрации ЗАТО г. Зеленогорска от 17.03.2020 № 36-п О внесении изменений в постановление Администрации ЗАТО г. Зеленогорска от 28.08.2019 № 149-п «Об утверждении Положения о порядке проведения конкурса педагогов, осуществляющих работу с одаренными детьми» Распоряжение Администрации ЗАТО г. Зеленогорска от 20.03.2020 № 549-р О начале приема предложений от населения о предлагаемых мероприятиях и функциях на общественной территории, отобранной для участия во Всероссийском конкурсе лучших проектов создания комфортной городской среды Постановление Администрации ЗАТО г. Зеленогорска от 20.03.2020 № 37-п О внесении изменений в муниципальную программу «Формирование современной городской среды в городе Зеленогорске», утвержденную постановлением Администрации ЗАТО г. Зеленогорска от 31.10.2017 № 257-п Распоряжение Администрации ЗАТО г. Зеленогорска от 20.03.2020 № 547-р Об утверждении состава комиссии по решению спорных вопросов по предоставлению субсидий на оплату жилого помещения и коммунальных услуг Распоряжение Администрации ЗАТО г. Зеленогорска от 20.03.2020 № 546-р Об организации работы телефона «горячая линия» по вопросам охраны труда Распоряжение Администрации ЗАТО г. Зеленогорска от 10.03.2020 № 497-р Об утверждении состава и Положения о работе комиссии, осуществляющей плановую (внеплановую) проверку использования, сохранности и распоряжения жилыми помещениями, нанимателями или членами семей нанимателей по договорам социального найма либо собственниками которых являются дети-сироты и дети, оставшиеся без попечения родителей, обеспечения надлежащего санитарного и технического состояния этих жилых помещений Постановление Администрации ЗАТО г. Зеленогорска от 06.03.2020 № 34-п О внесении изменений в постановление Администрации ЗАТО г. Зеленогорска от 26.05.2014 № 156-п «Об утверждении Лесохозяйственного регламента городского лесничества г. Зеленогорска» Постановление Администрации ЗАТО г. Зеленогорска от 10.03.2020 № 35-п О внесении изменений в постановление Администрации ЗАТО г. Зеленогорска от 30.06.2016 № 181-п «Об утверждении Административного регламента предоставления муниципальной услуги «Предоставление информации об объектах недвижимого имущества, находящегося в муниципальной собственности и предназначенного для сдачи в аренду, безвозмездное пользование, доверительное управление» Распоряжение Администрации ЗАТО г. Зеленогорска от 05.03.2020 № 468-р О внесении изменений в распоряжение Администрации ЗАТО г. Зеленогорска от 18.10.2018 № 2296-р «Об утверждении состава и Порядка работы межведомственной комиссии по вопросам реабилитации или абилитации детей-инвалидов, психолого-педагогического и медико-социального сопровождения детей с ограниченными возможностями здоровья» Постановление Администрации ЗАТО г. Зеленогорска от 06.03.2020 № 33-п О внесении изменений в Примерное положение об оплате труда работников муниципальных бюджетных и казенных учреждений, находящихся в ведении МКУ «КФиС», утвержденное постановлением Администрации ЗАТО г. Зеленогорска от 31.08.2018 № 165-п Постановление Администрации ЗАТО г. Зеленогорска от 05.03.2020 № 32-п О внесении изменений в постановление Администрации ЗАТО г. Зеленогорска от 28.07.2016 № 221-п «О видах обязательных работ, объектах, на которых они отбываются, и местах, в которых отбываются исправительные работы» Постановление Администрации ЗАТО г. Зеленогорска от 03.03.2020 № 31-п Об утверждении требований к юридическим лицам, индивидуальным предпринимателям, участникам договора простого товарищества, осуществляющим регулярные перевозки пассажиров и багажа автомобильным транспортом по нерегулируемым тарифам по муниципальным маршрутам регулярных перевозок на территории города Зеленогорска Постановление Администрации ЗАТО г. Зеленогорска от 02.03.2020 № 30-п Об утверждении Положения о порядке расходования средств субвенции, направленной на осуществление органами местного самоуправления отдельных государственных полномочий в области архивного дела Распоряжение Комитета по управлению имуществом Администрации ЗАТО г. Зеленогорска от 18.02.2020 № 40-р О внесении изменений в распоряжение КУМИ от 02.02.2018 № 43-р «Об утверждении обязательных условий договоров аренды, безвозмездного пользования муниципальным имуществом» Постановление Администрации ЗАТО г. Зеленогорска от 21.02.2020 № 29-п О внесении изменений в постановление Администрации ЗАТО г. Зеленогорска от 08.02.2019 № 24-п «Об утверждении Порядка выплаты ежегодных премий победителям конкурсов педагогических работников г. Зеленогорска» Распоряжение Комитета по управлению имуществом Администрации ЗАТО г. Зеленогорска от 20.02.2020 № 41-р О внесении изменений в распоряжение Комитета по управлению имуществом Администрации ЗАТО г. Зеленогорска от 01.03.2016 № 53-р «Об единой (конкурсной, аукционной) комиссии по проведению конкурсов, аукционов на право заключения договоров аренды, договоров безвозмездного пользования, договоров доверительного управления имуществом, иных договоров, предусматривающих переход прав в отношении муниципального имущества, составляющего муниципальную казну города Зеленогорска» Распоряжение Администрации ЗАТО г. Зеленогорска от 21.02.2020 № 380-р Об участии во Всероссийском конкурсе лучших проектов создания комфортной городской среды Распоряжение Администрации ЗАТО г. Зеленогорска от 17.02.2020 № 317-р О внесении изменений в распоряжение Администрации ЗАТО г. Зеленогорска от 18.12.2012 № 2539-р «Об утверждении состава и Порядка работы муниципальной межведомственной комиссии по снижению задолженности по налогам, сборам и иным обязательным платежам» Постановление Администрации ЗАТО г. Зеленогорска от 17.02.2020 № 28-п Об утверждении Положения об аудиторских проверках муниципальных унитарных предприятий г. Зеленогорска Постановление Администрации ЗАТО г. Зеленогорска от 14.02.2020 № 27-п Об установлении норматива стоимости одного квадратного метра общей площади жилья по г. Зеленогорску на 2020 год Постановление Администрации ЗАТО г. Зеленогорска от 14.02.2020 № 26-п О признании утратившими силу некоторых постановлений Администрации ЗАТО г. Зеленогорска в сфере социальной защиты и социальной поддержки населения города Зеленогорска Распоряжение Администрации ЗАТО г. Зеленогорска от 14.02.2020 № 290-р Об утверждении состава и Положения о порядке работы комиссии, осуществляющей проверку условий жизни детей-сирот, детей, оставшихся без попечения родителей, лиц из числа детей-сирот и детей, оставшихся без попечения родителей, лиц, которые относились к категории детей-сирот, детей, оставшихся без попечения родителей, лиц из числа детей-сирот и детей, оставшихся без попечения родителей, и достигли возраста 23 лет, являющихся нанимателями жилого помещения по договору найма специализированного жилого помещения Распоряжение Администрации ЗАТО г. Зеленогорска от 14.02.2020 № 288-р О внесении изменений в распоряжение Администрации ЗАТО г. Зеленогорска от 21.02.2018 № 316-р «О принятии муниципальных правовых актов по вопросам осуществления государственных полномочий в сфере опеки и попечительства в отношении несовершеннолетних граждан» Постановление Администрации ЗАТО г. Зеленогорска от 07.02.2020 № 25-п Об установлении расчетной стоимости 1 кв. м общей площади жилых помещений в целях признания граждан малоимущими на I квартал 2020 года Постановление Администрации ЗАТО г. Зеленогорска от 07.02.2020 № 23-п Об определении средней рыночной стоимости одного квадратного метра общей площади жилого помещения на территории г. Зеленогорска на I квартал 2020 года Постановление Администрации ЗАТО г. Зеленогорска от 03.02.2020 № 21-п О признании утратившими силу некоторых муниципальных правовых актов в сфере закупок товаров, работ, услуг для обеспечения муниципальных нужд Постановление Администрации ЗАТО г. Зеленогорска от 03.02.2020 № 22-п О проведении специализированной ярмарки «Весенняя ярмарка цветов, посвященная Международному женскому дню 8 марта» Распоряжение Администрации ЗАТО г. Зеленогорска от 03.02.2020 № 188-р О внесении изменений в распоряжение Администрации ЗАТО г. Зеленогорска от 25.05.2016 № 994-р «Об утверждении Положения и состава балансовой комиссии» Распоряжение Администрации ЗАТО г. Зеленогорска от 03.02.2020 № 187-р О внесении изменений в распоряжение Администрации ЗАТО г. Зеленогорска от 05.07.2019 № 1481-р «Об утверждении состава и Порядка работы аукционной (конкурсной) комиссии по приватизации муниципального имущества» Распоряжение Администрации ЗАТО г. Зеленогорска от 03.02.2020 № 186-р О внесении изменений в распоряжение Администрации ЗАТО г. Зеленогорска от 30.01.2019 № 183-р «Об утверждении состава и Порядка работы комиссии по приватизации муниципального имущества» Постановление Администрации ЗАТО г. Зеленогорска от 03.02.2020 № 20-п О временном прекращении движения транспортных средств на участке автомобильной дороги общего пользования местного значения города Зеленогорска Постановление Администрации ЗАТО г. Зеленогорска от 27.01.2020 № 18-п Об утверждении Примерного положения об оплате труда работников муниципальных бюджетных учреждений города Зеленогорска, осуществляющих деятельность в сфере городского хозяйства Постановление Администрации ЗАТО г. Зеленогорска от 20.01.2020 № 12-п О внесении изменений в муниципальную программу «Развитие физической культуры и спорта в городе Зеленогорске», утвержденную постановлением Администрации ЗАТО г. Зеленогорска от 12.11.2015 № 284-п Постановление Администрации ЗАТО г. Зеленогорска от 23.01.2020 № 17-п О внесении изменений в муниципальную программу «Развитие молодежной политики города Зеленогорска», утвержденную постановлением Администрации ЗАТО г. Зеленогорска от 12.11.2015 № 296-п Постановление Администрации ЗАТО г. Зеленогорска от 20.01.2020 № 14-п О внесении изменений в муниципальную программу «Развитие культуры города Зеленогорска», утвержденную постановлением Администрации ЗАТО г. Зеленогорска от 12.11.2015 № 288-п Распоряжение Администрации ЗАТО г. Зеленогорска от 22.01.2020 № 78-р О внесении изменений в распоряжение Администрации ЗАТО г. Зеленогорска от 13.12.2018 № 2718-р «Об утверждении состава муниципальной комиссии по обследованию жилых помещений инвалидов и общего имущества в многоквартирных домах, в которых проживают инвалиды, в целях их приспособления с учетом потребностей инвалидов и обеспечения условий их доступности для инвалидов» Распоряжение Администрации ЗАТО г. Зеленогорска от 22.01.2020 № 77-р О внесении изменений в распоряжение Администрации ЗАТО г. Зеленогорска от 11.02.2011 № 226-р «О создании комиссии по вопросам формирования реестра муниципальных услуг» Постановление Администрации ЗАТО г. Зеленогорска от 21.01.2020 № 15-п О внесении изменений в муниципальную программу «Развитие образования в городе Зеленогорске», утвержденную постановлением Администрации ЗАТО г. Зеленогорска от 12.11.2015 № 295-п Постановление Администрации ЗАТО г. Зеленогорска от 20.01.2020 № 11-п О внесении изменений в постановление Администрации ЗАТО г. Зеленогорска от 28.07.2016 № 221-п «О видах обязательных работ, объектах, на которых они отбываются, и местах, в которых отбываются исправительные работы» Постановление Администрации ЗАТО г. Зеленогорска от 21.01.2020 № 16-п О внесении изменений в муниципальную программу «Социальная защита и социальная поддержка населения города Зеленогорска», утвержденную постановлением Администрации ЗАТО г. Зеленогорска от 12.11.2015 № 283-п Постановление Администрации ЗАТО г. Зеленогорска от 20.01.2020 № 13-п Об утверждении Порядка составления и утверждения планов финансово-хозяйственной деятельности муниципальных учреждений Постановление Администрации ЗАТО г. Зеленогорска от 14.01.2020 № 6-п О внесении изменений в постановление Администрации ЗАТО г. Зеленогорска от 25.01.2019 № 6-п «Об утверждении муниципальной программы «Обеспечение безопасности населения города Зеленогорска» Постановление Администрации ЗАТО г. Зеленогорска от 14.01.2020 № 5-п О внесении изменений в муниципальную программу «Обеспечение безопасности населения города Зеленогорска», утвержденную постановлением Администрации ЗАТО г. Зеленогорска от 25.01.2019 № 6-п Распоряжение Администрации ЗАТО г. Зеленогорска от 15.01.2020 № 38-р О внесении изменений в распоряжение Администрации ЗАТО г. Зеленогорска от 07.11.2017 № 2586-р «О проведении капитального ремонта общего имущества в многоквартирных домах, расположенных на территории города Зеленогорска, собственники помещений в которых не приняли решение о проведении такого ремонта, в 2018-2019 годах» Постановление Администрации ЗАТО г. Зеленогорска от 14.01.2020 № 10-п О внесении изменений в муниципальную программу «Формирование современной городской среды в городе Зеленогорске», утвержденную постановлением Администрации ЗАТО г. Зеленогорска от 31.10.2017 № 257-п Постановление Администрации ЗАТО г. Зеленогорска от 14.01.2020 № 7-п О внесении изменений в постановление Администрации ЗАТО г. Зеленогорска от 12.11.2015 № 286-п «Об утверждении муниципальной программы «Защита населения и территории города Зеленогорска от чрезвычайных ситуаций природного и техногенного характера» Постановление Администрации ЗАТО г. Зеленогорска от 13.01.2020 № 4-п О реорганизации Муниципального унитарного предприятия «Комбинат благоустройства» г.Зеленогорска Распоряжение Администрации ЗАТО г. Зеленогорска от 13.01.2020 № 29-р Об утверждении персонального состава общественной комиссии по развитию городской среды Постановление Администрации ЗАТО г. Зеленогорска от 13.01.2020 № 3-п Об установлении размера платы за содержание жилого помещения в многоквартирных домах для нанимателей жилых помещений государственного жилищного фонда, принадлежащего на праве собственности Российской Федерации Постановление Администрации ЗАТО г. Зеленогорска от 14.01.2020 № 9-п О внесении изменений в муниципальную программу «Реформирование и модернизация жилищно-коммунального хозяйства и повышение энергетической эффективности в городе Зеленогорске», утвержденную постановлением Администрации ЗАТО г. Зеленогорска от 12.11.2015 № 293-п Постановление Администрации ЗАТО г. Зеленогорска от 10.01.2020 № 2-п О закреплении муниципальных образовательных учреждений г. Зеленогорска за конкретными территориями г. Зеленогорска Постановление Администрации ЗАТО г. Зеленогорска от 10.01.2020 № 1-п О внесении изменений в постановление Администрации ЗАТО г. Зеленогорска от 12.11.2015 № 286-п «Об утверждении муниципальной программы «Защита населения и территории города Зеленогорска от чрезвычайных ситуаций природного и техногенного характера» Распоряжение Администрации ЗАТО г. Зеленогорска от 10.12.2019 № 2675-р О городских культурно-массовых и спортивно-массовых мероприятиях на 2020 год Постановление Администрации ЗАТО г. Зеленогорска от 31.12.2019 № 244-п О внесении изменений в муниципальную программу «Муниципальное имущество и земельные ресурсы города Зеленогорска», утвержденную постановлением Администрации ЗАТО г. Зеленогорска от 19.12.2017 № 323-п Постановление Администрации ЗАТО г. Зеленогорска от 31.12.2019 № 243-п О внесении изменений в постановление Администрации ЗАТО г. Зеленогорска от 25.02.2019 № 37-п «Об утверждении Порядка присуждения премий Главы ЗАТО г. Зеленогорска одаренным обучающимся муниципальных бюджетных образовательных учреждений г. Зеленогорска» Постановление Администрации ЗАТО г. Зеленогорска от 31.12.2019 № 246-п О внесении изменений в муниципальную программу «Капитальное строительство и капитальный ремонт в городе Зеленогорске», утвержденную постановлением Администрации ЗАТО г. Зеленогорска от 12.11.2015 № 292-п Постановление Администрации ЗАТО г. Зеленогорска от 31.12.2019 № 248-п О внесении изменений в муниципальную программу «Охрана окружающей среды и защита городских лесов на территории города Зеленогорска», утвержденную постановлением Администрации ЗАТО г. Зеленогорска от 12.11.2015 № 289-п Постановление Администрации ЗАТО г. Зеленогорска от 31.12.2019 № 247-п О внесении изменений в постановление Администрации ЗАТО г. Зеленогорска от 12.11.2015 № 293-п «Об утверждении муниципальной программы «Реформирование и модернизация жилищно-коммунального хозяйства и повышение энергетической эффективности в городе Зеленогорске» Постановление Администрации ЗАТО г. Зеленогорска от 31.12.2019 № 249-п О внесении изменений в постановление Администрации ЗАТО г. Зеленогорска от 12.11.2015 № 289-п «Об утверждении муниципальной программы «Охрана окружающей среды и защита городских лесов на территории города Зеленогорска» Постановление Администрации ЗАТО г. Зеленогорска от 31.12.2019 № 242-п О внесении изменений в муниципальную программу «Управление муниципальными финансами города Зеленогорска», утвержденную постановлением Администрации ЗАТО г. Зеленогорска от 12.11.2015 № 287-п Постановление Администрации ЗАТО г. Зеленогорска от 31.12.2019 № 250-п О внесении изменений в постановление Администрации ЗАТО г. Зеленогорска от 18.04.2014 № 96-п «Об утверждении схемы водоснабжения и водоотведения города Зеленогорска» Постановление Администрации ЗАТО г. Зеленогорска от 31.12.2019 № 245-п О внесении изменений в муниципальную программу «Развитие транспортной системы в городе Зеленогорске», утвержденную постановлением Администрации ЗАТО г. Зеленогорска от 12.11.2015 № 291-п Постановление Администрации ЗАТО г. Зеленогорска от 27.12.2019 № 241-п Об утверждении проекта планировки территории и проекта межевания территории квартала № 2 города Зеленогорска Постановление Администрации ЗАТО г. Зеленогорска от 27.12.2019 № 240-п Об утверждении проекта планировки территории и проекта межевания территории квартала № 9, ограниченного улицами Юбилейная, Удачная, Первостроителей, Монтажников Постановление Администрации ЗАТО г. Зеленогорска от 27.12.2019 № 239-п Об утверждении проекта планировки территории и проекта межевания территории микрорайона № 18 города Зеленогорска Постановление Администрации ЗАТО г. Зеленогорска от 27.12.2019 № 238-п Об утверждении проекта планировки территории и проекта межевания территории микрорайона № 27 (3 очередь) города Зеленогорска Постановление Администрации ЗАТО г. Зеленогорска от 27.12.2019 № 237-п Об утверждении проекта планировки территории и проекта межевания территории микрорайона № 1-17 города Зеленогорска Постановление Администрации ЗАТО г. Зеленогорска от 26.12.2019 № 236-п О внесении изменений в постановление Администрации ЗАТО г. Зеленогорска от 19.07.2019 № 126-п «Об утверждении проекта планировки территории и проекта межевания территории микрорайона № 21 города Зеленогорска» Постановление Администрации ЗАТО г. Зеленогорска от 26.12.2019 № 235-п О внесении изменений в постановление Администрации ЗАТО г. Зеленогорска от 19.07.2019 № 129-п «Об утверждении проекта планировки территории и проекта межевания территории микрорайона № 22 города Зеленогорска» Постановление Администрации ЗАТО г. Зеленогорска от 26.12.2019 № 234-п О внесении изменений в постановление Администрации ЗАТО г. Зеленогорска от 19.07.2019 № 131-п «Об утверждении проекта планировки территории и проекта межевания территории микрорайона № 19 города Зеленогорска» Постановление Администрации ЗАТО г. Зеленогорска от 26.12.2019 № 233-п О внесении изменений в постановление Администрации ЗАТО г. Зеленогорска от 19.07.2019 № 130-п «Об утверждении проекта планировки территории и проекта межевания территории микрорайона № 16 города Зеленогорска» Постановление Администрации ЗАТО г. Зеленогорска от 25.12.2019 № 232-п О внесении изменений в Положение о системе оплаты труда работников муниципальных учреждений города Зеленогорска, утвержденное постановлением Администрации ЗАТО г. Зеленогорска от 14.03.2019 № 47-п Постановление Администрации ЗАТО г. Зеленогорска от 24.12.2019 № 229-п О признании утратившими силу отдельных муниципальных правовых актов г. Зеленогорска в сфере организации регулярных перевозок Постановление Администрации ЗАТО г. Зеленогорска от 24.12.2019 № 230-п О внесении изменений в постановление Администрации ЗАТО г. Зеленогорска от 25.12.2018 № 247-п «О подготовке ежегодного отчёта Главы ЗАТО г. Зеленогорска о результатах своей деятельности и деятельности Администрации ЗАТО г. Зеленогорска, в том числе о решении вопросов, поставленных Советом депутатов ЗАТО г. Зеленогорска» Постановление Администрации ЗАТО г. Зеленогорска от 24.12.2019 № 231-п О внесении изменений в постановление Администрации ЗАТО г. Зеленогорска от 12.11.2015 № 296-п «Об утверждении муниципальной программы «Развитие молодежной политики города Зеленогорска» Постановление Администрации ЗАТО г. Зеленогорска от 24.12.2019 № 228-п О внесении изменений в постановление Администрации ЗАТО г. Зеленогорска от 18.12.2017 № 322-п «Об установлении размера платы за содержание жилого помещения в многоквартирных домах» Постановление Администрации ЗАТО г. Зеленогорска от 20.12.2019 № 227-п О внесении изменений в постановление Администрации ЗАТО г. Зеленогорска от 31.10.2017 № 257-п «Об утверждении муниципальной программы «Формирование современной городской среды в городе Зеленогорске» Постановление Администрации ЗАТО г. Зеленогорска от 20.12.2019 № 224-п О внесение изменений в постановление Администрации ЗАТО г. Зеленогорска от 12.11.2015 № 284-п «Об утверждении муниципальной программы «Развитие физической культуры и спорта в городе Зеленогорске» Постановление Администрации ЗАТО г. Зеленогорска от 12.12.2019 № 217-п Об утверждении проекта планировки территории и проекта межевания территории кварталов № 9 и № 12, ограниченных улицами Западная, Центральная, Звездная и Спортивная Постановление Администрации ЗАТО г. Зеленогорска от 20.12.2019 № 225-п О внесении изменений в муниципальную программу «Реформирование и модернизация жилищно-коммунального хозяйства и повышение энергетической эффективности в городе Зеленогорске», утвержденную постановлением Администрации ЗАТО г. Зеленогорска от 12.11.2015 № 293-п Постановление Администрации ЗАТО г. Зеленогорска от 20.12.2019 № 223-п О внесении изменений в муниципальную программу «Капитальное строительство и капитальный ремонт в городе Зеленогорске» утвержденную постановлением Администрации ЗАТО г. Зеленогорска от 12.11.2015 № 292-п Постановление Администрации ЗАТО г. Зеленогорска от 16.12.2019 № 220-п О внесении изменений в муниципальную программу «Гражданское общество – закрытое административно-территориальное образование Зеленогорск», утвержденную постановлением Администрации ЗАТО г. Зеленогорска от 12.11.2015 № 285-п Постановление Администрации ЗАТО г. Зеленогорска от 19.12.2019 № 222-п О внесении изменений в муниципальную программу «Развитие малого и среднего предпринимательства в городе Зеленогорске», утвержденную постановлением Администрации ЗАТО г. Зеленогорска от 29.09.2017 № 222-п Распоряжение Администрации ЗАТО г. Зеленогорска от 16.12.2019 № 2714-р Об утверждении Перечня муниципального имущества, свободного от прав третьих лиц (за исключением имущественных прав субъектов малого и среднего предпринимательства) и предназначенного для предоставления субъектам среднего и малого предпринимательства Постановление Администрации ЗАТО г. Зеленогорска от 16.12.2019 № 221-п О внесении изменений в постановление Администрации ЗАТО г. Зеленогорска от 12.11.2015 № 295-п «Об утверждении муниципальной программы «Развитие образования в городе Зеленогорске» Постановление Администрации ЗАТО г. Зеленогорска от 13.12.2019 № 218-п О средстве массовой информации, определенном в качестве официального периодического издания, осуществляющего публикацию муниципальных правовых актов г. Зеленогорска Постановление Администрации ЗАТО г. Зеленогорска от 13.12.2019 № 219-п О внесении изменений в постановление Администрации ЗАТО г. Зеленогорска от 19.12.2017 № 323-п «Об утверждении муниципальной программы «Муниципальное имущество и земельные ресурсы города Зеленогорска» Распоряжение Администрации ЗАТО г. Зеленогорска от 13.12.2019 № 2706-р О назначении голосования по выбору общественной территории (городского парка) г. Зеленогорска, подлежащей реализации в рамках муниципальной программы «Формирование современной городской среды в городе Зеленогорске» благоустройству в 2020 году Распоряжение Администрации ЗАТО г. Зеленогорска от 09.12.2019 № 2669-р О проведении капитального ремонта общего имущества в многоквартирных домах, расположенных на территории города Зеленогорска, собственники помещений в которых не приняли решение о проведении такого ремонта, в 2020 - 2022 годах Распоряжение Администрации ЗАТО г. Зеленогорска от 11.12.2019 № 2683-р О внесении изменений в распоряжение Администрации ЗАТО г. Зеленогорска от 24.05.2019 № 1164-р «Об утверждении Плана мероприятий по приспособлению жилых помещений, занимаемых инвалидами и семьями, имеющими детей-инвалидов, и используемых для их постоянного проживания, и общего имущества в многоквартирных домах, в которых проживают инвалиды, входящих в состав муниципального жилищного фонда, а также частного жилищного фонда, с учетом потребностей инвалидов и обеспечения условий их доступности для инвалидов» Постановление Администрации ЗАТО г. Зеленогорска от 11.12.2019 № 213-п Об установлении размера платы за пользование жилым помещением (платы за наем) государственного или муниципального жилищного фонда Постановление Администрации ЗАТО г. Зеленогорска от 11.12.2019 № 211-п Об установлении тарифа на услуги по вывозу жидких бытовых отходов, оказываемые Муниципальным унитарным предприятием тепловых сетей г.Зеленогорска Постановление Администрации ЗАТО г. Зеленогорска от 11.12.2019 № 210-п О внесении изменений в постановление Администрации ЗАТО г. Зеленогорска от 28.07.2016 № 221-п «О видах обязательных работ, объектах, на которых они отбываются, и местах, в которых отбываются исправительные работы» Распоряжение Администрации ЗАТО г. Зеленогорска от 09.12.2019 № 2669-р О проведении капитального ремонта общего имущества в многоквартирных домах, расположенных на территории города Зеленогорска, собственники помещений в которых не приняли решение о проведении такого ремонта, в 2020 - 2022 годах Постановление Администрации ЗАТО г. Зеленогорска от 11.12.2019 № 214-п О внесении изменений в муниципальную программу «Развитие транспортной системы в городе Зеленогорске», утвержденную постановлением Администрации ЗАТО г. Зеленогорска от 12.11.2015 № 291-п Постановление Администрации ЗАТО г. Зеленогорска от 11.12.2019 № 212-п О внесении изменений в постановление Администрации ЗАТО г. Зеленогорска от 23.09.2019 № 167-п «Об утверждении показателей эффективности деятельности муниципальных бюджетных и казенных учреждений, находящихся в ведении Управления образования Администрации ЗАТО г. Зеленогорска» Постановление Администрации ЗАТО г. Зеленогорска от 09.12.2019 № 209-п О внесении изменений в постановление Администрации ЗАТО г. Зеленогорска от 12.11.2015 № 285-п «Об утверждении муниципальной программы «Гражданское общество - закрытое административно-территориальное образование Зеленогорск» Постановление Администрации ЗАТО г. Зеленогорска от 09.12.2019 № 208-п Об утверждении Сводного плана организации ярмарок на 2020 год Распоряжение Администрации ЗАТО г. Зеленогорска от 05.12.2019 № 2642-р О назначении рейтингового голосования по выбору общественной территории г. Зеленогорска, подлежащей в рамках реализации муниципальной программы «Формирование современной городской среды в городе Зеленогорске» благоустройству в 2021 году Постановление Администрации ЗАТО г. Зеленогорска от 04.12.2019 № 206-п О внесении изменений в постановление Администрации ЗАТО г. Зеленогорска от 05.04.2019 № 62-п «Об утверждении краткосрочного плана реализации региональной программы капитального ремонта общего имущества в многоквартирных домах, расположенных на территории города Зеленогорска, на 2020 - 2022 годы» Постановление Администрации ЗАТО г. Зеленогорска от 05.12.2019 № 207-п О признании утратившим силу постановления Администрации ЗАТО г. Зеленогорска от 29.01.2016 № 19-п «Об утверждении Порядка содержания койко-мест временного пребывания для отдельных категорий граждан в отделении срочного социального обслуживания Муниципального бюджетного учреждения «Комплексный центр социального обслуживания населения г. Зеленогорска» Распоряжение Администрации ЗАТО г. Зеленогорска от 28.11.2019 № 2603-р О подготовке местных нормативов градостроительного проектирования г. Зеленогорска Распоряжение Администрации ЗАТО г. Зеленогорска от 04.12.2019 № 2615-р О подготовке и проведении мероприятий, посвященных Международному дню инвалидов, в 2019 году Постановление Администрации ЗАТО г. Зеленогорска от 04.12.2019 № 205-п О внесении изменений в постановление Администрации ЗАТО г. Зеленогорска от 12.11.2015 № 288-п «Об утверждении муниципальной программы «Развитие культуры города Зеленогорска» Постановление Администрации ЗАТО г. Зеленогорска от 04.12.2019 № 204-п О признании утратившими силу некоторых муниципальных правовых актов г. Зеленогорска в сфере социальной поддержки и социального обслуживания граждан Постановление Администрации ЗАТО г. Зеленогорска от 25.11.2019 № 203-п О внесении изменений в постановление Администрации ЗАТО г. Зеленогорска от 12.11.2015 № 287-п «Об утверждении муниципальной программы «Управление муниципальными финансами города Зеленогорска» Распоряжение Администрации ЗАТО г. Зеленогорска от 25.11.2019 № 2583-р Об утверждении Плана проведения плановых проверок при осуществлении ведомственного контроля за соблюдением трудового законодательства и иных нормативных правовых актов, содержащих нормы трудового права, на 2020 год Распоряжение Администрации ЗАТО г. Зеленогорска от 25.11.2019 № 2566-р О признании утратившими силу некоторых распоряжений Администрации ЗАТО г. Зеленогорска в сфере социальной поддержки и социального обслуживания граждан Постановление Администрации ЗАТО г. Зеленогорска от 15.11.2019 № 202-п О внесении изменений в постановление Администрации ЗАТО г. Зеленогорска от 16.05.2017 № 105-п «Об утверждении краткосрочного плана реализации региональной программы капитального ремонта общего имущества в многоквартирных домах, расположенных на территории города Зеленогорска, на 2017-2019 годы» Распоряжение Администрации ЗАТО г. Зеленогорска от 19.11.2019 № 2532-р О внесении изменений в распоряжение Администрации ЗАТО г. Зеленогорска от 13.12.2018 № 2718-р «Об утверждении состава муниципальной комиссии по обследованию жилых помещений инвалидов и общего имущества в многоквартирных домах, в которых проживают инвалиды, в целях их приспособления с учетом потребностей инвалидов и обеспечения условий их доступности для инвалидов» Распоряжение Администрации ЗАТО г. Зеленогорска от 13.11.2019 № 2490-р О внесении изменений в распоряжение Администрации ЗАТО г. Зеленогорска от 24.03.2016 № 528-р «Об утверждении состава и Порядка работы комиссии по вопросам градостроительной деятельности и образованию земельных участков на территории г. Зеленогорска» Распоряжение Администрации ЗАТО г. Зеленогорска от 11.11.2019 № 2469-р О внесении изменений в распоряжение Администрации ЗАТО г. Зеленогорска от 25.10.2016 № 2246-р «Об утверждении Положения о премировании по результатам работы директоров муниципальных унитарных предприятий г. Зеленогорска» Постановление Администрации ЗАТО г. Зеленогорска от 08.11.2019 № 197-п О внесении изменений в Положение об условиях оплаты труда директоров, их заместителей и главных бухгалтеров муниципальных унитарных предприятий города Зеленогорска, утвержденное постановлением Администрации ЗАТО г. Зеленогорска от 21.10.2016 № 283-п Постановление Администрации ЗАТО г. Зеленогорска от 13.11.2019 № 200-п О внесении изменений в постановление Администрации ЗАТО г. Зеленогорска от 28.12.2015 № 345-п «Об утверждении Перечня мест массового пребывания людей, расположенных на территории города Зеленогорска» Постановление Администрации ЗАТО г. Зеленогорска от 08.11.2019 № 199-п Об отмене муниципального маршрута регулярных перевозок № 15 Постановление Администрации ЗАТО г. Зеленогорска от 08.11.2019 № 198-п Об установлении муниципального маршрута регулярных перевозок № 11 Постановление Администрации ЗАТО г. Зеленогорска от 07.11.2019 № 196-п Об утверждении проекта планировки территории и проекта межевания территории в районе земельного участка, предоставленного для комплексного освоения в целях жилищного строительства в районе севернее здания по ул. Комсомольская, 21 Распоряжение Администрации ЗАТО г. Зеленогорска от 01.11.2019 № 2449-р Об аккредитации журналистов редакций средств массовой информации при Администрации ЗАТО г. Зеленогорска Постановление Администрации ЗАТО г. Зеленогорска от 07.11.2019 № 195-п Об установлении расчетной стоимости 1 кв. м общей площади жилых помещений в целях признания граждан малоимущими на IV квартал 2019 года Распоряжение Администрации ЗАТО г. Зеленогорска от 01.11.2019 № 2431-р Об утверждении состава и Порядка работы территориальной конкурсной комиссии по проведению отборочного этапа ежегодного смотра-конкурса защитных сооружений гражданской обороны на территории Красноярского края Постановление Администрации ЗАТО г. Зеленогорска от 01.11.2019 № 194-п Об определении средней рыночной стоимости одного квадратного метра общей площади жилого помещения на территории г. Зеленогорска на IV квартал 2019 года Постановление Администрации ЗАТО г. Зеленогорска от 29.10.2019 № 193-п О внесении изменений в постановление Администрации ЗАТО г. Зеленогорска от 01.07.2016 № 195-п «Об утверждении Административного регламента предоставления муниципальной услуги «Предварительное согласование предоставления земельных участков, за исключением предварительного согласования предоставления земельных участков для индивидуального жилищного строительства, ведения личного подсобного хозяйства, садоводства, дачного хозяйства, для осуществления крестьянским (фермерским) хозяйством его деятельности» Постановление Администрации ЗАТО г. Зеленогорска от 25.10.2019 № 192-п О реорганизации МБДОУ д/с № 9 и МБДОУ д/с № 7 Постановление Администрации ЗАТО г. Зеленогорска от 25.10.2019 № 191-п О реорганизации МБДОУ д/с № 21 и МБДОУ д/с № 22 Распоряжение Администрации ЗАТО г. Зеленогорска от 22.10.2019 № 2370-р О внесении изменений в распоряжение Администрации ЗАТО г. Зеленогорска от 23.08.2019 № 1860-р «О подготовке проекта планировки территории и проекта межевания территории кварталов № 9 и № 12 поселка индивидуальных застройщиков на 1000 дворов, ограниченной улицами Западная, Центральная, Звездная и Спортивная» Распоряжение Администрации ЗАТО г. Зеленогорска от 22.10.2019 № 2369-р О внесении изменений в распоряжение Администрации ЗАТО г. Зеленогорска от 23.08.2019 № 1859-р «О подготовке проекта планировки территории и проекта межевания территории квартала № 9 поселка Октябрьский, ограниченной улицами Юбилейная, Удачная, Первостроителей, Монтажников» Постановление Администрации ЗАТО г. Зеленогорска от 23.10.2019 № 190-п Об утверждении документа планирования регулярных перевозок пассажиров и багажа автомобильным транспортом по муниципальным маршрутам регулярных перевозок на территории города Зеленогорска на 2019 - 2023 годы Постановление Администрации ЗАТО г. Зеленогорска от 16.10.2019 № 187-п О внесении изменений в постановление Администрации ЗАТО г. Зеленогорска от 01.07.2016 № 197-п «Об утверждении Административного регламента предоставления муниципальной услуги «Предварительное согласование предоставления земельных участков для индивидуального жилищного строительства, ведения личного подсобного хозяйства, садоводства, дачного хозяйства, для осуществления крестьянским (фермерским) хозяйством его деятельности» Постановление Администрации ЗАТО г. Зеленогорска от 16.10.2019 № 188-п О внесении изменений в Примерное положение об оплате труда работников муниципальных учреждений города Зеленогорска, находящихся в ведении Муниципального казенного учреждения «Комитет по делам культуры и молодежной политики города Зеленогорска» утвержденное постановлением Администрации ЗАТО г. Зеленогорска от 29.08.2017 № 194-п Постановление Администрации ЗАТО г. Зеленогорска от 17.10.2019 № 189-п Об утверждении отчета об исполнении местного бюджета города Зеленогорска за 9 месяцев 2019 года Постановление Администрации ЗАТО г. Зеленогорска от 07.10.2019 № 180-п О внесении изменений в постановление Администрации ЗАТО г. Зеленогорска от 01.07.2016 № 198-п «Об утверждении Административного регламента предоставления муниципальной услуги «Предоставление земельных участков в аренду без проведения торгов, за исключением предоставления земельных участков, на которых расположены здания, сооружения, а также земельных участков для индивидуального жилищного строительства, ведения личного подсобного хозяйства, садоводства, дачного хозяйства, для осуществления крестьянским (фермерским) хозяйством его деятельности» Постановление Администрации ЗАТО г. Зеленогорска от 07.10.2019 № 179-п О внесении изменений в постановление Администрации ЗАТО г. Зеленогорска от 01.07.2016 № 196-п «Об утверждении Административного регламента предоставления муниципальной услуги «Предоставление земельных участков в аренду без проведения торгов для индивидуального жилищного строительства, ведения личного подсобного хозяйства, садоводства, дачного хозяйства, для осуществления крестьянским (фермерским) хозяйством его деятельности» Постановление Администрации ЗАТО г. Зеленогорска от 07.10.2019 № 178-п О внесении изменений в постановление Администрации ЗАТО г. Зеленогорска от 01.07.2016 № 194-п «Об утверждении Административного регламента предоставления муниципальной услуги «Предоставление земельных участков в постоянное (бессрочное) пользование» Постановление Администрации ЗАТО г. Зеленогорска от 07.10.2019 № 177-п О внесении изменений в постановление Администрации ЗАТО г. Зеленогорска от 01.07.2016 № 192-п «Об утверждении Административного регламента предоставления муниципальной услуги «Предоставление в аренду без проведения торгов земельных участков, на которых расположены здания, сооружения» Постановление Администрации ЗАТО г. Зеленогорска от 11.10.2019 № 186-п О внесении изменений в постановление Администрации ЗАТО г. Зеленогорска от 28.07.2016 № 221-п «О видах обязательных работ, объектах, на которых они отбываются, и местах, в которых отбываются исправительные работы» Постановление Администрации ЗАТО г. Зеленогорска от 10.10.2019 № 185-п О признании утратившими силу отдельных постановлений Администрации ЗАТО г. Зеленогорска по вопросам предоставления муниципальных услуг Постановление Администрации ЗАТО г. Зеленогорска от 08.10.2019 № 184-п Об утверждении Административного регламента предоставления муниципальной услуги «Выдача разрешений на установку и эксплуатацию рекламных конструкций» Постановление Администрации ЗАТО г. Зеленогорска от 08.10.2019 № 183-п О внесении изменений в Перечень муниципальных услуг, предоставляемых Администрацией ЗАТО г. Зеленогорска в КГБУ «МФЦ» в городе Зеленогорске, утвержденный постановлением Администрации ЗАТО г. Зеленогорска от 29.12.2017 № 353-п Постановление Администрации ЗАТО г. Зеленогорска от 07.10.2019 № 181-п Об исполнении государственных полномочий по организации и осуществлению деятельности по опеке и попечительству в отношении совершеннолетних граждан, а также в сфере патронажа Распоряжение Администрации ЗАТО г. Зеленогорска от 07.10.2019 № 2249-р О принятии муниципальных правовых актов по вопросам осуществления государственных полномочий по организации и осуществлению деятельности по опеке и попечительству в отношении совершеннолетних граждан, а также в сфере патронажа Постановление Администрации ЗАТО г. Зеленогорска от 04.10.2019 № 175-п Об утверждении Порядка подготовки документа планирования регулярных перевозок пассажиров и багажа автомобильным транспортом по муниципальным маршрутам регулярных перевозок на территории города Зеленогорска Постановление Администрации ЗАТО г. Зеленогорска от 04.10.2019 № 174-п Об установлении размера платы, взимаемой с родителей (законных представителей) за присмотр и уход за детьми в муниципальных бюджетных образовательных учреждениях г. Зеленогорска Постановление Администрации ЗАТО г. Зеленогорска от 30.09.2019 № 173-п О внесении изменений в постановление Администрации ЗАТО г. Зеленогорска от 09.06.2018 № 107-п «Об утверждении Примерного положения об оплате труда работников муниципальных бюджетных и казенных учреждений социального обслуживания» Распоряжение Администрации ЗАТО г. Зеленогорска от 30.09.2019 № 2207-р О внесении изменений в распоряжение Администрации ЗАТО г. Зеленогорска от 24.05.2019 № 1164-р «Об утверждении Плана мероприятий по приспособлению жилых помещений, занимаемых инвалидами и семьями, имеющими детей-инвалидов, и используемых для их постоянного проживания, и общего имущества в многоквартирных домах, в которых проживают инвалиды, входящих в состав муниципального жилищного фонда, а также частного жилищного фонда, с учетом потребностей инвалидов и обеспечения условий их доступности для инвалидов» Распоряжение Администрации ЗАТО г. Зеленогорска от 30.09.2019 № 2206-р О подготовке и проведении мероприятий, посвященных празднованию Дня пожилых людей, в 2019 году Постановление Администрации ЗАТО г. Зеленогорска от 30.09.2019 № 172-п Об установлении цен на издание и распространение газеты «Панорама» Распоряжение Комитета по управлению имуществом Администрации ЗАТО г. Зеленогорска от 23.09.2019 № 348-р О внесении изменений в распоряжение Комитета по управлению имуществом Администрации ЗАТО г. Зеленогорска от 01.03.2016 № 53-р «Об единой (конкурсной, аукционной) комиссии по проведению конкурсов, аукционов на право заключения договоров аренды, договоров безвозмездного пользования, договоров доверительного управления имуществом, иных договоров, предусматривающих переход прав в отношении муниципального имущества, составляющего муниципальную казну города Зеленогорска» Распоряжение Администрации ЗАТО г. Зеленогорска от 24.09.2019 № 2188-р О внесении изменений в распоряжение Администрации ЗАТО г. Зеленогорска от 14.04.2014 № 728-р «Об утверждении состава и Порядка работы территориальной психолого-медико-педагогической комиссии г. Зеленогорска» Постановление Администрации ЗАТО г. Зеленогорска от 26.09.2019 № 170-п О внесении изменений в постановление Администрации ЗАТО г. Зеленогорска от 21.12.2016 № 358-п «Об утверждении Примерного положения об оплате труда работников муниципальных бюджетных учреждений города Зеленогорска, осуществляющих деятельность в сфере молодежной политики, находящихся в ведении Муниципального казенного учреждения «Комитет по делам культуры и молодежной политики города Зеленогорска» Постановление Администрации ЗАТО г. Зеленогорска от 26.09.2019 № 169-п О внесении изменений в постановление Администрации ЗАТО г. Зеленогорска от 31.08.2018 № 165-п «Об утверждении Примерного положения об оплате труда работников муниципальных бюджетных и казенных учреждений, находящихся в ведении МКУ «КФиС» Постановление Администрации ЗАТО г. Зеленогорска от 23.09.2019 № 167-п Об утверждении показателей эффективности деятельности муниципальных бюджетных и казенных учреждений, находящихся в ведении Управления образования Администрации ЗАТО г. Зеленогорска Постановление Администрации ЗАТО г. Зеленогорска от 23.09.2019 № 166-п О внесении изменений в постановление Администрации ЗАТО г. Зеленогорска от 18.12.2015 № 326-п «Об утверждении Перечня муниципальных услуг, предоставляемых Администрацией ЗАТО г. Зеленогорска, и услуг, предоставляемых муниципальными учреждениями г. Зеленогорска» Постановление Администрации ЗАТО г. Зеленогорска от 23.09.2019 № 165-п Об утверждении показателей эффективности деятельности муниципальных бюджетных учреждений, находящихся в ведении МКУ «КФиС» Постановление Администрации ЗАТО г. Зеленогорска от 24.09.2019 № 168-п О внесении изменений в постановление Администрации ЗАТО г. Зеленогорска от 04.10.2017 № 224-п «Об утверждении Положения о порядке формирования, утверждения и ведения планов закупок товаров, работ, услуг для обеспечения муниципальных нужд» Постановление Администрации ЗАТО г. Зеленогорска от 23.09.2019 № 163-п О внесении изменений в Примерное положение об оплате труда работников муниципальных бюджетных и казенных учреждений города Зеленогорска, находящихся в ведении Управления образования Администрации ЗАТО г. Зеленогорска, утвержденное постановлением Администрации ЗАТО г. Зеленогорска от 05.12.2016 № 333-п Постановление Администрации ЗАТО г. Зеленогорска от 23.09.2019 № 162-п О внесении изменений в постановление Администрации ЗАТО г. Зеленогорска от 09.12.2016 № 345-п «Об утверждении Примерного положения об оплате труда работников муниципальных бюджетных и казенных учреждений по сопровождению деятельности органов местного самоуправления» Постановление Администрации ЗАТО г. Зеленогорска от 23.09.2019 № 161-п О внесении изменений в постановление Администрации ЗАТО г. Зеленогорска от 23.03.2018 № 44-п «Об утверждении Примерного положения об оплате труда работников муниципальных бюджетных учреждений дополнительного образования города Зеленогорска, находящихся в ведении Муниципального казенного учреждения «Комитет по делам культуры и молодежной политики города Зеленогорска» Постановление Администрации ЗАТО г. Зеленогорска от 23.09.2019 № 160-п О внесении изменений в постановление Администрации ЗАТО г. Зеленогорска от 29.08.2017 № 194-п «Об утверждении Примерного положения об оплате труда работников муниципальных бюджетных и казенных учреждений города Зеленогорска, находящихся в ведении Муниципального казенного учреждения «Комитет по делам культуры и молодежной политики города Зеленогорска» Постановление Администрации ЗАТО г. Зеленогорска от 09.09.2019 № 155-п О внесении изменений в постановление Администрации ЗАТО г. Зеленогорска от 12.11.2015 № 288-п «Об утверждении муниципальной программы «Развитие культуры города Зеленогорска» Распоряжение Администрации ЗАТО г. Зеленогорска от 10.09.2019 № 2043-р О начале отопительного периода 2019 - 2020 годов Постановление Администрации ЗАТО г. Зеленогорска от 03.09.2019 № 153-п О внесении изменений в постановление Администрации ЗАТО г. Зеленогорска от 05.12.2016 № 333-п «Об утверждении Примерного положения об оплате труда работников муниципальных бюджетных и казенных учреждений города Зеленогорска, находящихся в ведении Управления образования Администрации ЗАТО г. Зеленогорска» Распоряжение Администрации ЗАТО г. Зеленогорска от 04.09.2019 № 2019-р Об утверждении состава рабочей группы по проведению Всероссийской диспансеризации Постановление Администрации ЗАТО г. Зеленогорска от 29.08.2019 № 152-п О внесении изменений в муниципальную программу «Развитие транспортной системы в городе Зеленогорске», утвержденную постановлением Администрации ЗАТО г. Зеленогорска от 12.11.2015 № 291-п Постановление Администрации ЗАТО г. Зеленогорска от 29.08.2019 № 151-п Об утверждении показателей эффективности деятельности бюджетных и казенных учреждений, находящихся в ведении Муниципального казенного учреждения «Комитет по делам культуры и молодежной политики города Зеленогорска» Постановление Администрации ЗАТО г. Зеленогорска от 29.08.2019 № 150-п О внесении изменений в постановление Администрации ЗАТО г. Зеленогорска от 12.11.2015 № 296-п «Об утверждении муниципальной программы «Развитие молодежной политики города Зеленогорска» Постановление Администрации ЗАТО г. Зеленогорска от 28.08.2019 № 149-п Об утверждении Положения о порядке проведения конкурса педагогов, осуществляющих работу с одаренными детьми Постановление Администрации ЗАТО г. Зеленогорска от 26.08.2019 № 148-п Об утверждении форм заявок о согласовании создания места (площадки) накопления твердых коммунальных отходов и о включении сведений о месте (площадке) накопления твердых коммунальных отходов в реестр мест (площадок) накопления твердых коммунальных отходов Распоряжение Администрации ЗАТО г. Зеленогорска от 22.08.2019 № 1835-р О внесении изменений в распоряжение Администрации ЗАТО г. Зеленогорска от 16.10.2018 № 2287-р «Об утверждении персонального состава общественной комиссии по развитию городской среды» Распоряжение Администрации ЗАТО г. Зеленогорска от 23.08.2019 № 1860-р О подготовке проекта планировки территории и проекта межевания территории кварталов № 9 и № 12 поселка индивидуальных застройщиков на 1000 дворов, ограниченной улицами Западная, Центральная, Звездная и Спортивная Распоряжение Администрации ЗАТО г. Зеленогорска от 23.08.2019 № 1859-р О подготовке проекта планировки территории и проекта межевания территории квартала № 9 поселка Октябрьский, ограниченной улицами Юбилейная, Удачная, Первостроителей, Монтажников Распоряжение Администрации ЗАТО г. Зеленогорска от 23.08.2019 № 1858-р О подготовке проекта планировки территории и проекта межевания территории микрорайона № 27 (3 очередь) города Зеленогорска Распоряжение Администрации ЗАТО г. Зеленогорска от 23.08.2019 № 1857-р О подготовке проекта планировки территории и проекта межевания территории микрорайона № 18 города Зеленогорска Распоряжение Администрации ЗАТО г. Зеленогорска от 23.08.2019 № 1856-р О подготовке проекта планировки территории и проекта межевания территории квартала № 1-17 города Зеленогорска Распоряжение Администрации ЗАТО г. Зеленогорска от 23.08.2019 № 1855-р О подготовке проекта планировки территории и проекта межевания территории квартала № 2 города Зеленогорска Постановление Администрации ЗАТО г. Зеленогорска от 22.08.2019 № 147-п Об утверждении Перечня муниципальных программ города Зеленогорска Постановление Администрации ЗАТО г. Зеленогорска от 16.08.2019 № 146-п О переименовании Муниципального бюджетного учреждения дополнительного образования «Детско-юношеская спортивная школа имени Героя Советского Союза Дмитрия Феопентовича Кудрина» Распоряжение Администрации ЗАТО г. Зеленогорска от 12.08.2019 № 1769-р Об утверждении положения и состава комиссии по предупреждению и ликвидации чрезвычайных ситуаций и обеспечению пожарной безопасности города Распоряжение Администрации ЗАТО г. Зеленогорска от 16.08.2019 № 1803-р О подготовке и проведении городского праздника, посвященного Дню знаний, в 2019 году Распоряжение Администрации ЗАТО г. Зеленогорска от 15.08.2019 № 1800-р О внесении изменений в распоряжение Администрации ЗАТО г. Зеленогорска от 16.05.2017 № 1063-р «Об утверждении состава территориальной трехсторонней комиссии по регулированию социально-трудовых отношений» Постановление Администрации ЗАТО г. Зеленогорска от 14.08.2019 № 145-п О временном прекращении движения транспортных средств на участках автомобильных дорог общего пользования местного значения города Зеленогорска Постановление Администрации ЗАТО г. Зеленогорска от 09.08.2019 № 142-п О внесении изменений в муниципальную программу «Защита населения и территории города Зеленогорска от чрезвычайных ситуаций природного и техногенного характера», утвержденную постановлением Администрации ЗАТО г. Зеленогорска от 12.11.2015 № 286-п Постановление Администрации ЗАТО г. Зеленогорска от 05.08.2019 № 141-п О внесении изменений в постановление Администрации ЗАТО г. Зеленогорска от 12.11.2015 № 288-п «Об утверждении муниципальной программы «Развитие культуры города Зеленогорска» Распоряжение Администрации ЗАТО г. Зеленогорска от 05.08.2019 № 1731-р Об участии во Всероссийском конкурсе лучших проектов создания комфортной городской среды Постановление Администрации ЗАТО г. Зеленогорска от 02.08.2019 № 139-п О внесении изменений в постановление Администрации ЗАТО г. Зеленогорска от 12.11.2015 № 288-п «Об утверждении муниципальной программы «Развитие культуры города Зеленогорска» Постановление Администрации ЗАТО г. Зеленогорска от 31.07.2019 № 138-п О внесении изменений в постановление Администрации ЗАТО г. Зеленогорска от 29.12.2018 № 259-п «О внесении изменений в постановление Администрации ЗАТО г. Зеленогорска от 12.11.2015 № 286-п «Об утверждении муниципальной программы «Защита населения и территории города Зеленогорска от чрезвычайных ситуаций природного и техногенного характера»» Распоряжение Администрации ЗАТО г. Зеленогорска от 29.07.2019 № 1680-р О внесении изменений в распоряжение Администрации ЗАТО г. Зеленогорска от 24.05.2019 № 1164-р «Об утверждении Плана мероприятий по приспособлению жилых помещений, занимаемых инвалидами и семьями, имеющими детей-инвалидов, и используемых для их постоянного проживания, и общего имущества в многоквартирных домах, в которых проживают инвалиды, входящих в состав муниципального жилищного фонда, а также частного жилищного фонда, с учетом потребностей инвалидов и обеспечения условий их доступности для инвалидов» Постановление Администрации ЗАТО г. Зеленогорска от 29.07.2019 № 136-п Об определении средней рыночной стоимости одного квадратного метра общей площади жилого помещения на территории г. Зеленогорска на III квартал 2019 года Постановление Администрации ЗАТО г. Зеленогорска от 29.07.2019 № 134-п О внесении изменений в постановление Администрации ЗАТО г. Зеленогорска от 19.12.2017 № 323-п «Об утверждении муниципальной программы «Муниципальное имущество и земельные ресурсы города Зеленогорска» Постановление Администрации ЗАТО г. Зеленогорска от 26.07.2019 № 133-п О внесении изменений в постановление Администрации ЗАТО г. Зеленогорска от 01.04.2019 № 58-п «Об установлении предельных сроков вывоза жидких бытовых отходов на территории г. Зеленогорска» Постановление Администрации ЗАТО г. Зеленогорска от 26.07.2019 № 132-п О внесении изменений в муниципальную программу «Гражданское общество – закрытое административно-территориальное образование Зеленогорск», утвержденную постановлением Администрации ЗАТО г. Зеленогорска от 12.11.2015 № 285-п Постановление Администрации ЗАТО г. Зеленогорска от 29.07.2019 № 137-п Об установлении расчетной стоимости 1 кв. м общей площади жилых помещений в целях признания граждан малоимущими на III квартал 2019 года Постановление Администрации ЗАТО г. Зеленогорска от 29.07.2019 № 135-п О внесении изменений в муниципальную программу «Формирование современной городской среды в городе Зеленогорске», утвержденную постановлением Администрации ЗАТО г. Зеленогорска от 31.10.2017 № 257-п Постановление Администрации ЗАТО г. Зеленогорска от 19.07.2019 № 128-п О внесении изменений в муниципальную программу «Обеспечение безопасности населения города Зеленогорска», утвержденную постановлением Администрации ЗАТО г. Зеленогорска от 25.01.2019 № 6-п Постановление Администрации ЗАТО г. Зеленогорска от 19.07.2019 № 131-п Об утверждении проекта планировки территории и проекта межевания территории микрорайона № 19 города Зеленогорска Постановление Администрации ЗАТО г. Зеленогорска от 19.07.2019 № 130-п Об утверждении проекта планировки территории и проекта межевания территории микрорайона № 16 города Зеленогорска Постановление Администрации ЗАТО г. Зеленогорска от 19.07.2019 № 129-п Об утверждении проекта планировки территории и проекта межевания территории микрорайона № 22 города Зеленогорска Постановление Администрации ЗАТО г. Зеленогорска от 19.07.2019 № 126-п Об утверждении проекта планировки территории и проекта межевания территории микрорайона № 21 города Зеленогорска Распоряжение Администрации ЗАТО г. Зеленогорска от 16.07.2019 № 1547-р О внесении изменений в распоряжение Администрации ЗАТО г. Зеленогорска от 14.04.2014 № 728-р «Об утверждении состава и Порядка работы территориальной психолого-медико-педагогической комиссии г. Зеленогорска» Постановление Администрации ЗАТО г. Зеленогорска от 16.07.2019 № 123-п О внесении изменений в постановление Администрации ЗАТО г. Зеленогорска от 16.05.2017 № 105-п «Об утверждении краткосрочного плана реализации региональной программы капитального ремонта общего имущества в многоквартирных домах, расположенных на территории города Зеленогорска, на 2017-2019 годы» Постановление Администрации ЗАТО г. Зеленогорска от 16.07.2019 № 122-п О внесении изменений в постановление Администрации ЗАТО г. Зеленогорска от 12.11.2015 № 289-п «Об утверждении муниципальной программы «Охрана окружающей среды и защита городских лесов на территории города Зеленогорска» Постановление Администрации ЗАТО г. Зеленогорска от 16.07.2019 № 121-п О внесении изменений в муниципальную программу «Развитие физической культуры и спорта в городе Зеленогорске», утвержденную постановлением Администрации ЗАТО г. Зеленогорска от 12.11.2015 № 284-п Постановление Администрации ЗАТО г. Зеленогорска от 16.07.2019 № 120-п Об утверждении отчета об исполнении местного бюджета города Зеленогорска за 1 полугодие 2019 года Постановление Администрации ЗАТО г. Зеленогорска от 12.07.2019 № 118-п Об утверждении Порядка содержания автомобильных дорог общего пользования местного значения города Зеленогорска и Порядка ремонта автомобильных дорог общего пользования местного значения города Зеленогорска Постановление Администрации ЗАТО г. Зеленогорска от 05.07.2019 № 115-п О внесении изменений в постановление Администрации ЗАТО г. Зеленогорска от 30.06.2015 № 163-п «Об утверждении краткосрочного плана реализации региональной программы капитального ремонта общего имущества в многоквартирных домах, расположенных на территории города Зеленогорска, на 2016 год» Постановление Администрации ЗАТО г. Зеленогорска от 11.07.2019 № 117-п О разрешении использования в 2019 году в целях купания и отдыха людей озеро «Ближнее» Распоряжение Администрации ЗАТО г. Зеленогорска от 05.07.2019 № 1481-р Об утверждении состава и Порядка работы аукционной (конкурсной) комиссии по приватизации муниципального имущества Распоряжение Администрации ЗАТО г. Зеленогорска от 10.07.2019 № 1527-р О внесении изменений в распоряжение Администрации ЗАТО г. Зеленогорска от 07.09.2018 № 1914-р «Об утверждении состава и Порядка работы конкурсной комиссии для определения победителя конкурса на право получения субсидий в целях возмещения части затрат в связи с оказанием бытовых услуг общих отделений бань» Постановление Администрации ЗАТО г. Зеленогорска от 04.07.2019 № 113-п О внесении изменений в постановление Администрации ЗАТО г. Зеленогорска от 12.11.2015 № 292-п «Об утверждении муниципальной программы «Капитальное строительство и капитальный ремонт в городе Зеленогорске» Постановление Администрации ЗАТО г. Зеленогорска от 05.07.2019 № 114-п О временном прекращении движения транспортных средств на участках автомобильных дорог общего пользования местного значения города Зеленогорска Постановление Администрации ЗАТО г. Зеленогорска от 03.07.2019 № 112-п О внесении изменений в постановление Администрации ЗАТО г. Зеленогорска от 12.11.2015 № 287-п «Об утверждении муниципальной программы «Управление муниципальными финансами города Зеленогорска» Постановление Администрации ЗАТО г. Зеленогорска от 28.06.2019 № 111-п О внесении изменений в постановление Администрации ЗАТО г. Зеленогорска от 27.08.2018 № 159-п «Об утверждении Порядка предоставления субсидий в целях возмещения части затрат в связи с оказанием бытовых услуг общих отделений бань» Постановление Администрации ЗАТО г. Зеленогорска от 27.06.2019 № 110-п О внесении изменений в муниципальную программу «Развитие образования в городе Зеленогорске», утвержденную постановлением Администрации ЗАТО г. Зеленогорска от 12.11.2015 № 295-п Распоряжение Администрации ЗАТО г. Зеленогорска от 20.06.2019 № 1400-р О проведении конкурса на включение граждан в резерв управленческих кадров г. Зеленогорска на замещение целевой должности директора Муниципального бюджетного учреждения «Спортивная школа «Юность» Постановление Администрации ЗАТО г. Зеленогорска от 27.06.2019 № 109-п О внесении изменений в постановление Администрации ЗАТО г. Зеленогорска от 12.11.2015 № 283-п «Об утверждении муниципальной программы «Социальная защита и социальная поддержка населения города Зеленогорска» Постановление Администрации ЗАТО г. Зеленогорска от 27.06.2019 № 108-п О внесении изменений в Положение о порядке формирования, утверждения и ведения планов-графиков закупок товаров, работ, услуг для обеспечения муниципальных нужд, утвержденное постановлением Администрации ЗАТО г. Зеленогорска от 23.07.2015 № 179-п Постановление Администрации ЗАТО г. Зеленогорска от 27.06.2019 № 107-п О внесении изменений в постановление Администрации ЗАТО г. Зеленогорска от 29.09.2017 № 222-п «Об утверждении муниципальной программы «Развитие малого и среднего предпринимательства в городе Зеленогорске» Постановление Администрации ЗАТО г. Зеленогорска от 24.06.2019 № 105-п О внесении изменений в муниципальную программу «Реформирование и модернизация жилищно-коммунального хозяйства и повышение энергетической эффективности в городе Зеленогорске», утвержденную постановлением Администрации ЗАТО г. Зеленогорска от 12.11.2015 № 293-п Постановление Администрации ЗАТО г. Зеленогорска от 24.06.2019 № 104-п О внесении изменений в постановление Администрации ЗАТО г. Зеленогорска от 12.11.2015 № 291-п «Об утверждении муниципальной программы «Развитие транспортной системы в городе Зеленогорске» Постановление Администрации ЗАТО г. Зеленогорска от 25.06.2019 № 106-п О внесении изменений в постановление Администрации ЗАТО г. Зеленогорска от 15.12.2015 № 325-п «Об утверждении Порядка формирования и финансового обеспечения муниципального задания на оказание муниципальных услуг (выполнение работ) в отношении муниципальных учреждений» Постановление Администрации ЗАТО г. Зеленогорска от 24.06.2019 № 103-п О проведении универсальной ярмарки ко Дню города Распоряжение Администрации ЗАТО г. Зеленогорска от 20.06.2019 № 1371-р О внесении изменений в распоряжение Администрации ЗАТО г. Зеленогорска от 24.05.2019 № 1164-р «Об утверждении Плана мероприятий по приспособлению жилых помещений, занимаемых инвалидами и семьями, имеющими детей-инвалидов, и используемых для их постоянного проживания, и общего имущества в многоквартирных домах, в которых проживают инвалиды, входящих в состав муниципального жилищного фонда, а также частного жилищного фонда, с учетом потребностей инвалидов и обеспечения условий их доступности для инвалидов» Распоряжение Администрации ЗАТО г. Зеленогорска от 21.06.2019 № 1382-р Об утверждении состава и графика работы комиссии по проверке Оздоровительно-образовательной базы отдыха «Зеленогорская» МБУ ДО «ЦЭКиТ» Распоряжение Администрации ЗАТО г. Зеленогорска от 21.06.2019 № 1374-р Об утверждении Положения и состава комиссии по оказанию содействия в подготовке и проведении Всероссийской переписи населения 2020 года в городе Зеленогорске Распоряжение Администрации ЗАТО г. Зеленогорска от 17.06.2019 № 1335-р О внесении изменений в распоряжение Администрации ЗАТО г. Зеленогорска от 07.12.2017 № 2772-р «Об утверждении состава и Положения о порядке работы комиссии по оказанию поддержки субъектам малого и среднего предпринимательства» Постановление Администрации ЗАТО г. Зеленогорска от 17.06.2019 № 99-п О внесении изменений в постановление Администрации ЗАТО г. Зеленогорска от 13.09.2016 № 257-п «Об утверждении Порядка определения видов и перечней особо ценного движимого имущества муниципальных автономных или бюджетных учреждений г. Зеленогорска» Постановление Администрации ЗАТО г. Зеленогорска от 18.06.2019 № 101-п О временном прекращении движения транспортных средств на участках автомобильных дорог общего пользования местного значения города Зеленогорска Распоряжение Администрации ЗАТО г. Зеленогорска от 14.06.2019 № 1327-р О внесении изменений в распоряжение Администрации ЗАТО г. Зеленогорска от 17.10.2013 № 2536-р «Об утверждении состава и Порядка работы комиссии по проверке состояния защитных сооружений гражданской обороны на территории г. Зеленогорска» Постановление Администрации ЗАТО г. Зеленогорска от 13.06.2019 № 97-п О временном прекращении движения транспортных средств на участках автомобильных дорог общего пользования местного значения города Зеленогорска Постановление Администрации ЗАТО г. Зеленогорска от 04.06.2019 № 89-п О внесении изменений в постановление Администрации ЗАТО г. Зеленогорска от 31.08.2017 № 197-п «Об утверждении Порядка размещения на сайте Администрации ЗАТО г. Зеленогорска и предоставления для опубликования сведений, представляемых руководителями муниципальных учреждений г. Зеленогорска» Постановление Администрации ЗАТО г. Зеленогорска от 07.06.2019 № 96-п О внесении изменений в постановление Администрации ЗАТО г. Зеленогорска от 14.08.2018 № 152-п «Об утверждении Порядка предоставления субсидий в целях финансового обеспечения затрат, возникающих в связи с применением предельного индекса при оказании коммунальных услуг на реализацию отдельных мер по обеспечению ограничения платы граждан за коммунальные услуги» Постановление Администрации ЗАТО г. Зеленогорска от 07.06.2019 № 95-п О внесении изменений в постановление Администрации ЗАТО г. Зеленогорска от 06.04.2018 № 53-п «Об утверждении Порядка предоставления субсидий в целях возмещения затрат в связи с оказанием услуг по содержанию жилых помещений и предоставлением коммунальных услуг до заселения жилых помещений муниципального жилищного фонда» Постановление Администрации ЗАТО г. Зеленогорска от 07.06.2019 № 94-п О внесении изменений в постановление Администрации ЗАТО г. Зеленогорска от 14.12.2017 № 318-п «Об утверждении Порядка предоставления субсидий в целях возмещения затрат на содержание, ремонт объектов внешнего благоустройства, находящихся в собственности муниципального образования город Зеленогорск» Постановление Администрации ЗАТО г. Зеленогорска от 07.06.2019 № 93-п О внесении изменений в постановление Администрации ЗАТО г. Зеленогорска от 18.08.2017 № 187-п «Об утверждении Порядка предоставления субсидий в целях возмещения недополученных доходов, возникающих в связи с оказанием услуг по содержанию жилых помещений государственного или муниципального жилищного фонда» Распоряжение Администрации ЗАТО г. Зеленогорска от 06.06.2019 № 1256-р О проведении муниципального этапа Всероссийского творческого конкурса «Слава Созидателям!» в 2019 году Распоряжение Администрации ЗАТО г. Зеленогорска от 06.06.2019 № 1261-р Об утверждении Перечня муниципального имущества, свободного от прав третьих лиц (за исключением имущественных прав субъектов малого и среднего предпринимательства) и предназначенного для предоставления субъектам среднего и малого предпринимательства Постановление Администрации ЗАТО г. Зеленогорска от 04.06.2019 № 90-п О внесении изменений в постановление Администрации ЗАТО г. Зеленогорска от 31.08.2017 № 198-п «Об утверждении Порядка размещения на сайте Администрации ЗАТО г. Зеленогорска и предоставления для опубликования сведений, представляемых муниципальными служащими Администрации ЗАТО г. Зеленогорска» Постановление Администрации ЗАТО г. Зеленогорска от 04.06.2019 № 91-п О внесении изменений в муниципальную программу «Социальная защита и социальная поддержка населения города Зеленогорска», утвержденную постановлением Администрации ЗАТО г. Зеленогорска от 12.11.2015 № 283-п Постановление Администрации ЗАТО г. Зеленогорска от 04.06.2019 № 88-п О временном прекращении движения транспортных средств на участках автомобильных дорог общего пользования местного значения города Зеленогорска Постановление Администрации ЗАТО г. Зеленогорска от 30.05.2019 № 87-п Об утверждении Положения о проведении муниципального этапа Всероссийского творческого конкурса «Слава Созидателям!» в 2019 году Распоряжение Администрации ЗАТО г. Зеленогорска от 24.05.2019 № 1164-р Об утверждении Плана мероприятий по приспособлению жилых помещений, занимаемых инвалидами и семьями, имеющими детей-инвалидов, и используемых для их постоянного проживания, и общего имущества в многоквартирных домах, в которых проживают инвалиды, входящих в состав муниципального жилищного фонда, а также частного жилищного фонда, с учетом потребностей инвалидов и обеспечения условий их доступности для инвалидов Распоряжение Администрации ЗАТО г. Зеленогорска от 24.05.2019 № 1156-р О мероприятиях по организации обустройства мест массового отдыха людей на водных объектах для купания и отдыха в 2019 году Распоряжение Администрации ЗАТО г. Зеленогорска от 24.05.2019 № 1154-р О подготовке документации по планировке территории в районе земельного участка, предоставленного для комплексного освоения в целях жилищного строительства в районе севернее здания по ул. Комсомольская, 21 Распоряжение Администрации ЗАТО г. Зеленогорска от 21.05.2019 № 1122-р О внесении изменений в распоряжение Администрации ЗАТО г. Зеленогорска от 24.08.2015 № 1623-р «О создании рабочей группы по формированию и реализации муниципальных программ города Зеленогорска» Распоряжение Администрации ЗАТО г. Зеленогорска от 23.05.2019 № 1137-р Об окончании отопительного периода 2018 – 2019 годов Распоряжение Администрации ЗАТО г. Зеленогорска от 15.05.2019 № 1052-р О подготовке муниципальных бюджетных образовательных учреждений г. Зеленогорска к новому 2019 - 2020 учебному году Постановление Администрации ЗАТО г. Зеленогорска от 15.05.2019 № 83-п Об утверждении Порядка разработки прогноза социально-экономического развития города Зеленогорска на среднесрочный период Постановление Администрации ЗАТО г. Зеленогорска от 08.05.2019 № 82-п Об установлении режима работы МУП ТС по оказанию услуг по вывозу жидких бытовых отходов Постановление Администрации ЗАТО г. Зеленогорска от 07.05.2019 № 81-п О внесении изменений в постановление Администрации ЗАТО г. Зеленогорска от 13.06.2018 № 109-п «Об утверждении Положения о порядке осуществления контроля за соблюдением Федерального закона от 05.04.2013 № 44-ФЗ «О контрактной системе в сфере закупок товаров, работ, услуг для обеспечения государственных и муниципальных нужд» органом внутреннего муниципального финансового контроля» Постановление Администрации ЗАТО г. Зеленогорска от 30.04.2019 № 80-п О внесении изменений в постановление Администрации ЗАТО г. Зеленогорска от 21.06.2018 № 120-п «Об осуществлении государственных полномочий по организации и обеспечению отдыха и оздоровления детей» Постановление Администрации ЗАТО г. Зеленогорска от 26.04.2019 № 79-п О временном прекращении движения транспортных средств на участках автомобильных дорог общего пользования местного значения города Зеленогорска Постановление Администрации ЗАТО г. Зеленогорска от 24.04.2019 № 78-п Об определении средней рыночной стоимости одного квадратного метра общей площади жилого помещения на территории г. Зеленогорска на II квартал 2019 года Постановление Администрации ЗАТО г. Зеленогорска от 23.04.2019 № 72-п Об отмене ликвидации Муниципального унитарного предприятия «Центр досуга и кино» г.Зеленогорска Распоряжение Администрации ЗАТО г. Зеленогорска от 22.04.2019 № 918-р О признании утратившими силу некоторых муниципальных правовых актов в сфере образования Постановление Администрации ЗАТО г. Зеленогорска от 23.04.2019 № 77-п О внесении изменений в постановление Администрации ЗАТО г. Зеленогорска от 01.07.2016 № 200-п «Об утверждении Административного регламента предоставления муниципальной услуги «Предоставление земельных участков в безвозмездное пользование» Постановление Администрации ЗАТО г. Зеленогорска от 23.04.2019 № 76-п О внесении изменений в постановление Администрации ЗАТО г. Зеленогорска от 01.07.2016 № 199-п «Об утверждении Административного регламента предоставления муниципальной услуги «Утверждение схем расположения земельных участков на кадастровом плане территории» Постановление Администрации ЗАТО г. Зеленогорска от 23.04.2019 № 75-п О внесении изменений в постановление Администрации ЗАТО г. Зеленогорска от 01.07.2016 № 193-п «Об утверждении Административного регламента предоставления муниципальной услуги «Прекращение прав на земельные участки (пожизненное наследуемое владение, постоянное (бессрочное) пользование)» Постановление Администрации ЗАТО г. Зеленогорска от 22.04.2019 № 69-п О внесении изменений в постановление Администрации ЗАТО г. Зеленогорска от 18.12.2015 № 326-п «Об утверждении Перечня муниципальных услуг, предоставляемых Администрацией ЗАТО г. Зеленогорска, и услуг, предоставляемых муниципальными учреждениями г. Зеленогорска» Постановление Администрации ЗАТО г. Зеленогорска от 22.04.2019 № 68-п О внесении изменений в постановление Администрации ЗАТО г. Зеленогорска от 29.12.2017 № 353-п «Об утверждении Перечня муниципальных услуг, предоставляемых Администрацией ЗАТО г. Зеленогорска в КГБУ «МФЦ» в городе Зеленогорске» Постановление Администрации ЗАТО г. Зеленогорска от 22.04.2019 № 70-п Об установлении расчетной стоимости 1 кв. м общей площади жилых помещений в целях признания граждан малоимущими на II квартал 2019 года Постановление Администрации ЗАТО г. Зеленогорска от 23.04.2019 № 74-п О внесении изменений в постановление главы Администрации ЗАТО г. Зеленогорска от 23.06.2008 № 275-п «О создании Координационного совета в области развития малого и среднего предпринимательства» Постановление Администрации ЗАТО г. Зеленогорска от 23.04.2019 № 73-п О подготовке к отопительному периоду 2019 – 2020 годов Распоряжение Администрации ЗАТО г. Зеленогорска от 23.04.2019 № 920-р О проведении работ в рамках Всероссийской экологической акции «Зеленая весна – 2019» Постановление Администрации ЗАТО г. Зеленогорска от 22.04.2019 № 71-п О временном прекращении движения транспортных средств на участках автомобильных дорог общего пользования местного значения города Зеленогорска Распоряжение Администрации ЗАТО г. Зеленогорска от 18.04.2019 № 898-р Об утверждении состава и Порядка работы комиссии по распределению путевок с частичной оплатой их стоимости в загородные лагеря Постановление Администрации ЗАТО г. Зеленогорска от 18.04.2019 № 66-п О внесении изменений в постановление Администрации ЗАТО г. Зеленогорска от 08.02.2019 № 24-п «Об утверждении Порядка выплаты ежегодных премий победителям конкурсов педагогических работников г. Зеленогорска» Распоряжение Администрации ЗАТО г. Зеленогорска от 18.04.2019 № 888-р О подготовке к весенне-летнему пожароопасному сезону на территории г. Зеленогорска в 2019 году Постановление Администрации ЗАТО г. Зеленогорска от 12.04.2019 № 64-п О признании утратившими силу некоторых муниципальных правовых актов в сфере образования Постановление Администрации ЗАТО г. Зеленогорска от 12.04.2019 № 63-п Об утверждении отчета об исполнении местного бюджета города Зеленогорска за 1 квартал 2019 года Распоряжение Администрации ЗАТО г. Зеленогорска от 12.04.2019 № 802-р О проведении общественных обсуждений материалов обоснования лицензии на осуществление деятельности по объекту «Здание главного производственного корпуса. Реконструкция. Расширение разделительного производства АО «ПО ЭХЗ» Распоряжение Администрации ЗАТО г. Зеленогорска от 12.04.2019 № 801-р О проведении конкурса на включение граждан в резерв управленческих кадров г. Зеленогорска на замещение целевой должности директора Муниципального унитарного предприятия «Центр досуга и кино» г.Зеленогорска Постановление Администрации ЗАТО г. Зеленогорска от 05.04.2019 № 62-п Об утверждении краткосрочного плана реализации региональной программы капитального ремонта общего имущества в многоквартирных домах, расположенных на территории города Зеленогорска, на 2020 - 2022 годы Распоряжение Администрации ЗАТО г. Зеленогорска от 05.04.2019 № 766-р О внесении изменений в распоряжение Администрации ЗАТО г. Зеленогорска от 25.05.2016 № 994-р «Об утверждении Положения и состава балансовой комиссии» Постановление Администрации ЗАТО г. Зеленогорска от 05.04.2019 № 61-п О проведении специализированной ярмарки цветов к «Родительскому дню (Радоница)» Постановление Администрации ЗАТО г. Зеленогорска от 29.03.2019 № 59-п О внесении изменений в постановление Администрации ЗАТО г. Зеленогорска от 31.10.2017 № 257-п «Об утверждении муниципальной программы «Формирование современной городской среды в городе Зеленогорске» Распоряжение Администрации ЗАТО г. Зеленогорска от 02.04.2019 № 744-р Об организации отдыха детей и их оздоровления в летний период 2019 года Распоряжение Администрации ЗАТО г. Зеленогорска от 29.03.2019 № 739-р О внесении изменений в распоряжение Администрации ЗАТО г. Зеленогорска от 25.10.2016 № 2246-р «Об утверждении Положения о премировании по результатам работы директоров муниципальных унитарных предприятий г. Зеленогорска» Постановление Администрации ЗАТО г. Зеленогорска от 29.03.2019 № 57-п О внесении изменений в постановление Администрации ЗАТО г. Зеленогорска от 12.11.2015 № 293-п «Об утверждении муниципальной программы «Реформирование и модернизация жилищно-коммунального хозяйства и повышение энергетической эффективности в городе Зеленогорске» Постановление Администрации ЗАТО г. Зеленогорска от 01.04.2019 № 58-п Об установлении предельных сроков вывоза жидких бытовых отходов на территории г. Зеленогорска Постановление Администрации ЗАТО г. Зеленогорска от 01.04.2019 № 56-п Об утверждении Порядка предоставления субсидий субъектам малого и среднего предпринимательства Постановление Администрации ЗАТО г. Зеленогорска от 25.03.2019 № 53-п О внесении изменений в постановление Администрации ЗАТО г. Зеленогорска от 18.12.2015 № 326-п «Об утверждении Перечня муниципальных услуг, предоставляемых Администрацией ЗАТО г. Зеленогорска, и услуг, предоставляемых муниципальными учреждениями г. Зеленогорска» Постановление Администрации ЗАТО г. Зеленогорска от 28.03.2019 № 55-п О признании утратившими силу некоторых постановлений Администрации ЗАТО г. Зеленогорска Постановление Администрации ЗАТО г. Зеленогорска от 25.03.2019 № 52-п О внесении изменений в Положение о проведении аттестации муниципальных служащих Администрации ЗАТО г. Зеленогорска, утвержденное постановлением Администрации ЗАТО г. Зеленогорска от 21.03.2016 № 66-п Постановление Администрации ЗАТО г. Зеленогорска от 28.03.2019 № 54-п О признании утратившими силу некоторых муниципальных правовых актов г. Зеленогорска Распоряжение Администрации ЗАТО г. Зеленогорска от 21.03.2019 № 644-р О противопаводковых мероприятиях в 2019 году Постановление Администрации ЗАТО г. Зеленогорска от 15.03.2019 № 51-п Об утверждении Положения о порядке проведения конкурса по отбору кандидатур на должность руководителя муниципального учреждения г. Зеленогорска Распоряжение Администрации ЗАТО г. Зеленогорска от 14.03.2019 № 584-р Об организации работы «горячей» телефонной линии по вопросам охраны труда Постановление Администрации ЗАТО г. Зеленогорска от 14.03.2019 № 47-п Об утверждении Положения о системе оплаты труда работников муниципальных учреждений города Зеленогорска Постановление Администрации ЗАТО г. Зеленогорска от 12.03.2019 № 44-п О внесении изменений в постановление Администрации ЗАТО г. Зеленогорска от 09.12.2016 № 345-п «Об утверждении Примерного положения об оплате труда работников муниципальных бюджетных и казенных учреждений по сопровождению деятельности органов местного самоуправления» Постановление Администрации ЗАТО г. Зеленогорска от 12.03.2019 № 43-п О внесении изменений в постановление Администрации ЗАТО г. Зеленогорска от 02.03.2016 № 50-п «Об утверждении Положения о порядке сообщения муниципальными служащими о получении подарка в связи с протокольными мероприятиями, служебными командировками и другими официальными мероприятиями, участие в которых связано с исполнением ими служебных (должностных) обязанностей, сдаче и оценке подарка, реализации (выкупе) и зачислении средств, вырученных от его реализации» Постановление Администрации ЗАТО г. Зеленогорска от 12.03.2019 № 46-п Об утверждении Положения об Общественном совете по проведению независимой оценки качества условий осуществления образовательной деятельности организациями, осуществляющими образовательную деятельность Постановление Администрации ЗАТО г. Зеленогорска от 12.03.2019 № 45-п Об утверждении Положения об Общественном совете по проведению независимой оценки качества условий оказания услуг организациями культуры Распоряжение Администрации ЗАТО г. Зеленогорска от 11.03.2019 № 544-р О признании утратившим силу распоряжения Администрации ЗАТО г. Зеленогорска от 19.03.2012 № 417-р «О создании профильной группы» Распоряжение Администрации ЗАТО г. Зеленогорска от 11.03.2019 № 543-р О внесении изменений в распоряжение Администрации ЗАТО г. Зеленогорска от 20.07.2018 № 1353-р «О создании рабочей группы по проведению замеров твердых коммунальных отходов на территории г. Зеленогорска» Распоряжение Администрации ЗАТО г. Зеленогорска от 06.03.2019 № 503-р О внесении изменений в распоряжение Администрации ЗАТО г. Зеленогорска от 07.11.2012 № 2277-р «Об утверждении состава и Порядка работы комиссии по обеспечению безопасности дорожного движения» Распоряжение Администрации ЗАТО г. Зеленогорска от 05.03.2019 № 491-р Об утверждении состава и Порядка работы аукционной (конкурсной) комиссии по приватизации муниципального имущества Распоряжение Администрации ЗАТО г. Зеленогорска от 04.03.2019 № 481-р О проведении плановой проверки использования жилых помещений и (или) распоряжения жилыми помещениями, нанимателями или членами семей нанимателейпо договорам социального найма либо собственниками которых являются дети-сироты и дети, оставшиеся без попечения родителей, обеспечения надлежащего санитарного и технического состояния этих жилых помещений Распоряжение Администрации ЗАТО г. Зеленогорска от 01.03.2019 № 452-р Об утверждении состава и Положения о порядке работы комиссии, осуществляющей проверку условий жизни детей-сирот и детей, оставшихся без попечения родителей, лиц из числа детей-сирот и детей, оставшихся без попечения родителей, не являющихся нанимателями жилых помещений по договорам социального найма или членами семьи нанимателя жилого помещения по договору социального найма либо собственниками жилых помещений, а также детей-сирот и детей, оставшихся без попечения родителей, лиц из числа детей-сирот и детей, оставшихся без попечения родителей, являющихся нанимателями жилых помещений по договорам социального найма или членами семьи нанимателя жилого помещения по договору социального найма либо собственниками жилых помещений, в случае, если их проживание в ранее занимаемых жилых помещениях признается невозможным Постановление Администрации ЗАТО г. Зеленогорска от 04.03.2019 № 42-п О внесении изменений в постановление Администрации ЗАТО г. Зеленогорска от 20.02.2016 № 38-п «Об утверждении Порядка организации и проведения аукционов на право заключения договоров на установку и эксплуатацию нестационарных торговых объектов, примерной формы договора на установку и эксплуатацию нестационарного торгового объекта» Постановление Администрации ЗАТО г. Зеленогорска от 01.03.2019 № 41-п О ликвидации Муниципального унитарного предприятия «Центр досуга и кино» г. Зеленогорска Постановление Администрации ЗАТО г. Зеленогорска от 28.02.2019 № 39-п О внесении изменений в муниципальную программу «Развитие малого и среднего предпринимательства в городе Зеленогорске», утвержденную постановлением Администрации ЗАТО г. Зеленогорска от 29.09.2017 № 222-п Постановление Администрации ЗАТО г. Зеленогорска от 28.02.2019 № 40-п О внесении изменений в постановление Администрации ЗАТО г. Зеленогорска от 28.12.2015 № 347-п «Об утверждении Перечня должностей муниципальной службы, предусмотренного статьей 12 Федерального закона от 25.12.2008 № 273-ФЗ «О противодействии коррупции» Распоряжение Администрации ЗАТО г. Зеленогорска от 26.02.2019 № 422-р О внесении изменений в распоряжение Администрации ЗАТО г. Зеленогорска от 18.09.2017 № 2175-р «О выделении рабочих мест для трудоустройства инвалидов» Распоряжение Администрации ЗАТО г. Зеленогорска от 25.02.2019 № 410-р Об утверждении состава и Положения о порядке работы комиссии по снижению неформальной занятости, легализации «серой» заработной платы, повышению собираемости страховых взносов во внебюджетные фонды на территории города Зеленогорска Постановление Администрации ЗАТО г. Зеленогорска от 25.02.2019 № 37-п Об утверждении Порядка присуждения премий Главы ЗАТО г. Зеленогорска одаренным обучающимся муниципальных бюджетных образовательных учреждений г. Зеленогорска Постановление Администрации ЗАТО г. Зеленогорска от 25.02.2019 № 36-п Об утверждении Порядка формирования общественной комиссии по развитию городской среды Постановление Администрации ЗАТО г. Зеленогорска от 25.02.2019 № 38-п О внесении изменений в постановление Администрации ЗАТО г. Зеленогорска от 03.05.2018 № 73-п «Об утверждении формы реестра муниципальных служащих» Постановление Администрации ЗАТО г. Зеленогорска от 18.02.2019 № 32-п О внесении изменений в постановление Администрации ЗАТО г. Зеленогорска от 16.05.2017 № 105-п «Об утверждении краткосрочного плана реализации региональной программы капитального ремонта общего имущества в многоквартирных домах, расположенных на территории города Зеленогорска, на 2017-2019 годы» Распоряжение Администрации ЗАТО г. Зеленогорска от 19.02.2019 № 363-р Об утверждении Положения и состава межведомственной комиссии по профилактике правонарушений на территории города Зеленогорска Распоряжение Администрации ЗАТО г. Зеленогорска от 18.02.2019 № 344-р О внесении изменений в распоряжение Администрации ЗАТО г. Зеленогорска от 13.12.2018 № 2718-р «Об утверждении состава муниципальной комиссии по обследованию жилых помещений инвалидов и общего имущества в многоквартирных домах, в которых проживают инвалиды, в целях их приспособления с учетом потребностей инвалидов и обеспечения условий их доступности для инвалидов» Постановление Администрации ЗАТО г. Зеленогорска от 18.02.2019 № 33-п Об утверждении Положения об аудиторских проверках муниципальных унитарных предприятий г. Зеленогорска Постановление Администрации ЗАТО г. Зеленогорска от 18.02.2019 № 34-п Об установлении стоимости гарантированного перечня услуг по погребению, предоставляемых МУП КБУ Постановление Администрации ЗАТО г. Зеленогорска от 13.02.2019 № 28-п Об условиях приватизации муниципального имущества Постановление Администрации ЗАТО г. Зеленогорска от 12.02.2019 № 26-п Об установлении режима работы муниципальных организаций торговли, общественного питания и бытового обслуживания города Зеленогорска Постановление Администрации ЗАТО г. Зеленогорска от 13.02.2019 № 27-п О внесении изменений в постановление Администрации ЗАТО г. Зеленогорска от 17.11.2017 № 276-п «О введении в эксплуатацию системы видеонаблюдения в здании Администрации ЗАТО г. Зеленогорска» Распоряжение Администрации ЗАТО г. Зеленогорска от 14.02.2019 № 316-р О внесении изменений в распоряжение Администрации ЗАТО г. Зеленогорска от 16.03.2017 № 536-р «Об утверждении состава комиссии по соблюдению требований к служебному поведению муниципальных служащих и урегулированию конфликтов интересов» Постановление Администрации ЗАТО г. Зеленогорска от 08.02.2019 № 24-п Об утверждении Порядка выплаты ежегодных премий победителям конкурсов педагогических работников г. Зеленогорска Распоряжение Администрации ЗАТО г. Зеленогорска от 07.02.2019 № 268-р О внесении изменений в распоряжение Администрации ЗАТО г. Зеленогорска от 18.10.2018 № 2296-р «Об утверждении состава и Порядка работы межведомственной комиссии по вопросам реабилитации или абилитации детей-инвалидов, психолого-педагогического и медико-социального сопровождения детей с ограниченными возможностями здоровья» Распоряжение Администрации ЗАТО г. Зеленогорска от 07.02.2019 № 267-р О внесении изменений в распоряжение Администрации ЗАТО г. Зеленогорска от 10.07.2013 № 1704-р «Об утверждении состава комиссии по решению спорных вопросов по предоставлению субсидий на оплату жилого помещения и коммунальных услуг» Постановление Администрации ЗАТО г. Зеленогорска от 04.02.2019 № 14-п О внесении изменений в постановление Администрации ЗАТО г. Зеленогорска от 17.10.2013 № 445-п «Об утверждении Положения о порядке составления проекта местного бюджета города Зеленогорска» Постановление Администрации ЗАТО г. Зеленогорска от 07.02.2019 № 18-п О внесении изменений в постановление Администрации ЗАТО г. Зеленогорска от 27.01.2017 № 13-п «Об утверждении Порядка размещения информации о рассчитываемой за календарный год среднемесячной заработной плате руководителей, их заместителей и главных бухгалтеров муниципальных учреждений и муниципальных унитарных предприятий города Зеленогорска и предоставления указанными лицами данной информации» Постановление Администрации ЗАТО г. Зеленогорска от 07.02.2019 № 23-п О проведении специализированной ярмарки «Весенняя ярмарка цветов, посвященная Международному женскому дню 8 марта» Постановление Администрации ЗАТО г. Зеленогорска от 07.02.2019 № 21-п О внесении изменений в Положение о порядке уведомления представителя нанимателя (работодателя) о фактах обращения в целях склонения муниципального служащего Администрации ЗАТО г. Зеленогорска к совершению коррупционных правонарушений, утвержденное постановлением Администрации ЗАТО г. Зеленогорска от 11.03.2016 № 61-п Постановление Администрации ЗАТО г. Зеленогорска от 07.02.2019 № 20-п О внесении изменений в Положение о порядке уведомления представителя нанимателя (работодателя) муниципальными служащими Администрации ЗАТО г. Зеленогорска о возникшем конфликте интересов или о возможности его возникновения, утвержденное постановлением Администрации ЗАТО г. Зеленогорска от 11.03.2016 № 62-п Постановление Администрации ЗАТО г. Зеленогорска от 07.02.2019 № 19-п Об определении средней рыночной стоимости одного квадратного метра общей площади жилого помещения на территории г. Зеленогорска на I квартал 2019 года Распоряжение Администрации ЗАТО г. Зеленогорска от 05.02.2019 № 219-р О внесении изменений в распоряжение Администрации ЗАТО г. Зеленогорска от 13.09.2016 № 1845-р «Об антинаркотической комиссии города Зеленогорска» Распоряжение Администрации ЗАТО г. Зеленогорска от 05.02.2019 № 218-р О внесении изменений в распоряжение Администрации ЗАТО г. Зеленогорска от 22.09.2017 № 2206-р «Об утверждении Порядка деятельности и состава комиссии по назначению адресной материальной помощи отдельным категориям граждан» Постановление Администрации ЗАТО г. Зеленогорска от 04.02.2019 № 13-п О внесении изменений в постановление Администрации ЗАТО г. Зеленогорска от 22.12.2017 № 328-п «Об установлении размера платы за содержание жилого помещения в многоквартирных домах для нанимателей жилых помещений государственного жилищного фонда, принадлежащего на праве собственности Российской Федерации» Постановление Администрации ЗАТО г. Зеленогорска от 04.02.2019 № 12-п О внесении изменений в постановление Администрации ЗАТО г. Зеленогорска от 18.12.2017 № 322-п «Об установлении размера платы за содержание жилого помещения в многоквартирных домах» Постановление Администрации ЗАТО г. Зеленогорска от 04.02.2019 № 11-п О внесении изменений в постановление Администрации ЗАТО г. Зеленогорска от 22.12.2016 № 366-п «Об утверждении Порядка предоставления физиотерапевтических процедур в муниципальных дошкольных образовательных учреждениях г. Зеленогорска, в которых созданы условия для их проведения» Постановление Администрации ЗАТО г. Зеленогорска от 04.02.2019 № 15-п О временном прекращении движения транспортных средств на участках автомобильных дорог общего пользования местного значения города Зеленогорска Распоряжение Администрации ЗАТО г. Зеленогорска от 04.02.2019 № 201-р Об утверждении состава и Порядка работы комиссии по размещению нестационарных торговых объектов Постановление Администрации ЗАТО г. Зеленогорска от 04.02.2019 № 10-п Об установлении расчетной стоимости 1 кв. м общей площади жилых помещений в целях признания граждан малоимущими на 1 квартал 2019 года Распоряжение Администрации ЗАТО г. Зеленогорска от 30.01.2019 № 183-р Об утверждении состава и Порядка работы комиссии по приватизации муниципального имущества Распоряжение Администрации ЗАТО г. Зеленогорска от 25.01.2019 № 137-р Об утверждении состава и Порядка работы комиссии по разработке схем размещения рекламных конструкций Распоряжение Администрации ЗАТО г. Зеленогорска от 25.01.2019 № 120-р О внесении изменений в распоряжение Администрации ЗАТО г. Зеленогорска от 27.01.2015 № 87-р «Об утверждении Положения о комиссии по служебным (трудовым) спорам Администрации ЗАТО г. Зеленогорска» Постановление Администрации ЗАТО г. Зеленогорска от 25.01.2019 № 6-п Об утверждении муниципальной программы «Обеспечение безопасности населения города Зеленогорска» Распоряжение Администрации ЗАТО г. Зеленогорска от 22.01.2019 № 115-р О внесении изменений в распоряжение Администрации ЗАТО г. Зеленогорска от 24.03.2016 № 528-р «Об утверждении состава и Порядка работы комиссии по вопросам градостроительной деятельности и образованию земельных участков на территории г. Зеленогорска» Постановление Администрации ЗАТО г. Зеленогорска от 21.01.2019 № 5-п О закреплении муниципальных образовательных учреждений г. Зеленогорска за конкретными территориями г. Зеленогорска Постановление Администрации ЗАТО г. Зеленогорска от 21.01.2019 № 4-п О признании утратившими силу некоторых муниципальных правовых актов Постановление Администрации ЗАТО г. Зеленогорска от 14.01.2019 № 2-п Об утверждении Порядка организации и проведения в г. Зеленогорске общественных обсуждений о намечаемой хозяйственной и иной деятельности, которая подлежит экологической экспертизе Постановление Администрации ЗАТО г. Зеленогорска от 15.01.2019 № 3-п О начале приема предложений от населения о предлагаемых мероприятиях на общественной территории, отобранной для участия во Всероссийском конкурсе лучших проектов создания комфортной городской среды Распоряжение Администрации ЗАТО г. Зеленогорска от 14.01.2019 № 72-р Об утверждении состава и Порядка работы комиссии по определению внешнего вида зданий, строений, сооружений Распоряжение Администрации ЗАТО г. Зеленогорска от 29.12.2018 № 2941-р О внесении изменений в распоряжение Администрации ЗАТО г. Зеленогорска от 03.03.2014 № 370-р «Об утверждении Положения и состава городской жилищной комиссии» Распоряжение Администрации ЗАТО г. Зеленогорска от 29.12.2018 № 2940-р Об утверждении Положения и состава комиссии по оценке последствий принятия решений о реконструкции, модернизации, сдаче в аренду, передаче в безвозмездное пользование, об изменении назначения или о ликвидации объекта социальной инфраструктуры для детей, являющегося муниципальной собственностью г. Зеленогорска, а также о реорганизации или ликвидации муниципальных образовательных организаций, муниципальных организаций, образующих социальную инфраструктуру для детей г. Зеленогорска Постановление Администрации ЗАТО г. Зеленогорска от 29.12.2018 № 272-п О внесении изменений в постановление Администрации ЗАТО г. Зеленогорска от 22.03.2016 № 68-п «Об утверждении Порядка обеспечения горячим питанием отдельных категорий учащихся муниципальных общеобразовательных организаций г. Зеленогорска» Постановление Администрации ЗАТО г. Зеленогорска от 29.12.2018 № 262-п О внесении изменений в постановление Администрации ЗАТО г. Зеленогорска от 31.10.2017 № 257-п «Об утверждении муниципальной программы «Формирование современной городской среды в городе Зеленогорске» Распоряжение Администрации ЗАТО г. Зеленогорска от 29.12.2018 № 2887-р О признании утратившими силу некоторых распоряжений Администрации ЗАТО г. Зеленогорска Распоряжение Администрации ЗАТО г. Зеленогорска от 29.12.2018 № 2886-р О внесении изменений в распоряжение Администрации ЗАТО г. Зеленогорска от 05.02.2014 № 219-р «Об утверждении состава и Положения о координационном комитете содействия занятости населения города Зеленогорска» Распоряжение Администрации ЗАТО г. Зеленогорска от 29.12.2018 № 2885-р О внесении изменений в распоряжение Администрации ЗАТО г. Зеленогорска от 24.07.2015 № 1422-р «О разработке Стратегии социально-экономического развития города Зеленогорска на период до 2030 года» Распоряжение Администрации ЗАТО г. Зеленогорска от 29.12.2018 № 2884-р О внесении изменений в распоряжение Администрации ЗАТО г. Зеленогорска от 13.02.2015 № 247-р «О создании рабочей группы по мониторингу и оперативному реагированию на изменение социально-экономического положения в городе Зеленогорске» Постановление Администрации ЗАТО г. Зеленогорска от 29.12.2018 № 257-п О признании утратившими силу некоторых муниципальных правовых актов Постановление Администрации ЗАТО г. Зеленогорска от 29.12.2018 № 258-п О внесении изменений в постановление Администрации ЗАТО г. Зеленогорска от 12.11.2015 № 289-п «Об утверждении муниципальной программы «Охрана окружающей среды и защита городских лесов на территории города Зеленогорска» Постановление Администрации ЗАТО г. Зеленогорска от 29.12.2018 № 264-п О внесении изменений в муниципальную программу «Социальная защита и социальная поддержка населения города Зеленогорска», утвержденную постановлением Администрации ЗАТО г. Зеленогорска от 12.11.2015 № 283-п Постановление Администрации ЗАТО г. Зеленогорска от 29.12.2018 № 266-п О внесении изменений в муниципальную программу «Развитие образования в городе Зеленогорске», утвержденную постановлением Администрации ЗАТО г. Зеленогорска от 12.11.2015 № 295-п Постановление Администрации ЗАТО г. Зеленогорска от 29.12.2018 № 263-п О внесении изменений в постановление Администрации ЗАТО г. Зеленогорска от 12.11.2015 № 297-п «Об утверждении муниципальной программы «Комплексные меры противодействия терроризму и экстремизму на территории города Зеленогорска» Постановление Администрации ЗАТО г. Зеленогорска от 29.12.2018 № 265-п О внесении изменений в постановление Администрации ЗАТО г. Зеленогорска от 12.11.2015 № 291-п «Об утверждении муниципальной программы «Развитие транспортной системы в городе Зеленогорске» Постановление Администрации ЗАТО г. Зеленогорска от 29.12.2018 № 261-п О внесении изменений в постановление Администрации ЗАТО г. Зеленогорска от 12.11.2015 № 292-п «Об утверждении муниципальной программы «Капитальное строительство и капитальный ремонт в городе Зеленогорске» Постановление Администрации ЗАТО г. Зеленогорска от 29.12.2018 № 260-п О внесении изменений в постановление Администрации ЗАТО г. Зеленогорска от 12.11.2015 № 293-п «Об утверждении муниципальной программы «Реформирование и модернизация жилищно-коммунального хозяйства и повышение энергетической эффективности в городе Зеленогорске» Постановление Администрации ЗАТО г. Зеленогорска от 29.12.2018 № 259-п О внесении изменений в постановление Администрации ЗАТО г. Зеленогорска от 12.11.2015 № 286-п «Об утверждении муниципальной программы «Защита населения и территории города Зеленогорска от чрезвычайных ситуаций природного и техногенного характера» Постановление Администрации ЗАТО г. Зеленогорска от 28.12.2018 № 250-п Об утверждении Положения о порядке установления размера платы за содержание жилого помещения для собственников помещений в многоквартирном доме, которые не приняли на их общем собрании решение о выборе способа управления многоквартирным домом, решение об установлении размера платы за содержание жилого помещения Постановление Администрации ЗАТО г. Зеленогорска от 28.12.2018 № 254-п О внесении изменений в Административный регламент предоставления муниципальной услуги «Предоставление информации об организации общедоступного и бесплатного дошкольного, начального общего, основного общего, среднего общего образования в общеобразовательных учреждениях», утвержденный постановлением Администрации ЗАТО г. Зеленогорска от 24.06.2016 № 167-п Постановление Администрации ЗАТО г. Зеленогорска от 28.12.2018 № 253-п О внесении изменений в Административный регламент предоставления муниципальной услуги «Постановка на учет детей в образовательные учреждения, реализующие основную образовательную программу дошкольного образования (детские сады)», утвержденный постановлением Администрации ЗАТО г. Зеленогорска от 30.06.2016 № 183-п Постановление Администрации ЗАТО г. Зеленогорска от 28.12.2018 № 251-п Об утверждении Положения о составлении, утверждении и установлении планов по основным показателям финансово-хозяйственной деятельности муниципальных унитарных предприятий и представлении отчётов о результатах их исполнения Постановление Администрации ЗАТО г. Зеленогорска от 28.12.2018 № 252-п Об утверждении перечня муниципальных услуг, предоставляемых Администрацией ЗАТО г. Зеленогорска, предоставление которых посредством комплексного запроса не осуществляется Распоряжение Администрации ЗАТО г. Зеленогорска от 27.12.2018 № 2856-р О внесении изменений в распоряжение Администрации ЗАТО г. Зеленогорска от 26.09.2017 № 2249-р «Об утверждении состава и Порядка деятельности комиссии по принятию решений о необходимости проведения ремонта в жилых помещениях, ремонта печного отопления и (или) электропроводки в жилых помещениях» Распоряжение Администрации ЗАТО г. Зеленогорска от 27.12.2018 № 2855-р О внесении изменений в распоряжение Администрации ЗАТО г. Зеленогорска от 26.09.2017 № 2248-р «Об утверждении состава и Порядка деятельности комиссии по вопросам предоставления материальной помощи» Постановление Администрации ЗАТО г. Зеленогорска от 28.12.2018 № 249-п О внесении изменений в постановление Администрации ЗАТО г. Зеленогорска от 12.11.2015 № 295-п «Об утверждении муниципальной программы «Развитие образования в городе Зеленогорске» Распоряжение Администрации ЗАТО г. Зеленогорска от 27.12.2018 № 2854-р О внесении изменений в распоряжение Администрации ЗАТО г. Зеленогорска от 14.04.2014 № 728-р «Об утверждении состава и Порядка работы территориальной психолого-медико-педагогической комиссии г. Зеленогорска» Распоряжение Администрации ЗАТО г. Зеленогорска от 27.12.2018 № 2852-р О внесении изменений в распоряжение Администрации ЗАТО г. Зеленогорска от 11.02.2011 № 226-р «О создании комиссии по вопросам формирования реестра муниципальных услуг» Постановление Администрации ЗАТО г. Зеленогорска от 27.12.2018 № 248-п О внесении изменений в постановление Администрации ЗАТО г. Зеленогорска от 18.12.2017 № 322-п «Об установлении размера платы за содержание жилого помещения в многоквартирных домах» Постановление Администрации ЗАТО г. Зеленогорска от 25.12.2018 № 247-п О подготовке ежегодного отчёта Главы ЗАТО г. Зеленогорска о результатах своей деятельности и деятельности Администрации ЗАТО г. Зеленогорска, в том числе о решении вопросов, поставленных Советом депутатов ЗАТО г. Зеленогорска Постановление Администрации ЗАТО г. Зеленогорска от 25.12.2018 № 246-п О внесении изменений в муниципальную программу «Развитие культуры города Зеленогорска», утвержденную постановлением Администрации ЗАТО г. Зеленогорска от 12.11.2015 № 288-п Постановление Администрации ЗАТО г. Зеленогорска от 25.12.2018 № 245-п О внесении изменений в муниципальную программу «Муниципальное имущество и земельные ресурсы города Зеленогорска», утвержденную постановлением Администрации ЗАТО г. Зеленогорска от 19.12.2017 № 323-п Постановление Администрации ЗАТО г. Зеленогорска от 25.12.2018 № 244-п О внесении изменений в муниципальную программу «Управление муниципальными финансами города Зеленогорска», утвержденную постановлением Администрации ЗАТО г. Зеленогорска от 12.11.2015 № 287-п Постановление Администрации ЗАТО г. Зеленогорска от 20.12.2018 № 243-п О внесении изменений в Положение о системе оплаты труда работников муниципальных бюджетных и казенных учреждений города Зеленогорска, утвержденное постановлением Администрации ЗАТО г. Зеленогорска от 22.11.2016 № 313-п Постановление Администрации ЗАТО г. Зеленогорска от 20.12.2018 № 242-п Об утверждении Плана мероприятий по реализации Стратегии социально-экономического развития города Зеленогорска на период до 2030 года Распоряжение Администрации ЗАТО г. Зеленогорска от 14.12.2018 № 2730-р О создании комиссии по визуальному осмотру технического состояния муниципального имущества, составляющего муниципальную казну города Зеленогорска, предоставленного в аренду Распоряжение Администрации ЗАТО г. Зеленогорска от 19.12.2018 № 2762-р О внесении изменений в распоряжение Администрации ЗАТО г. Зеленогорска от 27.01.2015 № 87-р «Об утверждении Положения о комиссии по служебным (трудовым) спорам Администрации ЗАТО г. Зеленогорска» Постановление Администрации ЗАТО г. Зеленогорска от 19.12.2018 № 238-п О внесении изменений в постановление Администрации ЗАТО г. Зеленогорска от 12.11.2015 № 296-п «Об утверждении муниципальной программы «Развитие молодежной политики города Зеленогорска» Постановление Администрации ЗАТО г. Зеленогорска от 19.12.2018 № 240-п Об установлении размера платы за пользование жилым помещением (платы за наем) государственного или муниципального жилищного фонда Постановление Администрации ЗАТО г. Зеленогорска от 19.12.2018 № 239-п О внесении изменений в муниципальную программу «Гражданское общество – закрытое административно-территориальное образование Зеленогорск», утвержденную постановлением Администрации ЗАТО г. Зеленогорска от 12.11.2015 № 285-п Постановление Администрации ЗАТО г. Зеленогорска от 19.12.2018 № 237-п Об утверждении Положения о расчете размера платы за пользование жилым помещением (платы за наем) для нанимателей жилых помещений по договорам социального найма и договорам найма жилых помещений государственного или муниципального жилищного фонда в городе Зеленогорске Постановление Администрации ЗАТО г. Зеленогорска от 18.12.2018 № 236-п О внесении изменений в Примерное положение об оплате труда работников муниципальных бюджетных и казенных учреждений социального обслуживания, утвержденное постановлением Администрации ЗАТО г. Зеленогорска от 09.06.2018 № 107-п Постановление Администрации ЗАТО г. Зеленогорска от 18.12.2018 № 235-п О внесении изменений в Порядок использования (перераспределения) средств, зарезервированных в составе утвержденных ассигнований местного бюджета города Зеленогорска, утвержденный постановлением Администрации ЗАТО г. Зеленогорска от 16.11.2018 № 209-п Постановление Администрации ЗАТО г. Зеленогорска от 18.12.2018 № 234-п О внесении изменений в постановление Администрации ЗАТО г. Зеленогорска от 12.11.2015 № 293-п «Об утверждении муниципальной программы «Реформирование и модернизация жилищно-коммунального хозяйства и повышение энергетической эффективности в городе Зеленогорске» Распоряжение Администрации ЗАТО г. Зеленогорска от 17.12.2018 № 2735-р О внесении изменений в распоряжение Администрации ЗАТО г. Зеленогорска от 16.10.2018 № 2287-р «Об утверждении персонального состава общественной комиссии по развитию городской среды» Распоряжение Администрации ЗАТО г. Зеленогорска от 13.12.2018 № 2718-р Об утверждении состава муниципальной комиссии по обследованию жилых помещений инвалидов и общего имущества в многоквартирных домах, в которых проживают инвалиды, в целях их приспособления с учетом потребностей инвалидов и обеспечения условий их доступности для инвалидов Распоряжение Администрации ЗАТО г. Зеленогорска от 13.12.2018 № 2719-р О внесении изменений в распоряжение Администрации ЗАТО г. Зеленогорска от 22.09.2017 № 2206-р «Об утверждении Порядка деятельности и состава комиссии по назначению адресной материальной помощи отдельным категориям граждан» Постановление Администрации ЗАТО г. Зеленогорска от 14.12.2018 № 232-п О внесении изменений в постановление Администрации ЗАТО г. Зеленогорска от 12.11.2015 № 289-п «Об утверждении муниципальной программы «Охрана окружающей среды и защита городских лесов на территории города Зеленогорска» Постановление Администрации ЗАТО г. Зеленогорска от 11.12.2018 № 225-п О внесении изменений в постановление Администрации ЗАТО г. Зеленогорска от 12.11.2015 № 291-п «Об утверждении муниципальной программы «Развитие транспортной системы в городе Зеленогорске» Постановление Администрации ЗАТО г. Зеленогорска от 13.12.2018 № 229-п О внесении изменений в постановление Администрации ЗАТО г. Зеленогорска от 19.12.2017 № 323-п «Об утверждении муниципальной программы «Муниципальное имущество и земельные ресурсы города Зеленогорска» Постановление Администрации ЗАТО г. Зеленогорска от 13.12.2018 № 228-п О внесении изменений в постановление Администрации ЗАТО г. Зеленогорска от 12.11.2015 № 286-п «Об утверждении муниципальной программы «Защита населения и территории города Зеленогорска от чрезвычайных ситуаций природного и техногенного характера» Постановление Администрации ЗАТО г. Зеленогорска от 10.12.2018 № 222-п О внесении изменений в постановление Администрации ЗАТО г. Зеленогорска от 12.11.2015 № 284-п «Об утверждении муниципальной программы «Развитие физической культуры и спорта в городе Зеленогорске» Постановление Администрации ЗАТО г. Зеленогорска от 12.12.2018 № 226-п О внесении изменений в постановление Администрации ЗАТО г. Зеленогорска от 12.11.2015 № 288-п «Об утверждении муниципальной программы «Развитие культуры города Зеленогорска» Постановление Администрации ЗАТО г. Зеленогорска от 12.12.2018 № 227-п О внесении изменений в муниципальную программу «Развитие молодежной политики города Зеленогорска», утвержденную постановлением Администрации ЗАТО г. Зеленогорска от 12.11.2015 № 296-п Постановление Администрации ЗАТО г. Зеленогорска от 11.12.2018 № 224-п Об установлении тарифа на услуги по вывозу жидких бытовых отходов, оказываемые Муниципальным унитарным предприятием тепловых сетей г. Зеленогорска Распоряжение Администрации ЗАТО г. Зеленогорска от 10.12.2018 № 2647-р О внесении изменений в распоряжение Администрации ЗАТО г. Зеленогорска от 16.03.2017 № 536-р «Об утверждении состава комиссии по соблюдению требований к служебному поведению муниципальных служащих и урегулированию конфликтов интересов» Постановление Администрации ЗАТО г. Зеленогорска от 10.12.2018 № 223-п О внесении изменений в постановление Администрации ЗАТО г. Зеленогорска от 29.09.2017 № 222-п «Об утверждении муниципальной программы «Развитие малого и среднего предпринимательства в городе Зеленогорске» Постановление Администрации ЗАТО г. Зеленогорска от 10.12.2018 № 221-п Об участии во Всероссийском конкурсе лучших проектов создания комфортной городской среды Постановление Администрации ЗАТО г. Зеленогорска от 06.12.2018 № 220-п О внесении изменений в муниципальную программу «Гражданское общество - закрытое административно-территориальное образование Зеленогорск», утвержденную постановлением Администрации ЗАТО г. Зеленогорска от 12.11.2015 № 285-п Постановление Администрации ЗАТО г. Зеленогорска от 06.12.2018 № 219-п О внесении изменений в постановление Администрации ЗАТО г. Зеленогорска от 12.11.2015 № 292-п «Об утверждении муниципальной программы «Капитальное строительство и капитальный ремонт в городе Зеленогорске» Постановление Администрации ЗАТО г. Зеленогорска от 06.12.2018 № 218-п О средстве массовой информации, определенном в качестве официального периодического издания, осуществляющего публикацию муниципальных правовых актов г. Зеленогорска Постановление Администрации ЗАТО г. Зеленогорска от 06.12.2018 № 217-п О внесении изменений в постановление Администрации ЗАТО г. Зеленогорска от 12.11.2015 № 283-п «Об утверждении муниципальной программы «Социальная защита и социальная поддержка населения города Зеленогорска» Постановление Администрации ЗАТО г. Зеленогорска от 05.12.2018 № 216-п О внесении изменений в постановление Администрации ЗАТО г. Зеленогорска от 12.11.2015 № 287-п «Об утверждении муниципальной программы «Управление муниципальными финансами города Зеленогорска» Распоряжение Администрации ЗАТО г. Зеленогорска от 30.11.2018 № 2593-р О внесении изменений в распоряжение Администрации ЗАТО г. Зеленогорска от 14.03.2018 № 415-р «Об утверждении состава и Положения о порядке работы комиссии по урегулированию разногласий, возникших при проведении оценки регулирующего воздействия проектов муниципальных актов» Постановление Администрации ЗАТО г. Зеленогорска от 04.12.2018 № 215-п Об утверждении Сводного плана организации ярмарок на 2019 год Постановление Администрации ЗАТО г. Зеленогорска от 04.12.2018 № 213-п Об установлении в общежитиях стоимости услуг по содержанию жилых помещений, принадлежащих на праве собственности муниципальному образованию город Зеленогорск Красноярского края Постановление Администрации ЗАТО г. Зеленогорска от 04.12.2018 № 212-п Об установлении стоимости услуг по содержанию жилых помещений в общежитиях государственного жилищного фонда, переданных ООО «Квадра Пи-Эль» по договору доверительного управления Распоряжение Администрации ЗАТО г. Зеленогорска от 27.11.2018 № 2561-р О внесении изменений в распоряжение Администрации ЗАТО г. Зеленогорска от 21.09.2015 № 1824-р «Об утверждении состава и Порядка работы комиссии по размещению нестационарных торговых объектов» Постановление Администрации ЗАТО г. Зеленогорска от 27.11.2018 № 211-п О внесении изменений в муниципальную программу «Развитие малого и среднего предпринимательства в городе Зеленогорске», утвержденную постановлением Администрации ЗАТО г. Зеленогорска от 29.09.2017 № 222-п Постановление Администрации ЗАТО г. Зеленогорска от 23.11.2018 № 210-п Об утверждении Порядка общественного обсуждения проектов Стратегии социально-экономического развития города Зеленогорска на период до 2030 года и Плана мероприятий по ее реализации Распоряжение Администрации ЗАТО г. Зеленогорска от 23.11.2018 № 2539-р О признании утратившими силу некоторых распоряжений Администрации ЗАТО г. Зеленогорска Распоряжение Администрации ЗАТО г. Зеленогорска от 06.11.2018 № 2417-р О подготовке и проведении мероприятий, посвященных Международному дню инвалидов, в 2018 году Постановление Администрации ЗАТО г. Зеленогорска от 16.11.2018 № 209-п Об утверждении Порядка использования (перераспределения) средств, зарезервированных в составе утвержденных ассигнований местного бюджета города Зеленогорска Распоряжение Администрации ЗАТО г. Зеленогорска от 16.11.2018 № 2490-р О назначении голосования по выбору территории для участия во Всероссийском конкурсе лучших проектов создания комфортной городской среды Распоряжение Администрации ЗАТО г. Зеленогорска от 16.11.2018 № 2489-р О назначении голосования по отбору наиболее посещаемой муниципальной территории общего пользования, подлежащей в рамках реализации муниципальной программы «Формирование современной городской среды в городе Зеленогорске» благоустройству в 2019 году Постановление Администрации ЗАТО г. Зеленогорска от 09.11.2018 № 207-п О признании утратившим силу постановления Администрации ЗАТО г. Зеленогорска от 03.03.2016 № 52-п «Об утверждении Порядка предоставления мер, предусмотренных Положением о наградах и Почетных званиях города Зеленогорска, утвержденным решением Совета депутатов ЗАТО г. Зеленогорска от 17.12.2015 № 16-105р» Постановление Администрации ЗАТО г. Зеленогорска от 06.11.2018 № 206-п О внесении изменений в Порядок разработки, корректировки, осуществления мониторинга и контроля реализации документов стратегического планирования города Зеленогорска, утвержденный постановлением Администрации ЗАТО г. Зеленогорска от 09.10.2015 № 254-п Распоряжение Администрации ЗАТО г. Зеленогорска от 02.11.2018 № 2411-р О внесении изменений в распоряжение Администрации ЗАТО г. Зеленогорска от 19.01.2018 № 87-р «Об утверждении состава и Порядка работы аукционной (конкурсной) комиссии по приватизации муниципального имущества» Распоряжение Администрации ЗАТО г. Зеленогорска от 02.11.2018 № 2410-р О внесении изменений в распоряжение Администрации ЗАТО г. Зеленогорска от 12.01.2018 № 27-р «Об утверждении состава и Порядка работы комиссии по приватизации муниципального имущества» Распоряжение Администрации ЗАТО г. Зеленогорска от 31.10.2018 № 2400-р О внесении изменений в распоряжение Администрации ЗАТО г. Зеленогорска от 25.05.2016 № 994-р «Об утверждении Положения и состава балансовой комиссии» Постановление Администрации ЗАТО г. Зеленогорска от 30.10.2018 № 205-п Об определении средней рыночной стоимости одного квадратного метра общей площади жилого помещения на территории г. Зеленогорска на IV квартал 2018 года Постановление Администрации ЗАТО г. Зеленогорска от 29.10.2018 № 204-п О внесении изменений в Примерное положение об оплате труда работников муниципальных бюджетных и казенных учреждений, находящихся в ведении МКУ «КФиС», утвержденное постановлением Администрации ЗАТО г. Зеленогорска от 31.08.2018 № 165-п Распоряжение Администрации ЗАТО г. Зеленогорска от 26.10.2018 № 2365-р О проведении конкурса на включение граждан в резерв управленческих кадров г. Зеленогорска на замещение целевой должности директора Муниципального казённого учреждения «Служба единого заказчика-застройщика» Распоряжение Администрации ЗАТО г. Зеленогорска от 26.10.2018 № 2364-р О проведении конкурса на включение граждан в резерв управленческих кадров г. Зеленогорска на замещение целевой должности директора Муниципального бюджетного учреждения «Спортивная школа олимпийского резерва «Олимп» имени полного кавалера ордена Славы Алдошина Павла Петровича» Постановление Администрации ЗАТО г. Зеленогорска от 19.10.2018 № 202-п Об установлении расчетной стоимости 1 кв. м общей площади жилых помещений в целях признания граждан малоимущими на 4 квартал 2018 года Постановление Администрации ЗАТО г. Зеленогорска от 18.10.2018 № 201-п О внесении изменений в Примерное положение об оплате труда работников муниципальных бюджетных и казенных учреждений города Зеленогорска, находящихся в ведении Муниципального казенного учреждения «Комитет по делам культуры и молодежной политики города Зеленогорска», утвержденное постановлением Администрации ЗАТО г. Зеленогорска от 29.08.2017 № 194-п Постановление Администрации ЗАТО г. Зеленогорска от 18.10.2018 № 198-п О внесении изменений в Положение о системе оплаты труда работников муниципальных бюджетных и казенных учреждений города Зеленогорска, утвержденное постановлением Администрации ЗАТО г. Зеленогорска от 22.11.2016 № 313-п Постановление Администрации ЗАТО г. Зеленогорска от 18.10.2018 № 200-п Об установлении норматива стоимости одного квадратного метра общей площади жилья по г. Зеленогорску на 2019 год Постановление Администрации ЗАТО г. Зеленогорска от 15.10.2018 № 194-п Об утверждении Реестра муниципальных маршрутов регулярных перевозок в городе Зеленогорске Постановление Администрации ЗАТО г. Зеленогорска от 15.10.2018 № 193-п Об установлении муниципального маршрута регулярных перевозок № 15 Распоряжение Администрации ЗАТО г. Зеленогорска от 18.10.2018 № 2296-р Об утверждении состава и Порядка работы межведомственной комиссии по вопросам реабилитации или абилитации детей-инвалидов, психолого-педагогического и медико-социального сопровождения детей с ограниченными возможностями здоровья Распоряжение Администрации ЗАТО г. Зеленогорска от 16.10.2018 № 2287-р Об утверждении персонального состава общественной комиссии по развитию городской среды Распоряжение Администрации ЗАТО г. Зеленогорска от 16.10.2018 № 2276-р О внесении изменений в распоряжение Администрации ЗАТО г. Зеленогорска от 20.07.2018 № 1353-р «О создании рабочей группы по проведению замеров твердых коммунальных отходов на территории г. Зеленогорска» Постановление Администрации ЗАТО г. Зеленогорска от 11.10.2018 № 191-п Об утверждении отчета об исполнении местного бюджета города Зеленогорска за 9 месяцев 2018 года Постановление Администрации ЗАТО г. Зеленогорска от 27.09.2018 № 185-п Об организации общественных работ Постановление Администрации ЗАТО г. Зеленогорска от 08.10.2018 № 188-п О внесении изменений в постановление Администрации ЗАТО г. Зеленогорска от 28.12.2015 № 345-п «Об утверждении Перечня мест массового пребывания людей, расположенных на территории города Зеленогорска» Постановление Администрации ЗАТО г. Зеленогорска от 27.09.2018 № 184-п Об утверждении Порядка представления, рассмотрения и оценки предложений граждан, организаций о выборе парка, подлежащего благоустройству Постановление Администрации ЗАТО г. Зеленогорска от 27.09.2018 № 183-п О внесении изменений в муниципальную программу «Формирование современной городской среды в городе Зеленогорске», утвержденную постановлением Администрации ЗАТО г. Зеленогорска от 31.10.2017 № 257-п Постановление Администрации ЗАТО г. Зеленогорска от 27.09.2018 № 182-п Об утверждении Порядка формирования общественной комиссии по развитию городской среды Распоряжение Администрации ЗАТО г. Зеленогорска от 14.09.2018 № 1968-р Об утверждении состава и Положения о порядке работы межведомственной комиссии для оценки и обследования помещения в целях признания его жилым помещением, жилого помещения пригодным (непригодным) для проживания граждан, а также многоквартирного дома в целях признания его аварийным и подлежащим сносу или реконструкции Распоряжение Администрации ЗАТО г. Зеленогорска от 01.10.2018 № 2128-р О подготовке и проведении мероприятий, посвященных празднованию Дня пожилых людей в 2018 году Постановление Администрации ЗАТО г. Зеленогорска от 04.10.2018 № 187-п О внесении изменений в постановление Администрации ЗАТО г. Зеленогорска от 29.02.2016 № 47-п «Об исполнении государственных полномочий по вопросам социальной поддержки и социального обслуживания граждан» Распоряжение Администрации ЗАТО г. Зеленогорска от 28.09.2018 № 2124-р О проведении конкурса на включение граждан в резерв управленческих кадров г. Зеленогорска на замещение целевой должности директора Муниципального бюджетного учреждения «Зеленогорский музейно-выставочный центр» Постановление Администрации ЗАТО г. Зеленогорска от 26.09.2018 № 178-п О внесении изменений в Порядок исполнения поручений и указаний Президента Российской Федерации в Администрации ЗАТО г. Зеленогорска, утвержденный постановлением Администрации ЗАТО г. Зеленогорска от 17.06.2016 № 157-п Постановление Администрации ЗАТО г. Зеленогорска от 26.09.2018 № 177-п О внесении изменений в Порядок исполнения поручений Губернатора Красноярского края в Администрации ЗАТО г. Зеленогорска, утвержденный постановлением Администрации ЗАТО г. Зеленогорска от 06.02.2017 № 28-п Постановление Администрации ЗАТО г. Зеленогорска от 26.09.2018 № 176-п О внесении изменений в Примерное положение об оплате труда работников муниципальных бюджетных и казенных учреждений социального обслуживания, утвержденное постановлением Администрации ЗАТО г. Зеленогорска от 09.06.2018 № 107-п Распоряжение Администрации ЗАТО г. Зеленогорска от 21.09.2018 № 2030-р Об утверждении списка социально ориентированных некоммерческих организаций, признанных победителями конкурса, и размеров предоставляемых им субсидий Распоряжение Администрации ЗАТО г. Зеленогорска от 18.09.2018 № 1973-р О создании рабочей группы по координации мероприятий, связанных с установкой памятного камня в Парке Электрохимического завода Постановление Администрации ЗАТО г. Зеленогорска от 17.09.2018 № 172-п О внесении изменений в постановление Администрации ЗАТО г. Зеленогорска от 28.05.2013 № 215-п «Об осуществлении на территории г. Зеленогорска государственных полномочий по обеспечению жилыми помещениями детей-сирот и детей, оставшихся без попечения родителей, лиц из числа детей-сирот и детей, оставшихся без попечения родителей» Постановление Администрации ЗАТО г. Зеленогорска от 19.09.2018 № 173-п Об установлении размера платы, взимаемой с родителей (законных представителей) за присмотр и уход за детьми в муниципальных бюджетных образовательных учреждениях г. Зеленогорска Постановление Администрации ЗАТО г. Зеленогорска от 19.09.2018 № 174-п О внесении изменений в постановление Администрации ЗАТО г. Зеленогорска от 12.11.2015 № 297-п «Об утверждении муниципальной программы «Комплексные меры противодействия терроризму и экстремизму на территории города Зеленогорска» Постановление Администрации ЗАТО г. Зеленогорска от 17.09.2018 № 171-п О внесении изменений в муниципальную программу «Развитие культуры города Зеленогорска», утвержденную постановлением Администрации ЗАТО г. Зеленогорска от 12.11.2015 № 288-п Распоряжение Администрации ЗАТО г. Зеленогорска от 10.09.2018 № 1923-р О внесении изменений в распоряжение Администрации ЗАТО г. Зеленогорска от 14.04.2014 № 728-р «Об утверждении состава и Порядка работы территориальной психолого-медико-педагогической комиссии г. Зеленогорска» Распоряжение Администрации ЗАТО г. Зеленогорска от 12.09.2018 № 1955-р О внесении изменений в Положение о порядке работы комиссии по формированию резерва управленческих кадров города Зеленогорска, утвержденное распоряжением Администрации ЗАТО г. Зеленогорска от 14.12.2015 № 2575-р Постановление Администрации ЗАТО г. Зеленогорска от 12.09.2018 № 170-п О внесении изменений в Положение о порядке формирования резерва управленческих кадров города Зеленогорска, утвержденное постановлением Администрации ЗАТО г. Зеленогорска от 11.12.2015 № 324-п Постановление Администрации ЗАТО г. Зеленогорска от 12.09.2018 № 169-п О признании утратившим силу постановления Администрации ЗАТО г. Зеленогорска от 29.12.2014 № 428-п «Об организации на территории г. Зеленогорска контроля за использованием жилых помещений и (или) распоряжением жилыми помещениями нанимателями или членами семей нанимателей по договорам социального найма либо собственниками которых являются дети-сироты и дети, оставшиеся без попечения родителей, обеспечением надлежащего санитарного и технического состояния этих жилых помещений» Распоряжение Администрации ЗАТО г. Зеленогорска от 10.09.2018 № 1915-р О начале отопительного периода 2018 - 2019 годов Распоряжение Администрации ЗАТО г. Зеленогорска от 07.09.2018 № 1914-р Об утверждении состава и Порядка работы конкурсной комиссии для определения победителя конкурса на право получения субсидий в целях возмещения части затрат в связи с оказанием бытовых услуг общих отделений бань Постановление Администрации ЗАТО г. Зеленогорска от 31.08.2018 № 166-п О признании утратившим силу постановления Администрации ЗАТО г. Зеленогорска от 03.03.2014 № 52-п «Об утверждении Порядка осуществления краевых выплат младшим воспитателям и помощникам воспитателей в муниципальных образовательных учреждениях, реализующих основную общеобразовательную программу дошкольного образования детей на территории города Зеленогорска» Постановление Администрации ЗАТО г. Зеленогорска от 06.09.2018 № 168-п О внесении изменений в муниципальную программу «Защита населения и территории города Зеленогорска от чрезвычайных ситуаций природного и техногенного характера», утвержденную постановлением Администрации ЗАТО г. Зеленогорска от 12.11.2015 № 286-п Постановление Администрации ЗАТО г. Зеленогорска от 06.08.2018 № 150-п Об утверждении Положения об отделе опеки и попечительства Администрации ЗАТО г. Зеленогорска Постановление Администрации ЗАТО г. Зеленогорска от 04.09.2018 № 167-п О внесении изменений в постановление главы Администрации ЗАТО г. Зеленогорска от 23.06.2008 № 275-п «О создании Координационного совета в области развития малого и среднего предпринимательства» Постановление Администрации ЗАТО г. Зеленогорска от 31.08.2018 № 165-п Об утверждении Примерного положения об оплате труда работников муниципальных бюджетных и казенных учреждений, находящихся в ведении МКУ «КФиС» Распоряжение Администрации ЗАТО г. Зеленогорска от 28.08.2018 № 1780-р О внесении изменений в распоряжение Администрации ЗАТО г. Зеленогорска от 14.06.2018 № 1082-р «Об утверждении Перечня муниципального имущества, свободного от прав третьих лиц (за исключением имущественных прав некоммерческих организаций) и предназначенного для предоставления социально ориентированным некоммерческим организациям» Постановление Администрации ЗАТО г. Зеленогорска от 27.08.2018 № 160-п О внесении изменений в постановление Администрации ЗАТО г. Зеленогорска от 26.12.2017 № 337-п «Об утверждении Порядка формирования, ведения и обязательного опубликования перечня муниципального имущества, свободного от прав третьих лиц (за исключением имущественных прав некоммерческих организаций) и предназначенного для предоставления социально ориентированным некоммерческим организациям» Постановление Администрации ЗАТО г. Зеленогорска от 27.08.2018 № 161-п О признании утратившим силу постановления Администрации ЗАТО г. Зеленогорска от 26.12.2014 № 423-п «Об утверждении порядка расходования субвенции, предоставляемой из краевого бюджета на осуществление государственных полномочий по уведомительной регистрации коллективных договоров и территориальных соглашений и контроля за их выполнением на территории г. Зеленогорска» Постановление Администрации ЗАТО г. Зеленогорска от 31.08.2018 № 164-п Об утверждении Перечня муниципальных программ города Зеленогорска Распоряжение Администрации ЗАТО г. Зеленогорска от 30.08.2018 № 1878-р О внесении изменений в распоряжение Администрации ЗАТО г. Зеленогорска от 21.02.2018 № 316-р «О принятии муниципальных правовых актов по вопросам осуществления государственных полномочий в сфере опеки и попечительства в отношении несовершеннолетних граждан» Постановление Администрации ЗАТО г. Зеленогорска от 27.08.2018 № 159-п Об утверждении Порядка предоставления субсидий в целях возмещения части затрат в связи с оказанием бытовых услуг общих отделений бань Распоряжение Администрации ЗАТО г. Зеленогорска от 24.08.2018 № 1739-р О внесении изменений в распоряжение Администрации ЗАТО г. Зеленогорска от 24.08.2015 № 1623-р «О создании рабочей группы по формированию и реализации муниципальных программ города Зеленогорска» Распоряжение Администрации ЗАТО г. Зеленогорска от 24.08.2018 № 1738-р О подготовке и проведении городского праздника, посвященного Дню знаний, в 2018 году Постановление Администрации ЗАТО г. Зеленогорска от 21.08.2018 № 156-п Об утверждении Проекта организации дорожного движения на автомобильных дорогах общего пользования местного значения в г. Зеленогорске Красноярского края Распоряжение Администрации ЗАТО г. Зеленогорска от 17.08.2018 № 1664-р О внесении изменений в распоряжение Администрации ЗАТО г. Зеленогорска от 16.03.2017 № 536-р «Об утверждении состава комиссии по соблюдению требований к служебному поведению муниципальных служащих и урегулированию конфликтов интересов» Распоряжение Администрации ЗАТО г. Зеленогорска от 17.08.2018 № 1672-р О создании рабочей группы по вопросу размещения и реконструкции «Доски Почетных граждан» Распоряжение Администрации ЗАТО г. Зеленогорска от 16.08.2018 № 1663-р О внесении изменений в распоряжение Администрации ЗАТО г. Зеленогорска от 25.01.2013 № 113-р «О создании комиссии по предупреждению и ликвидации чрезвычайных ситуаций и обеспечению пожарной безопасности города» Постановление Администрации ЗАТО г. Зеленогорска от 16.08.2018 № 155-п О внесении изменений в Положение о комиссии по соблюдению требований к служебному поведению муниципальных служащих и урегулированию конфликтов интересов, утвержденное постановлением Администрации ЗАТО г. Зеленогорска от 09.03.2017 № 52-п Распоряжение Администрации ЗАТО г. Зеленогорска от 15.08.2018 № 1632-р О внесении изменений в распоряжение Администрации ЗАТО г. Зеленогорска от 13.02.2015 № 247-р «О создании рабочей группы по мониторингу и оперативному реагированию на изменение социально-экономического положения в городе Зеленогорске» Распоряжение Администрации ЗАТО г. Зеленогорска от 15.08.2018 № 1631-р О внесении изменений в распоряжение Администрации ЗАТО г. Зеленогорска от 20.06.2011 № 1277-р «О создании рабочей группы по организации межведомственного и межуровневого информационного взаимодействия при предоставлении муниципальных услуг» Распоряжение Администрации ЗАТО г. Зеленогорска от 15.08.2018 № 1630-р О внесении изменений в распоряжение Администрации ЗАТО г. Зеленогорска от 05.02.2014 № 219-р «Об утверждении состава и Положения о координационном комитете содействия занятости населения города Зеленогорска» Распоряжение Администрации ЗАТО г. Зеленогорска от 15.08.2018 № 1629-р О внесении изменений в распоряжение Администрации ЗАТО г. Зеленогорска от 24.07.2015 № 1422-р «О разработке Стратегии социально-экономического развития города Зеленогорска на период до 2030 года» Распоряжение Администрации ЗАТО г. Зеленогорска от 15.08.2018 № 1627-р О внесении изменений в распоряжение Администрации ЗАТО г. Зеленогорска от 11.02.2011 № 226-р «О создании комиссии по вопросам формирования реестра муниципальных услуг» Постановление Администрации ЗАТО г. Зеленогорска от 16.08.2018 № 154-п О внесении изменений в постановление главы Администрации ЗАТО г. Зеленогорска от 29.06.2007 № 272-п «Об Экономическом совете по развитию ЗАТО Зеленогорск» Постановление Администрации ЗАТО г. Зеленогорска от 15.08.2018 № 153-п О временном прекращении движения транспортных средств на участках автомобильных дорог общего пользования местного значения города Зеленогорска Постановление Администрации ЗАТО г. Зеленогорска от 14.08.2018 № 152-п Об утверждении Порядка предоставления субсидий в целях финансового обеспечения затрат, возникающих в связи с применением предельного индекса при оказании коммунальных услуг на реализацию отдельных мер по обеспечению ограничения платы граждан за коммунальные услуги Распоряжение Администрации ЗАТО г. Зеленогорска от 13.08.2018 № 1578-р О создании конкурсной комиссии по проведению открытого конкурса по отбору управляющей организации для управления многоквартирными домами Распоряжение Администрации ЗАТО г. Зеленогорска от 10.08.2018 № 1572-р О внесении изменений в распоряжение Администрации ЗАТО г. Зеленогорска от 07.12.2017 № 2772-р «Об утверждении состава и Положения о порядке работы комиссии по оказанию поддержки субъектам малого и среднего предпринимательства» Распоряжение Администрации ЗАТО г. Зеленогорска от 10.08.2018 № 1562-р О разработке Плана мероприятий по реализации Стратегии социально- экономического развития города Зеленогорска на период до 2030 года Постановление Администрации ЗАТО г. Зеленогорска от 06.08.2018 № 147-п О внесении изменений в постановление Администрации ЗАТО г. Зеленогорска от 03.10.2016 № 268-п «Об установлении режима работы муниципальных организаций торговли, общественного питания и бытового обслуживания» Постановление Администрации ЗАТО г. Зеленогорска от 01.08.2018 № 144-п О внесении изменений в постановление Администрации ЗАТО г. Зеленогорска от 28.07.2016 № 221-п «О видах обязательных работ, объектах, на которых они отбываются, и местах, в которых отбываются исправительные работы» Постановление Администрации ЗАТО г. Зеленогорска от 27.07.2018 № 143-п О внесении изменений в Положение о системе оплаты труда работников муниципальных бюджетных и казенных учреждений города Зеленогорска, утвержденное постановлением Администрации ЗАТО г. Зеленогорска от 22.11.2016 № 313-п Постановление Администрации ЗАТО г. Зеленогорска от 27.07.2018 № 139-п Об определении средней рыночной стоимости одного квадратного метра общей площади жилого помещения на территории г. Зеленогорска на III квартал 2018 года Постановление Администрации ЗАТО г. Зеленогорска от 27.07.2018 № 141-п Об утверждении Положения о порядке выдачи муниципальным учреждениям согласий на совершение сделок Постановление Администрации ЗАТО г. Зеленогорска от 27.07.2018 № 140-п О внесении изменений в постановление Администрации ЗАТО г. Зеленогорска от 22.01.2018 № 5-п «Об утверждении Порядка осуществления контроля за использованием по назначению и сохранностью муниципального имущества» Постановление Администрации ЗАТО г. Зеленогорска от 25.07.2018 № 138-п Об установлении расчетной стоимости 1 кв. м общей площади жилых помещений в целях признания граждан малоимущими на 3 квартал 2018 года Постановление Администрации ЗАТО г. Зеленогорска от 19.07.2018 № 135-п О внесении изменений в постановление Администрации ЗАТО г. Зеленогорска от 07.05.2018 № 75-п «О внесении изменений в Примерное положение об оплате труда работников муниципальных бюджетных и казенных учреждений города Зеленогорска, находящихся в ведении Управления образования Администрации ЗАТО г. Зеленогорска, утвержденное постановлением Администрации ЗАТО г. Зеленогорска от 05.12.2016 № 333-п» Распоряжение Администрации ЗАТО г. Зеленогорска от 18.07.2018 № 1321-р О внесении изменений в распоряжение Администрации ЗАТО г. Зеленогорска от 03.03.2014 № 370-р «Об утверждении Положения и состава городской жилищной комиссии» Постановление Администрации ЗАТО г. Зеленогорска от 18.07.2018 № 134-п Об утверждении отчета об исполнении местного бюджета города Зеленогорска за 1 полугодие 2018 года Распоряжение Администрации ЗАТО г. Зеленогорска от 16.07.2018 № 1306-р О внесении изменений в распоряжение Администрации ЗАТО г. Зеленогорска от 05.02.2016 № 188-р Постановление Администрации ЗАТО г. Зеленогорска от 17.07.2018 № 131-п О внесении изменений в постановление Администрации ЗАТО г. Зеленогорска от 11.01.2013 № 6-п «Об образовании избирательных участков на территории г. Зеленогорска и утверждения их границ для проведения голосования и подсчета голосов избирателей, участников референдума» Постановление Администрации ЗАТО г. Зеленогорска от 17.07.2018 № 133-п О временном прекращении движения транспортных средств по улицам города Зеленогорска 29.07.2018 Постановление Администрации ЗАТО г. Зеленогорска от 16.07.2018 № 132-п Об утверждении Регламента организации мониторинга общественно-политических, социально-экономических и иных процессов, оказывающих влияние на ситуацию в сфере противодействия терроризму и экстремизму на территории города Зеленогорска Распоряжение Администрации ЗАТО г. Зеленогорска от 10.07.2018 № 1274-р О внесении изменений в распоряжение Администрации ЗАТО г. Зеленогорска от 19.01.2018 № 87-р Распоряжение Администрации ЗАТО г. Зеленогорска от 10.07.2018 № 1273-р О внесении изменений в распоряжение Администрации ЗАТО г. Зеленогорска от 12.01.2018 № 27-р «Об утверждении состава и Порядка работы комиссии по приватизации муниципального имущества» Распоряжение Администрации ЗАТО г. Зеленогорска от 09.07.2018 № 1251-р О внесении изменений в распоряжение Администрации ЗАТО г. Зеленогорска от 14.03.2018№ 415-р Распоряжение Администрации ЗАТО г. Зеленогорска от 10.07.2018 № 1272-р О признании утратившими силу некоторых распоряжений Администрации ЗАТО г. Зеленогорска Распоряжение Администрации ЗАТО г. Зеленогорска от 09.07.2018 № 1261-р О передаче муниципального имущества, составляющего муниципальную казну города Зеленогорска в доверительное управление Распоряжение Администрации ЗАТО г. Зеленогорска от 09.07.2018 № 1257-р О внесении изменений в распоряжение Администрации ЗАТО г. Зеленогорска от 16.05.2017 № 1063-р Постановление Администрации ЗАТО г. Зеленогорска от 06.07.2018 № 130-п О временном прекращении движения транспортных средств по улицам города Зеленогорска 21.07.2018 Распоряжение Администрации ЗАТО г. Зеленогорска от 06.07.2018 № 1246-р О создании рабочей группы по координации мероприятий, связанных с установкой памятного камня на Кедровой аллее имени Казаченко Валентина Григорьевича Распоряжение Администрации ЗАТО г. Зеленогорска от 29.06.2018 № 1207-р О внесении изменений в распоряжение Администрации ЗАТО г. Зеленогорска от 24.04.2018 № 712-р «Об организации отдыха детей и их оздоровления в летний период 2018 года» Постановление Администрации ЗАТО г. Зеленогорска от 05.07.2018 № 128-п О проведении универсальной ярмарки ко Дню города Постановление Администрации ЗАТО г. Зеленогорска от 02.07.2018 № 127-п О признании утратившими силу отдельных постановлений Администрации ЗАТО г. Зеленогорска, касающихся перечней муниципального имущества, свободного от прав третьих лиц Постановление Администрации ЗАТО г. Зеленогорска от 06.07.2018 № 129-п О выделении и оборудовании специальных мест для размещения предвыборных печатных агитационных материалов на территории г. Зеленогорска Постановление Администрации ЗАТО г. Зеленогорска от 29.06.2018 № 125-п О внесении изменений в постановление Администрации ЗАТО г. Зеленогорска от 22.03.2016 № 69-п «Об утверждении структуры Управления образования Администрации ЗАТО г. Зеленогорска и Положений об отделах» Постановление Администрации ЗАТО г. Зеленогорска от 26.06.2018 № 124-п О признании утратившим силу постановления Администрации ЗАТО г. Зеленогорска от 18.06.2012 № 243-п Постановление Администрации ЗАТО г. Зеленогорска от 26.06.2018 № 123-п О внесении изменений в постановление Администрации ЗАТО г. Зеленогорска от 20.05.2016 № 120-п Распоряжение Администрации ЗАТО г. Зеленогорска от 21.06.2018 № 1155-р О внесении изменений в распоряжение Администрации ЗАТО г. Зеленогорска от 07.12.2017 № 2772-р Постановление Администрации ЗАТО г. Зеленогорска от 20.06.2018 № 114-п О признании утратившим силу постановления Администрации ЗАТО г. Зеленогорска от 31.10.2017 № 255-п Постановление Администрации ЗАТО г. Зеленогорска от 19.06.2018 № 113-п О внесении изменений в постановление Администрации ЗАТО г. Зеленогорска от 12.07.2011 № 248-п Постановление Администрации ЗАТО г. Зеленогорска от 21.06.2018 № 120-п Об осуществлении государственных полномочий по организации и обеспечению отдыха и оздоровления детей Постановление Администрации ЗАТО г. Зеленогорска от 21.06.2018 № 119-п О внесении изменений в постановление Администрации ЗАТО г. Зеленогорска от 14.02.2018 № 27-п Постановление Администрации ЗАТО г. Зеленогорска от 21.06.2018 № 121-п О внесении изменений в постановление Администрации ЗАТО г. Зеленогорска от 09.10.2015 № 254-п Распоряжение Администрации ЗАТО г. Зеленогорска от 21.06.2018 № 1154-р О внесении изменений в распоряжение Администрации ЗАТО г. Зеленогорска от 11.02.2011 № 226-р «О создании комиссии по вопросам формирования реестра муниципальных услуг» Распоряжение Администрации ЗАТО г. Зеленогорска от 21.06.2018 № 1153-р О внесении изменений в распоряжение Администрации ЗАТО г. Зеленогорска от 24.07.2015 № 1422-р Распоряжение Администрации ЗАТО г. Зеленогорска от 20.06.2018 № 1139-р О внесении изменений в распоряжение Администрации ЗАТО г. Зеленогорска от 13.02.2015 № 247-р Распоряжение Администрации ЗАТО г. Зеленогорска от 20.06.2018 № 1138-р О признании утратившими силу некоторых распоряжений Администрации ЗАТО г. Зеленогорска Распоряжение Администрации ЗАТО г. Зеленогорска от 20.06.2018 № 1133-р О внесении изменений в распоряжение Администрации ЗАТО г. Зеленогорска от 20.06.2011 № 1277-р Распоряжение Администрации ЗАТО г. Зеленогорска от 19.06.2018 № 1118-р О внесении изменений в распоряжение Администрации ЗАТО г. Зеленогорска от 05.02.2014 № 219-р Постановление Администрации ЗАТО г. Зеленогорска от 21.06.2018 № 122-п О внесении изменений в постановление главы Администрации ЗАТО г. Зеленогорска от 29.06.2007 № 272-п «Об Экономическом совете по развитию ЗАТО Зеленогорск» Постановление Администрации ЗАТО г. Зеленогорска от 21.06.2018 № 118-п О внесении изменений в муниципальную программу «Формирование современной городской среды в городе Зеленогорске» Постановление Администрации ЗАТО г. Зеленогорска от 21.06.2018 № 117-п О подготовке к отопительному периоду 2018 – 2019 годов Постановление Администрации ЗАТО г. Зеленогорска от 15.06.2018 № 112-п О разрешении использования в 2018 году в целях купания и отдыха людей озера «Ближнее» и озера «Лебединое» Постановление Администрации ЗАТО г. Зеленогорска от 13.06.2018 № 109-п Об утверждении Положения о порядке осуществления контроля за соблюдением Федерального закона от 05.04.2013 № 44-ФЗ органом внутреннего муниципального финансового контроля Распоряжение Администрации ЗАТО г. Зеленогорска от 14.06.2018 № 1082-р Об утверждении Перечня муниципального имущества, свободного от прав третьих лиц и предназначенного для предоставления социально ориентированным некоммерческим организациям Распоряжение Администрации ЗАТО г. Зеленогорска от 14.06.2018 № 1081-р Об утверждении Перечня муниципального имущества, свободного от прав третьих лиц и предназначенного для предоставления субъектам среднего и малого предпринимательства Постановление Администрации ЗАТО г. Зеленогорска от 13.06.2018 № 111-п Об утверждении структуры и Положений об отделах Управления социальной защиты населения Администрации ЗАТО г. Зеленогорска Постановление Администрации ЗАТО г. Зеленогорска от 09.06.2018 № 107-п Об утверждении Примерного положения об оплате труда работников муниципальных бюджетных и казенных учреждений социального обслуживания Постановление Администрации ЗАТО г. Зеленогорска от 13.06.2018 № 110-п Об установлении стоимости гарантированного перечня услуг по погребению, предоставляемых МУП КБУ Постановление Администрации ЗАТО г. Зеленогорска от 09.06.2018 № 106-п О внесении изменений в постановление Администрации ЗАТО г. Зеленогорска от 22.03.2016 № 68-п Постановление Администрации ЗАТО г. Зеленогорска от 09.06.2018 № 108-п О временных ограничении и прекращении движения транспортных средств по улицам города Зеленогорска 22.06.2018, 23.06.2018 Постановление Администрации ЗАТО г. Зеленогорска от 08.06.2018 № 105-п О внесении изменений в постановление Администрации ЗАТО г. Зеленогорска от 25.05.2018 № 96-п Распоряжение Администрации ЗАТО г. Зеленогорска от 07.06.2018 № 1050-р О внесении изменений в распоряжение Администрации ЗАТО г. Зеленогорска от 13.08.2013 № 1967-р Распоряжение Администрации ЗАТО г. Зеленогорска от 07.06.2018 № 1049-р О внесении изменений в распоряжение от 17.10.2013 № 2536-р «Об утверждении состава и Порядка работы комиссии по проверке состояния защитных сооружений гражданской обороны» Постановление Администрации ЗАТО г. Зеленогорска от 06.06.2018 № 103-п О внесении изменений в программу «Защита населения и территории г. Зеленогорска от ЧС природного и техногенного характера», утвержденную постановлением от 12.11.2015 № 286-п Постановление Администрации ЗАТО г. Зеленогорска от 06.06.2018 № 102-п О внесении изменений в программу «Муниципальное имущество и земельные ресурсы г. Зеленогорска», утвержденную постановлением Администрации ЗАТО г. Зеленогорска от 19.12.2017 № 323-п Распоряжение Администрации ЗАТО г. Зеленогорска от 04.06.2018 № 999-р О мероприятиях, связанных с изменением структуры Администрации ЗАТО г. Зеленогорска Распоряжение Администрации ЗАТО г. Зеленогорска от 01.06.2018 № 983-р Постановление Администрации ЗАТО г. Зеленогорска от 29.05.2018 № 101-п Постановление Администрации ЗАТО г. Зеленогорска от 29.05.2018 № 99-п О внесении изменений в муниципальную программу «Развитие образования в городе Зеленогорске», утвержденную постановлением Администрации ЗАТО г. Зеленогорска от 12.11.2015 № 295-п Постановление Администрации ЗАТО г. Зеленогорска от 29.05.2018 № 98-п Постановление Администрации ЗАТО г. Зеленогорска от 29.05.2018 № 100-п О временном ограничении движения транспортных средств по улицам города Зеленогорска 12.06.2018 Распоряжение Администрации ЗАТО г. Зеленогорска от 25.05.2018 № 933-р Об окончании отопительного периода 2017 – 2018 годов Постановление Администрации ЗАТО г. Зеленогорска от 23.05.2018 № 93-п Постановление Администрации ЗАТО г. Зеленогорска от 25.05.2018 № 97-п Постановление Администрации ЗАТО г. Зеленогорска от 25.05.2018 № 96-п О присвоении наименований элементу планировочной структуры и элементу улично-дорожной сети, расположенных в парковой зоне обводненных карьеров Постановление Администрации ЗАТО г. Зеленогорска от 24.05.2018 № 94-п Распоряжение Администрации ЗАТО г. Зеленогорска от 22.05.2018 № 910-р Постановление Администрации ЗАТО г. Зеленогорска от 24.05.2018 № 95-п Постановление Администрации ЗАТО г. Зеленогорска от 23.05.2018 № 92-п О признании утратившим силу постановления Администрации ЗАТО г. Зеленогорска от 16.02.2011 № 56-п Постановление Администрации ЗАТО г.Зеленогорска от 22.05.2018 № 91-п Постановление Администрации ЗАТО г. Зеленогорска от 21.05.2018 № 88-п О внесении изменений в постановление Администрации ЗАТО г. Зеленогорска от 23.09.2016 № 265-п «О проведении открытого городского конкурса «Предприниматель года»» Постановление Администрации ЗАТО г. Зеленогорска от 21.05.2018 № 90-п О временном ограничении движения транспортных средств по улицам города Зеленогорска с 02.06.2018 по 21.06.2018 Распоряжение Администрации ЗАТО г. Зеленогорска от 18.05.2018 № 885-р О мероприятиях по организации обустройства мест массового отдыха людей на водных объектах для купания и отдыха в 2018 году Распоряжение Администрации ЗАТО г. Зеленогорска от 17.05.2018 № 880-р О внесении изменений в распоряжение Администрации ЗАТО г. Зеленогорска от 17.11.2015 № 2350-р Постановление Администрации ЗАТО г. Зеленогорска от 18.05.2018 № 87-п О внесении изменений в постановление Администрации ЗАТО г. Зеленогорска от 02.02.2016 № 23-п Распоряжение Администрации ЗАТО г. Зеленогорска от 16.05.2018 № 862-р Распоряжение Администрации ЗАТО г. Зеленогорска от 15.05.2018 № 845-р О подготовке муниципальных бюджетных образовательных учреждений г. Зеленогорска к новому 2018 - 2019 учебному году Постановление Администрации ЗАТО г. Зеленогорска от 17.05.2018 № 86-п Об утверждении Порядка назначения премий Главы ЗАТО г. Зеленогорска одаренным обучающимся муниципальных бюджетных образовательных учреждений г. Зеленогорска Распоряжение Администрации ЗАТО г. Зеленогорска от 15.05.2018 № 846-р О внесении изменений в распоряжение Администрации ЗАТО г. Зеленогорска от 18.12.2012 № 2539-р «Об утверждении состава и Порядка работы муниципальной межведомственной комиссии по снижению задолженности по налогам, сборам и иным обязательным платежам» Распоряжение Администрации ЗАТО г. Зеленогорска от 11.05.2018 № 828-р О внесении изменений в распоряжение Администрации ЗАТО г. Зеленогорска от 25.05.2016 № 994-р «Об утверждении Положения и состава балансовой комиссии» Распоряжение Администрации ЗАТО г. Зеленогорска от 11.05.2018 № 827-р О внесении изменений в распоряжение Администрации ЗАТО г. Зеленогорска от 24.08.2015 № 1623-р «О создании рабочей группы по формированию и реализации муниципальных программ города Зеленогорска» Постановление Администрации ЗАТО г. Зеленогорска от 11.05.2018 № 84-п О внесении изменений в Административный регламент осуществления муниципального жилищного контроля на территории г. Зеленогорска, утвержденный постановлением Администрации ЗАТО г. Зеленогорска от 30.06.2017 № 151-п Постановление Администрации ЗАТО г. Зеленогорска от 10.05.2018 № 81-п О внесении изменений в муниципальную программу «Управление муниципальными финансами города Зеленогорска», утвержденную постановлением Администрации ЗАТО г. Зеленогорска от 12.11.2015 № 287-п Постановление Администрации ЗАТО г. Зеленогорска от 10.05.2018 № 79-п О внесении изменений в муниципальную программу «Развитие физической культуры и спорта в городе Зеленогорске», утвержденную постановлением Администрации ЗАТО г. Зеленогорска от 12.11.2015 № 284-п Постановление Администрации ЗАТО г. Зеленогорска от 07.05.2018 № 75-п О внесении изменений в Примерное положение об оплате труда работников муниципальных бюджетных и казенных учреждений города Зеленогорска, находящихся в ведении Управления образования Администрации ЗАТО г. Зеленогорска, утвержденное постановлением Администрации ЗАТО г. Зеленогорска от 05.12.2016 № 333-п Постановление Администрации ЗАТО г. Зеленогорска от 07.05.2018 № 76-п О внесении изменений в муниципальную программу «Развитие культуры города Зеленогорска», утвержденную постановлением Администрации ЗАТО г. Зеленогорска от 12.11.2015 № 288-п Постановление Администрации ЗАТО г. Зеленогорска от 04.05.2018 № 74-п О внесении изменений в постановление Администрации ЗАТО г. Зеленогорска от 03.10.2016 № 268-п «Об установлении режима работы муниципальных организаций торговли, общественного питания и бытового обслуживания» Распоряжение Администрации ЗАТО г. Зеленогорска от 24.04.2018 № 712-р Об организации отдыха детей и их оздоровления в летний период 2018 года Постановление Администрации ЗАТО г. Зеленогорска от 03.05.2018 № 73-п Об утверждении формы реестра муниципальных служащих Постановление Администрации ЗАТО г. Зеленогорска от 03.05.2018 № 72-п О внесении изменений в муниципальную программу «Охрана окружающей среды и защита городских лесов на территории города Зеленогорска» утвержденную постановлением Администрации ЗАТО г. Зеленогорска от 12.11.2015 № 289-п Постановление Администрации ЗАТО г. Зеленогорска от 27.04.2018 № 71-п О внесении изменений в постановление Администрации ЗАТО г. Зеленогорска от 16.05.2017 № 105-п «Об утверждении краткосрочного плана реализации региональной программы капитального ремонта общего имущества в многоквартирных домах, расположенных на территории города Зеленогорска, на 2017-2019 годы» Распоряжение Администрации ЗАТО г. Зеленогорска от 25.04.2018 № 714-р О порядке подготовки г. Зеленогорска к пожароопасному сезону 2018 года Постановление Администрации ЗАТО г. Зеленогорска от 25.04.2018 № 70-п О внесении изменений в муниципальную программу «Развитие транспортной системы в городе Зеленогорске», утвержденную постановлением Администрации ЗАТО г. Зеленогорска от 12.11.2015 № 291-п Постановление Администрации ЗАТО г. Зеленогорска от 23.04.2018 № 68-п Об определении средней рыночной стоимости одного квадратного метра общей площади жилого помещения на территории г. Зеленогорска на II квартал 2018 года Постановление Администрации ЗАТО г. Зеленогорска от 23.04.2018 № 69-п Об установлении расчетной стоимости 1 кв. м общей площади жилых помещений в целях признания граждан малоимущими на 2 квартал 2018 года Постановление Администрации ЗАТО г. Зеленогорска от 13.04.2018 № 59-п Об актуализации схемы теплоснабжения города Зеленогорска Постановление Администрации ЗАТО г. Зеленогорска от 18.04.2018 № 66-п Об утверждении отчета об исполнении местного бюджета города Зеленогорска за 1 квартал 2018 года Постановление Администрации ЗАТО г. Зеленогорска от 18.04.2018 № 64-п О внесении изменений в Порядок предоставления субсидий субъектам малого и среднего предпринимательства, утверждённый постановлением Администрации ЗАТО г. Зеленогорска от 18.08.2017 № 189-п Постановление Администрации ЗАТО г. Зеленогорска от 18.04.2018 № 63-п О внесении изменений в Положение о проведении аттестации муниципальных служащих Администрации ЗАТО г. Зеленогорска, утвержденное постановлением Администрации ЗАТО г. Зеленогорска от 21.03.2016 № 66-п Распоряжение Администрации ЗАТО г. Зеленогорска от 13.04.2018 № 632-р Об организации работы по составлению списков кандидатов в присяжные заседатели по Красноярскому края на 2018-2022 годы Постановление Администрации ЗАТО г. Зеленогорска от 18.04.2018 № 67-п О временном ограничении и прекращении движения транспортных средств по улицам города Зеленогорска 01.05.2018 Постановление Администрации ЗАТО г. Зеленогорска от 18.04.2018 № 65-п О временном ограничении движения транспортных средств по улицам города Зеленогорска 09.05.2018 Распоряжение Администрации ЗАТО г. Зеленогорска от 16.04.2018 № 654-р О внесении изменений в распоряжение Администрации ЗАТО г. Зеленогорска от 13.09.2016 № 1845-р «Об антинаркотической комиссии города Зеленогорска» Постановление Администрации ЗАТО г. Зеленогорска от 18.04.2018 № 62-п О внесении изменений в муниципальную программу «Развитие молодежной политики города Зеленогорска», утвержденную постановлением Администрации ЗАТО г. Зеленогорска от 12.11.2015 № 296-п Распоряжение Администрации ЗАТО г. Зеленогорска от 12.04.2018 № 631-р О внесении изменений в распоряжение Администрации ЗАТО г. Зеленогорска от 05.02.2014 № 219-р «Об утверждении состава и Положения о координационном комитете содействия занятости населения города Зеленогорска» Распоряжение Администрации ЗАТО г. Зеленогорска от 13.04.2018 № 633-р О подготовке и проведении работ в рамках городской экологической акции «Зеленая весна -2018» Постановление Администрации ЗАТО г. Зеленогорска от 10.04.2018 № 58-п О признании утратившими силу некоторых постановлений Администрации ЗАТО г. Зеленогорска по вопросам благоустройства территорий Постановление Администрации ЗАТО г. Зеленогорска от 10.04.2018 № 55-п О внесении изменений в постановление Администрации ЗАТО г. Зеленогорска от 21.02.2017 № 41-п «Об установлении квалификационных требований для замещения должностей муниципальной службы в Администрации ЗАТО г. Зеленогорска» Постановление Администрации ЗАТО г. Зеленогорска от 06.04.2018 № 54-п О внесении изменений в Порядок формирования и реализации муниципальных программ, утвержденный постановлением Администрации ЗАТО г. Зеленогорска от 06.11.2015 № 275-п Постановление Администрации ЗАТО г. Зеленогорска от 06.04.2018 № 53-п Об утверждении Порядка предоставления субсидий в целях возмещения затрат в связи с оказанием услуг по содержанию жилых помещений и предоставлением коммунальных услуг до заселения жилых помещений муниципального жилищного фонда Постановление Администрации ЗАТО г. Зеленогорска от 06.04.2018 № 52-п Об установлении временного ограничения движения транспортных средств по автомобильным дорогам общего пользования местного значения ЗАТО Зеленогорск в весенний период 2018 года Постановление Администрации ЗАТО г. Зеленогорска от 05.04.2018 № 51-п Об установлении стоимости гарантированного перечня услуг по погребению, предоставляемых МУП КБУ Распоряжение Администрации ЗАТО г. Зеленогорска от 03.04.2018 №551-р Об организации работы «горячей телефонной линии» по вопросам охраны труда Постановление Администрации ЗАТО г. Зеленогорска от 30.03.2018 № 49-п Об утверждении Положения об отделе имущественных отношений и Положения о земельном отделе Комитета по управлению имуществом Администрации ЗАТО г. Зеленогорска Постановление Администрации ЗАТО г. Зеленогорска от 26.03.2018 № 45-п О начале приема предложений от населения о комплексе мероприятий, реализация которых целесообразна на общественной территории, отобранной для участия во Всероссийском конкурсе лучших проектов создания комфортной городской среды Постановление Администрации ЗАТО г. Зеленогорска от 27.03.2018 № 46-п О внесении изменений в муниципальную программу «Формирование современной городской среды в городе Зеленогорске», утвержденную постановлением Администрации ЗАТО г. Зеленогорска от 31.10.2017 № 257-п Распоряжение Администрации ЗАТО г. Зеленогорска от 16.03.2018 № 455-р Об утверждении Порядка оплаты арендаторами расходов в отношении имущества, составляющего муниципальную казну города Зеленогорска Постановление Администрации ЗАТО г. Зеленогорска от 23.03.2018 № 44-п Об утверждении Примерного положения об оплате труда работников муниципальных бюджетных учреждений дополнительного образования города Зеленогорска, находящихся в ведении Муниципального казенного учреждения «Комитет по делам культуры и молодежной политики города Зеленогорска» Постановление Администрации ЗАТО г. Зеленогорска от 22.03.2018 № 43-п О проведении специализированной ярмарки цветов к «Родительскому дню (Радоница)» Постановление Администрации ЗАТО г. Зеленогорска от 20.03.2018 № 42-п О признании утратившими силу некоторых постановлений Администрации ЗАТО г. Зеленогорска по вопросам проведения независимой оценки качества Распоряжение Администрации ЗАТО г. Зеленогорска от 20.03.2018 № 471-р О признании утратившими силу некоторых распоряжений Администрации ЗАТО г. Зеленогорска по вопросам проведения независимой оценки качества Распоряжение Комитета по управлению имуществом Администрации ЗАТО г. Зеленогорска от 15.03.2018 № 202-р О внесении изменений в распоряжение Комитета по управлению имуществом Администрации ЗАТО г. Зеленогорска от 27.02.2018 № 175-р «Об организации проведения аукциона на право заключения договоров аренды земельных участков, государственная собственность на которые не разграничена» Распоряжение Комитета по управлению имуществом Администрации ЗАТО г. Зеленогорска от 15.03.2018 № 201-р Об организации проведения аукциона на право заключения договоров аренды земельных участков, государственная собственность на которые не разграничена Постановление Администрации ЗАТО г. Зеленогорска от 16.03.2018 № 40-п О назначении голосования по отбору общественных территорий, подлежащих в рамках реализации муниципальной программы «Формирование комфортной городской среды в городе Зеленогорске» благоустройству в первоочередном порядке в 2018 году Распоряжение Администрации ЗАТО г. Зеленогорска от 15.03.2018 № 429-р О проведении в 2019 году капитального ремонта общего имущества в многоквартирных домах, расположенных на территории города Зеленогорска, собственники помещений в которых не приняли решение о проведении такого ремонта Распоряжение Администрации ЗАТО г. Зеленогорска от 14.03.2018 № 415-р Об утверждении состава и Положения о порядке работы комиссии по урегулированию разногласий, возникших при проведении оценки регулирующего воздействия проектов муниципальных актов Постановление Администрации ЗАТО г. Зеленогорска от 12.03.2018 № 38-п О признании утратившими силу отдельных муниципальных правовых актов Администрации ЗАТО г. Зеленогорска в сфере оплаты труда Распоряжение Администрации ЗАТО г. Зеленогорска от 07.03.2018 № 394-р О противопаводковых мероприятиях в 2018 году Постановление Администрации ЗАТО г. Зеленогорска от 10.03.2018 № 41-п Об участии во Всероссийском конкурсе по отбору лучших проектов создания комфортной городской среды Постановление Администрации ЗАТО г. Зеленогорска от 05.03.2018 № 37-п О признании утратившим силу постановления главы администрации ЗАТО г. Зеленогорска от 04.09.2008 № 400-п «Об утверждении форм документов, необходимых для предоставления муниципальным служащим права на пенсию за выслугу лет» Постановление Администрации ЗАТО г. Зеленогорска от 22.02.2018 № 33-п Об утверждении Порядка формирования и деятельности территориальных счетных комиссий для подведения итогов рейтингового голосования Распоряжение Администрации ЗАТО г. Зеленогорска от 26.02.2018 № 340-р О проведении общественных обсуждений материалов обоснования лицензий на осуществление деятельности по объекту «Фабрикационное производство, интегрированное в действующее разделительное производство АО «ПО ЭХЗ» Распоряжение Администрации ЗАТО г. Зеленогорска от 26.02.2018 № 339-р О проведении общественных обсуждений материалов обоснования лицензий на осуществление деятельности по размещению, сооружению и эксплуатации объекта «Пункт хранения ТРО» АО «ПО ЭХЗ» Постановление Администрации ЗАТО г. Зеленогорска от 26.02.2018 № 35-п О внесении изменений в Положение о городском звене территориальной подсистемы единой государственной системы предупреждения и ликвидации чрезвычайных ситуаций, утвержденное постановлением Администрации ЗАТО г. Зеленогорска от 13.12.2012 № 470-п Распоряжение Администрации ЗАТО г. Зеленогорска от 21.02.2018 № 316-р О принятии муниципальных правовых актов по вопросам осуществления государственных полномочий в сфере опеки и попечительства в отношении несовершеннолетних граждан Распоряжение Администрации ЗАТО г. Зеленогорска от 21.02.2018 № 328-р О внесении изменений в распоряжение Администрации ЗАТО г. Зеленогорска от 07.11.2012 № 2277-р «Об утверждении состава и Порядка работы комиссии по обеспечению безопасности дорожного движения» Постановление Администрации ЗАТО г. Зеленогорска от 20.02.2018 № 30-п О внесении изменений в муниципальную программу «Формирование современной городской среды в городе Зеленогорске», утвержденную постановлением Администрации ЗАТО г. Зеленогорска от 31.10.2017 № 257-п Постановление Администрации ЗАТО г. Зеленогорска от 16.02.2018 № 29-п Об утверждении перечня общественных территорий, отобранных для проведения голосования по общественным территориям в г. Зеленогорске Распоряжение Администрации ЗАТО г. Зеленогорска от 15.02.2018 № 293-р Об утверждении перечня финансовых, экономических, социальных и иных показателей развития малого предпринимательства на территории города Зеленогорска Постановление Администрации ЗАТО г. Зеленогорска от 14.02.2018 № 27-п Об утверждении Положения о порядке подготовки, согласования, подписания, регистрации и хранения муниципальных контрактов, договоров и соглашений, заключаемых от имени муниципального образования город Зеленогорск Красноярского края или Администрации ЗАТО г. Зеленогорска Постановление Администрации ЗАТО г. Зеленогорска от 07.02.2018 № 22-п О проведении специализированной ярмарки «Весенняя ярмарка цветов, посвященная Международному женскому дню 8 марта» Постановление Администрации ЗАТО г. Зеленогорска от 07.02.2018 № 21-п Об утверждении Порядка предоставления дополнительных мер социальной поддержки и социальной помощи для отдельных категорий граждан на 2018 год Распоряжение Администрации ЗАТО г. Зеленогорска от 02.02.2018 № 217-р О внесении изменений в распоряжение Администрации ЗАТО г. Зеленогорска от 14.04.2014 № 728-р «Об утверждении состава и Порядка работы территориальной психолого-медико-педагогической комиссии г. Зеленогорска» Постановление Администрации ЗАТО г. Зеленогорска от 30.01.2018 № 20-п Об определении средней рыночной стоимости одного квадратного метра общей площади жилого помещения на территории г. Зеленогорска на I квартал 2018 года Распоряжение Администрации ЗАТО г. Зеленогорска от 30.01.2018 № 185-р О внесении изменений в распоряжение Администрации ЗАТО г. Зеленогорска от 21.05.2014 № 1013-р «Об организации и деятельности комиссии по восстановлению прав реабилитированных жертв политических репрессий» Постановление Администрации ЗАТО г. Зеленогорска от 29.01.2018 № 17-п Об установлении расчетной стоимости 1 кв. м общей площади жилых помещений в целях признания граждан малоимущими на 1 квартал 2018 года Распоряжение Администрации ЗАТО г. Зеленогорска от 25.01.2018 № 124-р О внесении изменений в распоряжение Администрации ЗАТО г. Зеленогорска от 13.09.2016 № 1845-р «Об антинаркотической комиссии города Зеленогорска» Постановление Администрации ЗАТО г. Зеленогорска от 25.01.2018 № 14-п О внесении изменений в постановление Администрации ЗАТО г. Зеленогорска от 11.01.2013 № 6-п «Об образовании избирательных участков на территории г. Зеленогорска и утверждения их границ для проведения голосования и подсчета голосов избирателей, участников референдума» Распоряжение Администрации ЗАТО г. Зеленогорска от 25.01.2018 № 140-р О создании служб городского (муниципального) звена территориальной подсистемы единой государственной системы предупреждения и ликвидации чрезвычайных ситуаций Постановление Администрации ЗАТО г. Зеленогорска от 24.01.2018 № 13-п О внесении изменений в Административный регламент предоставления муниципальной услуги «Предоставление земельных участков в безвозмездное пользование», утвержденный постановлением Администрации ЗАТО г. Зеленогорска от 01.07.2016 № 200-п Постановление Администрации ЗАТО г. Зеленогорска от 24.01.2018 № 12-п О внесении изменений в Административный регламент предоставления муниципальной услуги «Предоставление земельных участков в аренду без проведения торгов, за исключением предоставления земельных участков, на которых расположены здания, сооружения, а также земельных участков для индивидуального жилищного строительства, ведения личного подсобного хозяйства, садоводства, дачного хозяйства, для осуществления крестьянским (фермерским) хозяйством его деятельности», утвержденный постановлением Администрации ЗАТО г. Зеленогорска от 01.07.2016 № 198-п Постановление Администрации ЗАТО г. Зеленогорска от 24.01.2018 № 11-п О внесении изменений в Административный регламент предоставления муниципальной услуги «Предварительное согласование предоставления земельных участков для индивидуального жилищного строительства, ведения личного подсобного хозяйства, садоводства, дачного хозяйства, для осуществления крестьянским (фермерским) хозяйством его деятельности», утвержденный постановлением Администрации ЗАТО г. Зеленогорска от 01.07.2016 № 197-п Постановление Администрации ЗАТО г. Зеленогорска от 24.01.2018 № 10-п О внесении изменений в Административный регламент предоставления муниципальной услуги «Предоставление земельных участков в аренду без проведения торгов для индивидуального жилищного строительства, ведения личного подсобного хозяйства, садоводства, дачного хозяйства, для осуществления крестьянским (фермерским) хозяйством его деятельности», утвержденный постановлением Администрации ЗАТО г. Зеленогорска от 01.07.2016 № 196-п Постановление Администрации ЗАТО г. Зеленогорска от 24.01.2018 № 9-п О внесении изменений в Административный регламент предоставления муниципальной услуги «Предварительное согласование предоставления земельных участков, за исключением предварительного согласования предоставления земельных участков для индивидуального жилищного строительства, ведения личного подсобного хозяйства, садоводства, дачного хозяйства, для осуществления крестьянским (фермерским) хозяйством его деятельности», утвержденный постановлением Администрации ЗАТО г. Зеленогорска от 01.07.2016 № 195-п Постановление Администрации ЗАТО г. Зеленогорска от 24.01.2018 № 8-п О внесении изменений в Административный регламент предоставления муниципальной услуги «Предоставление земельных участков в постоянное (бессрочное) пользование», утвержденный постановлением Администрации ЗАТО г. Зеленогорска от 01.07.2016 № 194-п Постановление Администрации ЗАТО г. Зеленогорска от 24.01.2018 № 7-п О внесении изменений в Административный регламент предоставления муниципальной услуги «Прекращение прав на земельные участки (пожизненное наследуемое владение, постоянное (бессрочное) пользование)», утвержденный постановлением Администрации ЗАТО г. Зеленогорска от 01.07.2016 № 193-п Постановление Администрации ЗАТО г. Зеленогорска от 24.01.2018 № 6-п О внесении изменений в Административный регламент предоставления муниципальной услуги «Предоставление в аренду без проведения торгов земельных участков, на которых расположены здания, сооружения», утвержденный постановлением Администрации ЗАТО г. Зеленогорска от 01.07.2016 № 192-п Постановление Администрации ЗАТО г. Зеленогорска от 22.01.2018 № 5-п Об утверждении Порядка осуществления контроля за использованием по назначению и сохранностью муниципального имущества Распоряжение Администрации ЗАТО г. Зеленогорска от 22.01.2018 № 102-р О внесении изменений в распоряжение Администрации ЗАТО г. Зеленогорска от 26.02.2013 № 354-р «Об утверждении состава и Порядкаработыпротивопаводковой комиссии» Постановление Администрации ЗАТО г. Зеленогорска от 22.01.2018 № 4-п О выделении и оборудовании специальных мест для размещения предвыборных печатных агитационных материалов на территории каждого избирательного участка в период подготовки и проведения выборов Президента Российской Федерации Распоряжение Администрации ЗАТО г. Зеленогорска от 19.01.2018 № 87-р Об утверждении состава и Порядка работы аукционной (конкурсной) комиссии по приватизации муниципального имущества Постановление Администрации ЗАТО г. Зеленогорска от 29.12.2017 № 362-п О внесении изменений в постановление Администрации ЗАТО г. Зеленогорска от 12.11.2015 № 296-п «Об утверждении муниципальной программы «Развитие молодежной политики города Зеленогорска» Распоряжение Администрации ЗАТО г. Зеленогорска от 12.01.2018 № 27-р Об утверждении состава и Порядка работы комиссии по приватизации муниципального имущества Распоряжение Администрации ЗАТО г. Зеленогорска от 16.01.2018 № 29-р Об утверждении Плана правовой работы с населением города в 2018 – 2020 годах Постановление Администрации ЗАТО г. Зеленогорска от 29.12.2017 № 361-п Об утверждении Порядка организации и проведения голосования по отбору общественных территорий, подлежащих в рамках реализации муниципальной программы «Формирование современной городской среды в городе Зеленогорске» на 2018-2022 годы благоустройству в первоочередном порядке в 2018 году Постановление Администрации ЗАТО г. Зеленогорска от 09.01.2018 № 1-п О закреплении муниципальных бюджетных образовательных учреждений г. Зеленогорска за конкретными территориями г. Зеленогорска Постановление Администрации ЗАТО г. Зеленогорска от 29.12.2017 № 360-п Об утверждении Порядка общественного обсуждения проекта муниципальной программы (проекта изменений, которые вносятся в действующую муниципальную программу) «Формирование современной городской среды в городе Зеленогорске» на 2018-2022 годы Постановление Администрации ЗАТО г. Зеленогорска от 29.12.2017 № 359-п О внесении изменений в постановление Администрации ЗАТО г. Зеленогорска от 12.11.2015 № 293-п «Об утверждении муниципальной программы «Реформирование и модернизация жилищно-коммунального хозяйства и повышение энергетической эффективности в городе Зеленогорске» Постановление Администрации ЗАТО г. Зеленогорска от 29.12.2017 № 357-п О внесении изменений в муниципальную программу «Реформирование и модернизация жилищно-коммунального хозяйства и повышение энергетической эффективности в городе Зеленогорске», утвержденную постановлением Администрации ЗАТО г. Зеленогорска от 12.11.2015 № 293-п Постановление Администрации ЗАТО г. Зеленогорска от 29.12.2017 № 356-п О внесении изменений в постановление Администрации ЗАТО г. Зеленогорска от 31.10.2017 № 257-п «Об утверждении муниципальной программы «Формирование современной городской среды в городе Зеленогорске» Постановление Администрации ЗАТО г. Зеленогорска от 29.12.2017 № 345-п О внесении изменений в постановление Администрации ЗАТО г. Зеленогорска от 12.11.2015 № 288-п «Об утверждении муниципальной программы «Развитие культуры города Зеленогорска» Постановление Администрации ЗАТО г. Зеленогорска от 29.12.2017 № 344-п О внесении изменений в муниципальную программу «Развитие культуры города Зеленогорска», утвержденную постановлением Администрации ЗАТО г. Зеленогорска от 12.11.2015 № 288-п Постановление Администрации ЗАТО г. Зеленогорска от 29.12.2017 № 352-п О внесении изменений в муниципальную программу «Развитие малого и среднего предпринимательства в городе Зеленогорске», утвержденную постановлением Администрации ЗАТО г. Зеленогорска от 29.09.2017 № 222-п Постановление Администрации ЗАТО г. Зеленогорска от 29.12.2017 № 358-п О внесении изменений в постановление Администрации ЗАТО г. Зеленогорска от 12.11.2015 № 295-п «Об утверждении муниципальной программы «Развитие образования в городе Зеленогорске» Постановление Администрации ЗАТО г. Зеленогорска от 29.12.2017 № 355-п О внесении изменений в муниципальную программу «Развитие образования в городе Зеленогорске», утвержденную постановлением Администрации ЗАТО г. Зеленогорска от 12.11.2015 № 295-п Постановление Администрации ЗАТО г. Зеленогорска от 29.12.2017 № 354-п О внесении изменений в муниципальную программу «Развитие молодежной политики города Зеленогорска», утвержденную постановлением Администрации ЗАТО г. Зеленогорска от 12.11.2015 № 296-п Постановление Администрации ЗАТО г. Зеленогорска от 29.12.2017 № 353-п Об утверждении Перечня муниципальных услуг, предоставляемых Администрацией ЗАТО г. Зеленогорска в КГБУ «МФЦ» в городе Зеленогорске Постановление Администрации ЗАТО г. Зеленогорска от 29.12.2017 № 350-п О внесении изменений в муниципальную программу «Капитальное строительство и капитальный ремонт в городе Зеленогорске», утвержденную постановлением Администрации ЗАТО г. Зеленогорска от 12.11.2015 № 292-п Постановление Администрации ЗАТО г. Зеленогорска от 29.12.2017 № 349-п О внесении изменений в муниципальную программу «Развитие транспортной системы в городе Зеленогорске», утвержденную постановлением Администрации ЗАТО г. Зеленогорска от 12.11.2015 № 291-п Постановление Администрации ЗАТО г. Зеленогорска от 29.12.2017 № 348-п О внесение изменений в постановление Администрации ЗАТО г. Зеленогорска от 12.11.2015 № 284-п «Об утверждении муниципальной программы «Развитие физической культуры и спорта в городе Зеленогорске» Постановление Администрации ЗАТО г. Зеленогорска от 29.12.2017 № 347-п О внесении изменений в муниципальную программу «Развитие физической культуры и спорта в городе Зеленогорске», утвержденную постановлением Администрации ЗАТО г. Зеленогорска от 12.11.2015 № 284-п Постановление Администрации ЗАТО г. Зеленогорска от 29.12.2017 № 346-п О внесении изменений в постановление Администрации ЗАТО г. Зеленогорска от 16.05.2017 № 105-п «Об утверждении краткосрочного плана реализации региональной программы капитального ремонта общего имущества в многоквартирных домах, расположенных на территории города Зеленогорска, на 2017-2019 годы» Распоряжение Администрации ЗАТО г. Зеленогорска от 28.12.2017 № 3007-р О внесении изменений в распоряжение Администрации ЗАТО г. Зеленогорска от 24.07.2015 № 1422-р «О разработке Стратегии социально-экономического развития города Зеленогорска на период до 2030 года» Распоряжение Администрации ЗАТО г. Зеленогорска от 28.12.2017 № 3006-р О внесении изменений в План подготовки документов стратегического планирования города Зеленогорска, утвержденный распоряжением Администрации ЗАТО г. Зеленогорскаот 26.12.2014 № 2981-р Постановление Администрации ЗАТО г. Зеленогорска от 28.12.2017 № 341-п О внесении изменений в Положение о системе оплаты труда работников муниципальных бюджетных и казенных учреждений города Зеленогорска, утвержденное постановлением Администрации ЗАТО г. Зеленогорска от 22.11.2016 № 313-п Постановление Администрации ЗАТО г. Зеленогорска от 28.12.2017 № 342-п О внесении изменений в Примерное положение об оплате труда работников муниципальных бюджетных и казенных учреждений социального обслуживания, утвержденное постановлением Администрации ЗАТО г. Зеленогорска от 28.10.2013 № 466-п Постановление Администрации ЗАТО г. Зеленогорска от 28.12.2017 № 343-п О внесении изменений в муниципальную программу «Социальная защита и социальная поддержка населения города Зеленогорска», утвержденную постановлением Администрации ЗАТО г. Зеленогорска от 12.11.2015 № 283-п Постановление Администрации ЗАТО г. Зеленогорска от 28.12.2017 № 340-п О внесении изменений в постановление Администрации ЗАТО г. Зеленогорска от 05.10.2017 № 226-п «Об утверждении Положения о предоставлении в аренду муниципального имущества субъектам малого и среднего предпринимательства, а также организациям, образующим инфраструктуру поддержки субъектов малого и среднего предпринимательства» Распоряжение Администрации ЗАТО г. Зеленогорска от 26.12.2017 № 2978-р О временном ограничении движения транспортных средств по улицам города Зеленогорска с 29.12.2017 по 15.03.2018 Постановление Администрации ЗАТО г. Зеленогорска от 26.12.2017 № 337-п Об утверждении Порядка формирования, ведения и обязательного опубликования перечня муниципального имущества, свободного от прав третьих лиц (за исключением имущественных прав некоммерческих организаций) и предназначенного для предоставления социально ориентированным некоммерческим организациям Постановление Администрации ЗАТО г. Зеленогорска от 26.12.2017 № 336-п Об утверждении Порядка формирования, ведения и обязательного опубликования перечня муниципального имущества, свободного от прав третьих лиц (за исключением имущественных прав субъектов малого и среднего предпринимательства) и предназначенного для предоставления субъектам среднего и малого предпринимательства Распоряжение Администрации ЗАТО г. Зеленогорска от 26.12.2017 № 2955-р О признании утратившим силу распоряжения Администрации ЗАТО г. Зеленогорска от 21.01.2013 № 71-р «Об утверждении состава и Порядка работы комиссии по вопросам муниципальной службы» Постановление Администрации ЗАТО г. Зеленогорска от 26.12.2017 № 339-п О признании утратившими силу отдельных постановлений Администрации ЗАТО г. Зеленогорска, касающихся создания комиссии по приватизации муниципального имущества Постановление Администрации ЗАТО г. Зеленогорска от 26.12.2017 № 338-п О внесении изменений в постановление Администрации ЗАТО г. Зеленогорска от 12.11.2015 № 297-п «Об утверждении муниципальной программы «Комплексные меры противодействия терроризму и экстремизму на территории города Зеленогорска» Постановление Администрации ЗАТО г. Зеленогорска от 26.12.2017 № 335-п О внесении изменений в муниципальную программу «Охрана окружающей среды и защита городских лесов на территории города Зеленогорска», утвержденную постановлением Администрации ЗАТО г. Зеленогорска от 12.11.2015 № 289-п Постановление Администрации ЗАТО г. Зеленогорска от 25.12.2017 № 334-п Об утверждении Порядка выплаты ежегодных премий победителям конкурсов педагогических работников г. Зеленогорска Постановление Администрации ЗАТО г. Зеленогорска от 25.12.2017 № 333-п О внесении изменений в Примерное положение об оплате труда работников муниципальных бюджетных учреждений дополнительного образования города Зеленогорска, подведомственных Муниципальному казенному учреждению «Комитет по делам культуры и молодежной политики города Зеленогорска», утвержденное постановлением Администрации ЗАТО г. Зеленогорска от 26.06.2013 № 257-п Постановление Администрации ЗАТО г. Зеленогорска от 25.12.2017 № 332-п О внесении изменений в постановление Администрации ЗАТО г. Зеленогорска от 12.11.2015 № 286-п «Об утверждении муниципальной программы «Защита населения и территории города Зеленогорска от чрезвычайных ситуаций природного и техногенного характера» Постановление Администрации ЗАТО г. Зеленогорска от 22.12.2017 № 331-п О внесении изменений в Примерное положение об оплате труда работников муниципальных бюджетных и казенных учреждений города Зеленогорска, находящихся в ведении Муниципального казенного учреждения «Комитет по делам культуры и молодежной политики города Зеленогорска», утвержденное постановлением Администрации ЗАТО г. Зеленогорска от 29.08.2017 № 194-п Постановление Администрации ЗАТО г. Зеленогорска от 22.12.2017 № 330-п О внесении изменений в муниципальную программу «Управление муниципальными финансами города Зеленогорска», утвержденную постановлением Администрации ЗАТО г. Зеленогорска от 12.11.2015 № 287-п Постановление Администрации ЗАТО г. Зеленогорска от 22.12.2017 № 329-п О внесении изменений в Положение о предоставлении во владение и (или) пользование муниципального имущества социально ориентированным некоммерческим организациям, утвержденное постановлением Администрации ЗАТО г. Зеленогорска от 22.11.2017 № 280-п Постановление Администрации ЗАТО г. Зеленогорска от 22.12.2017 № 328-п Об установлении размера платы за содержание жилого помещения в многоквартирных домах для нанимателей жилых помещений государственного жилищного фонда, принадлежащего на праве собственности Российской Федерации Постановление Администрации ЗАТО г. Зеленогорска от 19.12.2017 № 325-п О внесении изменений в Примерное положение об оплате труда работников муниципальных бюджетных учреждений города Зеленогорска, осуществляющих деятельность в сфере молодежной политики, находящихся в ведении Муниципального казенного учреждения «Комитет по делам культуры и молодежной политики города Зеленогорска», утвержденное постановлением Администрации ЗАТО г. Зеленогорска от 21.12.2016 № 358-п Постановление Администрации ЗАТО г. Зеленогорска от 19.12.2017 № 326-п О внесении изменений в постановление Администрации ЗАТО г. Зеленогорска от 29.09.2017 № 222-п «Об утверждении муниципальной программы «Развитие малого и среднего предпринимательства в городе Зеленогорске» Постановление Администрации ЗАТО г. Зеленогорска от 19.12.2017 № 324-п О внесении изменений в Примерное положение об оплате труда работников муниципальных бюджетных и казенных учреждений города Зеленогорска, находящихся в ведении Муниципального казенного учреждения «Комитет по делам культуры и молодежной политики города Зеленогорска», утвержденное постановлением Администрации ЗАТО г. Зеленогорска от 29.08.2017 № 194-п Постановление Администрации ЗАТО г. Зеленогорска от 19.12.2017 № 323-п Об утверждении муниципальной программы «Муниципальное имущество и земельные ресурсы города Зеленогорска» Постановление Администрации ЗАТО г. Зеленогорска от 18.12.2017 № 322-п Об установлении размера платы за содержание жилого помещения в многоквартирных домах Постановление Администрации ЗАТО г. Зеленогорска от 18.12.2017 № 321-п О внесении изменений в постановление Администрации ЗАТО г. Зеленогорска от 28.07.2016 № 221-п «О видах обязательных работ, объектах, на которых они отбываются, и местах, в которых отбываются исправительные работы» Постановление Администрации ЗАТО г. Зеленогорска от 15.12.2017 № 320-п О внесении изменений в муниципальную программу «Гражданское общество – закрытое административно-территориальное образование Зеленогорск», утвержденную постановлением Администрации ЗАТО г. Зеленогорска от 12.11.2015 № 285-п Постановление Администрации ЗАТО г. Зеленогорска от 14.12.2017 № 317-п О внесении изменений в Положение о системе оплаты труда работников муниципальных бюджетных и казенных учреждений города Зеленогорска, утвержденное постановлением Администрации ЗАТО г. Зеленогорска от 22.11.2016 № 313-п Постановление Администрации ЗАТО г. Зеленогорска от 14.12.2017 № 314-п О внесении изменений в Примерное положение об оплате труда работников муниципальных бюджетных и казенных учреждений, находящихся в ведении МКУ «КФиС», утвержденное постановлением Администрации ЗАТО г. Зеленогорска от 04.10.2013 № 421-п Постановление Администрации ЗАТО г. Зеленогорска от 14.12.2017 № 318-п Об утверждении Порядка предоставления субсидий в целях возмещения затрат на содержание, ремонт объектов внешнего благоустройства, находящихся в собственности муниципального образования город Зеленогорск Постановление Администрации ЗАТО г. Зеленогорска от 14.12.2017 № 316-п Об установлении стоимости услуг по содержанию жилого помещения в общежитиях государственного жилищного фонда, переданных ООО «Квадра Пи-Эль» по договору доверительного управления Постановление Администрации ЗАТО г. Зеленогорска от 14.12.2017 № 315-п Об установлении в общежитиях стоимости услуг по содержанию жилых помещений, принадлежащих на праве собственности муниципальному образованию город Зеленогорск Красноярского края Постановление Администрации ЗАТО г. Зеленогорска от 14.12.2017 № 313-п О внесении изменений в Примерное положение об оплате труда работников муниципальных бюджетных и казенных учреждений города Зеленогорска, находящихся в ведении Управления образования Администрации ЗАТО г. Зеленогорска, утвержденное постановлением Администрации ЗАТО г. Зеленогорска от 05.12.2016 № 333-п Постановление Администрации ЗАТО г. Зеленогорска от 14.12.2017 № 312-п Об утверждении Сводного плана организации ярмарок на 2018 год Постановление Администрации ЗАТО г. Зеленогорска от 12.12.2017 № 311-п О внесении изменений в постановление Администрации ЗАТО г. Зеленогорска от 12.11.2015 № 286-п «Об утверждении муниципальной программы «Защита населения и территории города Зеленогорска от чрезвычайных ситуаций природного и техногенного характера» Постановление Администрации ЗАТО г. Зеленогорска от 11.12.2017 № 310-п О внесении изменений в Положение о системе оплаты труда работников муниципальных бюджетных и казенных учреждений города Зеленогорска, утвержденное постановлением Администрации ЗАТО г. Зеленогорска от 22.11.2016 № 313-п Постановление Администрации ЗАТО г. Зеленогорска от 11.12.2017 № 309-п О внесении изменений в постановление Администрации ЗАТО г. Зеленогорска от 22.12.2016 № 366-п «Об утверждении Порядка предоставления физиотерапевтических процедур в муниципальных дошкольных образовательных учреждениях г. Зеленогорска, в которых созданы условия для их проведения» Постановление Администрации ЗАТО г. Зеленогорска от 11.12.2017 № 308-п О внесении изменений в постановление Администрации ЗАТО г. Зеленогорска от 12.11.2015 № 297-п «Об утверждении муниципальной программы «Комплексные меры противодействия терроризму и экстремизму на территории города Зеленогорска» Постановление Администрации ЗАТО г. Зеленогорска от 08.12.2017 № 307-п О внесении изменений в постановление Администрации ЗАТО г. Зеленогорска от 12.11.2015 № 289-п «Об утверждении муниципальной программы «Охрана окружающей среды и защита городских лесов на территории города Зеленогорска» Постановление Администрации ЗАТО г. Зеленогорска от 08.12.2017 № 306-п О внесении изменений в постановление Администрации ЗАТО г. Зеленогорска от 12.11.2015 № 292-п «Об утверждении муниципальной программы «Капитальное строительство и капитальный ремонт в городе Зеленогорске» Постановление Администрации ЗАТО г. Зеленогорска от 08.12.2017 № 305-п О внесении изменений в постановление Администрации ЗАТО г. Зеленогорска от 12.11.2015 № 291-п «Об утверждении муниципальной программы «Развитие транспортной системы в городе Зеленогорске» Постановление Администрации ЗАТО г. Зеленогорска от 08.12.2017 № 303-п О внесении изменений в постановление Администрации ЗАТО г. Зеленогорска от 22.03.2016 № 68-п «Об утверждении Порядка обеспечения горячим питанием отдельных категорий учащихся муниципальных общеобразовательных организаций г. Зеленогорска» Постановление Администрации ЗАТО г. Зеленогорска от 08.12.2017 № 302-п Об утверждении Порядка обеспечения новогодними подарками отдельных категорий обучающихся муниципальных бюджетных образовательных учреждений г. Зеленогорска в 2017 году Постановление Администрации ЗАТО г. Зеленогорска от 08.12.2017 № 304-п О внесении изменений в постановление Администрации ЗАТО г. Зеленогорска от 03.02.2014 № 19-п «Об утверждении Перечней муниципального имущества, свободного от прав третьих лиц (за исключением имущественных прав некоммерческих организаций, субъектов малого и среднего предпринимательства)» Распоряжение Администрации ЗАТО г. Зеленогорска от 07.12.2017 № 2772-р Об утверждении состава и Положения о порядке работы комиссии по оказанию поддержки субъектам малого и среднего предпринимательства Постановление Администрации ЗАТО г. Зеленогорска от 06.12.2017 № 301-п О внесении изменений в муниципальную программу «Гражданское общество - закрытое административно-территориальное образование Зеленогорск», утвержденную постановлением Администрации ЗАТО г. Зеленогорска от 12.11.2015 № 285-п Постановление Администрации ЗАТО г. Зеленогорска от 05.12.2017 № 298-п О внесении изменений в постановление Администрации ЗАТО г. Зеленогорска от 12.11.2015 № 287-п «Об утверждении муниципальной программы «Управление муниципальными финансами города Зеленогорска» Распоряжение Комитета по управлению муниципальным имуществом Администрации ЗАТО г. Зеленогорска от 21.11.2017 № 406-р Об утверждении состава комиссии по предоставлению муниципальных преференций Распоряжение Комитета по управлению муниципальным имуществом Администрации ЗАТО г. Зеленогорска от 21.11.2017 № 402-р Об утверждении Положения о составе и порядке работы комиссии по предоставлению муниципальных преференций Постановление Администрации ЗАТО г. Зеленогорска от 01.12.2017 № 296-п Об определении специально отведенного места для проведения встреч депутатов с избирателями и утверждении Порядка предоставления органами местного самоуправления г. Зеленогорска помещения для проведения встреч депутатов с избирателями Постановление Администрации ЗАТО г. Зеленогорска от 30.11.2017 № 295-п О внесении изменений в постановление Администрации ЗАТО г. Зеленогорска от 30.09.2015 № 248-п «Об утверждении Плана мероприятий («дорожной карты») «Повышение значений показателей доступности для инвалидов объектов и услуг на территории г. Зеленогорска на 2016-2018 годы» Постановление Администрации ЗАТО г. Зеленогорска от 30.11.2017 № 293-п О внесении изменений в Примерное положение об оплате труда работников муниципальных бюджетных и казенных учреждений по сопровождению деятельности органов местного самоуправления, утвержденное постановлением Администрации ЗАТО г. Зеленогорска от 09.12.2016 № 345-п Постановление Администрации ЗАТО г. Зеленогорска от 30.11.2017 № 294-п О средстве массовой информации, определенном в качестве официального периодического издания, осуществляющего публикацию муниципальных правовых актов г. Зеленогорска Распоряжение Администрации ЗАТО г. Зеленогорска от 30.11.2017 № 2738-р О внесении изменений в распоряжение Администрации ЗАТО г. Зеленогорска от 10.07.2013 № 1704-р «Об утверждении состава комиссии по решению спорных вопросов по предоставлению субсидий на оплату жилого помещения и коммунальных услуг» Постановление Администрации ЗАТО г. Зеленогорска от 28.11.2017 № 292-п О внесении изменений в постановление Администрации ЗАТО г. Зеленогорска от 12.11.2015 № 283-п «Об утверждении муниципальной программы «Социальная защита и социальная поддержка населения города Зеленогорска» Распоряжение Администрации ЗАТО г. Зеленогорска от 07.11.2017 № 2586-р О проведении капитального ремонта общего имущества в многоквартирных домах, расположенных на территории города Зеленогорска, собственники помещений в которых не приняли решение о проведении такого ремонта, в 2018 - 2019 годах Постановление Администрации ЗАТО г. Зеленогорска от 24.11.2017 № 285-п Об утверждении Положения о порядке предоставления социально-трудовых гарантий муниципальным служащим, работникам муниципальных учреждений Постановление Администрации ЗАТО г. Зеленогорска от 24.11.2017 № 283-п О признании утратившим силу постановления Администрации ЗАТО г. Зеленогорска от 06.02.2015 № 13-п «О формах сведений о доходах, об имуществе и обязательствах имущественного характера, представляемых лицами, поступающими на должности руководителей муниципальных учреждений г. Зеленогорска, и руководителями муниципальных учреждений г. Зеленогорска» Постановление Администрации ЗАТО г. Зеленогорска от 24.11.2017 № 284-п О внесении изменений в постановление Администрации ЗАТО г. Зеленогорска от 17.04.2015 № 109-п «Об утверждении Порядка дачи согласия муниципальным учреждениям на распоряжение имуществом, закрепленным за ними на праве оперативного управления» Постановление Администрации ЗАТО г. Зеленогорска от 22.11.2017 № 281-п О внесении изменений в постановление Администрации ЗАТО г. Зеленогорска от 12.02.2016 № 32-п «Об утверждении Порядка зачета стоимости капитального ремонта и иных необходимых улучшений в счет арендной платы» Постановление Администрации ЗАТО г. Зеленогорска от 22.11.2017 № 280-п Об утверждении Положения о предоставлении во владение и (или) пользование муниципального имущества социально ориентированным некоммерческим организациям Распоряжение Администрации ЗАТО г. Зеленогорска от 20.11.2017 № 2684-р О признании утратившими силу некоторых распоряжений Администрации ЗАТО г. Зеленогорска о премировании директоров муниципальных унитарных предприятий г. Зеленогорска Постановление Администрации ЗАТО г. Зеленогорска от 21.11.2017 № 279-п О внесении изменений в постановление Администрации ЗАТО г. Зеленогорска от 07.08.2017 № 181-п «О реорганизации МБУК «ЗГДК» и МБУК «Центр культуры» Постановление Администрации ЗАТО г. Зеленогорска от 20.11.2017 № 278-п О внесении изменений в постановление Администрации ЗАТО г. Зеленогорска от 18.08.2017 № 189-п «Об утверждении Порядка предоставления субсидий в целях возмещения затрат субъектам малого и среднего предпринимательства» Постановление Администрации ЗАТО г. Зеленогорска от 17.11.2017 № 277-п О внесении изменений в Порядок формирования и реализации муниципальных программ, утвержденный постановлением Администрации ЗАТО г. Зеленогорска от 06.11.2015 № 275-п Постановление Администрации ЗАТО г. Зеленогорска от 17.11.2017 № 276-п О введении в эксплуатацию системы видеонаблюдения в здании Администрации ЗАТО г. Зеленогорска Распоряжение Администрации ЗАТО г. Зеленогорска от 25.10.2017 № 2502-р Об аккредитации журналистов редакций средств массовой информации при Администрации ЗАТО г. Зеленогорска Постановление Администрации ЗАТО г. Зеленогорска от 10.11.2017 № 274-п Об утверждении Административного регламента предоставления муниципальной услуги «Предоставление разрешения на условно разрешенный вид использования земельного участка или объекта капитального строительства» Постановление Администрации ЗАТО г. Зеленогорска от 10.11.2017 № 273-п Об утверждении Административного регламента предоставления муниципальной услуги «Внесение изменений в разрешение на строительство» Постановление Администрации ЗАТО г. Зеленогорска от 10.11.2017 № 272-п Об утверждении Административного регламента предоставления муниципальной услуги «Предоставление разрешения на отклонение от предельных параметров разрешенного строительства, реконструкции объектов капитального строительства» Постановление Администрации ЗАТО г. Зеленогорска от 10.11.2017 № 271-п Об утверждении Административного регламента предоставления муниципальной услуги «Продление срока действия разрешения на строительство» Постановление Администрации ЗАТО г. Зеленогорска от 10.11.2017 № 270-п Об утверждении Административного регламента предоставления муниципальной услуги «Принятие решения о подготовке документации по планировке территории» Постановление Администрации ЗАТО г. Зеленогорска от 10.11.2017 № 269-п Об утверждении Административного регламента предоставления муниципальной услуги «Утверждение документации по планировке территории» Постановление Администрации ЗАТО г. Зеленогорска от 10.11.2017 № 268-п О внесении изменений в постановление Администрации ЗАТО г. Зеленогорска от 30.06.2016 № 188-п «Об утверждении Административного регламента предоставления муниципальной услуги «Выдача разрешений на строительство, реконструкцию объектов капитального строительства» Постановление Администрации ЗАТО г. Зеленогорска от 10.11.2017 № 267-п О внесении изменений в постановление Администрации ЗАТО г. Зеленогорска от 30.06.2016 № 187-п «Об утверждении Административного регламента предоставления муниципальной услуги «Выдача разрешений на ввод в эксплуатацию объектов капитального строительства» Постановление Администрации ЗАТО г. Зеленогорска от 10.11.2017 № 266-п О внесении изменений в Перечень муниципальных программ города Зеленогорска, утвержденный постановлением Администрации ЗАТО г. Зеленогорска от 11.08.2017 № 183-п Постановление Администрации ЗАТО г. Зеленогорска от 08.11.2017 № 265-п О внесении изменений в постановление главы администрации ЗАТО г. Зеленогорска от 23.06.2008 № 275 п «О создании Координационного совета в области развития малого и среднего предпринимательства» Постановление Администрации ЗАТО г. Зеленогорска от 08.11.2017 № 264-п О признании утратившими силу некоторых постановлений Администрации ЗАТО г. Зеленогорска Постановление Администрации ЗАТО г. Зеленогорска от 08.11.2017 № 263-п О внесении изменений в постановление Администрации ЗАТО г. Зеленогорска от 15.12.2015 № 325-п «Об утверждении Порядка формирования и финансового обеспечения муниципального задания на оказание муниципальных услуг (выполнение работ) в отношении муниципальных учреждений» Постановление Администрации ЗАТО г. Зеленогорска от 01.11.2017 № 259-п О внесении изменений в Положение о системе оплаты труда работников муниципальных бюджетных и казенных учреждений города Зеленогорска, утвержденное постановлением Администрации ЗАТО г. Зеленогорска от 22.11.2016 № 313-п Постановление Администрации ЗАТО г. Зеленогорска от 31.10.2017 № 257-п Об утверждении муниципальной программы «Формирование современной городской среды в городе Зеленогорске» Постановление Администрации ЗАТО г. Зеленогорска от 03.11.2017 № 262-п О признании утратившим силу постановления Администрации ЗАТО г. Зеленогорска от 27.05.2016 № 130-п «Об утверждении Порядка предоставления субсидий в целях возмещения затрат на содержание автомобильных дорог общего пользования местного значения, находящихся в собственности муниципального образования города Зеленогорска» Постановление Администрации ЗАТО г. Зеленогорска от 03.11.2017 № 261-п О внесении изменений в постановление Администрации ЗАТО г. Зеленогорска от 28.12.2015 № 345-п «Об утверждении Перечня мест массового пребывания людей, расположенных на территории города Зеленогорска» Постановление Администрации ЗАТО г. Зеленогорска от 01.11.2017 № 260-п О признании утратившими силу некоторых постановлений Администрации ЗАТО г. Зеленогорска Постановление Администрации ЗАТО г. Зеленогорска от 01.11.2017 № 258-п О внесении изменений в Примерное положение об оплате труда работников муниципальных бюджетных и казенных учреждений социального обслуживания,утвержденное постановлением Администрации ЗАТО г. Зеленогорска от 28.10.2013 № 466-п Постановление Администрации ЗАТО г. Зеленогорска от 30.10.2017 № 254-п О переименовании муниципальных бюджетных учреждений дополнительного образования, находящихся в ведении Муниципального казенного учреждения «Комитет по делам физической культуры и спорта г. Зеленогорска» Постановление Администрации ЗАТО г. Зеленогорска от 31.10.2017 № 255-п Об утверждении Порядка предоставления субсидий в целях возмещения затрат в связи с выполнением работ по благоустройству дворовых территорий многоквартирных домов, направленных на формирование современной городской среды Распоряжение Администрации ЗАТО г. Зеленогорска от 25.10.2017 № 2502-р Об утверждении состава конкурсной комиссии Постановление Администрации ЗАТО г. Зеленогорска от 25.10.2017 № 245-п О внесении изменений в Примерное положение об оплате труда работников муниципальных бюджетных и казенных учреждений, находящихся в ведении МКУ «КФиС», утвержденное постановлением Администрации ЗАТО г. Зеленогорска от 04.10.2013 № 421-п Постановление Администрации ЗАТО г. Зеленогорска от 24.10.2017 № 244-п Об установлении расчетной стоимости 1 кв. м общей площади жилых помещений в целях признания граждан малоимущими на 4 квартал 2017 года Постановление Администрации ЗАТО г. Зеленогорска от 24.10.2017 № 243-п Об утверждении отчета об исполнении местного бюджета города Зеленогорска за 9 месяцев 2017 года Постановление Администрации ЗАТО г. Зеленогорска от 24.10.2017 № 241-п Об определении средней рыночной стоимости одного квадратного метра общей площади жилого помещения на территории г. Зеленогорска на IV квартал 2017 года Постановление Администрации ЗАТО г. Зеленогорска от 20.10.2017 № 237-п О признании утратившим силу постановления Администрации ЗАТО г. Зеленогорска от 26.08.2015 № 207-п Постановление Администрации ЗАТО г. Зеленогорска от 20.10.2017 № 236-п Об установлении норматива стоимости одного квадратного метра общей площади жилья по г. Зеленогорску на 2018 год Постановление Администрации ЗАТО г. Зеленогорска от 19.10.2017 № 235-п Об утверждении «Плана действий по ликвидации последствий аварийных ситуаций в системе центрального теплоснабжения» и «Порядка мониторинга системы теплоснабжения» города Зеленогорска Распоряжение Администрации ЗАТО г. Зеленогорска от 18.10.2017 № 2443-р О внесении изменений в распоряжение Администрации ЗАТО г. Зеленогорска от 14.04.2014 № 728-р «Об утверждении состава и Порядка работы территориальной психолого-медико-педагогической комиссии г. Зеленогорска» Постановление Администрации ЗАТО г. Зеленогорска от 17.10.2017 № 233-п О внесении изменений в постановление Администрации ЗАТО г. Зеленогорска от 12.11.2015 № 286-п «Защита населения и территории города Зеленогорска от чрезвычайных ситуаций природного и техногенного характера» Постановление Администрации ЗАТО г. Зеленогорска от 16.10.2017 № 231-п Об утверждении Порядка демонтажа нестационарных торговых объектов, размещенных на территории города Зеленогорска Распоряжение Администрации ЗАТО г. Зеленогорска от 13.10.2017 № 2386-р О признании утратившими силу отдельных муниципальных правовых актов по вопросам подготовки и проведения Всероссийской сельскохозяйственной переписи 2016 года в городе Зеленогорске Распоряжение Администрации ЗАТО г. Зеленогорска от 12.10.2017 № 2367-р О подготовке проекта о внесении изменений в Правила землепользования и застройки г. Зеленогорска Постановление Администрации ЗАТО г. Зеленогорска от 05.10.2017 № 226-п Об утверждении Положения о предоставлении в аренду муниципального имущества субъектам малого и среднего предпринимательства, а также организациям, образующим инфраструктуру поддержки субъектов малого и среднего предпринимательства Постановление Администрации ЗАТО г. Зеленогорска от 05.10.2017 № 227-п О внесении изменений в постановление Администрации ЗАТО г. Зеленогорска от 18.12.2015 № 326-п «Об утверждении Перечня муниципальных услуг, предоставляемых Администрацией ЗАТО г. Зеленогорска, и услуг, предоставляемых муниципальными учреждениями г. Зеленогорска» Постановление Администрации ЗАТО г. Зеленогорска от 04.10.2017 № 224-п Об утверждении Положения о порядке формирования, утверждения и ведения планов закупок товаров, работ, услуг для обеспечения муниципальных нужд Постановление Администрации ЗАТО г. Зеленогорска от 29.09.2017 № 222-п Об утверждении муниципальной программы «Развитие малого и среднего предпринимательства в городе Зеленогорске» Постановление Администрации ЗАТО г. Зеленогорска от 27.09.2017 № 220-п О внесении изменений в Административный регламент предоставления муниципальной услуги «Утверждение схем расположения земельных участков на кадастровом плане территории» Распоряжение Администрации ЗАТО г. Зеленогорска от 26.09.2017 № 2249-р Об утверждении состава и Порядка деятельности комиссии по принятию решений о необходимости проведения ремонта в жилых помещениях, ремонта печного отопления и (или) электропроводки в жилых помещениях Распоряжение Администрации ЗАТО г. Зеленогорска от 26.09.2017 № 2248-р Об утверждении состава и Порядка деятельности комиссии по вопросам предоставления материальной помощи Постановление Администрации ЗАТО г. Зеленогорска от 25.09.2017 № 218-п О внесении изменений в Примерное положение об оплате труда работников муниципальных бюджетных и казенных учреждений города Зеленогорска, находящихся в ведении Муниципального казенного учреждения «Комитет по делам культуры и молодежной политики города Зеленогорска» Постановление Администрации ЗАТО г. Зеленогорска от 25.09.2017 № 217-п О внесении изменений в Положение о системе оплаты труда работников муниципальных бюджетных и казенных учреждений города Зеленогорска, утвержденное постановлением Администрации ЗАТО г. Зеленогорска от 22.11.2016 № 313-п Постановление Администрации ЗАТО г. Зеленогорска от 25.09.2017 № 216-п О временном ограничении движения транспортных средств по улицам города Зеленогорска 30.09.2017 Распоряжение Администрации ЗАТО г. Зеленогорска от 22.09.2017 № 2206-р Об утверждении Порядка деятельности и состава комиссии по назначению адресной материальной помощи отдельным категориям граждан Постановление Администрации ЗАТО г. Зеленогорска от 21.09.2017 № 214-п О внесении изменений в постановление Администрации ЗАТО г. Зеленогорска от 30.05.2016 № 131-п «О возложении на МКУ «Центр закупок, предпринимательства и обеспечения деятельности ОМС» полномочий отдельных заказчиков в сфере закупок товаров, работ, услуг для обеспечения муниципальных нужд» Постановление Администрации ЗАТО г. Зеленогорска от 18.09.2017 № 213-п О внесении изменений в муниципальную программу «Реформирование и модернизация жилищно-коммунального хозяйства и повышение энергетической эффективности в городе Зеленогорске», утвержденную постановлением Администрации ЗАТО г. Зеленогорска от 12.11.2015 № 293-п Постановление Администрации ЗАТО г. Зеленогорска от 18.09.2017 № 212-п О внесении изменений в постановление Администрации ЗАТО г. Зеленогорска от 20.04.2017 № 89-п «О внесении изменений в муниципальную программу «Реформирование и модернизация жилищно-коммунального хозяйства и повышение энергетической эффективности в городе Зеленогорске», утвержденную постановлением Администрации ЗАТО г. Зеленогорска от 12.11.2015 № 293-п Постановление Администрации ЗАТО г. Зеленогорска от 18.09.2017 № 211-п Об установлении предельного максимального тарифа на услуги по сбору и транспортированию твердых коммунальных отходов, оказываемые УМ АТП Распоряжение Администрации ЗАТО г. Зеленогорска от 18.09.2017 № 2175-р О выделении рабочих мест для трудоустройства инвалидов Распоряжение Администрации ЗАТО г. Зеленогорска от 14.09.2017 № 2157-р О внесении изменений в распоряжение Администрации ЗАТО г. Зеленогорска от 23.06.2015 № 1230-р «Об утверждении Положения о комиссии по снижению неформальной занятости, легализации «серой» заработной платы, повышению собираемости страховых взносов во внебюджетные фонды на территории города Зеленогорска» Распоряжение Администрации ЗАТО г. Зеленогорска от 07.09.2017 № 2060-р Об утверждении состава Общественного совета по рассмотрению вопросов нормирования в сфере закупок товаров, работ, услуг для муниципальных нужд при Администрации ЗАТО г. Зеленогорска Распоряжение Администрации ЗАТО г. Зеленогорска от 08.09.2017 № 2081-р О начале отопительного периода 2017 - 2018 Распоряжение Администрации ЗАТО г. Зеленогорска от 07.09.2017 № 2063-р О внесении изменений в приложение № 2 к распоряжению Администрации ЗАТО г. Зеленогорска от 23.06.2015 № 1230-р Распоряжение Администрации ЗАТО г. Зеленогорска от 01.09.2017 № 2012-р О проведении общественных обсуждений по оценке воздействия на окружающую среду при реконструкции золоотвала с устройством буферной емкости филиала ПАО «ОГК-2» - Красноярская ГРЭС-2 Постановление Администрации ЗАТО г. Зеленогорска от 01.09.2017 № 203-п О внесении изменений в постановление Администрации ЗАТО г. Зеленогорска от 18.02.2015 № 23-п «Об утверждении Положения и персонального состава комиссии по делам несовершеннолетних и защите их прав города Зеленогорска» Постановление Администрации ЗАТО г. Зеленогорска от 01.09.2017 № 202-п О внесении изменений в постановление Администрации ЗАТО г. Зеленогорска от 12.11.2015 № 289-п «Об утверждении муниципальной программы «Охрана окружающей среды и защита городских лесов на территории города Зеленогорска» Постановление Администрации ЗАТО г. Зеленогорска от 31.08.2017 № 201-п О внесении изменений в муниципальную программу «Капитальное строительство и капитальный ремонт в городе Зеленогорске», утвержденную постановлением Администрации ЗАТО г. Зеленогорска от 12.11.2015 № 292-п Постановление Администрации ЗАТО г. Зеленогорска от 31.08.2017 № 200-п О внесении изменений в муниципальную программу «Развитие транспортной системы в городе Зеленогорске», утвержденную постановлением Администрации ЗАТО г. Зеленогорска от 12.11.2015 № 291-п Постановление Администрации ЗАТО г. Зеленогорска от 31.08.2017 № 198-п Об утверждении Порядка размещения на сайте Администрации ЗАТО г. Зеленогорска и предоставления для опубликования сведений, представляемых муниципальными служащими Администрации ЗАТО г. Зеленогорска Постановление Администрации ЗАТО г. Зеленогорска от 31.08.2017 № 197-п Об утверждении Порядка размещения на сайте Администрации ЗАТО г. Зеленогорска и предоставления для опубликования сведений, представляемых руководителями муниципальных учреждений г. Зеленогорска Постановление Администрации ЗАТО г. Зеленогорска от 31.08.2017 № 196-п О внесении изменений в муниципальную программу «Развитие образования в городе Зеленогорске», утвержденную постановлением Администрации ЗАТО г. Зеленогорска от 12.11.2015 № 295-п Постановление Администрации ЗАТО г. Зеленогорска от 30.08.2017 № 195-п О внесении изменений в муниципальную программу «Комплексные меры противодействия терроризму и экстремизму на территории города Зеленогорска», утвержденную постановлением Администрации ЗАТО г. Зеленогорска от 12.11.2015 № 297-п Постановление Администрации ЗАТО г. Зеленогорска от 29.08.2017 № 194-п Об утверждении Примерного положения об оплате труда работников муниципальных бюджетных и казенных учреждений города Зеленогорска, находящихся в ведении Муниципального казенного учреждения «Комитет по делам культуры и молодежной политики города Зеленогорска» Постановление Администрации ЗАТО г. Зеленогорска от 22.08.2017 № 193-п Об утверждении Порядка утверждения устава муниципального унитарного предприятия, заключения и прекращения трудового договора с его директором Постановление Администрации ЗАТО г. Зеленогорска от 21.08.2017 № 191-п Об утверждении условий приватизации имущества на базе горюче-смазочных материалов, расположенного по адресу: Россия, Красноярский край, г. Зеленогорск, в районе ул. Первая Промышленная, 5А – 5А/3 Постановление Администрации ЗАТО г. Зеленогорска от 21.08.2017 № 190-п Об утверждении условий приватизации крана козлового ККС-10, расположенного по адресу: Россия, Красноярский край, г. Зеленогорск, в районе ул. Первая Промышленная, 7/2 – 9 Постановление Администрации ЗАТО г. Зеленогорска от 18.08.2017 № 189-п Об утверждении Порядка предоставления субсидий в целях возмещения затрат субъектам малого и среднего предпринимательства Постановление Администрации ЗАТО г. Зеленогорска от 18.08.2017 № 188-п О временном ограничении движения транспортных средств по улицам города Зеленогорска 01.09.2017 Постановление Администрации ЗАТО г. Зеленогорска от 18.08.2017 № 187-п Об утверждении Порядка предоставления субсидий в целях возмещения недополученных доходов, возникающих в связи с оказанием услуг по содержанию жилых помещений государственного или муниципального жилищного фонда Распоряжение Администрации ЗАТО г. Зеленогорска от 18.08.2017 № 1852-р О подготовке и проведении городского праздника, посвященного Дню знаний, в 2017 году Постановление Администрации ЗАТО г. Зеленогорска от 14.08.2017 № 185-п О внесении изменений в муниципальную программу «Социальная защита и социальная поддержка населения города Зеленогорска», утвержденную постановлением Администрации ЗАТО г. Зеленогорска от 12.11.2015 № 283-п Постановление Администрации ЗАТО г. Зеленогорска от 11.08.2017 № 184-п О внесении изменений в муниципальную программу «Гражданское общество – закрытое административно-территориальное образование Зеленогорск», утвержденную постановлением Администрации ЗАТО г. Зеленогорска от 12.11.2015 № 285-п Постановление Администрации ЗАТО г. Зеленогорска от 11.08.2017 № 183-п Об утверждении Перечня муниципальных программ города Зеленогорска Постановление Администрации ЗАТО г. Зеленогорска от 07.08.2017 № 182-п Об утверждении Перечня главных распорядителей средств местного бюджета и подведомственных им получателей средств местного бюджета Постановление Администрации ЗАТО г. Зеленогорска от 07.08.2017 № 181-п О реорганизации МБУК «ЗГДК» и МБУК «Центр культуры» Постановление Администрации ЗАТО г. Зеленогорска от 07.08.2017 № 180-п О внесении изменений в постановление Администрации ЗАТО г. Зеленогорска от 23.12.2016 № 375-п «Об установлении стоимости услуг по содержанию жилого помещения в общежитиях и специализированном доме «Специальный дом для одиноких престарелых», находящихся в собственности муниципального образования г. Зеленогорск» Распоряжение Администрации ЗАТО г. Зеленогорска от 07.08.2017 № 1741-р О формировании состава Общественного совета по рассмотрению вопросов нормирования в сфере закупок товаров, работ, услуг для муниципальных нужд при Администрации ЗАТО г. Зеленогорска Постановление Администрации ЗАТО г. Зеленогорска от 01.08.2017 № 175-п О внесении изменений в муниципальную программу «Развитие физической культуры и спорта в городе Зеленогорске», утвержденную постановлением Администрации ЗАТО г. Зеленогорска от 12.11.2015 № 284-п Постановление Администрации ЗАТО г. Зеленогорска от 01.08.2017 № 177-п Об определении средней рыночной стоимости одного квадратного метра общей площади (площади) жилого помещения на территории г. Зеленогорска Красноярского края на III квартал 2017 года Постановление Администрации ЗАТО г. Зеленогорска от 01.08.2017 № 176-п Об установлении расчетной стоимости 1 кв. м общей площади жилых помещений в целях признания граждан малоимущими на 3 квартал 2017 Распоряжение Администрации ЗАТО г. Зеленогорска от 01.08.2017 № 1700-р О внесении изменений в распоряжение Администрации ЗАТО г. Зеленогорска от 17.10.2013 № 2536-р «Об утверждении состава и Порядка работы комиссии по проверке состояния защитных сооружений гражданской обороны на территории г. Зеленогорска» Распоряжение Администрации ЗАТО г. Зеленогорска от 01.08.2017 № 1699-р О внесении изменений в распоряжение Администрации ЗАТО г. Зеленогорска от 13.08.2013 № 1967-р «Об утверждении состава и Порядка работы территориальной конкурсной комиссии по проведению отборочного этапа ежегодного смотра-конкурса защитных сооружений гражданской обороны на территории Красноярского края» Распоряжение Администрации ЗАТО г. Зеленогорска от 21.07.2017 № 1636-р О внесении изменений в распоряжение Администрации ЗАТО г. Зеленогорска от 03.03.2014 № 370-р «Об утверждении Положения и состава городской жилищной комиссии» Распоряжение Администрации ЗАТО г. Зеленогорска от 20.07.2017 № 1586-р Об утверждении состава комиссии по проверке Оздоровительно-образовательной базы отдыха «Зеленогорская» МБУ ДО «ЦЭКиТ» Постановление Администрации ЗАТО г. Зеленогорска от 25.07.2017 № 172-п О внесении изменений в муниципальную программу «Развитие молодежной политики города Зеленогорска», утвержденную постановлением Администрации ЗАТО г. Зеленогорска от 12.11.2015 № 296-п Постановление Администрации ЗАТО г. Зеленогорска от 24.07.2017 № 171-п О внесении изменений в Примерное положение об оплате труда работников муниципальных бюджетных и казенных учреждений социального обслуживания, утвержденное постановлением Администрации ЗАТО г. Зеленогорска от 28.10.2013 № 466-п Постановление Администрации ЗАТО г. Зеленогорска от 21.07.2017 № 170-п О временном ограничении движения транспортных средств по улицам города Зеленогорска 02.08.2017 Постановление Администрации ЗАТО г. Зеленогорска от 19.07.2017 № 168-п Об утверждении отчета об исполнении местного бюджета города Зеленогорска за 1 полугодие 2017 года Постановление Администрации ЗАТО г. Зеленогорска от 19.07.2017 № 167-п Об утверждении Положения о порядке осуществления Финансовым управлением Администрации ЗАТО г.Зеленогорска полномочий по внутреннему муниципальному финансовому контролю Постановление Администрации ЗАТО г. Зеленогорска от 19.07.2017 № 163-п О временном ограничении движения транспортных средств по улицам города Зеленогорска 30.07.2017 Постановление Администрации ЗАТО г. Зеленогорска от 13.07.2017 № 161-п О внесении изменений в муниципальную программу «Развитие культуры города Зеленогорска», утвержденную постановлением Администрации ЗАТО г. Зеленогорска от 12.11.2015 № 288-п Постановление Администрации ЗАТО г. Зеленогорска от 12.07.2017 № 156-п О внесении изменений в постановление Администрации ЗАТО г. Зеленогорска от 28.07.2016 № 221-п «О видах обязательных работ, объектах, на которых они отбываются, и местах, в которых отбываются исправительные работы» Распоряжение Администрации ЗАТО г. Зеленогорска от 07.07.2017 № 1481-р О внесении изменений в распоряжение Администрации ЗАТО г. Зеленогорска от 13.09.2016 № 1845-р «Об антинаркотической комиссии города Зеленогорска» Постановление Администрации ЗАТО г. Зеленогорска от 07.07.2017 № 155-п О внесении изменений в Положение о системе оплаты труда работников муниципальных бюджетных и казенных учреждений города Зеленогорска, утвержденное постановлением Администрации ЗАТО г. Зеленогорска от 22.11.2016 № 313-п Постановление Администрации ЗАТО г. Зеленогорска от 05.07.2017 № 154-п О временном ограничении и запрещении движения транспортных средств по улицам города Зеленогорска 15.07.2017 Постановление Администрации ЗАТО г. Зеленогорска от 04.07.2017 № 153-п О внесении изменений в муниципальную программу «Реформирование и модернизация жилищно-коммунального хозяйства и повышение энергетической эффективности в городе Зеленогорске», утвержденную постановлением Администрации ЗАТО г. Зеленогорска от 12.11.2015 № 293-п Постановление Администрации ЗАТО г. Зеленогорска от 04.07.2017 № 152-п О внесении изменений в постановление Администрации ЗАТО г. Зеленогорска от 21.02.2017 № 41-п «Об установлении квалификационных требований для замещения должностей муниципальной службы в Администрации ЗАТО г. Зеленогорска» Распоряжение Администрации ЗАТО г. Зеленогорска от 30.06.2017 № 1411-р О внесении изменений в распоряжение Администрации ЗАТО г. Зеленогорска от 11.02.2011 № 226-р «О создании комиссии по вопросам формирования реестра муниципальных услуг» Постановление Администрации ЗАТО г. Зеленогорска от 30.06.2017 № 151-п Об утверждении Административного регламента осуществления муниципального жилищного контроля на территории г. Зеленогорска Постановление Администрации ЗАТО г. Зеленогорска от 29.06.2017 № 149-п Об утверждении Порядка организации и осуществления муниципального контроля за обеспечением сохранности автомобильных дорог местного значения на территории города Зеленогорска Постановление Администрации ЗАТО г. Зеленогорска от 28.06.2017 № 147-п О внесении изменений в Примерное положение об оплате труда работников муниципальных бюджетных и казенных учреждений по сопровождению деятельности органов местного самоуправления, утвержденное постановлением Администрации ЗАТО г. Зеленогорска от 09.12.2016 № 345-п Распоряжение Администрации ЗАТО г. Зеленогорска от 30.06.2017 № 1410-р Об утверждении Плана основных мероприятий по проведению Года экологии в 2017 году в городе Зеленогорске Постановление Администрации ЗАТО г. Зеленогорска от 27.06.2017 № 145-п О временном ограничении движения транспортных средств по улицам города Зеленогорска 08.07.2017 Постановление Администрации ЗАТО г. Зеленогорска от 26.06.2017 № 143-п О внесении изменений в Положение о порядке допуска к участию в совершении сделок с недвижимым имуществом, находящимся на территории ЗАТО Зеленогорск, утвержденное постановлением Администрации ЗАТО г. Зеленогорска от 05.02.2016 № 26-п Постановление Администрации ЗАТО г. Зеленогорска от 23.06.2017 № 139-п Об утверждении Положения о порядке привлечения подрядных организаций для выполнения работ по капитальному ремонту и ремонту дворовых территорий многоквартирных домов Постановление Администрации ЗАТО г. Зеленогорска от 23.06.2017 № 140-п О проведении универсальной ярмарки ко Дню города Постановление Администрации ЗАТО г. Зеленогорска от 23.06.2017 № 138-п О внесении изменений в Примерное положение об оплате труда работников муниципальных бюджетных и казенных учреждений города Зеленогорска, подведомственных Муниципальному казенному учреждению «Комитет по делам культуры и молодежной политики города Зеленогорска», утвержденное постановлением Администрации ЗАТО г. Зеленогорска от 30.09.2013 № 408-п Постановление Администрации ЗАТО г. Зеленогорска от 23.06.2017 № 137-п О внесении изменений в приложение к постановлению Администрации ЗАТО г. Зеленогорска от 18.01.2017 № 7-п Постановление Администрации ЗАТО г. Зеленогорска от 21.06.2017 № 133-п О подготовке к отопительному периоду 2017 - 2018 годов Постановление Администрации ЗАТО г. Зеленогорска от 20.06.2017 № 130-п О разрешении использования в 2017 году в целях купания и отдыха людей озера «Ближнее» и озера «Лебединое» Постановление Администрации ЗАТО г. Зеленогорска от 15.06.2017 № 126-п О внесении изменений в постановление Администрации ЗАТО г. Зеленогорска от 30.12.2011 № 581-п «О создании Единой дежурно-диспетчерской службы города Зеленогорска» Постановление Администрации ЗАТО г. Зеленогорска от 14.06.2017 № 124-п О внесении изменений в муниципальную программу «Капитальное строительство и капитальный ремонт в городе Зеленогорске», утвержденную постановлением Администрации ЗАТО г. Зеленогорска от 12.11.2015 № 292-п Постановление Администрации ЗАТО г. Зеленогорска от 13.06.2017 № 121-п Об утверждении Порядка предоставления субсидий в целях возмещения затрат в связи с оказанием услуг по содержанию жилых помещений и предоставлением коммунальных услуг до заселения жилых помещений жилищного фонда, находящегося в собственности муниципального образования города Зеленогорска Постановление Администрации ЗАТО г. Зеленогорска от 09.06.2017 № 120-п О внесении изменений в Примерное положение об оплате труда работников муниципальных бюджетных и казенных учреждений по сопровождению деятельности органов местного самоуправления, утвержденное постановлением Администрации ЗАТО г. Зеленогорска от 09.12.2016 № 345-п Постановление Администрации ЗАТО г. Зеленогорска от 05.06.2017 № 118-п О внесении изменений в постановление Администрации ЗАТО г. Зеленогорска от 12.11.2015 № 289-п «Об утверждении муниципальной программы «Охрана окружающей среды и защита городских лесов на территории города Зеленогорска» Постановление Администрации ЗАТО г. Зеленогорска от 02.06.2017 № 116-п О внесении изменений в муниципальную программу «Развитие образования в городе Зеленогорске», утвержденную постановлением Администрации ЗАТО г. Зеленогорска от 12.11.2015 № 295-п Распоряжение Администрации ЗАТО г. Зеленогорска от 2.06.2017 № 1180-р Об утверждении состава Общественного совета по проведению независимой оценки качества образовательной деятельности организаций, осуществляющих образовательную деятельность на территории г. Зеленогорска Постановление Администрации ЗАТО г. Зеленогорска от 02.06.2017 № 117-п О внесении изменений в муниципальную программу «Защита населения и территории города Зеленогорска от чрезвычайных ситуаций природного и техногенного характера», утвержденную постановлением Администрации ЗАТО г. Зеленогорска от 12.11.2015 № 286-п Постановление Администрации ЗАТО г. Зеленогорска от 01.06.2017 № 115-п О временном ограничении движения транспортных средств по улицам города Зеленогорска 12.06.2017 Распоряжение Администрации ЗАТО г. Зеленогорска от 30.05.2017 № 1166-р О внесении изменений в распоряжение Администрации ЗАТО г. Зеленогорска от 12.04.2017 № 747-р «Об организации отдыха, оздоровления и занятости детей в каникулярное время 2017 года» Распоряжение Администрации ЗАТО г. Зеленогорска от 30.05.2017 № 1167-р Об утверждении персонального состава Общественного совета по проведению независимой оценки качества оказания услуг организациями культуры на территории г. Зеленогорска Постановление Администрации ЗАТО г. Зеленогорска от 31.05.2017 № 114-п Об отмене постановления Администрации ЗАТО г. Зеленогорска от 16.03.2017 № 56-п «О реорганизации МБУК «ЗГДК» и МБУК «Центр культуры» Постановление Администрации ЗАТО г. Зеленогорска от 29.05.2017 № 113-п О внесении изменений в муниципальную программу «Социальная защита и социальная поддержка населения города Зеленогорска», утвержденную постановлением Администрации ЗАТО г. Зеленогорска от 12.11.2015 № 283-п Распоряжение Администрации ЗАТО г. Зеленогорска от 26.05.2017 № 1139-р О внесении изменений в Положение о премировании по результатам работы директоров муниципальных унитарных предприятий г. Зеленогорска, утвержденное распоряжением Администрации ЗАТО г. Зеленогорска от 25.10.2016 № 2246-р Распоряжение Администрации ЗАТО г. Зеленогорска от 24.05.2017 № 1127-р О мероприятиях по организации обустройства мест массового отдыха людей на водных объектах для купания и отдыха в 2017 году Постановление Администрации ЗАТО г. Зеленогорска от 23.05.2017 № 112-п О внесении изменений в постановление Администрации ЗАТО г. Зеленогорска от 03.10.2016 № 268-п «Об установлении режима работы муниципальных организаций торговли, общественного питания и бытового обслуживания» Постановление Администрации ЗАТО г. Зеленогорска от 19.05.2017 № 110-п Об установлении размера платы за содержание жилого помещения в многоквартирных домах, собственники помещений в которых не приняли решение об установлении размера платы за содержание жилого помещения Постановление Администрации ЗАТО г. Зеленогорска от 19.05.2017 № 111-п О внесении изменений в муниципальную программу «Комплексные меры противодействия терроризму и экстремизму на территории города Зеленогорска», утвержденную постановлением Администрации ЗАТО г. Зеленогорска от 12.11.2015 № 297-п Постановление Администрации ЗАТО г. Зеленогорска от 19.05.2017 № 109-п О внесении изменений в постановление Администрации ЗАТО г. Зеленогорска от 28.07.2016 № 221-п «О видах обязательных работ, объектах, на которых они отбываются, и местах, в которых отбываются исправительные работы» Постановление Администрации ЗАТО г. Зеленогорска от 17.05.2017 № 106-п О внесении изменений в муниципальную программу «Развитие культуры города Зеленогорска», утвержденную постановлением Администрации ЗАТО г. Зеленогорска от 12.11.2015 № 288-п Распоряжение Администрации ЗАТО г. Зеленогорска от 16.05.2017 № 1063-р Об утверждении состава территориальной трехсторонней комиссии по регулированию социально-трудовых отношений Постановление Администрации ЗАТО г. Зеленогорска от 16.05.2017 № 105-п Об утверждении краткосрочного плана реализации региональной программы капитального ремонта общего имущества в многоквартирных домах, расположенных на территории города Зеленогорска, на 2017-2019 годы Распоряжение Администрации ЗАТО г. Зеленогорска от 15.05.2017 № 1039-р Об окончании отопительного периода 2016 - 2017 Постановление Администрации ЗАТО г. Зеленогорска от 15.05.2017 № 104-п О проведении специализированной ярмарки к Троицкой родительской субботе Распоряжение Администрации ЗАТО г. Зеленогорска от 28.04.2017 № 957-р О порядке подготовки г. Зеленогорска к пожароопасному сезону 2017 года Постановление Администрации ЗАТО г. Зеленогорска от 27.04.2017 № 100-п Об установлении расчетной стоимости 1 кв. м общей площади жилых помещений в целях признания граждан малоимущими на 2 квартал 2017 Постановление Администрации ЗАТО г. Зеленогорска от 26.04.2017 № 99-п Об определении средней рыночной стоимости одного квадратного метра общей площади (площади) жилого помещения на территории г. Зеленогорска Красноярского края на II квартал 2017 года Постановление Администрации ЗАТО г. Зеленогорска от 26.04.2017 № 98-п О внесении изменений в муниципальную программу «Развитие физической культуры и спорта в городе Зеленогорске», утвержденную постановлением Администрации ЗАТО г. Зеленогорска от 12.11.2015 № 284-п Постановление Администрации ЗАТО г. Зеленогорска от 25.04.2017 № 97-п Об утверждении условий приватизации объекта незавершенного строительства (мкр. № 22-23) Распоряжение Администрации ЗАТО г. Зеленогорска от 25.04.2017 № 908-р Об организации временного (сезонного) муниципального маршрута регулярных перевозок № 27 Постановление Администрации ЗАТО г. Зеленогорска от 20.04.2017 № 89-п О внесении изменений в муниципальную программу «Реформирование и модернизация жилищно-коммунального хозяйства и повышение энергетической эффективности в городе Зеленогорске», утвержденную постановлением Администрации ЗАТО г. Зеленогорска от 12.11.2015 № 293-п Постановление Администрации ЗАТО г. Зеленогорска от 24.04.2017 № 96-п О временном ограничении движения транспортных средств по улицам города Зеленогорска 09.05.2017 Постановление Администрации ЗАТО г. Зеленогорска от 21.04.2017 № 92-п Об утверждении отчета об исполнении местного бюджета города Зеленогорска за 1 квартал 2017 года Постановление Администрации ЗАТО г. Зеленогорска от 21.04.2017 № 91-п О внесении изменений в муниципальную программу «Развитие молодежной политики города Зеленогорска», утвержденную постановлением Администрации ЗАТО г. Зеленогорска от 12.11.2015 № 296-п Распоряжение Администрации ЗАТО г. Зеленогорска от 21.04.2017 № 863-р Об утверждении перечня социально ориентированных некоммерческих организаций, признанных победителями конкурсного отбора социальных проектов, и размеров предоставляемых им субсидий в целях финансового обеспечения части затрат, связанных с реализацией для жителей города социальных проектов Постановление Администрации ЗАТО г. Зеленогорска от 21.04.2017 № 90-п О временном ограничении и прекращении движения транспортных средств по улицам города Зеленогорска 01.05.2017 Постановление Администрации ЗАТО г. Зеленогорска от 17.04.2017 № 84-п О внесении изменений в Порядок формирования, ведения и утверждения ведомственных перечней муниципальных услуг и работ, оказываемых и выполняемых муниципальными учреждениями г. Зеленогорска, утвержденный постановлением Администрации ЗАТО г. Зеленогорска от 23.07.2015 № 178-п Постановление Администрации ЗАТО г. Зеленогорска от 17.04.2017 № 83-п О внесении изменений в Порядок формирования и финансового обеспечения муниципального задания на оказание муниципальных услуг (выполнение работ) в отношении муниципальных учреждений, утвержденный постановлением Администрации ЗАТО г. Зеленогорска от 15.12.2015 № 325-п Постановление Администрации ЗАТО г. Зеленогорска от 17.04.2017 № 82-п О внесении изменений в муниципальную программу «Развитие транспортной системы в городе Зеленогорске», утвержденную постановлением Администрации ЗАТО г. Зеленогорска от 12.11.2015 № 291-п Постановление Администрации ЗАТО г. Зеленогорска от 17.04.2017 № 85-п О внесении изменений в постановление Администрации ЗАТО г. Зеленогорска от 28.07.2016 № 221-п «О видах обязательных работ, объектах, на которых они отбываются, и местах, в которых отбываются исправительные работы» Распоряжение Администрации ЗАТО г. Зеленогорска от 12.04.2017 № 781-р О признании утратившими силу некоторых распоряжений администрации города Распоряжение Администрации ЗАТО г. Зеленогорска от 12.04.2017 № 747-р Об организации отдыха, оздоровления и занятости детей в каникулярное время 2017 года Распоряжение Администрации ЗАТО г. Зеленогорска от 11.04.2017 № 735-р О подготовке муниципальных образовательных учреждений г. Зеленогорска к новому 2017-2018 учебному году Постановление Администрации ЗАТО г. Зеленогорска от 11.04.2017 № 79-п О признании утратившим силу постановления Администрации ЗАТО г. Зеленогорска от 21.09.2015 № 231-п «Об утверждении Положения о конкурсе профессионального мастерства для молодых педагогов» Постановление Администрации ЗАТО г. Зеленогорска от 11.04.2017 № 78-п О внесении изменений в постановление Администрации ЗАТО г. Зеленогорска от 18.02.2015 № 23-п «Об утверждении Положения и персонального состава комиссии по делам несовершеннолетних и защите их прав города Зеленогорска» Постановление Администрации ЗАТО г. Зеленогорска от 11.04.2017 № 77-п Об исключении муниципального имущества из Перечня муниципального имущества, свободного от прав третьих лиц (за исключением имущественных прав субъектов малого и среднего предпринимательства), предназначенного для предоставления в аренду на долгосрочной основе субъектам малого и среднего предпринимательства и организациям, образующим инфраструктуру поддержки субъектов малого и среднего предпринимательства Распоряжение Администрации ЗАТО г. Зеленогорска от 04.04.2017 № 680-р О внесении изменений в перечень социально ориентированных некоммерческих организаций, признанных победителями конкурсного отбора социальных проектов, и размеры предоставляемых им субсидий, утвержденный распоряжением Администрации ЗАТО г. Зеленогорска от 20.03.2017 № 571-р Распоряжение Администрации ЗАТО г. Зеленогорска от 04.04.2017 № 679-р О формировании Общественного совета по проведению независимой оценки качества оказания услуг организациями культуры на территории г. Зеленогорска Распоряжение Администрации ЗАТО г. Зеленогорска от 04.04.2017 № 678-р О формировании Общественного совета по проведению независимой оценки качества образовательной деятельности организаций, осуществляющих образовательную деятельность на территории г. Зеленогорска Распоряжение Администрации ЗАТО г. Зеленогорска от 03.04.2017 № 672-р О внесении изменений в распоряжение Администрации ЗАТО г. Зеленогорска от 13.09.2016 № 1845-р «Об антинаркотической комиссии города Зеленогорска» Постановление Администрации ЗАТО г. Зеленогорска от 03.04.2017 № 75-п О выделении специальных мест для размещения печатных агитационных материалов на территории г. Зеленогорска в период подготовки и проведения дополнительных выборов депутатов Совета депутатов ЗАТО г. Зеленогорска по одномандатным избирательным округам № 17 и № 22 города Зеленогорска Постановление Администрации ЗАТО г. Зеленогорска от 31.03.2017 № 74-п О внесении изменений в постановление Администрации ЗАТО г. Зеленогорска от 11.01.2013 № 6-п «Об образовании избирательных участков на территории г. Зеленогорска и утверждения их границ для проведения голосования и подсчета голосов избирателей, участников референдума» Постановление Администрации ЗАТО г. Зеленогорска от 30.03.2017 № 73-п О проведении специализированной ярмарки цветов к «Родительскому дню» Постановление Администрации ЗАТО г. Зеленогорска от 30.03.2017 № 72-п Об утверждении Положения о порядке принятия решения о выдаче согласия наймодателя на вселение в жилое помещение муниципального жилищного фонда или об отказе в выдаче такого согласия Постановление Администрации ЗАТО г. Зеленогорска от 28.03.2017 № 71-п О внесении изменений в Порядок предоставления дополнительных мер социальной поддержки и социальной помощи для отдельных категорий граждан на 2017 год, утвержденный постановлением Администрации ЗАТО г. Зеленогорска от 13.10.2016 № 276-п Распоряжение Администрации ЗАТО г. Зеленогорска от 24.03.2017 № 624-р О внесении изменений в распоряжение Администрации ЗАТО г. Зеленогорска от 28.02.2017 № 434-рк «Об утверждении персонального состава общественной комиссии по развитию городской среды» Постановление Администрации ЗАТО г. Зеленогорска от 28.03.2017 № 70-п О внесении изменений в муниципальную программу «Развитие культуры города Зеленогорска», утвержденную постановлением Администрации ЗАТО г. Зеленогорска от 12.11.2015 № 288-п Постановление Администрации ЗАТО г. Зеленогорска от 23.03.2017 № 67-п О выполнении полномочий наймодателя, собственника жилых помещений муниципального жилищного фонда Постановление Администрации ЗАТО г. Зеленогорска от 24.03.2017 № 69-п Об установлении временного ограничения движения транспортных средств по автомобильным дорогам общего пользования местного значения г. Зеленогорска в весенний период 2017 года Распоряжение Администрации ЗАТО г. Зеленогорска от 23.03.2017 № 599-р Об организации работы «горячей телефонной линии» по вопросам охраны труда Постановление Администрации ЗАТО г. Зеленогорска от 21.03.2017 № 66-п О внесении изменений в Примерное положение об оплате труда работников муниципальных бюджетных и казенных учреждений социального обслуживания, утвержденное постановлением Администрации ЗАТО г. Зеленогорска от 28.10.2013 № 466-п Постановление Администрации ЗАТО г. Зеленогорска от 21.03.2017 № 65-п О реорганизации МБДОУ д/с № 23 и МБДОУ д/с № 31 Постановление Администрации ЗАТО г. Зеленогорска от 21.03.2017 № 64-п О реорганизации МБДОУ д/с № 18 и МБДОУ д/с № 19 Постановление Администрации ЗАТО г. Зеленогорска от 21.03.2017 № 63-п О реорганизации МБДОУ д/с № 13 и МБДОУ д/с № 11 Постановление Администрации ЗАТО г. Зеленогорска от 21.03.2017 № 62-п О реорганизации МБДОУ д/с № 6 и МБДОУ д/с № 3 Распоряжение Администрации ЗАТО г. Зеленогорска от 20.03.2017 № 571-р "Об утверждении перечня социально ориентированных некоммерческих организаций, признанных победителями конкурсного отбора социальных проектов, и размеров предоставляемых им субсидий" Распоряжение Администрации ЗАТО г. Зеленогорска от 17.03.2017 № 554-р О признании утратившим силу распоряжения Администрации ЗАТО г. Зеленогорска от от 29.12.2015 № 2774-р «Об утверждении состава комиссии по отбору заявок социально ориентированных некоммерческих организаций» Постановление Администрации ЗАТО г. Зеленогорска от 20.03.2017 № 60-п Об утверждении Положения об Общественном совете по проведению независимой оценки качества образовательной деятельности организаций, осуществляющих образовательную деятельность на территории г. Зеленогорска Постановление Администрации ЗАТО г. Зеленогорска от 17.03.2017 № 59-п Об установлении стоимости гарантированного перечня услуг по погребению, предоставляемых МУП КБУ Распоряжение Администрации ЗАТО г. Зеленогорска от 16.03.2017 № 536-р Об утверждении состава комиссии по соблюдению требований к служебному поведению муниципальных служащих и урегулированию конфликтов интересов Постановление Администрации ЗАТО г. Зеленогорска от 16.03.2017 № 57-п Об утверждении Положения об Общественном совете по проведению независимой оценки качества оказания услуг организациями культуры на территории г. Зеленогорска Постановление Администрации ЗАТО г. Зеленогорска от 16.03.2017 № 56-п О реорганизации МБУК «ЗГДК» и МБУК «Центр культуры» Постановление Администрации ЗАТО г. Зеленогорска от 15.03.2017 № 55-п О внесении изменений в постановление Администрации ЗАТО г. Зеленогорска от 30.06.2015 № 163-п «Об утверждении краткосрочного плана реализации региональной программы капитального ремонта общего имущества в многоквартирных домах, расположенных на территории города Зеленогорска, на 2016 год» Распоряжение Администрации ЗАТО г. Зеленогорска от 09.03.2017 № 495-р О подготовке проекта планировки территории и проекта межевания территории микрорайона № 22 города Зеленогорска Распоряжение Администрации ЗАТО г. Зеленогорска от 09.03.2017 № 494-р О подготовке проекта планировки территории и проекта межевания территории микрорайона № 21 города Зеленогорска Распоряжение Администрации ЗАТО г. Зеленогорска от 09.03.2017 № 493-р О подготовке проекта планировки территории и проекта межевания территории микрорайона № 19 города Зеленогорска Распоряжение Администрации ЗАТО г. Зеленогорска от 09.03.2017 № 492-р О подготовке проекта планировки территории и проекта межевания территории микрорайона № 16 города Зеленогорска Постановление Администрации ЗАТО г. Зеленогорска от 09.03.2017 № 52-п Об утверждении Положения о комиссии по соблюдению требований к служебному поведению муниципальных служащих и урегулированию конфликтов интересов Постановление Администрации ЗАТО г. Зеленогорска от 09.03.2017 № 50-п Об авансовых платежах при заключении получателями средств местного бюджета договоров (муниципальных контрактов) Распоряжение Администрации ЗАТО г. Зеленогорска от 07.03.2017 № 475-р О внесении изменений в распоряжение Администрации ЗАТО г. Зеленогорска от 25.01.2013 № 113-р «О создании комиссии по предупреждению и ликвидации чрезвычайных ситуаций и обеспечению пожарной безопасности города» Постановление Администрации ЗАТО г. Зеленогорска № 47-п от 03.03.2017 О признании утратившими силу постановлений Администрации ЗАТО г. Зеленогорска об утверждении условий приватизации муниципального имущества Распоряжение Администрации ЗАТО г. Зеленогорска № 434-рк от 28.02.2017 Об утверждении персонального состава общественной комиссии по развитию городской среды Постановление Администрации ЗАТО г. Зеленогорска № 46-п от 28.02.2017 О формировании фонда капитального ремонта на счете регионального оператора в отношении многоквартирного дома по адресу: г. Зеленогорск, ул. Юбилейная, д. 1д Постановление Администрации ЗАТО г. Зеленогорска № 45-п от 28.02.2017 Об утверждении Порядка общественного обсуждения проекта подпрограммы «Формирование современной городской среды» муниципальной программы «Реформирование и модернизация жилищно–коммунального хозяйства и повышение энергетической эффективности в городе Зеленогорске» Постановление Администрации ЗАТО г. Зеленогорска № 44-п от 28.02.2017 "Об утверждении Порядка формирования общественной комиссии по развитию городской среды" Постановление Администрации ЗАТО г. Зеленогорска № 43-п от 28.02.2017 "Об утверждении Порядка представления, рассмотрения и оценки предложений граждан, организаций о включении в подпрограмму «Формирование современной городской среды» муниципальной программы «Реформирование и модернизация жилищно–коммунального хозяйства и повышение энергетической эффективности в городе Зеленогорске» наиболее посещаемой муниципальной территории общего пользования, подлежащей благоустройству" Постановление Администрации ЗАТО г. Зеленогорска № 42-п от 28.02.2017 "Об утверждении Порядка представления, рассмотрения и оценки предложений заинтересованных лиц по включению дворовой территории в подпрограмму «Формирование современной городской среды» муниципальной программы «Реформирование и модернизация жилищно –коммунального хозяйства и повышение энергетической эффективности в городе Зеленогорске»" Постановление Администрации ЗАТО г. Зеленогорска № 41-п от 21.02.2017 Об установлении квалификационных требований для замещения должностей муниципальной службы в Администрации ЗАТО г. Зеленогорска Распоряжение Администрации ЗАТО г. Зеленогорска от 17.02.2017 № 379-р О противопаводковых мероприятиях в 2017 году Распоряжение Администрации ЗАТО г. Зеленогорска № 378-р от 17.02.2017 О внесении изменений в распоряжение Администрации ЗАТО г. Зеленогорска от 29.09.2014 № 2174-р «Об утверждении состава общественного совета по охране окружающей среды в г. Зеленогорске» № 336-р от 16.02.2017 О внесении изменений в распоряжение Администрации ЗАТО г. Зеленогорска от 26.02.2013 № 354-р «Об утверждении состава и Порядкаработыпротивопаводковой комиссии» № 33-п от 15.02.2017 О внесении изменений в приложение № 2 к Правилам определения требований к закупаемым муниципальными органами г. Зеленогорска и подведомственными указанным органам муниципальными казенными учреждениями г. Зеленогорска и муниципальными бюджетными учреждениями г. Зеленогорска отдельным видам товаров, работ, услуг (в том числе предельные цены товаров, работ, услуг), утвержденным постановлением Администрации от 16.09.2016 № 261-п Постановление Администрации ЗАТО г. Зеленогорска от 13.02.2017 30-п О проведении специализированной ярмарки «Весенняя ярмарка цветов, посвященная дню 8 марта» № 32-п от 13.02.2017 О временном ограничении и запрещении движения транспортных средств по улицам города Зеленогорска 14.02.2017 Постановление Администрации ЗАТО г.Зеленогорска №28-п от 06.02.2017 "Об утверждении Порядка исполнения поручений Губернатора Красноярского края в Администрации ЗАТО г. Зеленогорска" № 302-р от 09.02.2017 О подготовке и проведении народного гуляния «Масленица» № 290-р от 07.02.2017 О признании утратившим силу распоряжения Администрации ЗАТО г. Зеленогорска от 13.04.2016 № 647-р № 25-п от 06.02.2017 О внесении изменений в постановление Администрации ЗАТО г. Зеленогорска от 27.04.2016 № 92-п «Об утверждении краткосрочного плана реализации региональной программы капитального ремонта общего имущества в многоквартирных домах, расположенных на территории города Зеленогорска, на 2017 год» № 27-п от 06.02.2017 О признании утратившими силу отдельных постановлений Администрации ЗАТО г. Зеленогорска о порядке предоставления субсидий социально ориентированным некоммерческим организациям на реализацию социальных проектов № 26-п от 06.02.2017 О внесении изменений в постановление Администрации ЗАТО г. Зеленогорска от 23.12.2016 № 374-п «Об установлении стоимости услуг по содержанию жилого помещения в общежитиях государственного жилищного фонда, переданных ООО «Квадра Пи-Эль» по договору доверительного управления» № 22-п от 02.02.2017 Об определении средней рыночной стоимости одного квадратного метра общей площади (площади) жилого помещения на территории г. Зеленогорска Красноярского края на I квартал 2017 года № 245-р от 02.02.2017 О проведении конкурса на включение граждан в резерв управленческих кадров города Зеленогорска на замещение должностей руководителей муниципальных учреждений, находящихся в ведении МКУ «КФиС» № 21-п от 02.02.2017 Об установлении расчетной стоимости 1 кв. м общей площади жилых помещений в целях признания граждан малоимущими на 1 квартал 2017 № 14-п от 30.01.2017 О внесении изменений в постановление Администрации ЗАТО г. Зеленогорска от 23.12.2016 № 368-п «Об установлении размера платы за содержание жилого помещения в многоквартирных домах» № 15-п от 30.01.2017 О внесении изменений в постановление Администрации ЗАТО г. Зеленогорска от 23.12.2016 № 372-п «Об установлении размера платы за содержание жилого помещения в многоквартирных домах для нанимателей жилых помещений государственного жилищного фонда, находящего в собственности Российской Федерации» № 16-п от 30.01.2017 О внесении изменений в постановление Администрации ЗАТО г. Зеленогорска от 26.12.2016 № 384-п «Об установлении стоимости услуг по содержанию жилого помещения в общежитии по адресу: г. Зеленогорск, ул. Советская, д. 6, находящимся в собственности муниципального образования г. Зеленогорск» № 17-п от 30.01.2017 О внесении изменений в постановление Администрации ЗАТО г. Зеленогорска от 23.12.2016 № 375-п «Об установлении стоимости услуг по содержанию жилого помещения в общежитиях и специализированном доме «Специальный дом для одиноких престарелых», находящихся в собственности муниципального образования г. Зеленогорск» № 18-п от 30.01.2017 О внесении изменений в Положение о порядке предоставления субсидий социально ориентированным некоммерческим организациям на реализацию социальных проектов, утвержденное постановлением Администрации ЗАТО г. Зеленогорска от 03.10.2016 № 269-п № 13-п от 27.01.2017 Об утверждении Порядка размещения информации о рассчитываемой за календарный год среднемесячной заработной плате руководителей, их заместителей и главных бухгалтеров муниципальных учреждений и муниципальных унитарных предприятий города Зеленогорска и предоставления указанными лицами данной информации Постановление Администрации ЗАТО г. Зеленогорска от 18.01.2017 № 6-п О внесении изменений в постановление Администрации ЗАТО г. Зеленогорска от 14.10.2016 № 278-п «О муниципальной сети образовательных учреждений г. Зеленогорска на 2016 – 2017 учебный год» Распоряжение Администрации ЗАТО г. Зеленогорска от 20.01.2017 № 76-р О внесении изменений в распоряжение Администрации ЗАТО г. Зеленогорска от 25.10.2016 № 2246-р «Об утверждении Положения о премировании по результатам работы директоров муниципальных унитарных предприятий г. Зеленогорска» № 1-п от 13.01.2017 О закреплении муниципальных образовательных учреждений г. Зеленогорска за конкретными территориями г. Зеленогорска № 2-п от 13.01.2017 Об утверждении Порядка изучения мнения населения города Зеленогорска о качестве оказания муниципальных услуг (выполнения работ) муниципальными учреждениями города Зеленогорска № 3-п от 13.01.2017 О внесении изменений в постановление Администрации ЗАТО г. Зеленогорска от 11.08.2015 № 194-п «Об утверждении структуры Управления социальной защиты населения Администрации ЗАТО г. Зеленогорскаи положений о его отделах» № 2776-р от 29.12.2016 О городских культурно-массовых и спортивно-массовых мероприятиях на 2017 год № 2799-р от 30.12.2016 О внесении изменений в ежегодный план проведения плановых проверок юридических лиц и индивидуальных предпринимателей на 2017 год, утвержденный распоряжением Администрации ЗАТО г. Зеленогорска от 17.10.2016 № 2166-р № 387-п от 27.12.2016 О внесении изменений в муниципальную программу «Капитальное строительство и капитальный ремонт в городе Зеленогорске», утвержденную постановлением Администрации ЗАТО г. Зеленогорска от 12.11.2015 № 292-п № 388-п от 27.12.2016 О внесении изменений в муниципальную программу «Реформирование и модернизация жилищно-коммунального хозяйства и повышение энергетической эффективности в городе Зеленогорске», утвержденную постановлением Администрации ЗАТО г. Зеленогорска от 12.11.2015 № 293-п № 365-п от 22.12.2016 О внесении изменений в муниципальную программу «Комплексные меры противодействия терроризму и экстремизму на территории города Зеленогорска», утвержденную постановлением Администрации ЗАТО г. Зеленогорска от 12.11.2015 № 297-п № 368-п от 23.12.2016 Об установлении размера платы за содержание жилого помещения в многоквартирных домах № 369-п от 23.12.2016 Об установлении тарифа на услуги по сбору и транспортированию твердых коммунальных отходов, оказываемые МУП ГЖКУ собственникам жилых домов № 372-п от 23.12.2016 Об установлении размера платы за содержание жилого помещения в многоквартирных домах для нанимателей жилых помещений государственного жилищного фонда, находящегося в собственности Российской Федерации № 373-п от 23.12.2016 Об утверждении базовой стоимости строительства одного квадратного метра нежилого помещения для определения арендной платы за пользование недвижимым муниципальным имуществом, составляющим муниципальную казну города Зеленогорска, на 2017 год № 374-п от 23.12.2016 Об установлении стоимости услуг по содержанию жилого помещения в общежитиях государственного жилищного фонда, переданных ООО «Квадра Пи-Эль» по договору доверительного управления № 375-п от 23.12.2016 Об установлении стоимости услуг по содержанию жилого помещения в общежитиях и специализированном доме «Специальный дом для одиноких престарелых», находящихся в собственности муниципального образования г. Зеленогорск № 370-п от 23.12.2016 О признании утратившими силу пунктов 2 - 4 постановления главы администрации города от 05.04.2006 № 231-п «О признании утратившим силу постановления администрации города от 16.07.2001 г. № 1280-п «О порядке ведения реестров закупок по муниципальным контрактам» № 380-п от 26.12.2016 О внесении изменений в муниципальную программу «Защита населения и территории города Зеленогорска от чрезвычайных ситуаций природного и техногенного характера», утвержденную постановлением Администрации ЗАТО г. Зеленогорска от 12.11.2015 № 286-п № 378-п от 26.12.2016 О внесении изменений в муниципальную программу «Социальная защита и социальная поддержка населения города Зеленогорска», утвержденную постановлением Администрации ЗАТО г. Зеленогорска от 12.11.2015 № 283-п № 384-п от 26.12.2016 Об установлении стоимости услуг по содержанию жилого помещения в общежитии по адресу: г. Зеленогорск, ул. Советская, д. 6, находящимся в собственности муниципального образования г. Зеленогорск № 382-п от 26.12.2016 О внесении изменений в муниципальную программу «Охрана окружающей среды и защита городских лесов на территории города Зеленогорска», утвержденную постановлением Администрации ЗАТО г. Зеленогорска от 12.11.2015 № 289-п № 385-п от 26.12.2016 О внесении изменений в муниципальную программу «Развитие транспортной системы в городе Зеленогорске», утвержденную постановлением Администрации ЗАТО г. Зеленогорска от 12.11.2015 № 291-п № 376-п от 23.12.2016 Об утверждении Порядка оформления плановых (рейдовых) заданий, результатов плановых (рейдовых) осмотров, обследований лесных и земельных участков и их содержание № 377-п от 23.12.2016 Об утверждении Положения о муниципальном земельном контроле на территории г. Зеленогорска № 379-п от 26.12.2016 О внесении изменений в муниципальную программу «Развитие физической культуры и спорта в городе Зеленогорске», утвержденную постановлением Администрации ЗАТО г. Зеленогорска от 12.11.2015 № 284-п № 381-п от 26.12.2016 О внесении изменений в муниципальную программу «Развитие культуры города Зеленогорска», утвержденную постановлением Администрации ЗАТО г. Зеленогорска от 12.11.2015 № 288-п № 383-п от 26.12.2016 О внесении изменений в муниципальную программу «Развитие молодежной политики города Зеленогорска», утвержденную постановлением Администрации ЗАТО г. Зеленогорска от 12.11.2015 № 296-п № 386-п от 26.12.2016 О внесении изменений в муниципальную программу «Развитие образования в городе Зеленогорске», утвержденную постановлением Администрации ЗАТО г. Зеленогорска от 12.11.2015 № 295-п № 2755-р от 27.12.2016 О внесении изменений в распоряжение Администрации ЗАТО г. Зеленогорска от 06.11.2015 № 2289-р «Об утверждении состава и Порядка работы комиссии по определению мест (площадок) временного складирования отходов на территории г. Зеленогорска» № 358-п от 21.12.2016 Об утверждении Примерного положения об оплате труда работников муниципальных бюджетных учреждений города Зеленогорска, осуществляющих деятельность в сфере молодежной политики, находящихся в ведении Муниципального казенного учреждения «Комитет по делам культуры и молодежной политики города Зеленогорска № 2716-р от 22.12.2016 О внесении изменений в распоряжение Администрации ЗАТО г. Зеленогорска от 25.01.2013 № 113-р «О создании комиссии по предупреждению и ликвидации чрезвычайных ситуаций и обеспечению пожарной безопасности города» № 360-п от 21.12.2016 О внесении изменений в муниципальную программу «Управление муниципальными финансами города Зеленогорска», утвержденную постановлением Администрации ЗАТО г. Зеленогорска от 12.11.2015 № 287-п № 367-п от 22.12.2016 О средстве массовой информации, определенном в качестве официального периодического издания, осуществляющего публикацию муниципальных правовых актов г. Зеленогорска № 364-п от 22.12.2016 О признании утратившими силу отдельных муниципальных правовых актов в сфере организованных перевозок групп детей автобусами № 366-п от 22.12.2016 Об утверждении Порядка предоставления физиотерапевтических процедур в муниципальных дошкольных образовательных учреждениях г. Зеленогорска, в которых созданы условия для их проведения № 363-п от 22.12.2016 О внесении изменений в Положение о порядке организации работы по выдаче разрешений на установку и эксплуатацию рекламных конструкций, утвержденное постановлением Администрации ЗАТО г. Зеленогорска от 31.03.2015 № 83-п № 359-п от 21.12.2016 О внесении изменений в требования к порядку разработки и принятия правовых актов о нормировании в сфере закупок для обеспечения муниципальных нужд г. Зеленогорска, содержанию указанных актов и обеспечению их исполнения, утвержденные постановлением Администрации ЗАТО г. Зеленогорска от 02.08.2016№ 225-п № 2696-р от 21.12.2016 О проведении конкурса на включение граждан в резерв управленческих кадров г. Зеленогорска на замещение должностей директоров муниципальных унитарных предприятий города Зеленогорска № 351-п от 16.12.2016 О внесении изменений в муниципальную программу «Гражданское общество – закрытое административно-территориальное образование Зеленогорск», утвержденную постановлением Администрации ЗАТО г. Зеленогорска от 12.11.2015 № 285-п № 356-п от 20.12.2016 О признании утратившими силу отдельных постановлений Администрации ЗАТО г. Зеленогорска о признании безнадежной к взысканию задолженности по платежам в местный бюджет № 357-п от 21.12.2016 Об утверждении условий приватизации крана козлового ККС-10, расположенного по адресу: Красноярский край, г. Зеленогорск, в районе ул. Первая Промышленная, 7/2 – 9 № 355-п от 20.12.2016 № 335-п О внесении изменений в муниципальную программу «Развитие малого и среднего предпринимательства в городе Зеленогорске», утвержденную постановлением Администрации ЗАТО г. Зеленогорска от 12.11.2015 № 290-п № 350-п от 16.12.2016 О внесении изменений в муниципальную программу «Развитие молодежной политики города Зеленогорска», утвержденную постановлением Администрации ЗАТО г. Зеленогорска от 12.11.2015 № 296-п № 2643-р от 16.12.2016 О проведении конкурса на включение граждан в резерв управленческих кадров г. Зеленогорска на замещение должностей руководителей муниципальных казенных учреждений города Зеленогорска № 2644-р от 16.12.2016 О проведении конкурса на включение граждан в резерв управленческих кадров г. Зеленогорска на замещение должностей руководителей структурных подразделений Администрации ЗАТО г. Зеленогорска № 2645-р от 16.12.2016 О проведении конкурса на включение граждан в резерв управленческих кадров г. Зеленогорска на замещение должностей заместителей главы Администрации ЗАТО г. Зеленогорска № 349-п от 16.12.2016 О внесении изменений в постановление Администрации ЗАТО г. Зеленогорска от 26.06.2013 № 257-п «Об утверждении Примерного положение об оплате труда работников муниципальных бюджетных учреждений дополнительного образования города Зеленогорска, подведомственных Муниципальному казенному учреждению «Комитет по делам культуры и молодежной политики города Зеленогорска» № 352-п от 16.12.2016 О внесении изменений в постановление Администрации ЗАТО г. Зеленогорска от 16.04.2014 № 90-п «Об утверждении Порядка оценки качества финансового менеджмента главных распорядителей средств местного бюджета и Методики оценки качества финансового менеджмента главных распорядителей средств местного бюджета» № 346-п от 13.12.2016 Об утверждении нормативов субсидирования на регулярные пассажирские перевозки по муниципальным маршрутам № 344-п от 09.12.2016 О внесении изменений в постановление Администрации ЗАТО г. Зеленогорска от 12.11.2015 № 295-п «Об утверждении муниципальной программы «Развитие образования в городе Зеленогорске» № 343-п от 09.12.2016 Об установлении тарифа на услуги по вывозу жидких бытовых отходов, оказываемые Муниципальным унитарным предприятием тепловых сетей г. Зеленогорска № 342-п от 9.12.2016 О внесении изменений в постановление Администрации ЗАТО г. Зеленогорска от 12.11.2015 № 288-п «Об утверждении муниципальной программы «Развитие культуры города Зеленогорска» № 2578-р от 09.12.2016 О подготовке и проведении городских культурно-массовых мероприятий «Открытие городской новогодней Ёлки» и «Новогодняя дискотека» № 345-п от 09.12.2016 Об утверждении Примерного положения об оплате труда работников муниципальных бюджетных и казенных учреждений по сопровождению деятельности органов местного самоуправления Постановление Администрации ЗАТО г. Зеленогорска от 09.12.2016 № 343-п № 336-п от 06.12.2016 О внесении изменений в Порядок составления и утверждения планов финансово-хозяйственной деятельности муниципальных учреждений, утвержденный постановлением Администрации ЗАТО г. Зеленогорска от 10.10.2016 № 273-п № 337-п от 06.12.2016 О внесении изменений в постановление Администрации ЗАТО г. Зеленогорска от 12.11.2015 № 283-п «Об утверждении муниципальной программы «Социальная защита и социальная поддержка населения города Зеленогорска» № 332-п от 05.12.2016 О внесении изменений в постановление Администрации ЗАТО г. Зеленогорска от 04.10.2013 № 421-п «Об утверждении Примерного положения об оплате труда работников муниципальных бюджетных и казенных учреждений, находящихся в ведении МКУ «КФиС» № 333-п от 05.12.2016 Об утверждении Примерного положения об оплате труда работников муниципальных бюджетных и казенных учреждений города Зеленогорска, находящихся в ведении Управления образования Администрации ЗАТО г. Зеленогорска № 334-п от 05.12.2016 О внесении изменений в постановление Администрации ЗАТО г. Зеленогорска от 12.11.2015 № 293-п «Об утверждении муниципальной программы «Реформирование и модернизация жилищно-коммунального хозяйства и повышение энергетической эффективности в городе Зеленогорске» № 319-п от 25.11.2016 О внесении изменений в постановление Администрации ЗАТО г. Зеленогорска от 12.11.2015 № 296-п «Об утверждении муниципальной программы «Развитие молодежной политики города Зеленогорска» № 329-п от 30.11.2016 О внесении изменений в постановление Администрации ЗАТО г. Зеленогорска от 30.09.2013 № 408-п «Об утверждении Примерного положения об оплате труда работников муниципальных бюджетных и казенных учреждений города Зеленогорска, подведомственных Муниципальному казенному учреждению «Комитет по делам культуры и молодежной политики города Зеленогорска» № 331-п от 05.12.2016 О внесении изменений в постановление Администрации ЗАТО г. Зеленогорска от 12.11.2015 № 284-п «Об утверждении муниципальной программы «Развитие физической культуры и спорта в городе Зеленогорске» № 327-п от 30.11.2016 Об утверждении условий приватизации объекта незавершенного строительства (мкр. № 22-23) № 326-п от 30.11.2016 О внесении изменений в постановление Администрации ЗАТО г. Зеленогорска от 12.11.2015 № 291-п «Об утверждении муниципальной программы «Развитие транспортной системы в городе Зеленогорске» № 328-п от 30.11.2016 О внесении изменений в постановление Администрации ЗАТО г. Зеленогорска от 12.11.2015 № 292-п «Об утверждении муниципальной программы «Капитальное строительство и капитальный ремонт в городе Зеленогорске» 30.11.2016 № 2282-р от 26.10.2016 Об утверждении плана проведения плановых проверок юридических лиц и индивидуальных предпринимателей на 2017 год № 325-п от 25.11.2016 О внесении изменений в постановление Администрации ЗАТО г. Зеленогорска от 12.11.2015 № 297-п «Об утверждении муниципальной программы «Комплексные меры противодействия терроризму и экстремизму на территории города Зеленогорска» № 324-п от 25.11.2016 О внесении изменений в постановление Администрации ЗАТО г. Зеленогорска от 12.11.2015 № 289-п «Об утверждении муниципальной программы «Охрана окружающей среды и защита городских лесов на территории города Зеленогорска» № 321-п от 25.11.2016 О внесении изменений в постановление Администрации ЗАТО г. Зеленогорска от 12.11.2015 № 286-п «Об утверждении муниципальной программы «Защита населения и территории города Зеленогорска от чрезвычайных ситуаций природного и техногенного характера» № 317-п от 23.11.2016 О внесении изменений в постановление Администрации ЗАТО г. Зеленогорска от 12.11.2015 № 283-п «Об утверждении муниципальной программы «Социальная защита и социальная поддержка населения города Зеленогорска» № 316-п от 23.11.2016 О внесении изменений в постановление Администрации ЗАТО г. Зеленогорска от 12.11.2015 № 287-п «Об утверждении муниципальной программы «Управление муниципальными финансами города Зеленогорска» № 309-п от 17.11.2016 О внесении изменений в постановление Администрации ЗАТО г. Зеленогорска от 12.11.2015 № 290-п «Об утверждении муниципальной программы «Развитие малого и среднего предпринимательства в городе Зеленогорске» № 304-п от 11.11.2016 О внесении изменений в постановление Администрации ЗАТО г. Зеленогорска от 12.11.2015 № 285-п «Об утверждении муниципальной программы «Гражданское общество - закрытое административно-территориальное образование Зеленогорск» № 293-п от 28.10.2016 О внесении изменений в муниципальную программу «Развитие культуры города Зеленогорска», утвержденную постановлением Администрации ЗАТО г. Зеленогорска от 12.11.2015 № 288-п № 284-п от 21.10.2016 О внесении изменений в муниципальную программу «Защита населения и территории города Зеленогорска от чрезвычайных ситуаций природного и техногенного характера», утвержденную постановлением Администрации ЗАТО г. Зеленогорска от 12.11.2015 № 286-п № 272-п от 5.10.2016 О внесении изменений в муниципальную программу «Охрана окружающей среды и защита городских лесов на территории города Зеленогорска», утвержденную постановлением Администрации ЗАТО г. Зеленогорска от 12.11.2015 № 289-п Постановление Администрации ЗАТО г. Зеленогорска № 269-п от 03.10.2016 Об утверждении Положения о порядке предоставления субсидий социально ориентированным некоммерческим организациям на реализацию социальных проектов № 256-п от 13.09.2016 О внесении изменений в муниципальную программу «Реформирование и модернизация жилищно-коммунального хозяйства и повышение энергетической эффективности в городе Зеленогорске», утвержденную постановлением Администрации ЗАТО г. Зеленогорска от 12.11.2015 № 293-п № 250-п от 08.09.2016 О внесении изменений в муниципальную программу «Развитие молодежной политики города Зеленогорска», утвержденную постановлением Администрации ЗАТО г. Зеленогорска от 12.11.2015 № 296-п № 251-п от 08.09.2016 ОО внесении изменений в муниципальную программу «Развитие культуры города Зеленогорска», утвержденную постановлением Администрации ЗАТО г. Зеленогорска от 12.11.2015 № 288-п № 248-п от 29.08.2016 О внесении изменений в муниципальную программу «Капитальное строительство и капитальный ремонт в городе Зеленогорске», утвержденную постановлением Администрации ЗАТО г. Зеленогорска от 12.11.2015 № 292-п №238-п от 19.08.2016 О внесении изменений в муниципальную программу «Развитие образования в городе Зеленогорске», утвержденную постановлением Администрации ЗАТО г. Зеленогорска от 12.11.2015 № 295-п № 229-п от 08.08.2016 О внесении изменений в муниципальную программу «Гражданское общество – закрытое административно-территориальное образование Зеленогорск», утвержденную постановлением Администрации ЗАТО г. Зеленогорска от 12.11.2015 № 285-п № 222-п от 28.07.2016 О внесении изменений в постановление Администрации ЗАТО г. Зеленогорска от 12.11.2015 № 297-п «Об утверждении муниципальной программы «Комплексные меры противодействия терроризму и экстремизму на территории города Зеленогорска» № 216-п от 22.07.2016 О внесении изменений в муниципальную программу «Развитие транспортной системы в городе Зеленогорске», утвержденную постановлением Администрации ЗАТО г. Зеленогорска от 12.11.2015 № 291-п № 208-п от 13.07.2016 О внесении изменений в муниципальную программу «Развитие физической культуры и спорта в городе Зеленогорске», утвержденную постановлением Администрации ЗАТО г. Зеленогорска от 12.11.2015 № 284-п № 150-п от 09.06.2016 О внесении изменений в муниципальную программу «Развитие молодежной политики города Зеленогорска», утвержденную постановлением Администрации ЗАТО г. Зеленогорска от 12.11.2015 № 296-п № 151-п от 10.06.2016 О внесении изменений в муниципальную программу «Развитие малого и среднего предпринимательства в городе Зеленогорске», утвержденную постановлением Администрации ЗАТО г. Зеленогорска от 12.11.2015 № 290-п № 141-п от 02.06.2016 О внесении изменений в муниципальную программу «Социальная защита и социальная поддержка населения города Зеленогорска», утвержденную постановлением Администрации ЗАТО г. Зеленогорска от 12.11.2015 № 283-п № 134-п от 31.05.2016 О внесении изменений в муниципальную программу «Развитие культуры города Зеленогорска», утвержденную постановлением Администрации ЗАТО г. Зеленогорска от 12.11.2015 № 288-п № 133-п от 31.05.2016 О внесении изменений в муниципальную программу «Реформирование и модернизация жилищно-коммунального хозяйства и повышение энергетической эффективности в городе Зеленогорске», утвержденную постановлением Администрации ЗАТО г. Зеленогорска от 12.11.2015 № 293-п № 128-п от 27.05.2016 О внесении изменений в муниципальную программу «Капитальное строительство и капитальный ремонт в городе Зеленогорске», утвержденную постановлением Администрации ЗАТО г. Зеленогорска от 12.11.2015 № 292-п № 129-п от 27.05.2016 О внесении изменений в муниципальную программу «Развитие транспортной системы в городе Зеленогорске», утвержденную постановлением Администрации ЗАТО г. Зеленогорска от 12.11.2015 № 291-п Постановление Администрации ЗАТО г. Зеленогорска от 31.03.2016 № 75-п Об утверждении Генеральной схемы очистки территории ЗАТО Зеленогорск Красноярского края Постановление Администрации ЗАТО г. Зеленогорска от 22.03.2016 № 68-п "Об утверждении Порядка обеспечения горячим питанием отдельных категорий учащихся муниципальных общеобразовательных организаций г. Зеленогорска" № 35-п от 17.02.2016 О внесении изменений в приложение к постановлению Администрации ЗАТО г. Зеленогорска от 12.11.2015 № 285-п «Об утверждении муниципальной программы «Гражданское общество - закрытое административно-территориальное образо- вание Зеленогорск» № 293-п от 12.11.2015 Об утверждении муниципальной программы «Реформирование и модернизация жилищно-коммунального хозяйства и повышение энергетической эффективности в городе Зеленогорске» № 292-п от 12.11.2015 Об утверждении муниципальной программы «Капитальное строительство и капитальный ремонт в городе Зеленогорске № 291-п от 12.11.2015 Об утверждении муниципальной программы «Развитие транспортной системы в городе Зеленогорске № 283-п от 12.11.2015 Об утверждении муниципальной программы «Социальная защита и социальная поддержка населения города Зеленогорска № 296-п от 12.11.2015 Об утверждении муниципальной программы «Развитие молодежной политики города Зеленогорска» № 288-п от 12.11.2015 Об утверждении муниципальной программы «Развитие культуры города Зеленогорска № 289-п от 12.11.2015 Об утверждении муниципальной программы «Охрана окружающей среды и защита городских лесов на территории города Зеленогорска» № 295-п от 12.11.2015 Об утверждении муниципальнойпрограммы «Развитие образования в городе Зеленогорске» № 284-п от 12.11.2015 Об утверждении муниципальной программы «Развитие физической культуры и спорта в городе Зеленогорске» № 285-п от 12.11.2015 Об утверждении муниципальной программы «Гражданское общество - закрытое административно- территориальное образование Зеленогорск» № 297-п от 12.11.2015 Об утверждении муниципальной программы «Комплексные меры противодействия терроризму и экстремизму на территории города Зеленогорска» № 286-п от 12.11.2015 Об утверждении муниципальной программы «Защита населения и территории города Зеленогорска от чрезвычайных ситуаций природного и техногенного характера» № 290-п от 12.11.2015 Об утверждении муниципальной программы «Развитие малого и среднего предпринимательства в городе Зеленогорске» Постановление Администрации ЗАТО г. Зеленогорска от 21.09.2015 № 231-п Об утверждении Положения о конкурсе профессионального мастерства для молодых педагогов Постановление Администрации ЗАТО г. Зеленогорска от 29.12.2014 № 433-п Об утверждении Положения о порядке предоставления субсидий социально ориентированным некоммерческим организациям на реализацию социальных проектов в сфере социальной поддержки и защиты граждан № 287- п от 12.11.2015 Об утверждении муниципальной программы «Управление муниципальными финансами города Зеленогорска» Постановление Администрации ЗАТО г. Зеленогорска от 28.10.2014 № 315-п "Об утверждении схемы размещения рекламных конструкций на территории г. Зеленогорска" Постановление Администрации ЗАТО г. Зеленогорска от 18.09.2014 № 261-п О внесении изменений в постановление Администрации ЗАТО г. Зеленогорска от 27.08.2012 № 324-п "Об утверждении Положения о материальном стимулировании педагогов муниципальных образовательных учреждений, осуществляющих работу с одаренными детьми" Постановление Администрации ЗАТО г. Зеленогорска от 22.07.2014 № 214-п Об утверждении Положения о порядке предоставления субсидий социально ориентированным некоммерческим организациям на реализацию социальных проектов Постановление Администрации ЗАТО г. Зеленогорска от 16.05.2014 № 133-п Об утверждении Положения о стипендиях Главы ЗАТО г. Зеленогорска № 109-п "Об утверждении Порядка размещения на сайте Администрации ЗАТО г. Зеленогорска и предоставления для опубликования сведений, представляемых руководителями муниципальных учреждений г. Зеленогорска" Распоряжение Администрации ЗАТО г. Зеленогорска от 31.12.2013 № 3251-р "Об утверждении состава и Порядка работы комиссии по разработке схем размещения рекламных конструкций" Постановление № 572-п от 09.01.2014 г. "Об утверждении нормативов субсидирования на пассажирские перевозки по муниципальным маршрутам" № 247-п "Об утверждении Порядка осуществления проверки достоверности и полноты сведений о доходах, об имуществе и обязательствах имущественного характера, представляемых лицами, поступающими на должности руководителей муниципальных учреждений г. Зеленогорска, и руководителями муниципальных учреждений г. Зеленогорска" № 248-п "Об утверждении Порядка размещения на сайте Администрации ЗАТО г. Зеленогорска и предоставления для опубликования сведений, представляемых муниципальными служащими Администрации ЗАТО г. Зеленогорска" Постановление Администрации ЗАТО г. Зеленогорска от 28.05.2013 № 215-п Об осуществлении на территории г. Зеленогорска государственных полномочий по обеспечению жилыми помещениями детей-сирот и детей, оставшихся без попечения родителей, лиц из числа детей-сирот и детей, оставшихся без попечения родителей Постановление Администрации ЗАТО г. Зеленогорска от 23.03.2013 № 116-п "О мерах, направленных на обеспечение выполнения Администрацией ЗАТО г. Зеленогорска обязанностей, предусмотренных Федеральным законом «О персональных данных» и принятыми в соответствии с ним нормативными правовыми актами" № 92-п "Об утверждении Порядка размещения на сайте Администрации ЗАТО г. Зеленогорска и предоставления для опубликования сведений о доходах, об имуществе и обязательствах имущественного характера руководителей муниципальных учреждений г. Зеленогорска" Постановление Администрации ЗАТО г. Зеленогорска от 27.08.2012 № 324-п Об утверждении Положения о материальном стимулировании педагогов муниципальных образовательных учреждений, осуществляющих работу с одаренными детьми Постановление Администрации ЗАТО г. Зеленогорска 62-п от 09.02.2010 Об исполнении государственных полномочий по выплате компенсации части родительской платы за содержание ребенка в муниципальных образовательных учреждениях, реализующий основную общеобразовательную программу дошкольного образования на территории г. Зеленогорска